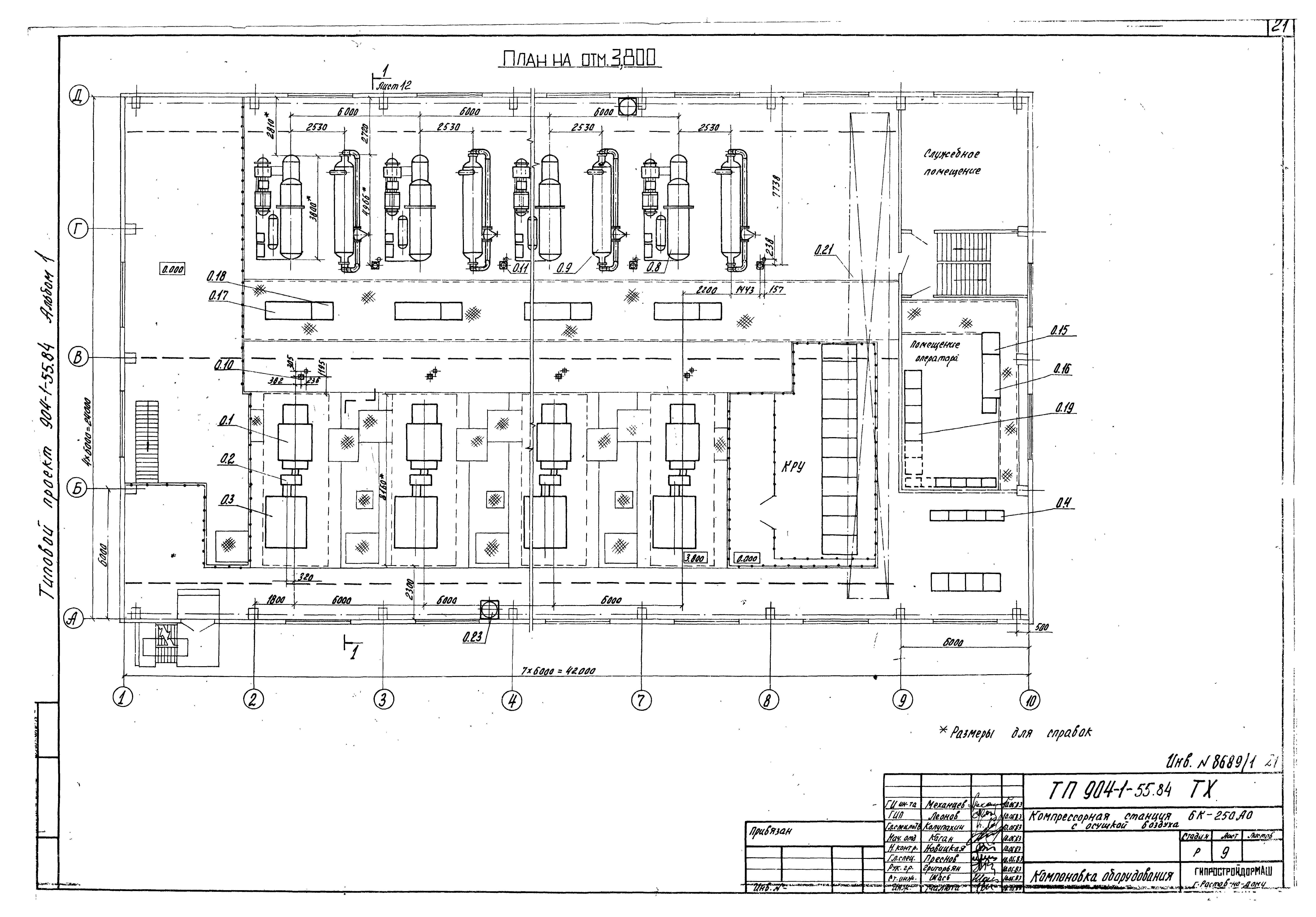
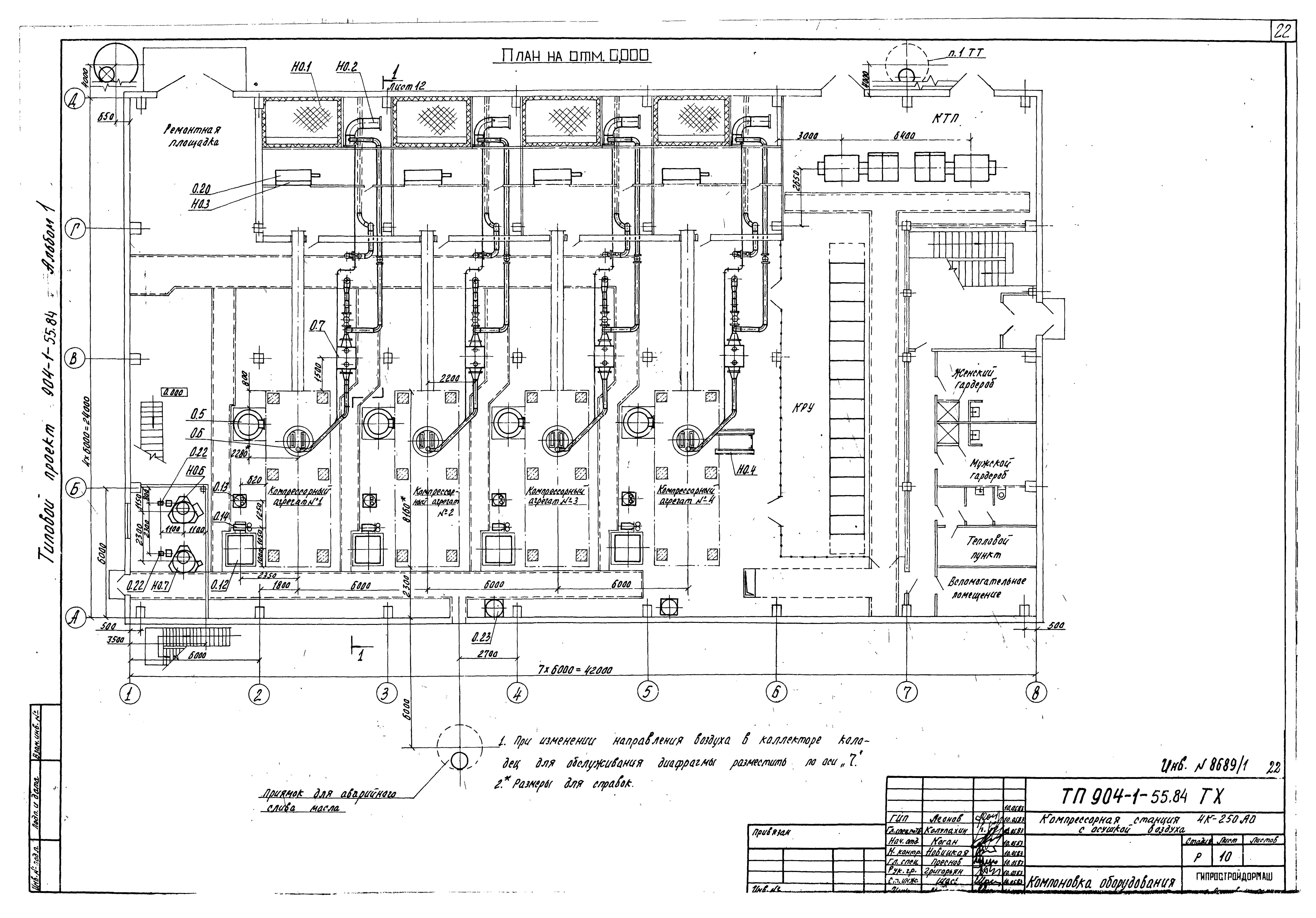
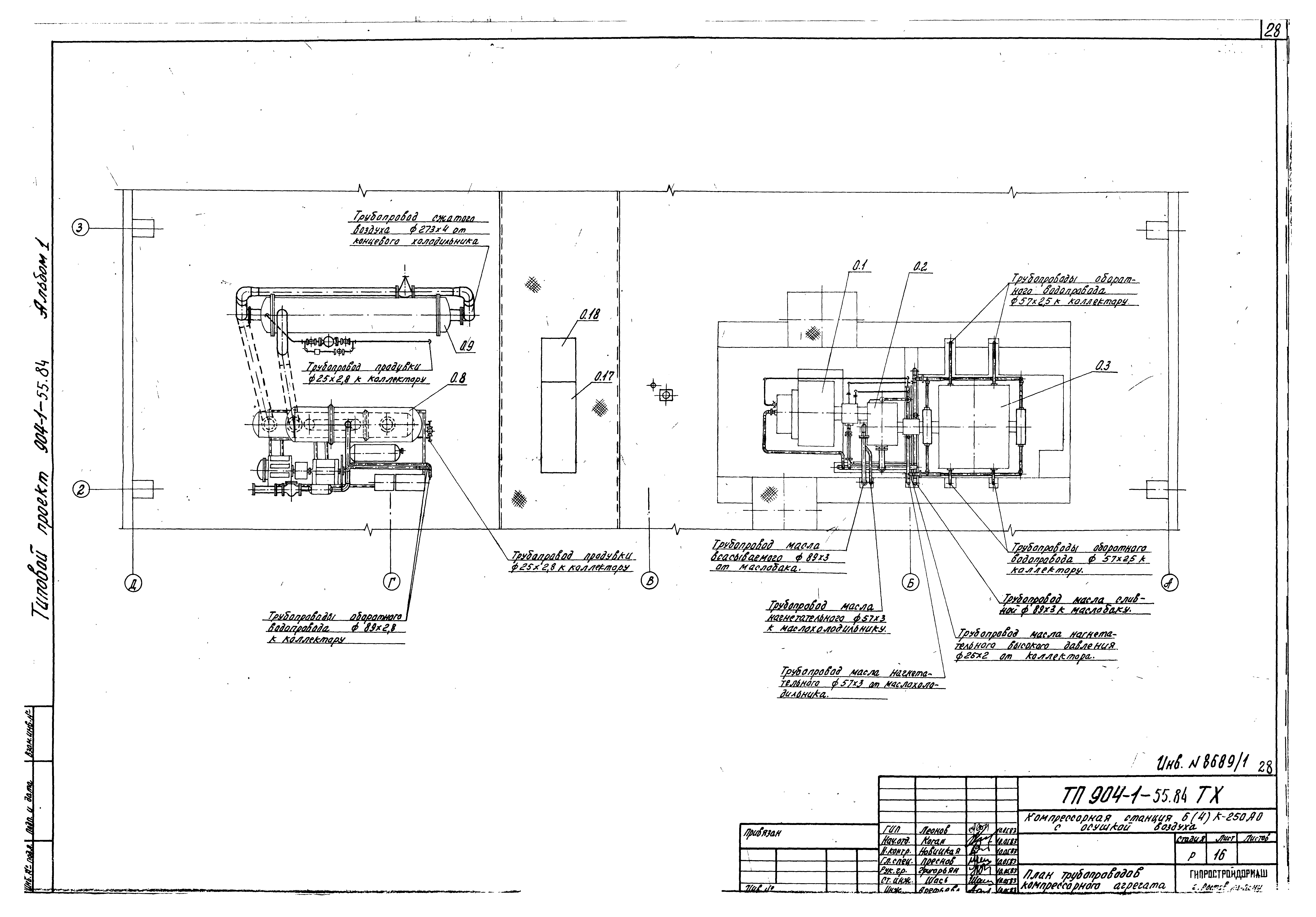
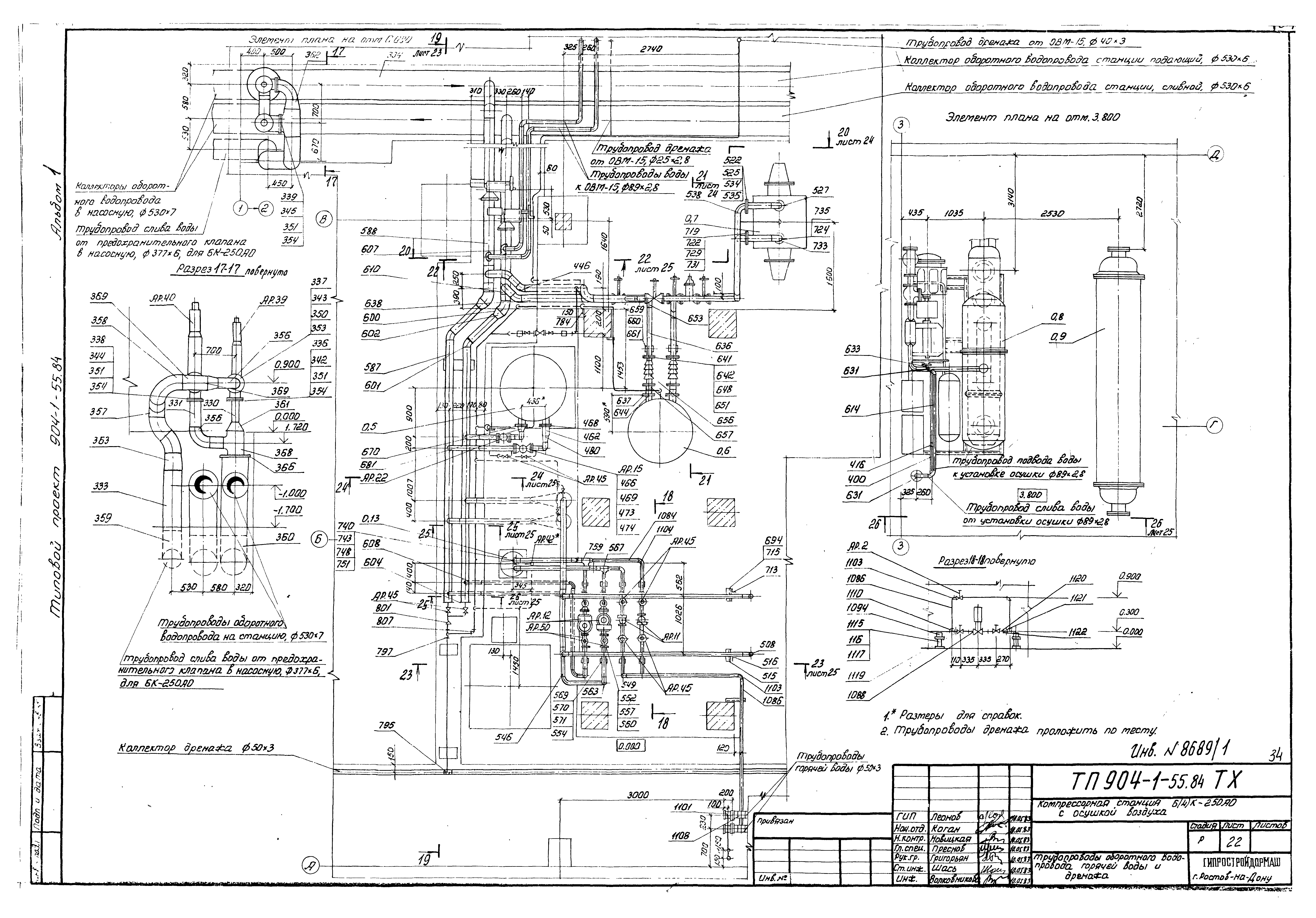
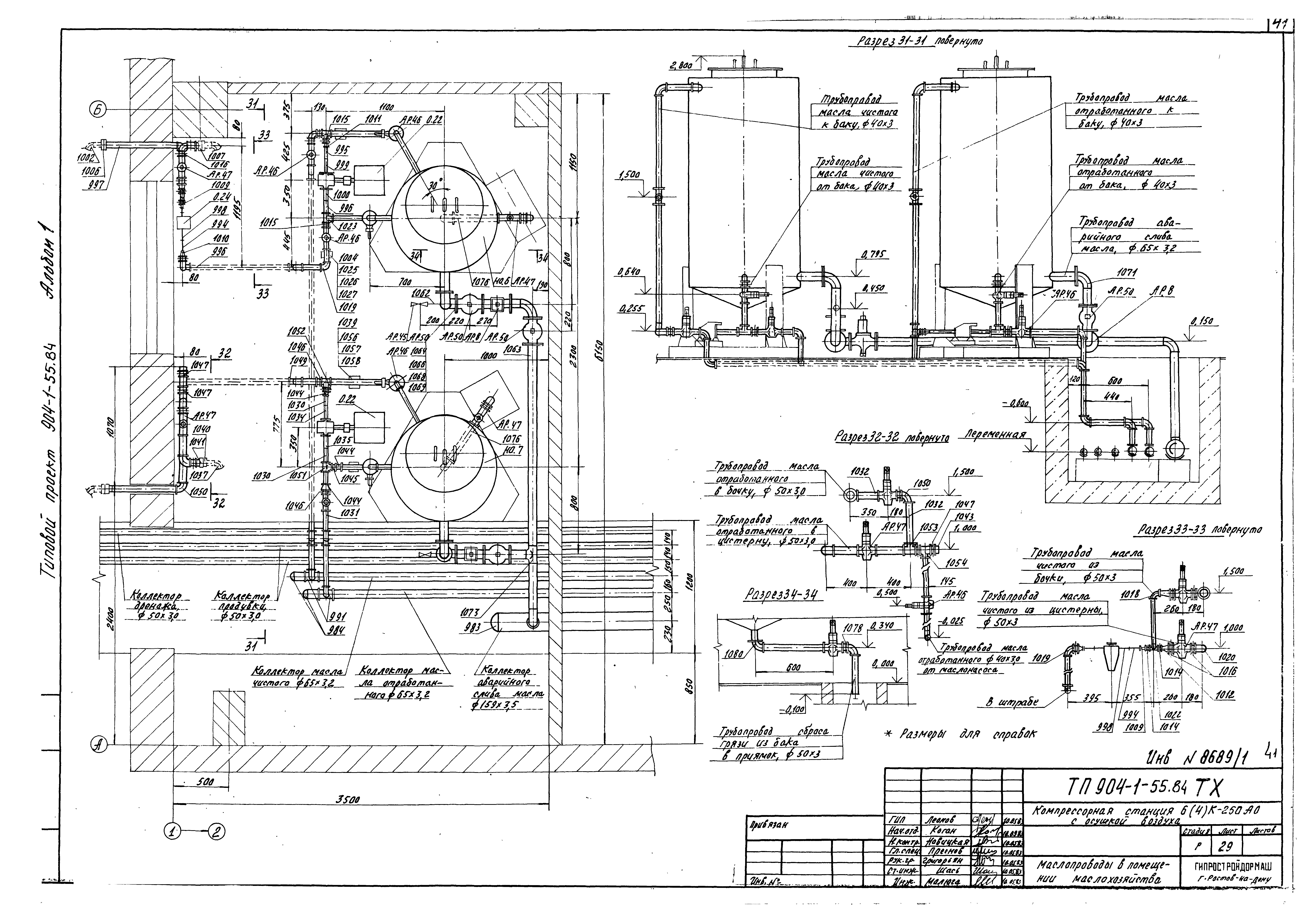
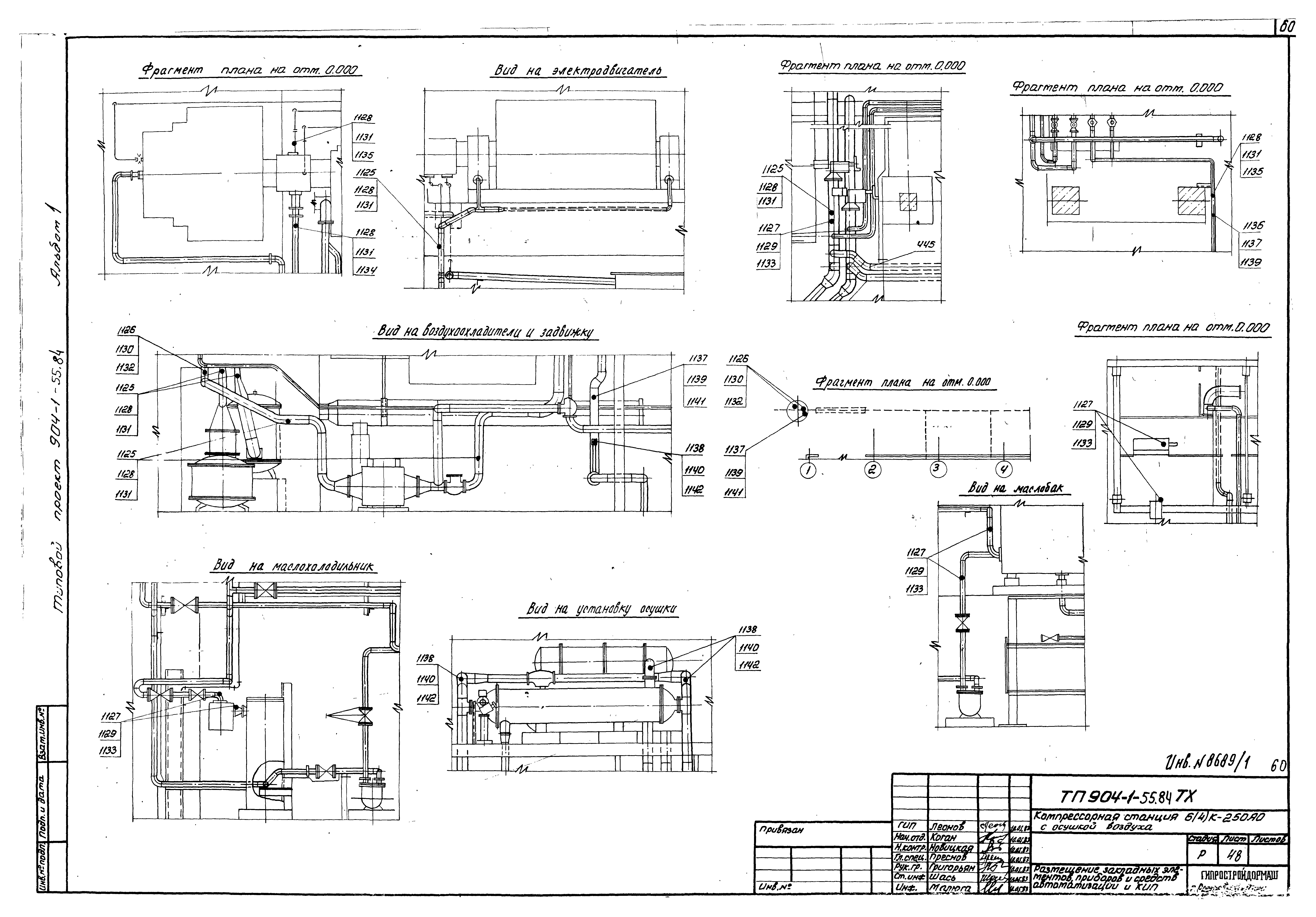
Скачать Типовой проект 904-1-55.84 Альбом 1. Технологическая частьДата актуализации: 01.01.2021
|
| Обозначение: | Типовой проект 904-1-55.84 |
| Обозначение англ: | 904-1-55.84 |
| Статус: | действует |
| Название рус.: | Альбом 1. Технологическая часть |
| Дата добавления в базу: | 01.09.2013 |
| Дата актуализации: | 01.01.2021 |
| Дата введения: | 30.12.1983 |
| Разработан: | Гипростройдормаш |
| Утверждён: | 01.11.1983 Минстройдормаш (Minstroydormash 20/83) |





































































