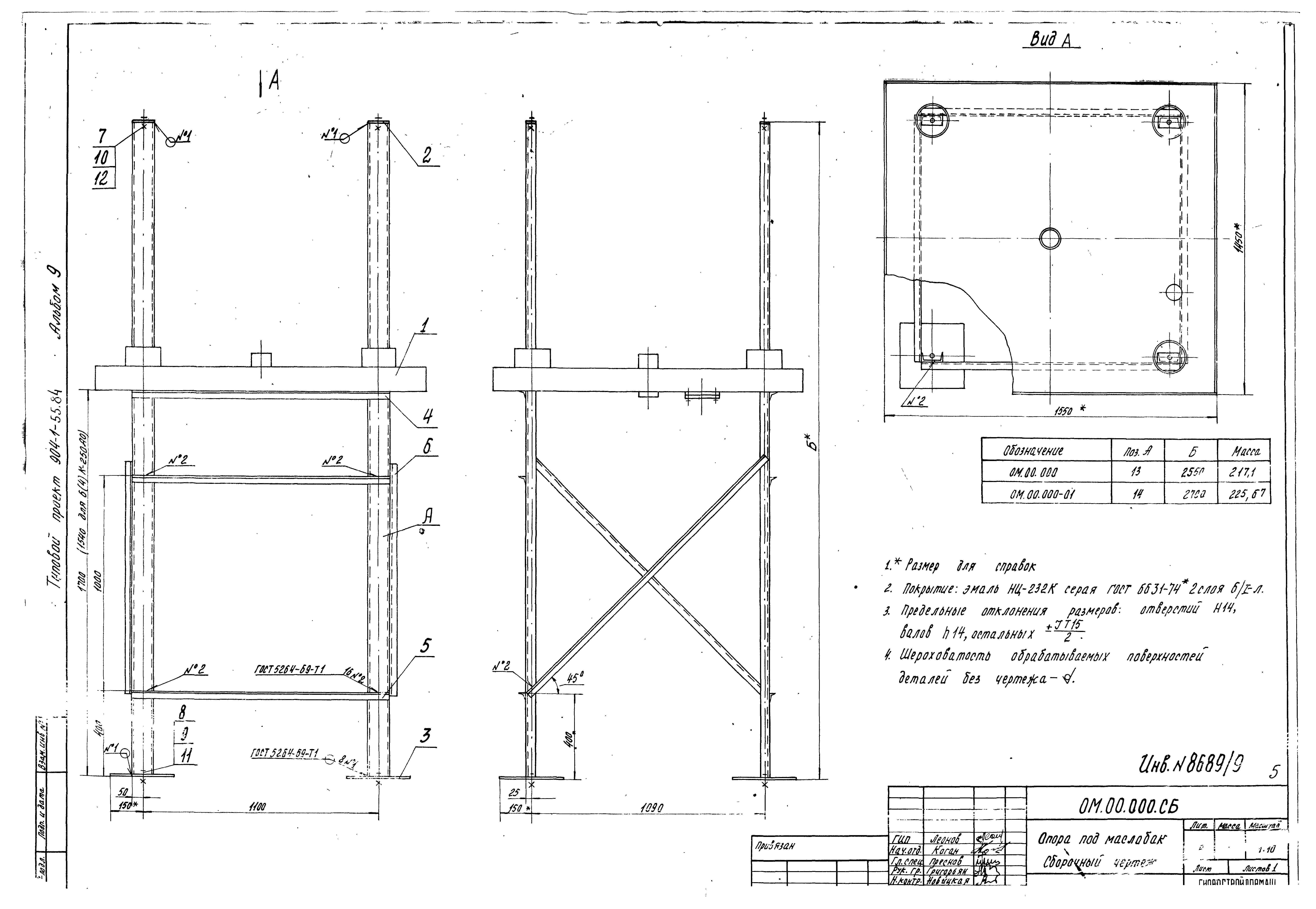
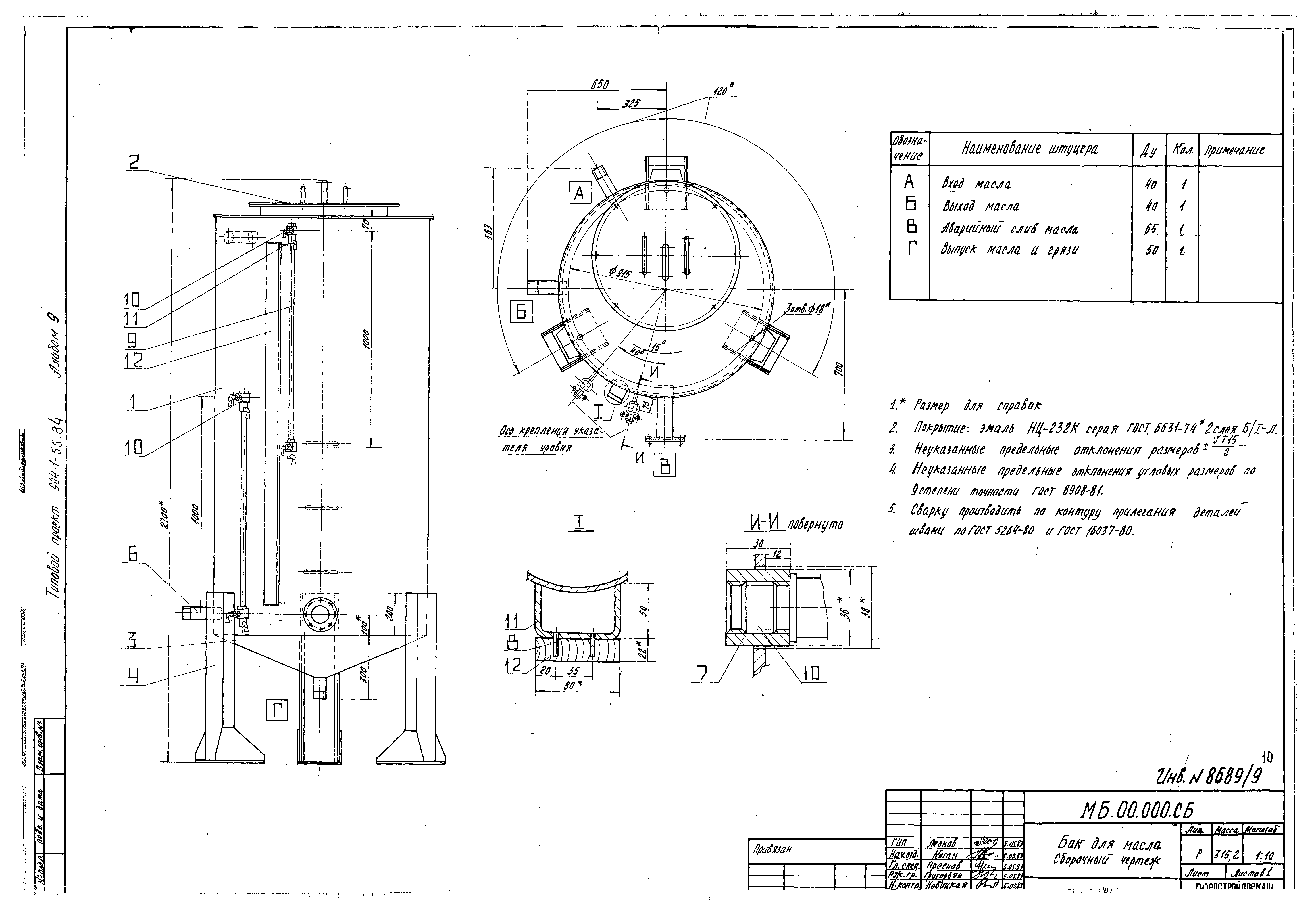
Скачать Типовой проект 904-1-55.84 Альбом 9. Нестандартизированное оборудование. Технологическая частьДата актуализации: 01.01.2021 Типовой проект 904-1-55.84
Альбом 9. Нестандартизированное оборудование. Технологическая часть| Обозначение: | Типовой проект 904-1-55.84 | | Обозначение англ: | 904-1-55.84 | | Статус: | действует | | Название рус.: | Альбом 9. Нестандартизированное оборудование. Технологическая часть | | Дата добавления в базу: | 01.09.2013 | | Дата актуализации: | 01.01.2021 | | Дата введения: | 30.12.1983 | | Разработан: | Гипростройдормаш
| | Утверждён: | 01.11.1983 Минстройдормаш (Minstroydormash 20/83)
|
                            
|