Скачать Типовой проект 902-1-103.85 Альбом III. Архитектурно-строительные решения. Надземная часть. Общие чертежи, узлы и детали (из ТП 902-1-99.85)Дата актуализации: 01.01.2021
|
| Обозначение: | Типовой проект 902-1-103.85 |
| Обозначение англ: | 902-1-103.85 |
| Статус: | действует |
| Название рус.: | Альбом III. Архитектурно-строительные решения. Надземная часть. Общие чертежи, узлы и детали (из ТП 902-1-99.85) |
| Дата добавления в базу: | 01.09.2013 |
| Дата актуализации: | 01.01.2021 |
| Дата введения: | 18.09.1985 |
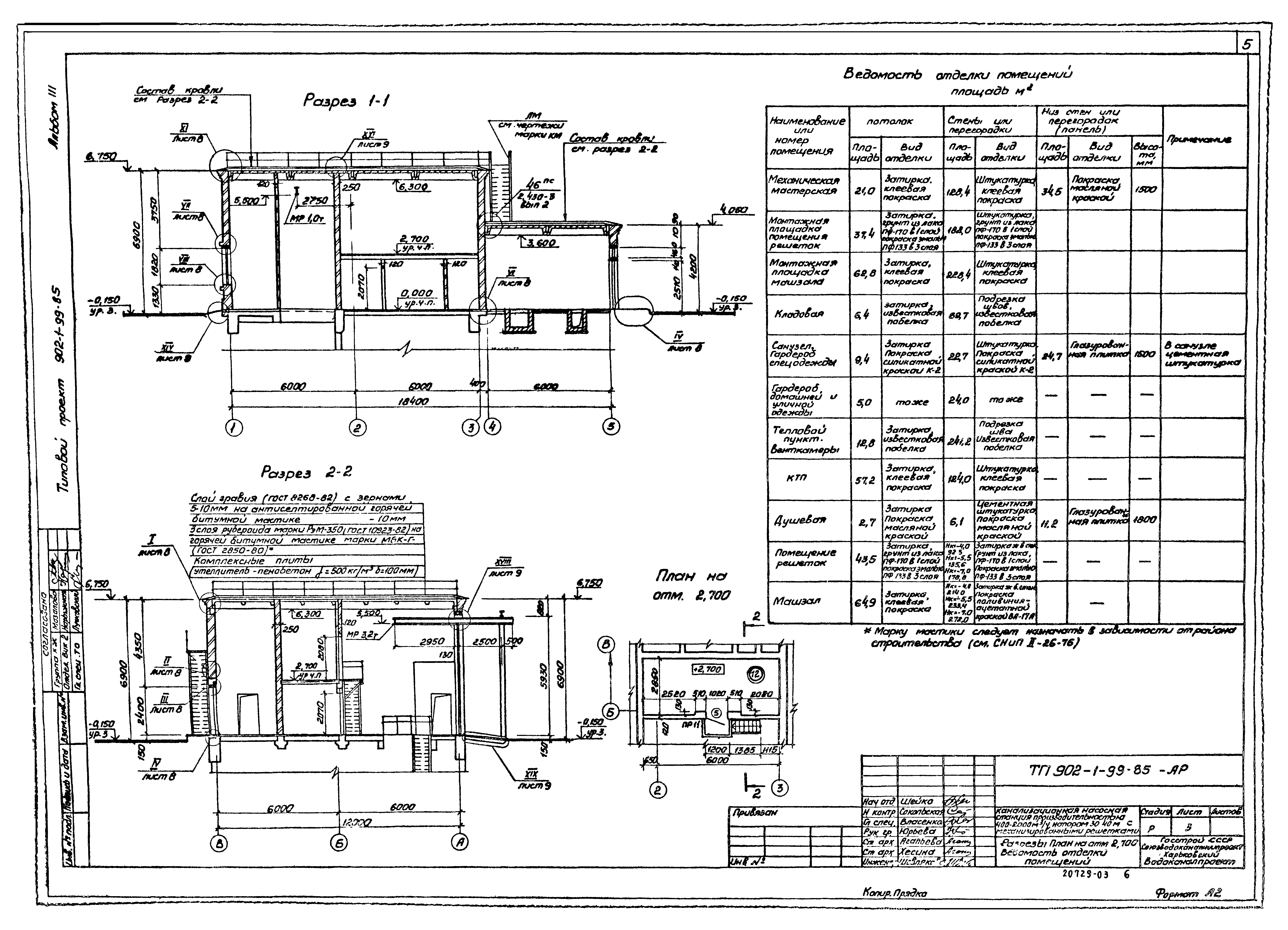
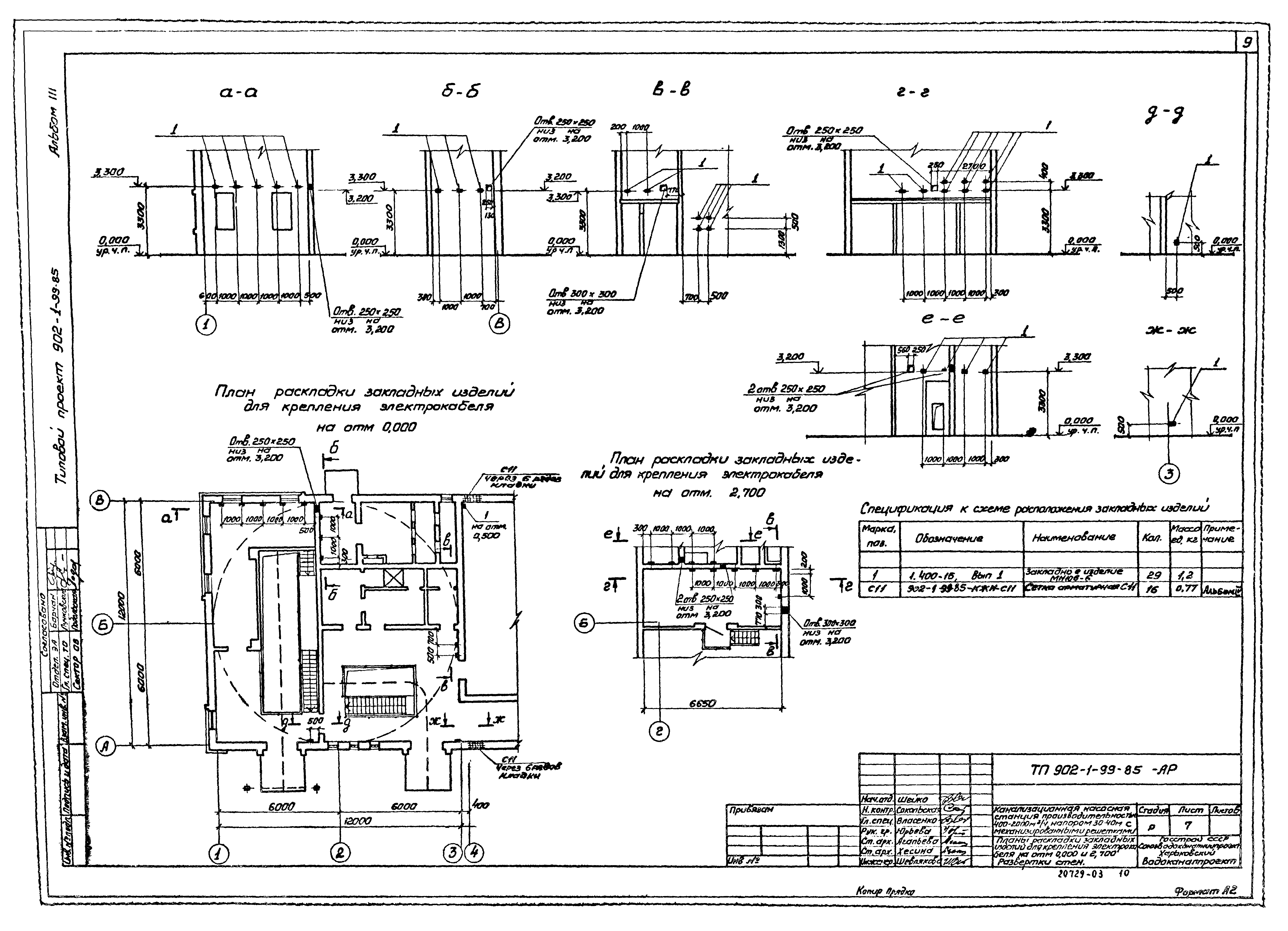
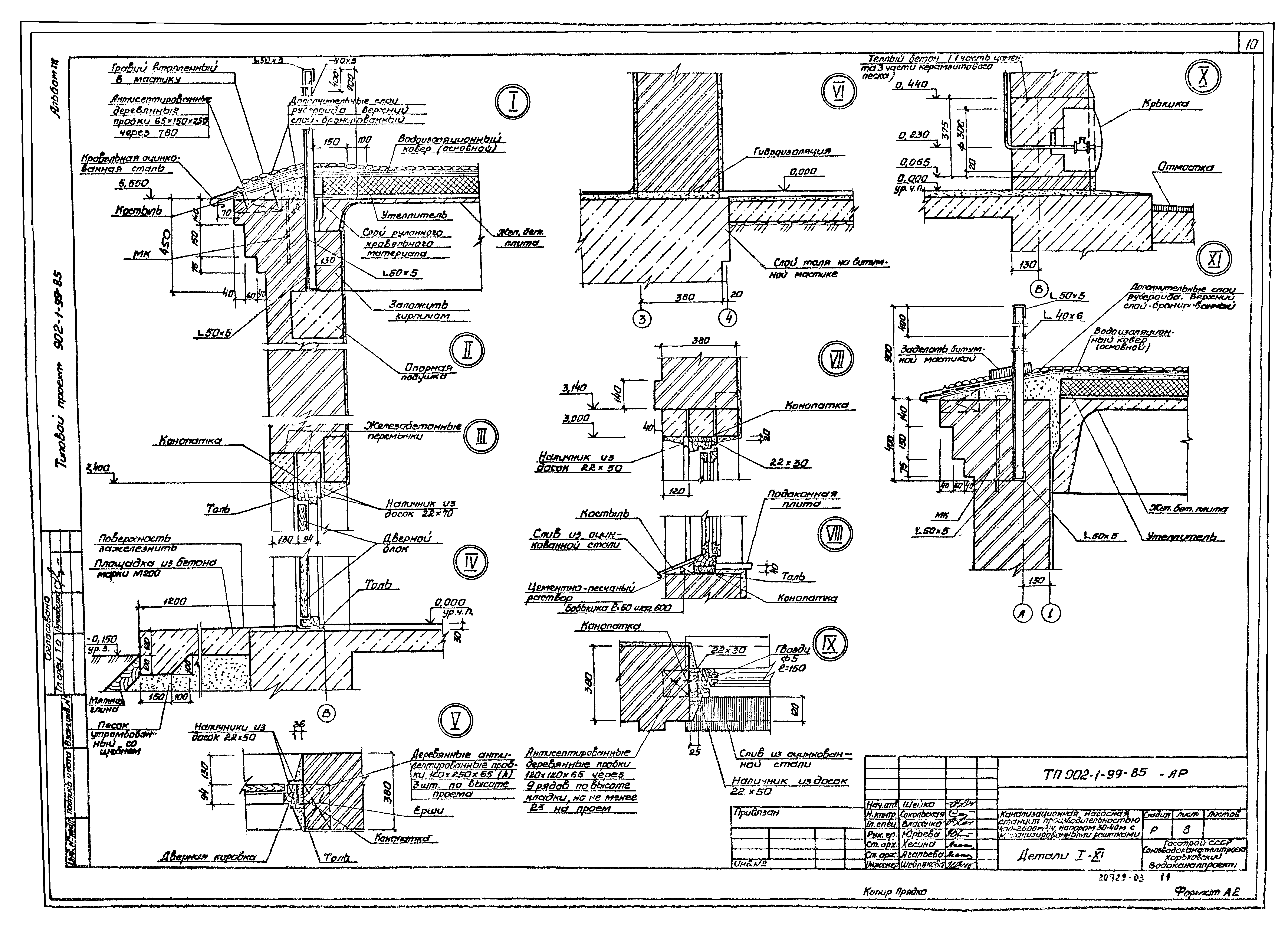
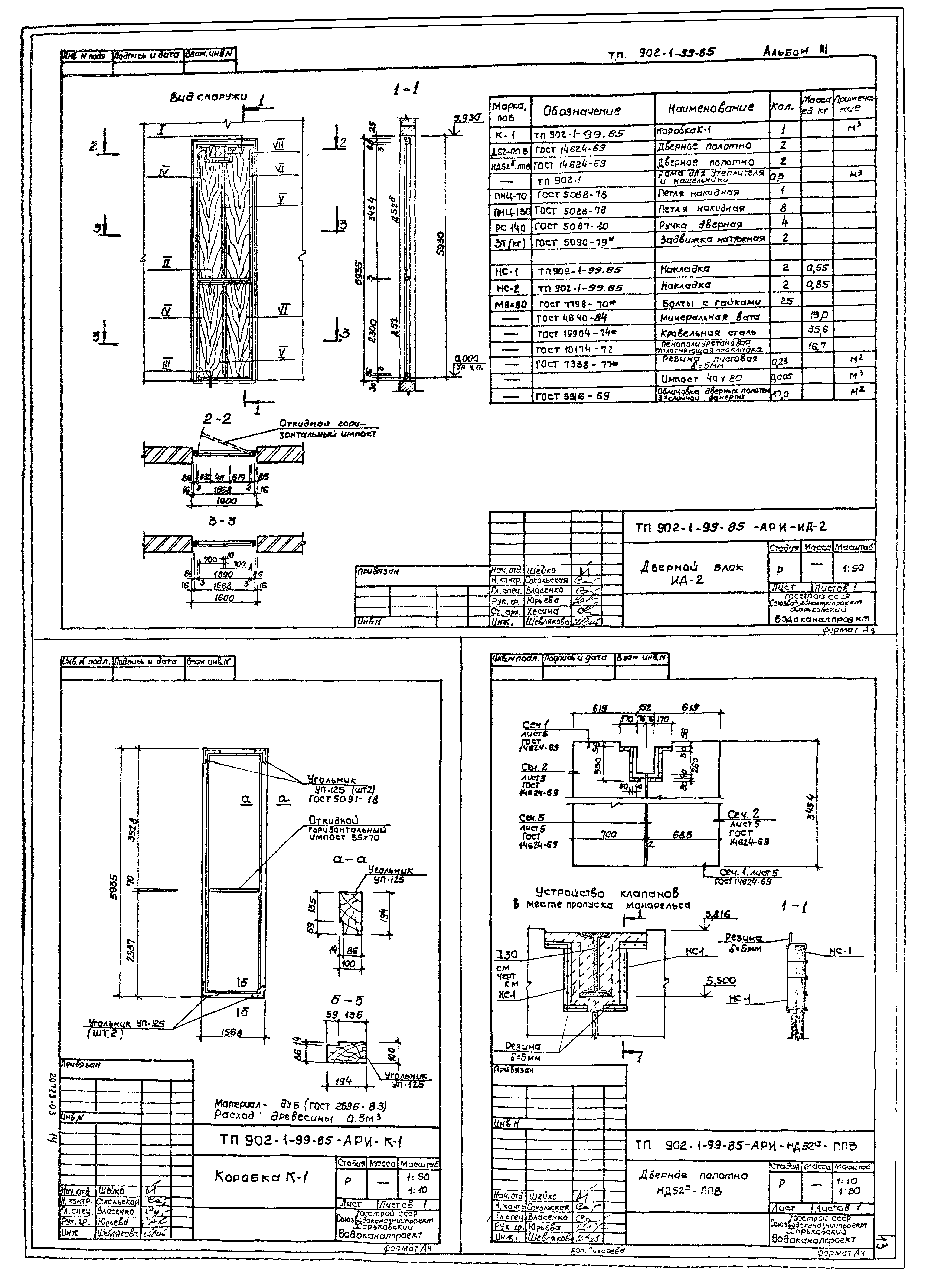
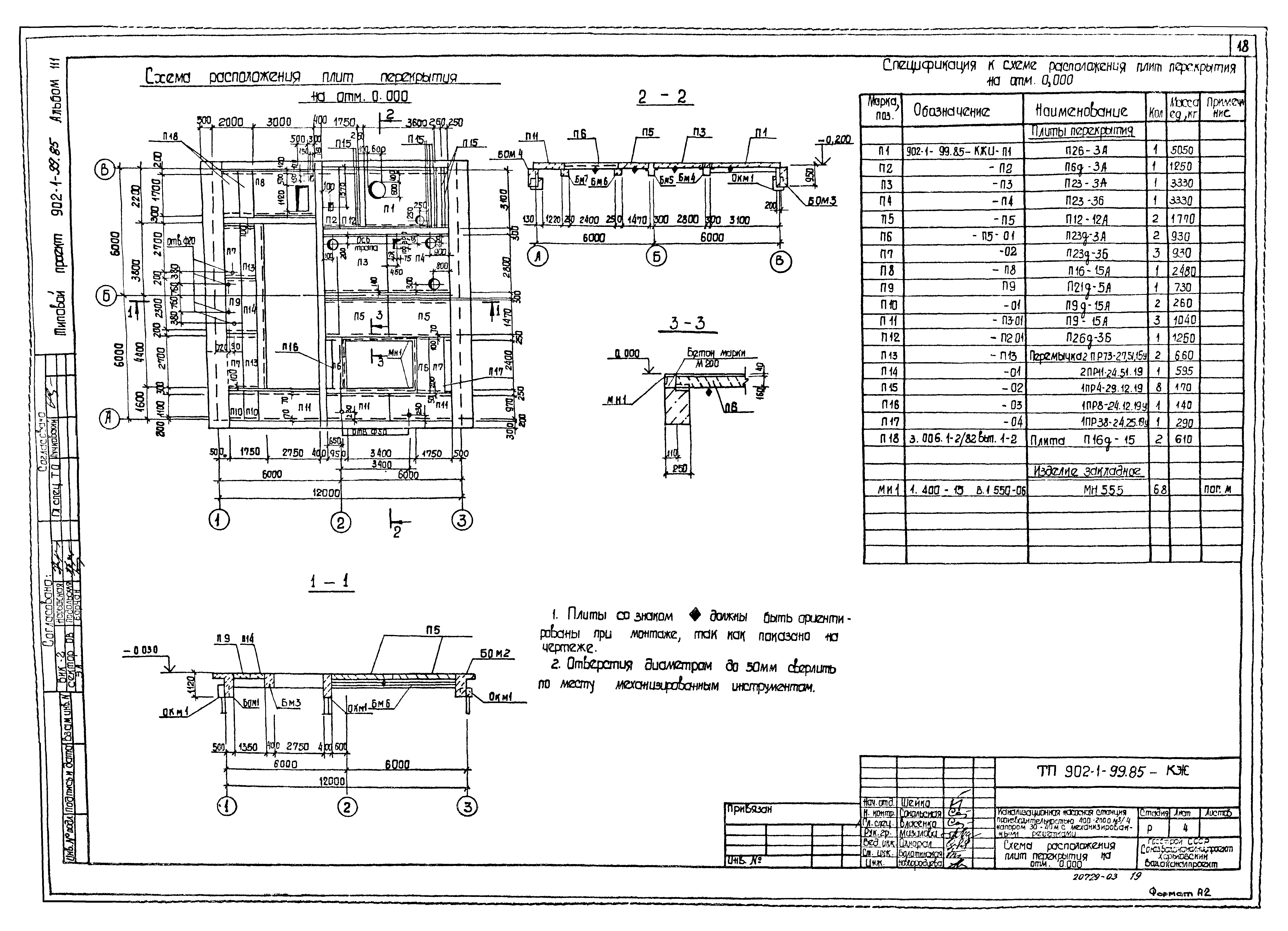
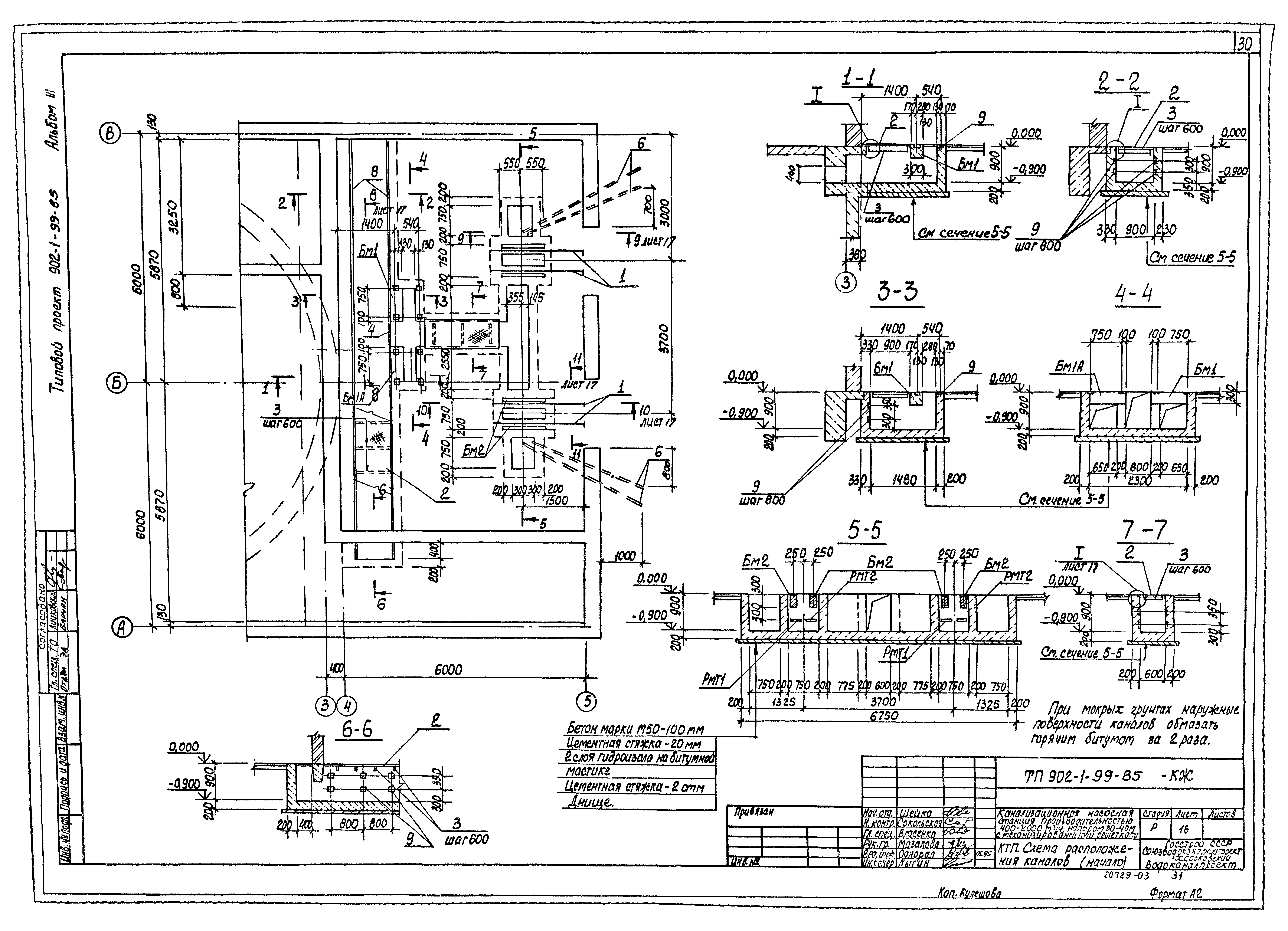
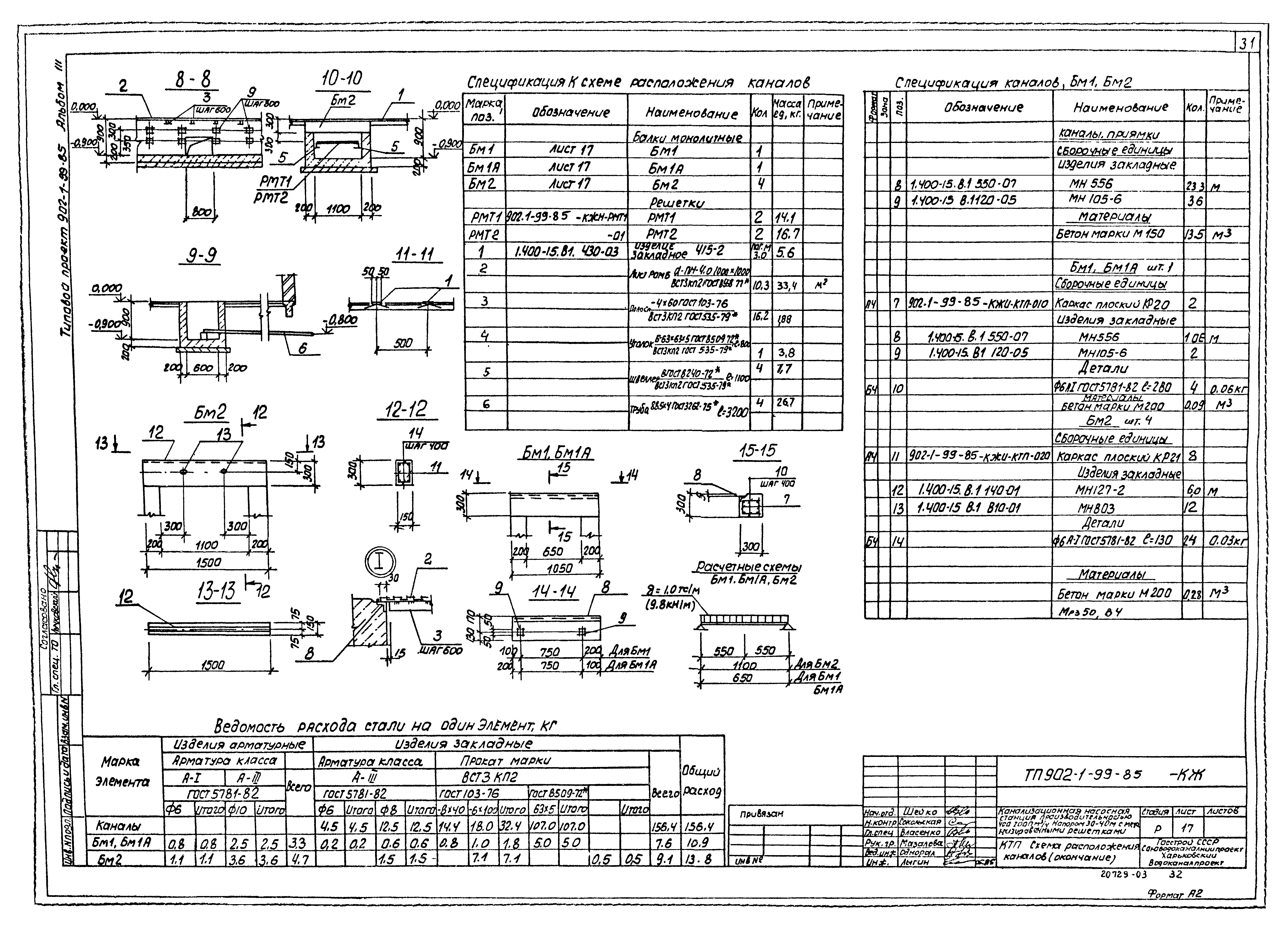
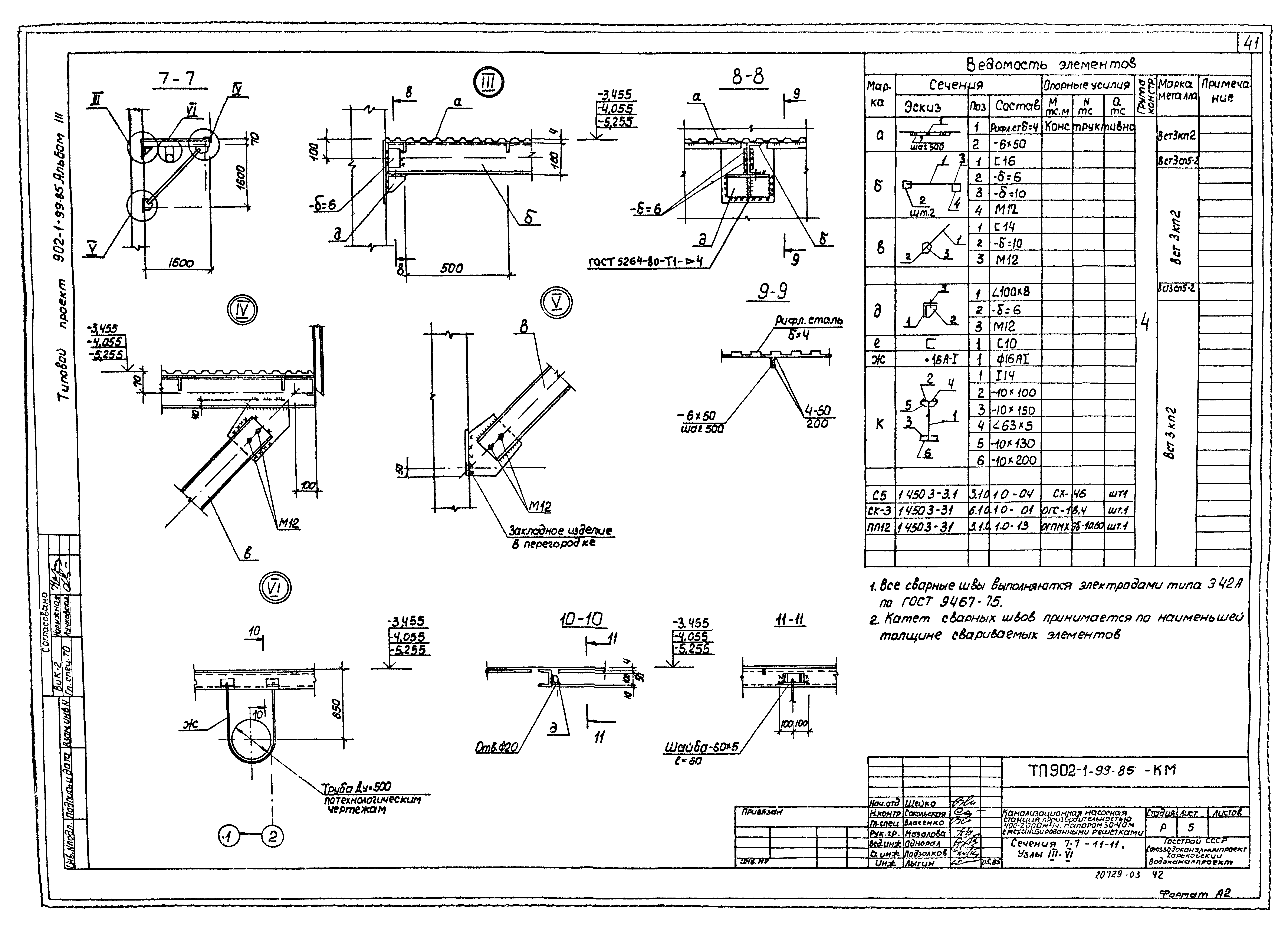
| Оглавление: | ТП 902-1-99-85 Содержание альбома ТП 902-1-99-85-АР Основной комплект АР ТП 902-1-99-85-АР-1 Общие данные ТП 902-1-99-85-АР-2 План на отм. 0.000 ТП 902-1-99-85-АР-3 Разрезы. План на отм. 2.700. Ведомость отделки помещений ТП 902-1-99-85-АР-4 Фасады. Схемы расположения элементов заполнения оконных проемов ТП 902-1-99-85-АР-5 План кровли. План полов. Экспликация полов ТП 902-1-99-85-АР-6 План вентиляционных отверстий. Развертки стен венткамеры. Узлы ТП 902-1-99-85-АР-7 Планы раскладки закладных для крепления электрокабеля на отм. 0.000 и 2.700. Развертки стен ТП 902-1-99-85-АР-8 Детали 1-11 ТП 902-1-99-85-АР-9 Детали 12-24 ТП 902-1-99-85 Изделия ТП 902-1-99-85-АРИ-ДО Опись документов ТП 902-1-99-85-АРИ-ИД1 Дверной блок ИД-1 ТП 902-1-99-85-АРИ-ИД2 Дверной блок ИД-2 ТП 902-1-99-85-АРИ-К1 Коробка К-1 ТП 902-1-99-85-АРИ-НД52а-ППВ Дверное полотно НД52а-ППВ ТП 902-1-99-85-АРИ-НД52б-ППВ Дверное полотно НД52б-ППВ ТП 902-1-99-85-АРИ-НС-1,НС-2 Накладки НС-1,НС-2 ТП 902-1-99-85-АР-У Узлы 1-7 ТП 902-1-99-85-КЖ Основной комплект КЖ ТП 902-1-99-85-КЖ-1 Общие данные ТП 902-1-99-85-КЖ-2 Кольцо обвязочное ОКМ1 (начало) ТП 902-1-99-85-КЖ-3 Кольцо обвязочное ОКМ1 (окончание) ТП 902-1-99-85-КЖ-4 Схема расположения плит перекрытия на отм. 0.000 ТП 902-1-99-85-КЖ-5 Перекрытие РКМ1 на отм. 0.000. Схема расположения балок ТП 902-1-99-85-КЖ-6 Перекрытие РКМ1 на отм. 0.000. Балки обвязочные БОМ1,БОМ2. Схема армирования ТП 902-1-99-85-КЖ-7 Перекрытие РКМ1 на отм. 0.000. Балки обвязочные БОМ3,БОМ4. Схема армирования ТП 902-1-99-85-КЖ-8 Перекрытие РКМ1 на отм. 0.000. Балки обвязочные БМ1,БМ3. Схема армирования ТП 902-1-99-85-КЖ-9 Перекрытие РКМ1 на отм. 0.000. Балки обвязочные БМ4-БМ7. Схема армирования ТП 902-1-99-85-КЖ-10 Перекрытие РКМ1 на отм. 0.000. Балки обвязочные БМ8,БМ9. Схема армирования ТП 902-1-99-85-КЖ-11 Перекрытие РКМ1 на отм. 0.000. Спецификация (начало) ТП 902-1-99-85-КЖ-12 Перекрытие РКМ1 на отм. 0.000. Спецификация (продолжение) ТП 902-1-99-85-КЖ-13 Перекрытие РКМ1 на отм. 0.000. Спецификация (окончание) ТП 902-1-99-85-КЖ-14 Схема расположения элементов заземления ТП 902-1-99-85-КЖ-15 Схема расположения фундаментов и фундаментных балок ТП 902-1-99-85-КЖ-16 КТП. Схема расположения каналов (начало) ТП 902-1-99-85-КЖ-17 КТП. Схема расположения каналов (окончание) ТП 902-1-99-85-КЖ-18 КТП. Схема расположения фундаментов под оборудование и опор ТП 902-1-99-85-КЖ-19 КТП. Схема расположения элементов покрытия ТП 902-1-99-85-КЖ-20 КТП. Схема расположения элементов перекрытия на отм. 2.700. УМ1. ОПМ1 ТП 902-1-99-85-КЖ-21 КТП. Схема расположения элементов перекрытия на отм. 2.700. УМ2 ТП 902-1-99-85-КЖ-22 Детали гидроизоляции ТП 902-1-99-85-КМ Основной комплект КМ ТП 902-1-99-85-КМ-1 Общие данные (начало) ТП 902-1-99-85-КМ-2 Общие данные (продолжение) ТП 902-1-99-85-КМ-3 Общие данные (окончание) ТП 902-1-99-85-КМ-4 Схема расположения щитов и площадки подземной части. Схема опор ТП 902-1-99-85-КМ-5 Сечения 7-7÷11-11. Узлы 3-7 ТП 902-1-99-85-КМ-6 Схема расположения путей подвесного транспорта на отм. -0.970 ТП 902-1-99-85-КМ-7 Схема расположения путей подвесного транспорта. Узлы 1,4. Сечения 1-1÷6-6 ТП 902-1-99-85-КМ-8 Схема расположения путей подвесного транспорта на отм. -5.500. Узлы 2,3. Сечения 7-7÷10-10 ТП 902-1-99-85-КМ-9 Схема расположения ограждения стремянки на отм. 0.000 ТП 902-1-99-85-КМ-10 Схема расположения площадок, лестниц и ограждения кровли |
| Разработан: | Харьковский Водоканалпроект |
| Утверждён: | 21.06.1985 Госстрой СССР (Государственный комитет Совета Министров СССР по делам строительства) (USSR Gosstroy АЧ-28) |















































