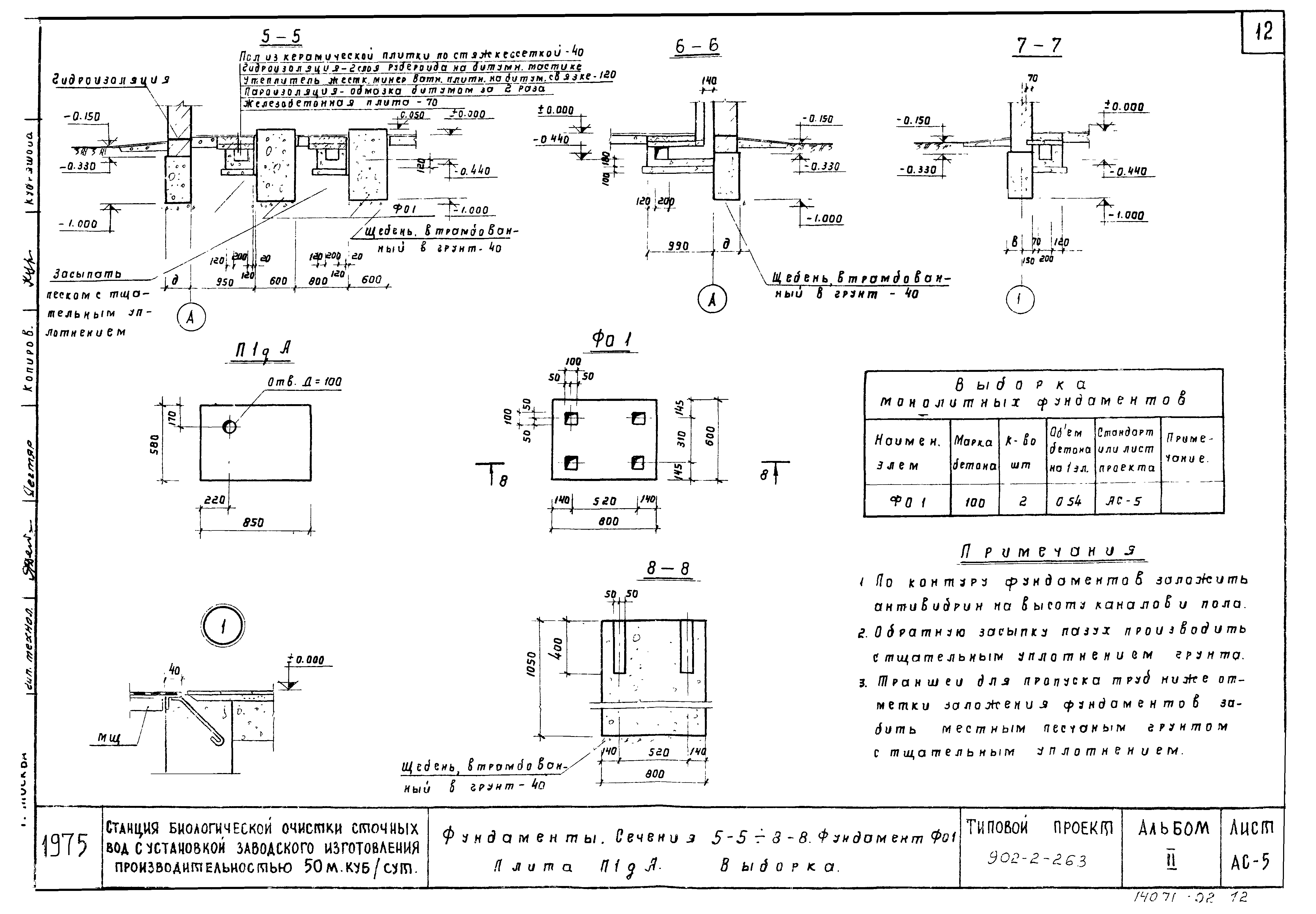
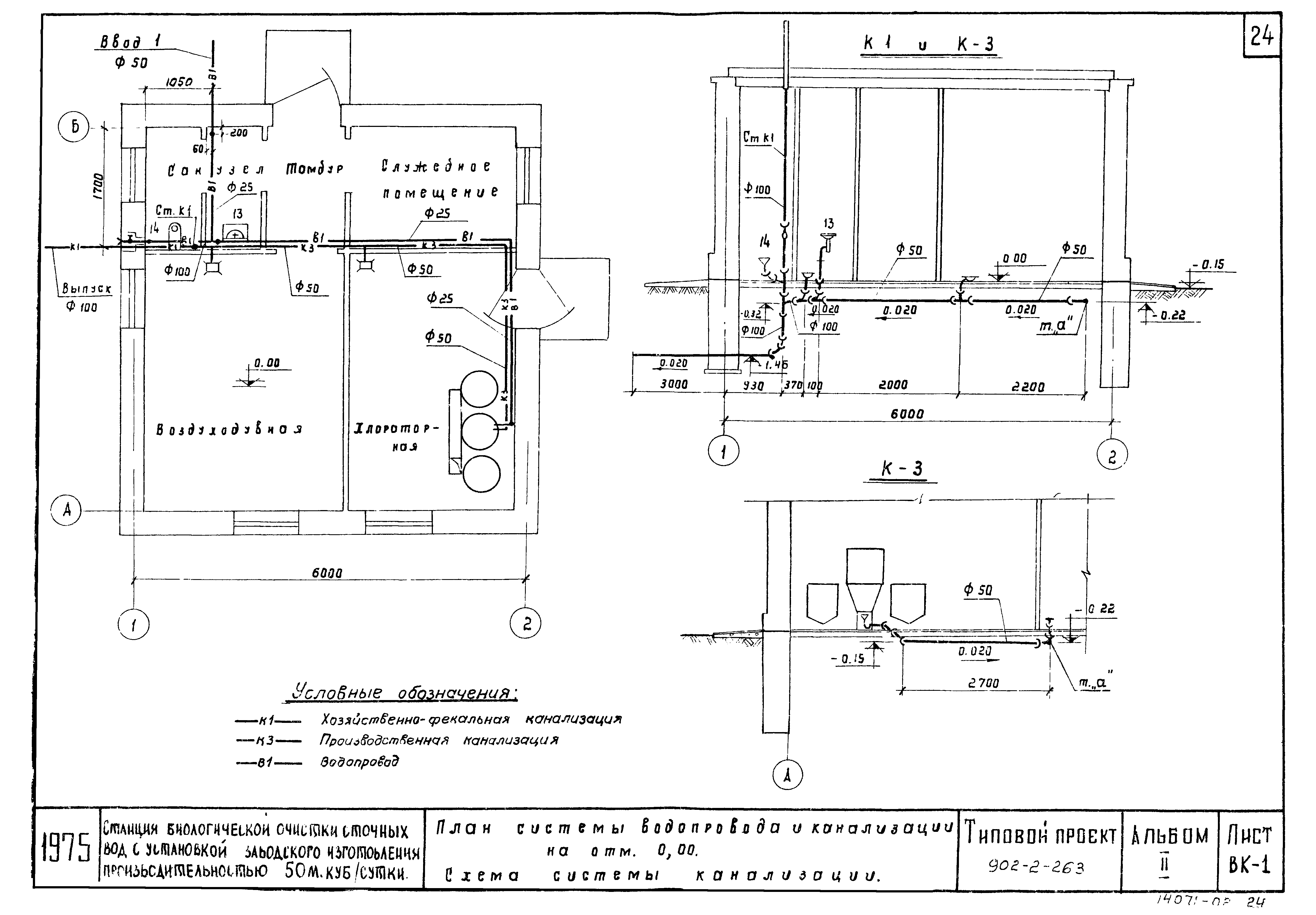
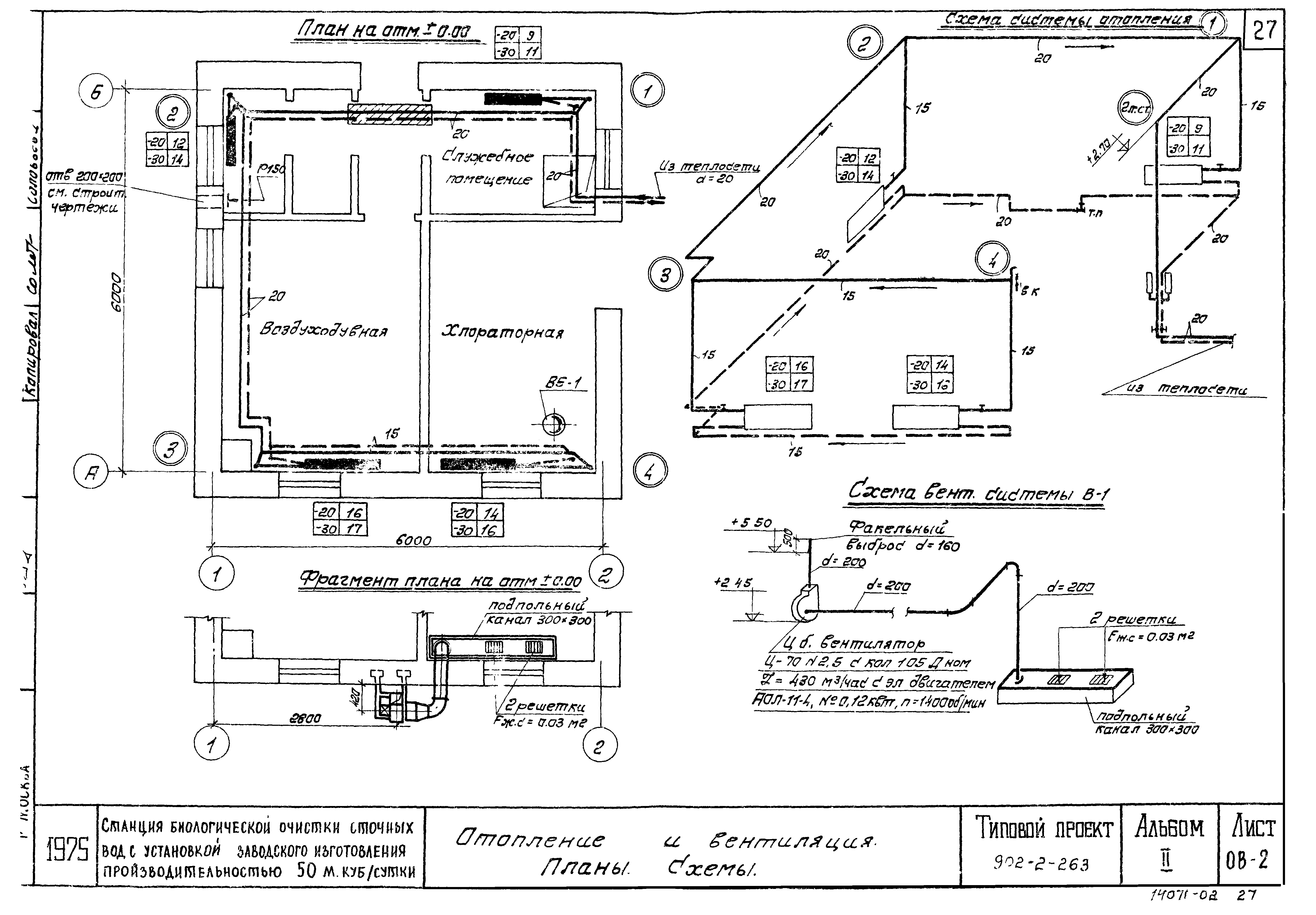
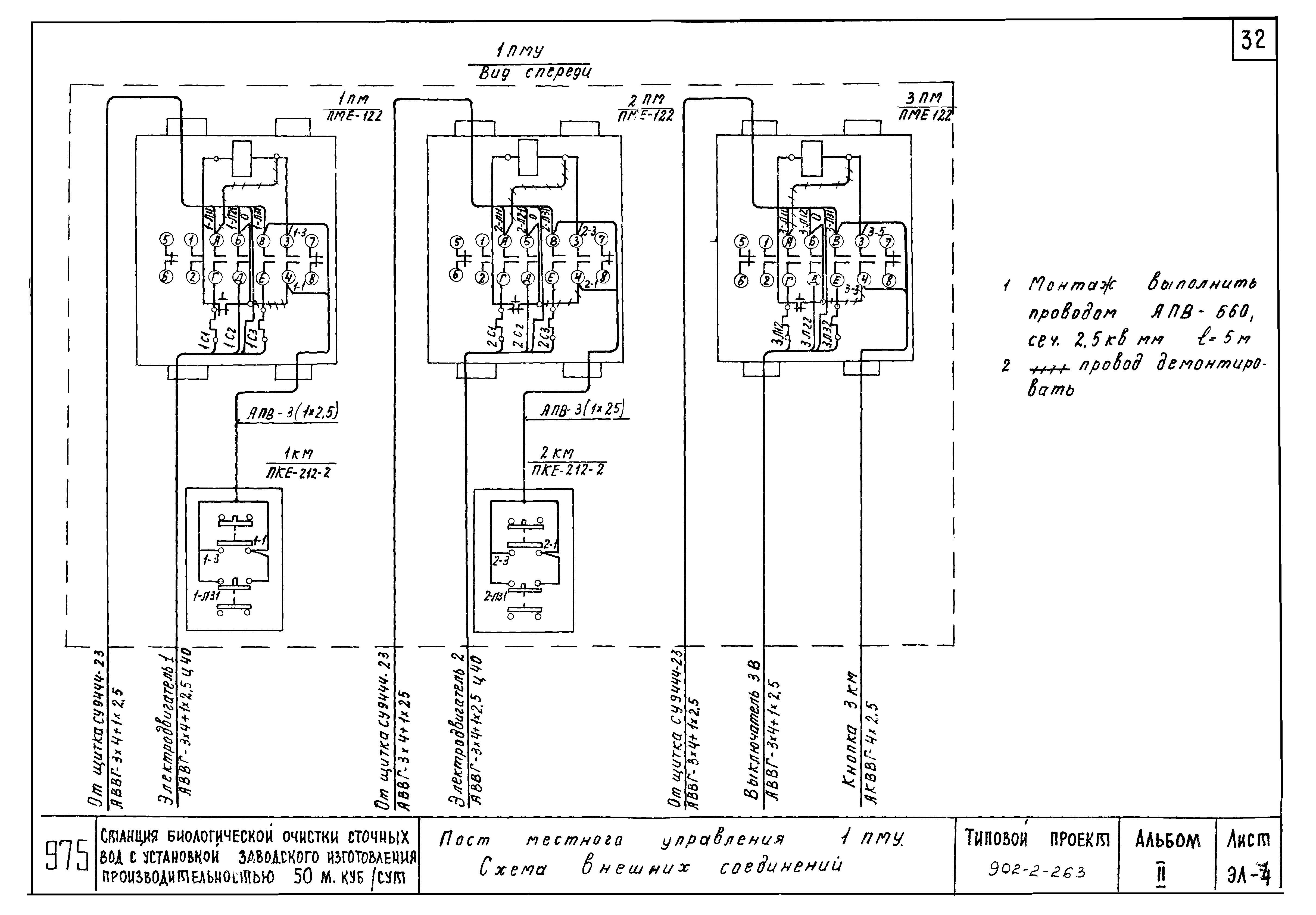
Скачать Типовой проект 902-2-262 Альбом II. Производственное здание. Пояснительная записка. Чертежи (из ТП 902-2-263)Дата актуализации: 01.01.2021 Типовой проект 902-2-262
Альбом II. Производственное здание. Пояснительная записка. Чертежи (из ТП 902-2-263)| Обозначение: | Типовой проект 902-2-262 | | Обозначение англ: | 902-2-262 | | Статус: | действует | | Название рус.: | Альбом II. Производственное здание. Пояснительная записка. Чертежи (из ТП 902-2-263) | | Дата добавления в базу: | 01.09.2013 | | Дата актуализации: | 01.01.2021 | | Дата введения: | 25.02.1976 | | Разработан: | Гипрокоммунводоканал Минжилкомхоза РСФСР
| | Утверждён: | 30.12.1975 МЖКХ РСФСР (23-ТД)
|
                                   
|