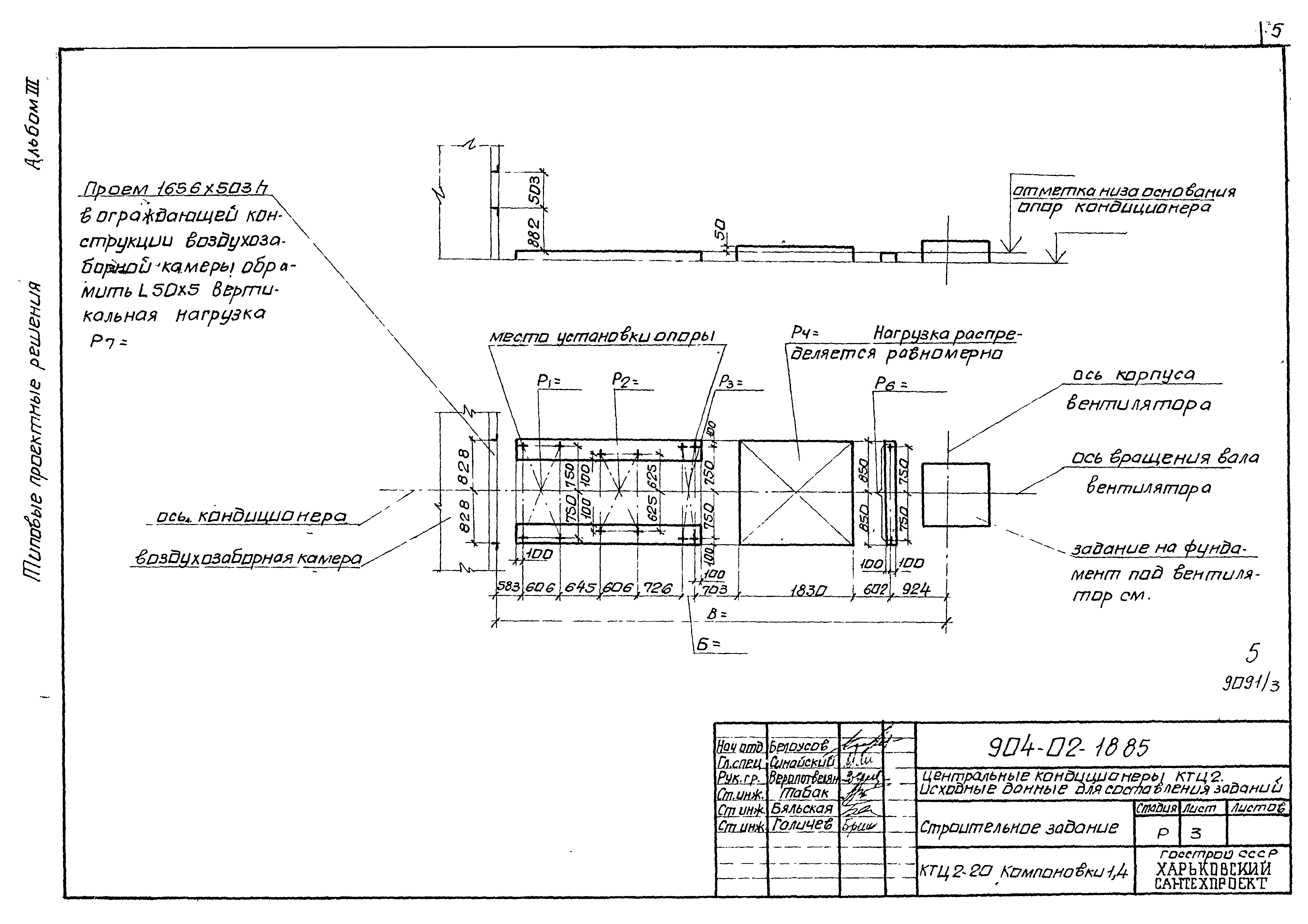
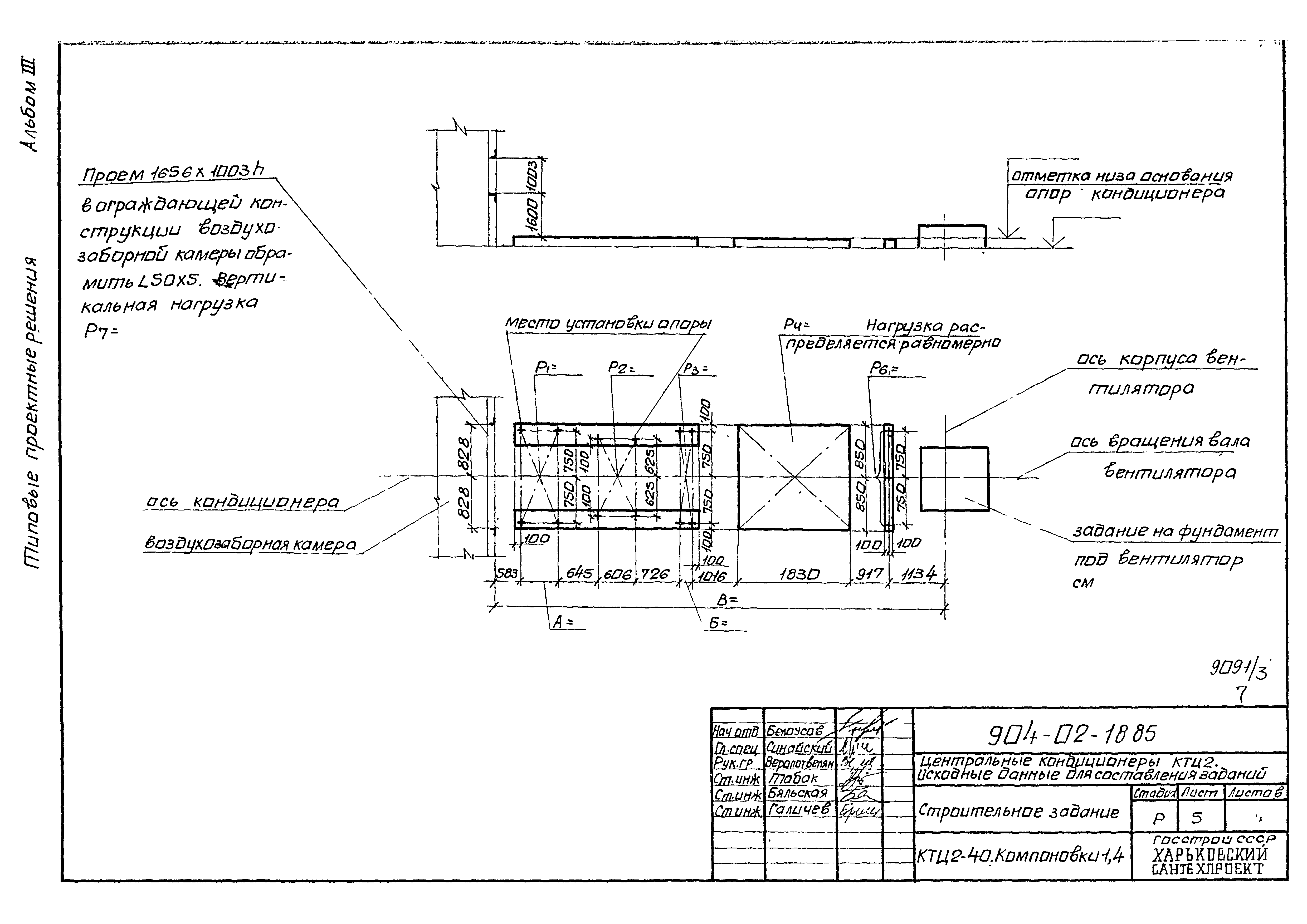
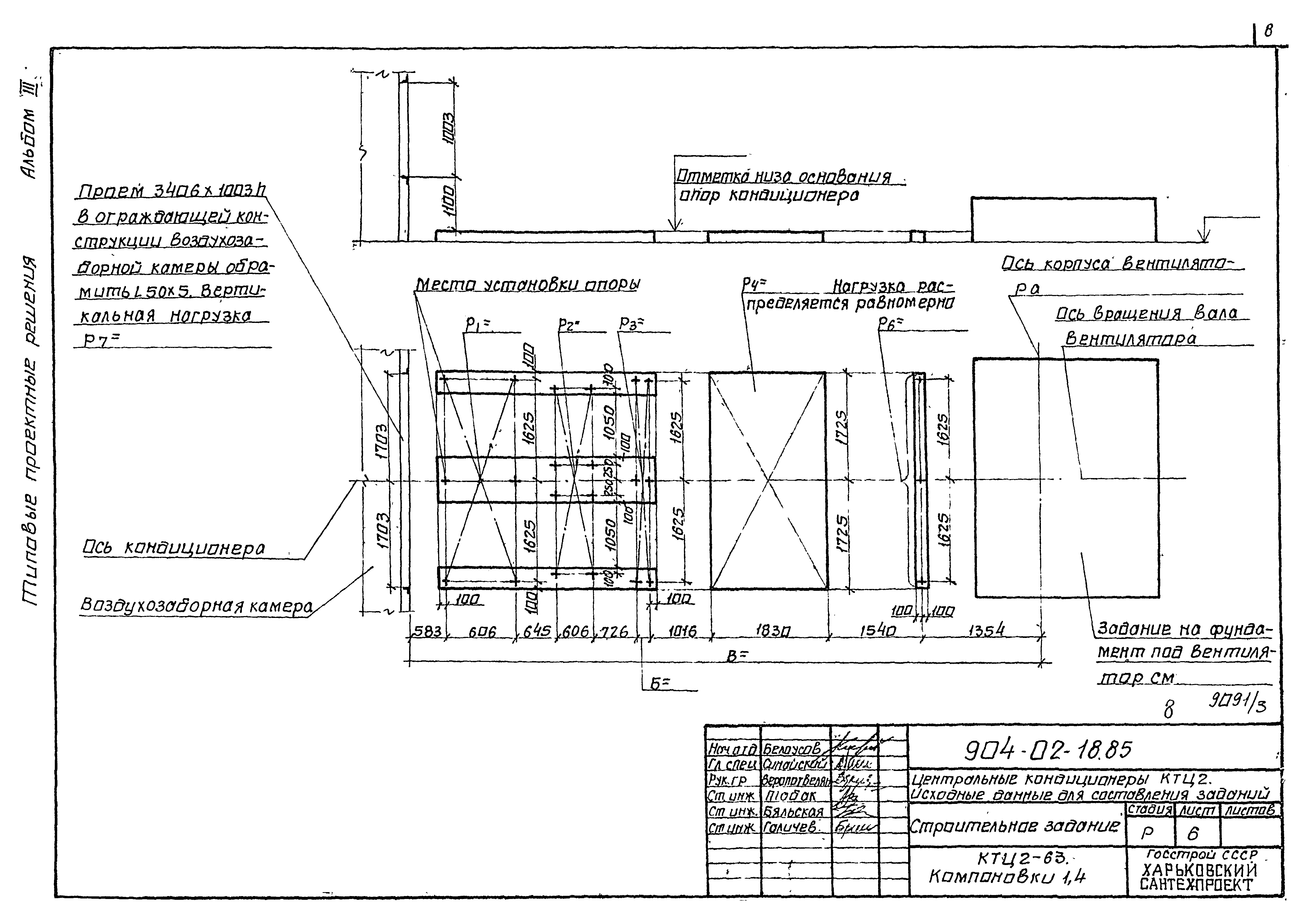
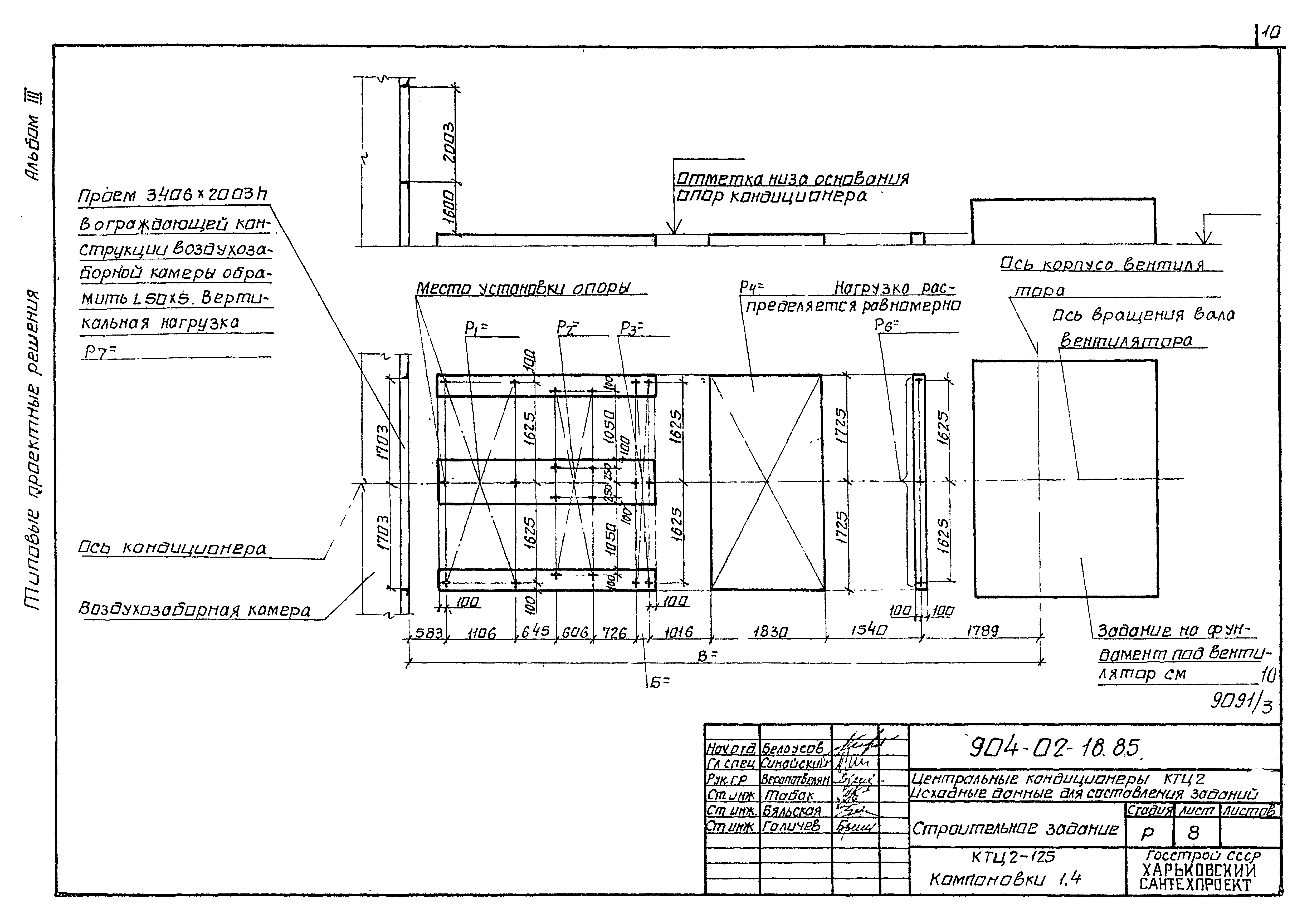
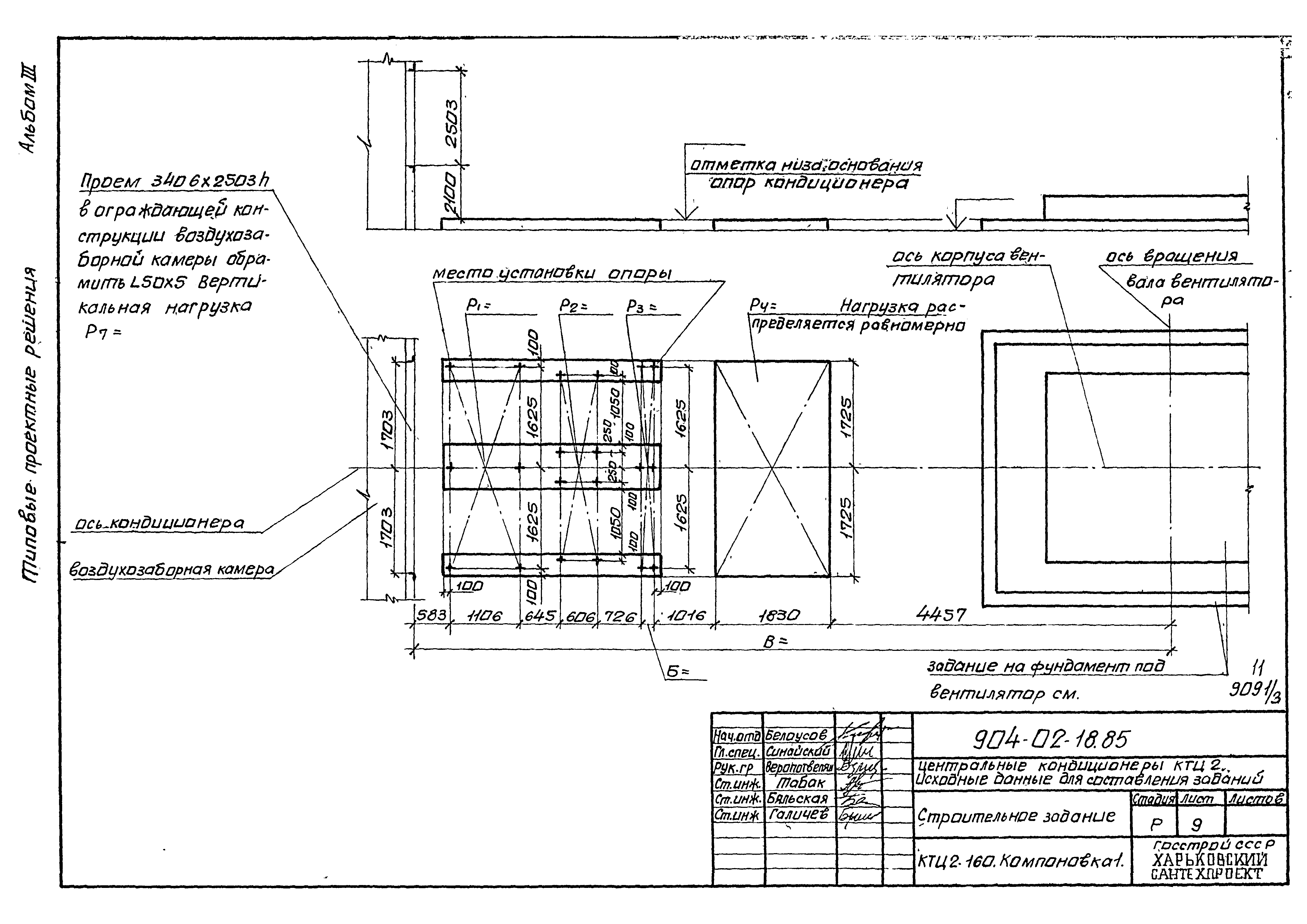
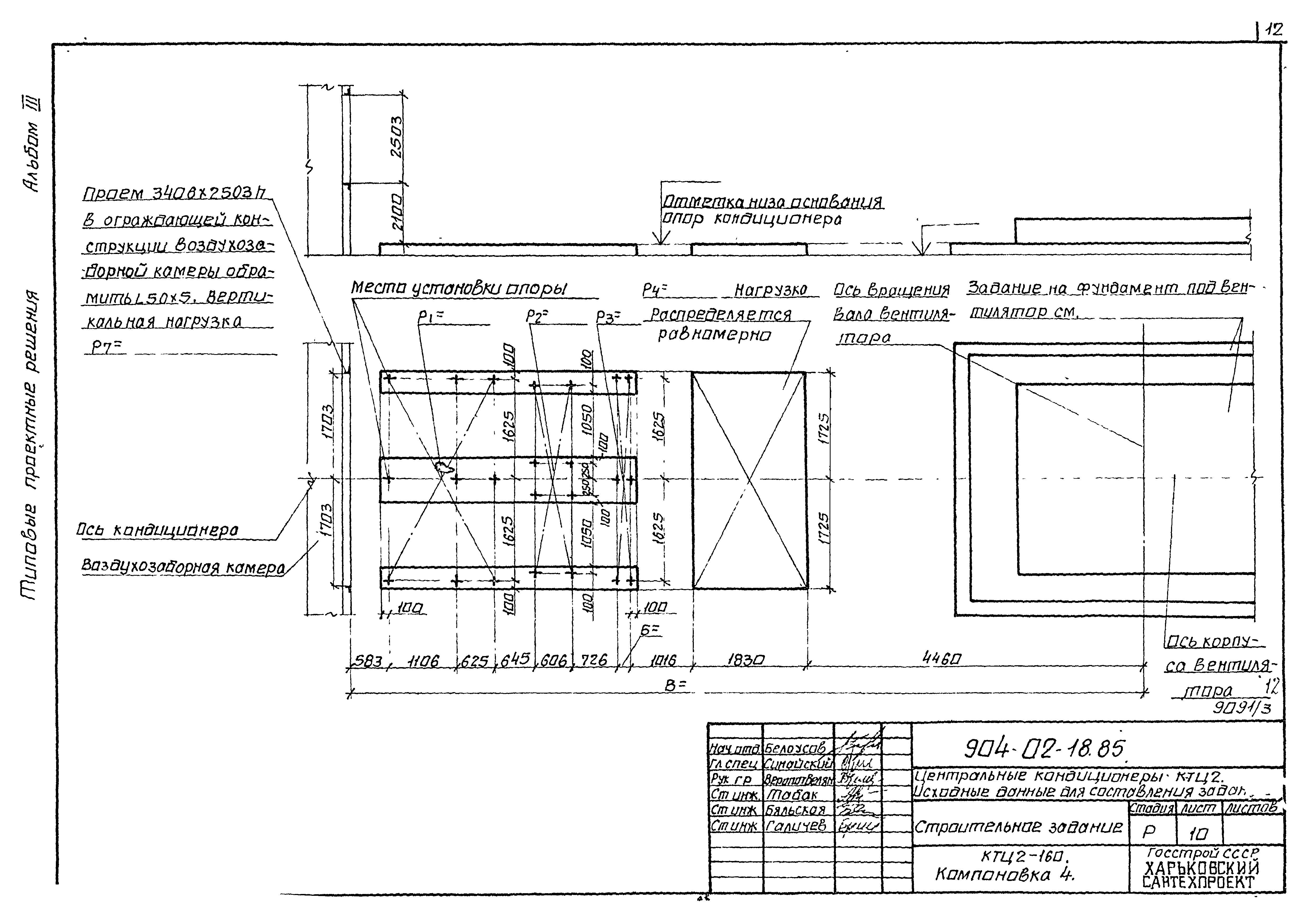
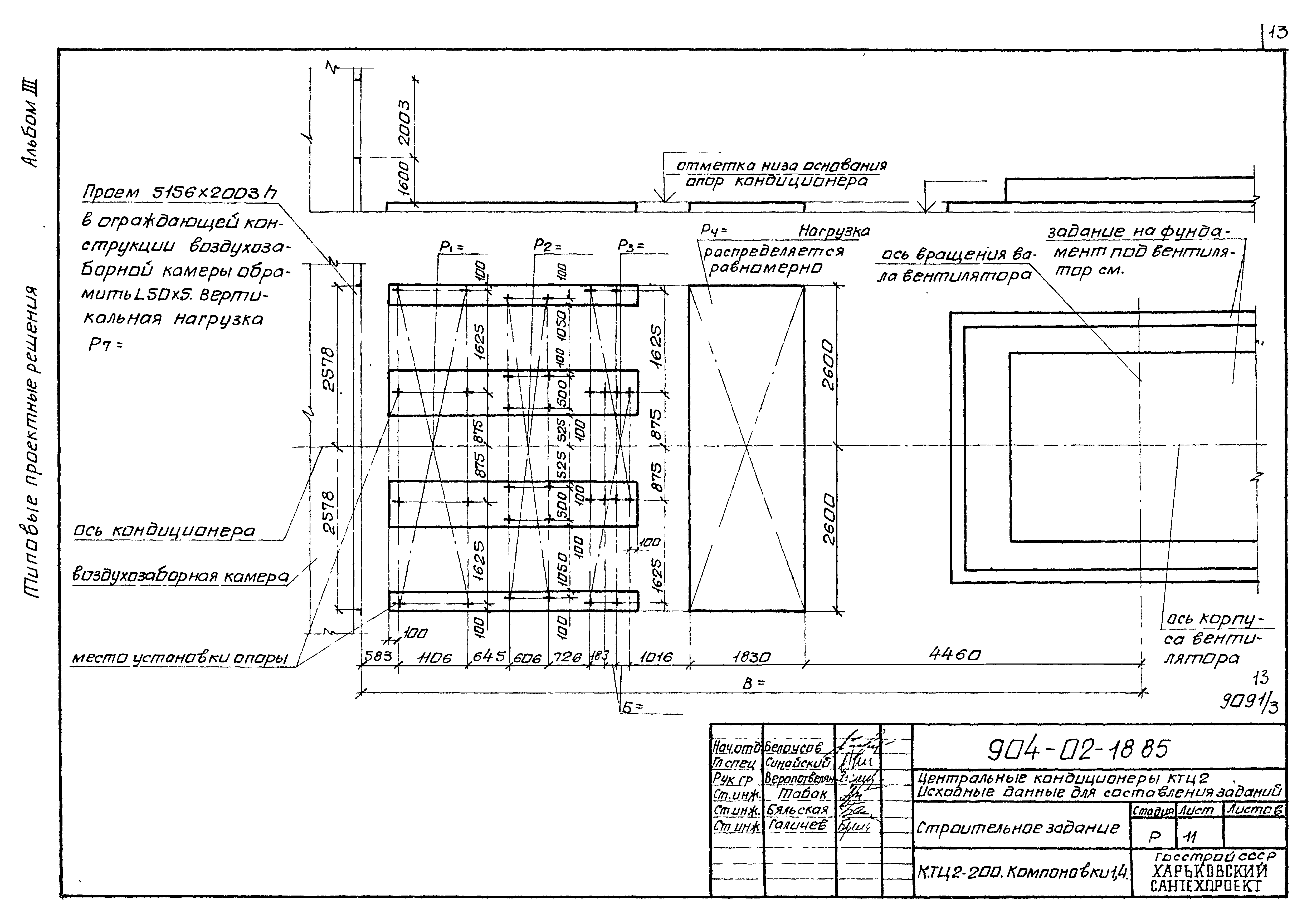
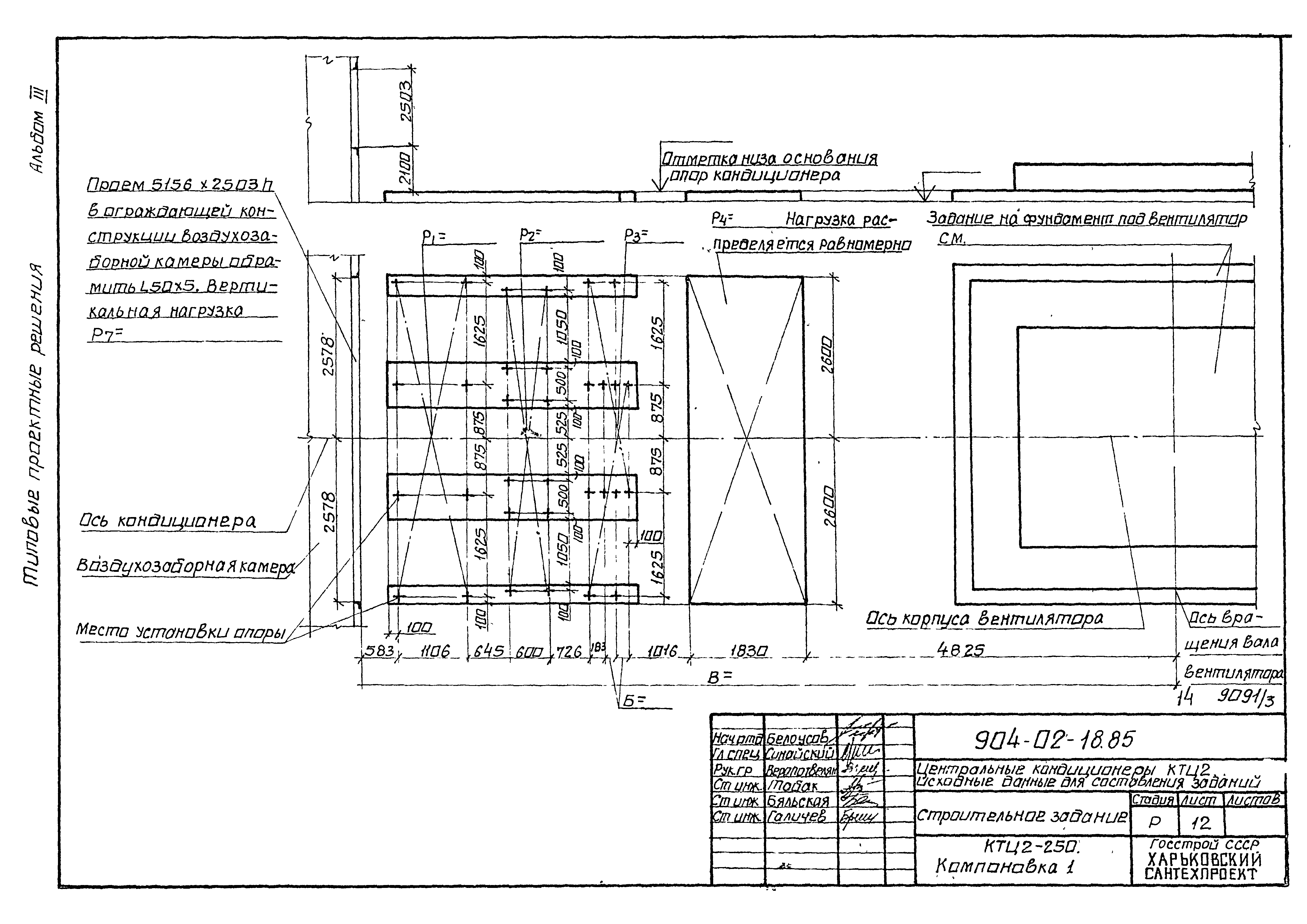
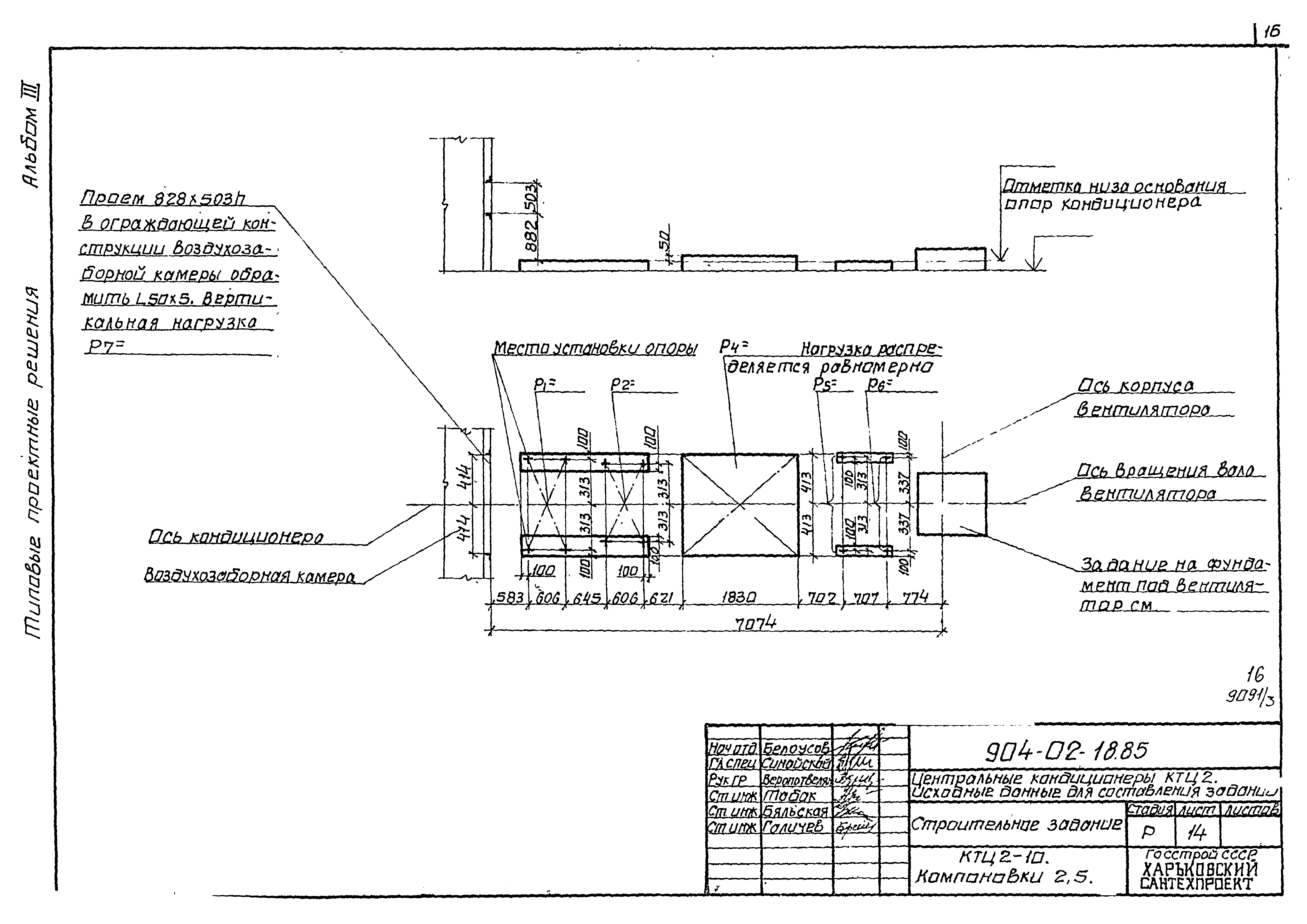
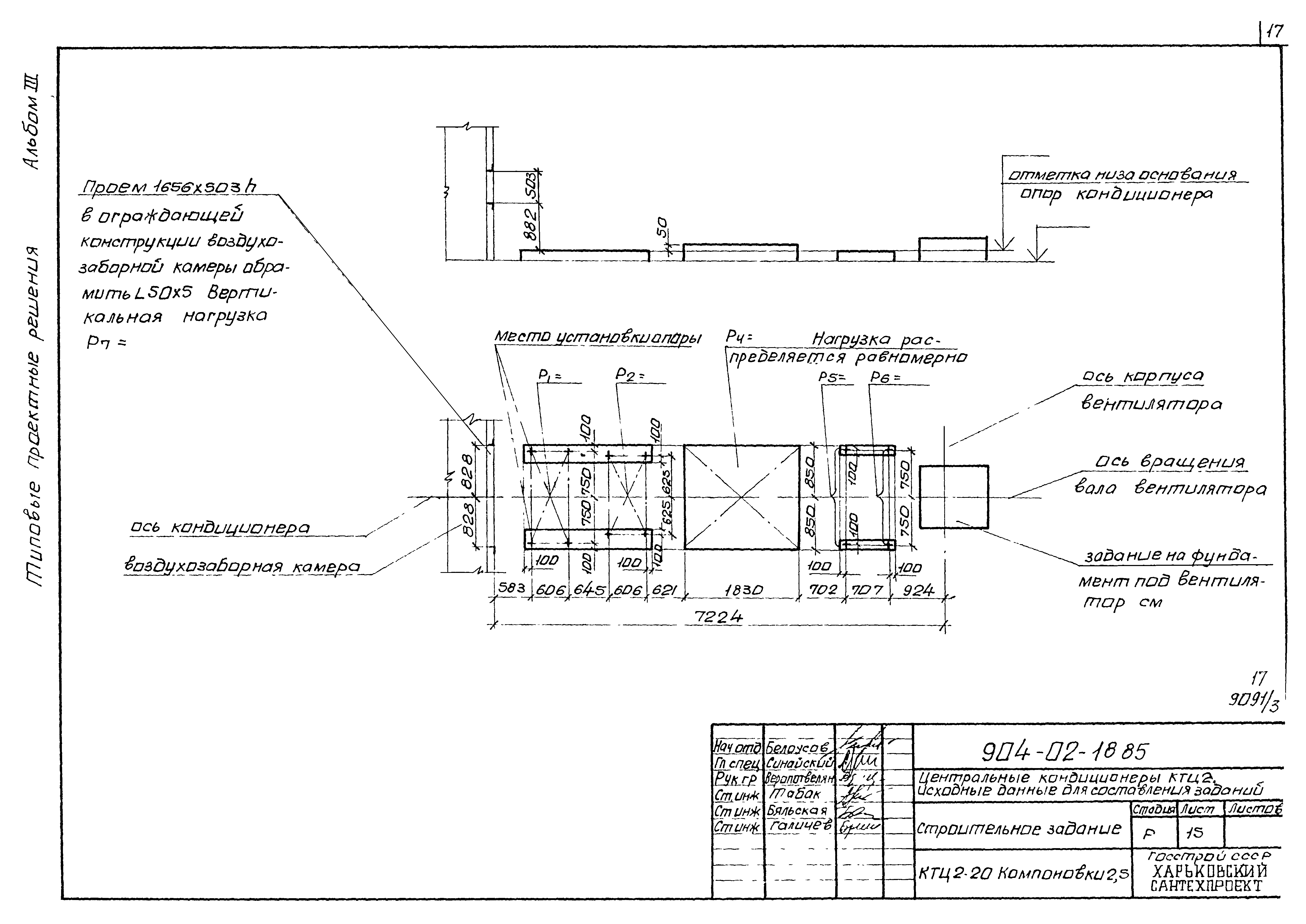
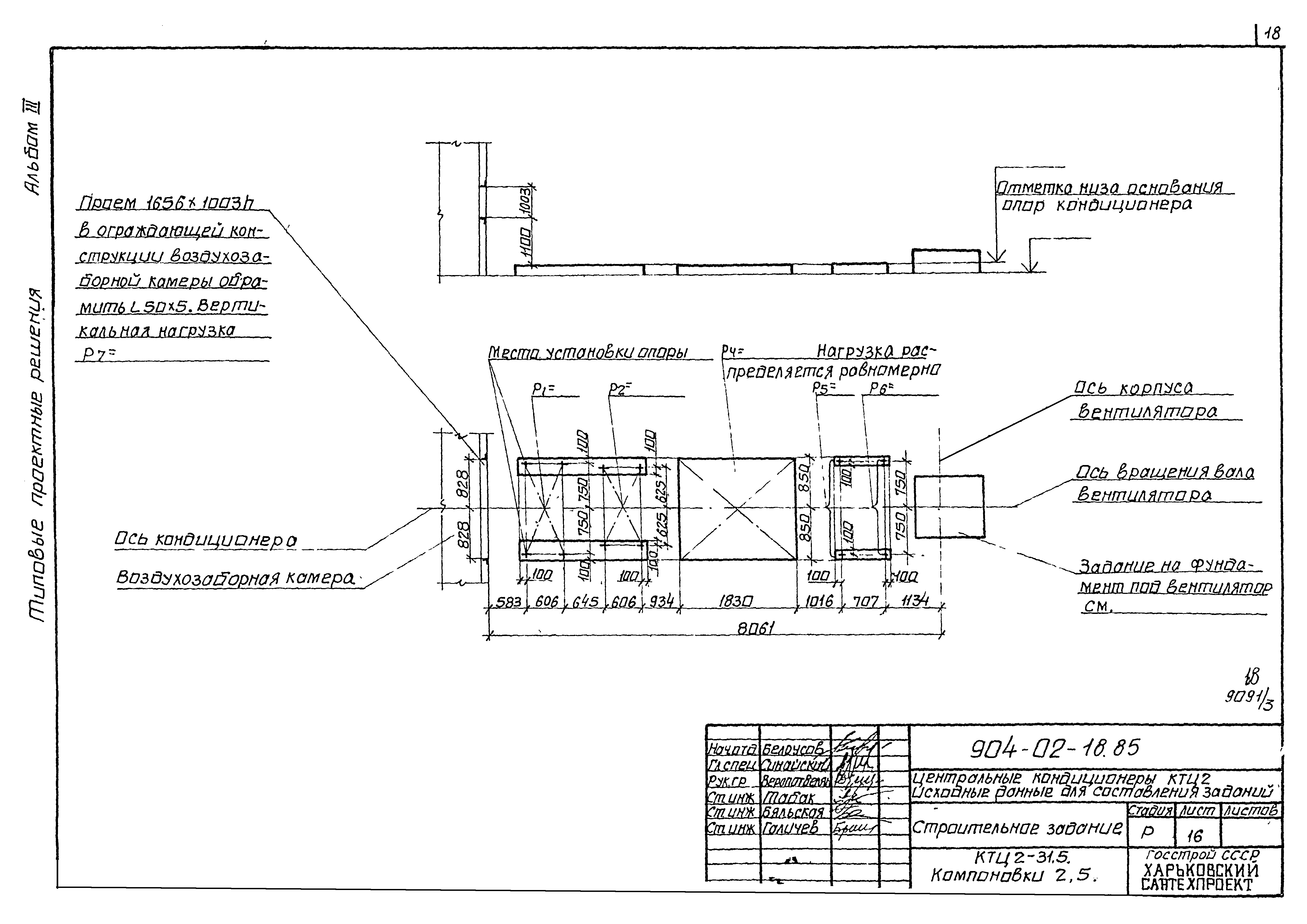
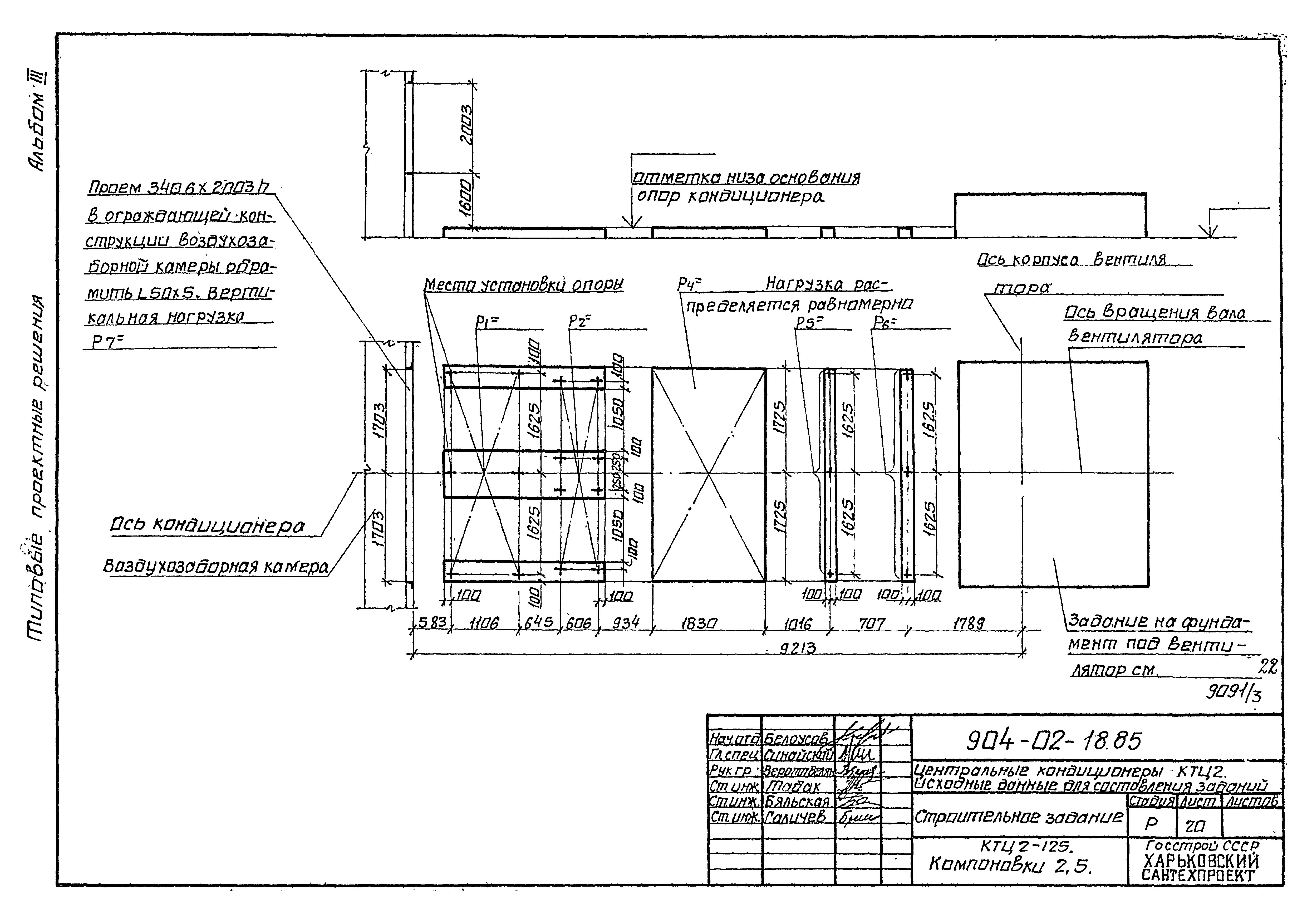
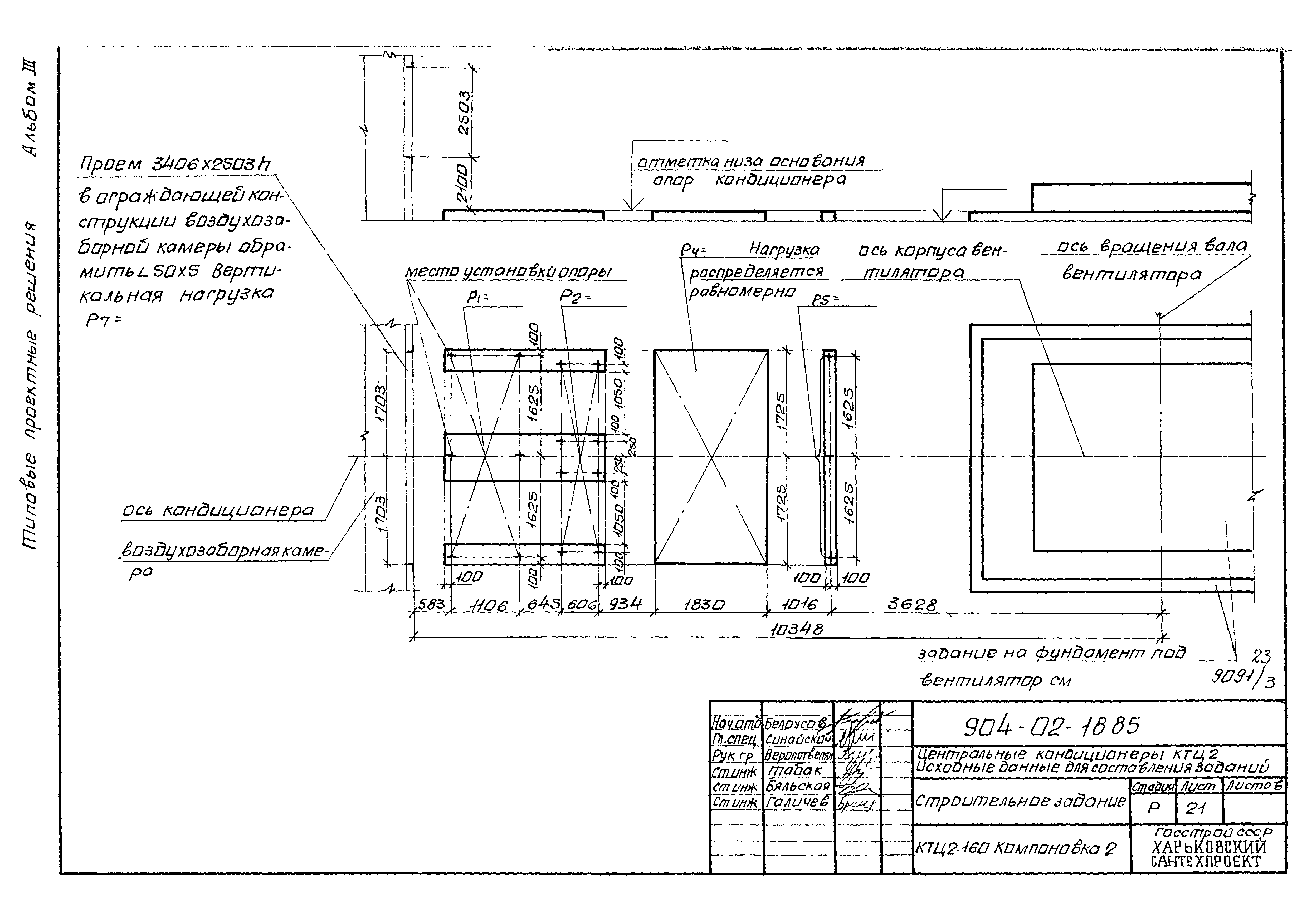
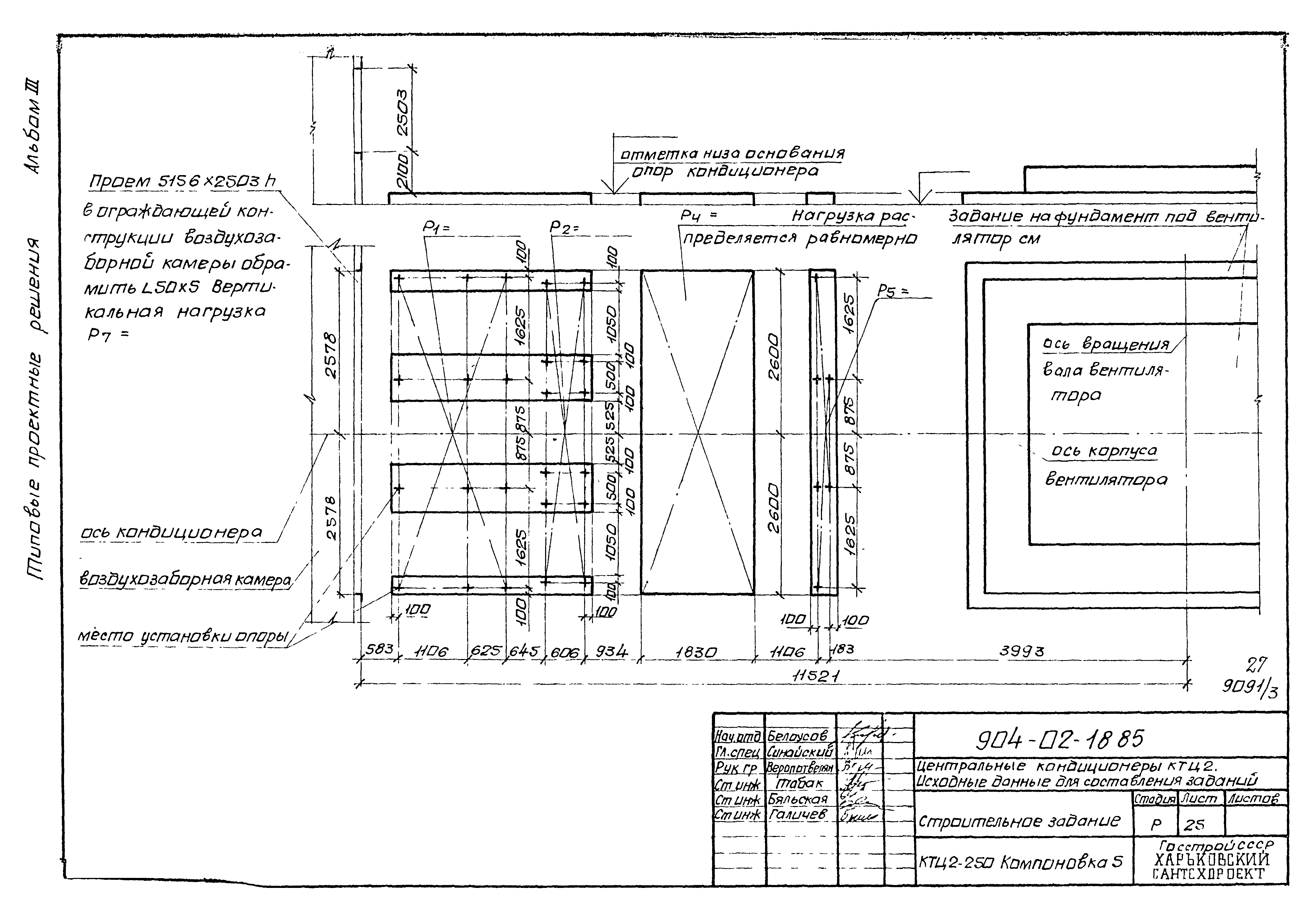
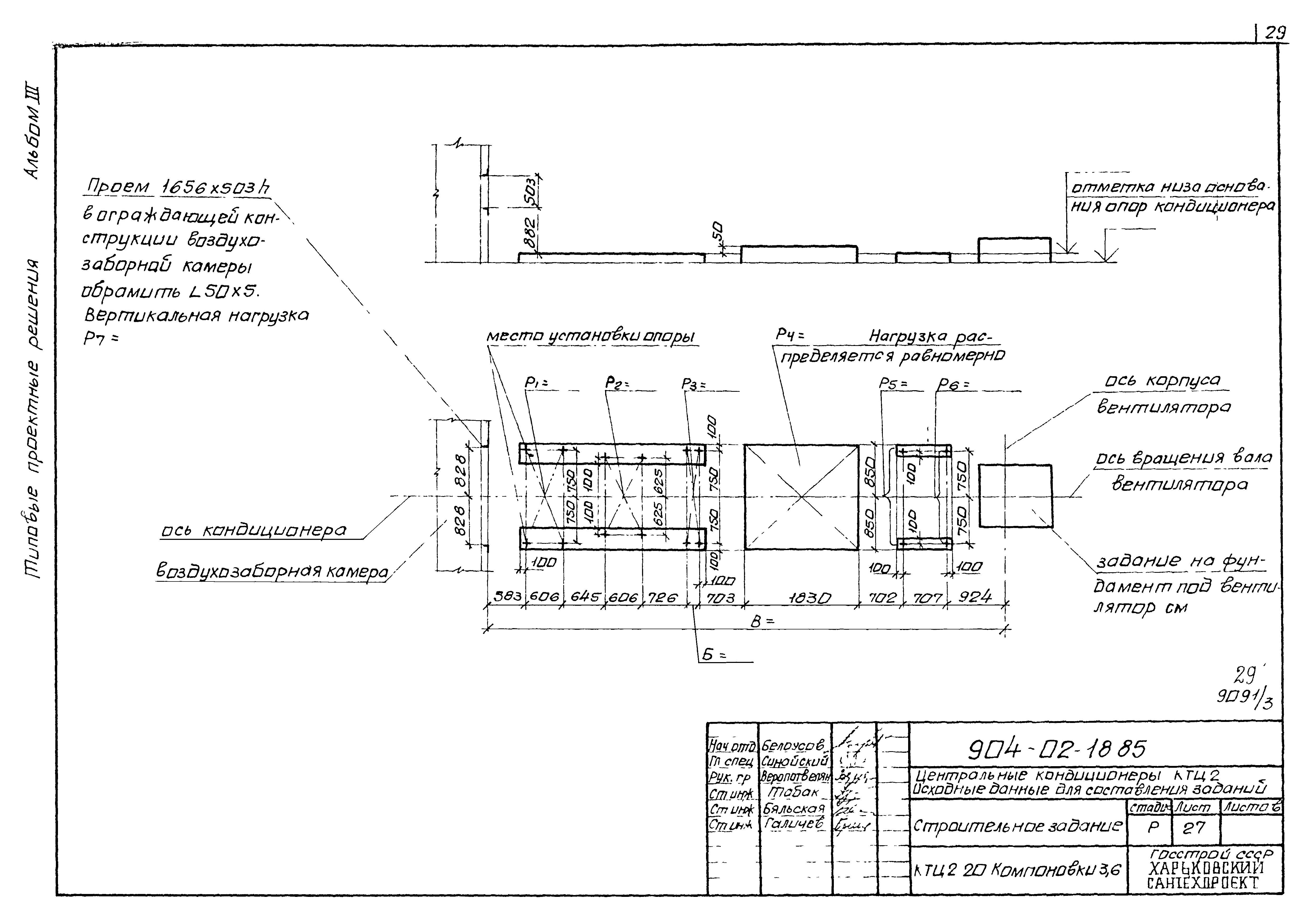
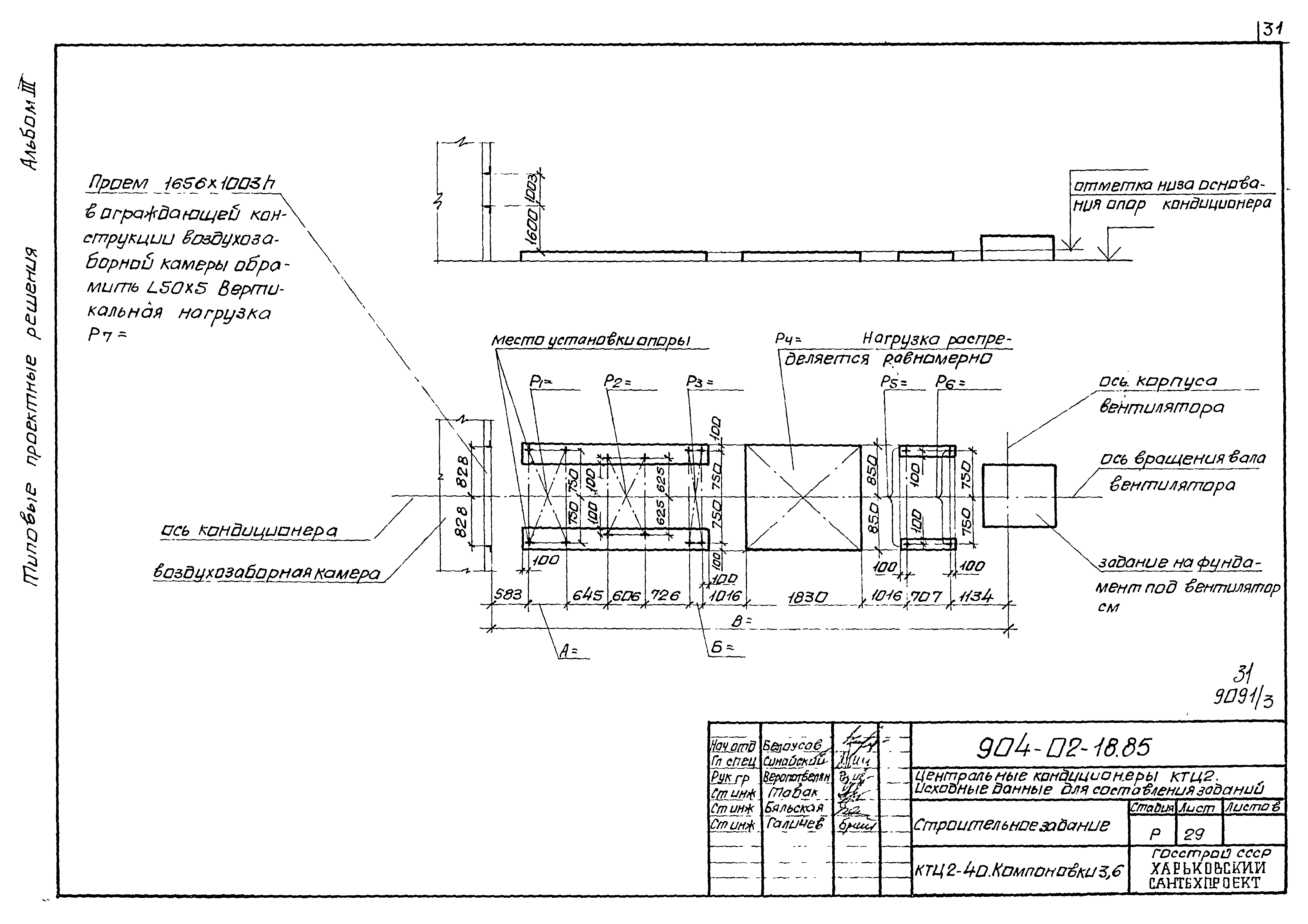
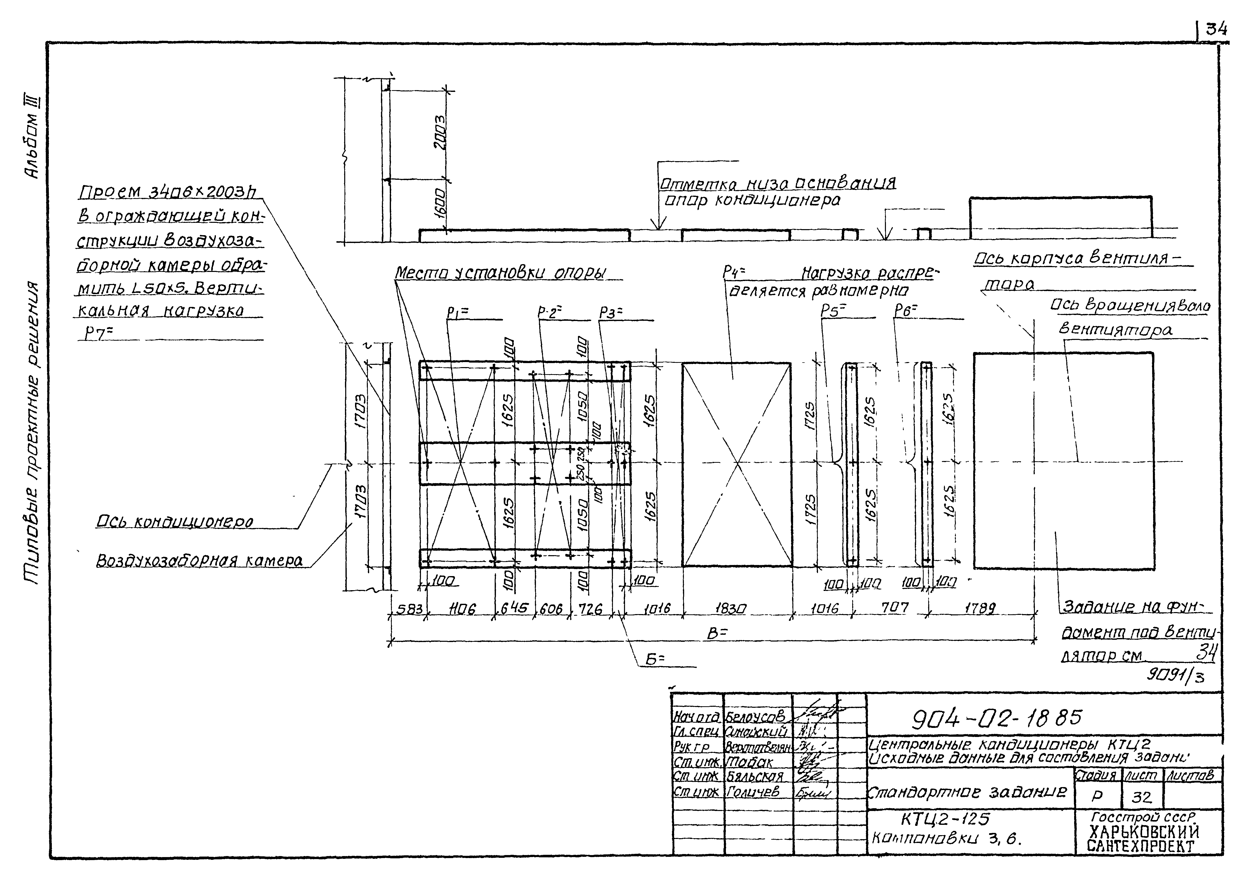
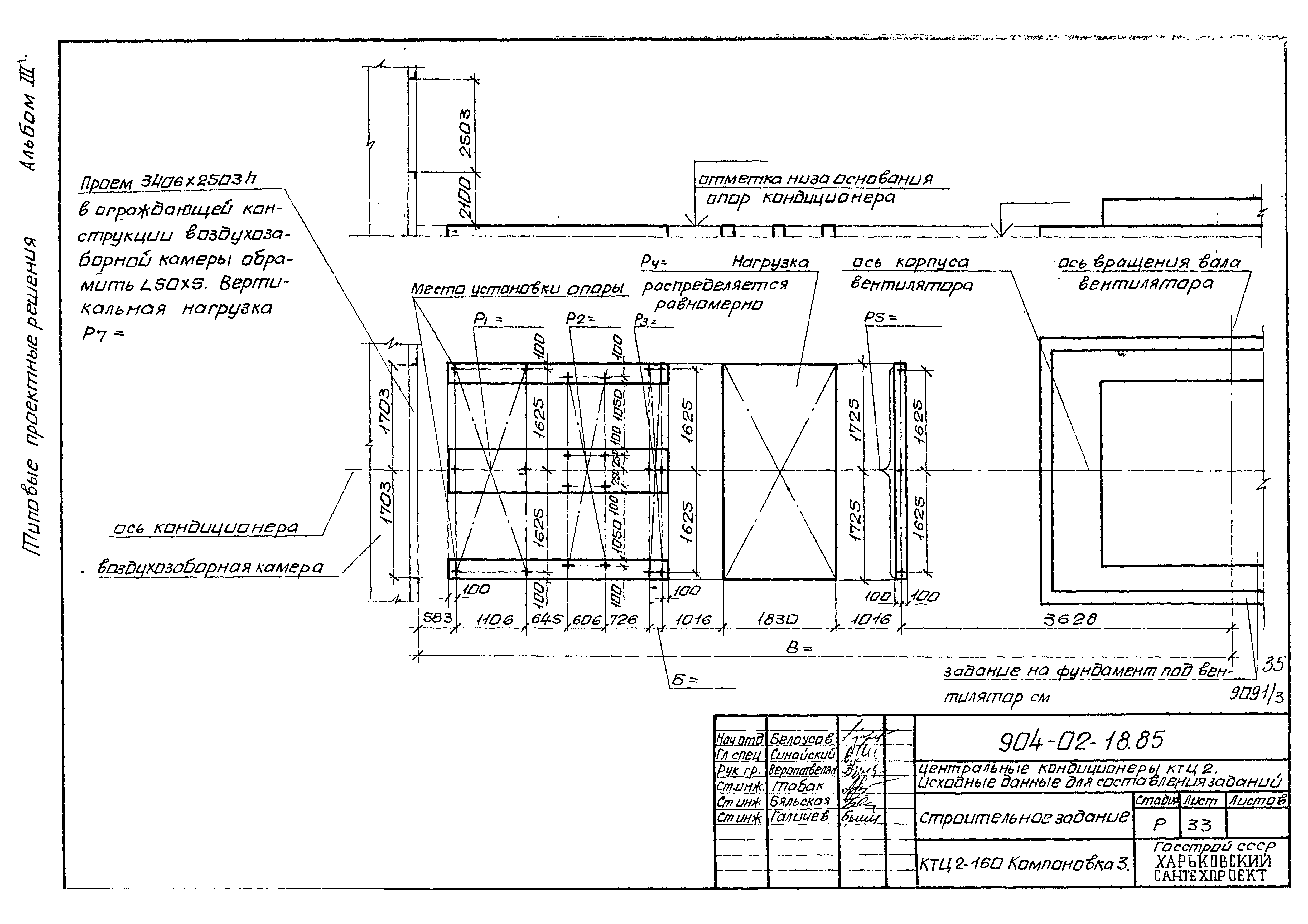
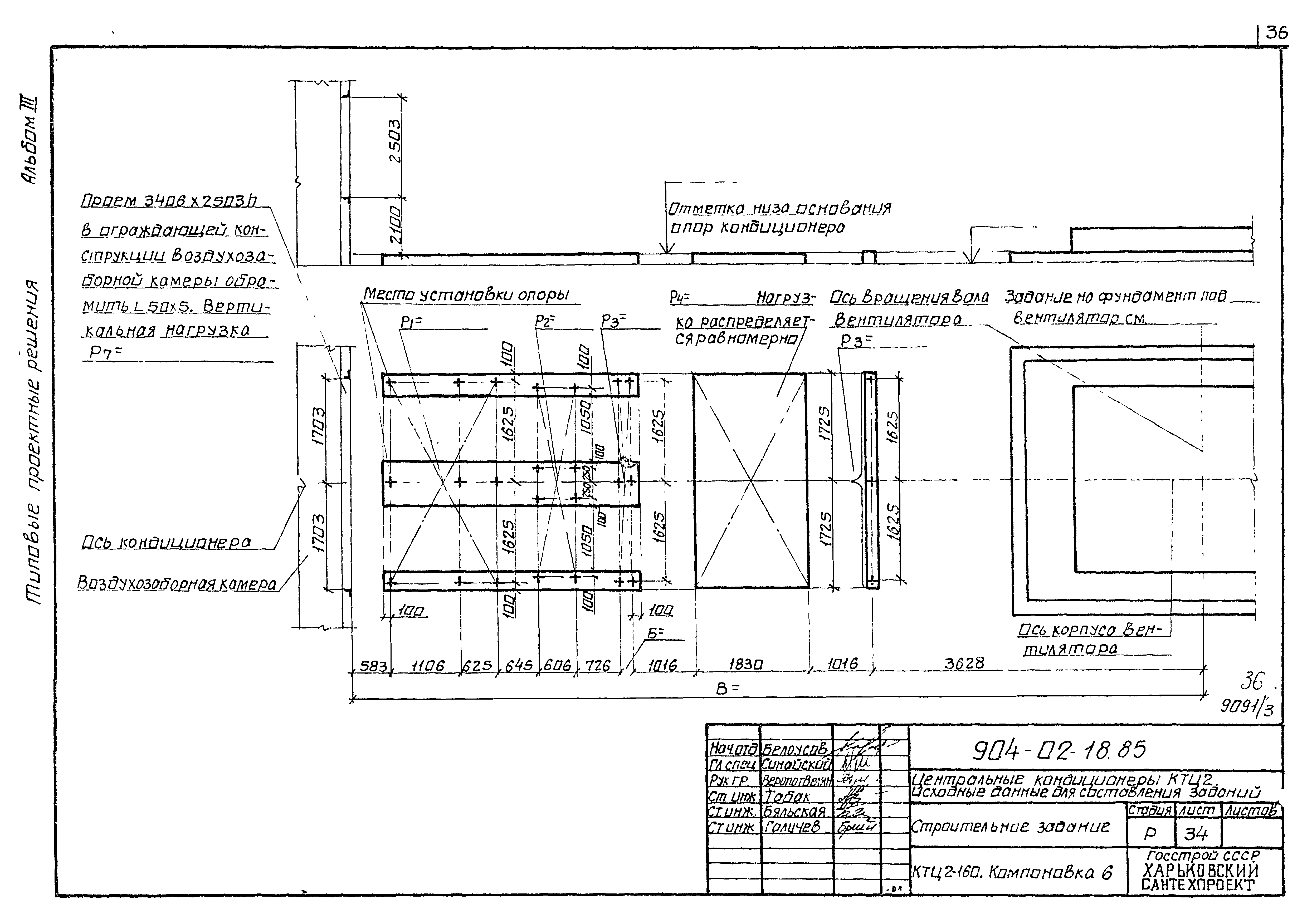
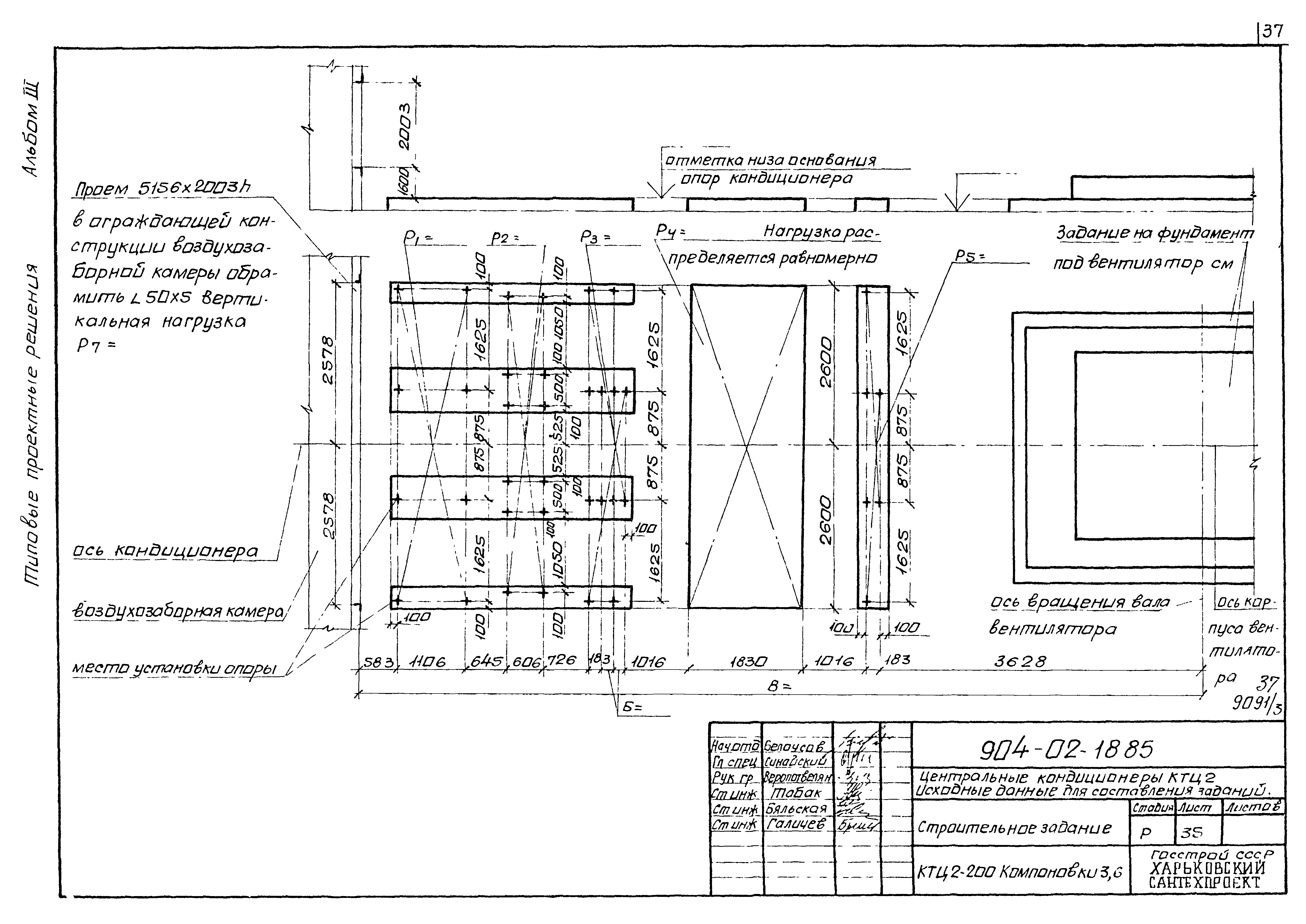
Скачать Типовые проектные решения 904-02-18.85 Альбом III. Строительные задания на секции кондиционеров модификаций базовых схем 1, 2Дата актуализации: 01.01.2021 Типовые проектные решения 904-02-18.85
Альбом III. Строительные задания на секции кондиционеров модификаций базовых схем 1, 2| Обозначение: | Типовые проектные решения 904-02-18.85 | | Обозначение англ: | 904-02-18.85 | | Статус: | справочные материалы, мп, тпр | | Название рус.: | Альбом III. Строительные задания на секции кондиционеров модификаций базовых схем 1, 2 | | Дата добавления в базу: | 01.09.2013 | | Дата актуализации: | 01.01.2021 | | Дата окончания срока действия: | 01.01.1984 | | Разработан: | Харьковский Сантехниипроект
| | Утверждён: | 01.01.1984 Главпромстройпроект Госстроя СССР
|
                                                    
|