Скачать Типовой проект 902-2-369.83 Альбом II. Технологическая, архитектурно-строительная, санитарно-техническая, электротехническая части, задание заводу-изготовителю, нестандартизированное оборудованиеДата актуализации: 01.01.2021 Типовой проект 902-2-369.83
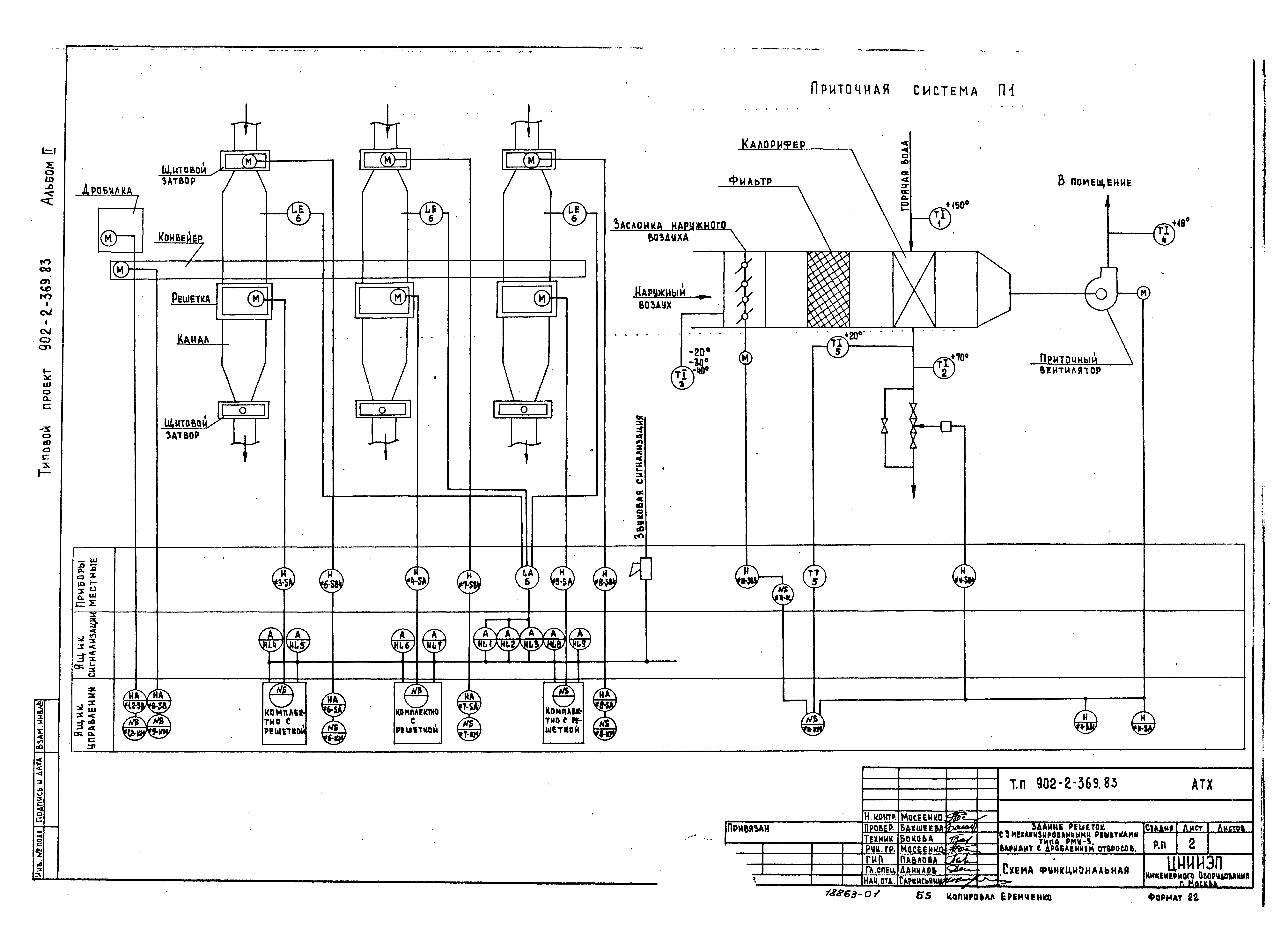
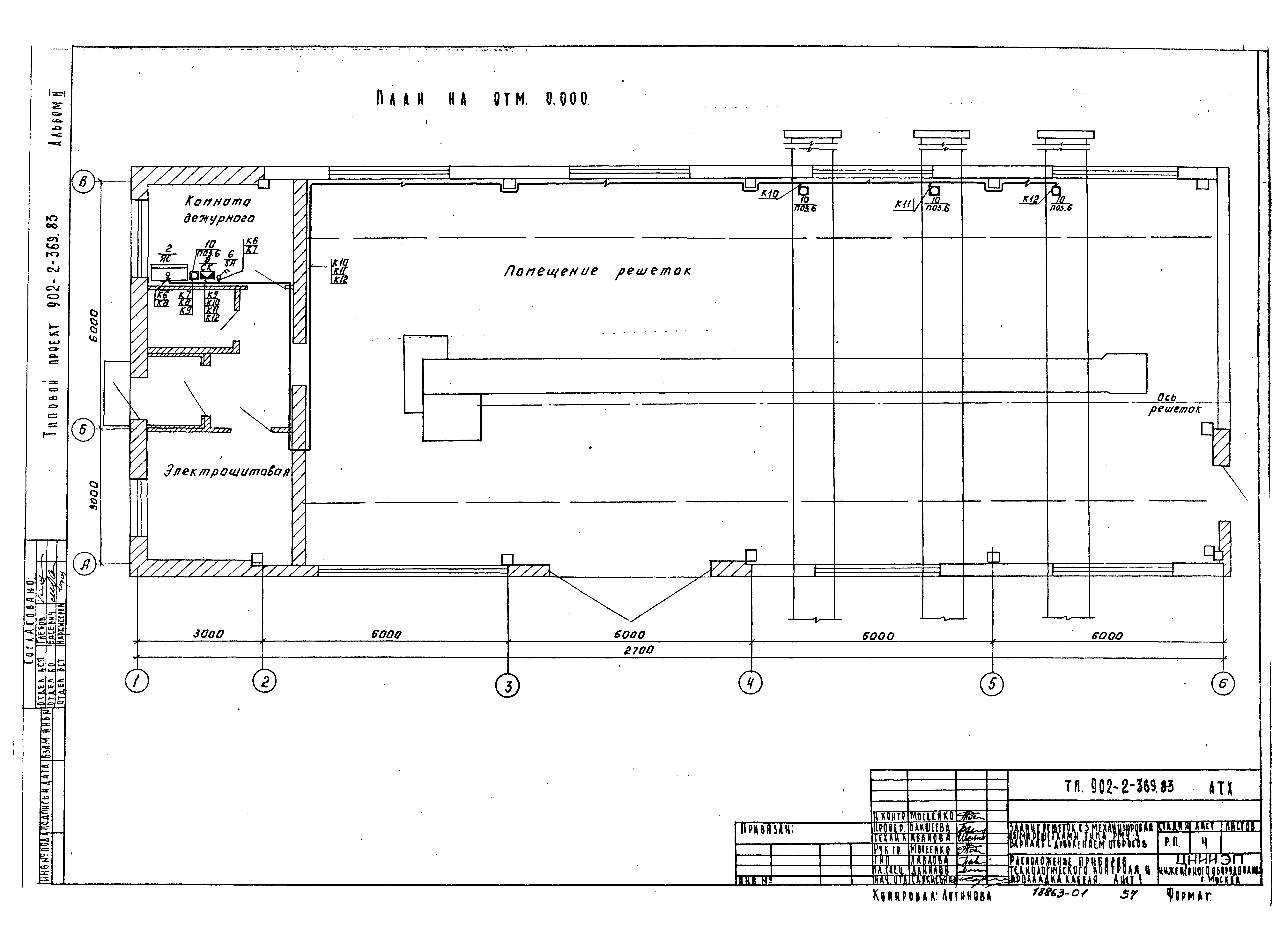
Альбом II. Технологическая, архитектурно-строительная, санитарно-техническая, электротехническая части, задание заводу-изготовителю, нестандартизированное оборудование| Обозначение: | Типовой проект 902-2-369.83 | | Обозначение англ: | 902-2-369.83 | | Статус: | заменен | | Название рус.: | Альбом II. Технологическая, архитектурно-строительная, санитарно-техническая, электротехническая части, задание заводу-изготовителю, нестандартизированное оборудование | | Дата добавления в базу: | 01.09.2013 | | Дата актуализации: | 01.01.2021 | | Дата введения: | 30.12.1982 | | Дата окончания срока действия: | 01.09.1988 | | Разработан: | ЦНИИЭП
| | Утверждён: | 27.12.1982 Госгражданстрой (Gosgrazhdanstroy 237)
| | Чем заменён: | |
                                                                
|