Скачать Типовой проект 224-3-22 Альбом I. Архитектурно-строительные, санитарно-технические и электротехнические чертежиДата актуализации: 01.01.2021 Типовой проект 224-3-22
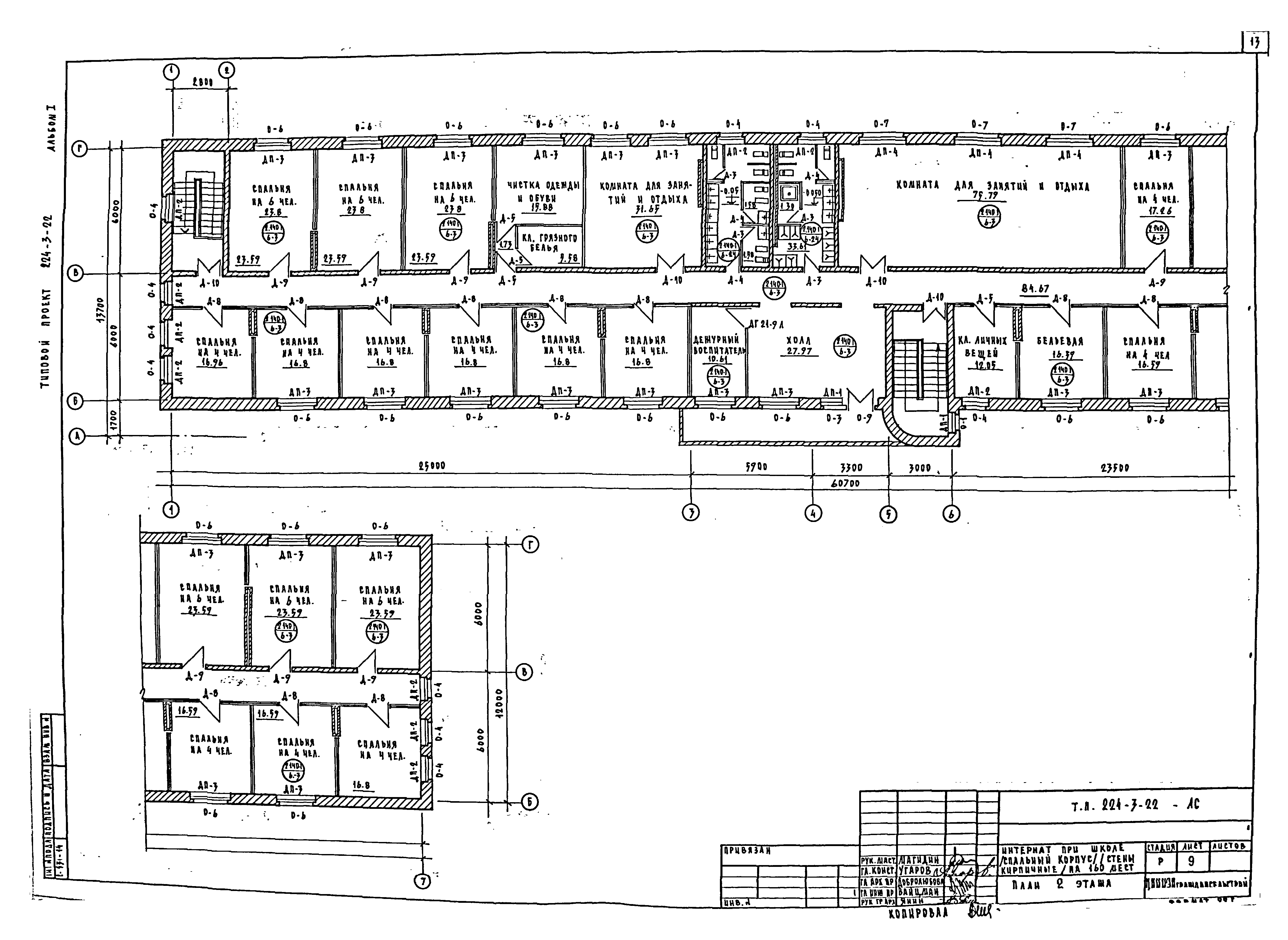
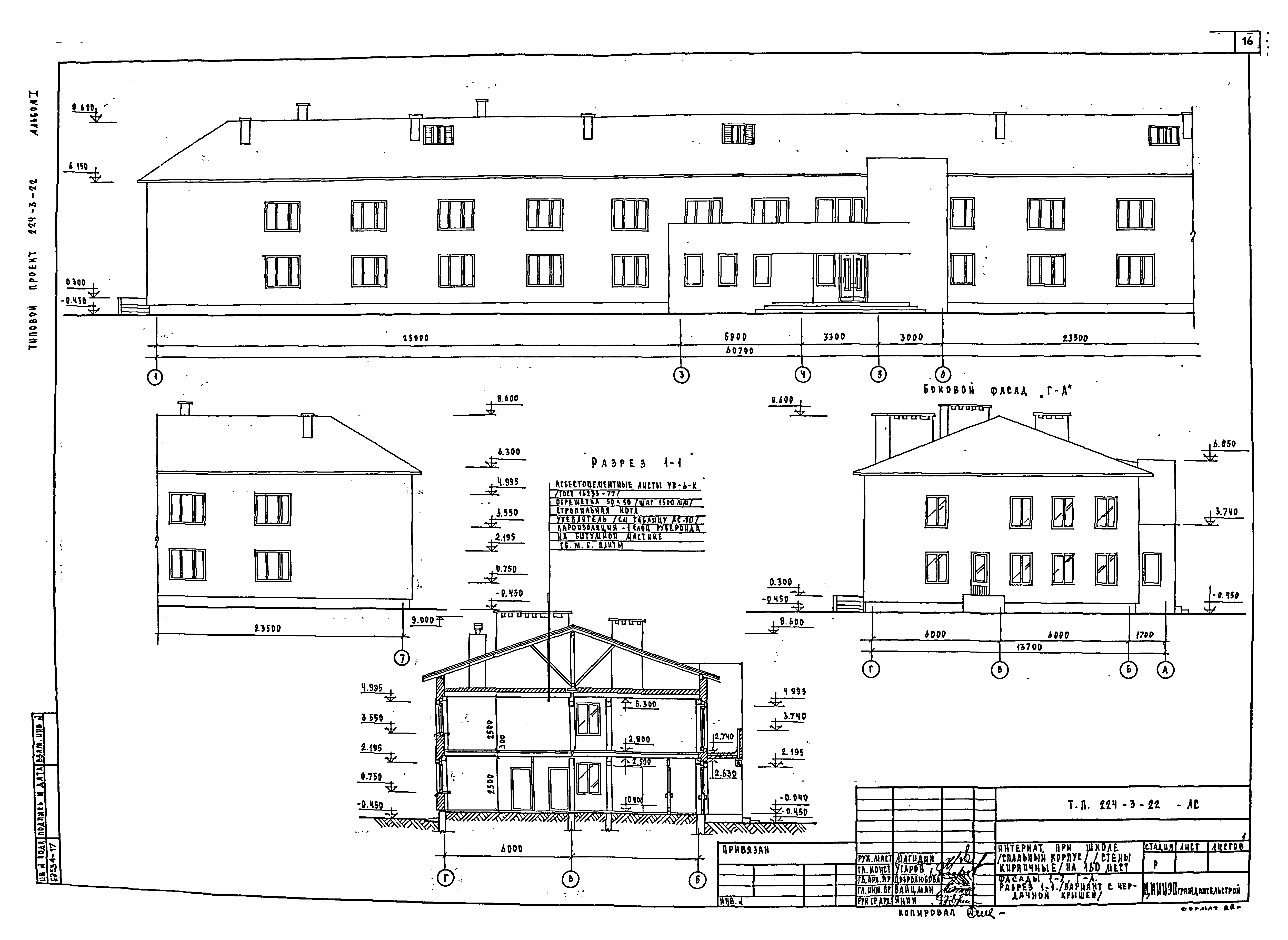
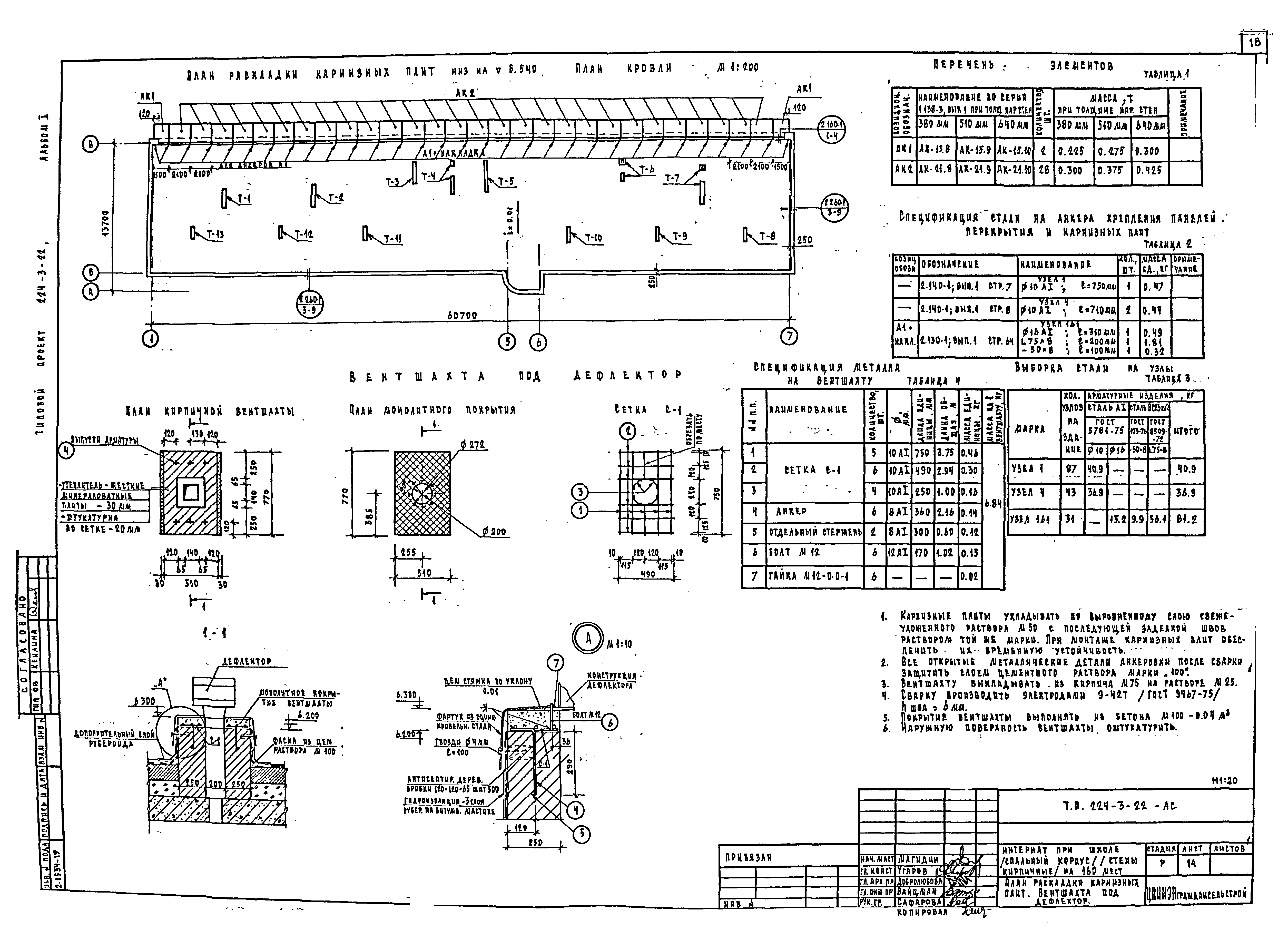
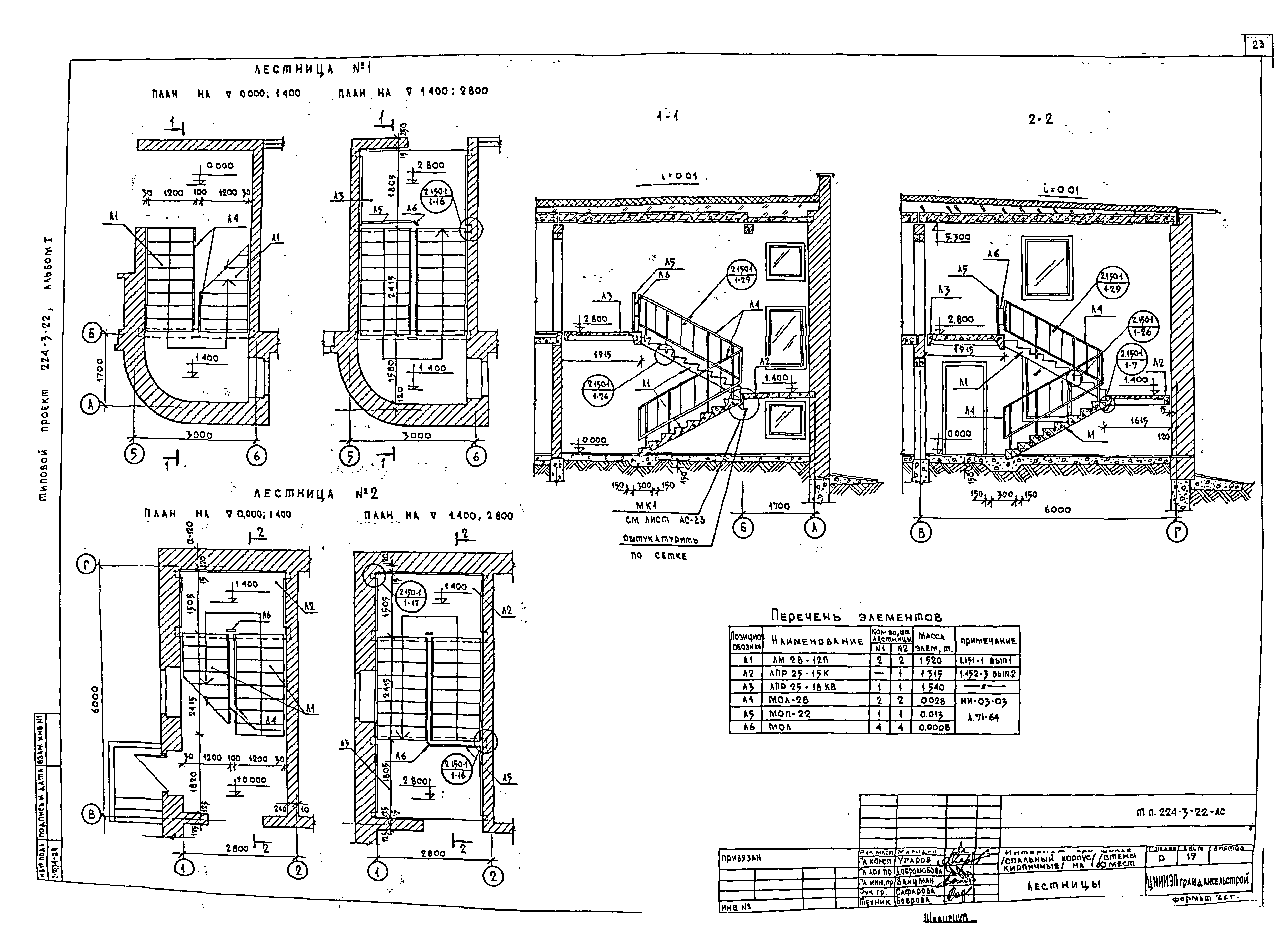
Альбом I. Архитектурно-строительные, санитарно-технические и электротехнические чертежи| Обозначение: | Типовой проект 224-3-22 | | Обозначение англ: | 224-3-22 | | Статус: | не определен законодательством | | Название рус.: | Альбом I. Архитектурно-строительные, санитарно-технические и электротехнические чертежи | | Дата добавления в базу: | 01.09.2013 | | Дата актуализации: | 01.01.2021 | | Дата введения: | 26.01.1981 | | Дата окончания срока действия: | 30.06.2003 | | Разработан: | ЦНИИЭП граждансельстрой
| | Утверждён: | 25.07.1979 Госгражданстрой (Gosgrazhdanstroy 168)
|
                                                             
|