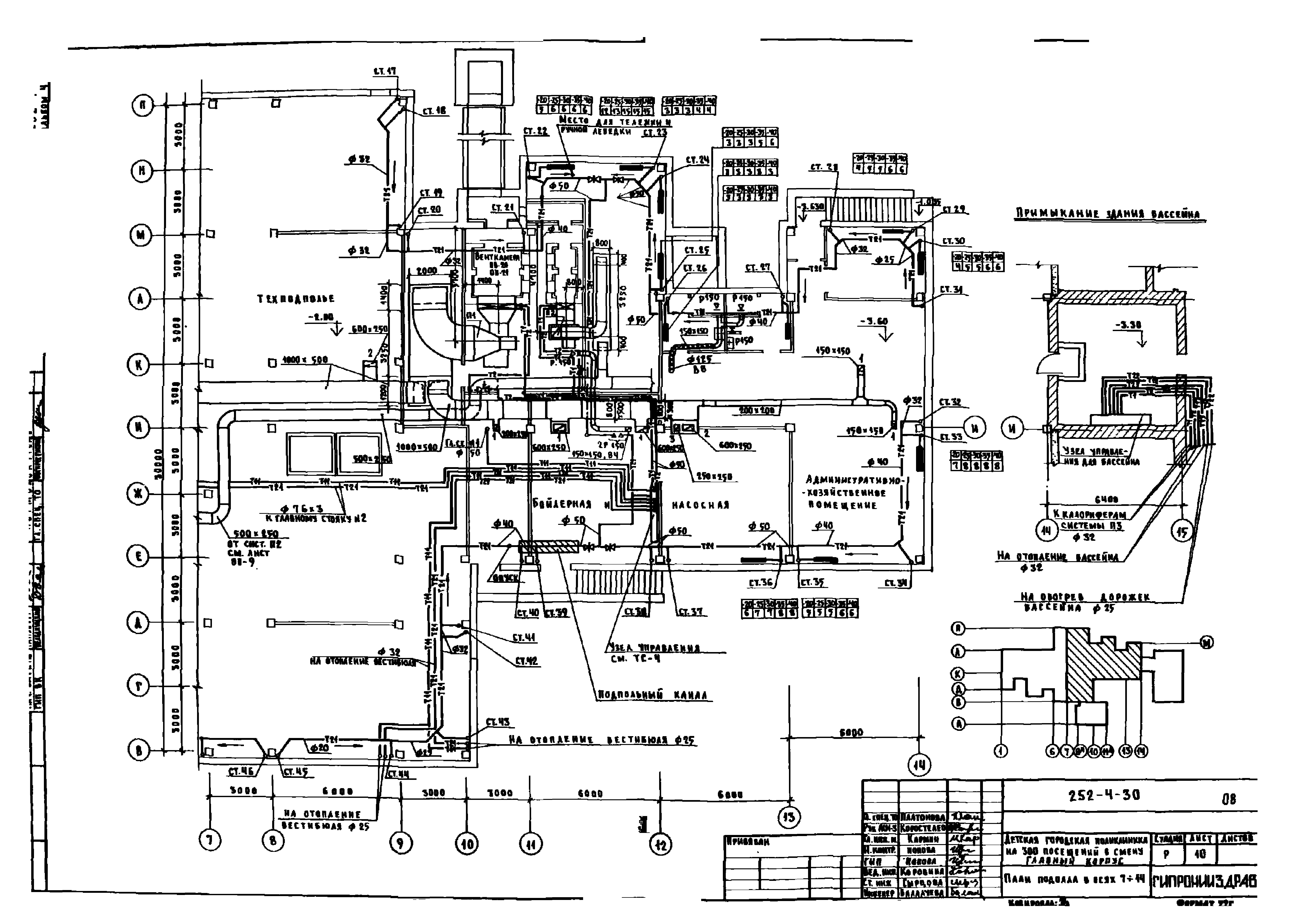
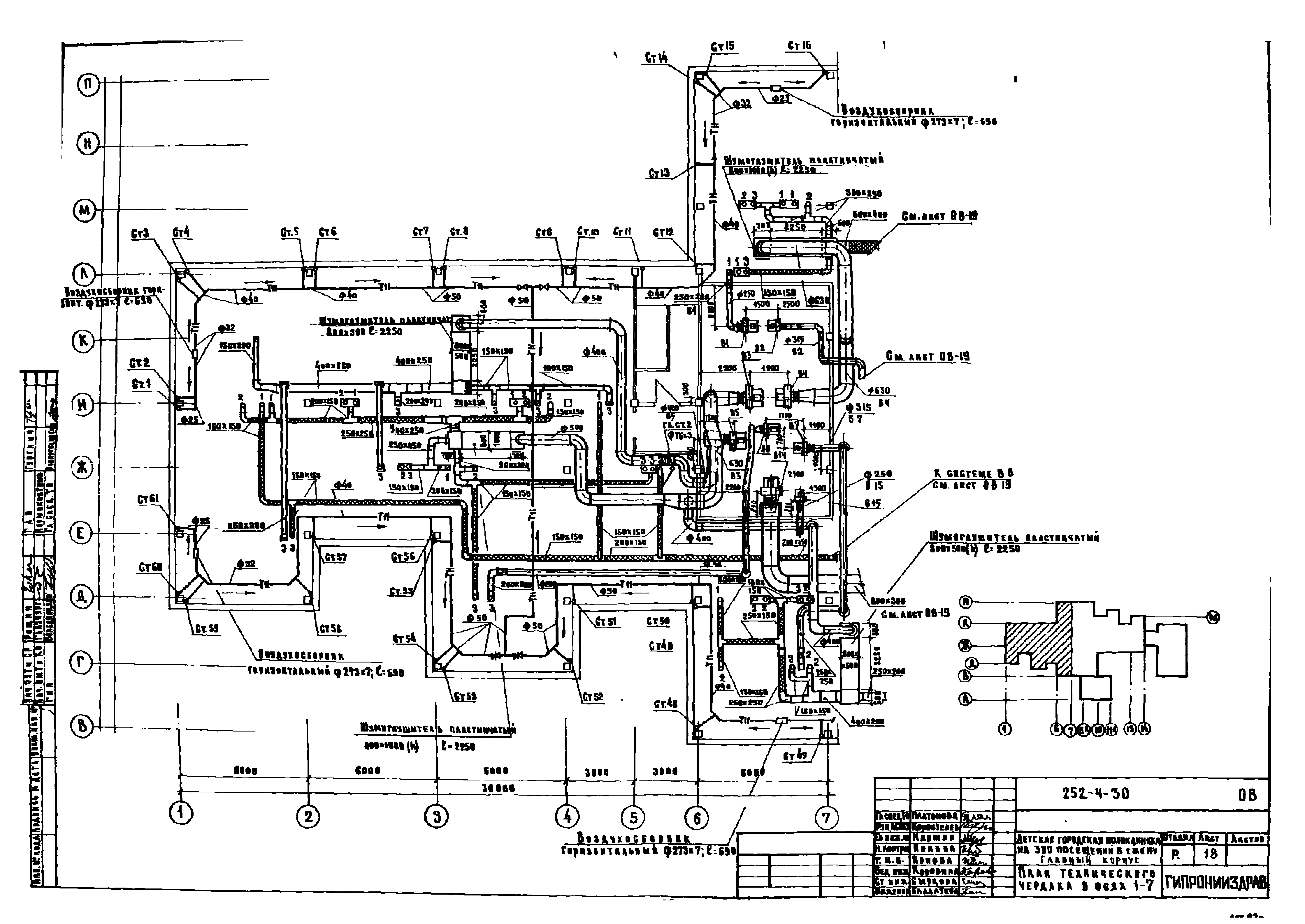
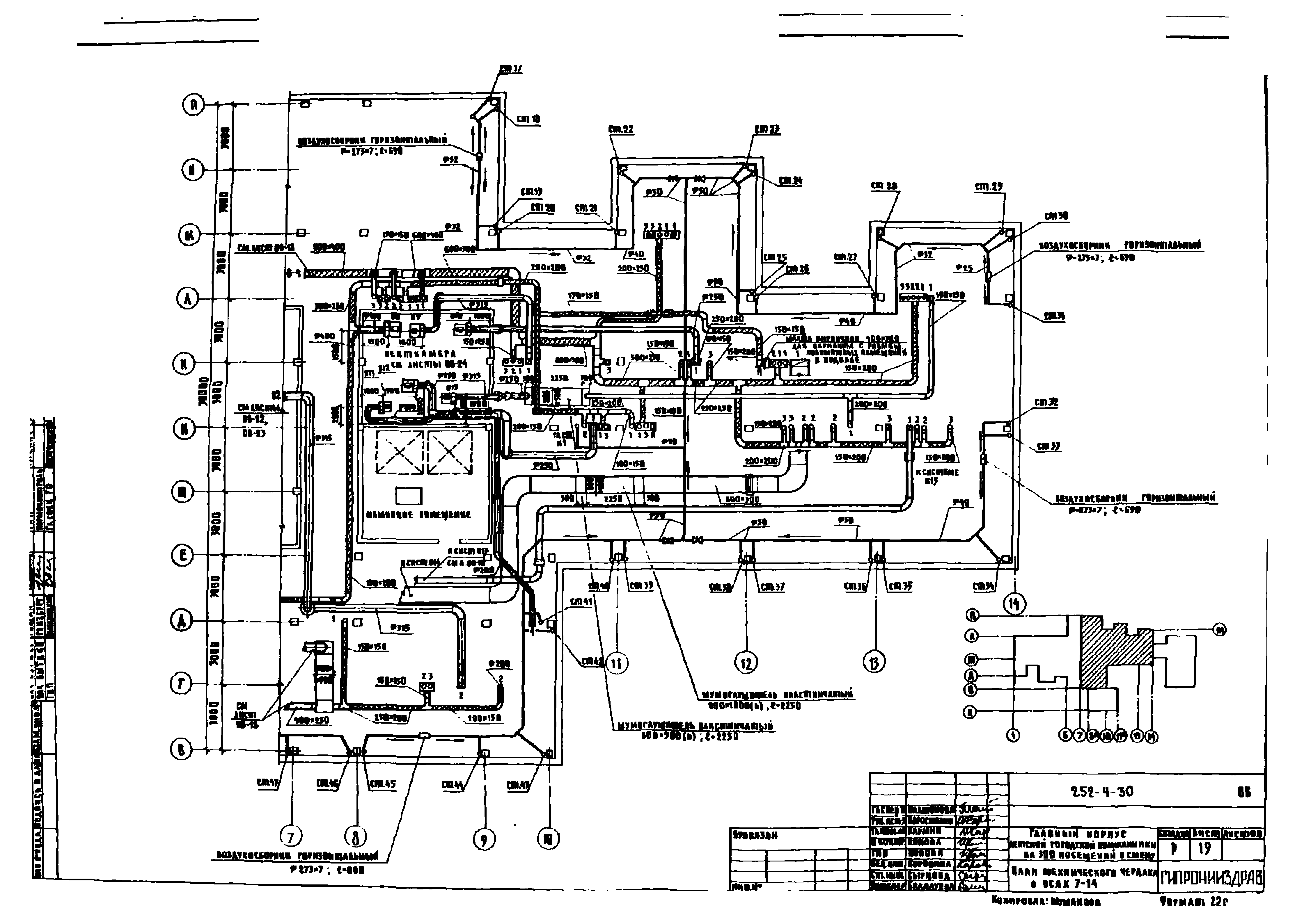
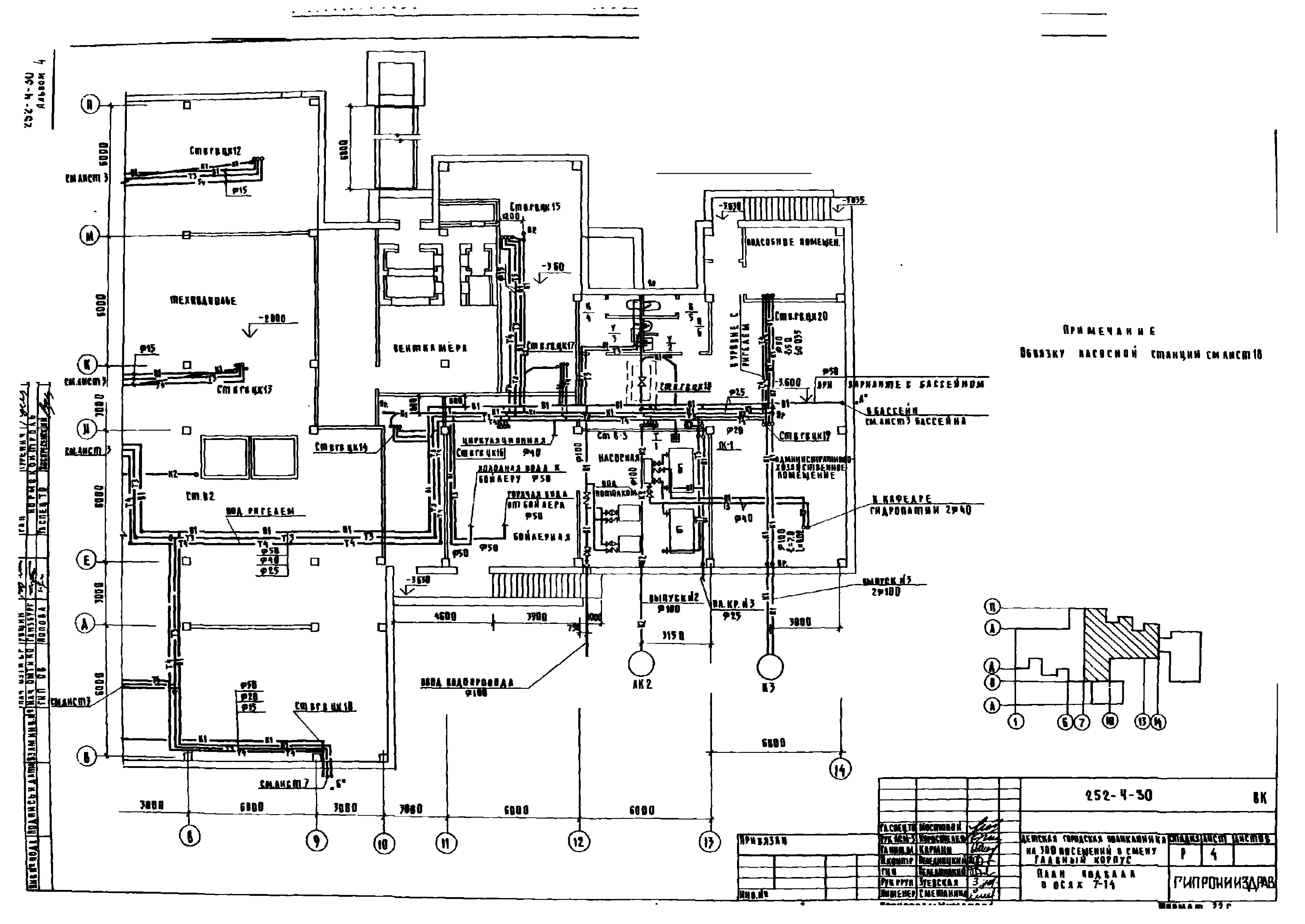
Скачать Типовой проект 252-4-30 Альбом 4. Главный корпус, санитарно-технические чертежи; отопление, вентиляция, водопровод, канализация, теплоснабжениеДата актуализации: 01.01.2021 Типовой проект 252-4-30
Альбом 4. Главный корпус, санитарно-технические чертежи; отопление, вентиляция, водопровод, канализация, теплоснабжение| Обозначение: | Типовой проект 252-4-30 | | Обозначение англ: | 252-4-30 | | Статус: | не определен законодательством | | Название рус.: | Альбом 4. Главный корпус, санитарно-технические чертежи; отопление, вентиляция, водопровод, канализация, теплоснабжение | | Дата добавления в базу: | 01.09.2013 | | Дата актуализации: | 01.01.2021 | | Дата введения: | 31.03.1981 | | Дата окончания срока действия: | 30.06.2003 | | Разработан: | ГипроНИИздрав Минздрава СССР
| | Утверждён: | 14.12.1979 Госгражданстрой (Gosgrazhdanstroy 267)
|
                                                           
|