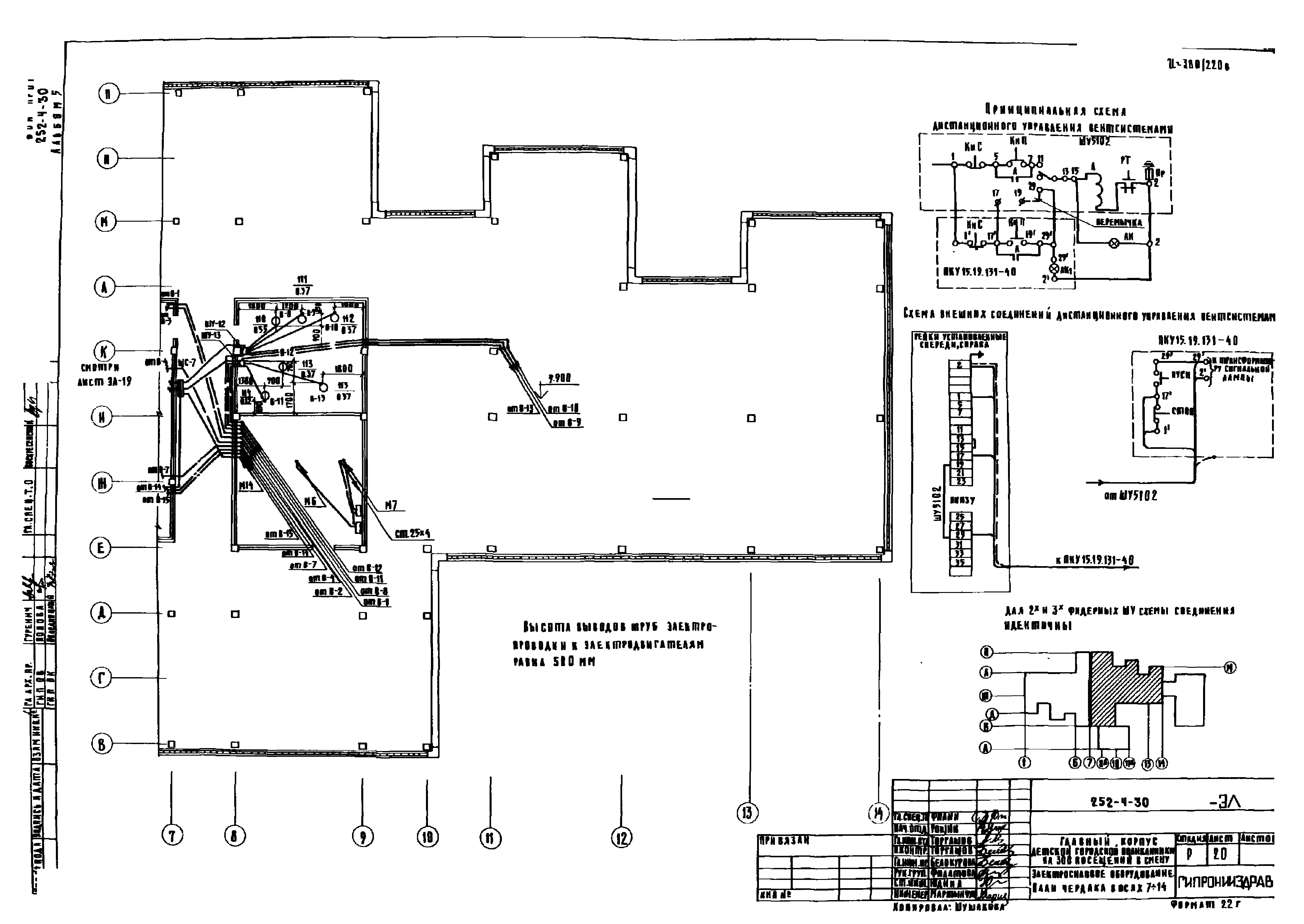
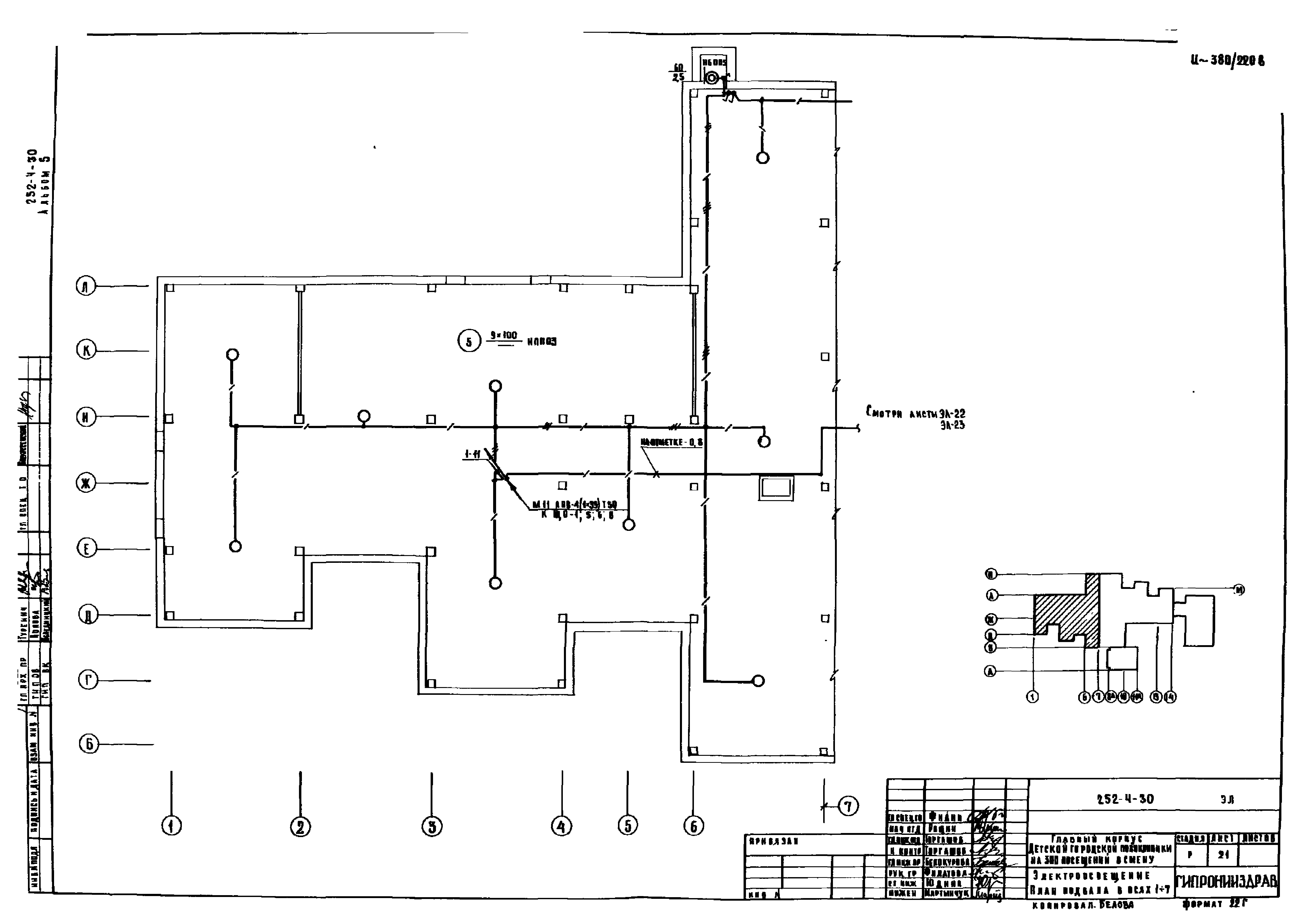
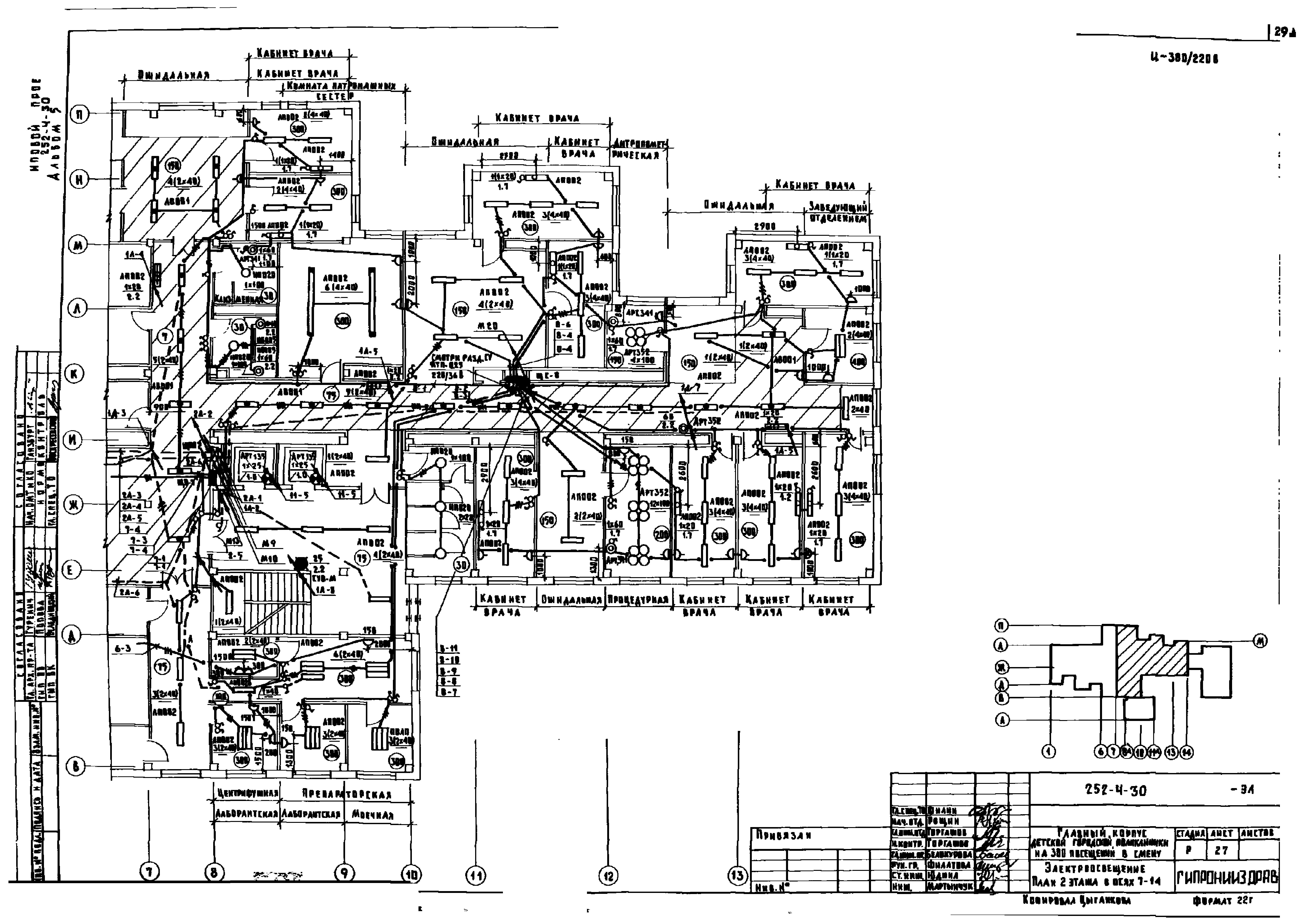
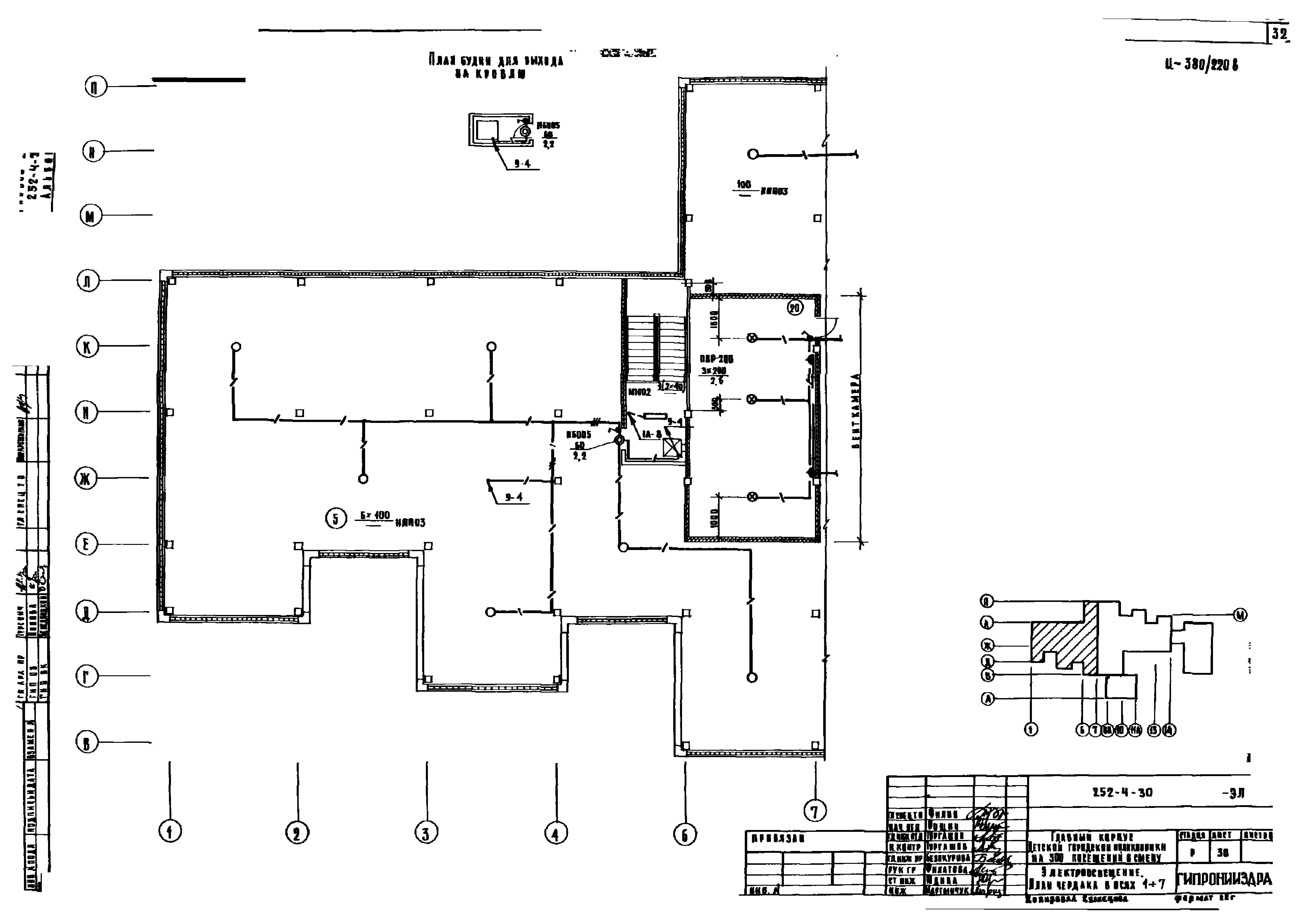
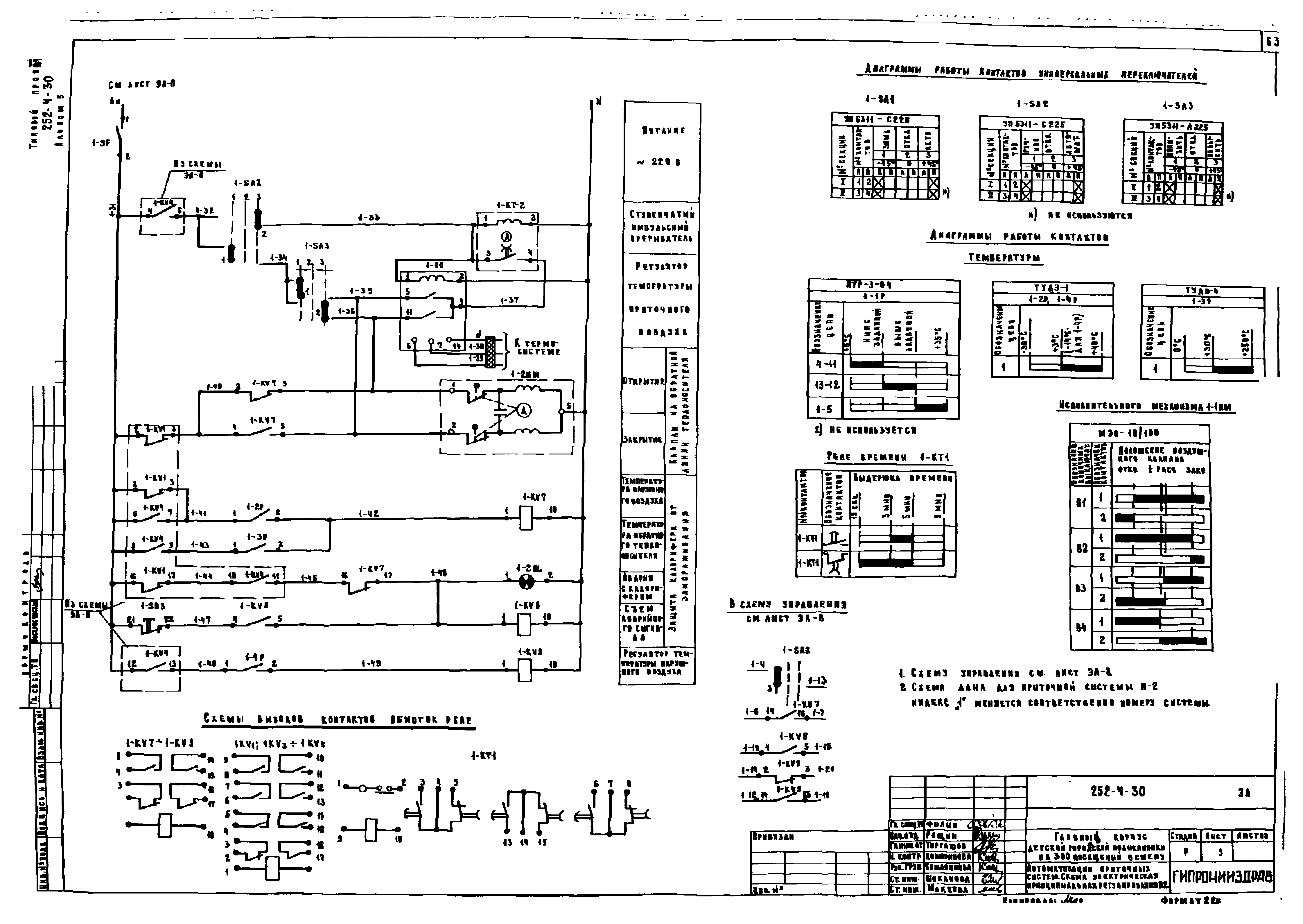
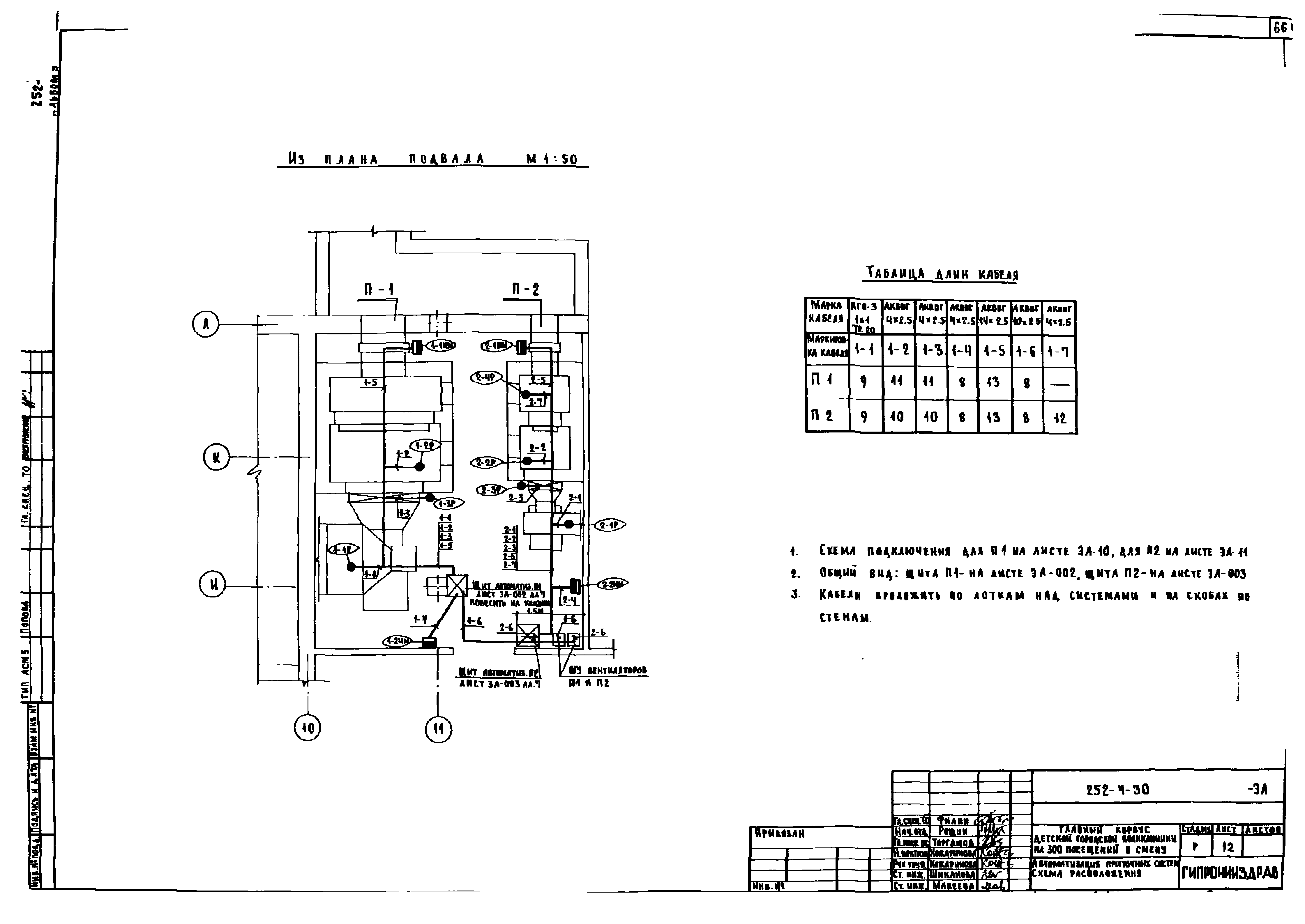
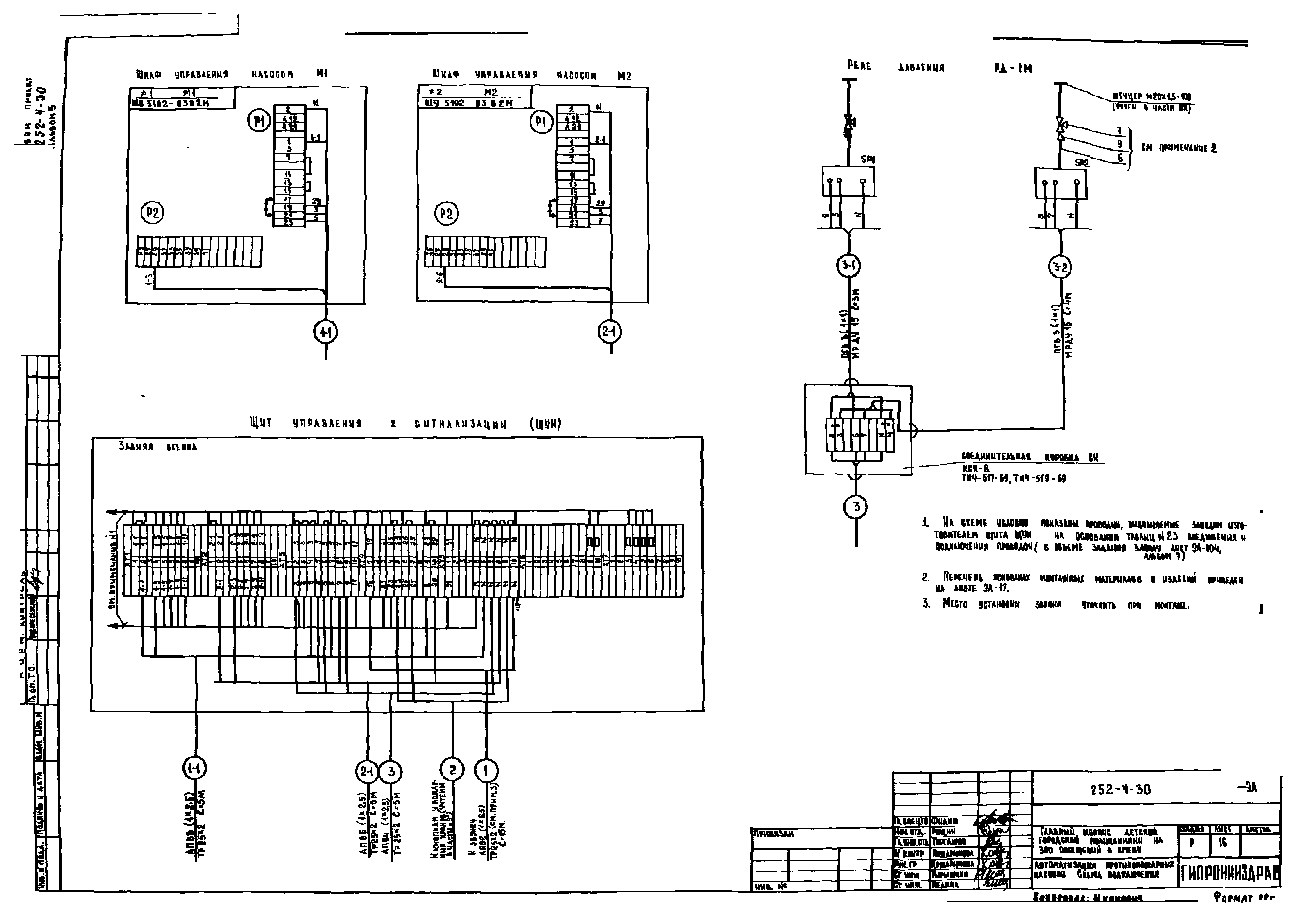
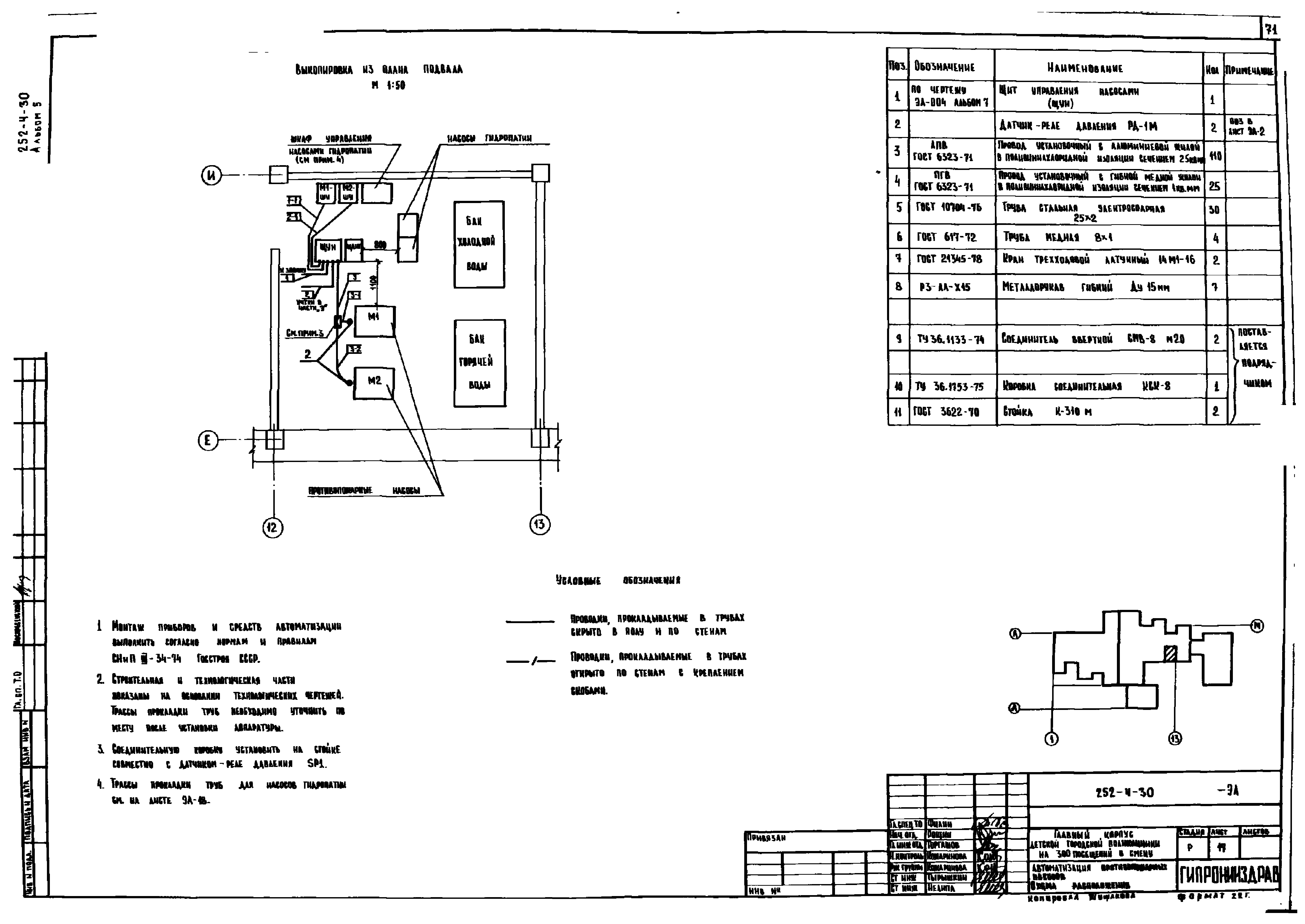
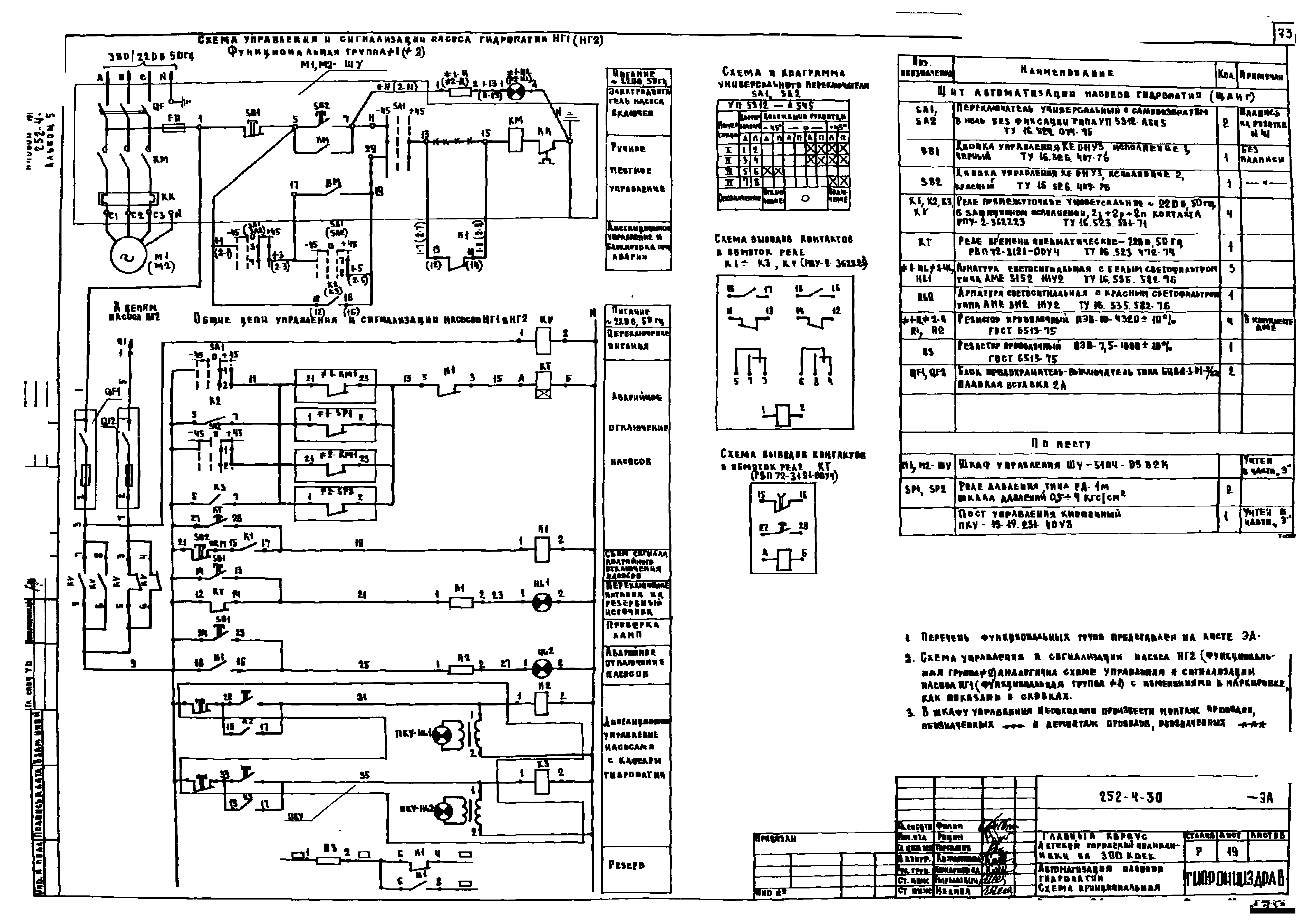
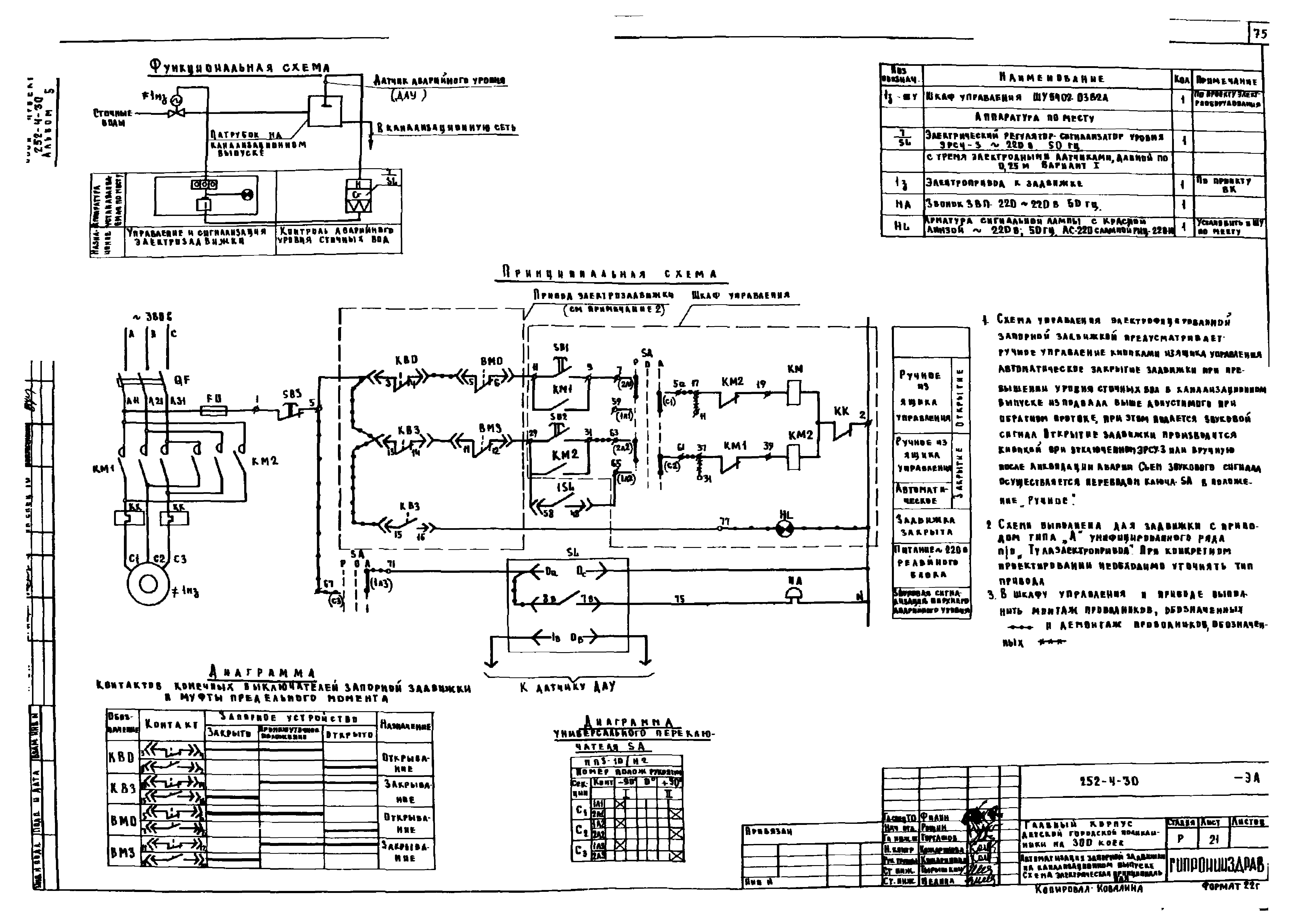
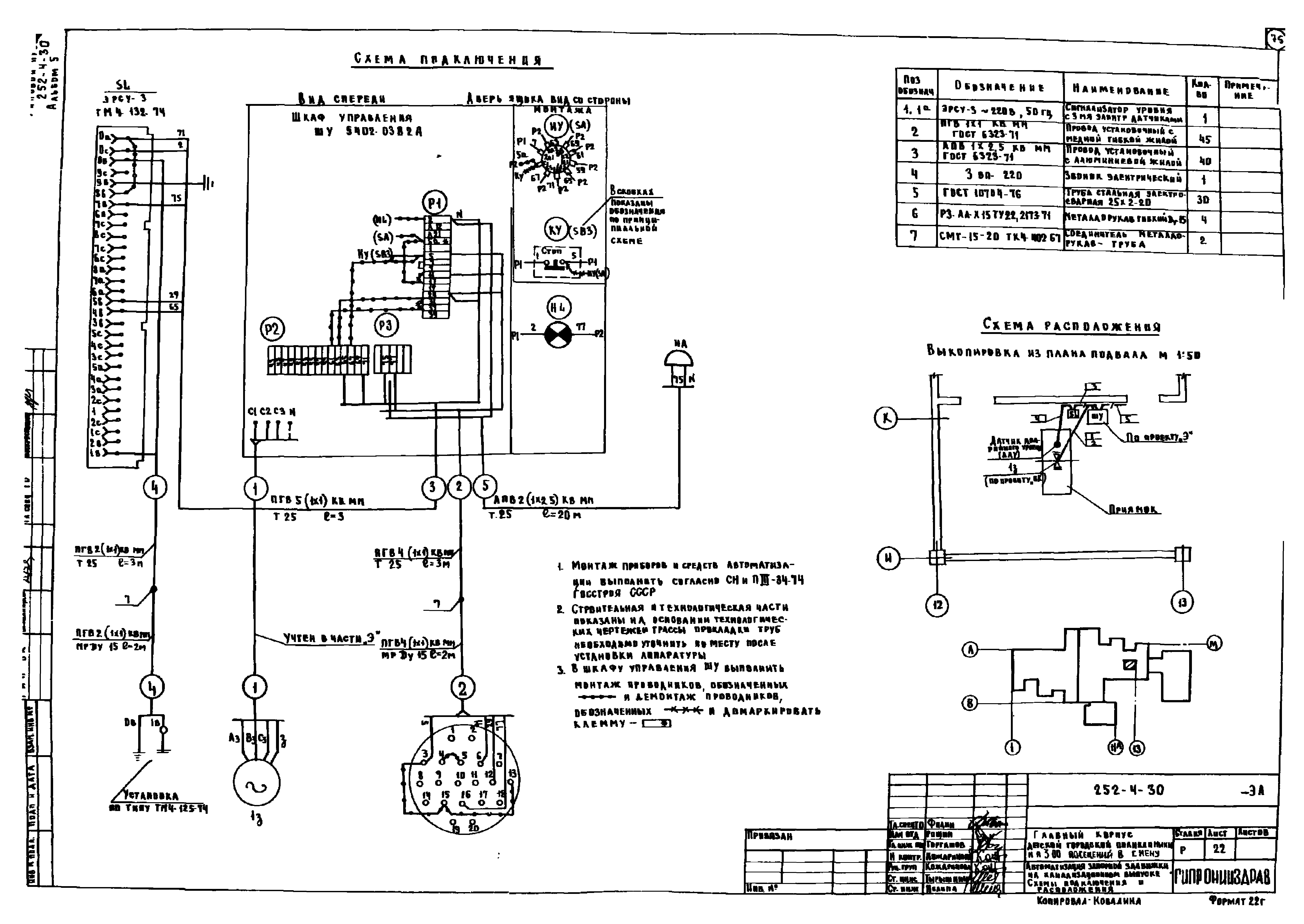
Скачать Типовой проект 252-4-30 Альбом 5. Главный корпус, электротехнические чертежи, электроосвещение, электрооборудование, устройство связи, автоматикаДата актуализации: 01.01.2021 Типовой проект 252-4-30
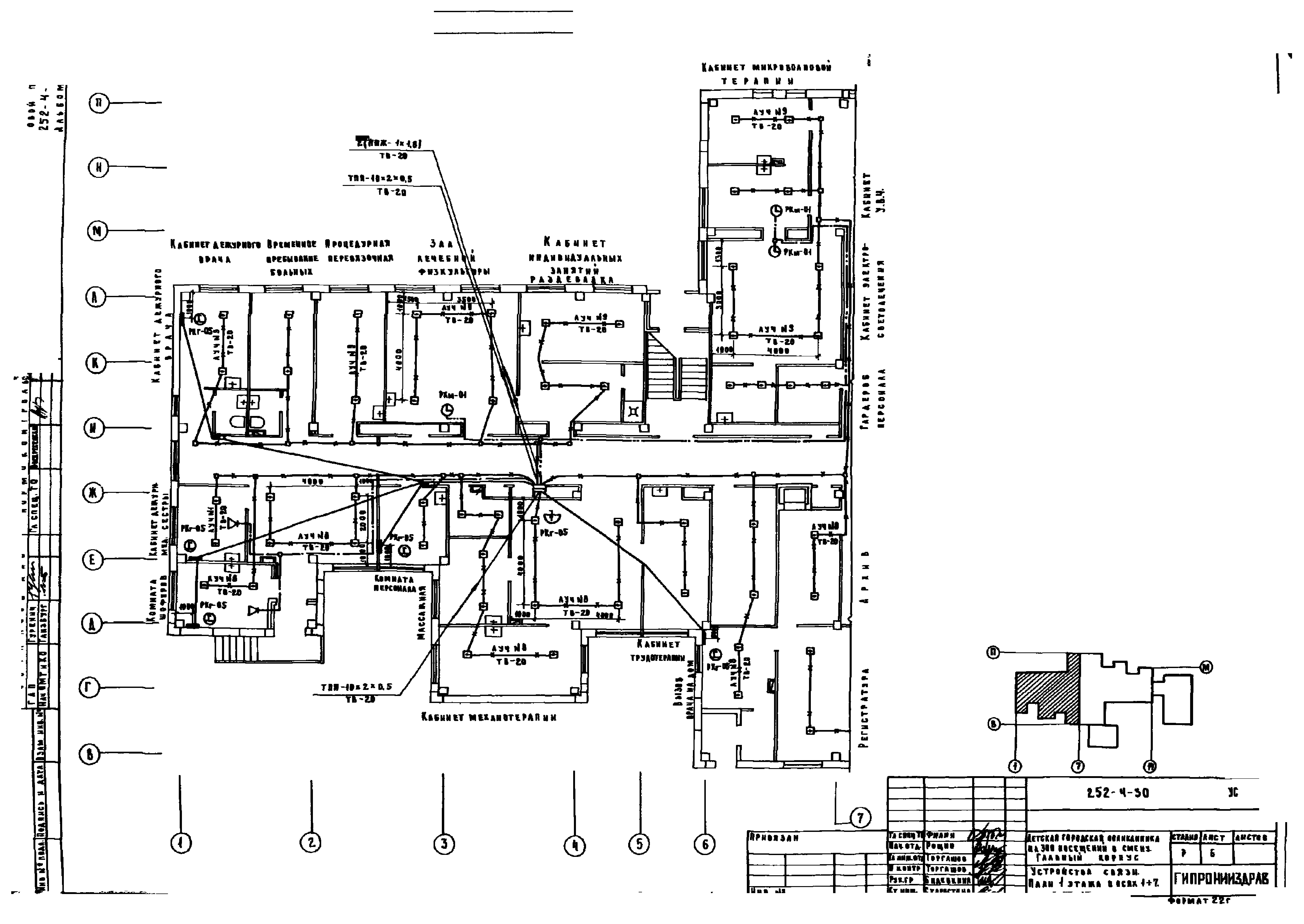
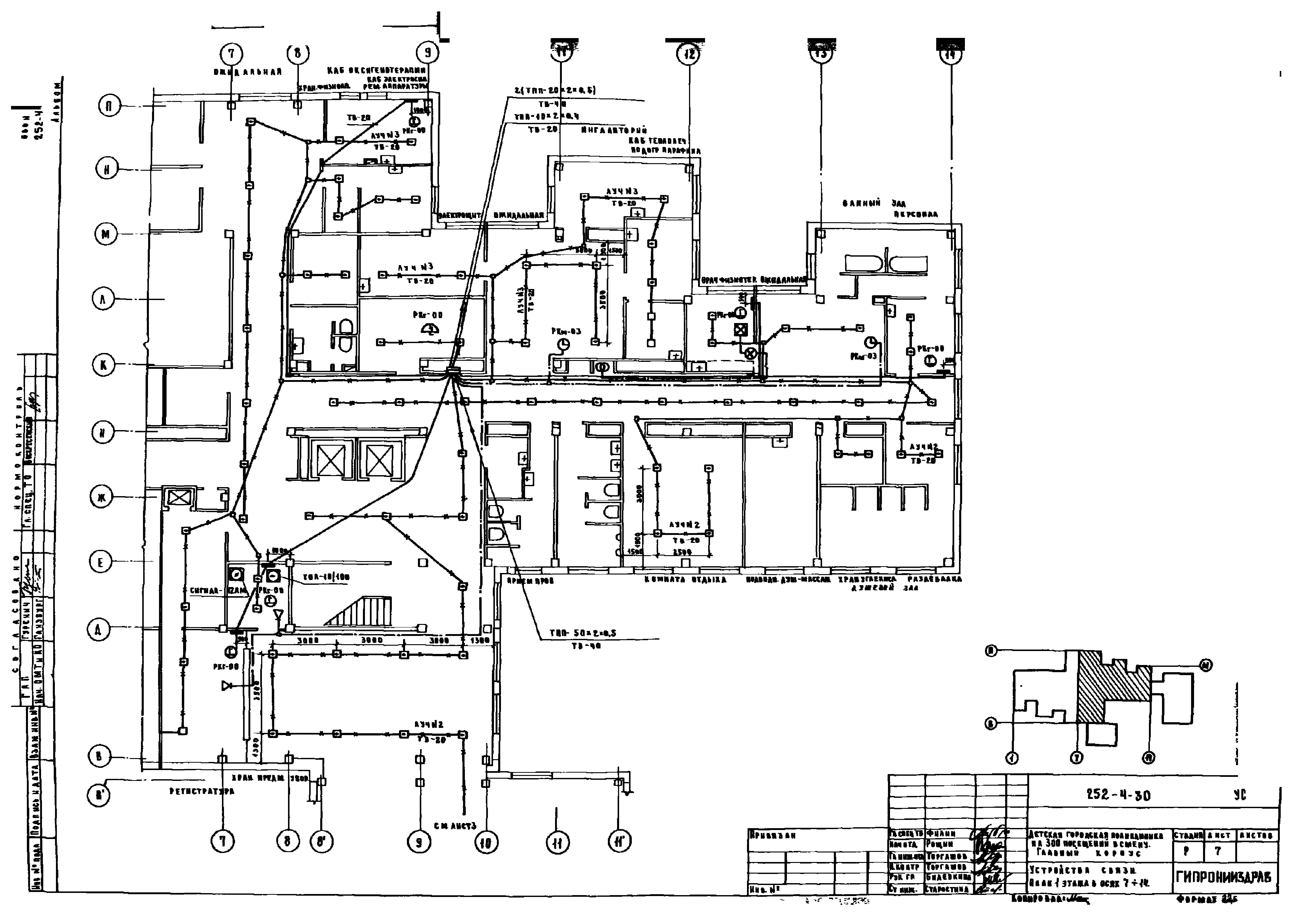
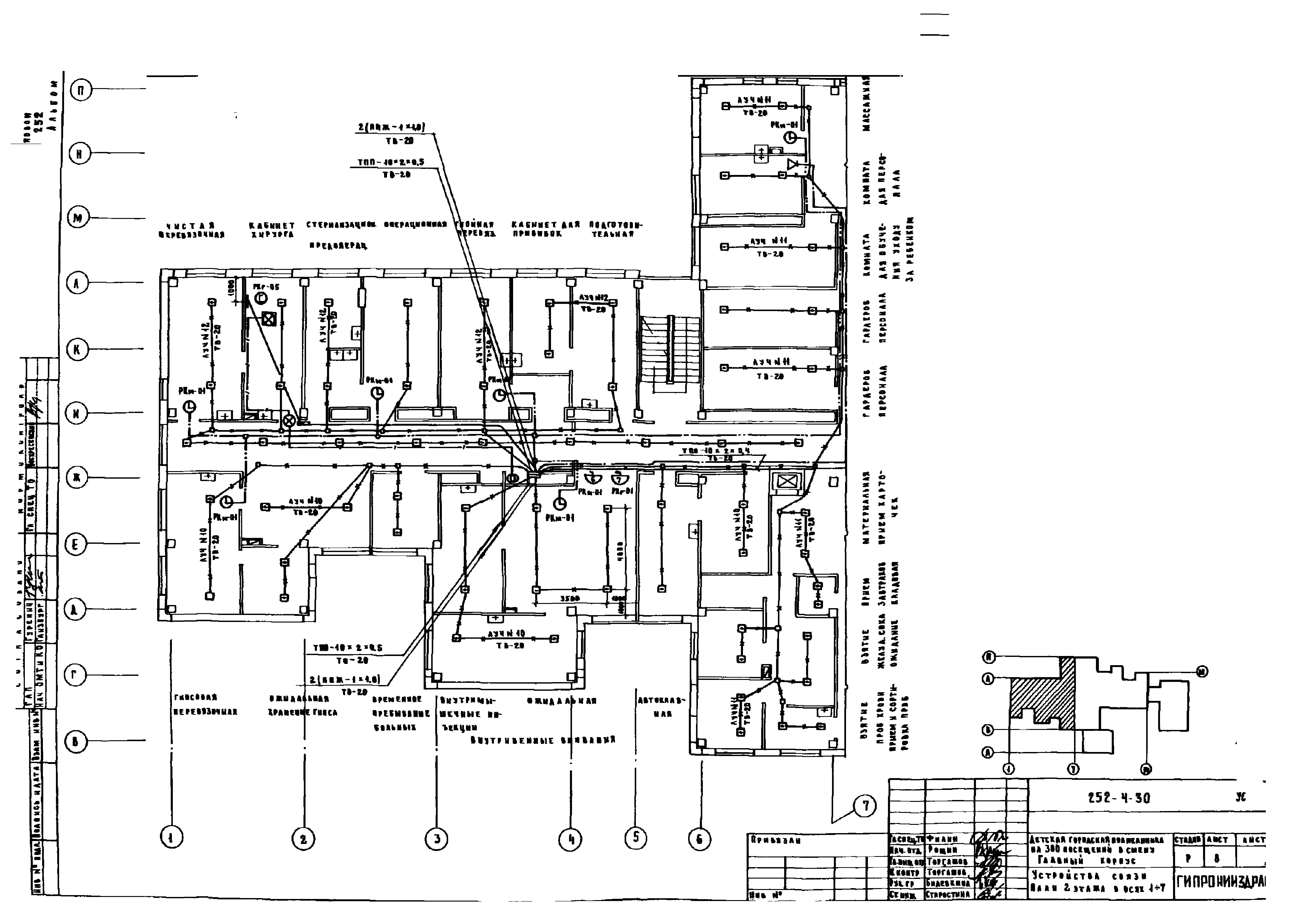
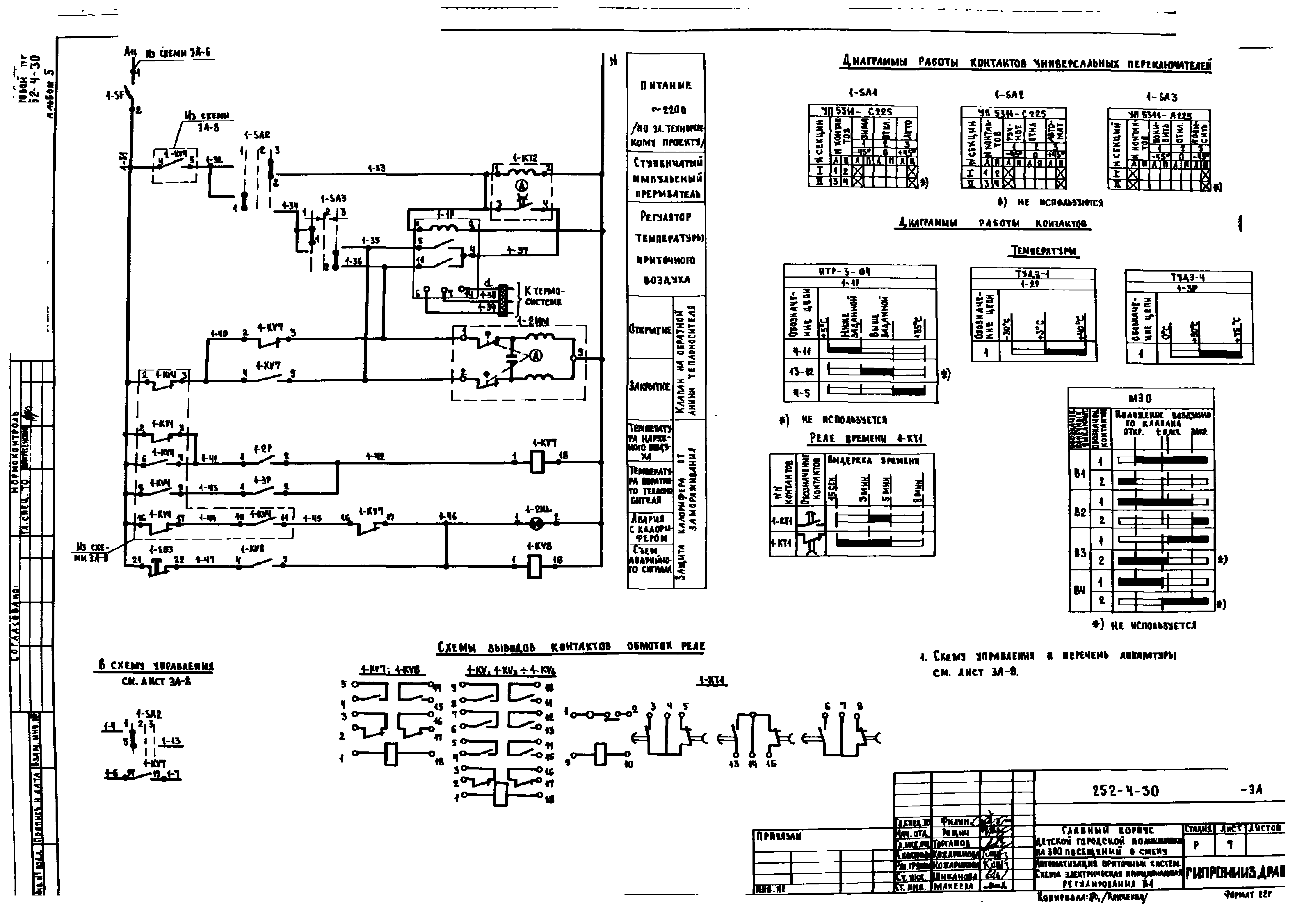
Альбом 5. Главный корпус, электротехнические чертежи, электроосвещение, электрооборудование, устройство связи, автоматика| Обозначение: | Типовой проект 252-4-30 | | Обозначение англ: | 252-4-30 | | Статус: | не определен законодательством | | Название рус.: | Альбом 5. Главный корпус, электротехнические чертежи, электроосвещение, электрооборудование, устройство связи, автоматика | | Дата добавления в базу: | 01.09.2013 | | Дата актуализации: | 01.01.2021 | | Дата введения: | 31.03.1981 | | Дата окончания срока действия: | 30.06.2003 | | Разработан: | ГипроНИИздрав Минздрава СССР
| | Утверждён: | 14.12.1979 Госгражданстрой (Gosgrazhdanstroy 267)
|
                                                                           
|