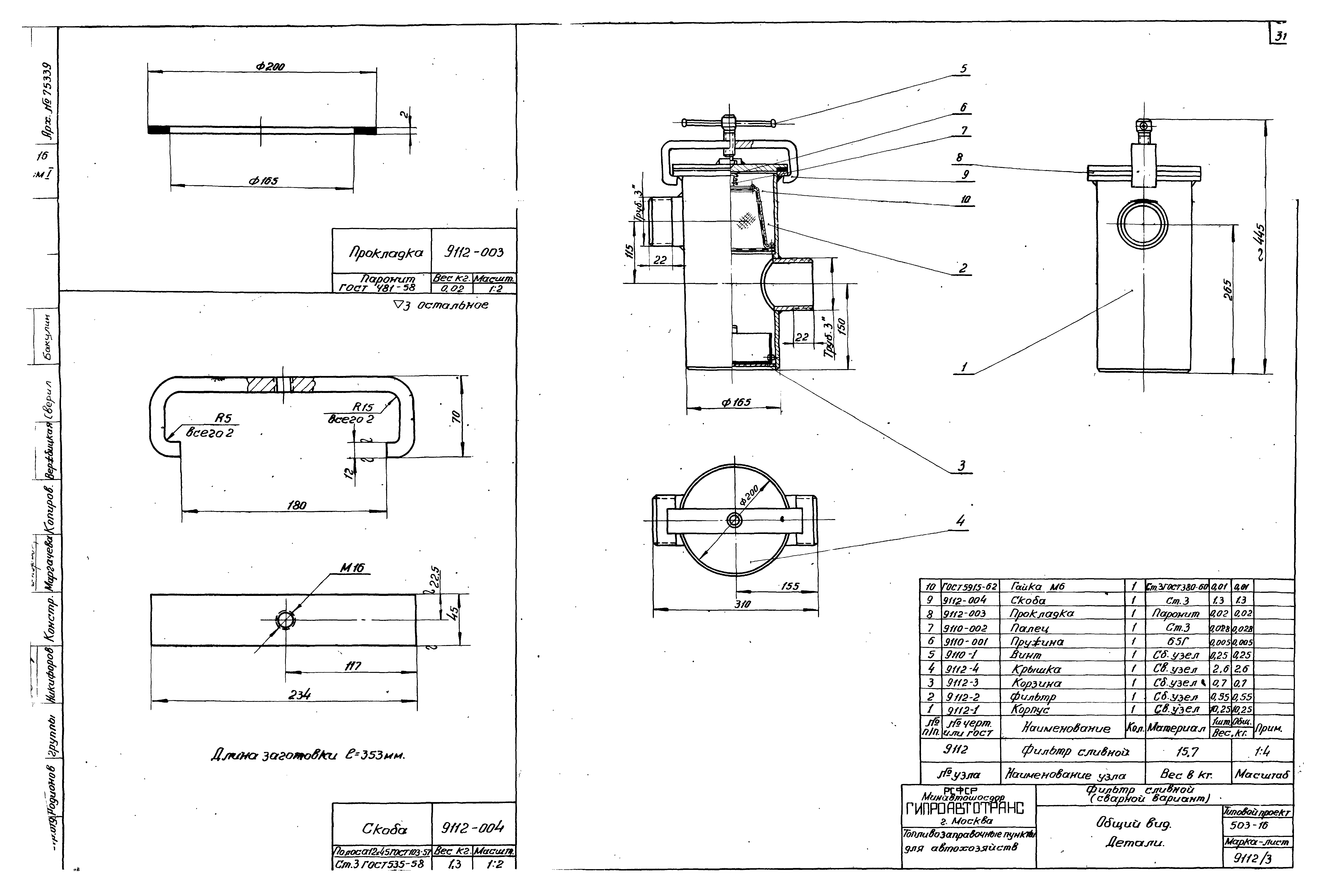
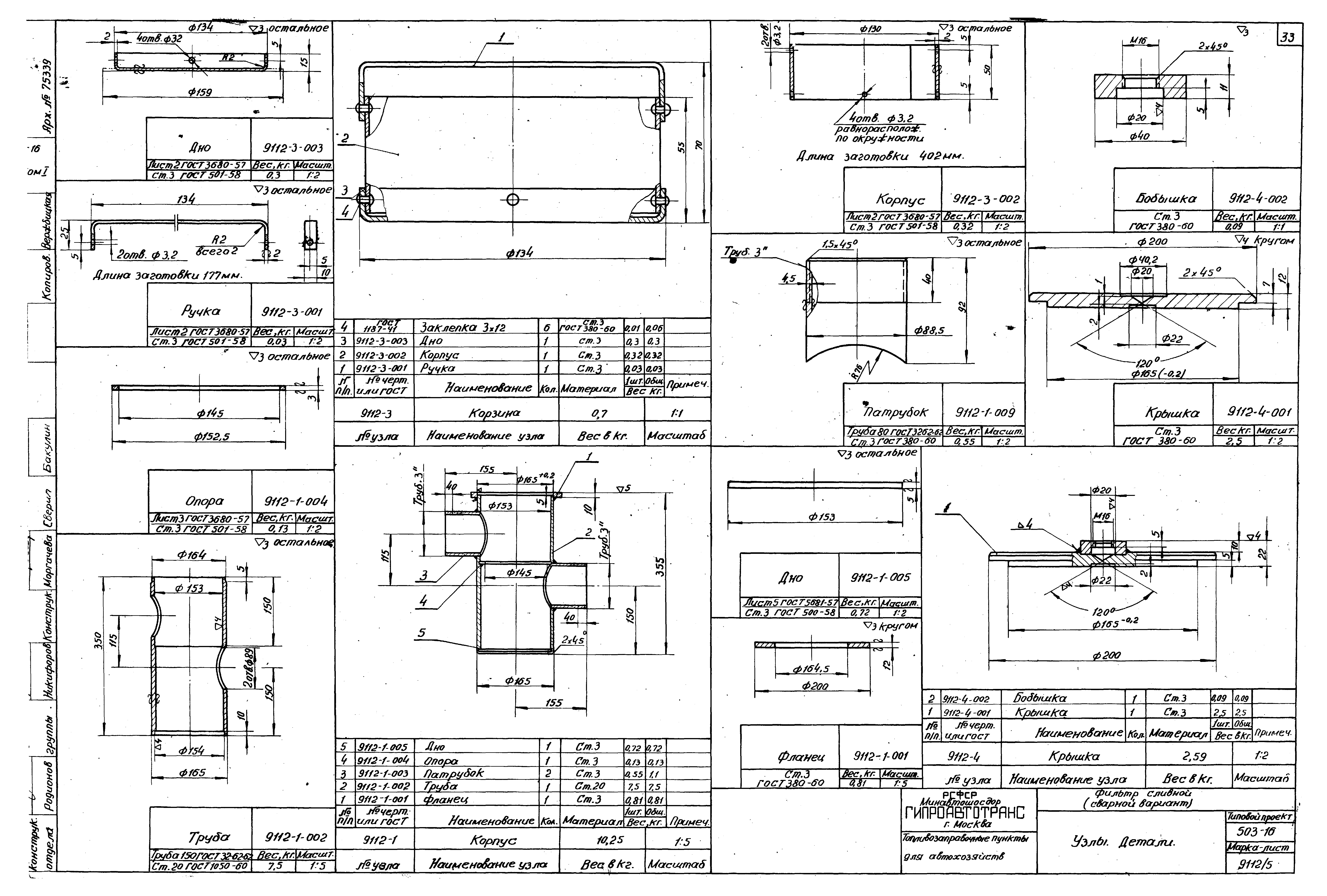
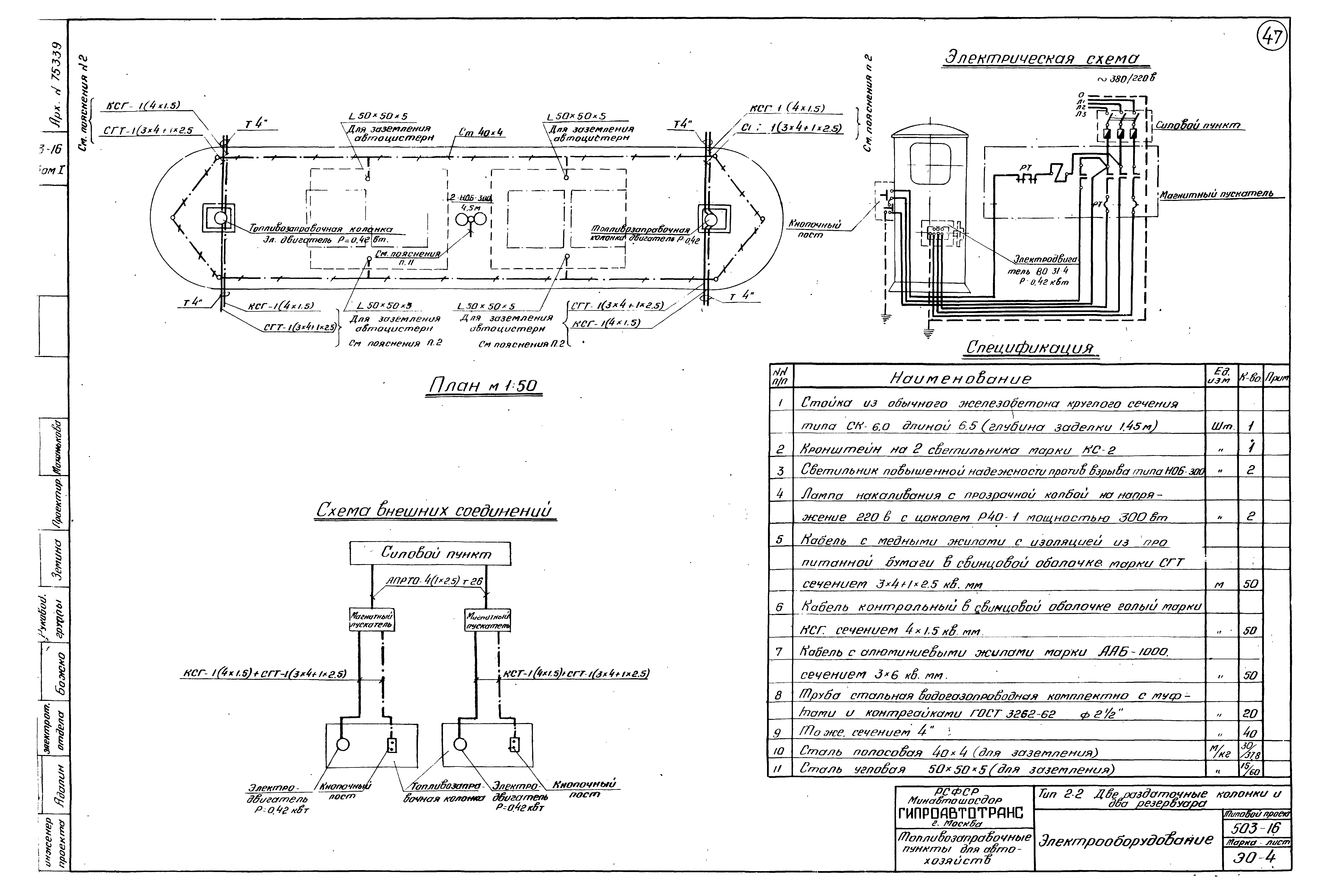
Скачать Типовой проект 503-16 Альбом I. Технологическая, строительная, сантехническая и электротехническая частиДата актуализации: 01.01.2021 Типовой проект 503-16
Альбом I. Технологическая, строительная, сантехническая и электротехническая части| Обозначение: | Типовой проект 503-16 | | Обозначение англ: | 503-16 | | Статус: | не действует | | Название рус.: | Альбом I. Технологическая, строительная, сантехническая и электротехническая части | | Дата добавления в базу: | 01.09.2013 | | Дата актуализации: | 01.01.2021 | | Разработан: | Гипроавтотранс Минавтотранса РСФСР
| | Утверждён: | 07.06.1966 Гипроавтотранс (80)
|
                                               
|