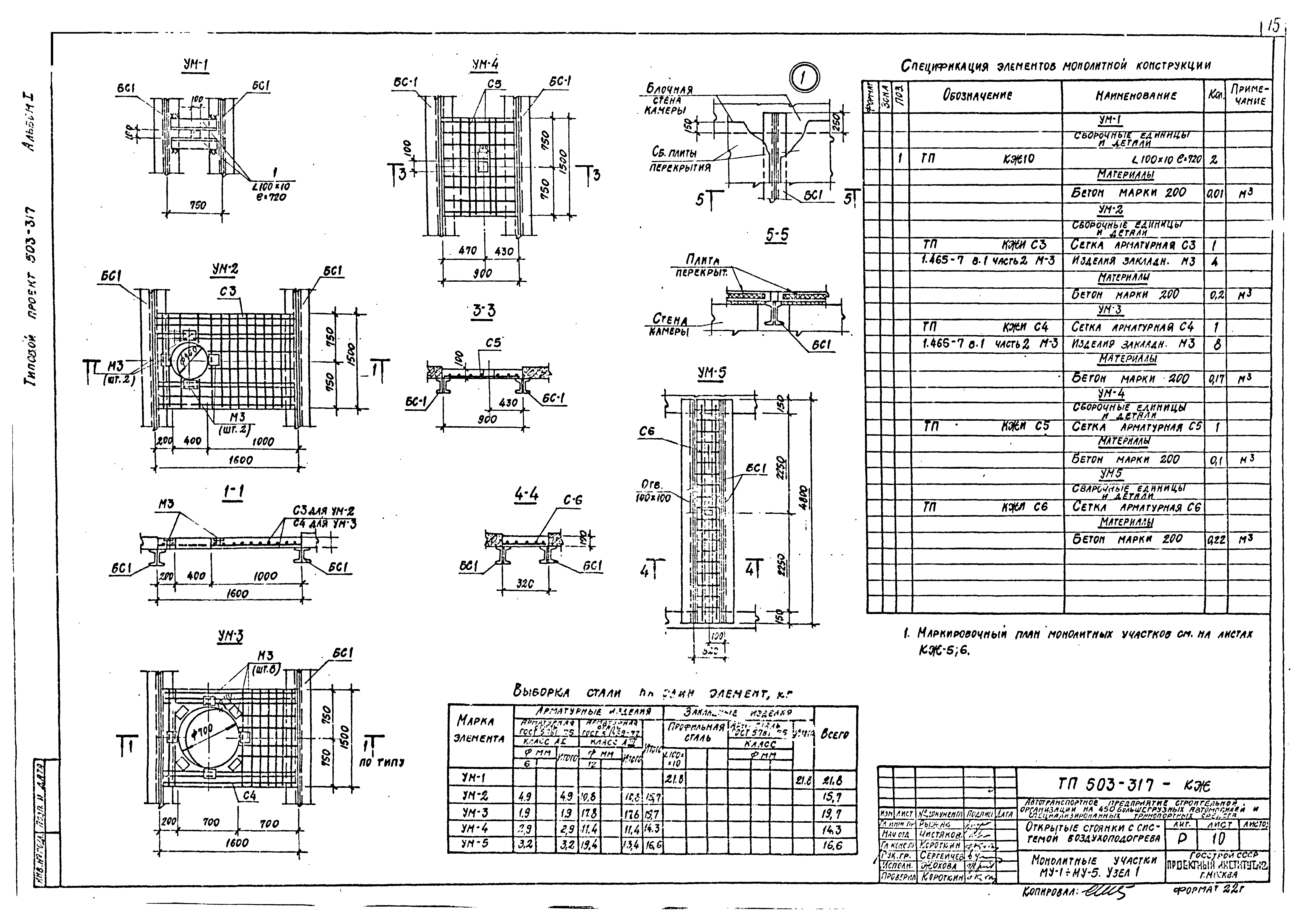
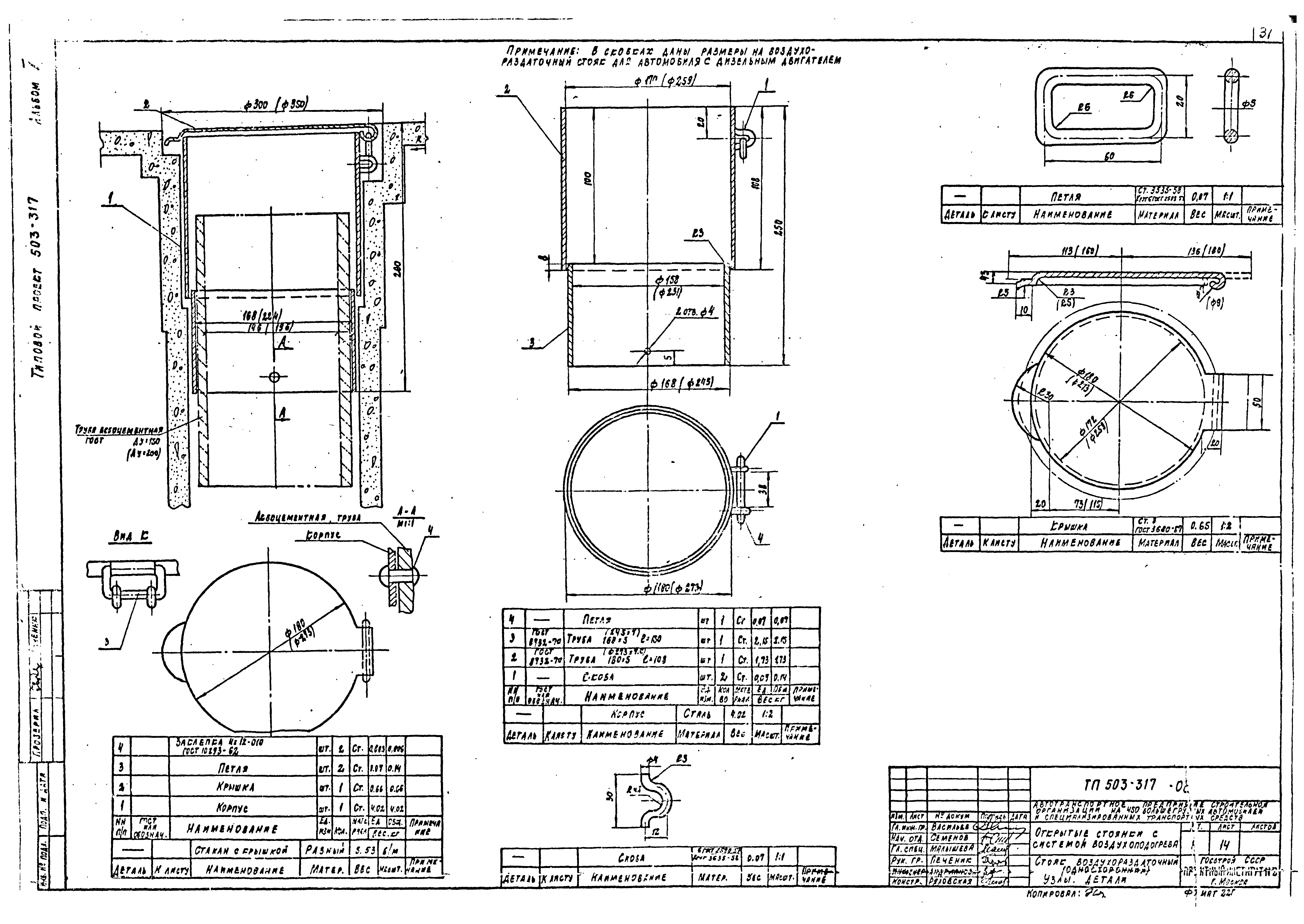
Скачать Типовой проект 503-317 Альбом I. Технологические решения, конструкции железобетонные, санитарно-техническая часть, электротехническая часть, автоматикаДата актуализации: 01.01.2021 Типовой проект 503-317
Альбом I. Технологические решения, конструкции железобетонные, санитарно-техническая часть, электротехническая часть, автоматика| Обозначение: | Типовой проект 503-317 | | Обозначение англ: | 503-317 | | Статус: | не действует | | Название рус.: | Альбом I. Технологические решения, конструкции железобетонные, санитарно-техническая часть, электротехническая часть, автоматика | | Дата добавления в базу: | 01.09.2013 | | Дата актуализации: | 01.01.2021 | | Дата введения: | 25.02.1980 | | Дата окончания срока действия: | 01.03.1983 | | Разработан: | Проектный институт № 2 Госстроя СССР
| | Утверждён: | 25.06.1979 Госстрой СССР (Государственный комитет Совета Министров СССР по делам строительства) (USSR Gosstroy 27)
|
                                                       
|