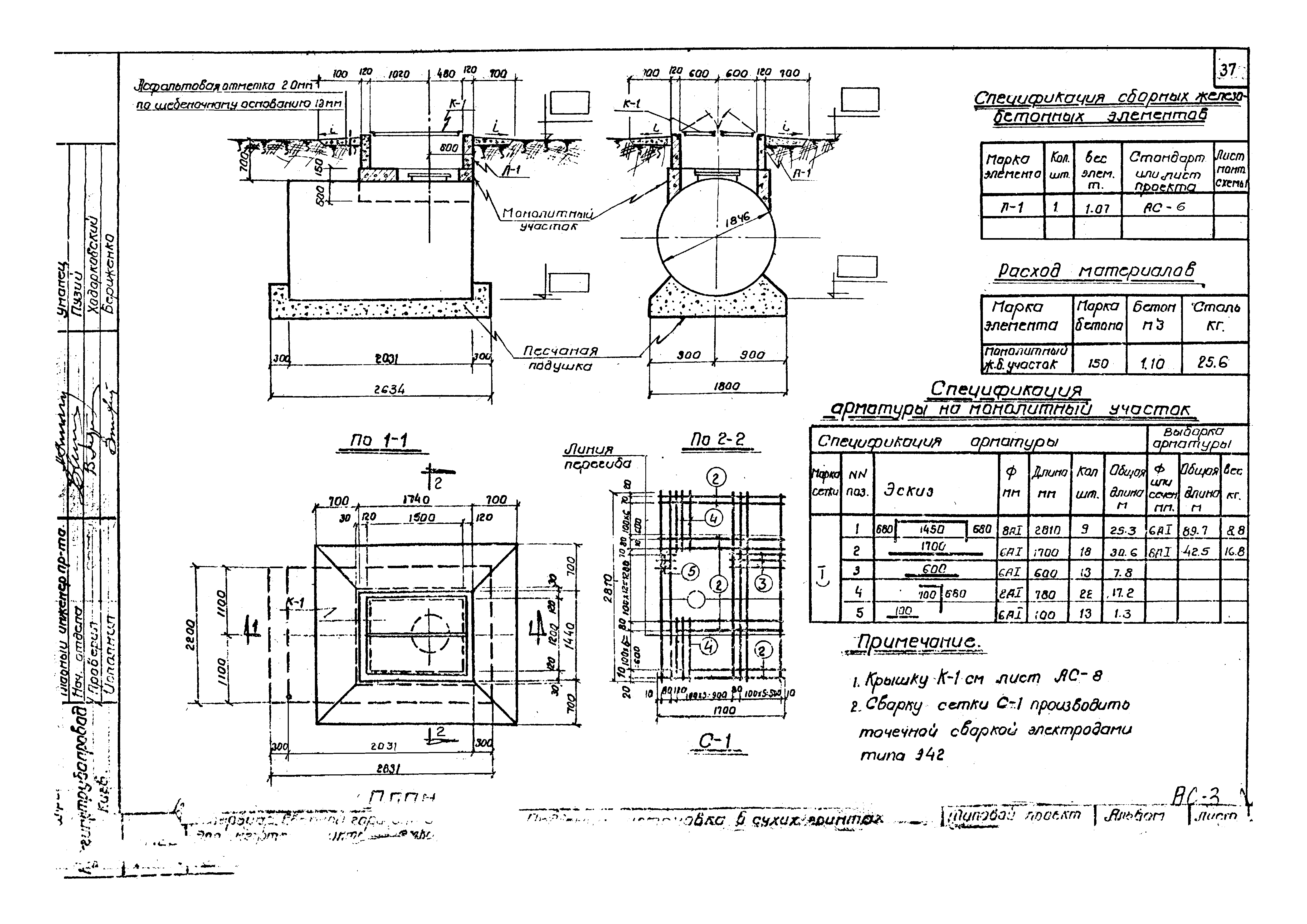
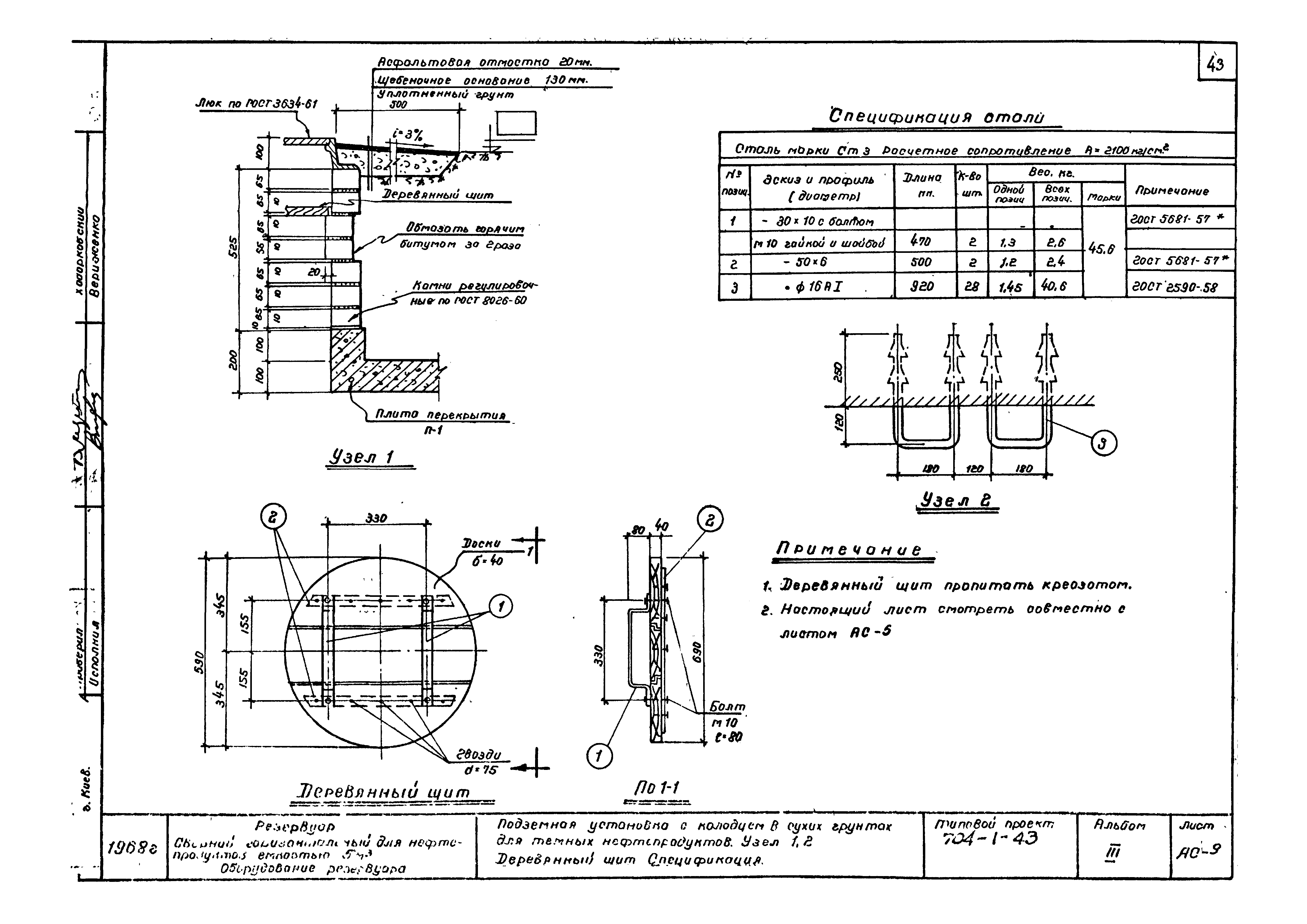
Скачать Типовой проект 704-1-43 Альбом III. Оборудование резервуаровДата актуализации: 01.01.2021
|
| Обозначение: | Типовой проект 704-1-43 |
| Обозначение англ: | 704-1-43 |
| Статус: | не действует |
| Название рус.: | Альбом III. Оборудование резервуаров |
| Дата добавления в базу: | 01.09.2013 |
| Дата актуализации: | 01.01.2021 |
| Разработан: | ЦНИИпроектстальконструкция |
| Утверждён: | 18.02.1969 Союзметаллостройниипроект (Soyuzmetallostroyniiproject 1) |

























































