Скачать Типовой проект 901-7-6.84 Альбом IV. Электротехническая частьДата актуализации: 01.01.2021
|
| Обозначение: | Типовой проект 901-7-6.84 |
| Обозначение англ: | 901-7-6.84 |
| Статус: | не действует |
| Название рус.: | Альбом IV. Электротехническая часть |
| Дата добавления в базу: | 01.09.2013 |
| Дата актуализации: | 01.01.2021 |
| Дата введения: | 23.09.1983 |
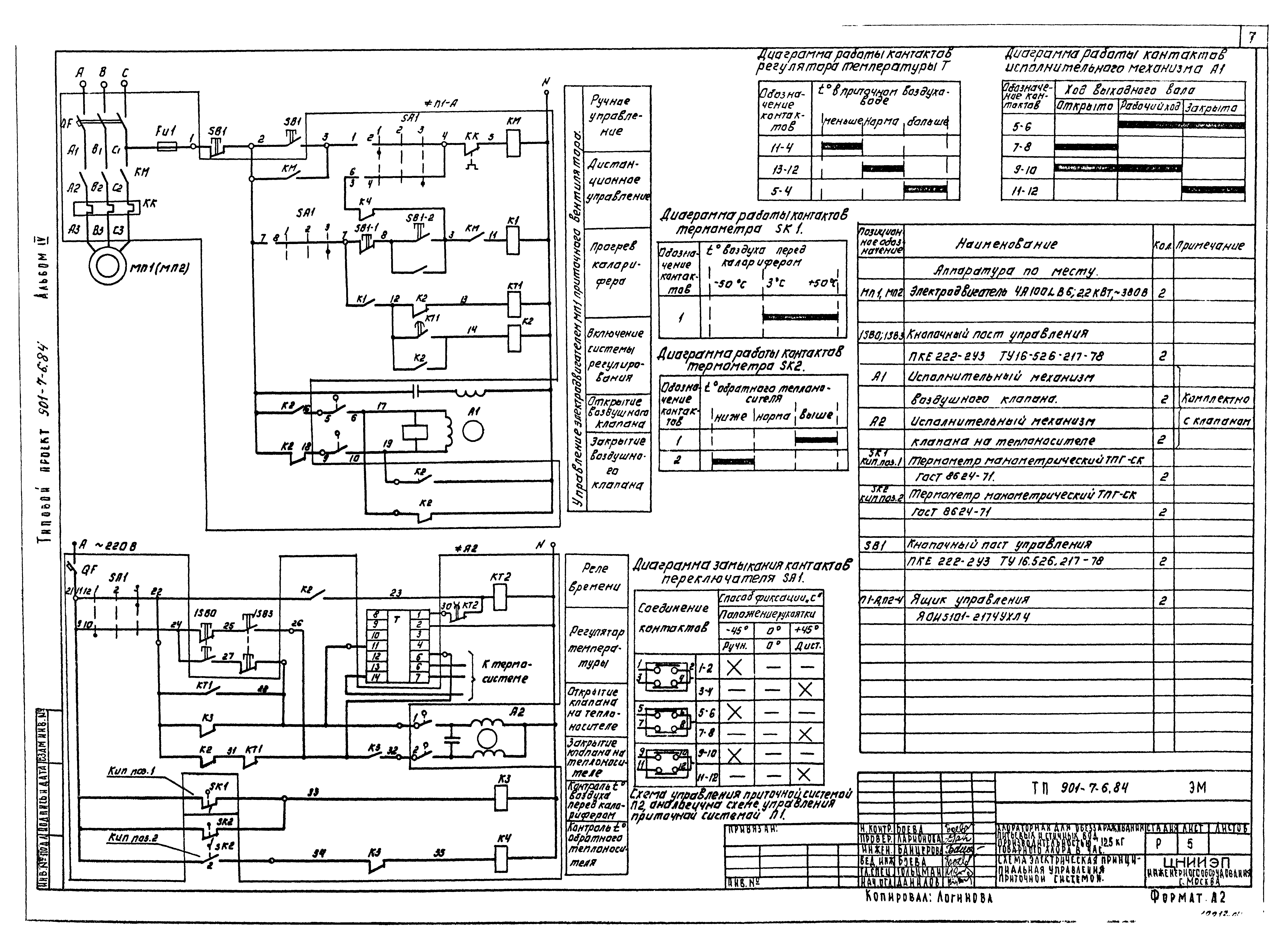
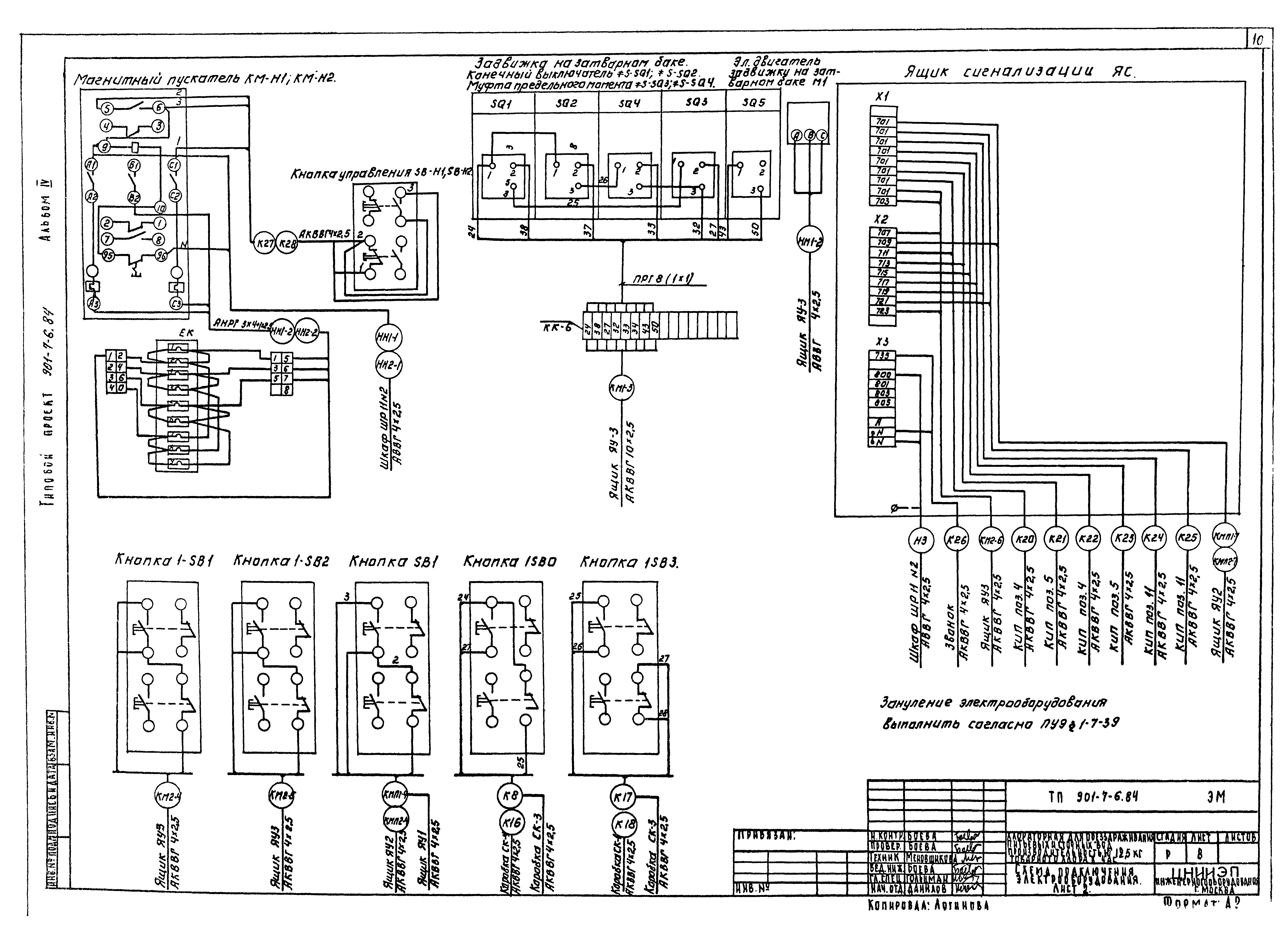
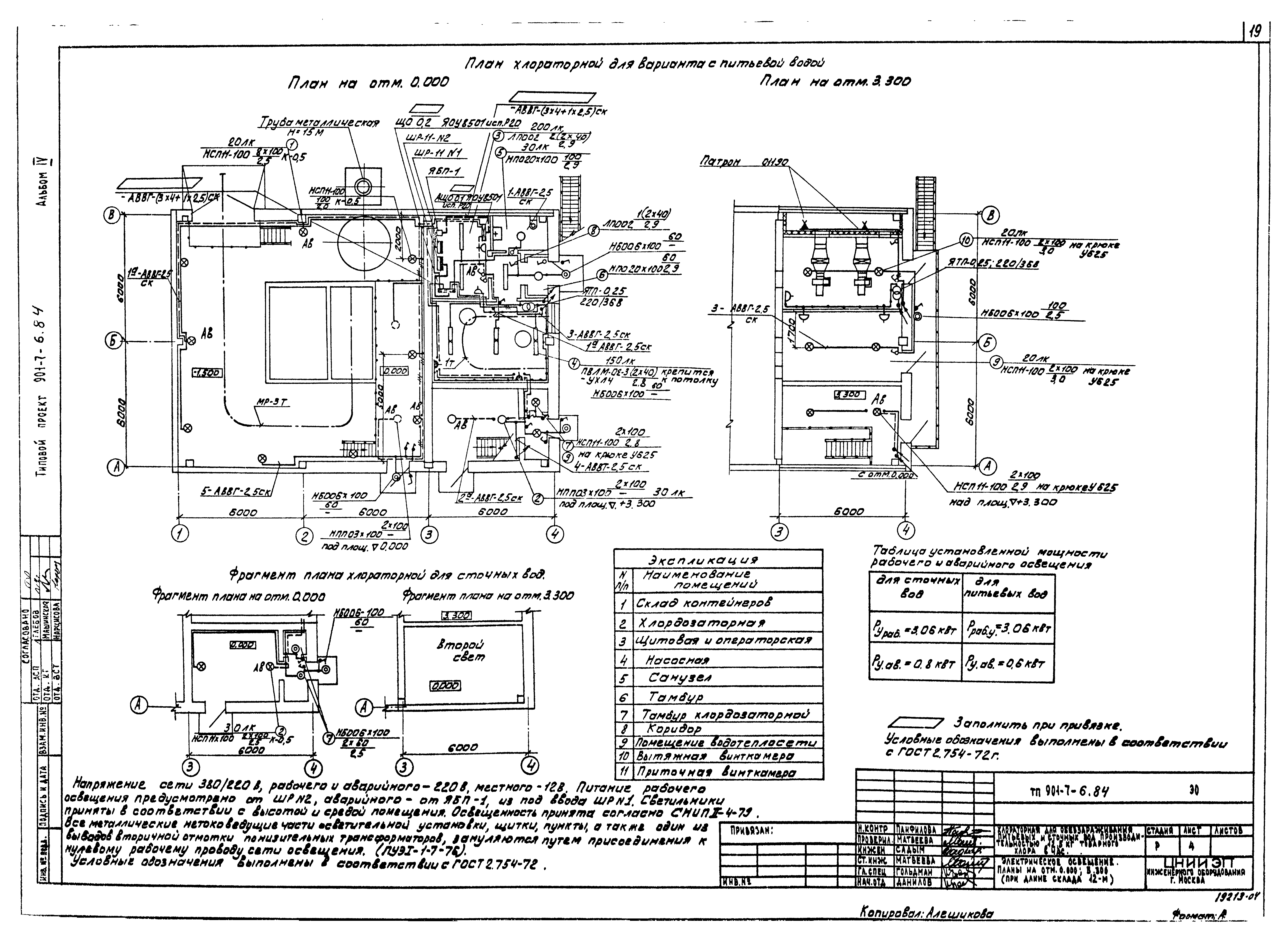
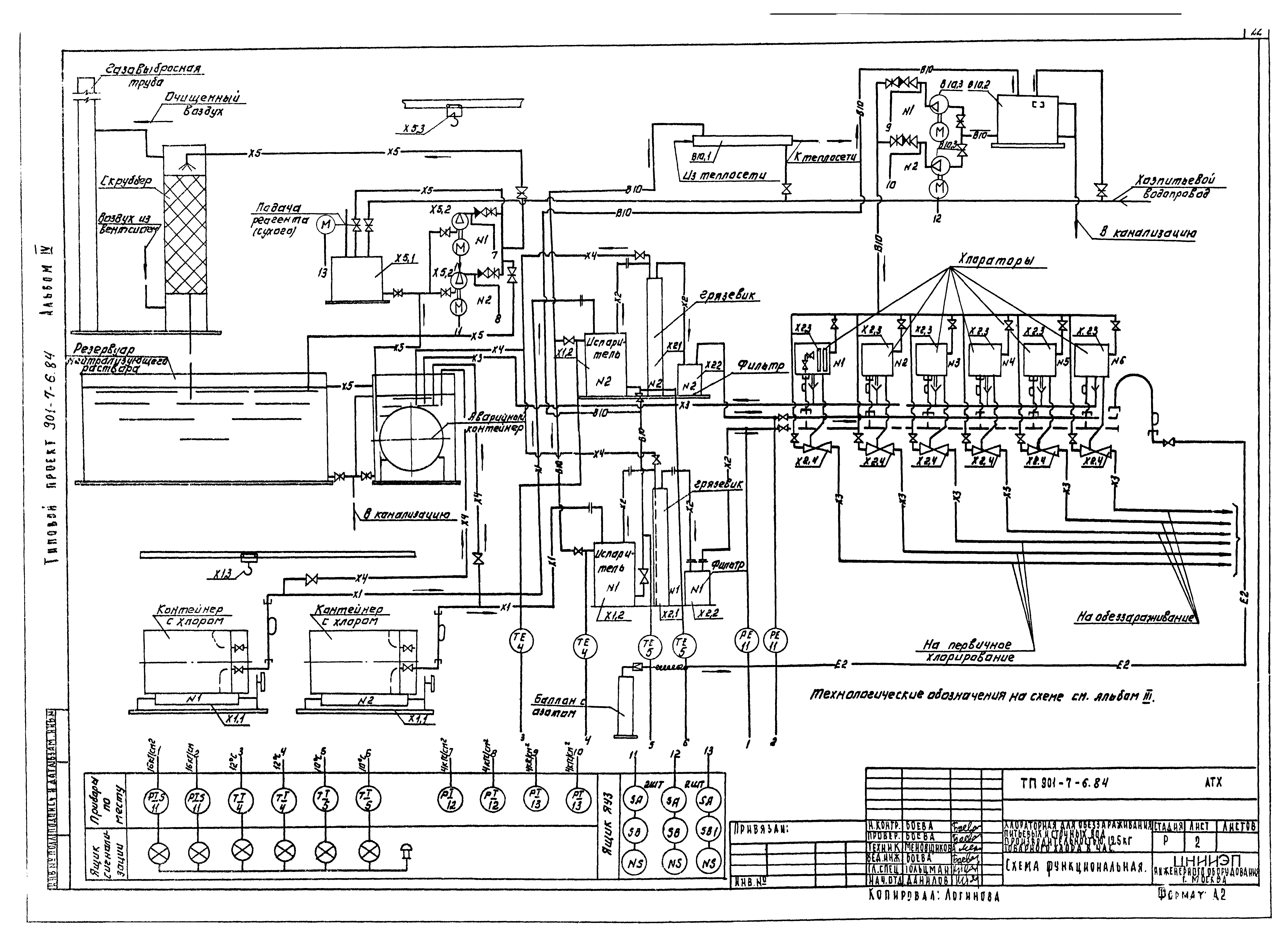
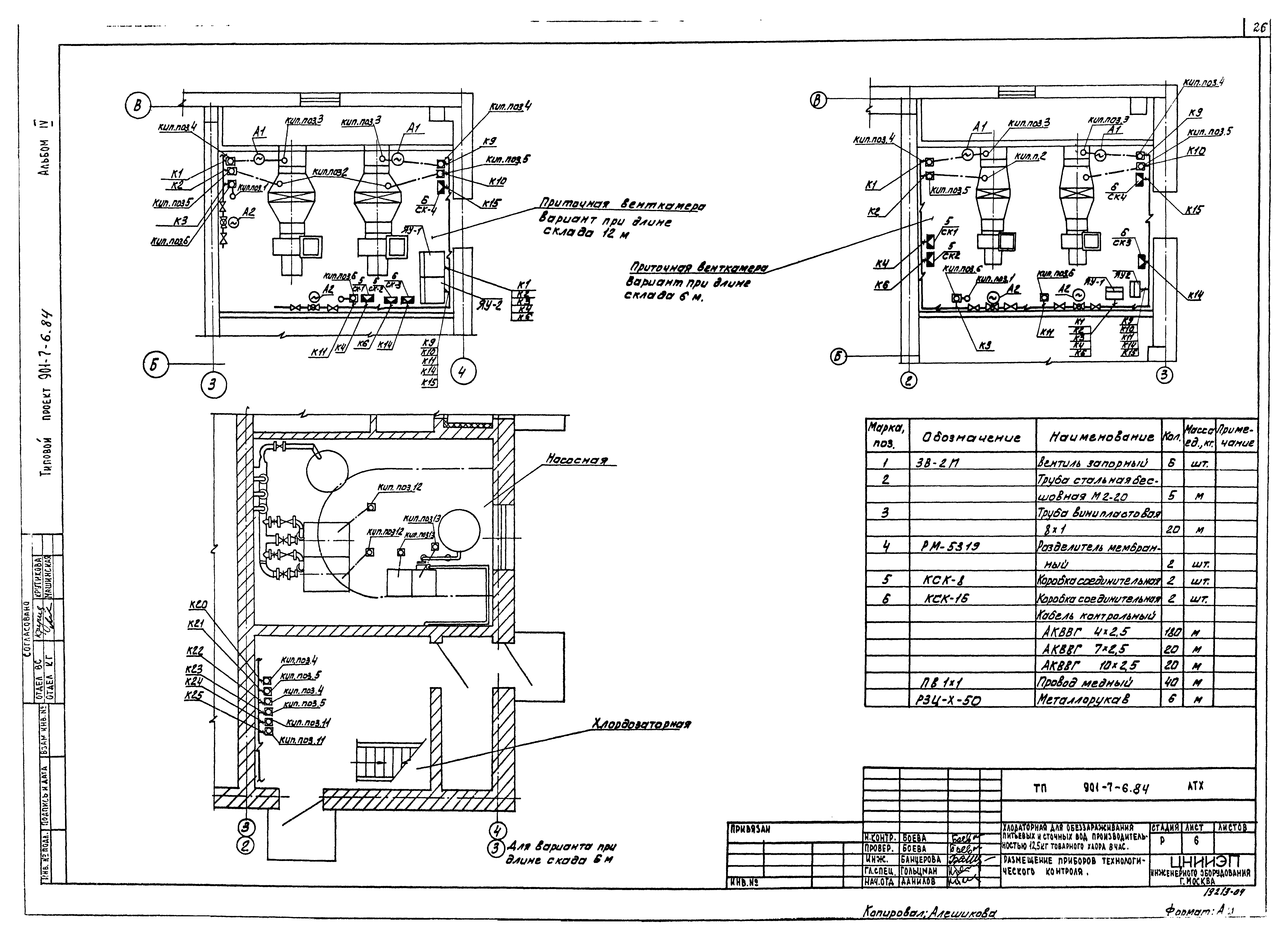
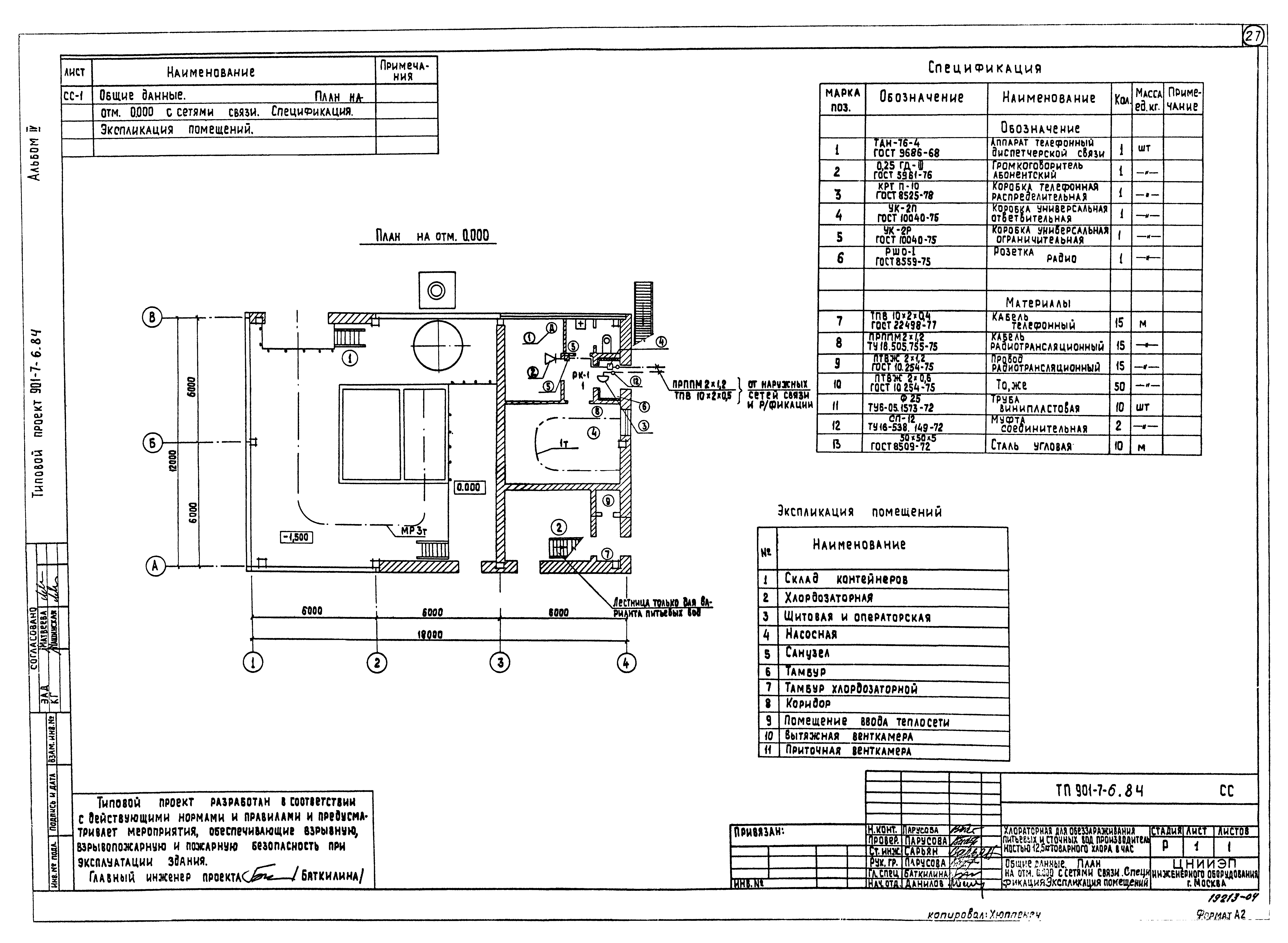
| Оглавление: | ЭМ-1 Общие данные ЭМ-2 Схема электрическая принципиальная управления задвижкой на затворном баке ЭМ-3 Схема электрическая принципиальная питания электрооборудования ЭМ-4 Схемы электрические принципиальные управления насосами и вентиляторами ЭМ-5 Схема электрическая принципиальная управления приточной системой ЭМ-6 Схема электрическая принципиальная аварийной сигнализации ЭМ-7 Схема подключения электрооборудования. Лист 1 ЭМ-8 Схема подключения электрооборудования. Лист 2 ЭМ-9 Размещение электрооборудования и прокладка кабеля. План на отм. 0.000 ЭМ-10 Размещение электрооборудования и прокладка кабеля. План на отм. 0.000 ЭМ-11 Размещение электрооборудования и прокладка кабеля. План на отм. 0.000. Спецификация ЭМ-12 Кабельный журнал. Лист 1 ЭМ-13 Кабельный журнал. Лист 2 ЭО-1 Общие данные ЭО-2 Электрическое освещение. План на отм. 0.000;3.300 ЭО-3 Электрическое освещение. План на отм. 0.000;3.300 ЭО-4 Молниезащита. План ЭО-5 Молниезащита. План АТХ-1 Общие данные АТХ-2 Схема функциональная АТХ-3 Схема функциональная АТХ-4 Схема подключения приборов технологического контроля. Лист 1 АТХ-5 Схема подключения приборов технологического контроля. Лист 2 АТХ-6 Размещение приборов технологического контроля СС-1 Общие данные. План на отм. 0.000 с сетями связи. Спецификация. Экспликация помещений |
| Разработан: | ЦНИИЭП |
| Утверждён: | 27.12.1979 Госгражданстрой (Gosgrazhdanstroy 279) |
| Чем заменён: |




























