Скачать Типовой проект 901-7-6.84 Альбом V. Архитектурно-строительная частьДата актуализации: 01.01.2021
|
| Обозначение: | Типовой проект 901-7-6.84 |
| Обозначение англ: | 901-7-6.84 |
| Статус: | не действует |
| Название рус.: | Альбом V. Архитектурно-строительная часть |
| Дата добавления в базу: | 01.09.2013 |
| Дата актуализации: | 01.01.2021 |
| Дата введения: | 23.09.1983 |
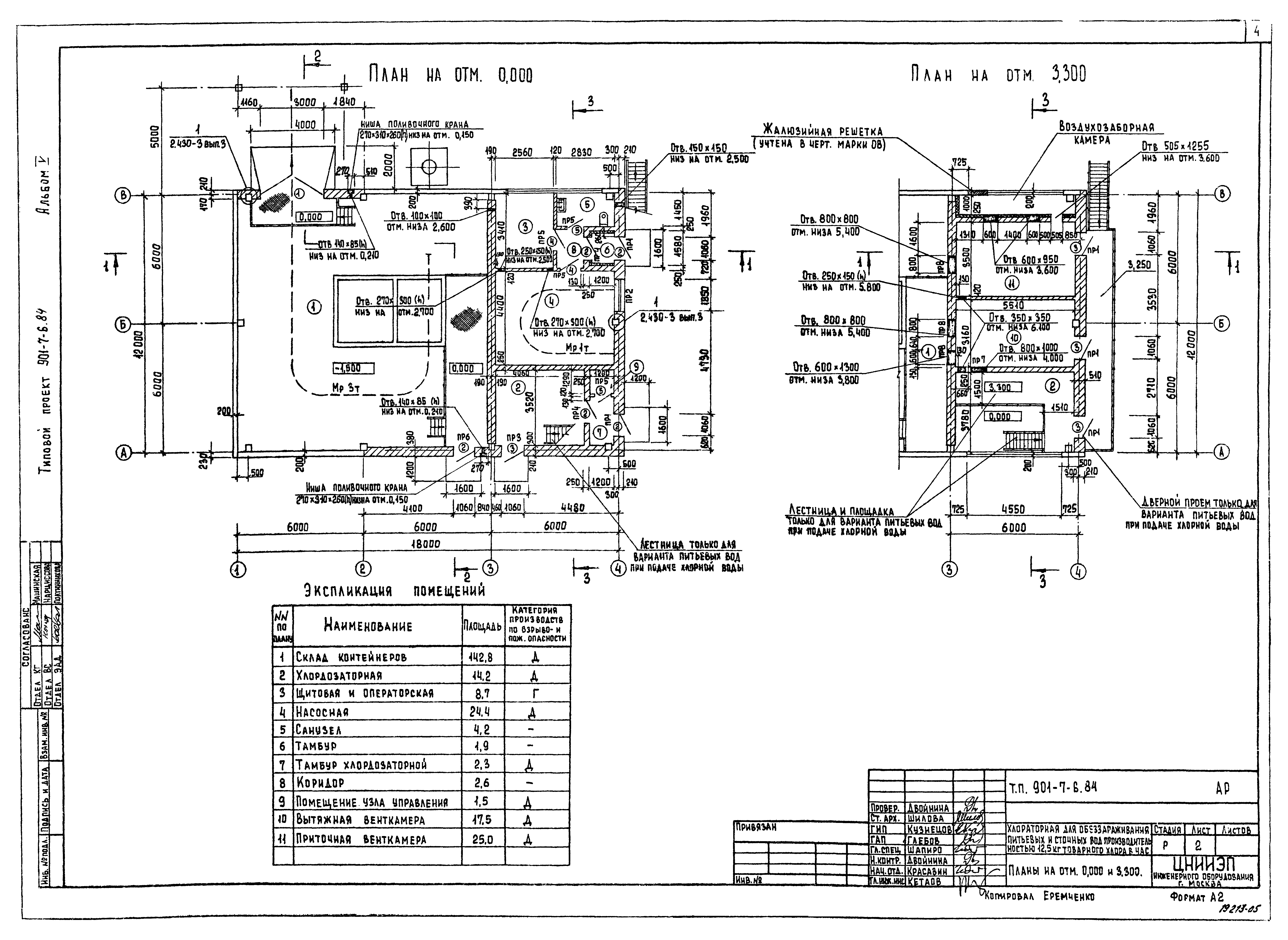
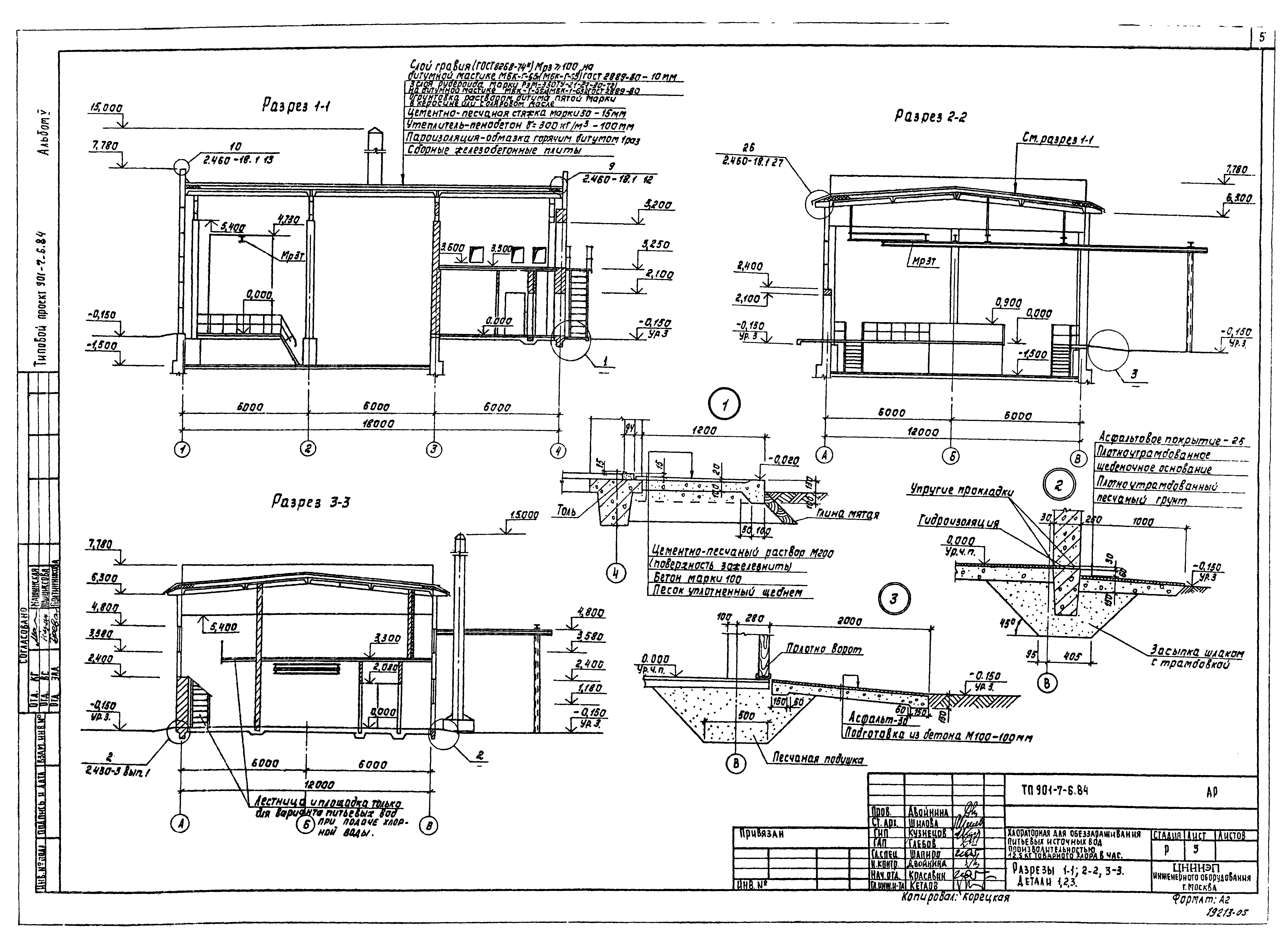
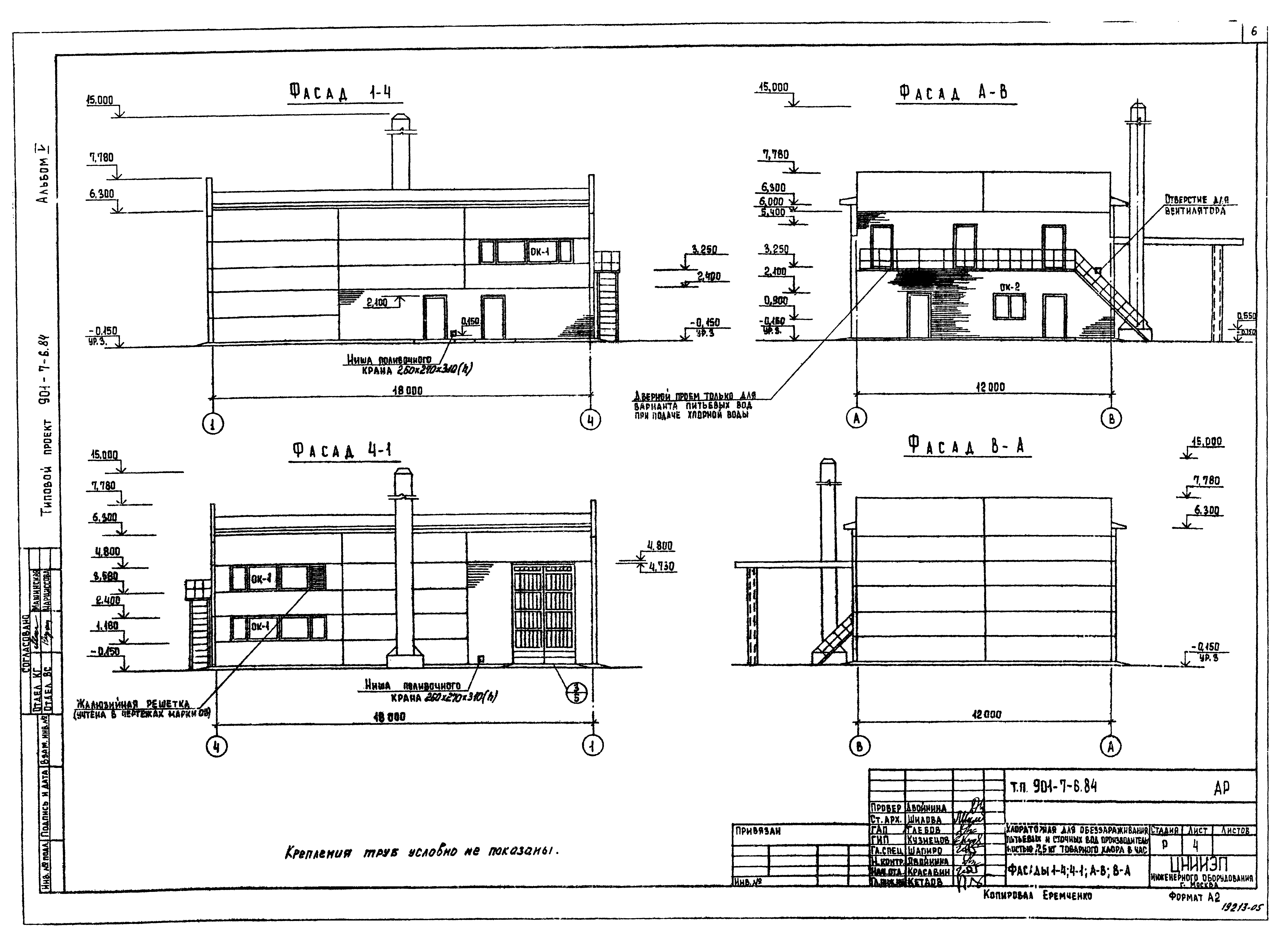
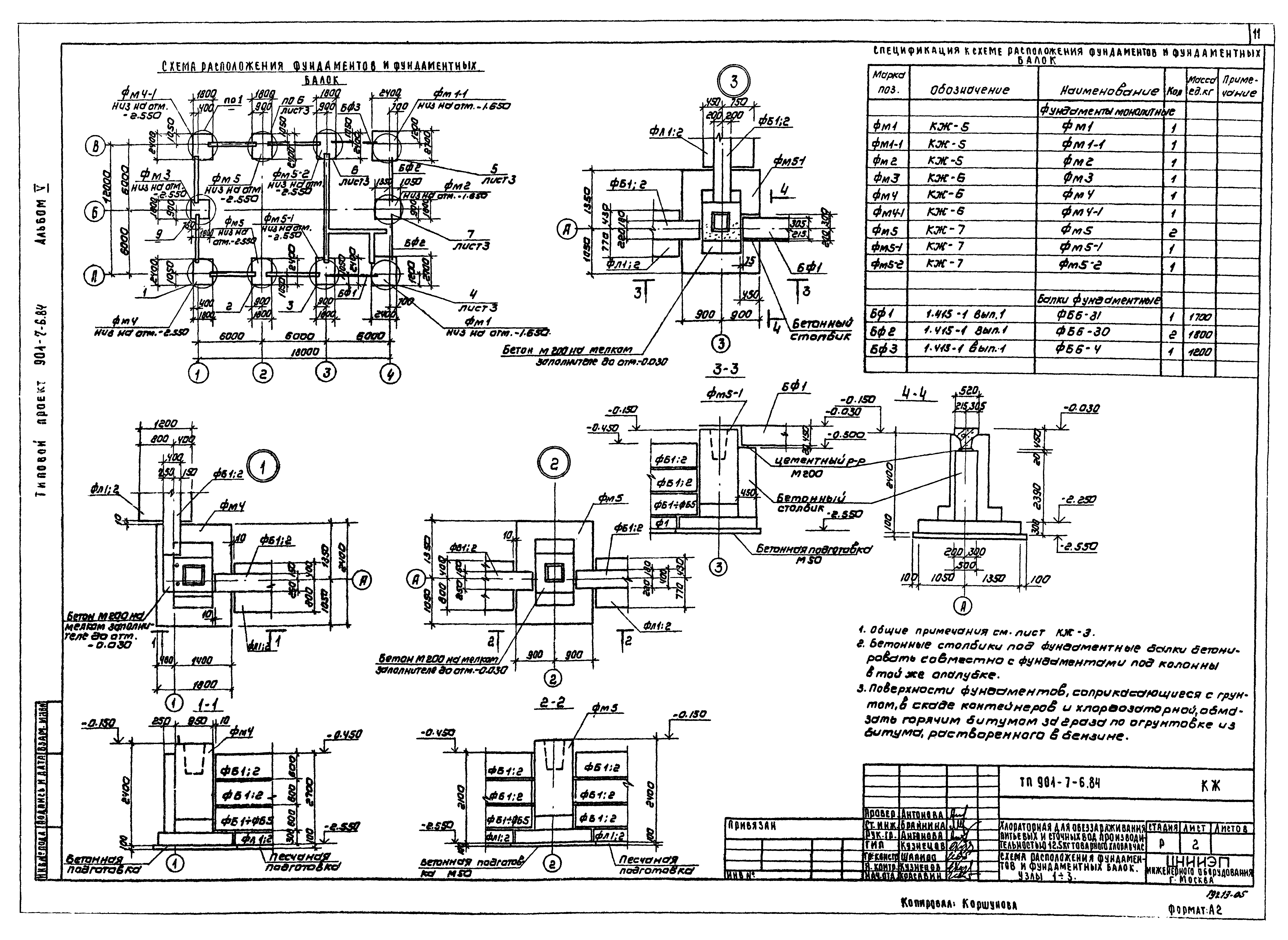
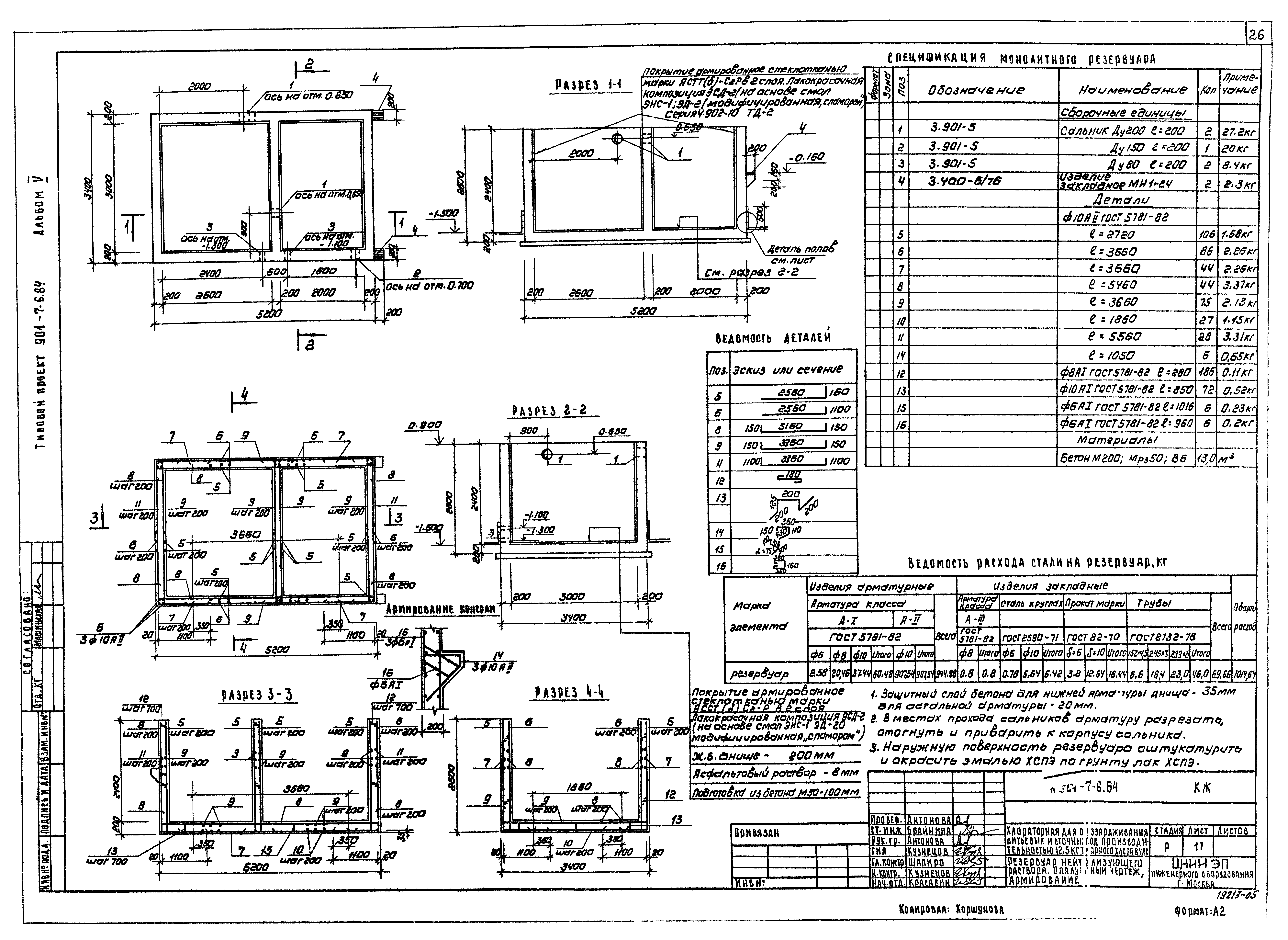
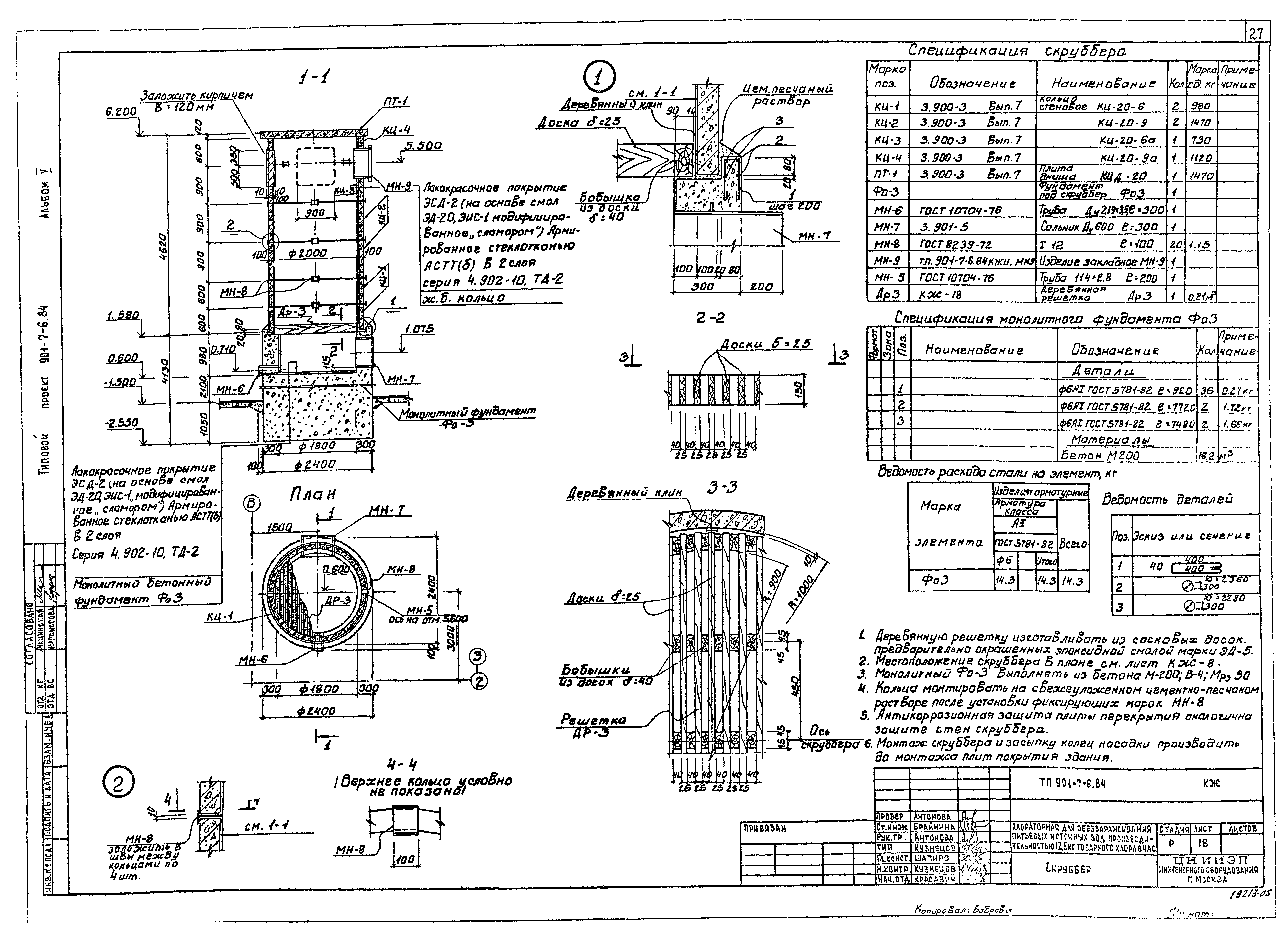
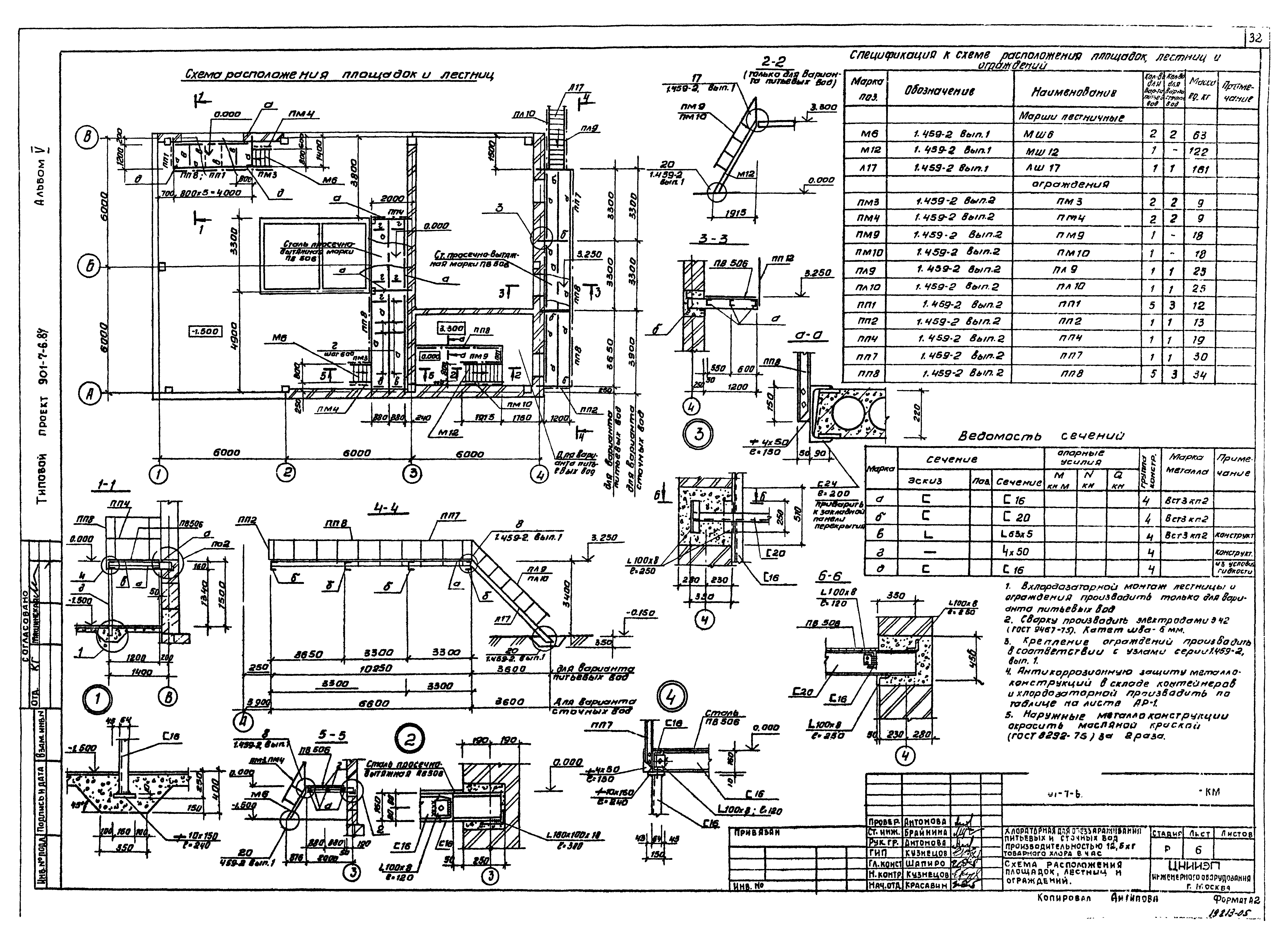
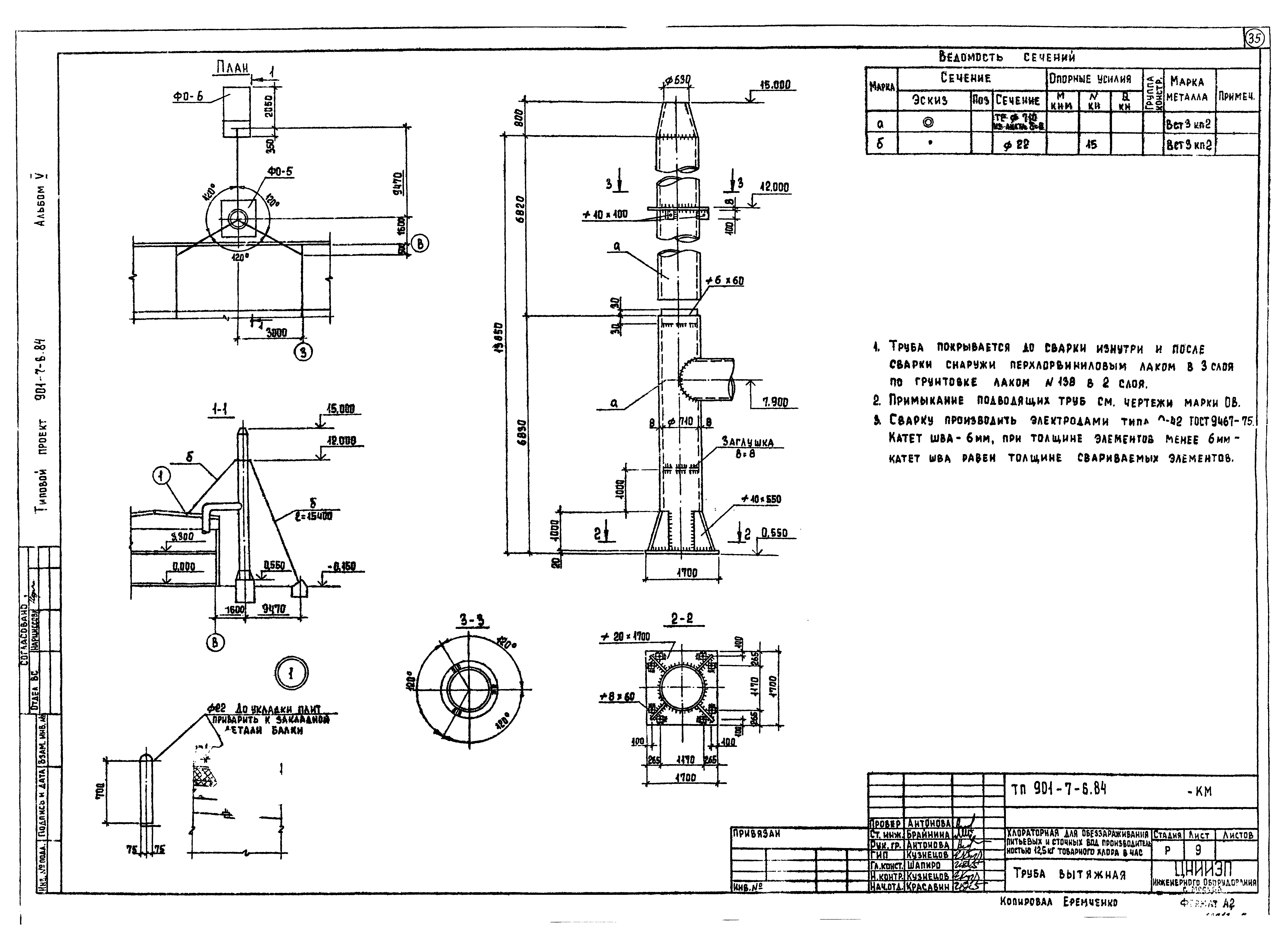
| Оглавление: | Содержание альбома Архитектурные решения АР-1 Общие данные АР-2 Планы на отм. 0.000 и 3.300 АР-3 Разрезы 1-1,2-2,3-3. Детали 1,2,3 АР-4 Фасады 1-4,4-1,А-В,В-А АР-5 Ведомость проемов ворот и дверей, спецификация элементов заполнения проемов. Ведомость и спецификация перемычек АР-6 Планы полов и кровли. Ведомость отделки помещений АР-7 Ворота распашные 3.00х4.73 Конструкции железобетонные КЖ-1 Общие данные КЖ-2 Схема расположения фундаментов и фундаментных балок. Узлы 1-3 КЖ-3 Схема расположения фундаментов. Узлы 4-7 КЖ-4 Схема расположения ленточных фундаментов КЖ-5 Фундаменты ФМ1,ФМ1-1,ФМ2 КЖ-6 Фундаменты ФМ3,ФМ4,ФМ4-1 КЖ-7 Фундаменты ФМ5,ФМ5-1 КЖ-8 Схема расположения фундаментов под оборудование, перекрытия каналов и приямков КЖ-9 Сечения 1-1-13-13. Фундаменты под оборудование КЖ-10 Фундаменты под оборудование. Спецификации КЖ-11 Схема расположения колонн и балок покрытия КЖ-12 Схема расположения стеновых панелей. Фрагменты 1-2 КЖ-13 Схемы расположения стеновых панелей. Фрагменты 10-12 КЖ-14 Схемы расположения плит покрытия и перекрытия КЖ-15 Монолитные участки. УМ1-УМ7 КЖ-16 Монолитные участки. УМ1-УМ7. Спецификация КЖ-17 Резервуар нейтрализирующего раствора. Опалубочный чертеж. Армирование КЖ-18 Скруббер КЖ-19 Приточная венткамера на отм. 3.300 Конструкции металлические КМ-1 Общие данные. Техническая спецификация металла (начало) КМ-2 Общие данные. Техническая спецификация металла (продолжение) КМ-3 Общие данные. Техническая спецификация металла (окончание) КМ-4 Общие данные. Техническая спецификация металла на типовые конструкции КМ-5 Общие данные. Ведомость металлоконструкций по видам профилей КМ-6 Схема расположения переходных площадок, лестниц и ограждений. Спецификация КМ-7 Схема расположения подвесных путей КМ-8 Ворота КМ-9 Труба вытяжная |
| Разработан: | ЦНИИЭП |
| Утверждён: | 27.12.1979 Госгражданстрой (Gosgrazhdanstroy 279) |
| Чем заменён: |




































