Скачать Типовой проект 902-2-371.83 Альбом II. Технологическая, архитектурно-строительная, санитарно-техническая, электротехническая части, задание заводу-изготовителю, нестандартизированное оборудованиеДата актуализации: 01.01.2021
|
| Обозначение: | Типовой проект 902-2-371.83 |
| Обозначение англ: | 902-2-371.83 |
| Статус: | заменен |
| Название рус.: | Альбом II. Технологическая, архитектурно-строительная, санитарно-техническая, электротехническая части, задание заводу-изготовителю, нестандартизированное оборудование |
| Дата добавления в базу: | 01.09.2013 |
| Дата актуализации: | 01.01.2021 |
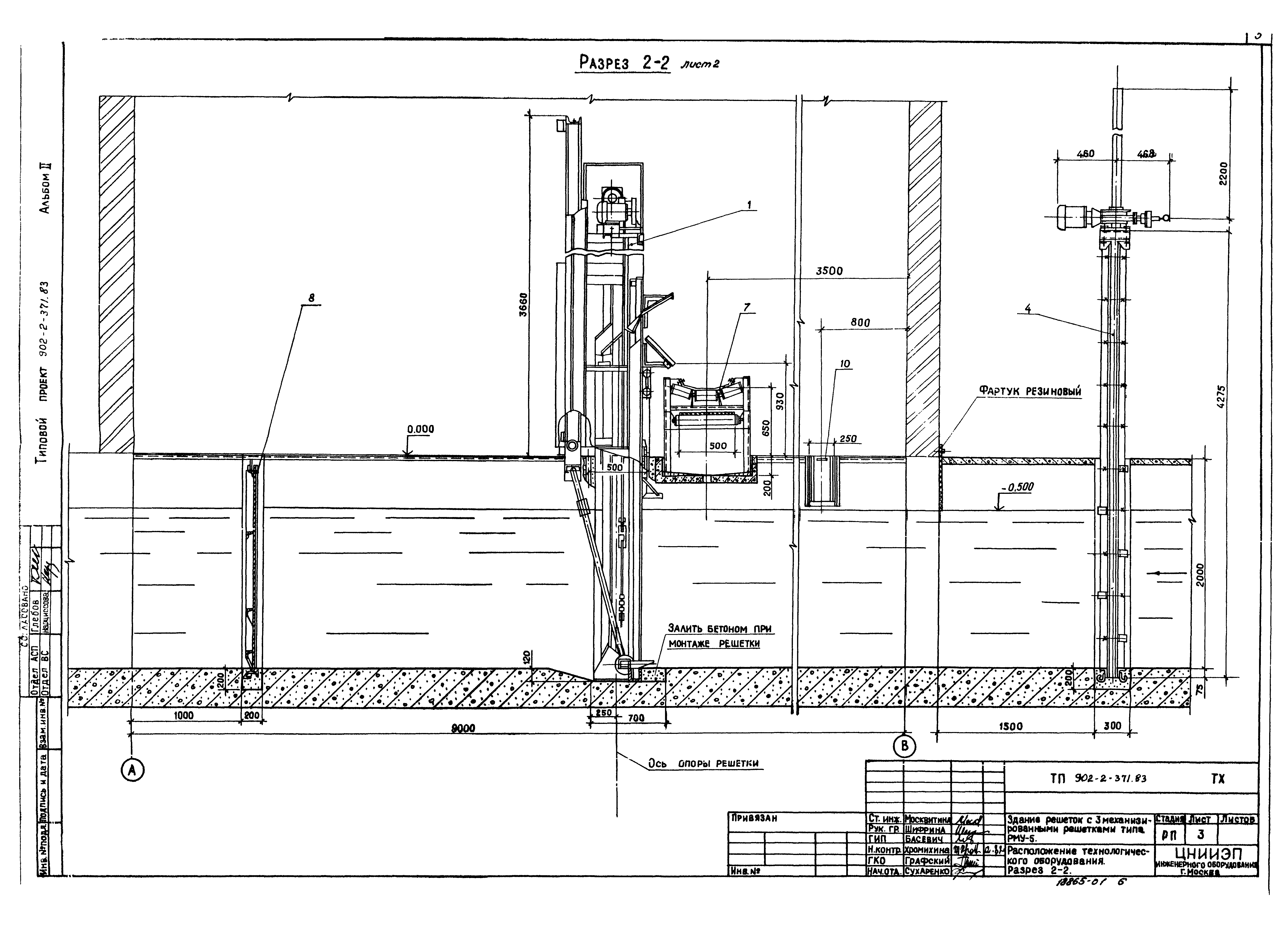
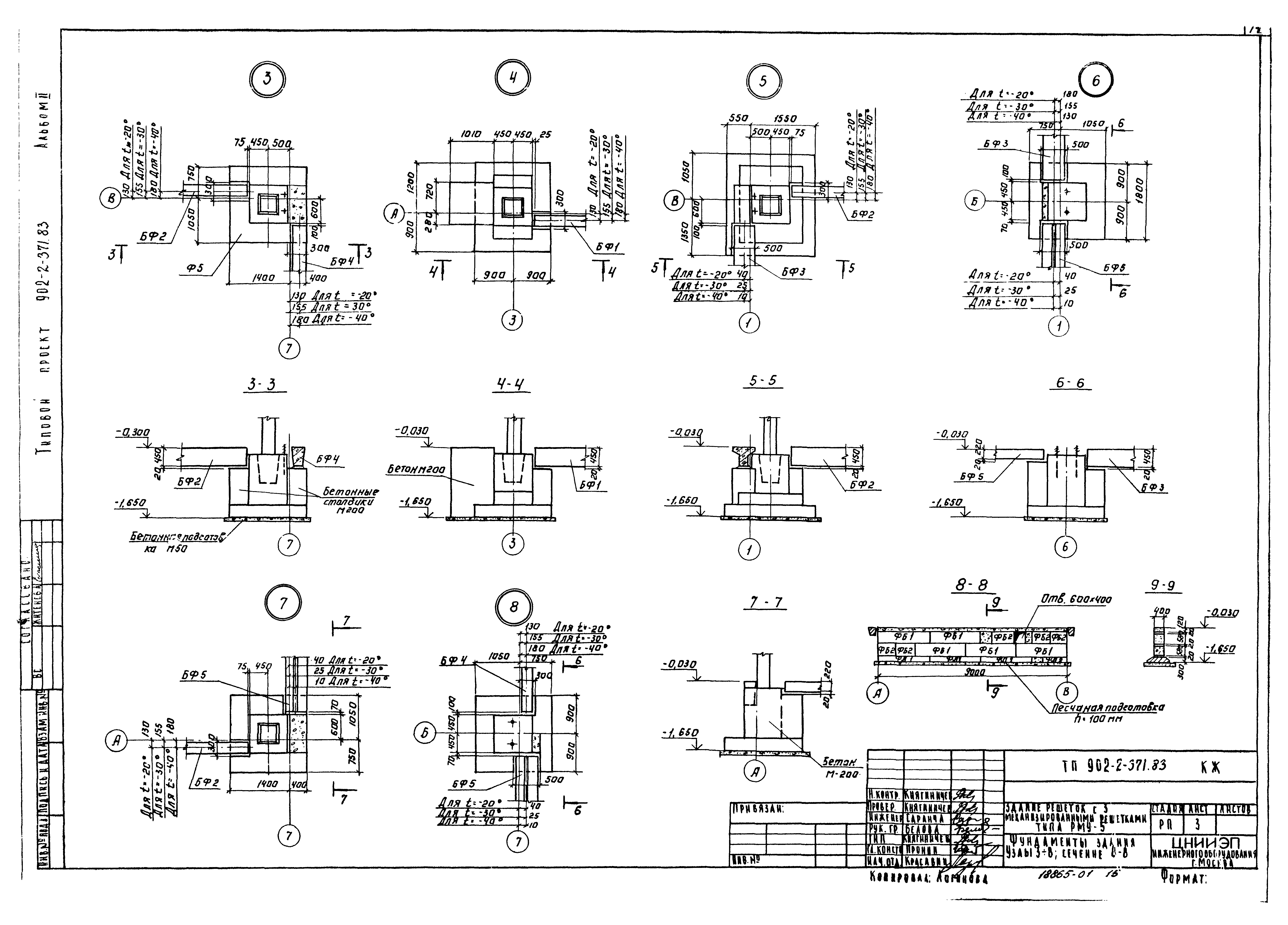
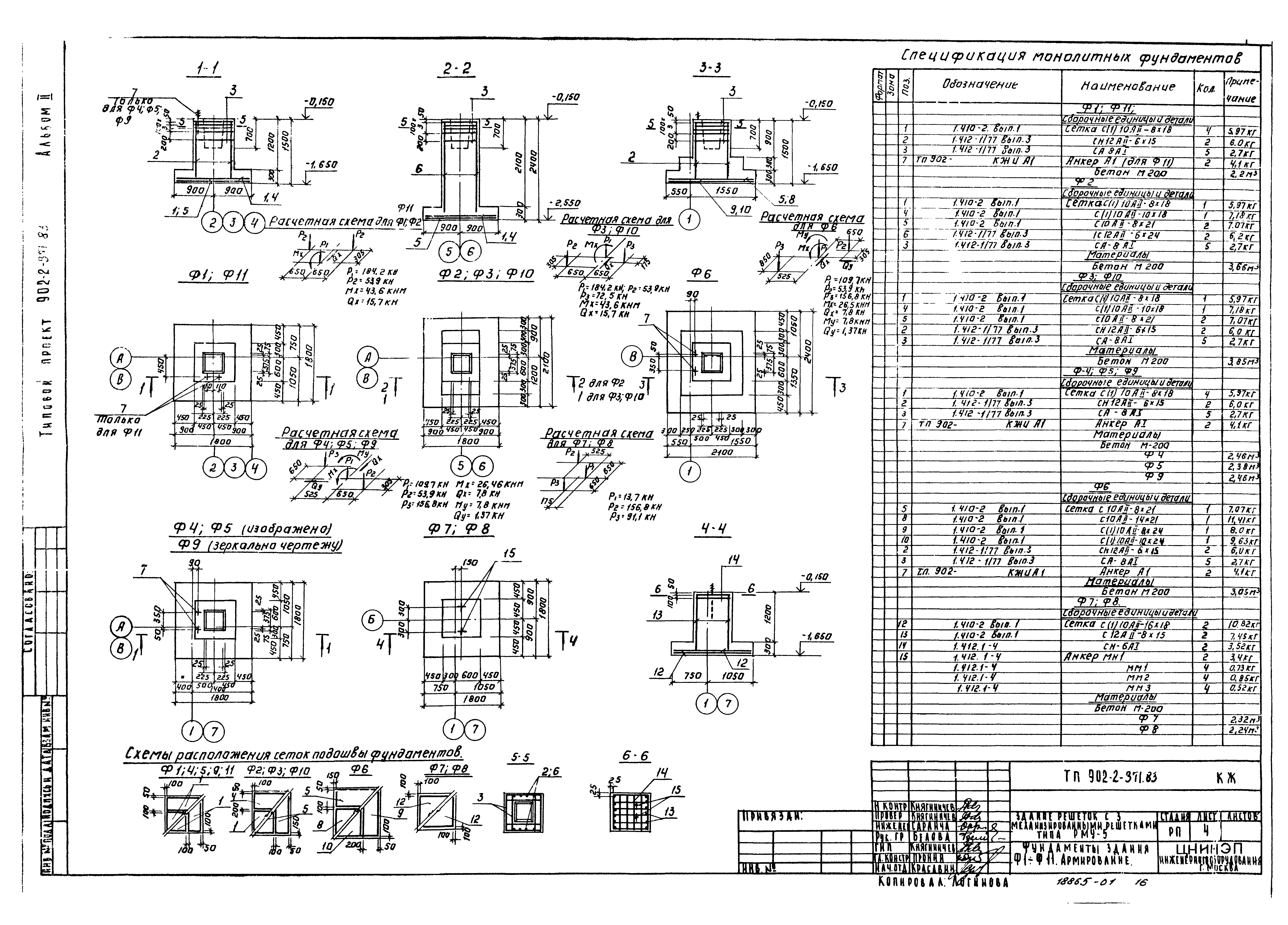
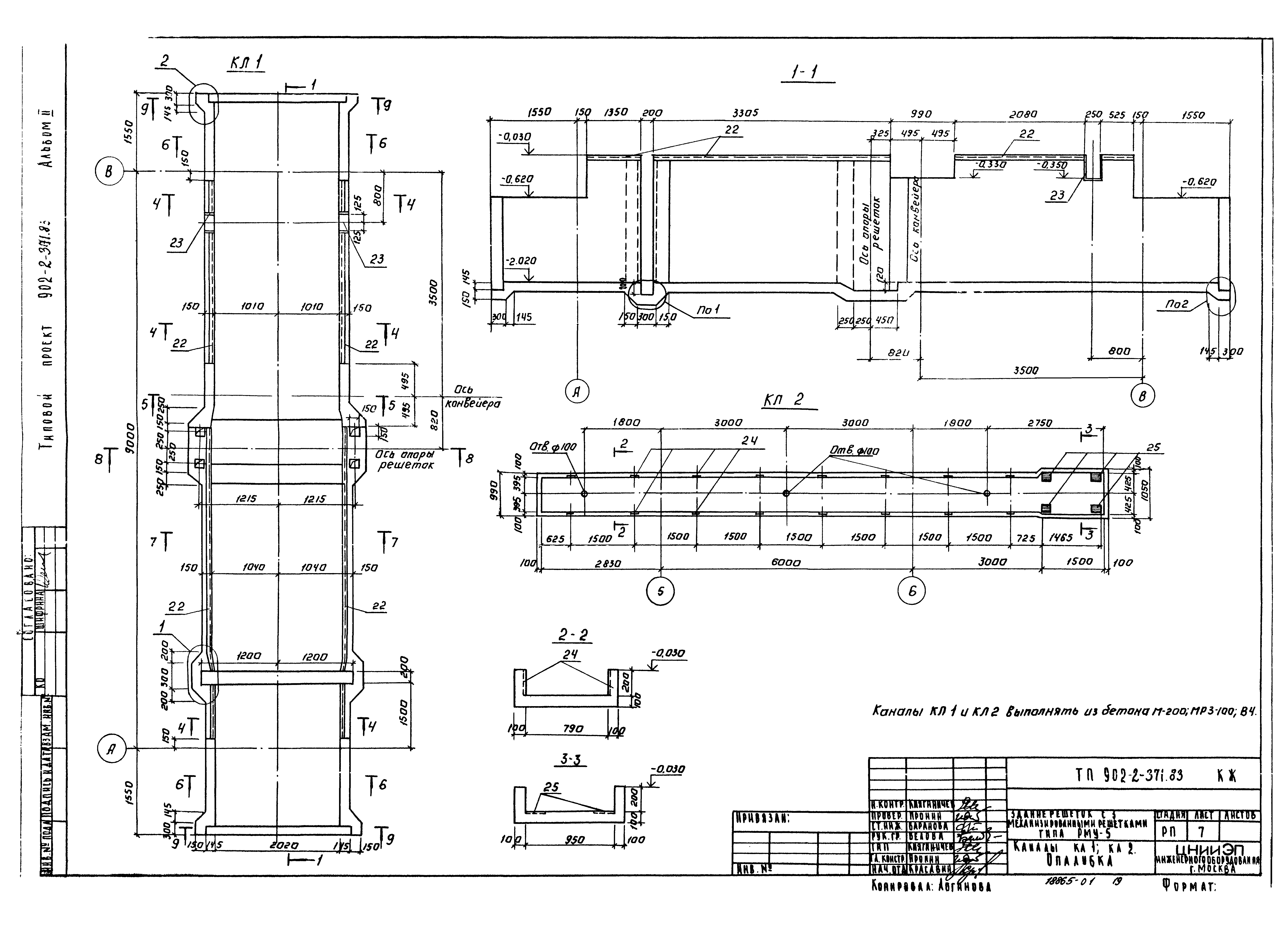
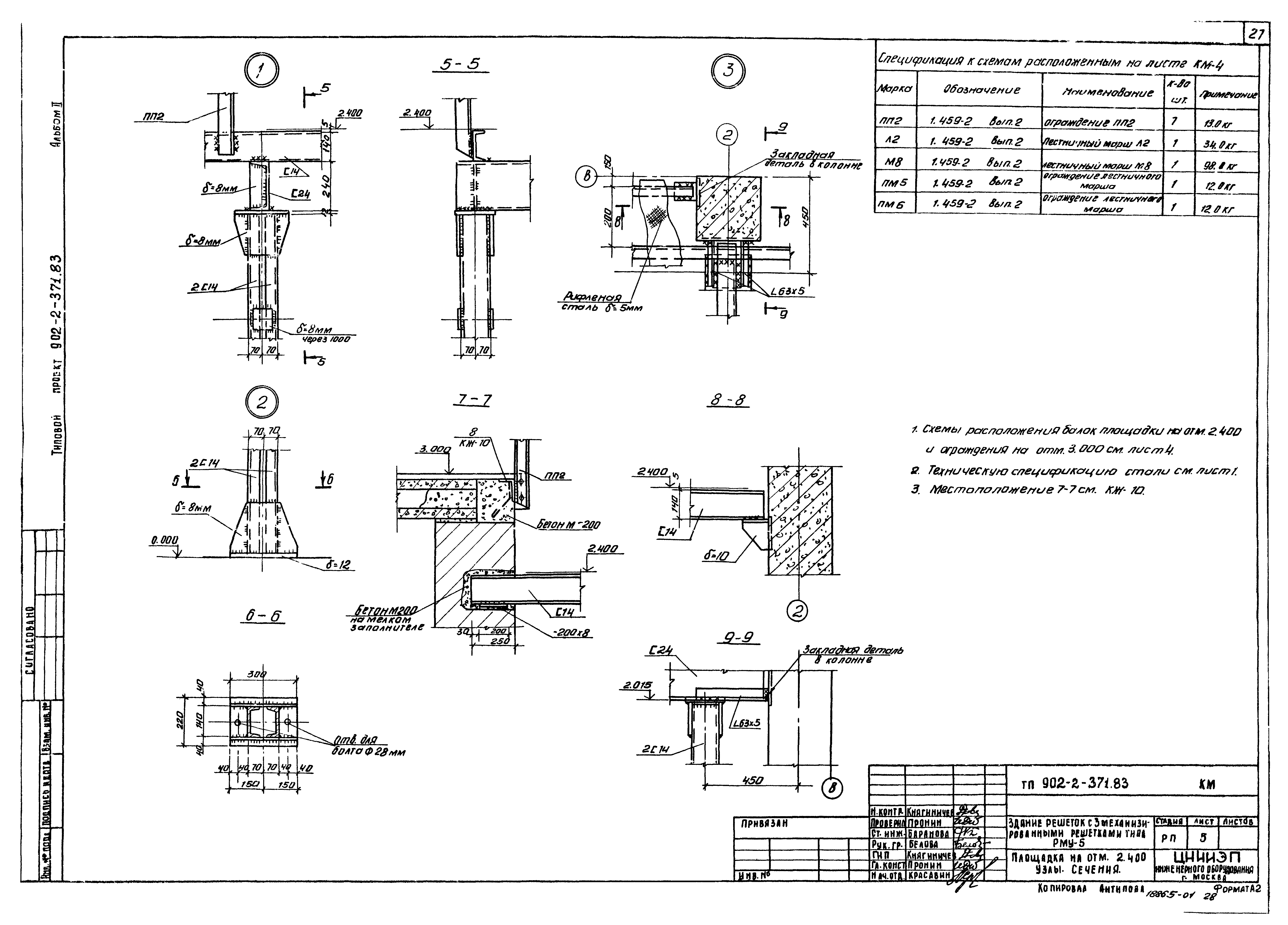
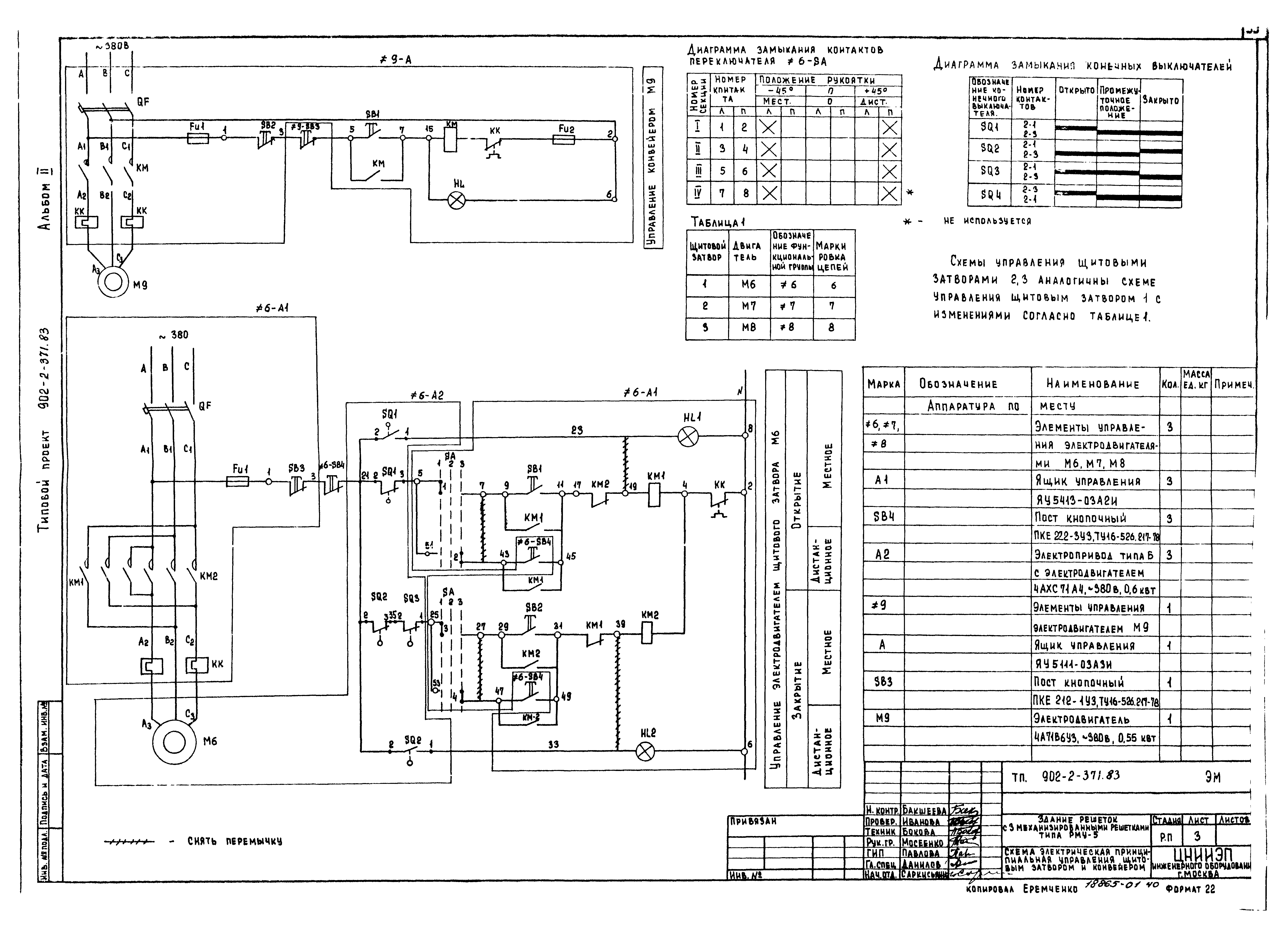
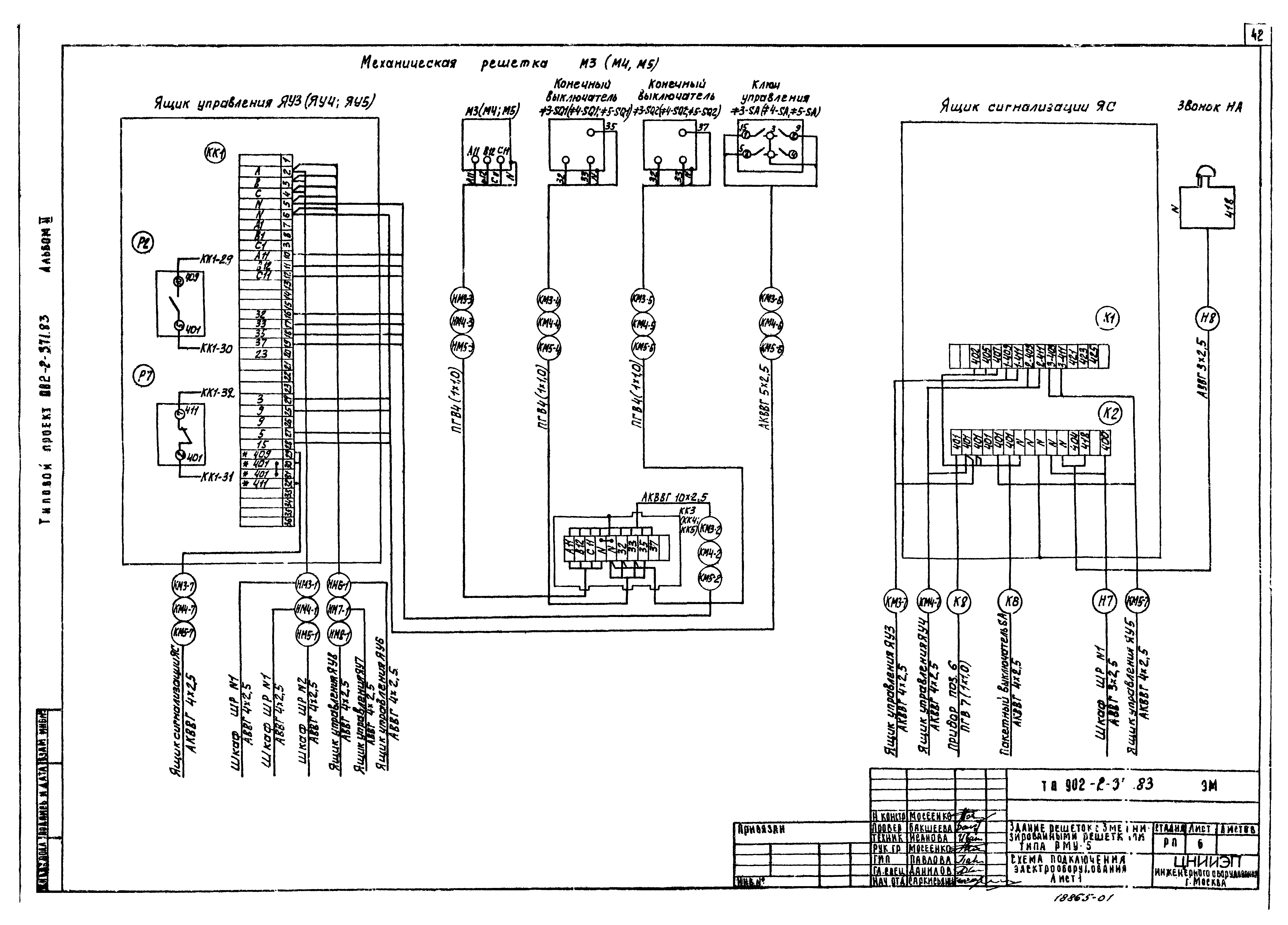
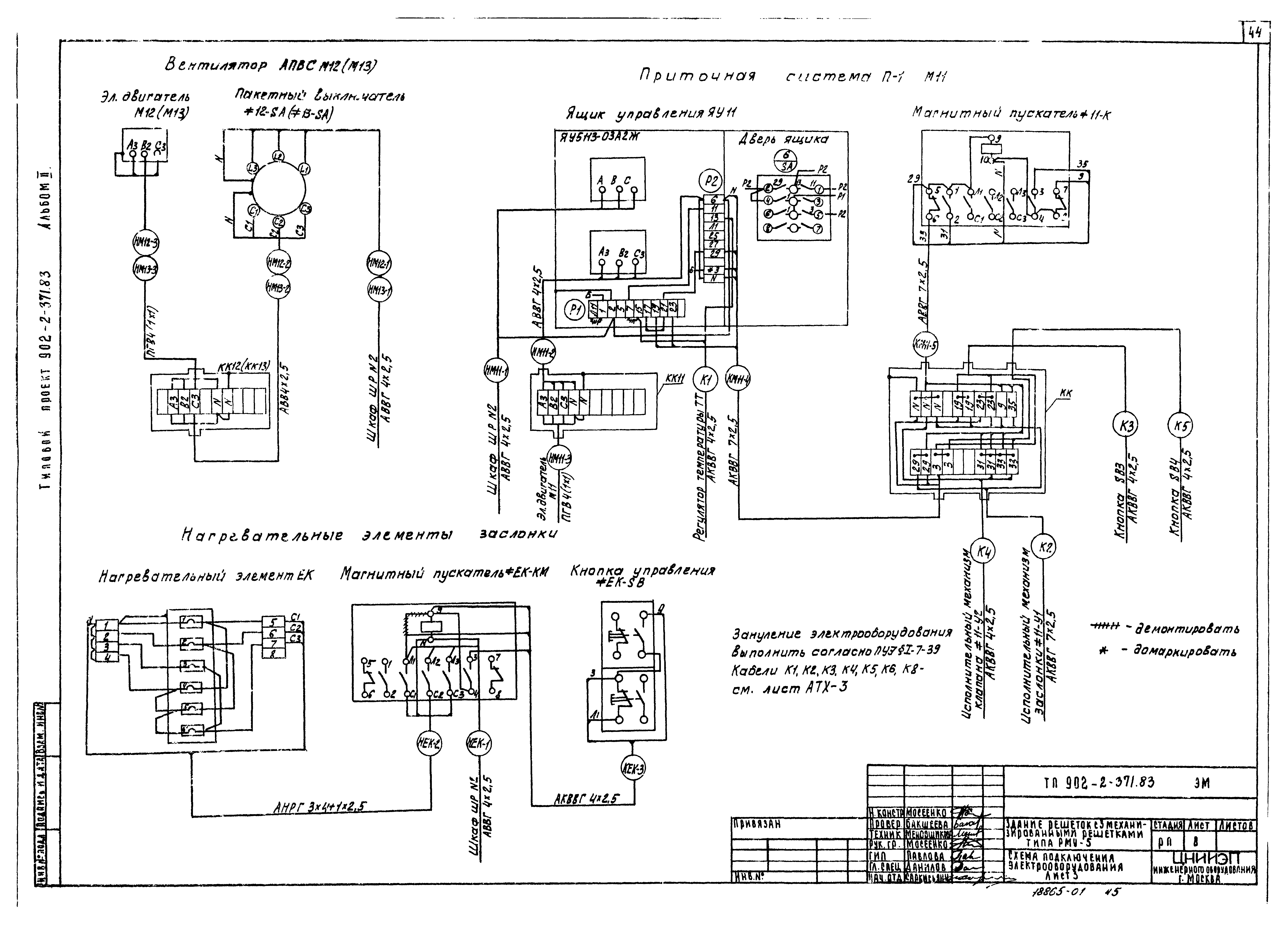
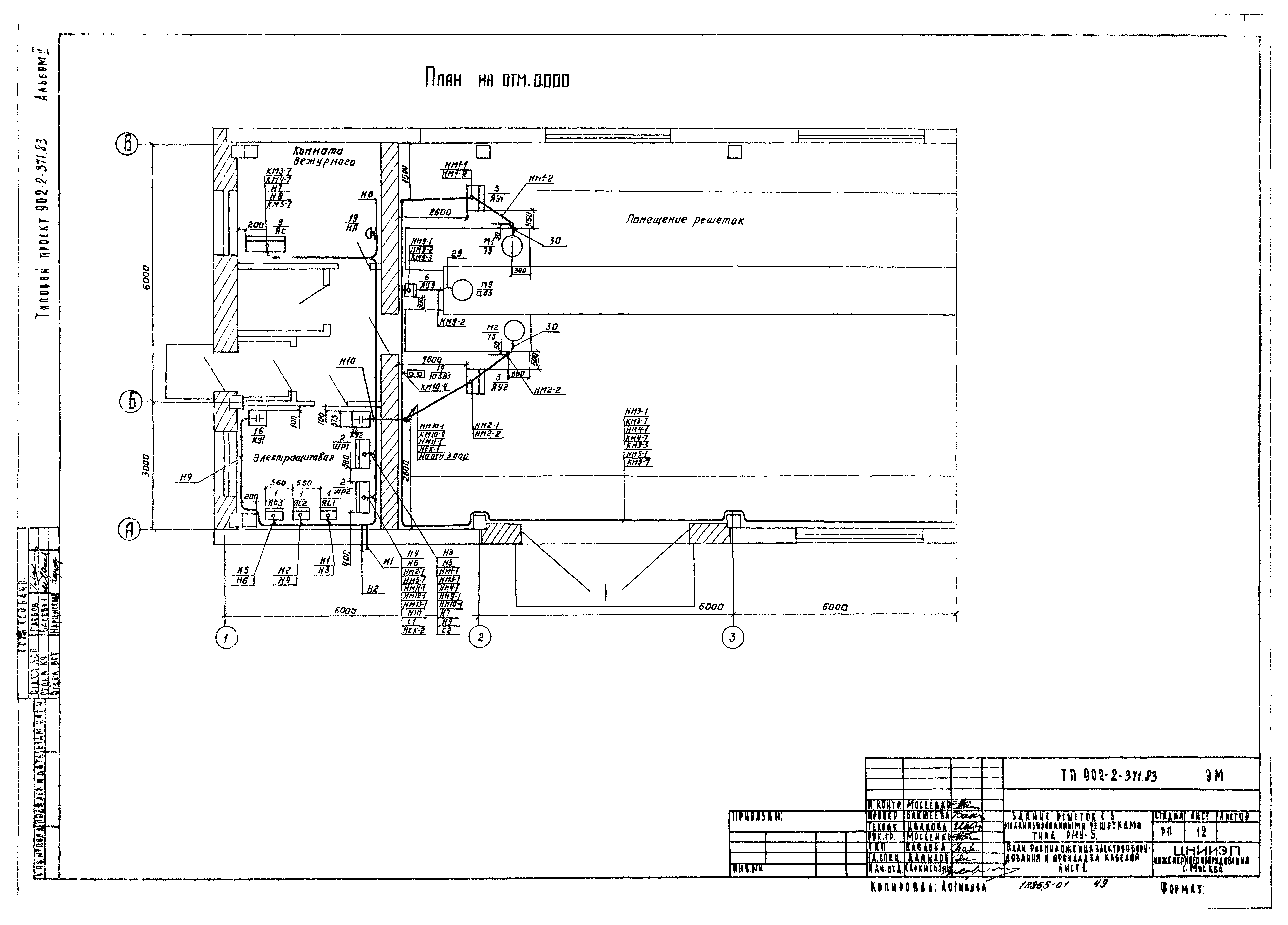
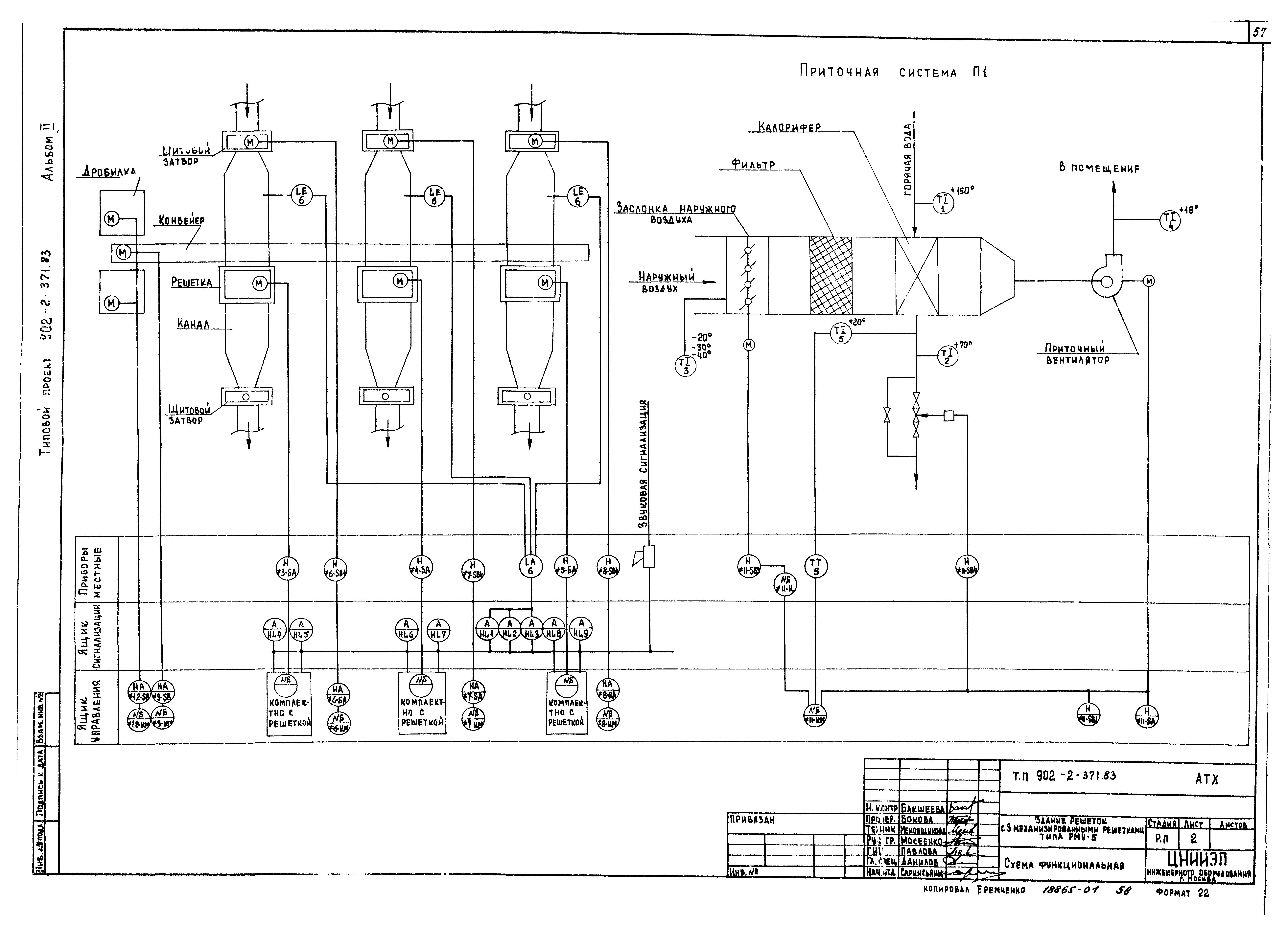
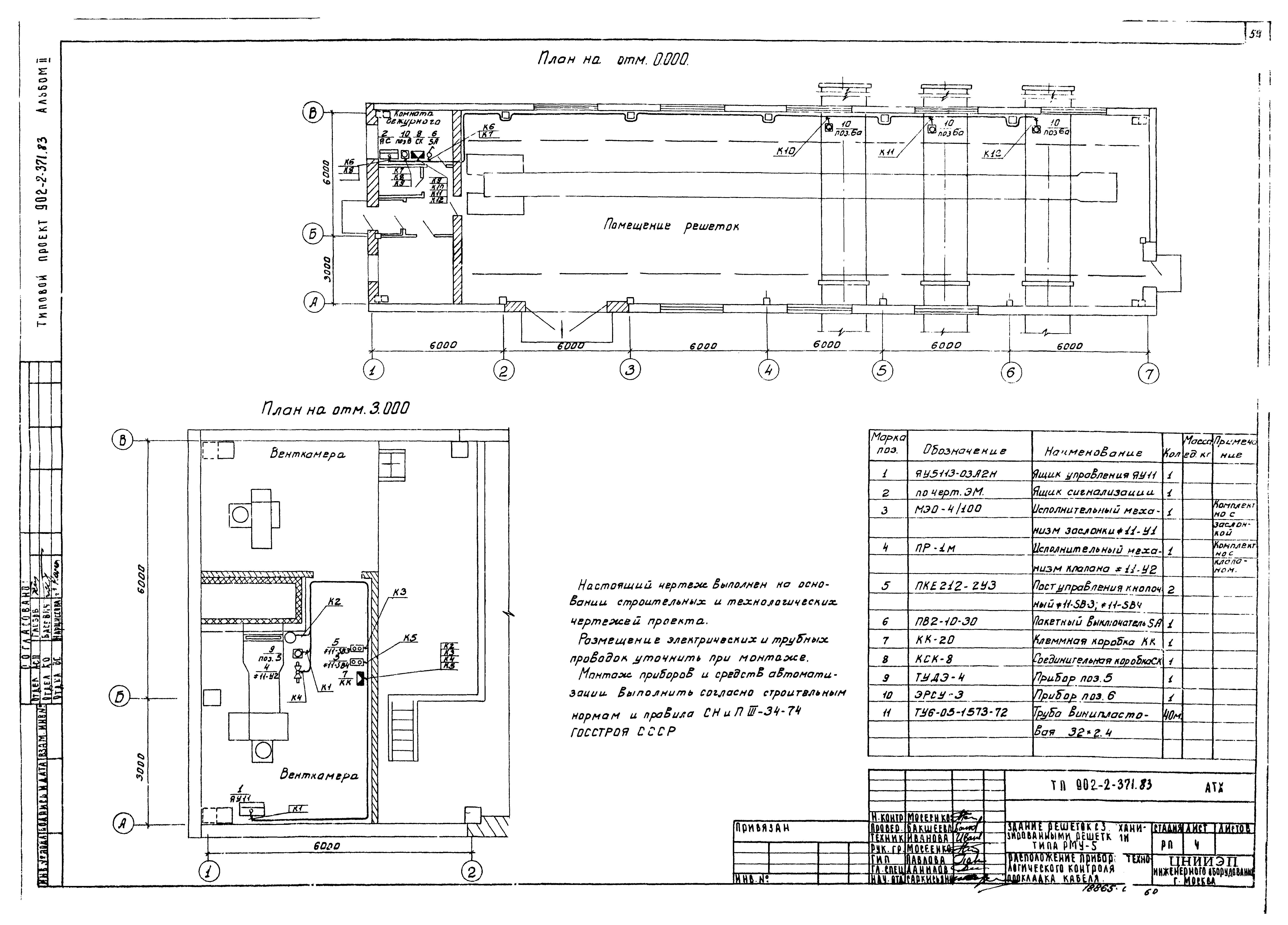
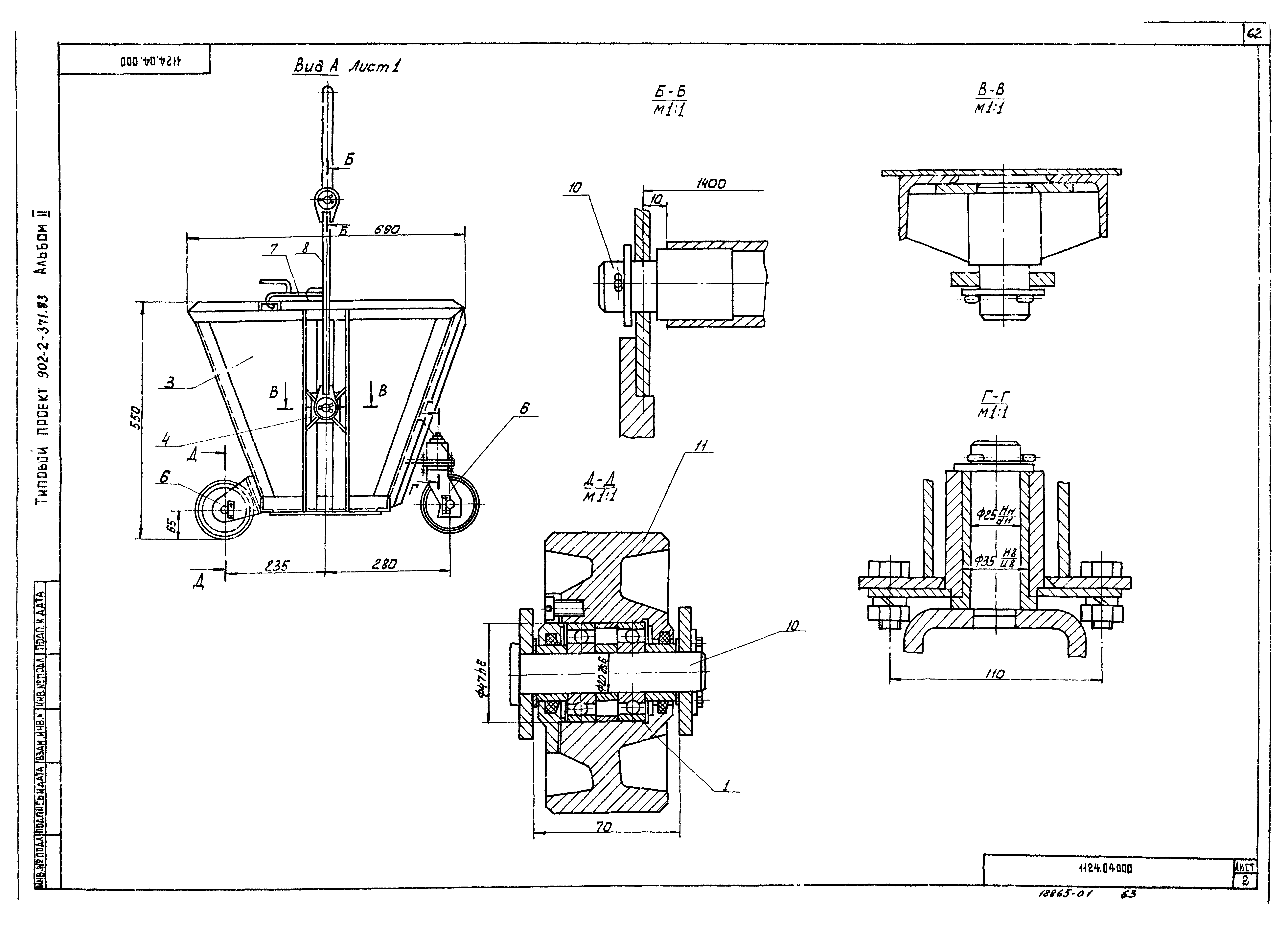
| Оглавление: | Обложка Титульный лист Содержание Технологическая часть ТХ-1 Общие данные ТХ-2 Расположение технологического оборудования. План. Разрез 1-1 ТХ-3 Расположение технологического оборудования. Разрез 2-2 ТХ-4 Расположение технологического оборудования. Разрез 3-3. Вид А. План фундаментов под дробилки. Затвор щитовой Архитектурно-строительная часть АР-1 Общие данные АР-2 Планы на отм. 0.000 и 3.000 АР-3 Разрезы 1-1,2-2,3-3 И детали АР-4 Фасады 1-7,7-1,В-А,А-В АР-5 Планы полов и кровлям, экспликация полов, ведомости перемычек и отделки помещений КЖ-1 Общие данные КЖ-2 Схема расположения фундаментов здания. Узлы 1,2,9 КЖ-3 Фундаменты здания. Узлы 3-8. Сечение 8-8 КЖ-4 Фундаменты здания Ф1-Ф11. Армирование КЖ-5 Схема расположения каналов и фундаментов под оборудование плит перекрытия канала КП1 КЖ-6 Фундаменты под оборудование, сечения каналов КЖ-7 Каналы КЛ1,КЛ2. Опалубка КЖ-8 Каналы КЛ1,КЛ2. Армирование КЖ-9 Схемы расположения балок, колонн, плит покрытия. Узлы КЖ-10 Схемы расположения плит перекрытия на отм. 3.000. Монолитные участки КЖ-11 Схемы расположения стеновых панелей и металлических элементов фахверка КЖ-12 Фрагменты к схемам расположения стеновых панелей КМ-1 Общие данные. Начало КМ-2 Общие данные. Продолжение КМ-3 Общие данные. Окончание КМ-4 Схемы расположения подвесных путей и балок площадки на отм. 2.400. Разрезы КМ-5 Площадка на отм. 2.400. Узлы. Сечения Санитарно-техническая часть ОВ-1 Общие данные ОВ-2 Планы на отм. 0.000 и 3.000 ОВ-3 Схемы систем вентиляции П1,В1,ВЕ1, отопления и теплоснабжения А1-А3 ОВ-4 Установка системы П1. Схема системы теплоснабжения ОВ-5 Установка системы В1 ОВН1 Переходы ОВН2,ОВН3 Воздуховод из асбестоцементных листов. Узлы соединений ВК-1 Общие данные ВК-2 Планы на отм. 0.000 и кровли. Схемы систем В1,В9,Т3,К1,К2 Электротехническая часть ЭМ-1 Общие данные ЭМ-2 Схема электрическая принципиальная питания электрооборудования ЭМ-3 Схема электрическая принципиальная управления щитовым затвором и конвейером ЭМ-4 Схема электрическая принципиальная управления вентилятором ЭМ-5 Схема электрическая принципиальная аварийной сигнализации ЭМ-6 Схема подключения электрооборудования. Лист 1 ЭМ-7 Схема подключения электрооборудования. Лист 2 ЭМ-8 Схема подключения электрооборудования. Лист 3 ЭМ-9 Кабельный журнал. Лист 1 ЭМ-10 Кабельный журнал. Лист 2 ЭМ-11 Кабельный журнал. Лист 3 ЭМ-12 План расположения электрооборудования и прокладка кабелей. Лист 1 ЭМ-13 План расположения электрооборудования и прокладка кабелей. Лист 2 ЭМ-14 План расположения электрооборудования и прокладка кабелей. Лист 3 ЭМ-15 Электрическое освещение. Планы на отм. 0.000 и 3.000 ЭМ.ВО-1 Ведомости электрооборудования и кабелей, потребности в электромонтажных изделиях, изделий мастерских электромонтажных заготовок. Лист 1 ЭМ.ВО-2 Ведомости электрооборудования и кабелей, потребности в электромонтажных изделиях, изделий мастерских электромонтажных заготовок. Лист 2 ЭМ.0001 Задание заводу-изготовителю. Перечень чертежей ЭМ.001.2 Ящик ЯС. Технические данные аппаратов ЭМ.001.ВО Ящик ЯС. Общий вид ЭМ.001.ТБ Ящик ЯС. Таблица перечня надписей ЭМ.001.ЭЧ Ящик ЯС. Схема электрическая соединений АТХ-1 Общие данные АТХ-2 Схема функциональная АТХ-3 Схема подключения приборов технологического контроля АТХ-4 Расположение приборов технологического контроля и прокладка кабеля СС-1 Общие данные. План на отм. 0.000 с сетями связи. Экспликация помещений Нестандартизированное оборудование 1124.04.000 Контейнер для отбросов 1124.08.000 Бункер для отбросов 1124.12.000 Конвейер горизонтально-наклонный В=500 мм 1124.13.000 Затвор щитовой □2000 мм 1124.14.000 Лоток 1124.15.000 Лоток |
| Разработан: | ЦНИИЭП |
| Утверждён: | 27.08.1982 Госгражданстрой (Gosgrazhdanstroy 237) |
| Чем заменён: |
|





































































