Скачать Серия 2.436-14 Выпуск 1. Рабочие чертежиДата актуализации: 01.01.2021
|
| Обозначение: | Серия 2.436-14 |
| Обозначение англ: | Series 2.436-14 |
| Статус: | заменен |
| Название рус.: | Выпуск 1. Рабочие чертежи |
| Дата добавления в базу: | 01.09.2013 |
| Дата актуализации: | 01.01.2021 |
| Дата введения: | 01.01.1984 |
| Дата окончания срока действия: | 01.10.1986 |
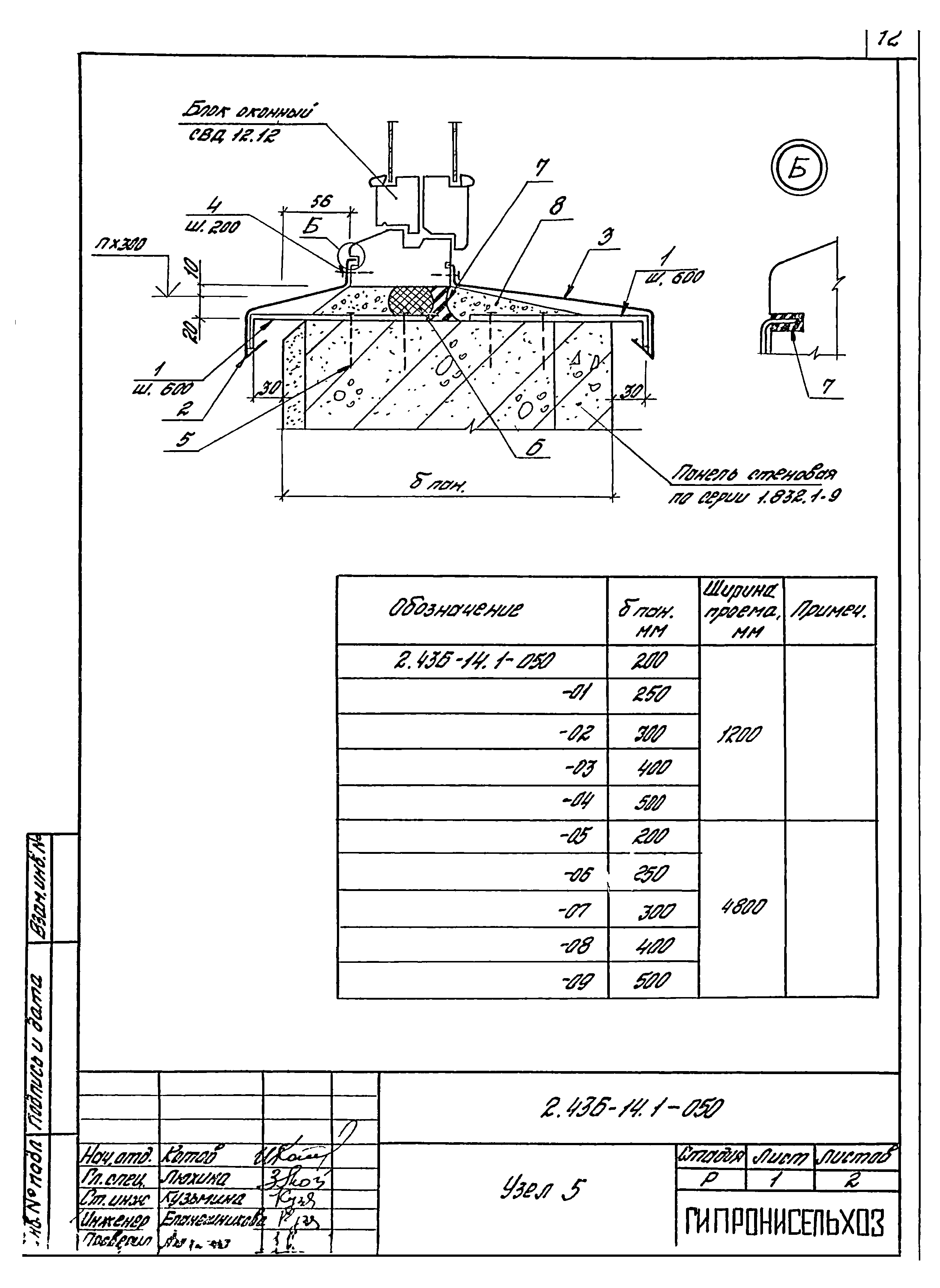
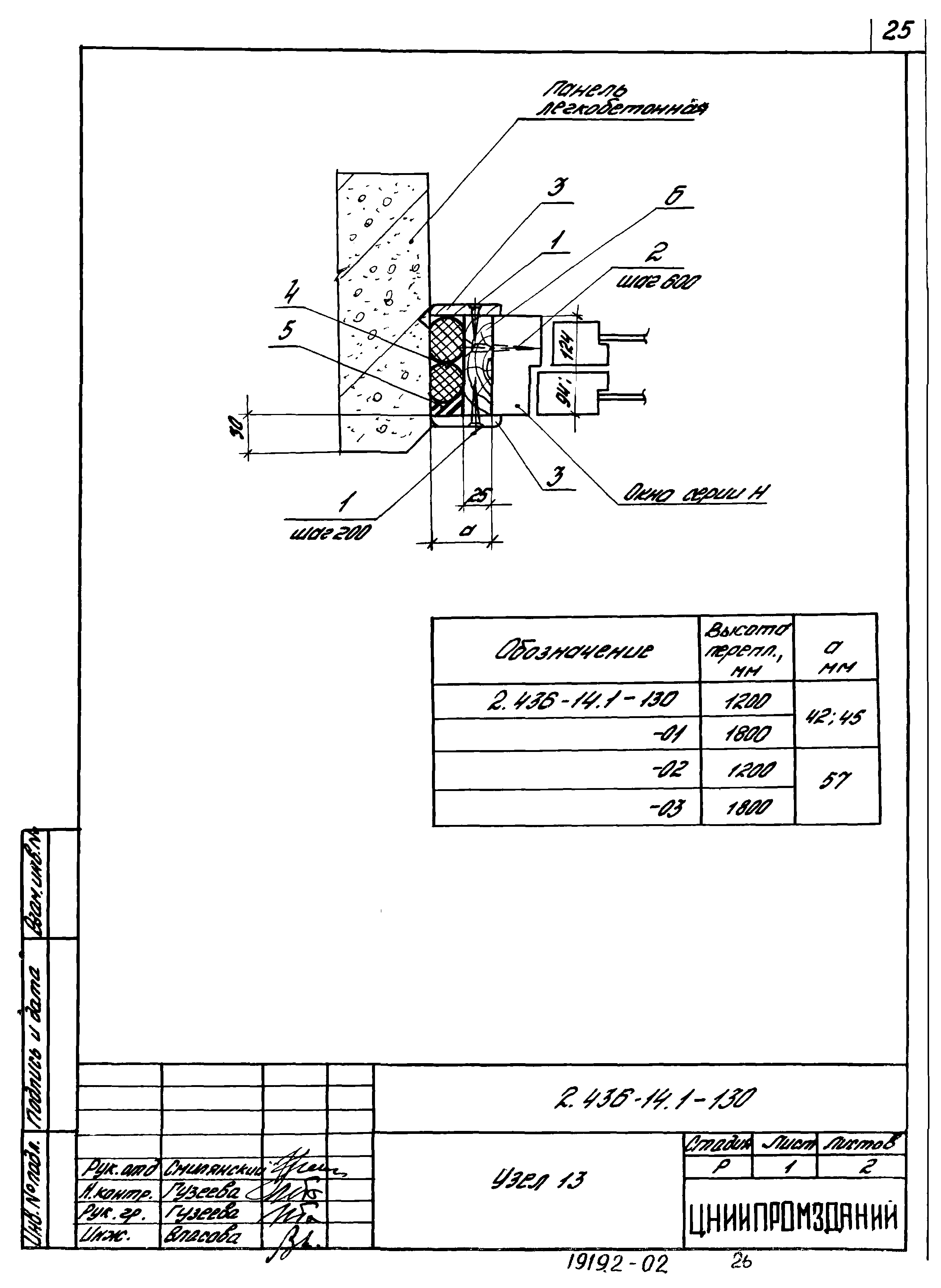
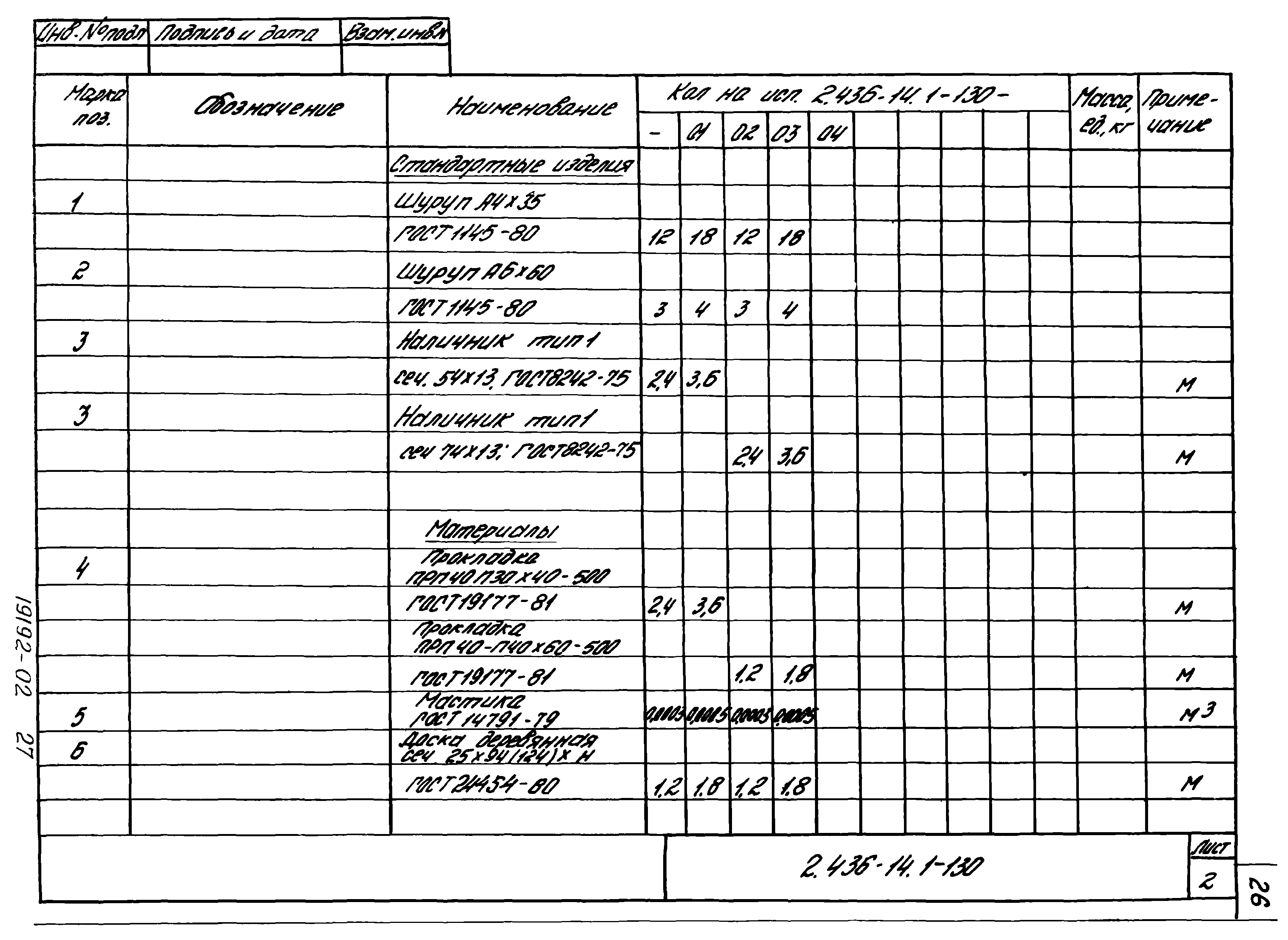
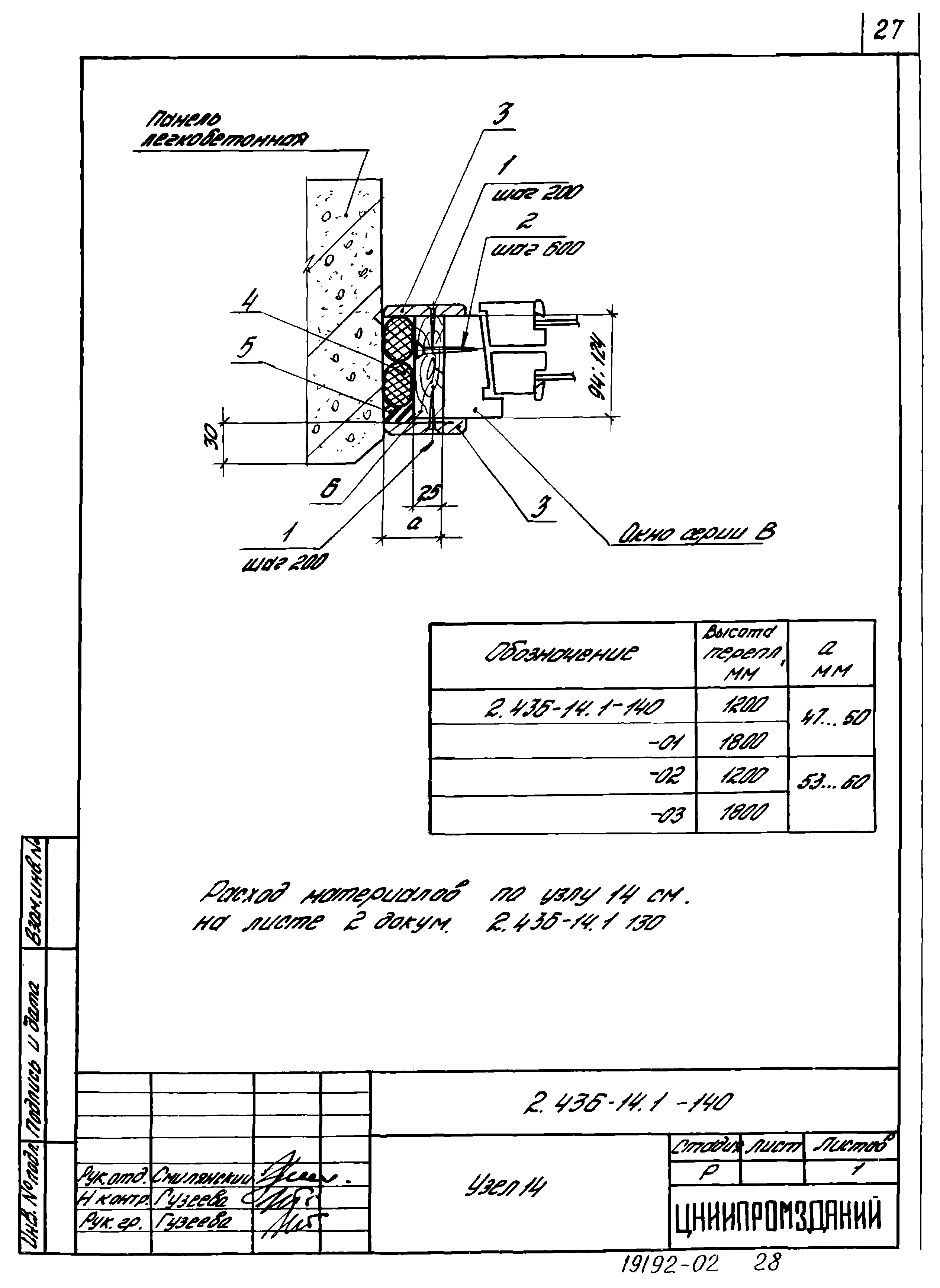
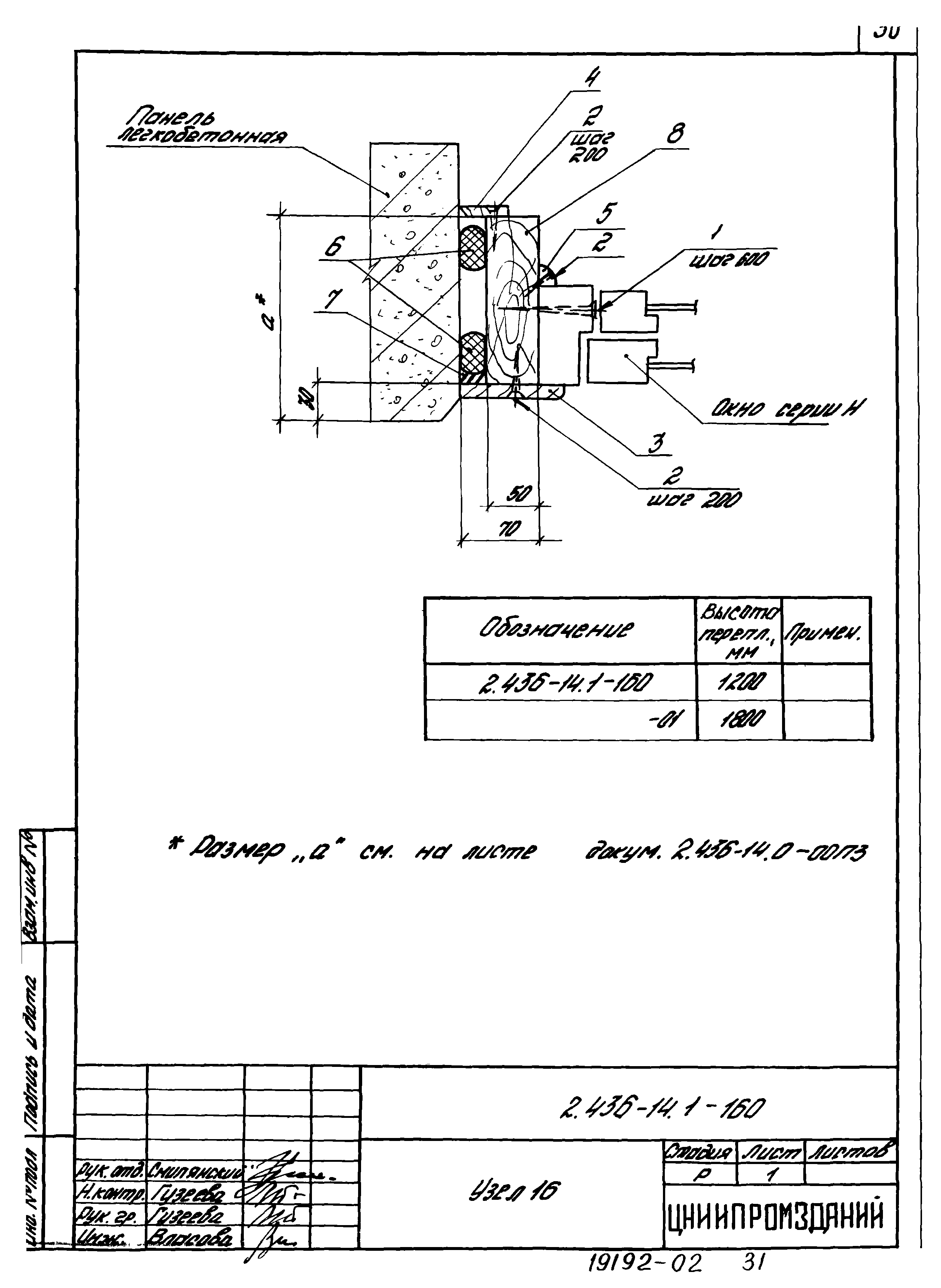
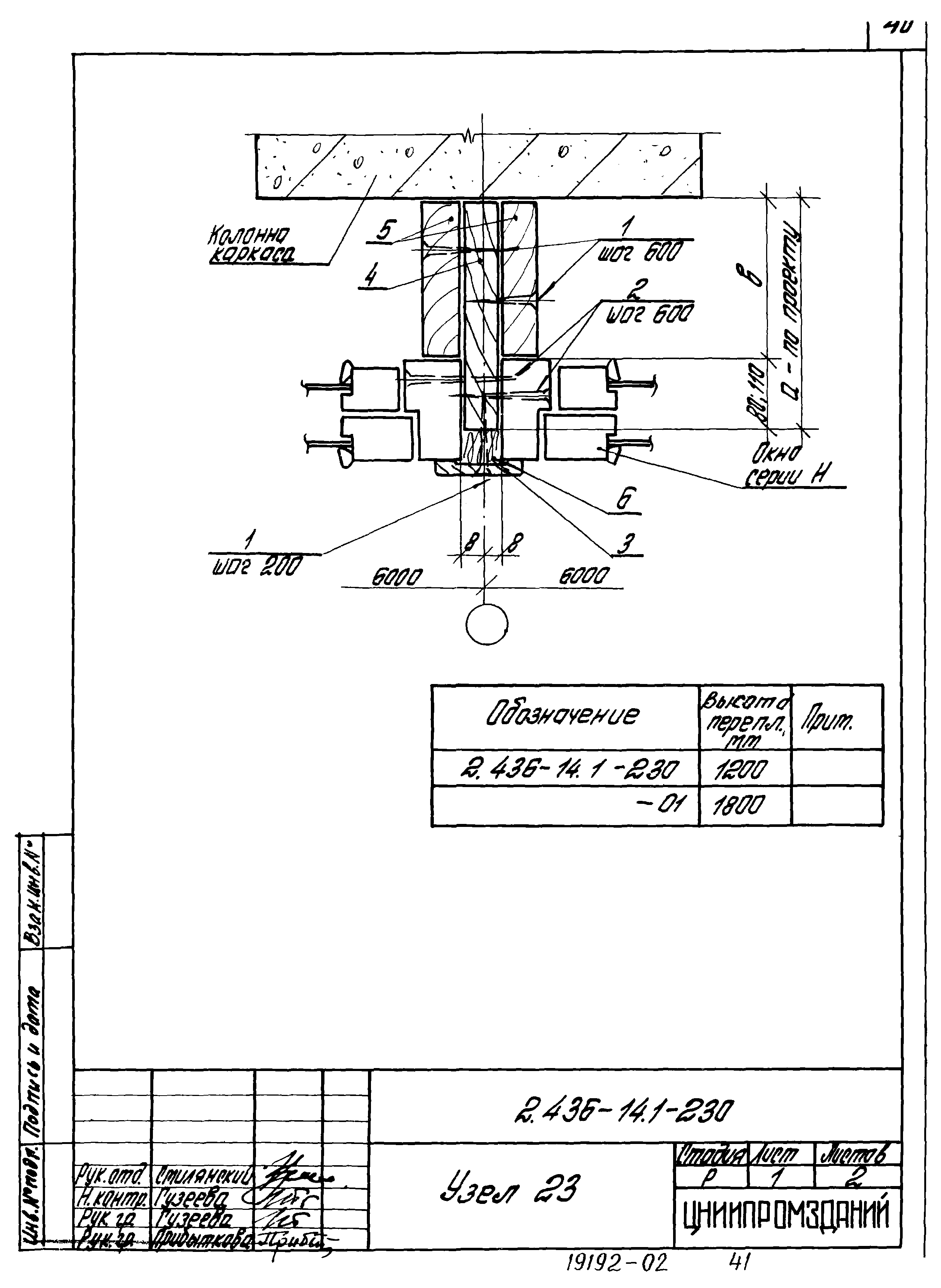
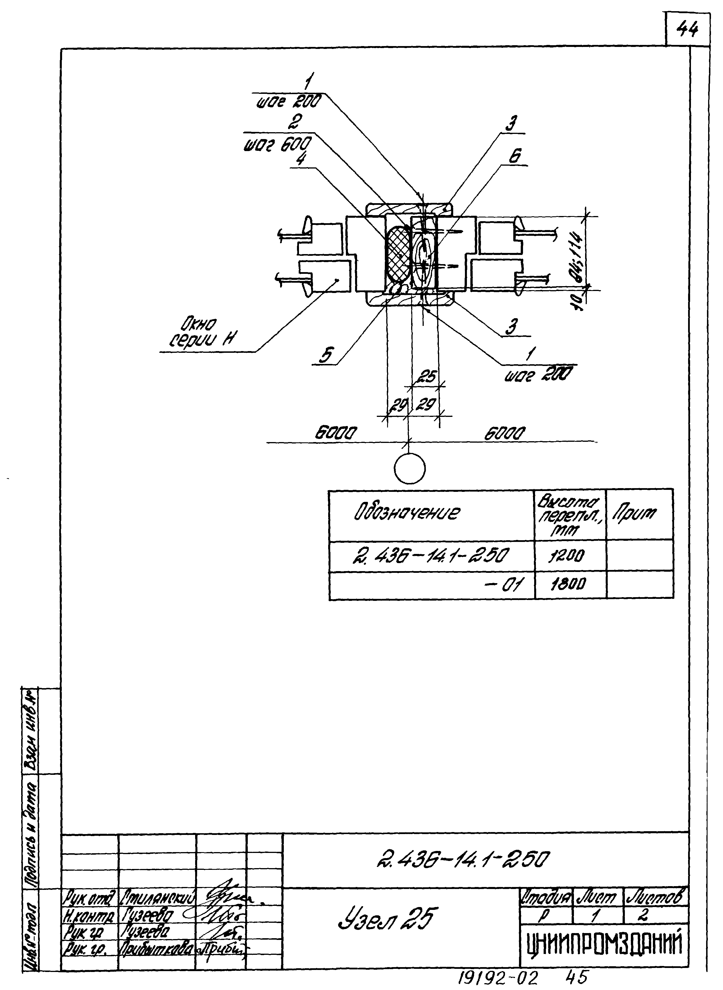
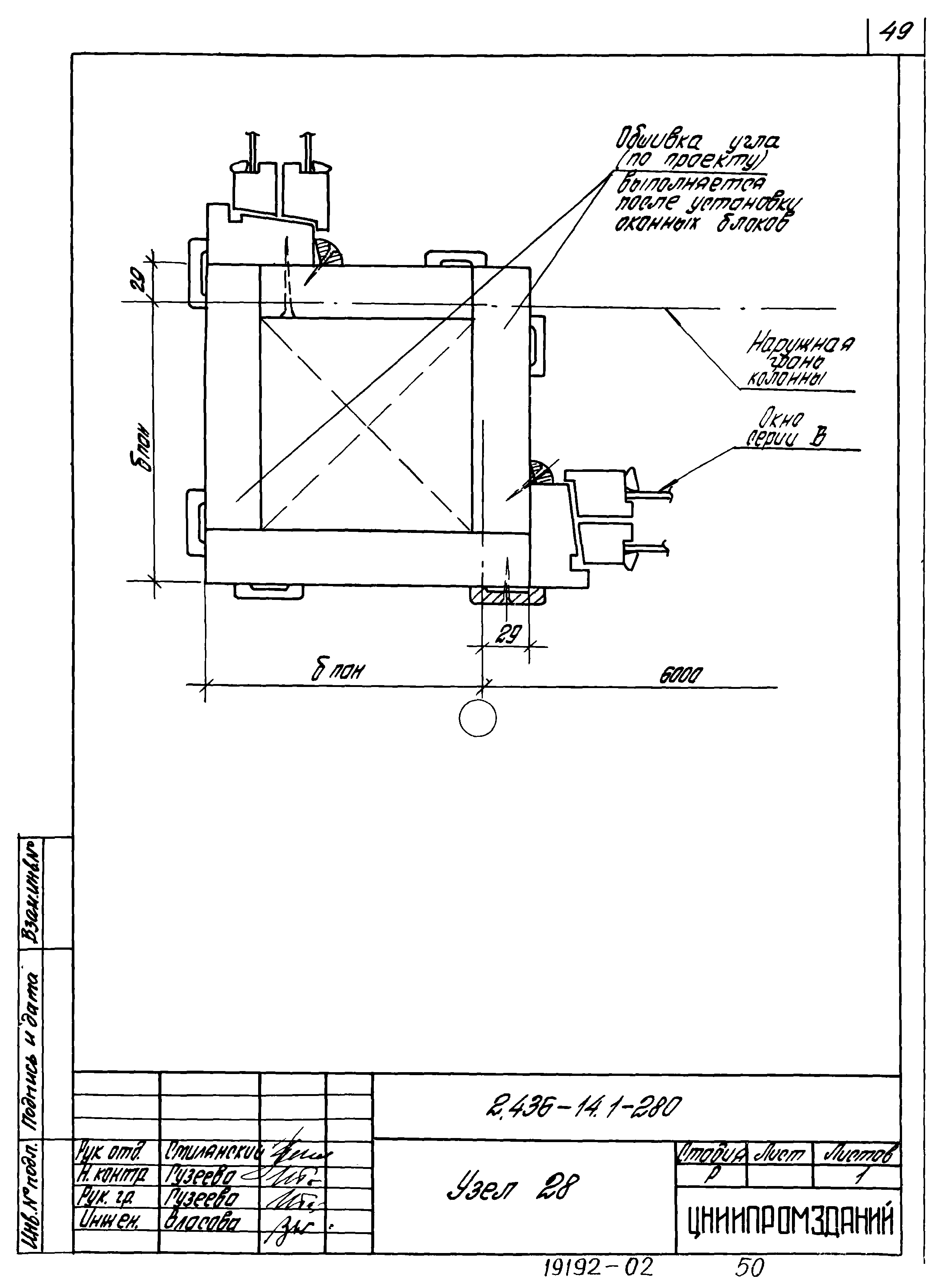
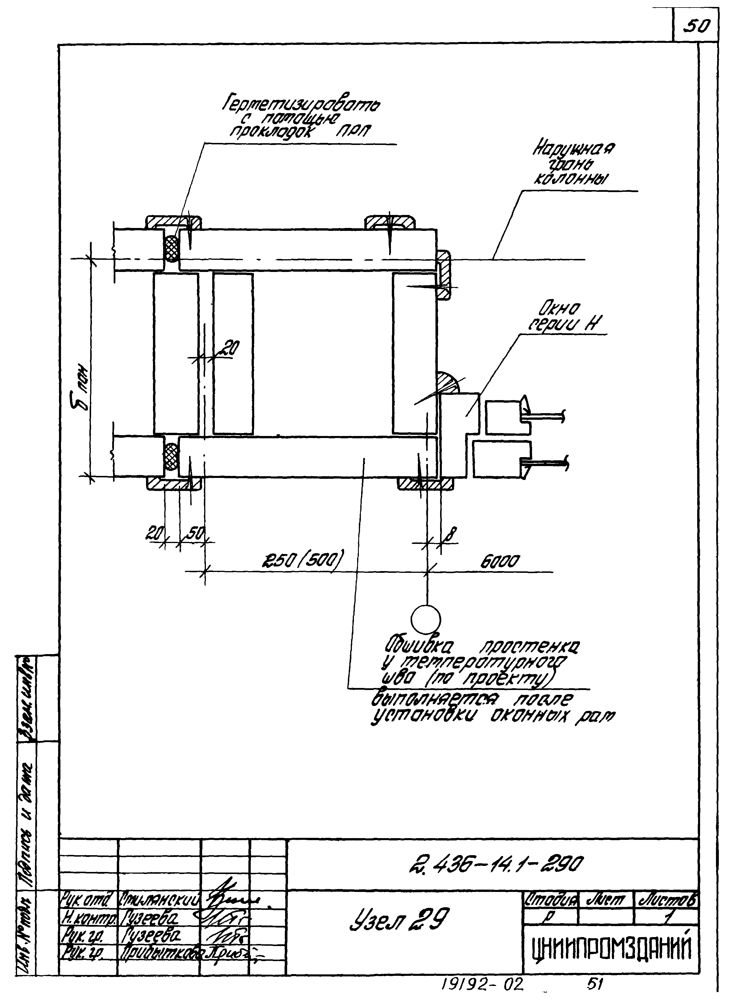
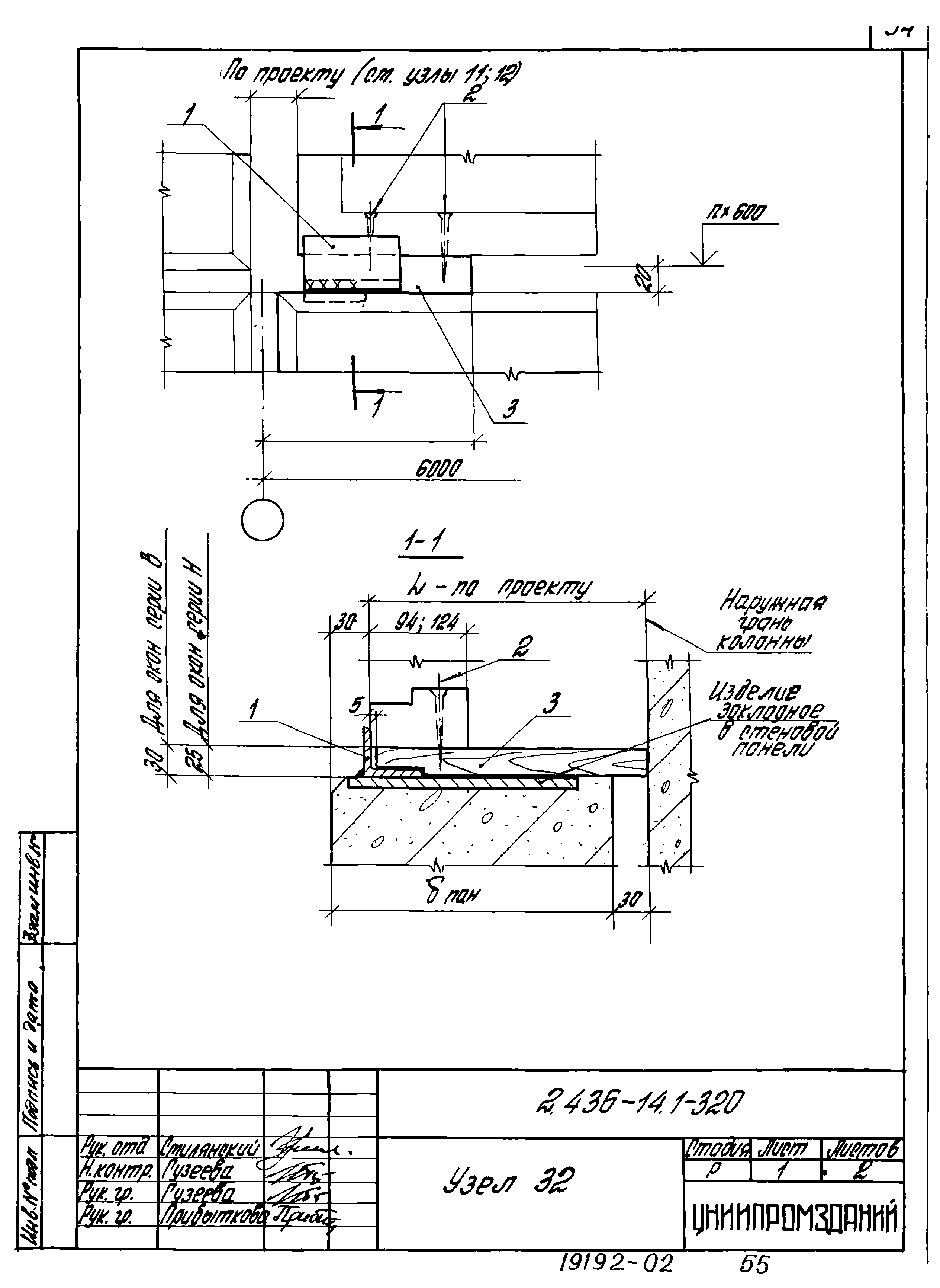
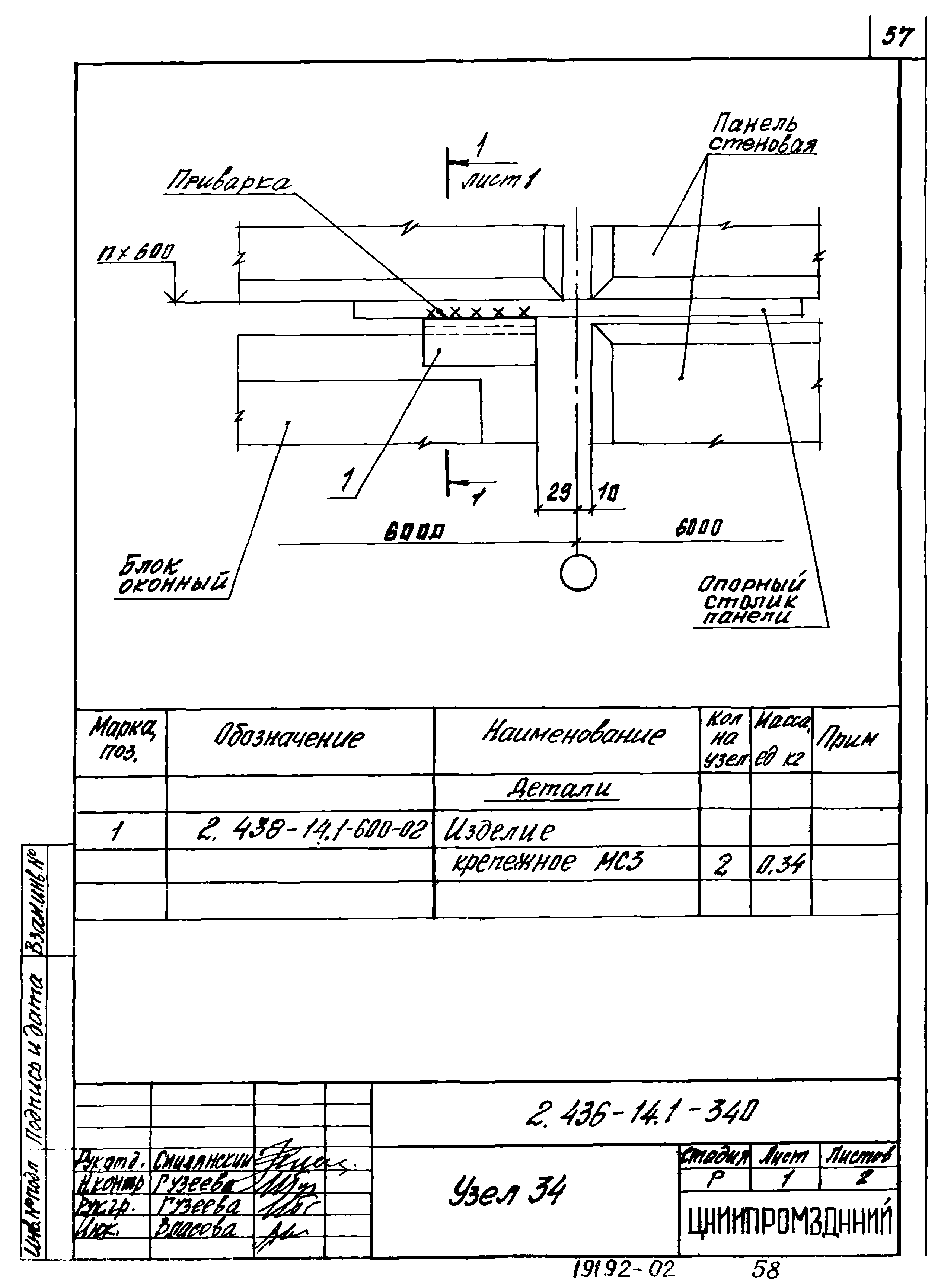
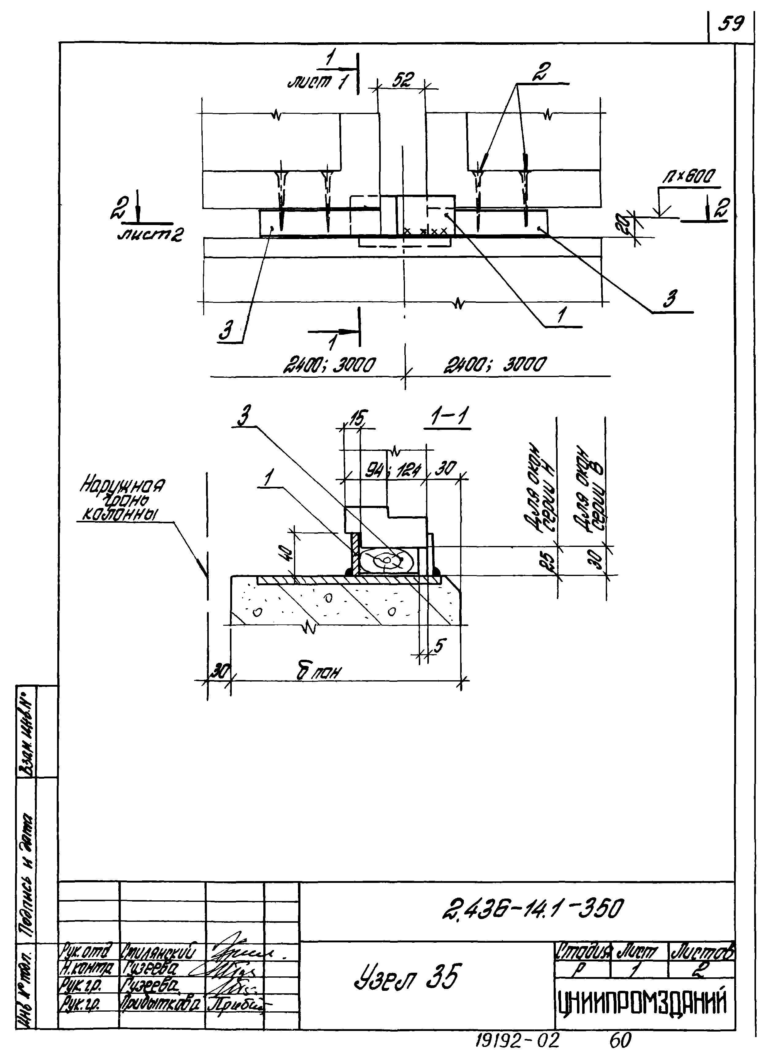
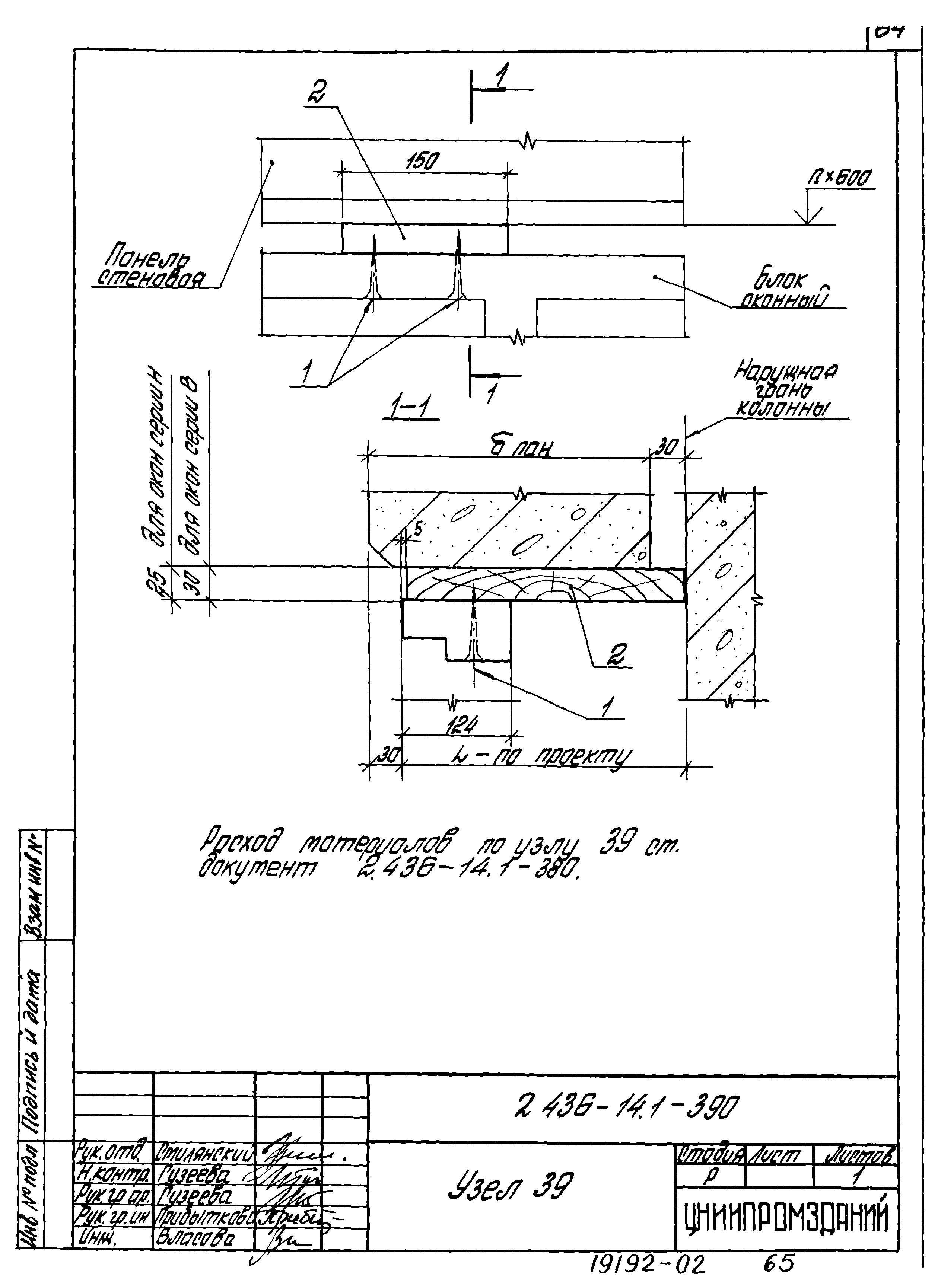
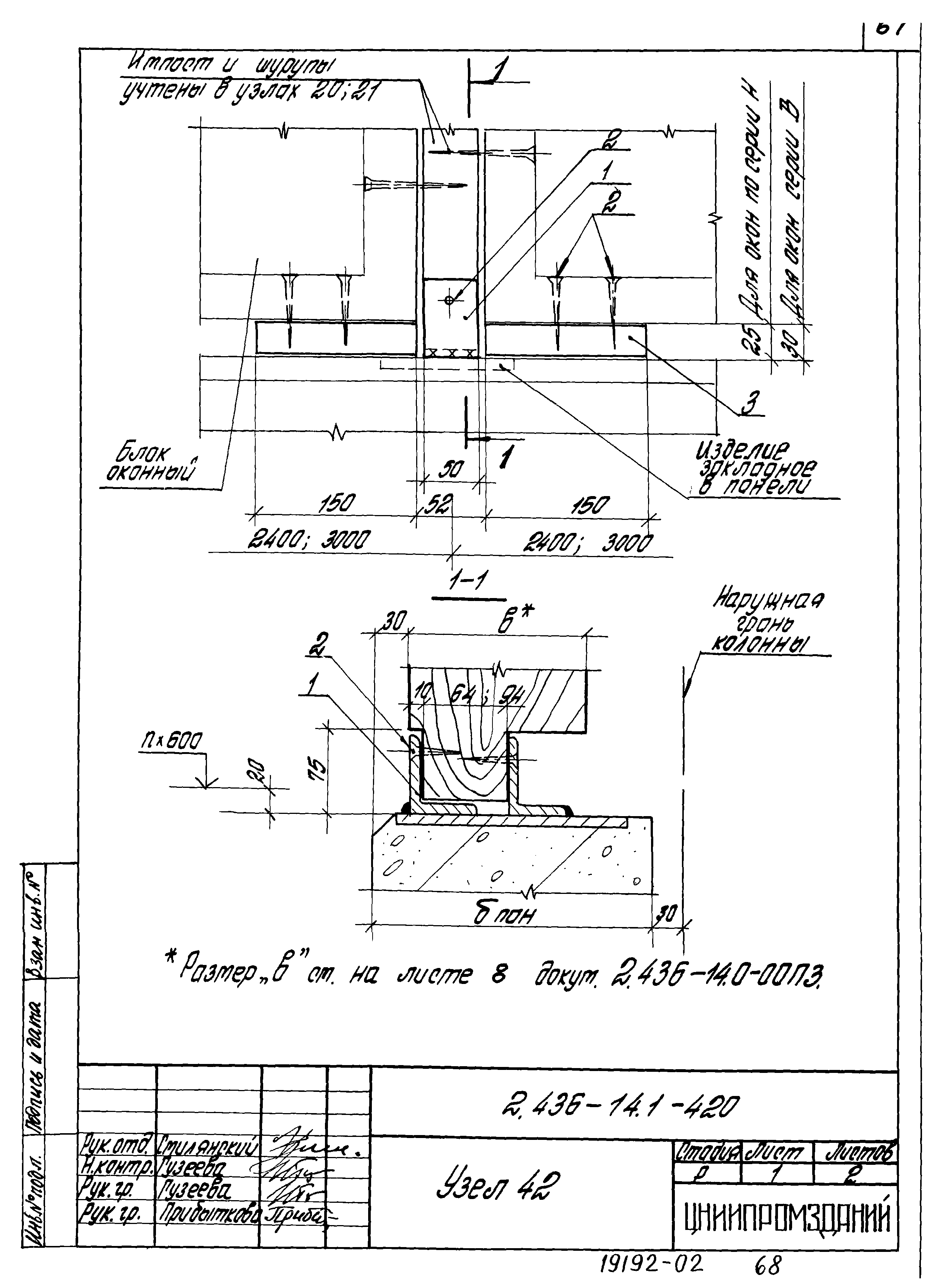
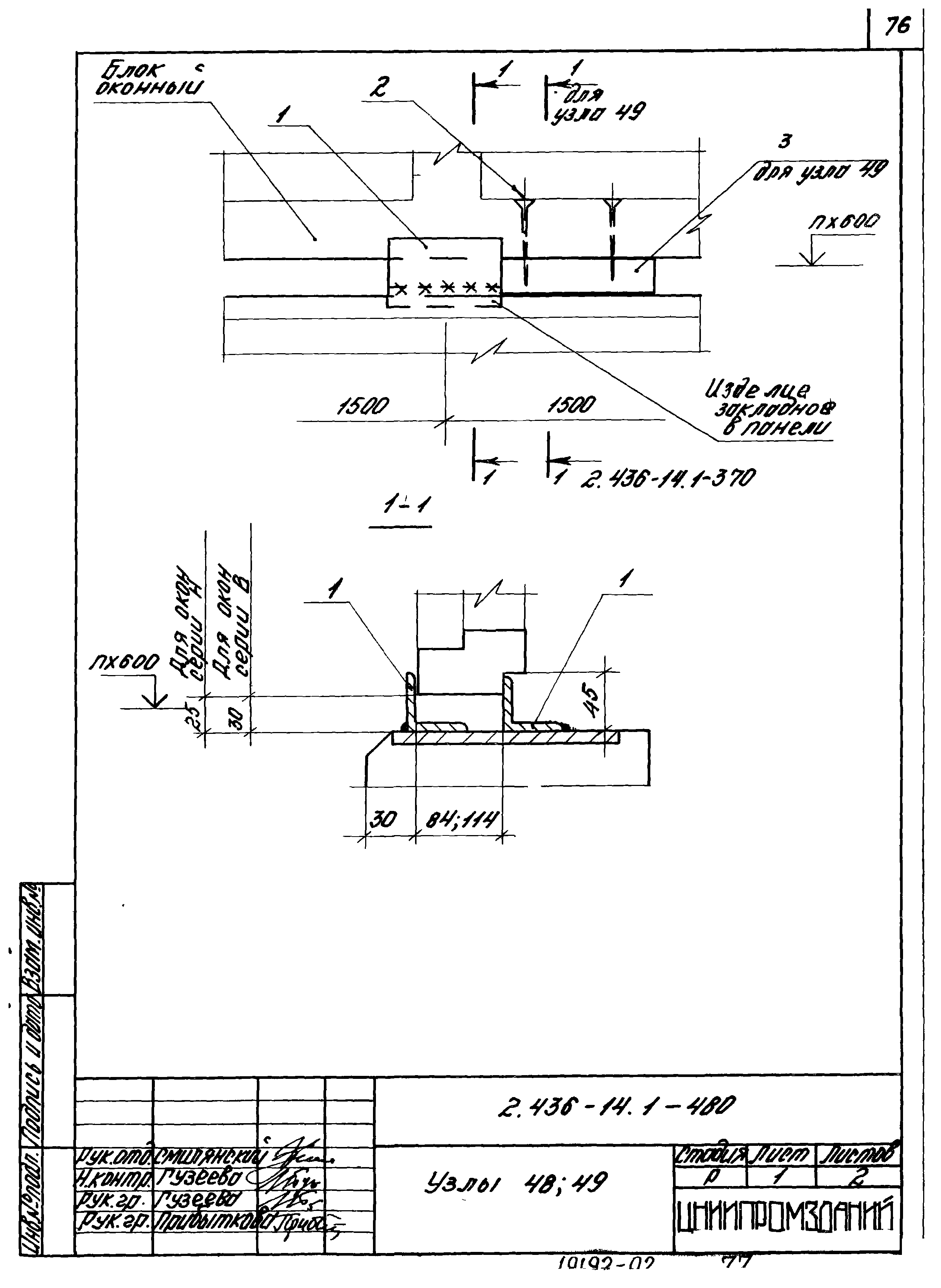
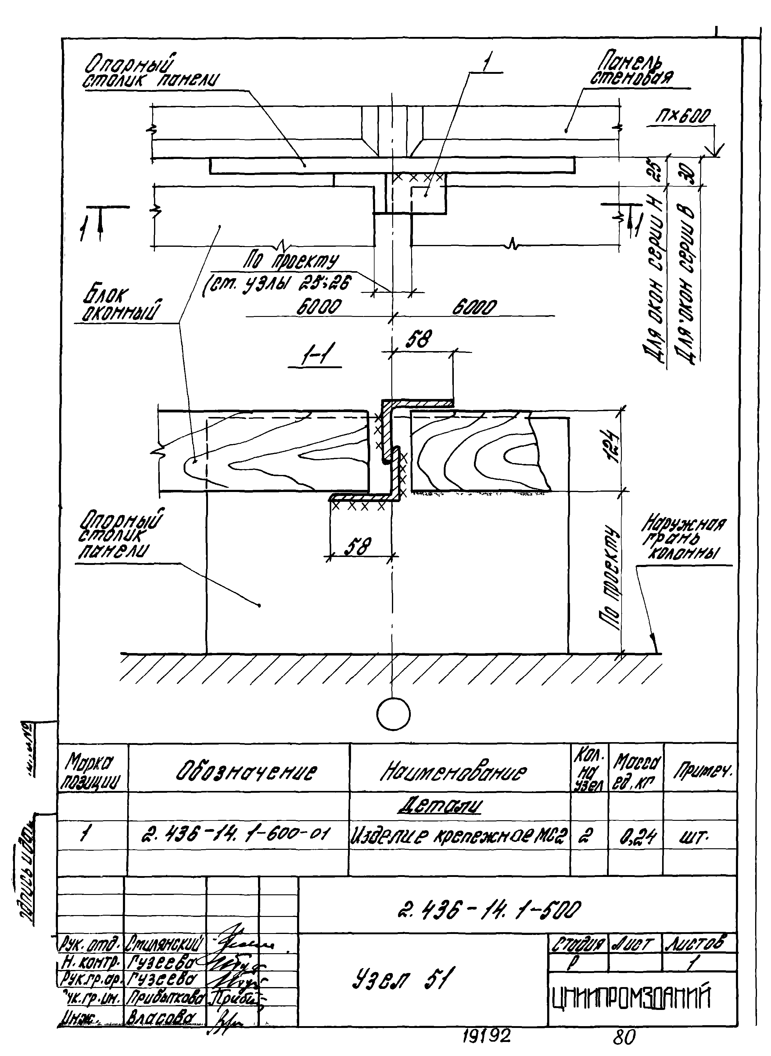
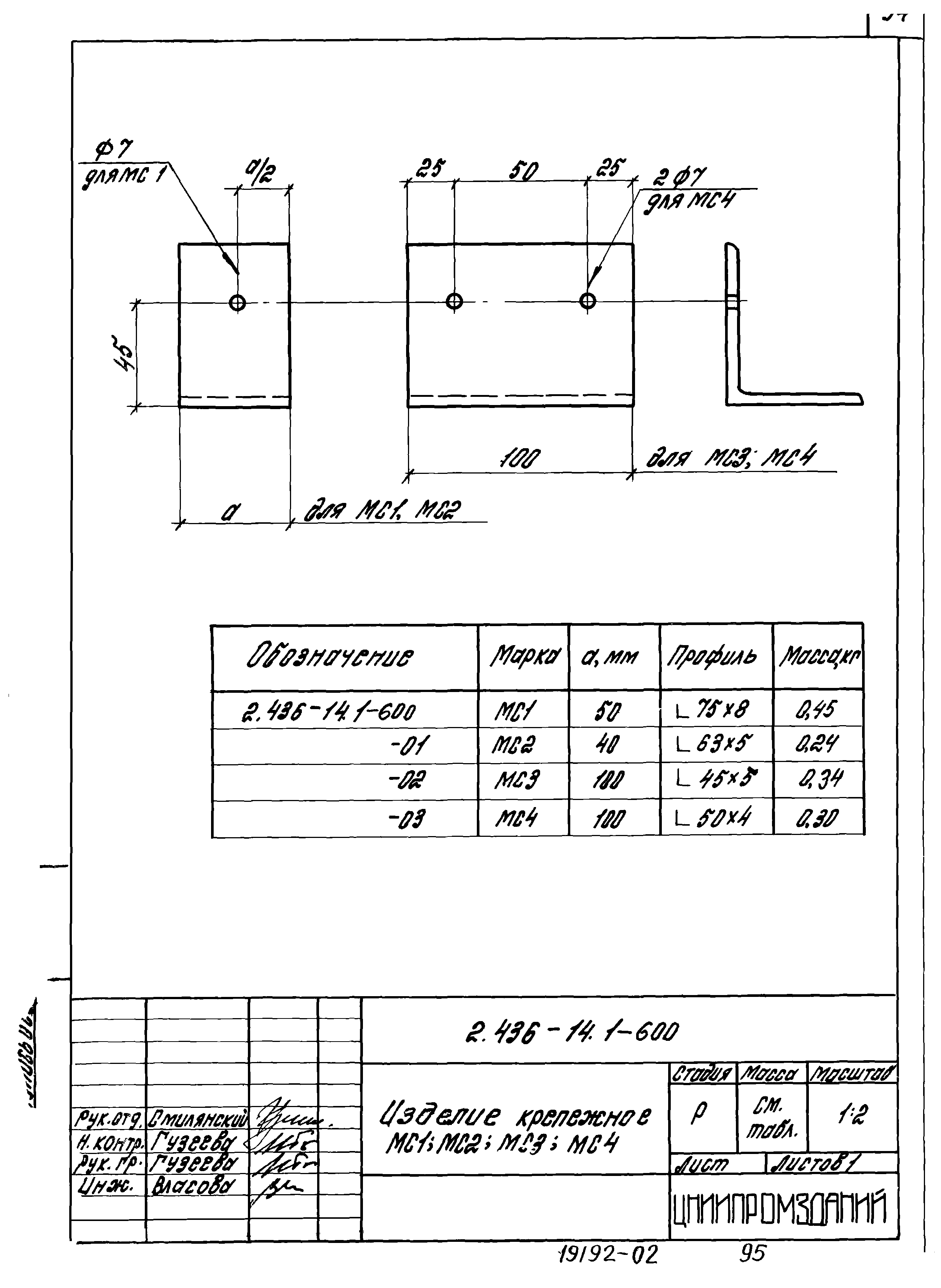
| Оглавление: | 2.436-14.1-00 ПЗ Пояснительная записка 2.436-14.1-010 Узел 1 2.436-14.1-020 Узел 2 2.436-14.1-030 Узел 3 2.436-14.1-040 Узел 4 2.436-14.1-050 Узел 5 2.436-14.1-060 Узел 6 2.436-14.1-070 Узел 7 2.436-14.1-080 Узел 8 2.436-14.1-090 Узел 9 2.436-14.1-100 Узел 10 2.436-14.1-110 Узел 11 2.436-14.1-120 Узел 12 2.436-14.1-130 Узел 13 2.436-14.1-140 Узел 14 2.436-14.1-150 Узел 15 2.436-14.1-160 Узел 16 2.436-14.1-170 Узел 17 2.436-14.1-180 Узел 18 2.436-14.1-190 Узел 19 2.436-14.1-200 Узел 20 2.436-14.1-210 Узел 21 2.436-14.1-220 Узел 22 2.436-14.1-230 Узел 23 2.436-14.1-240 Узел 24 2.436-14.1-250 Узел 25 2.436-14.1-260 Узел 26 2.436-14.1-270 Узел 27 2.436-14.1-280 Узел 28 2.436-14.1-290 Узел 29 2.436-14.1-300 Узел 30 2.436-14.1-310 Узел 31 2.436-14.1-320 Узел 32 2.436-14.1-330 Узел 33 2.436-14.1-340 Узел 34 2.436-14.1-350 Узел 35 2.436-14.1-360 Узел 36 2.436-14.1-370 Узел 37 2.436-14.1-380 Узел 38 2.436-14.1-390 Узел 39 2.436-14.1-400 Узел 40 2.436-14.1-410 Узел 41 2.436-14.1-420 Узел 42 2.436-14.1-430 Узел 43 2.436-14.1-440 Узел 44 2.436-14.1-450 Узел 45 2.436-14.1-460 Узел 46 2.436-14.1-470 Узел 47 2.436-14.1-480 Узлы 48,49 2.436-14.1-490 Узел 50 2.436-14.1-500 Узел 51 2.436-14.1-510 Узел 52 2.436-14.1-520 Узел 53 2.436-14.1-530 Узел 54 2.436-14.1-540 Узел 55 2.436-14.1-550 Узлы 56,57 2.436-14.1-560 Узлы 58,59 2.436-14.1-570 Узел 60 2.436-14.1-580 Узел 61 2.436-14.1-590 Фасонное изделие ФС1...ФС3 2.436-14.1-600 Изделие крепежное МС1,МС2,МС3,МС4 2.436-14.1-610 Изделие крепежное МС5,МС6 (зеркально) 2.436-14.1-620 Костыль МС7,МС11 2.436-14.1-630 Изделие крепежное МС8,МС9 2.436-14.1-640 Изделие закладное МС10 |
| Разработан: | ЦНИИпромзданий ГипроНИсельхоз (Институт Гипронисельхоз ) |
| Утверждён: | 05.10.1983 Госстрой СССР (Государственный комитет Совета Министров СССР по делам строительства) (USSR Gosstroy 212) |
| Чем заменён: |



































































































