Скачать Серия 2.800-2 Выпуск 4. Деревянные конструкции крышДата актуализации: 01.01.2021
|
| Обозначение: | Серия 2.800-2 |
| Обозначение англ: | Series 2.800-2 |
| Статус: | не действует |
| Название рус.: | Выпуск 4. Деревянные конструкции крыш |
| Дата добавления в базу: | 01.09.2013 |
| Дата актуализации: | 01.01.2021 |
| Дата введения: | 19.02.1969 |
| Дата окончания срока действия: | 01.05.1978 |
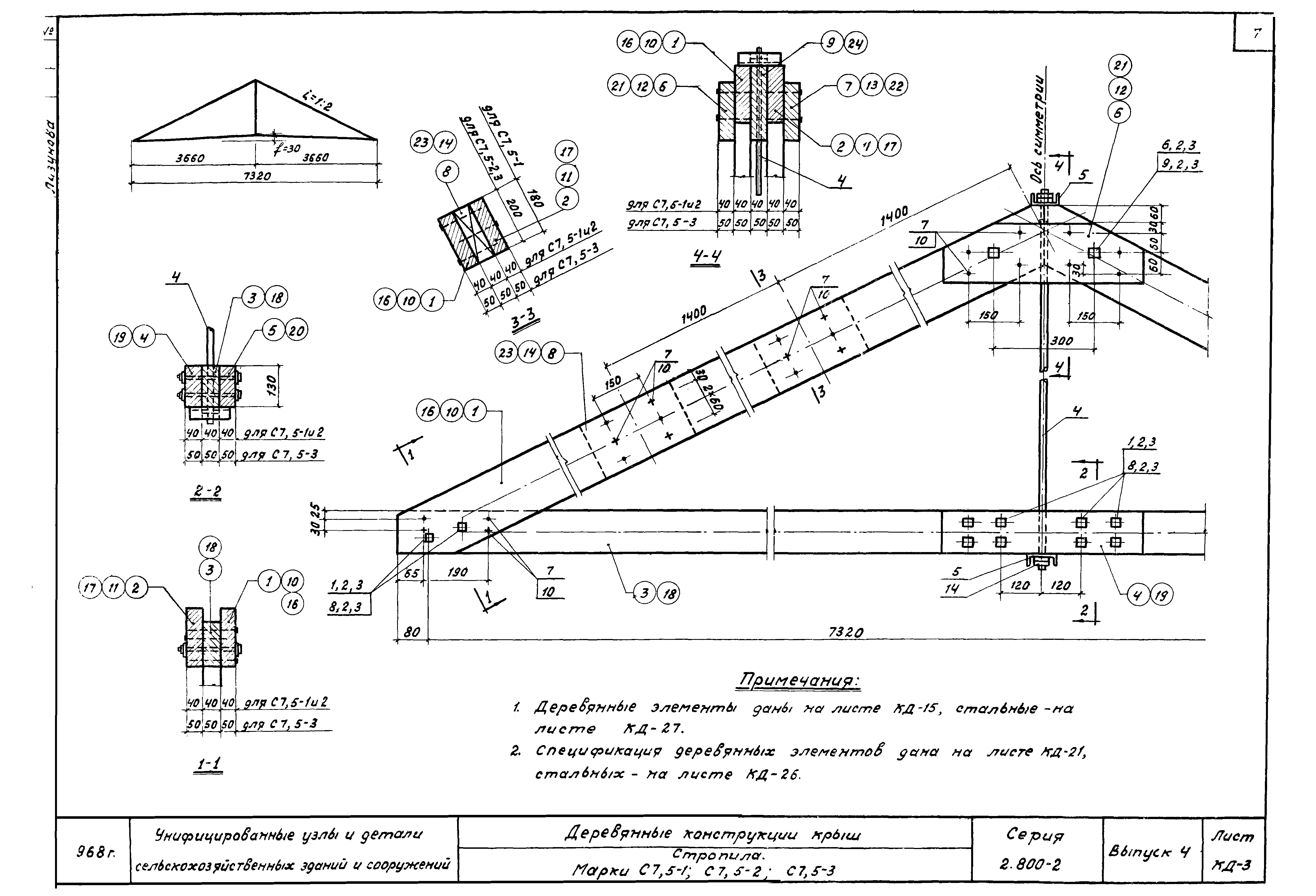
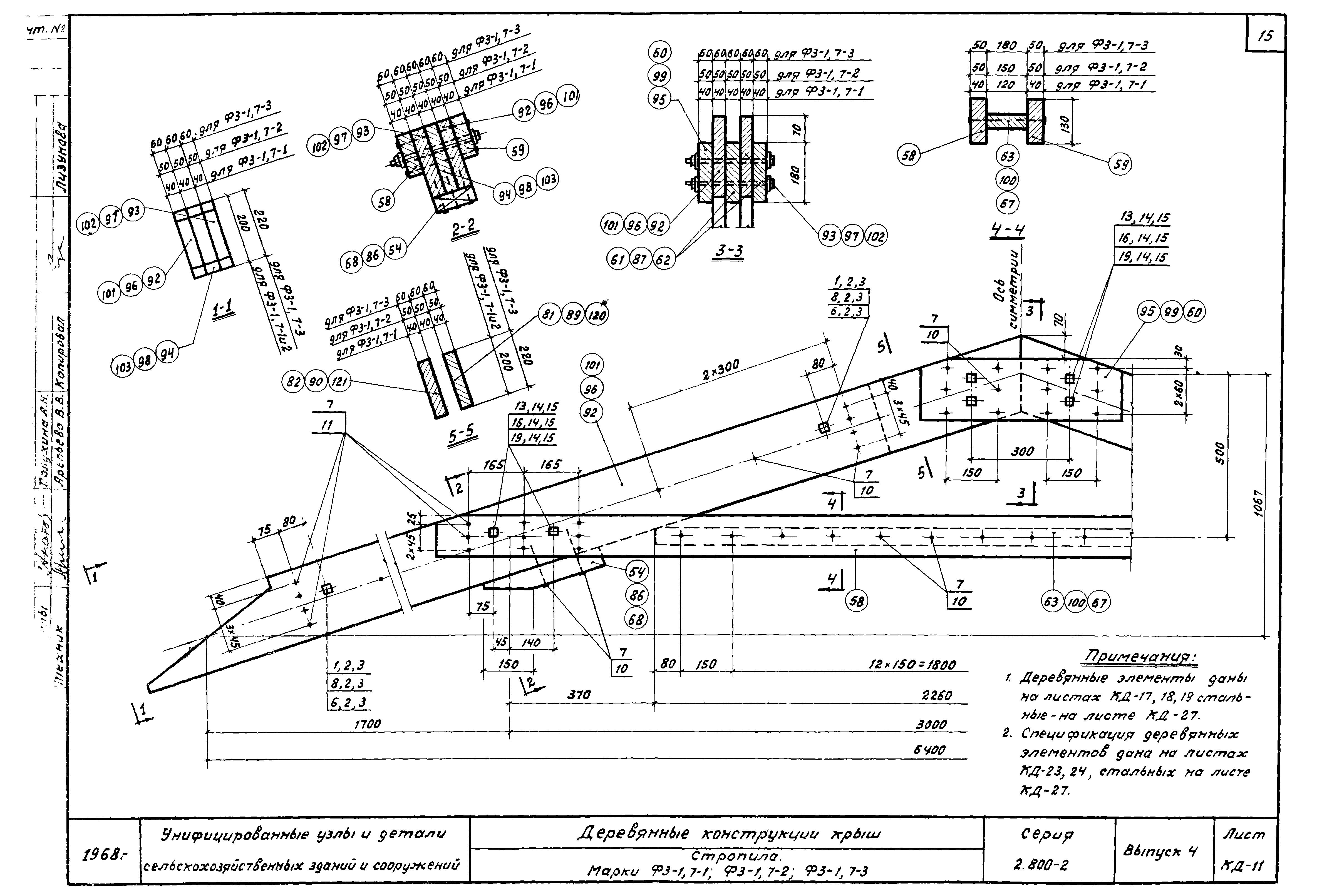
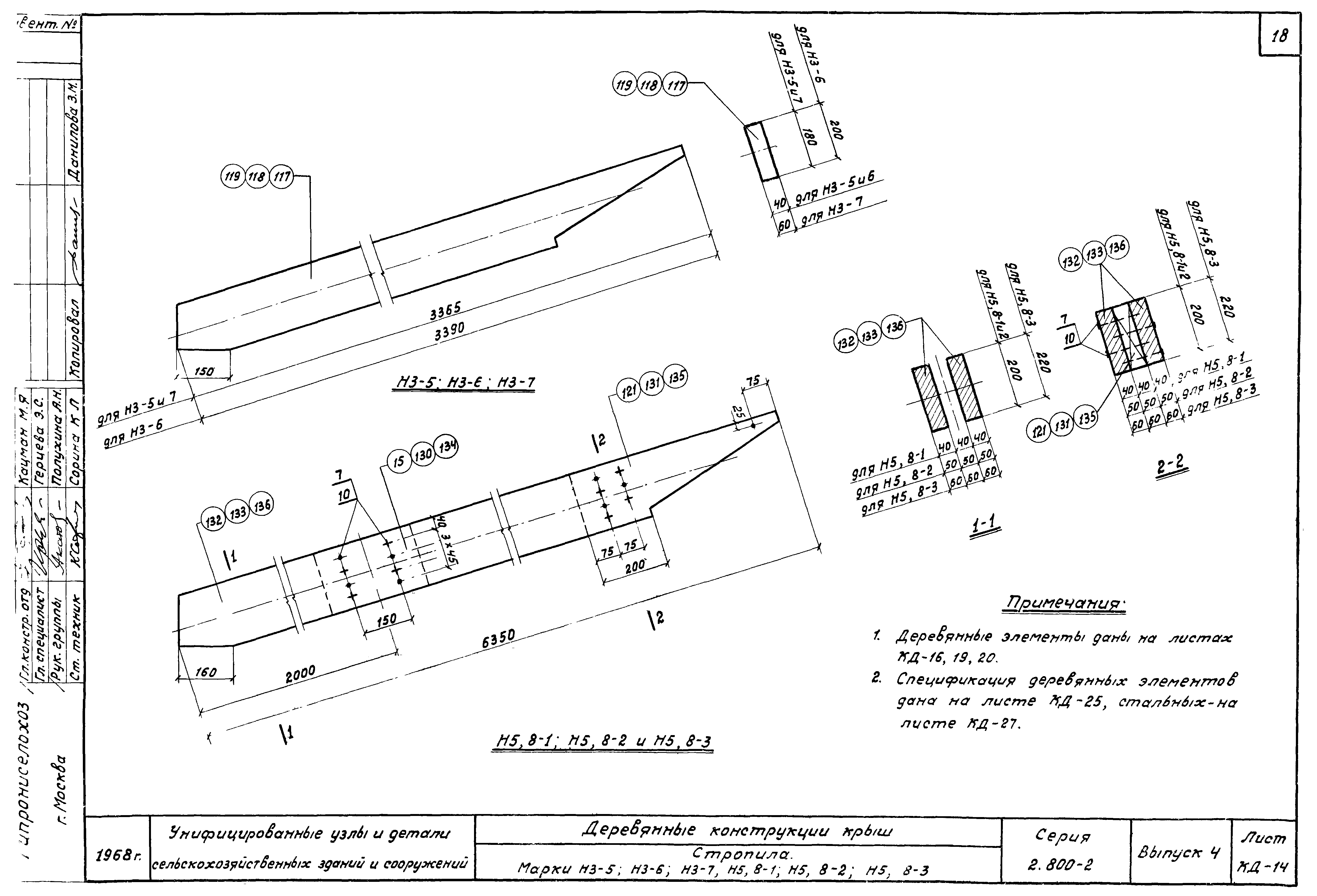
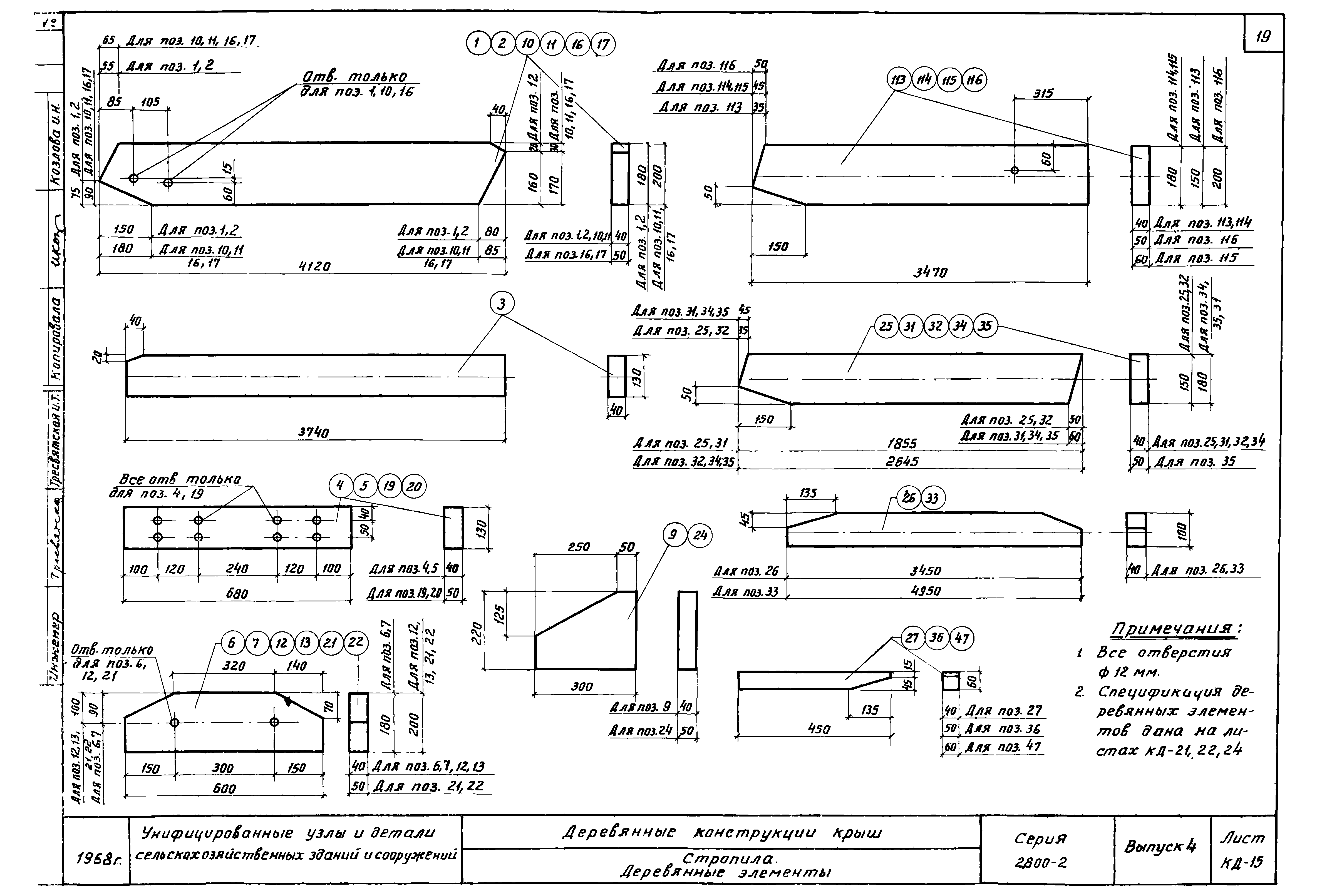
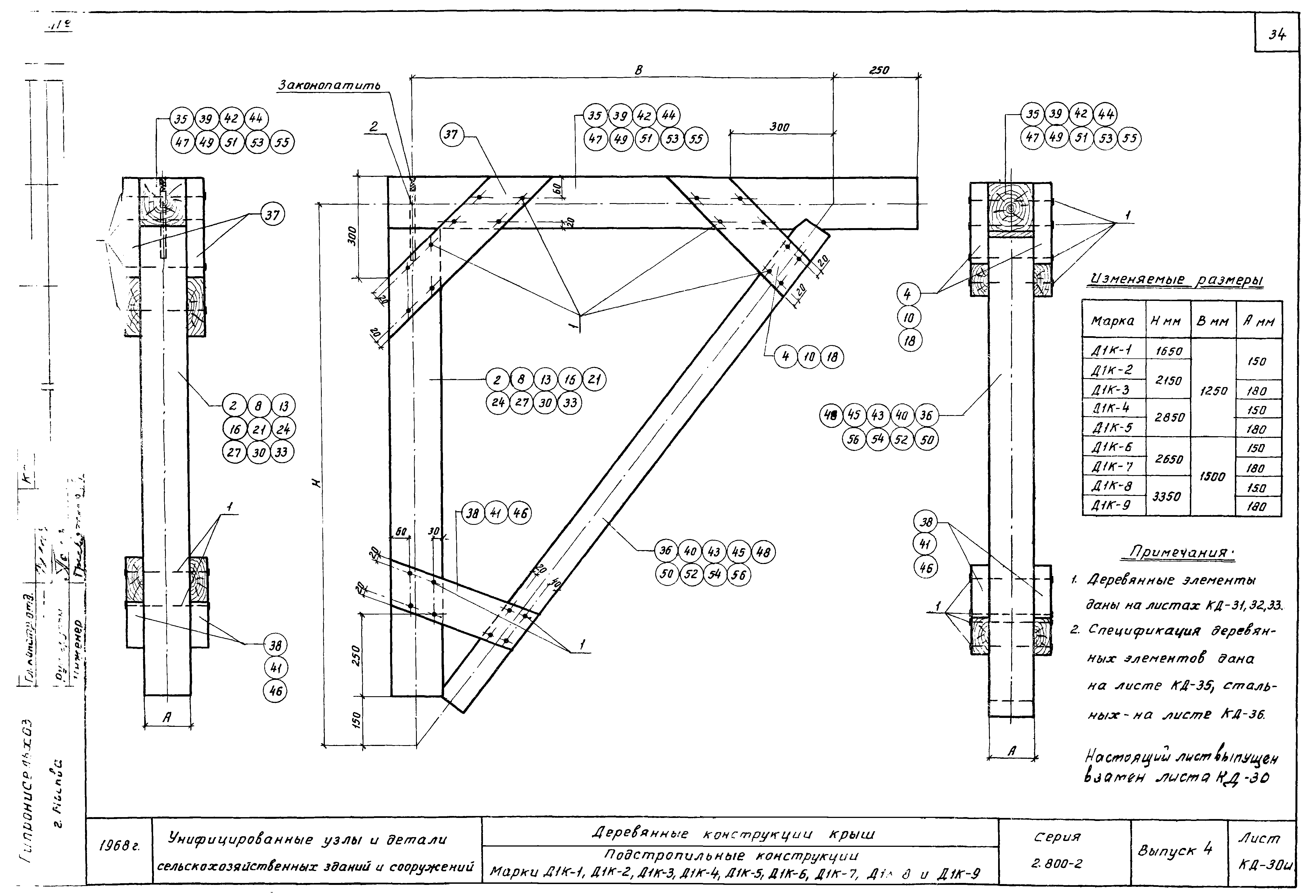
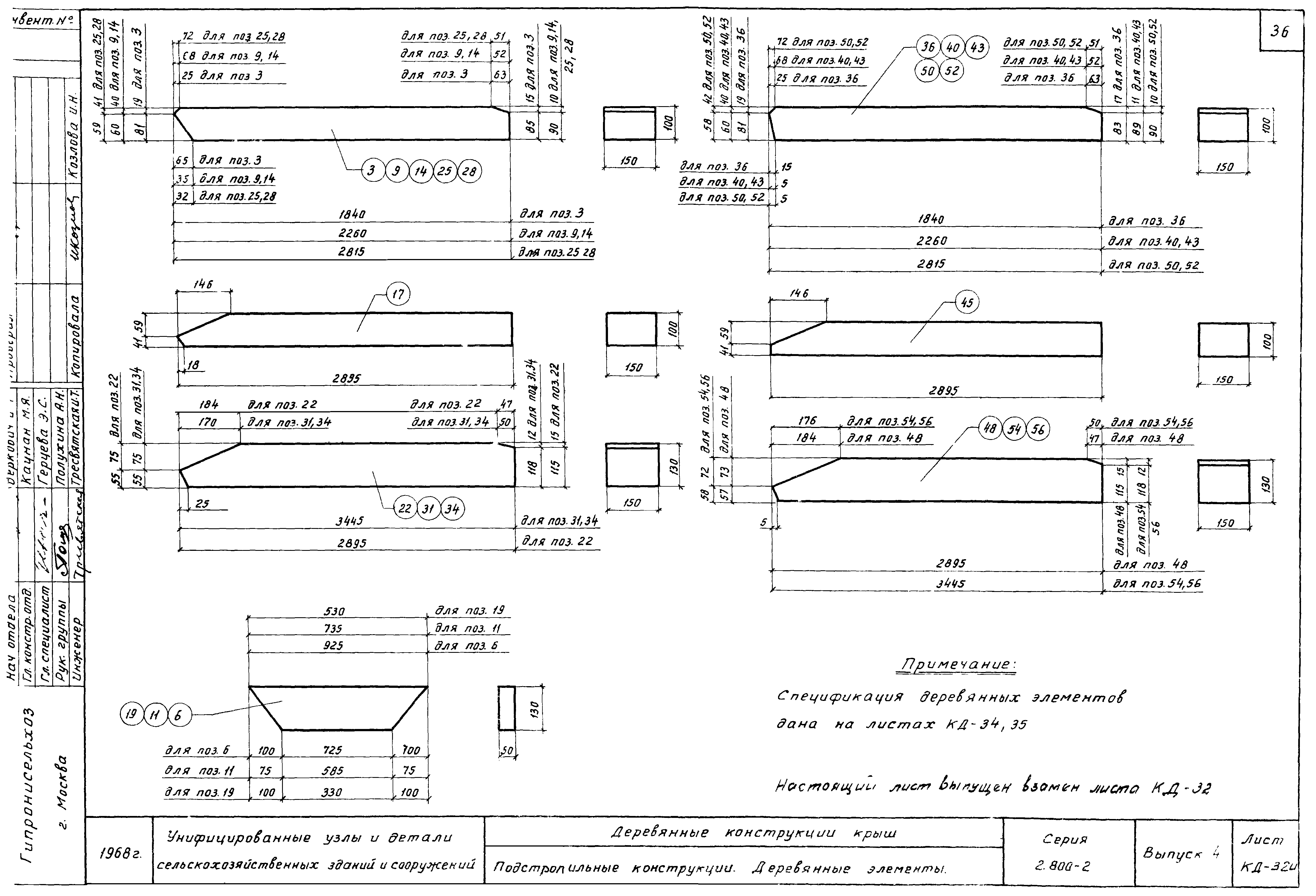
| Оглавление: | Пояснительная записка КД-1 Стропила. Расчетные и маркировочные схемы. Ключ для подбора стропил и мауэрлатов КД-2 Стропила. Комплектовочная ведомость и расход материалов КД-3 Стропила. Марки С7,5-1,С7,5-2,С7,5-3 КД-4 Стропила. Марки Ф3-1,Ф3-2 КД-5 Стропила. Марки Ф4,5-1,Ф4,5-2,Ф4,5-3 КД-6 Стропила. Марки Ф6-1,Ф6-2,Ф6-3 КД-7 Стропила. Марки Ф3-1,5-1 КД-8 Стропила. Марки Ф3-1,5-2,Ф3-1,5-3 КД-9 Стропила. Марки Ф3-1,5-4,Ф3-1,5-5,Ф3-1,5-6 КД-10 Стропила. Марки Ф6-1,5-1,Ф6-1,6-2,Ф6-1,5-3 КД-11 Стропила. Марки Ф3-1,7-1,Ф3-1,7-2,Ф3-1,7-2,Ф3-1,7-3 КД-12 Стропила. Марки Ф6-1,7-1,Ф6-1,7-2,Ф6-1,7-3 КД-13 Стропила. Марки Н3-1,Н3-2,Н3-3,Н3-4,Н4.5-1,Н4.5-2,Н4.5-3,Н4.5-4,Н4.5-5 КД-14 Стропила. Марки Н3-5,Н3-6,Н3-7,Н5.8-1,Н5.8-2,Н5.8-3 КД-15 Стропила. Деревянные элементы КД-16 Стропила. Деревянные элементы КД-17 Стропила. Деревянные элементы КД-18 Стропила. Деревянные элементы КД-19 Стропила. Деревянные элементы КД-20 Стропила. Деревянные элементы КД-21 Стропила. Спецификация деревянных элементов КД-22 Стропила. Спецификация деревянных элементов КД-23 Стропила. Спецификация деревянных элементов КД-24 Стропила. Спецификация деревянных элементов КД-25 Стропила. Спецификация деревянных элементов КД-26 Стропила. Спецификация деревянных элементов КД-27 Стропила. Спецификация стальных элементов КД-28И Подстропильные конструкции. Маркировочная схема. Ключ для подбора подстропильных конструкций. Расход материалов КД-29И Подстропильные конструкции. Марки Д1С-1,Д1С-2,Д1С-3,Д1С-4,Д1С-5,Д1С-6,Д1С-7,Д1С-8 и Д1С-9 КД-30И Подстропильные конструкции. Марки Д1К-1,Д1К-2,Д1К-3,Д1К-4,Д1К-5,Д1К-6,Д1К-7,Д1К-8 и Д1К-9 КД-31И Подстропильные конструкции. Деревянные элементы КД-32И Подстропильные конструкции. Деревянные элементы КД-33И Подстропильные конструкции. Марки Д2-1,Д2-2,Д2-3,Д2-4,Д2-5,Д2-6,Д2-7 и деревянные элементы КД-34И Подстропильные конструкции. Спецификация деревянных элементов КД-35И Подстропильные конструкции. Спецификация деревянных элементов КД-36И Подстропильные конструкции. Спецификация деревянных и стальных элементов |
| Разработан: | ГипроНИсельхоз (Институт Гипронисельхоз ) |
| Утверждён: | 19.02.1969 Главсельстройпроект Минсельхоза СССР (Glavselstroyproject, USSR Minselkhoz 15) |







































