Скачать Серия ПК-01-133 Рабочие чертежи КМ. Стальные конструкции покрытий промышленных зданий с плоской кровлей пролетами 24, 30 и 36 м. Шаг ферм 6 и 12 мДата актуализации: 01.01.2021
|
| Обозначение: | Серия ПК-01-133 |
| Обозначение англ: | Series ПК-01-133 |
| Статус: | действует |
| Название рус.: | Рабочие чертежи КМ. Стальные конструкции покрытий промышленных зданий с плоской кровлей пролетами 24, 30 и 36 м. Шаг ферм 6 и 12 м |
| Дата добавления в базу: | 01.09.2013 |
| Дата актуализации: | 01.01.2021 |
| Дата введения: | 01.10.1965 |
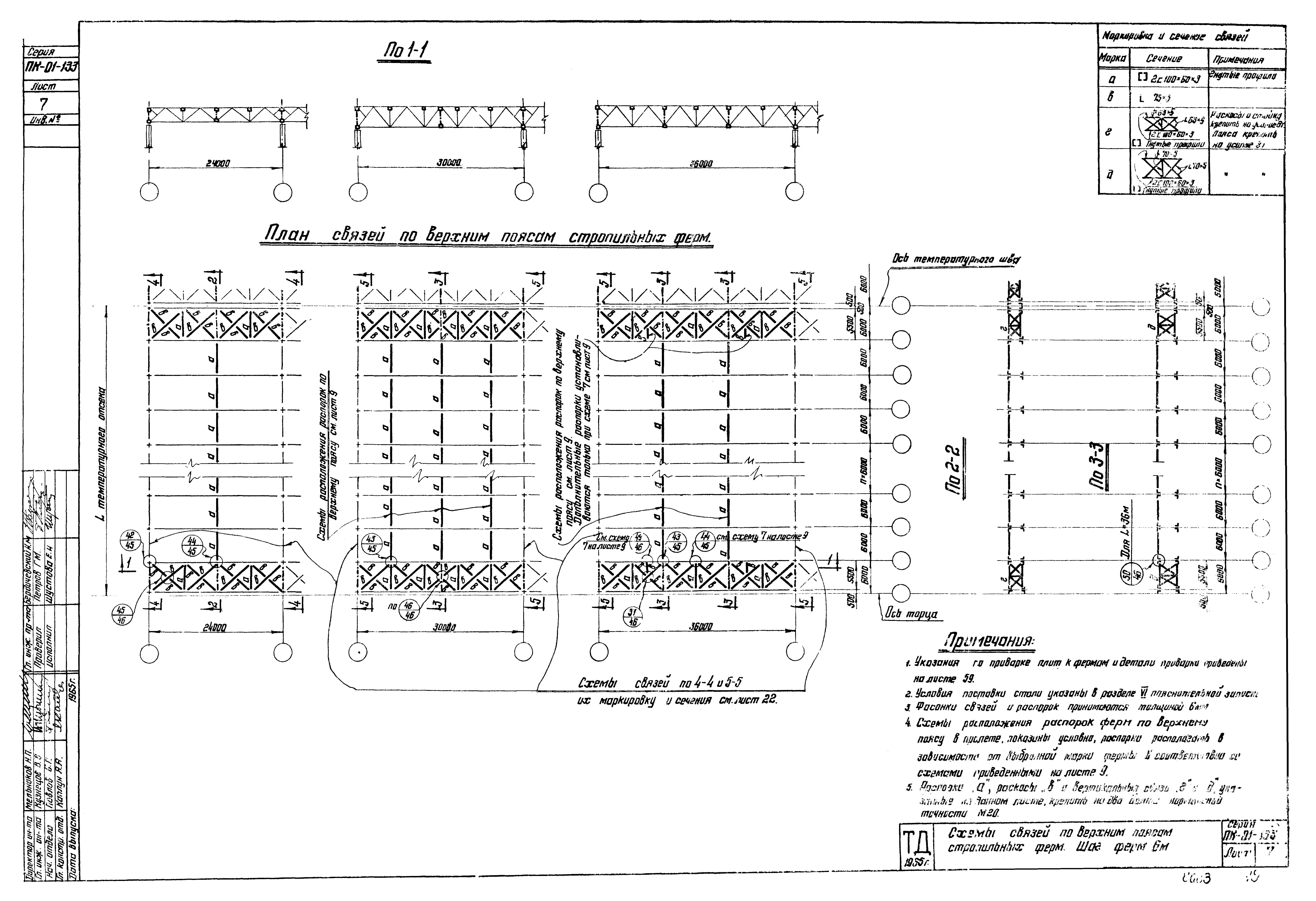
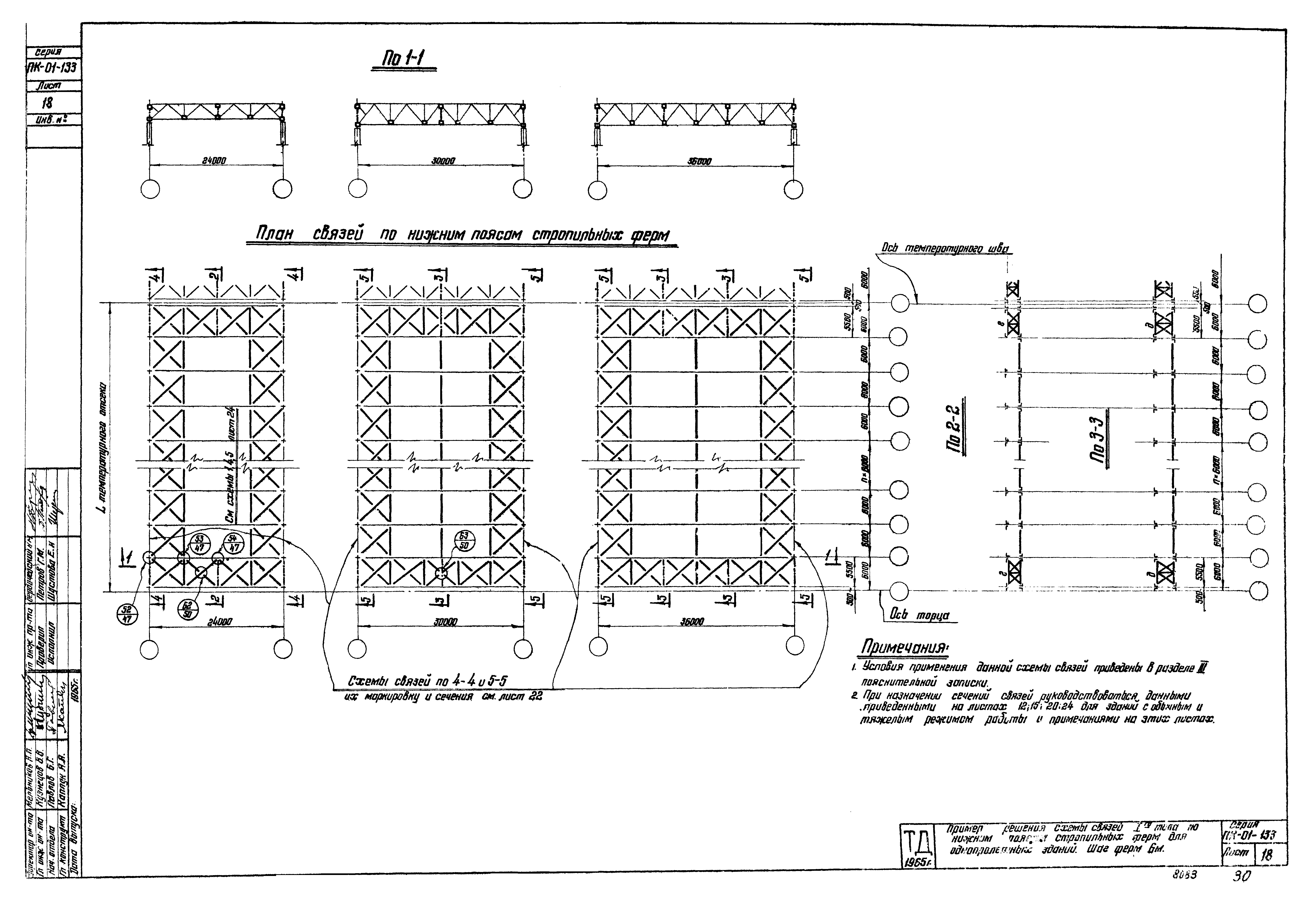
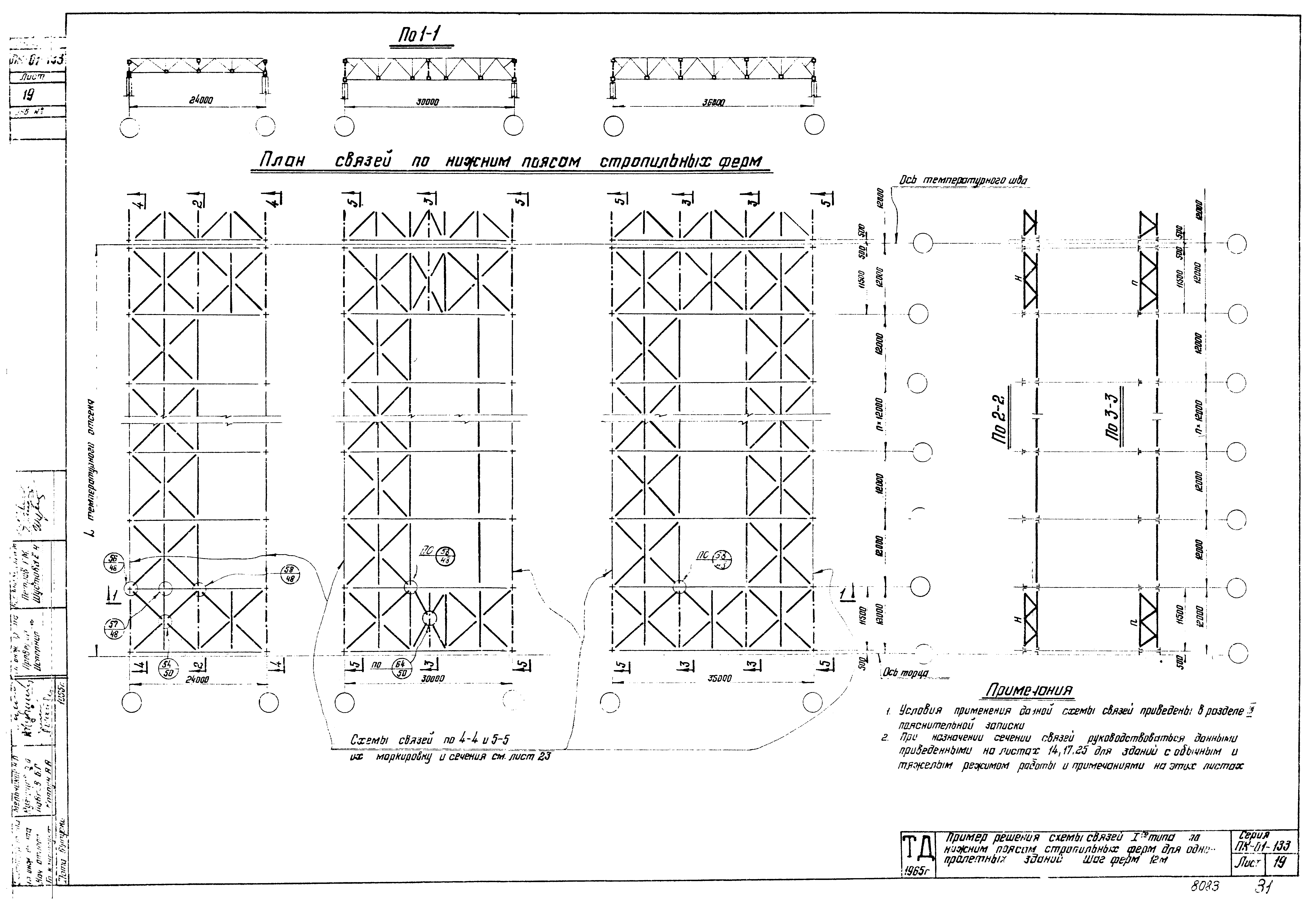
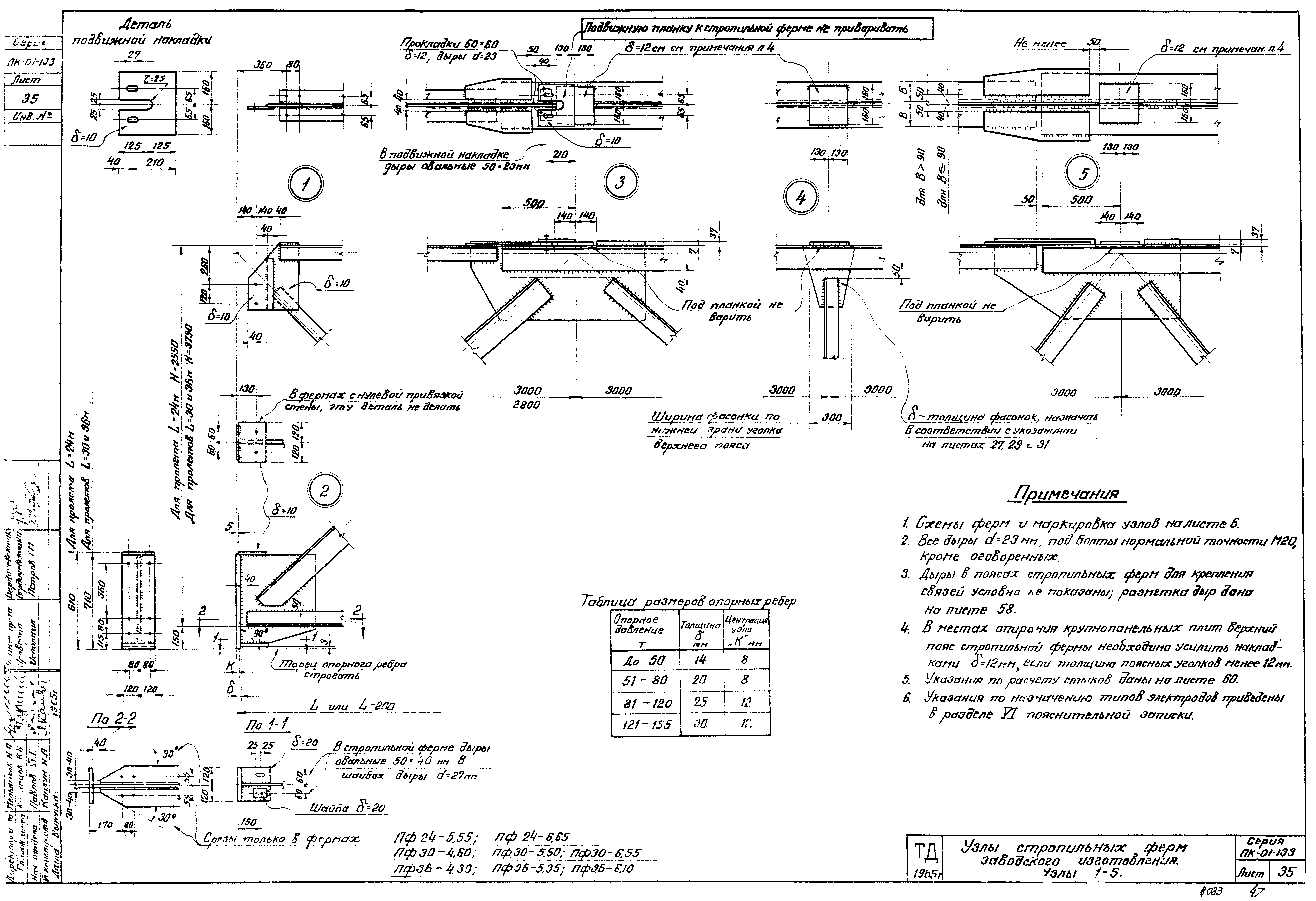
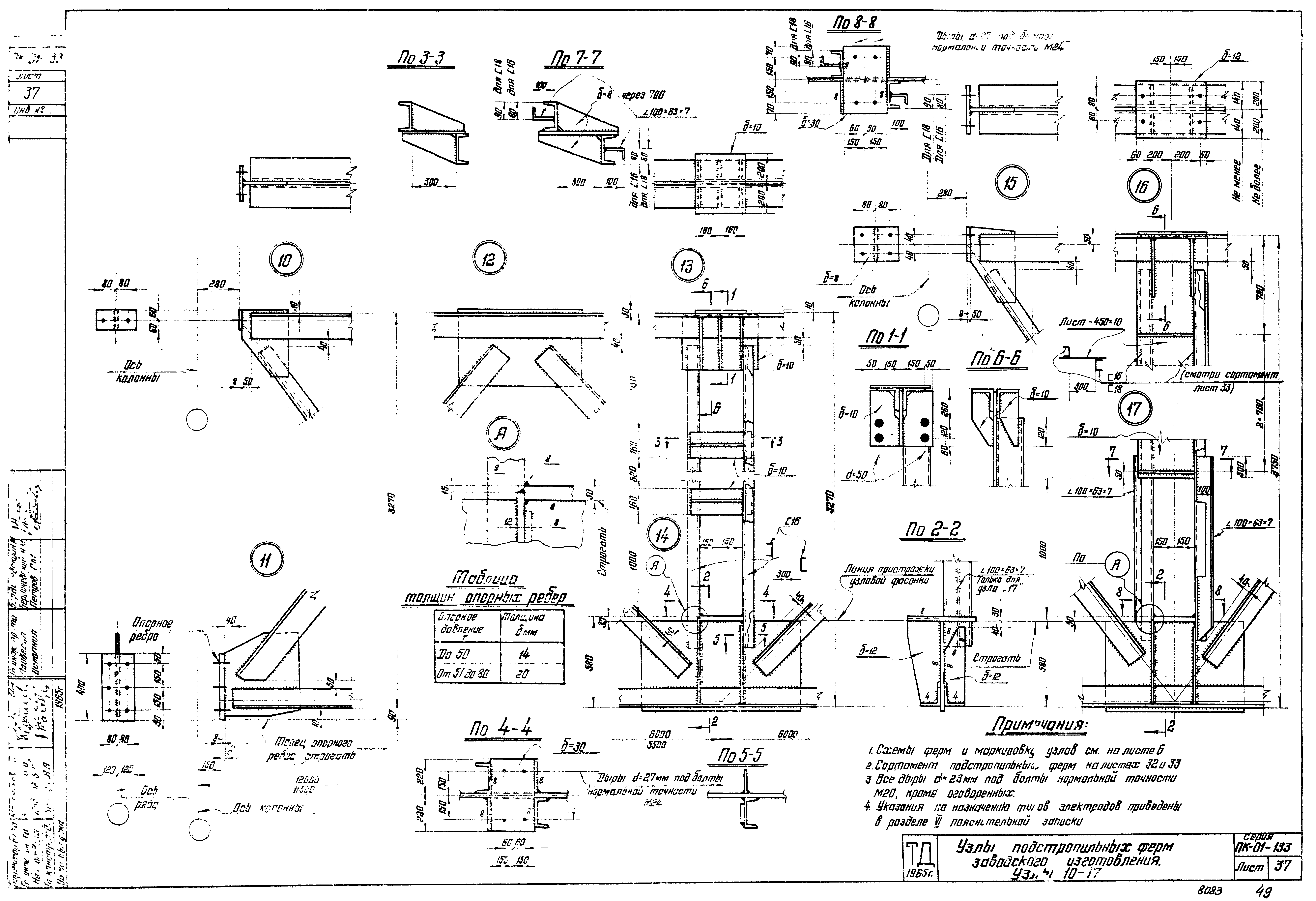
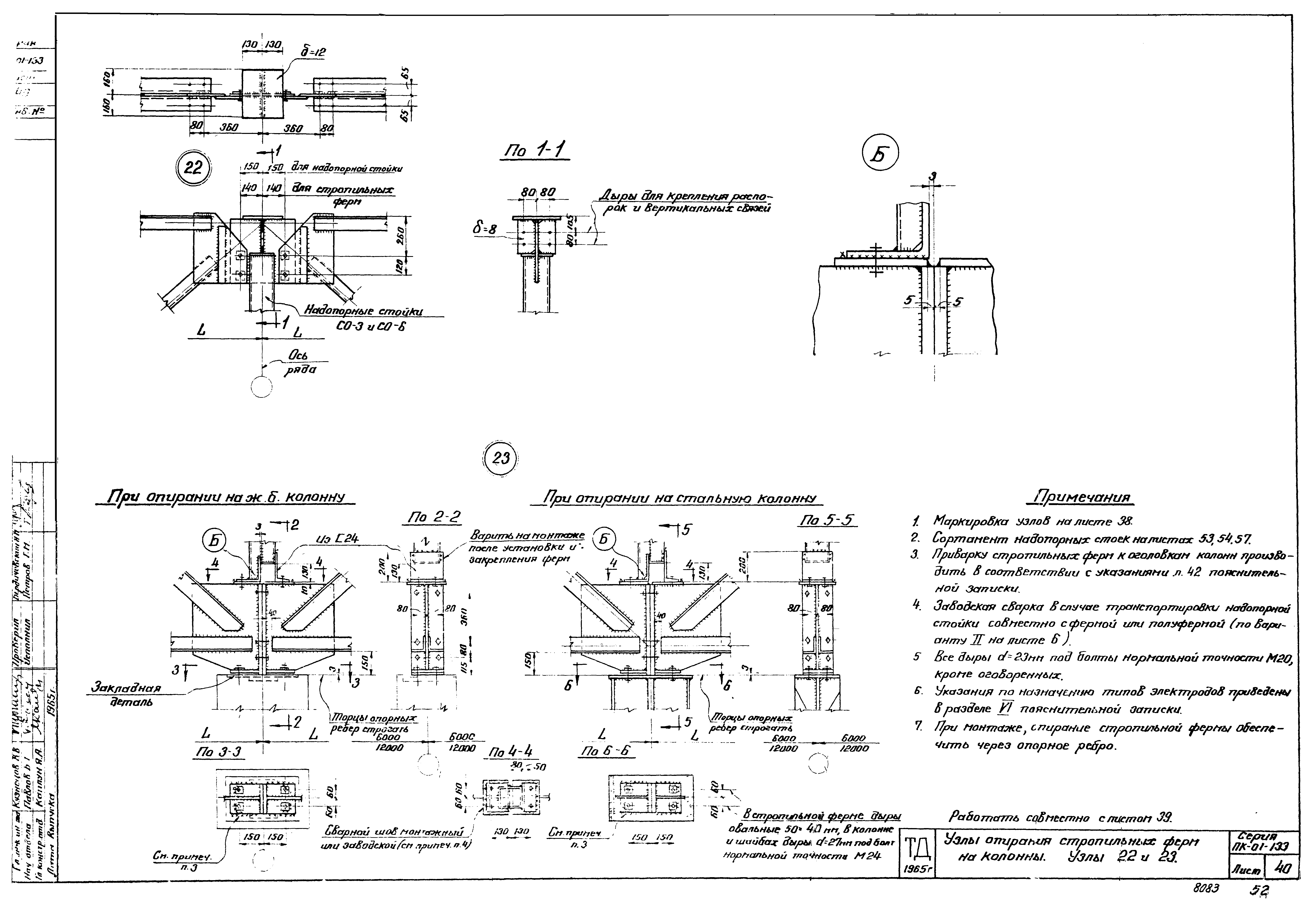
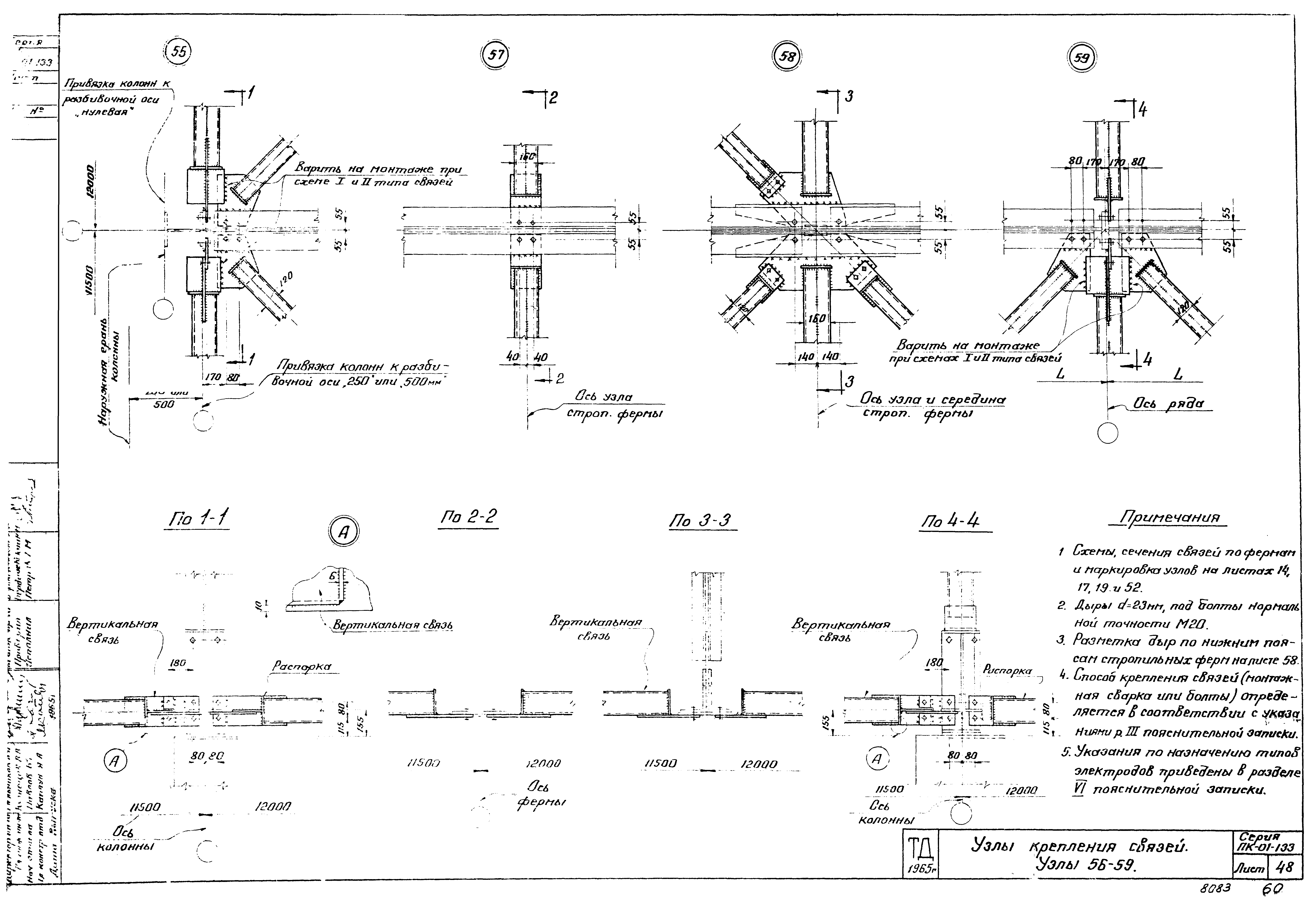
| Оглавление: | Пояснительная записка Эквивалентные равномерно-распределенные расчетные нагрузки от снеговых отложений в перепадах покрытия Эквивалентные равномерно-распределенные расчетные нагрузки для ферм пролетом 24 м от подвесного подъемно-транспортного оборудования (кран-балки) и схемы нагрузок. Шаг ферм 6 м Схема распределения ветровых площадей торцевых стен здания для определения ветровых Расчетные ветровые нагрузки с торцов зданий при одинаковых пролетах на систему связей по фермам, расположенную по ряду колонн Расчетные ветровые нагрузки с торцов зданий при разных пролетах на систему связей по фермам, расположенную по ряду колонн Схемы стропильных и подстропильных ферм с маркировкой узлов заводского изготовления. Разбивка стропильных и подстропильных ферм на отправочные марки и маркировка монтажных узлов Схемы связей по верхним поясам стропильных ферм. Шаг ферм 6 м Схемы связей по верхним поясам стропильных ферм. Шаг ферм 12 м Схемы расположения распорок по верхним поясам стропильных ферм. Шаг ферм 6 и 12 м Схема связей 2го типа по нижним поясам стропильных ферм для зданий с обычным режимом работы. Шаг ферм 6 м Схема связей 2го типа по нижним поясам стропильных ферм для зданий с обычным режимом работы. Шаг ферм 12 м Пример решения схемы связей 1го типа по нижним поясам стропильных ферм для зданий с обычным режимом работы при числе пролетов в температурном отсеке более 3х. Шаг ферм и колонн 6 м Пример решения схемы связей 1го типа по нижним поясам стропильных ферм для зданий с обычным режимом работы при числе пролетов в температурном отсеке более 3х. Шаг ферм 6 м. Шаг колонн по средним рядам 12 м Пример решения схемы связей 1го типа по нижним поясам стропильных ферм для зданий с обычным режимом работы при числе пролетов в температурном отсеке более 3х. Шаг ферм 6 м. Шаг ферм и колонн 12 м Пример решения схемы связей 1го типа по нижним поясам стропильных ферм для зданий с тяжелым режимом работы при числе пролетов в температурном отсеке более 3х. Шаг ферм и колонн 6 м Пример решения схемы связей 1го типа по нижним поясам стропильных ферм для зданий с тяжелым режимом работы при числе пролетов в температурном отсеке более 3х. Шаг ферм 6 м. Шаг колонн по средним рядам 12 м Пример решения схемы связей 1го типа по нижним поясам стропильных ферм для зданий с тяжелым режимом работы при числе пролетов в температурном отсеке более 3х. Шаг ферм и колонн 12 м Пример решения схемы связей 1го типа по нижним поясам стропильных ферм для однопролетных зданий. Шаг ферм 6 м Пример решения схемы связей 1го типа по нижним поясам стропильных ферм для однопролетных зданий. Шаг ферм 12 м Пример решения схемы связей 1го типа по нижним поясам стропильных ферм для зданий с тяжелым режимом работы пролетами 24 м, при числе пролетов в температурном отсеке более 3х. Шаг ферм 6 м. Шаг колонн по средним рядам 12 м Пример решения схемы связей по нижним поясам стропильных ферм для зданий пролетом 24 м при наличии подвесного транспорта Разрезы 4-4 и 5-5 - связи между фермами по продольным рядам колонн. Шаг ферм 6 м Разрезы 4-4 и 5-5 - связи между фермами по продольным рядам колонн. Шаг ферм 12 м Расположение распорок и растяжек по нижним поясам стропильных ферм для схем связей 1го типа. Шаг ферм 6 м Расположение распорок и растяжек по нижним поясам стропильных ферм для схем связей 1го типа. Шаг ферм 12 м Сортамент стропильных ферм под плоскую кровлю пролетом 24 м с поясами из низколегированной стали Сортамент стропильных ферм под плоскую кровлю пролетом 30 м с поясами из низколегированной стали Сортамент стропильных ферм под плоскую кровлю пролетом 36 м с поясами из низколегированной стали Сортамент подстропильных ферм пролетом 12 м для стропильных ферм пролетом 24 м Сортамент подстропильных ферм пролетом 12 м для стропильных ферм пролетом 30 и 36 м Дополнительные шпренгели в фермах при снеговых отложениях в местах перепадов. Расчетные усилия и сечения Узлы стропильных ферм заводского изготовления. Узлы 1-5 Узлы стропильных ферм в местах монтажных стыков. Узлы 6-9 Узлы подстропильных ферм заводского изготовления. Узлы 10-17 Схема узлов опирания стропильных и подстропильных ферм на надопорные стойки и колонны Узлы опирания стропильных ферм. Узлы 18-21 Узлы опирания стропильных ферм на колонны. Узлы 22 и 23 Узлы опирания стропильных и подстропильных ферм на надопорные стойки и колонны. Узлы 24-27 Узлы опирания стропильных ферм на подстропильную ферму. Узлы 28-31 Узлы опирания стропильных и подстропильных ферм на надопорные стойки и колонны в повышенной части зданий у перепада. Узлы 32-34 Узлы крепления стропильных ферм к надопорным стойкам по нижней части здания у перепада. Узлы 35-41 Узлы крепления связей. Узлы 42-44 Узлы крепления связей. Узлы 45-51 Узлы крепления связей. Узлы 52-55 Узлы крепления связей. Узлы 56-59 Узлы крепления связей. Узлы 60-61 Узлы крепления связей и балок кранового пути. Узлы 62-69 Узлы стропильных ферм пролетом 24 м с подвесным транспортом. Узлы 70-72 Схема связей между фермами по продольным крайним рядам колонн с шагом 12 м, с промежуточными стойками фахверка через 6 м. Шаг ферм 12 м. Узлы 73-76 Схемы надопорных стоек Надопорные стойки СО-1,СО-2,СО-3,СО-4,СО-5,СО-6 Надопорные стойки СО-7 и СО-8 Надопорные стойки СО-9 и СО-10 Надопорные стойки СО-11 и таблица сортамента надопорных стоек Разметка дыр по верхним и нижним поясам стропильных ферм Раскладка крупнопанельных плит и детали их приварки к поясам стропильных ферм Указания по расчету монтажных и заводских стыков поясных уголков в узлах ферм Весовые показатели стропильных и подстропильных ферм Усилия в стержнях стропильных ферм от единичных нагрузок Несущая способность стержней стропильных ферм. Пояса и стойки Несущая способность стержней стропильных ферм. Раскосы. Сталь марки "Сталь 3" Спецификация стали стропильных ферм Спецификация стали подстропильных ферм Сравнение весовых показателей при применении в температурном блоке 2х марок ферм. Шаг ферм 12 м |
| Разработан: | Проектстройконструкция |
| Утверждён: | 18.08.1965 Госстрой СССР (Государственный комитет Совета Министров СССР по делам строительства) (USSR Gosstroy 142) |
















































































