Скачать Том 6. Рабочие чертежи КМ переходных опорДата актуализации: 01.01.2021
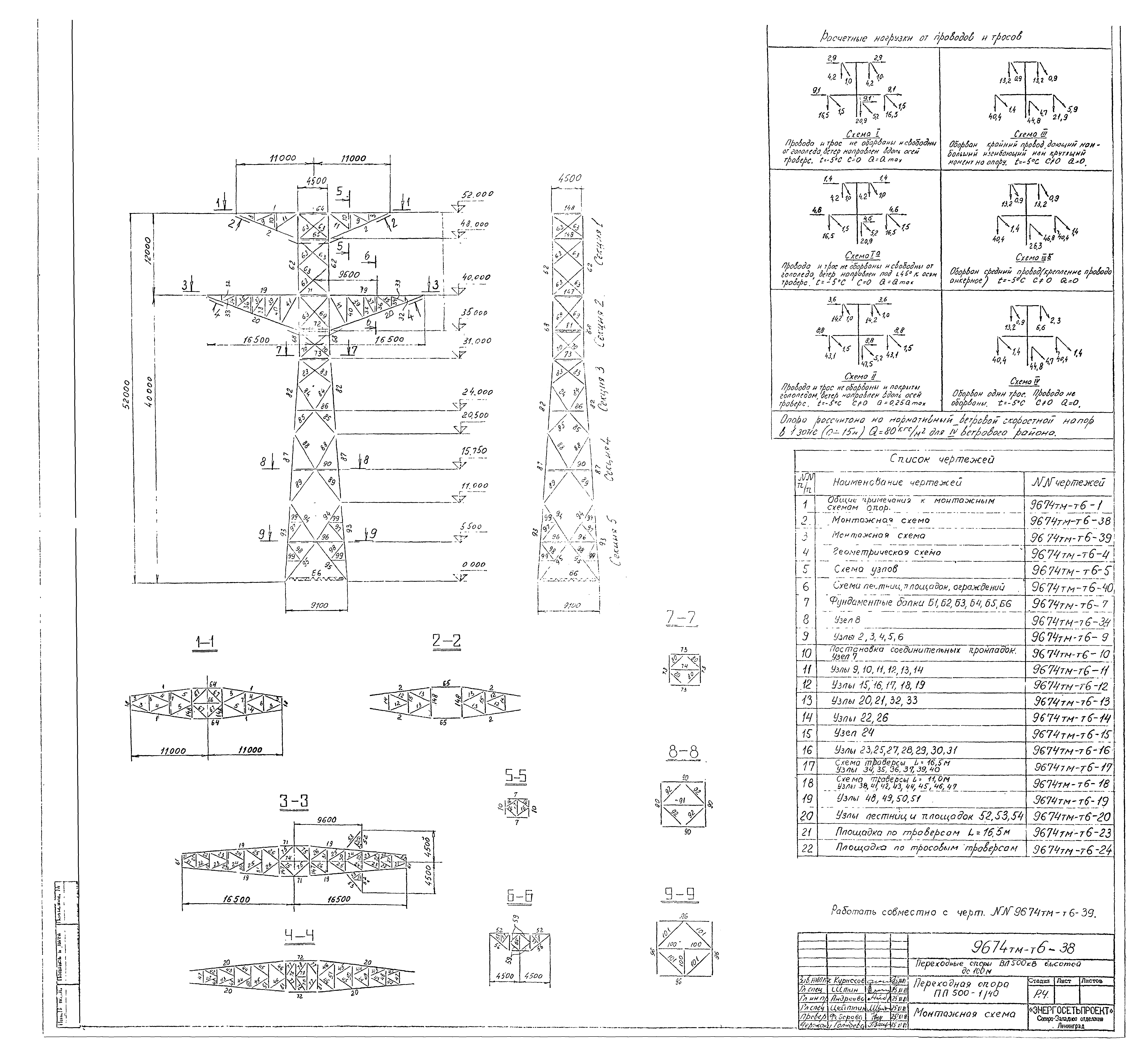
Том 6. Рабочие чертежи КМ переходных опор| Статус: | справочные материалы, мп, тпр | | Название рус.: | Том 6. Рабочие чертежи КМ переходных опор | | Дата добавления в базу: | 01.09.2013 | | Дата актуализации: | 01.01.2021 | | Оглавление: | Обложка Титульные листы Состав проекта Содержание тома 6 Сведения по технической документации Чертежи 9674ТМ-Т6-1 Общие примечания к монтажным схемам опор 9674ТМ-Т6-2 Переходная опора ПП500-1/100. Монтажная схема 9674ТМ-Т6-3 Переходная опора ПП500-1/100. Монтажная схема 9674ТМ-Т6-4 Переходная опора ПП500-1/100. Геометрическая схема 9674ТМ-Т6-5 Переходная опора ПП500-1/100. Схема узлов 9674ТМ-Т6-6 Переходная опора ПП500-1/100. Схема лестниц, площадок, ограждений 9674ТМ-Т6-7 Переходные опоры. Фундаментные балки Б1,Б2,Б3,Б4,Б5 9674ТМ-Т6-8 Узел 1 9674ТМ-Т6-9 Узлы 2,3,4,5,6 9674ТМ-Т6-10 Подставка соединительных прокладок. Узел 7 9674ТМ-Т6-11 Узлы 9,10,11,12,13,14 9674ТМ-Т6-12 Узлы 15,16,17,18,19 9674ТМ-Т6-13 Узлы 20,21,32,33 9674ТМ-Т6-14 Узлы 22,26 9674ТМ-Т6-15 Узел 24 9674ТМ-Т6-16 Узлы 23,25,27,28,29,30,31 9674ТМ-Т6-17 Схема траверсы L=16.5 м. Узлы 34,35,36,37,39,40 9674ТМ-Т6-18 Схема траверсы L=11.0 м. Узлы 38,41,42,43,44,45,46,47 9674ТМ-Т6-19 Узлы 48,49,50,51 9674ТМ-Т6-20 Узлы лестниц и площадок 52,53,54 9674ТМ-Т6-21 Площадка на отм. 42.0 м (Узлы 55,56) 9674ТМ-Т6-22 Площадка на отм. 75,75 (Узел 57) 9674ТМ-Т6-23 Площадка по траверсам L=16.5 м 9674ТМ-Т6-24 Площадка по тросовым траверсам 9674ТМ-Т6-25 Переходная опора ПП500-1/88. Монтажная схема 9674ТМ-Т6-26 Переходная опора ПП500-1/88. Монтажная схема 9674ТМ-Т6-27 Переходная опора ПП500-1/88. Схема лестниц, площадок, ограждений 9674ТМ-Т6-28 Переходная опора ПП500-1/76. Монтажная схема 9674ТМ-Т6-29 Переходная опора ПП500-1/76. Монтажная схема 9674ТМ-Т6-30 Переходная опора ПП500-1/76. Схема лестниц 9674ТМ-Т6-31 Переходная опора ПП500-1/64. Монтажная схема 9674ТМ-Т6-32 Переходная опора ПП500-1/64. Монтажная схема 9674ТМ-Т6-33 Переходная опора ПП500-1/64. Схема лестниц 9674ТМ-Т6-34 Узел 8 9674ТМ-Т6-35 Переходная опора ПП500-1/52. Монтажная схема 9674ТМ-Т6-36 Переходная опора ПП500-1/52. Монтажная схема 9674ТМ-Т6-37 Переходная опора ПП500-1/52. Схема лестниц 9674ТМ-Т6-38 Переходная опора ПП500-1/40. Монтажная схема 9674ТМ-Т6-39 Переходная опора ПП500-1/40. Монтажная схема 9674ТМ-Т6-40 Переходная опора ПП500-1/40. Схема лестниц | | Разработан: | Северо-западное отделение института Энергосетьпроект
| | Утверждён: | 01.01.1981 Энергосетьпроект (Energosetproject )
|
                                            
|