Скачать Том 10. Испытание опытных образцов переходных опор ВЛ 500 кВ высотой до 100 м

Дата актуализации: 01.01.2021

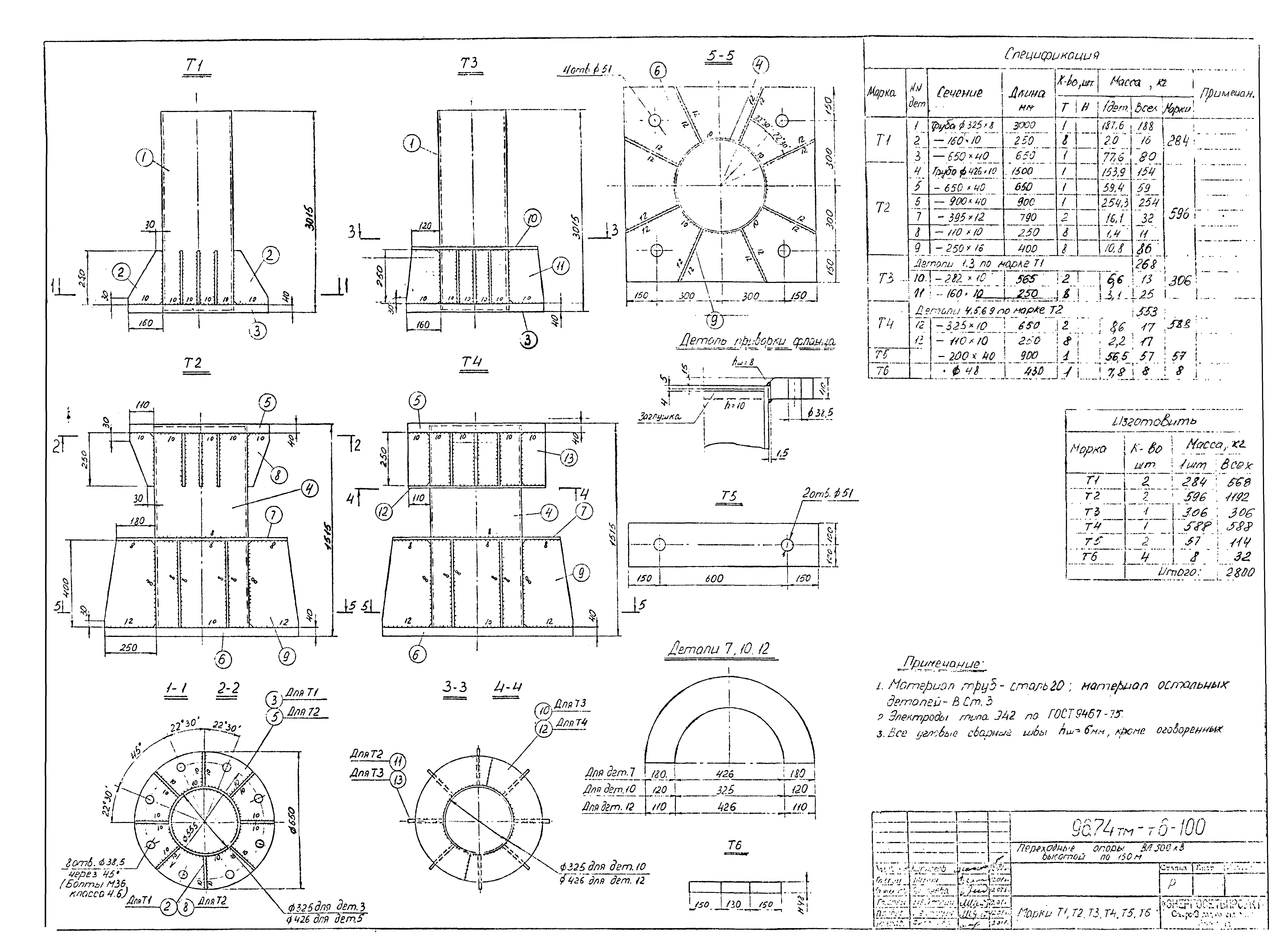
Том 10. Испытание опытных образцов переходных опор ВЛ 500 кВ высотой до 100 м

Статус:справочные материалы, мп, тпр
Название рус.:Том 10. Испытание опытных образцов переходных опор ВЛ 500 кВ высотой до 100 м
Дата добавления в базу:01.09.2013
Дата актуализации:01.01.2021
Оглавление:Список исполнителей
Оглавление
Введение
Цель испытаний
Объем, методика и схема испытаний
Измерения при испытаниях
Освидетельствования конструкций
Результаты испытаний стыков
Выводы
Разработан: Северо-западное отделение института Энергосетьпроект
Утверждён:01.01.1984 Энергосетьпроект (Energosetproject )