Скачать Серия ИИ-04-2 Выпуск 2. Железобетонные колонны сечением 400х400 мм для зданий в 5 - 12 этажей. Рабочие чертежиДата актуализации: 01.01.2021
|
| Обозначение: | Серия ИИ-04-2 |
| Обозначение англ: | Series ИИ-04-2 |
| Статус: | не действует |
| Название рус.: | Выпуск 2. Железобетонные колонны сечением 400х400 мм для зданий в 5 - 12 этажей. Рабочие чертежи |
| Дата добавления в базу: | 01.09.2013 |
| Дата актуализации: | 01.01.2021 |
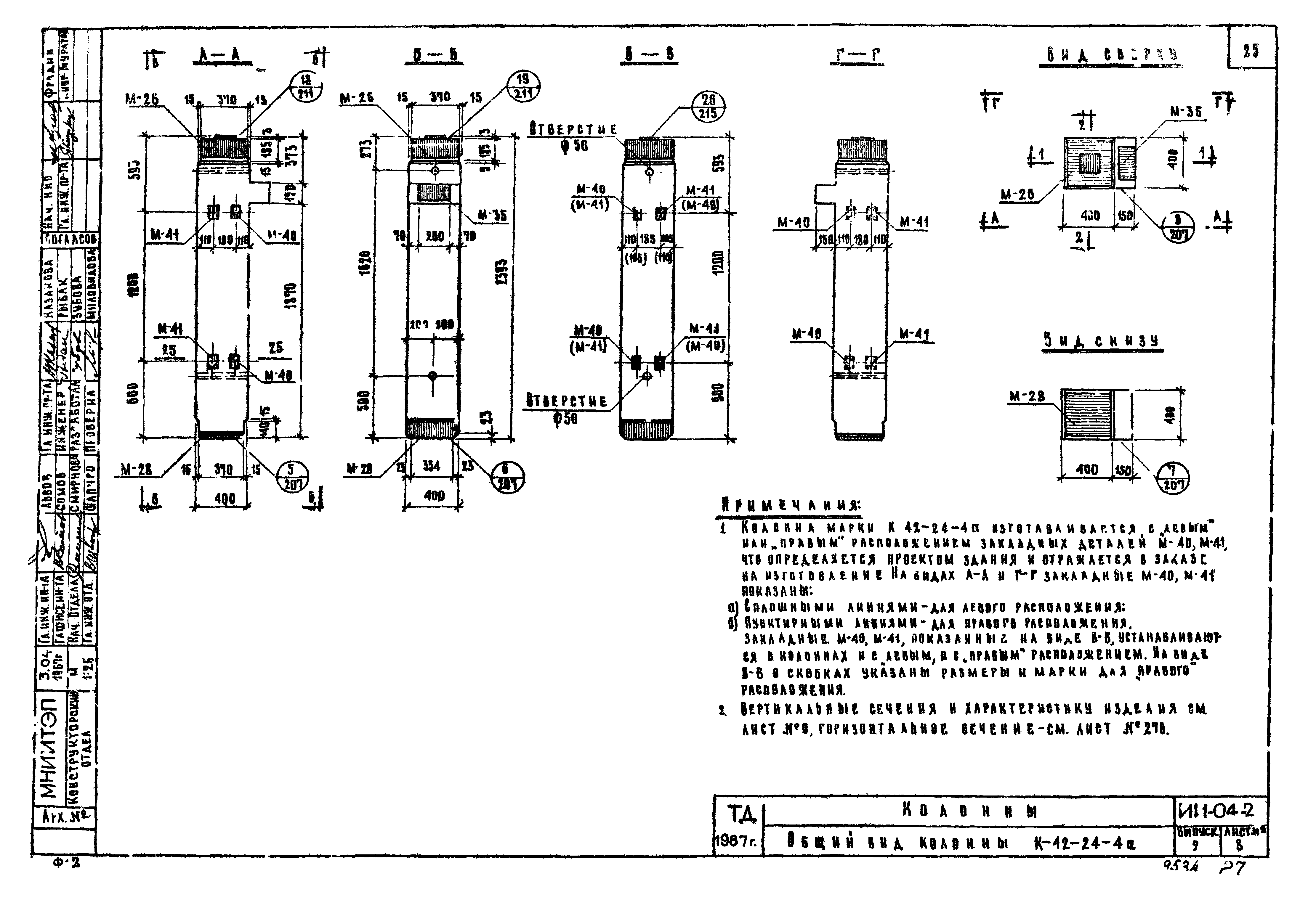
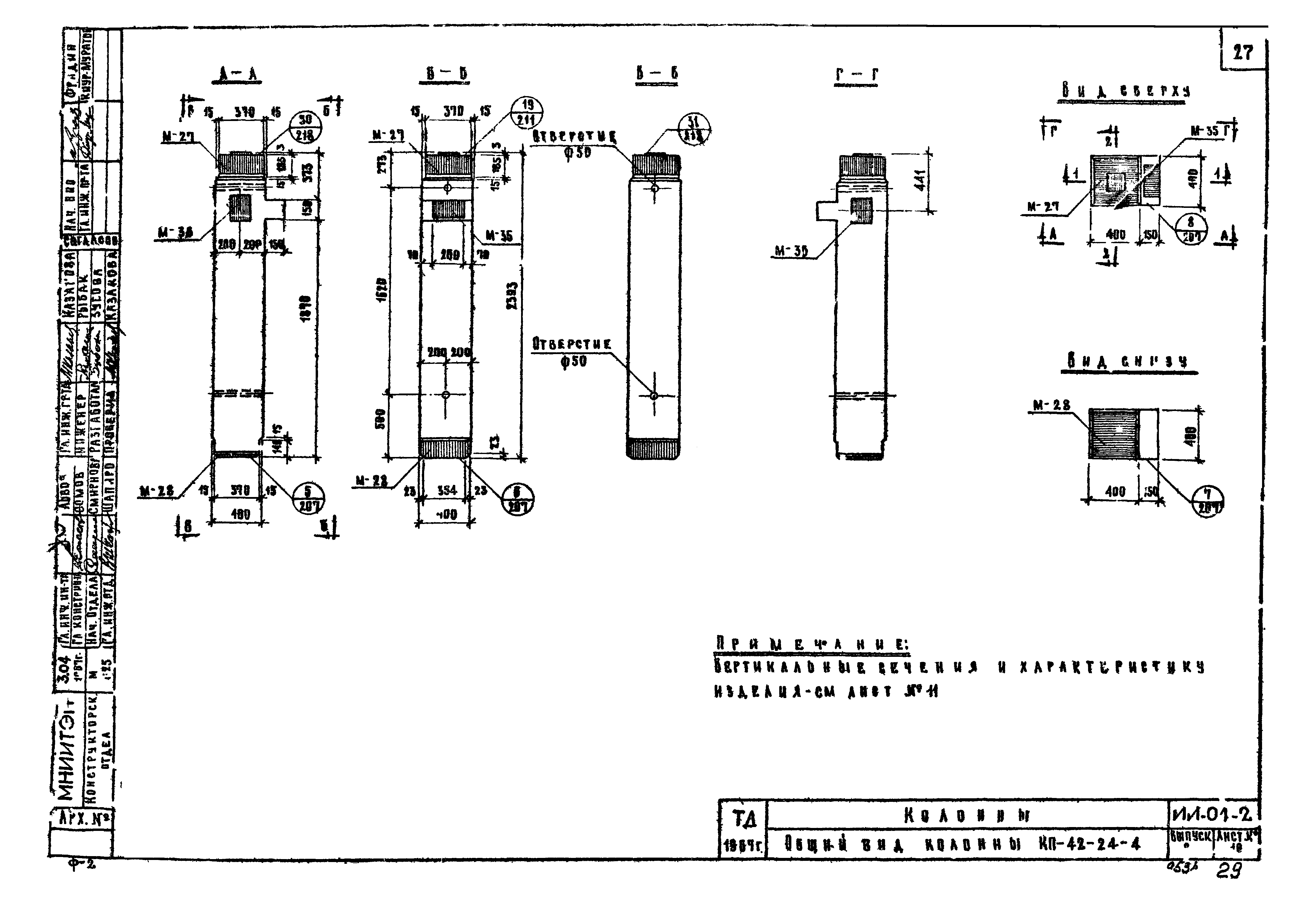
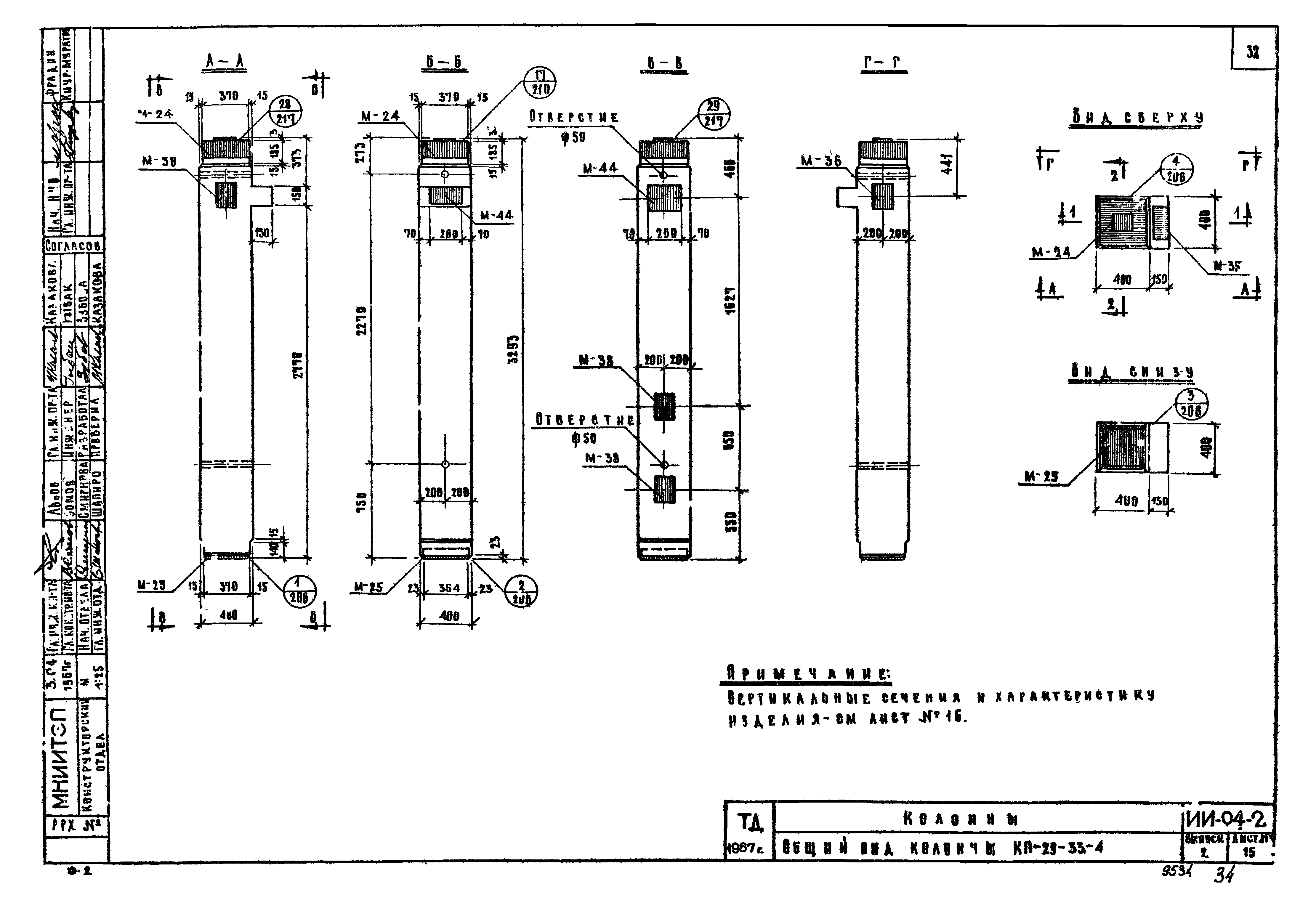
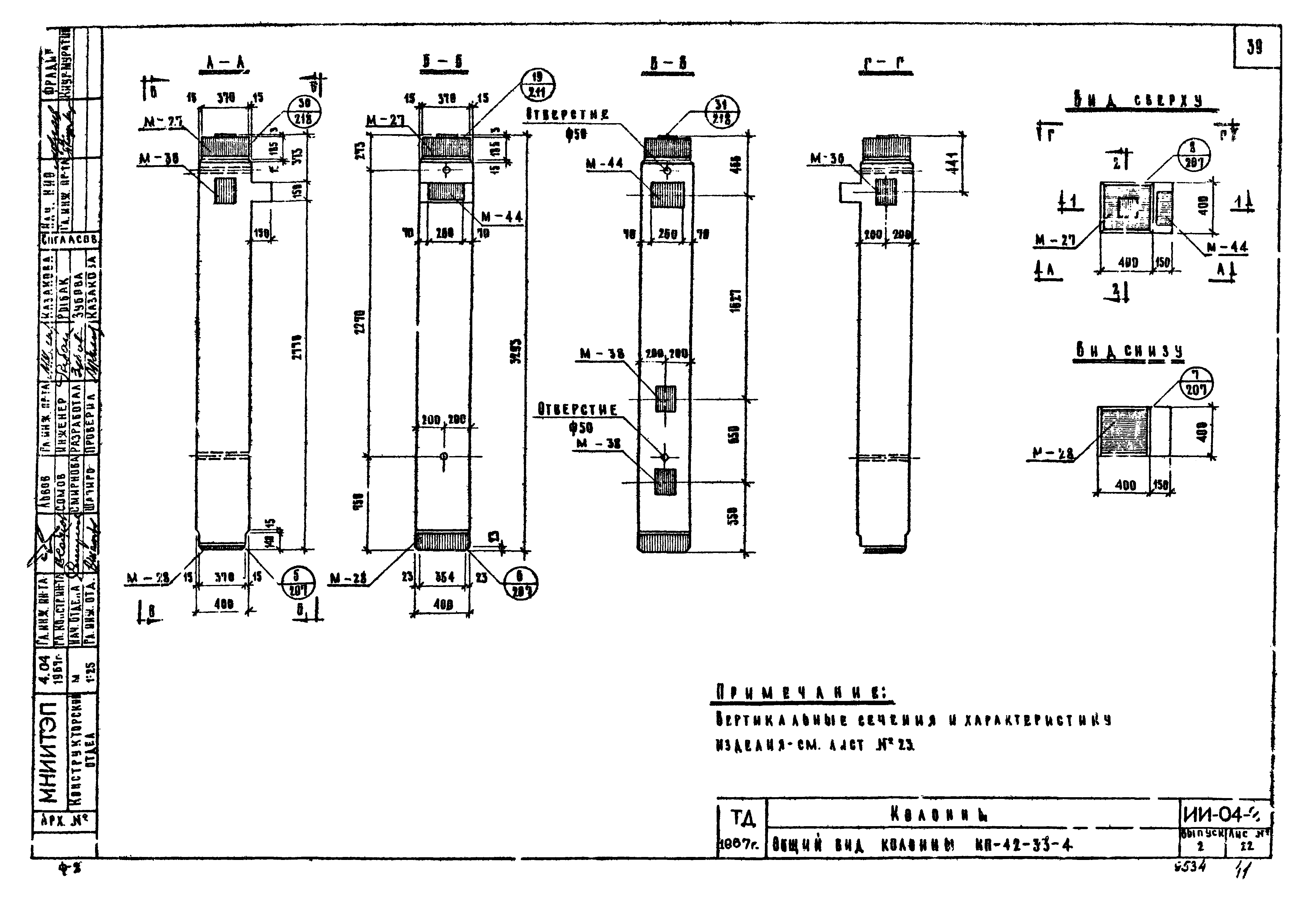
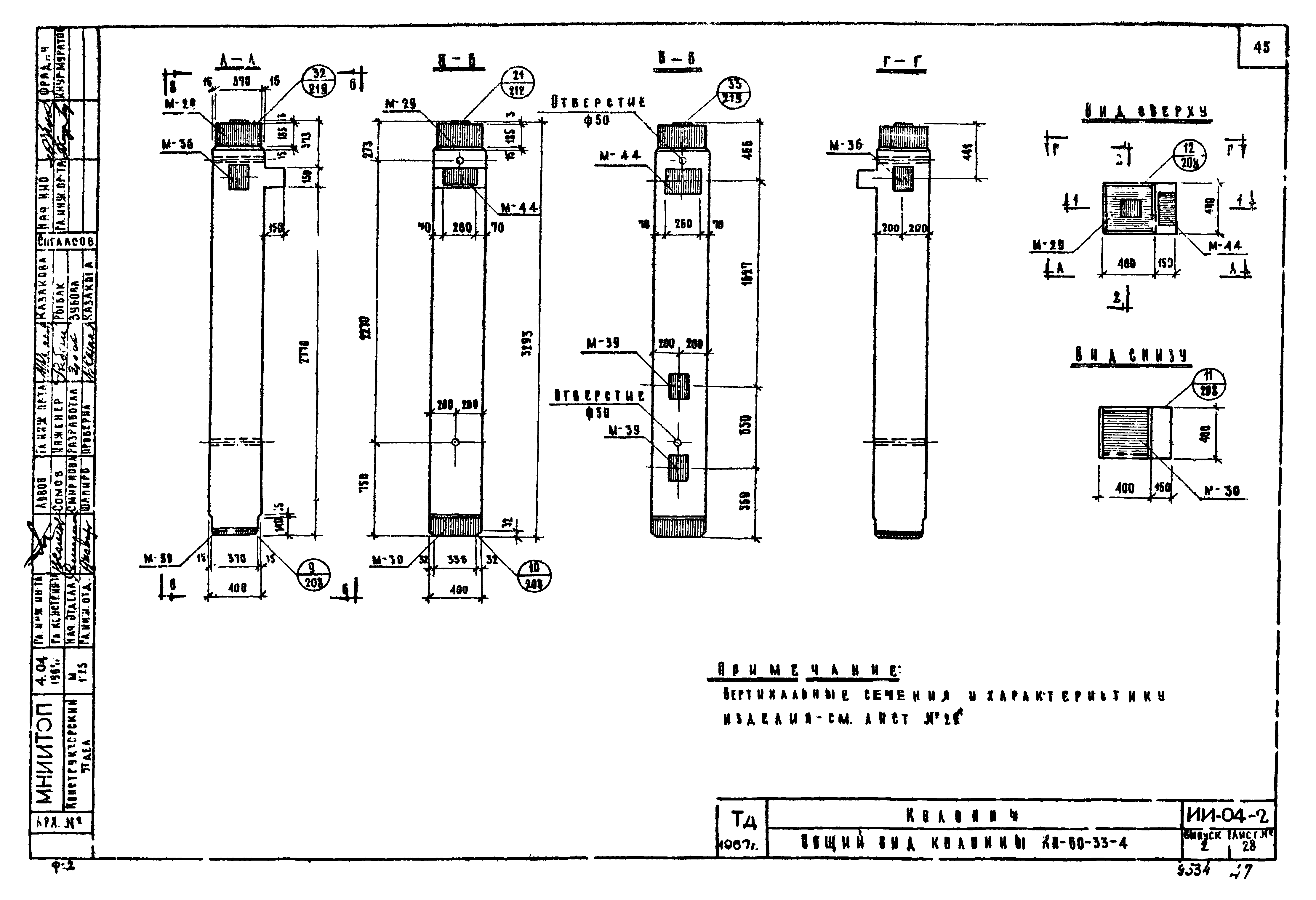
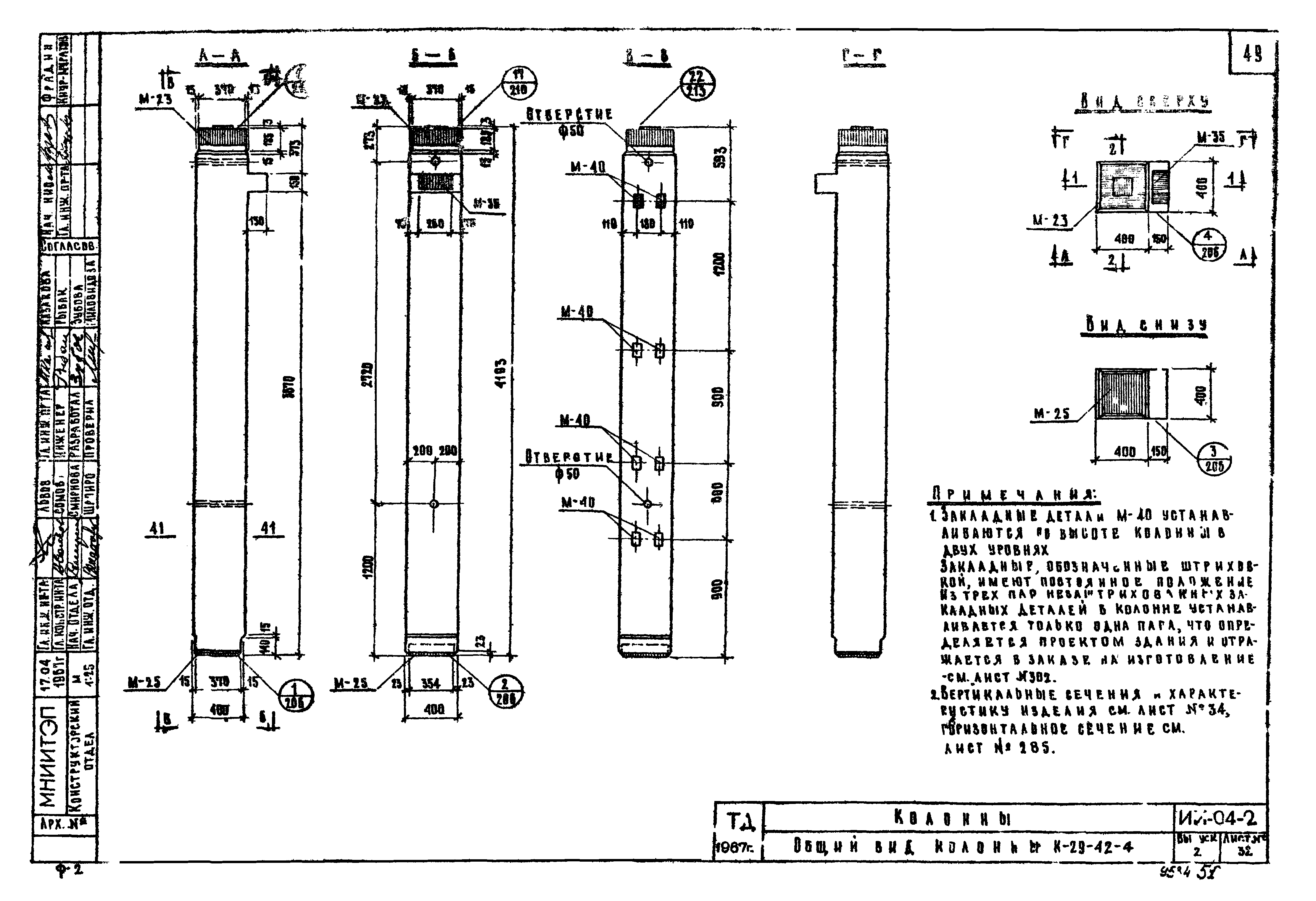
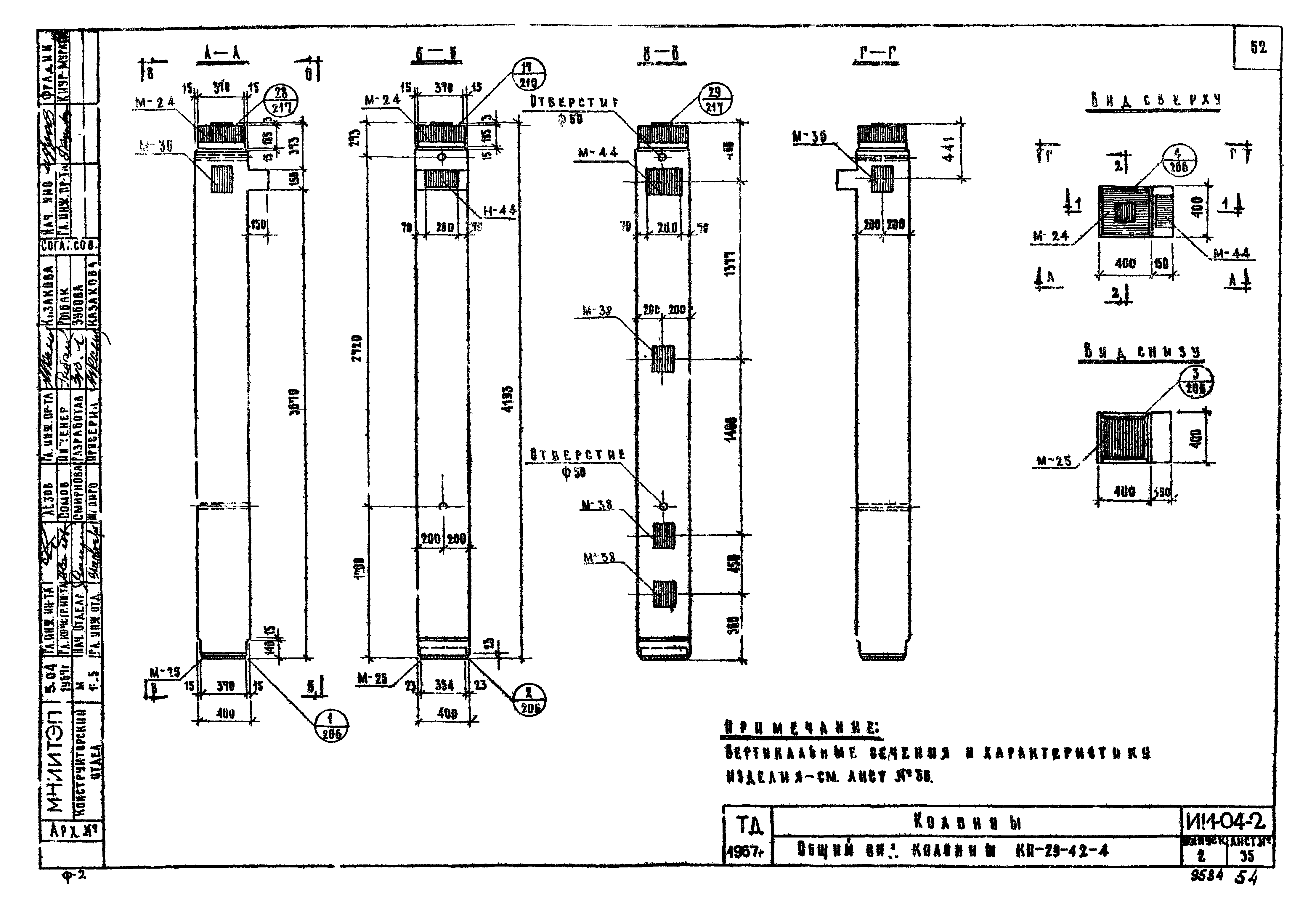
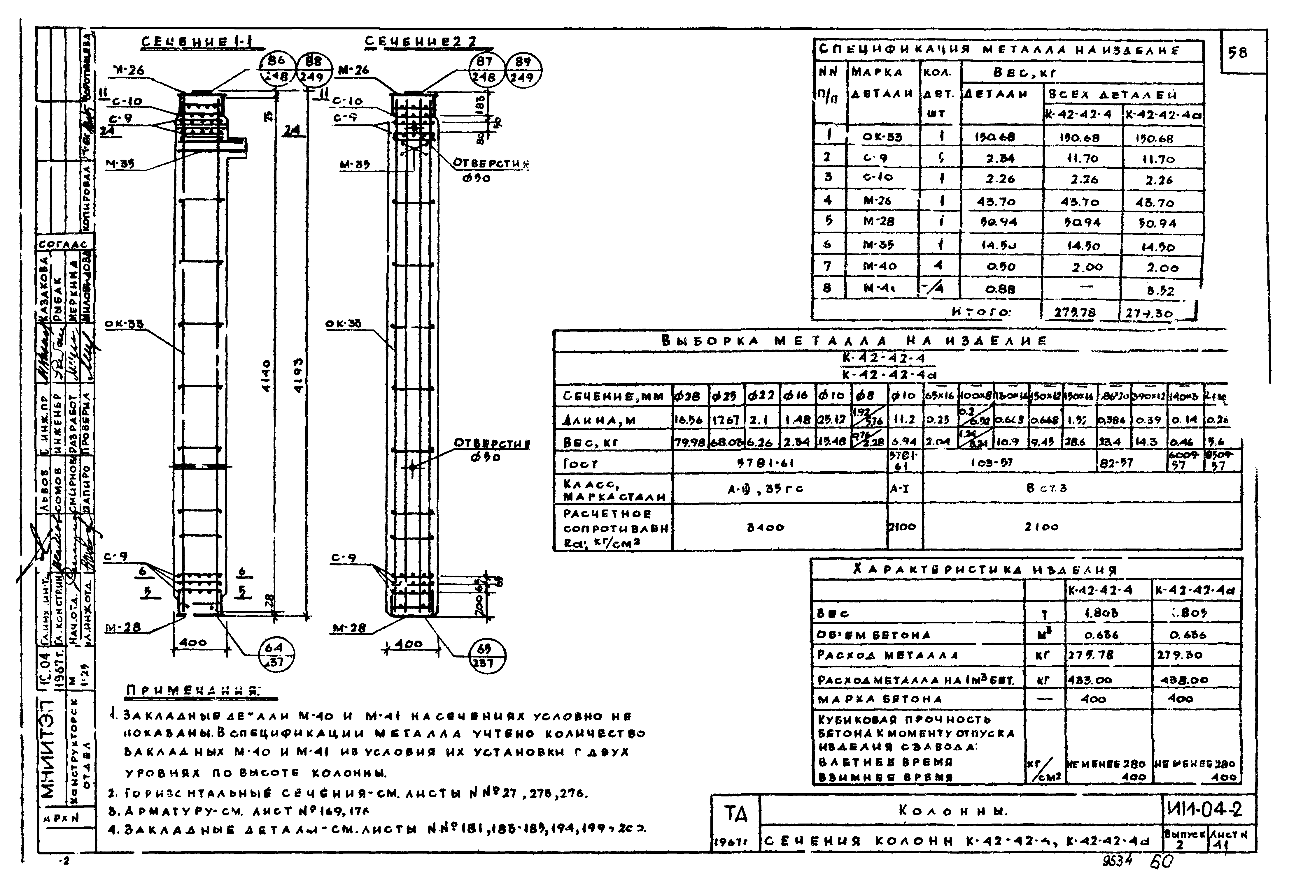
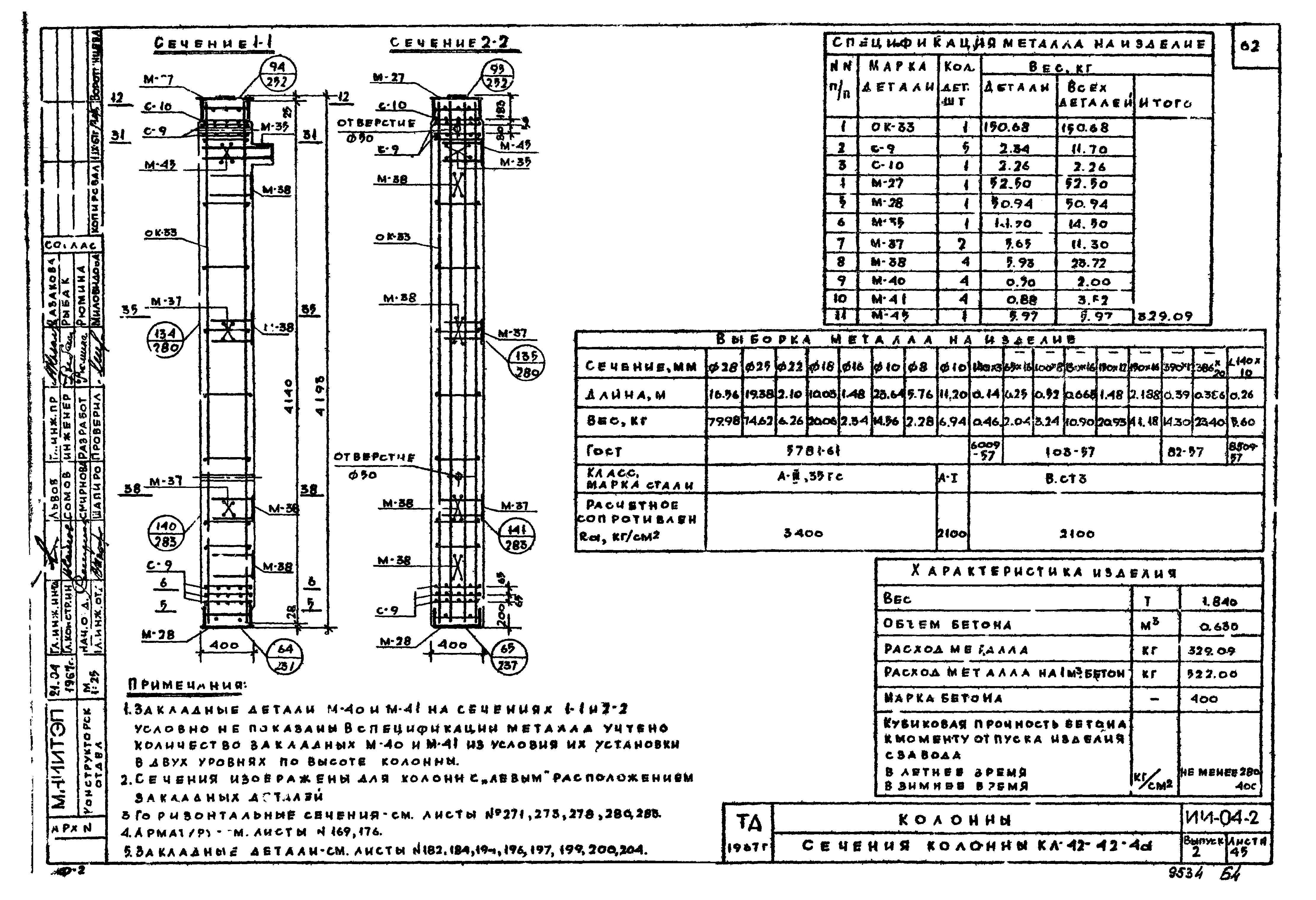
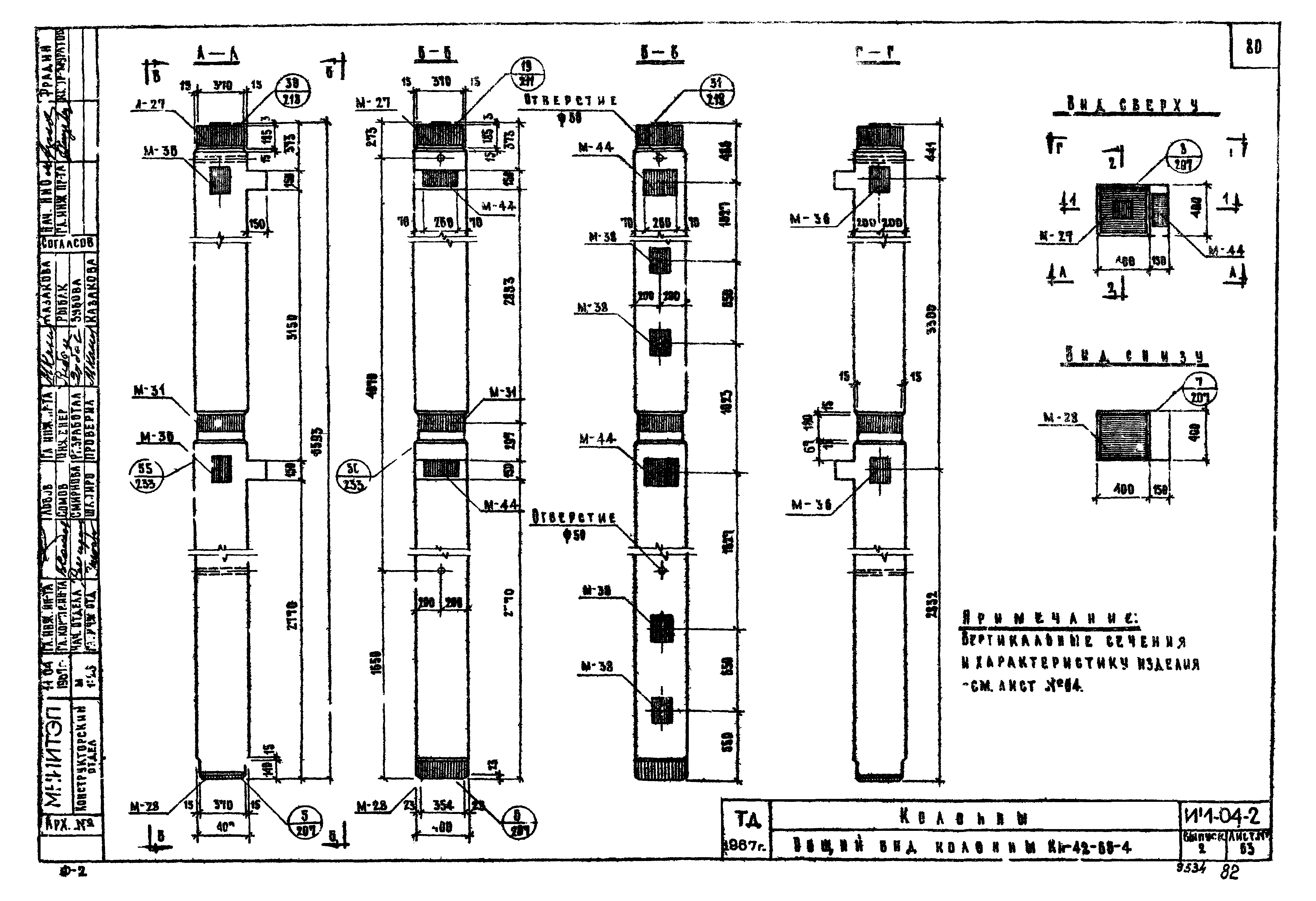
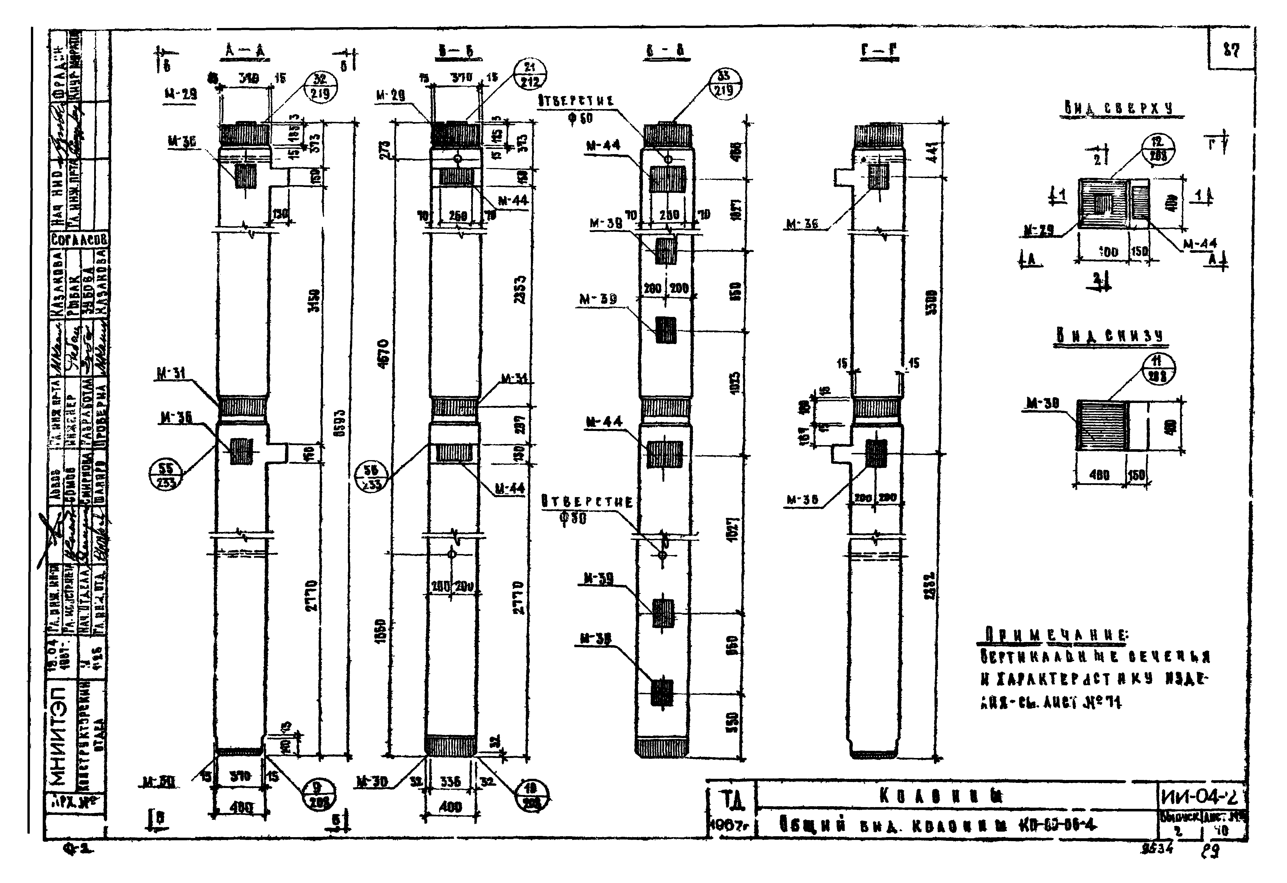
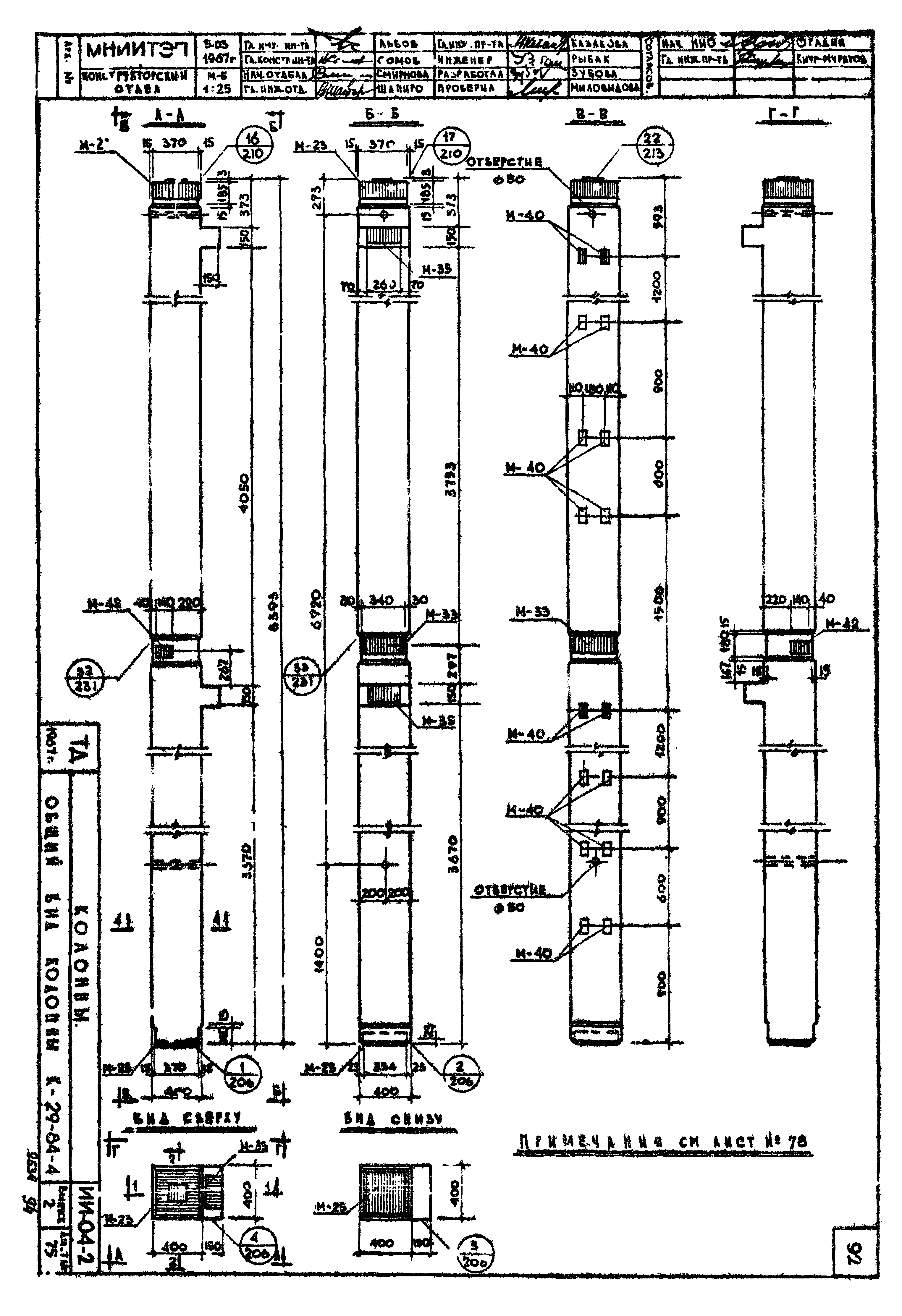
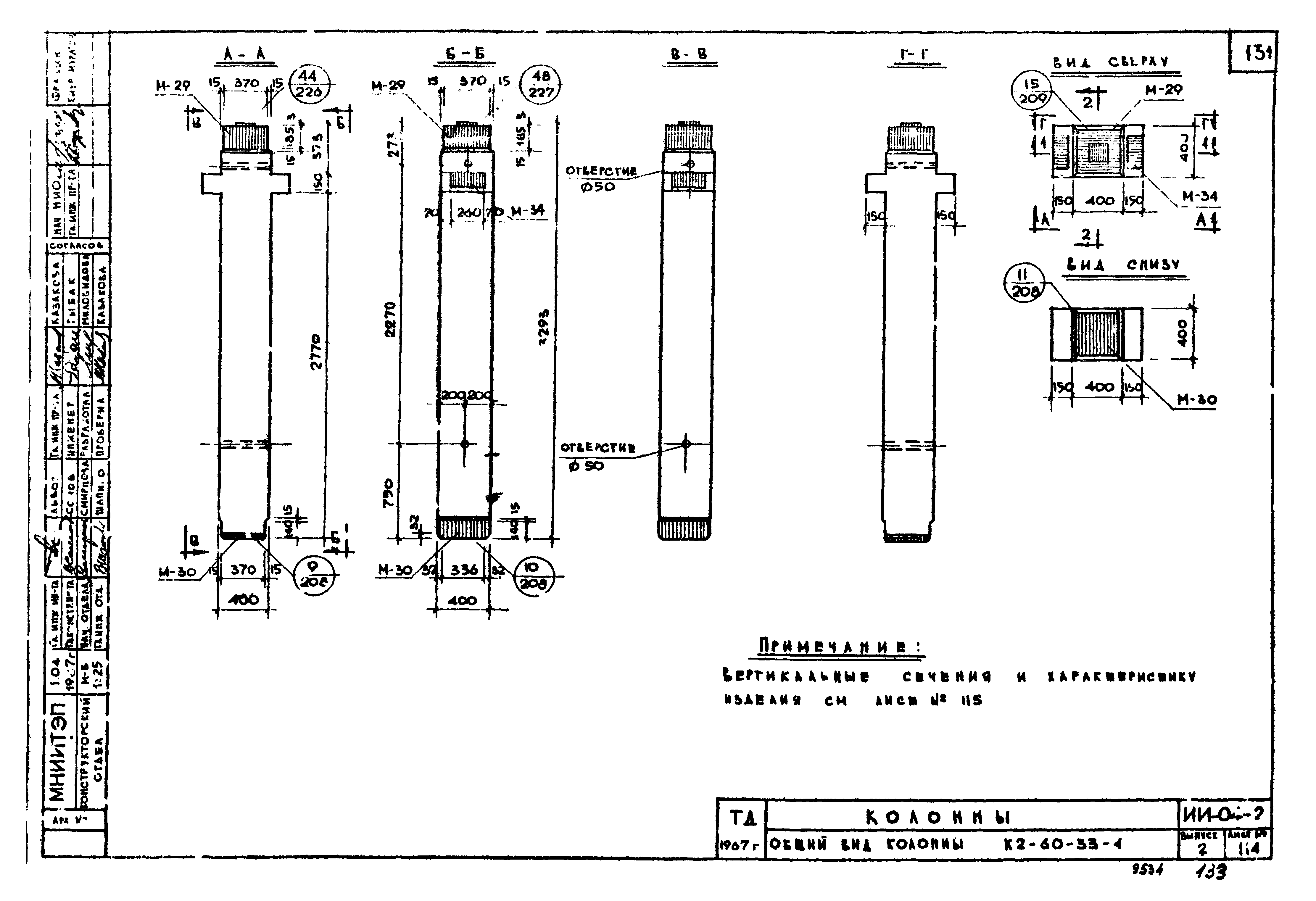
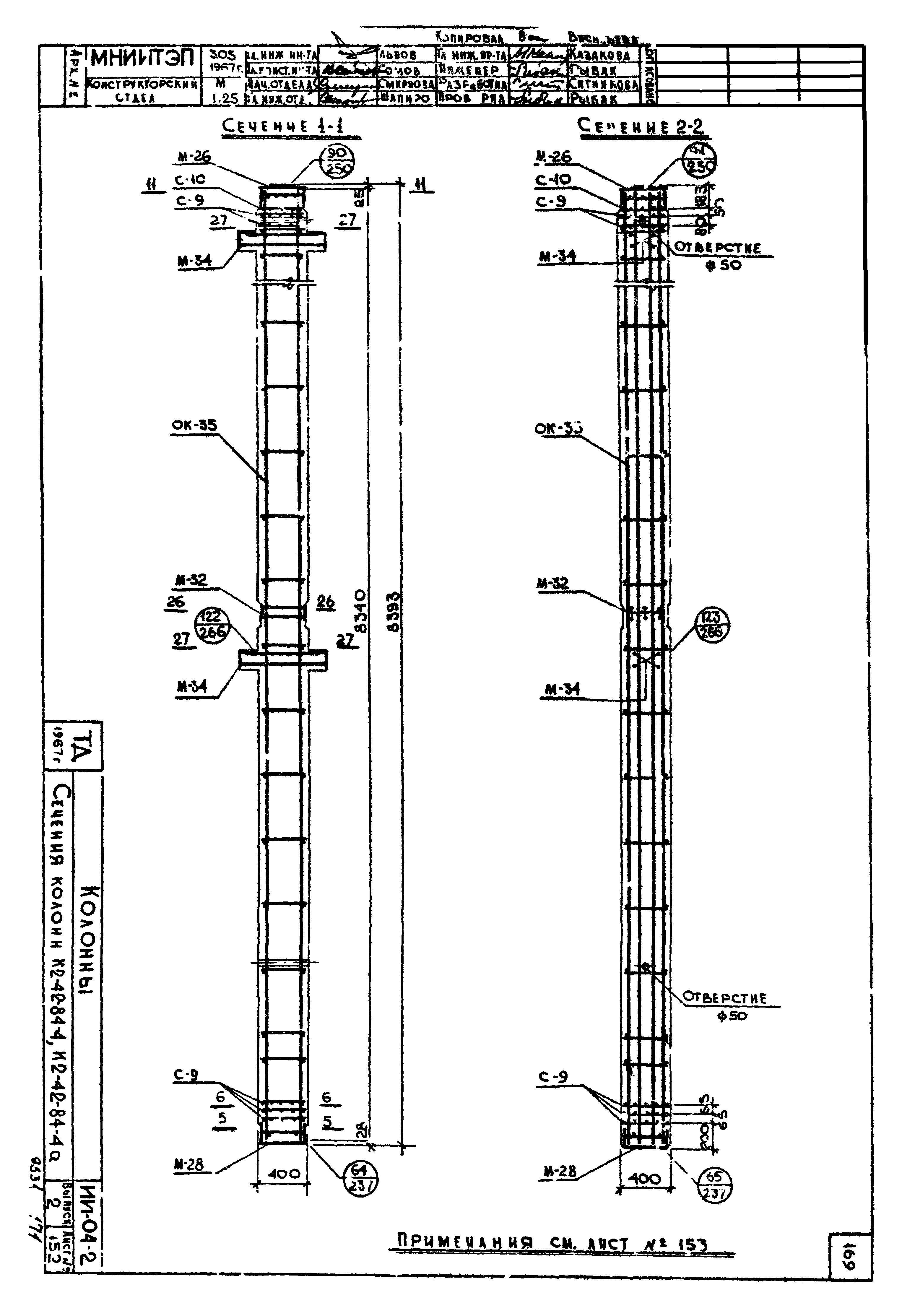
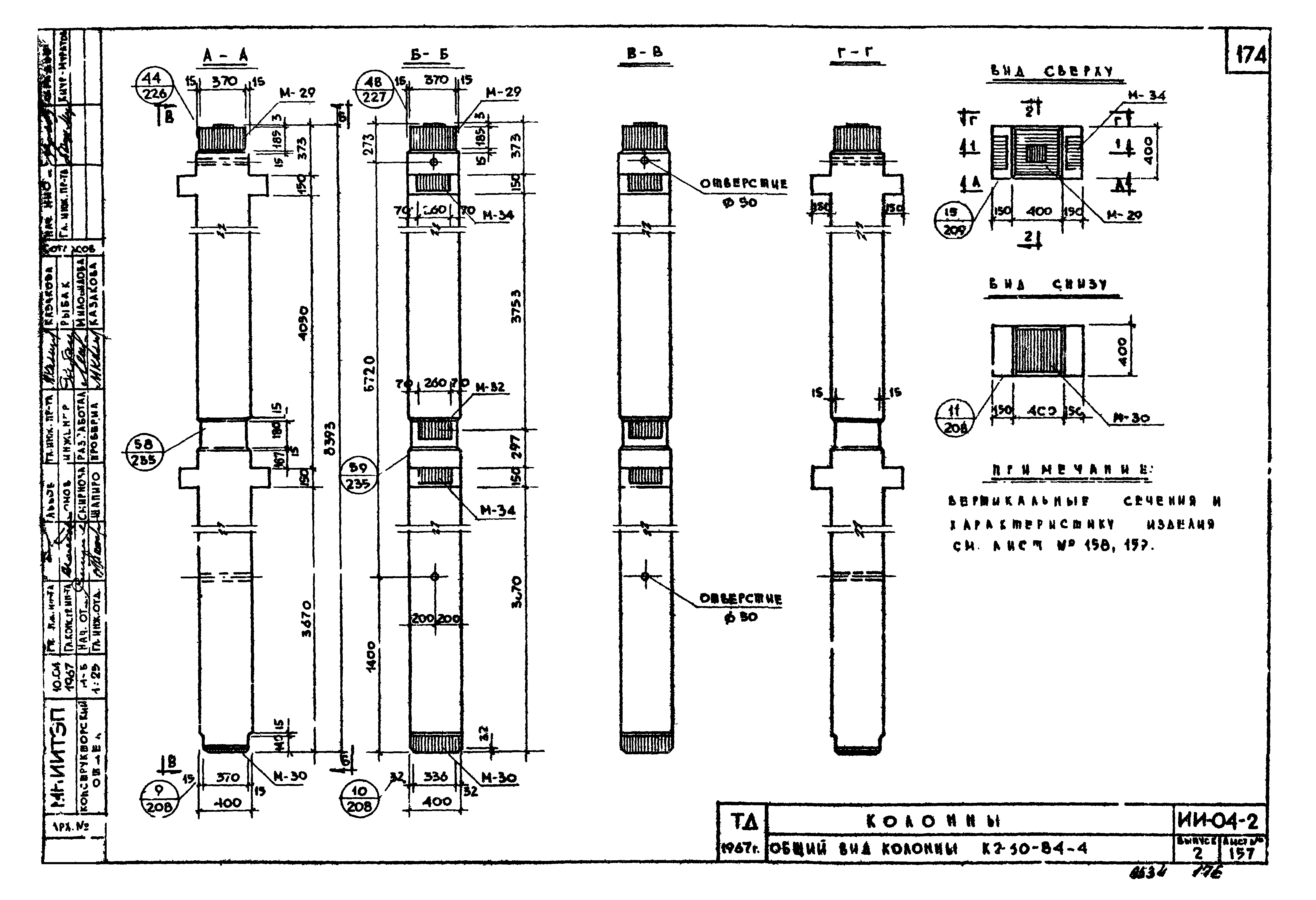
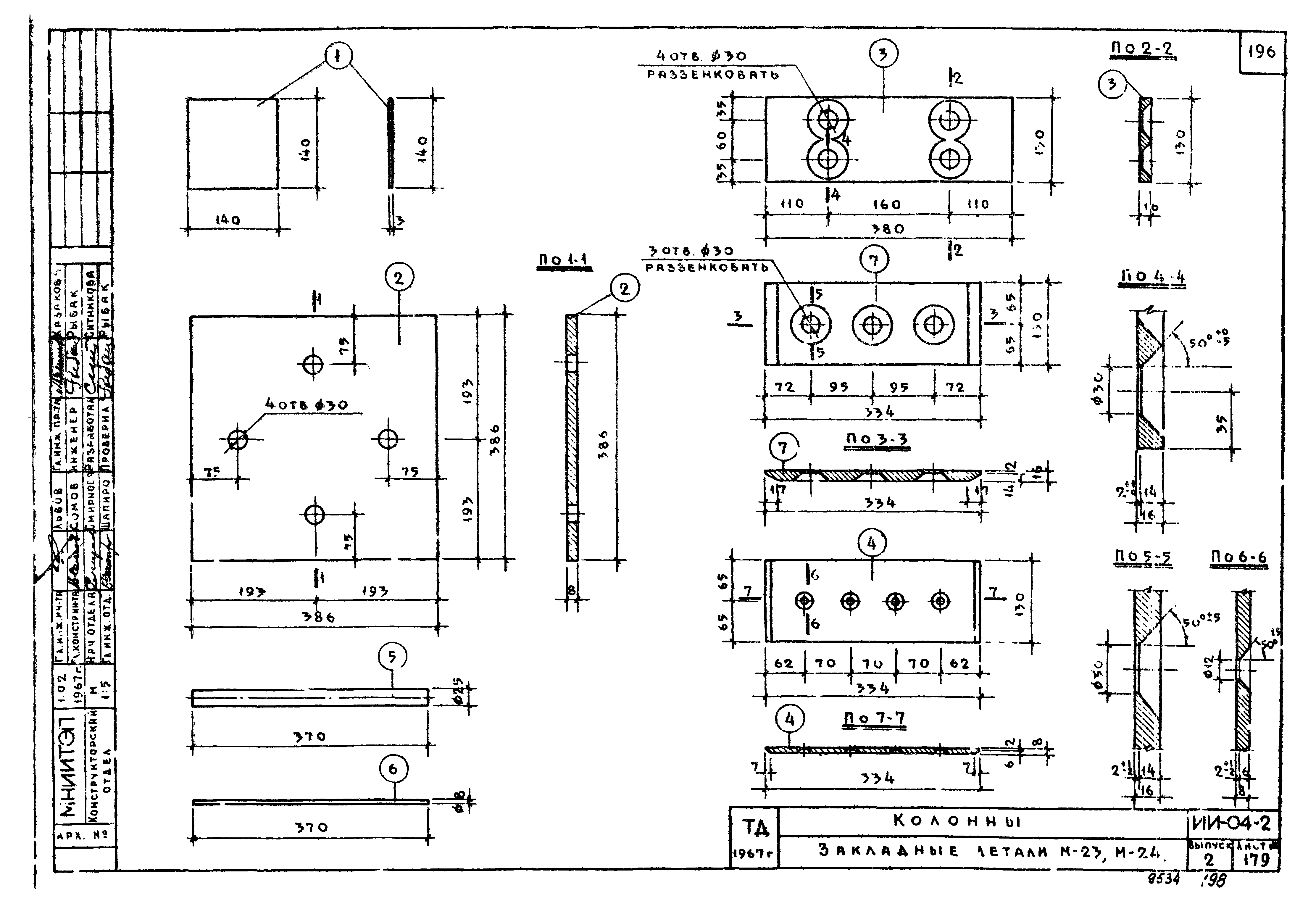
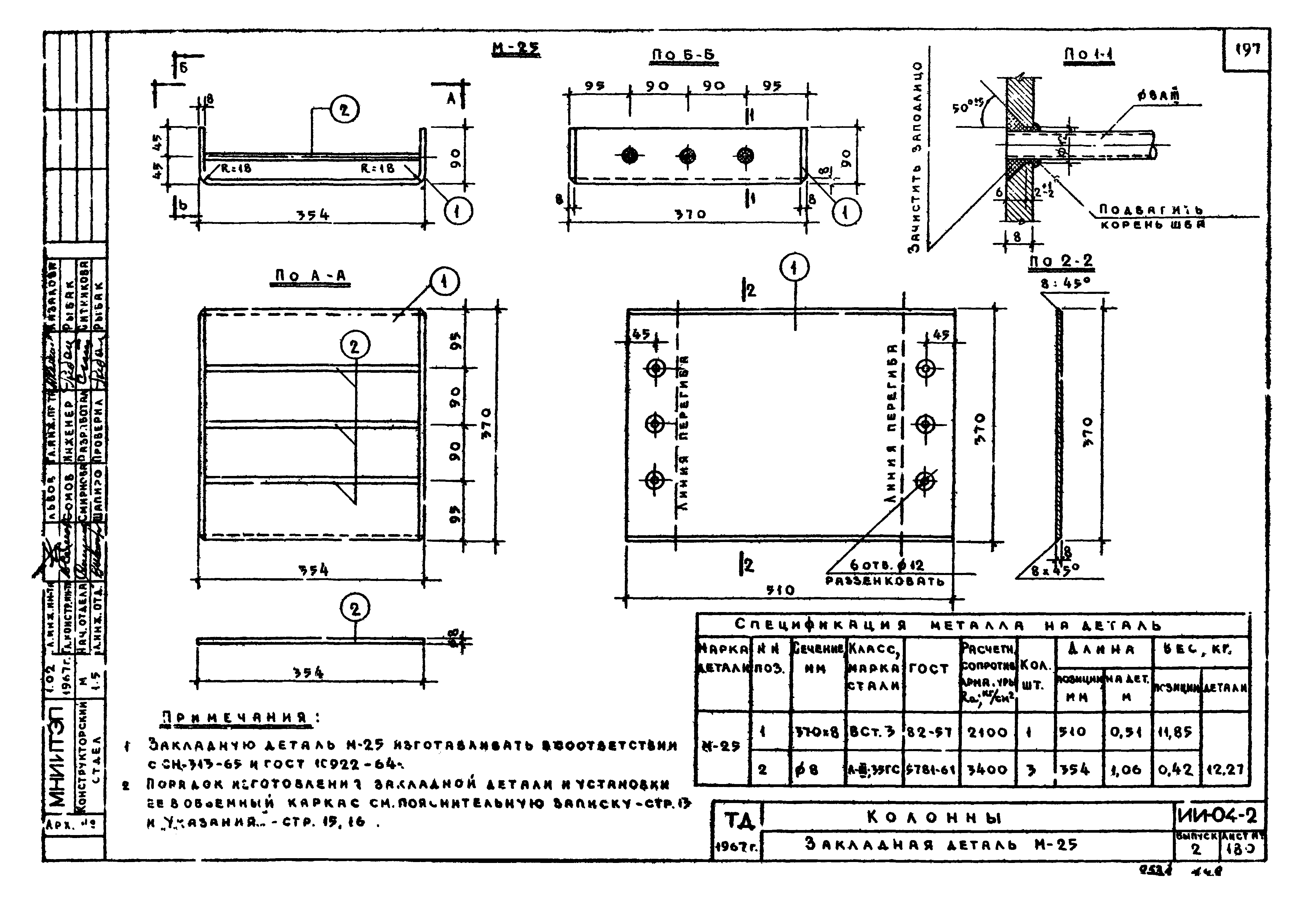
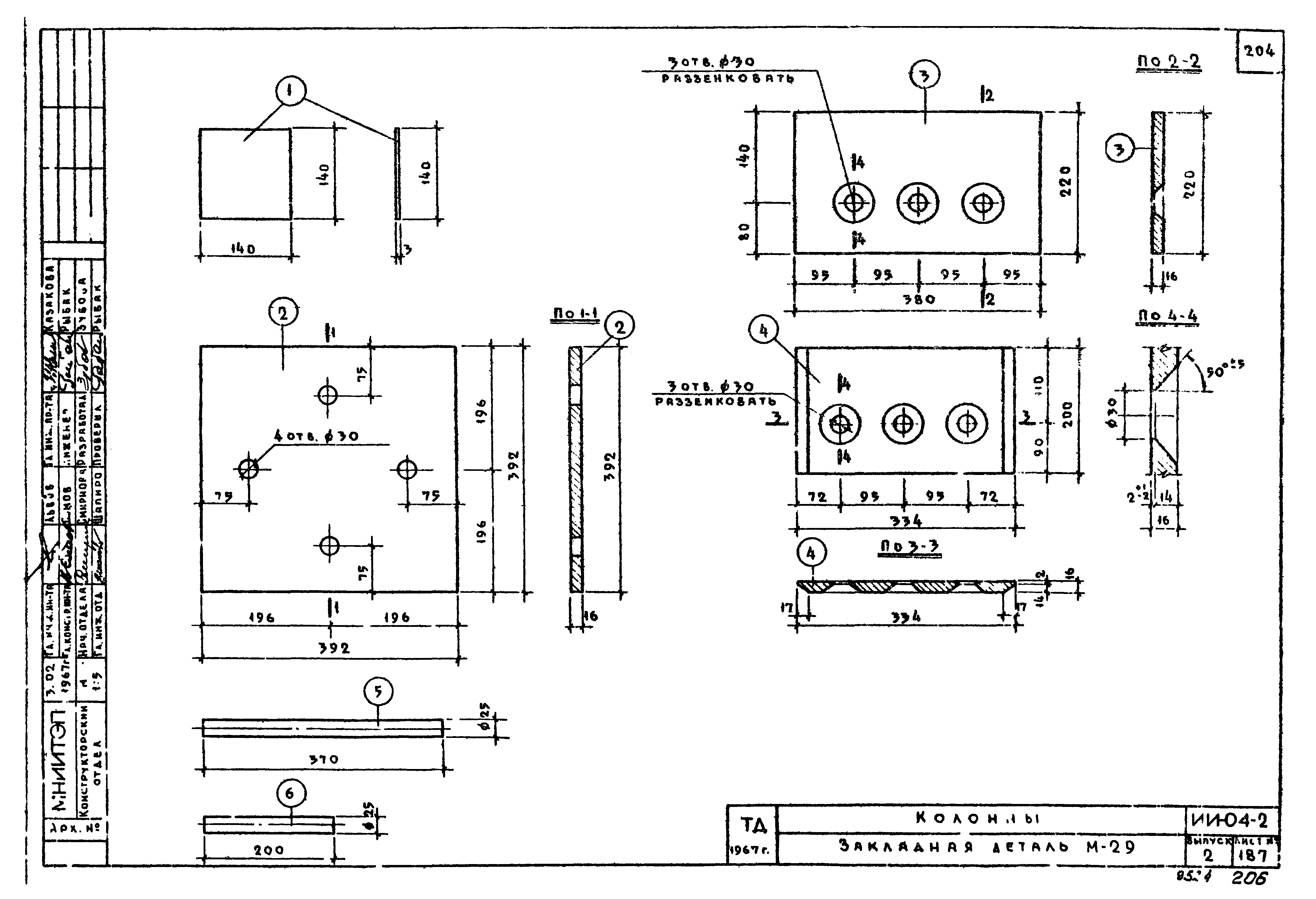
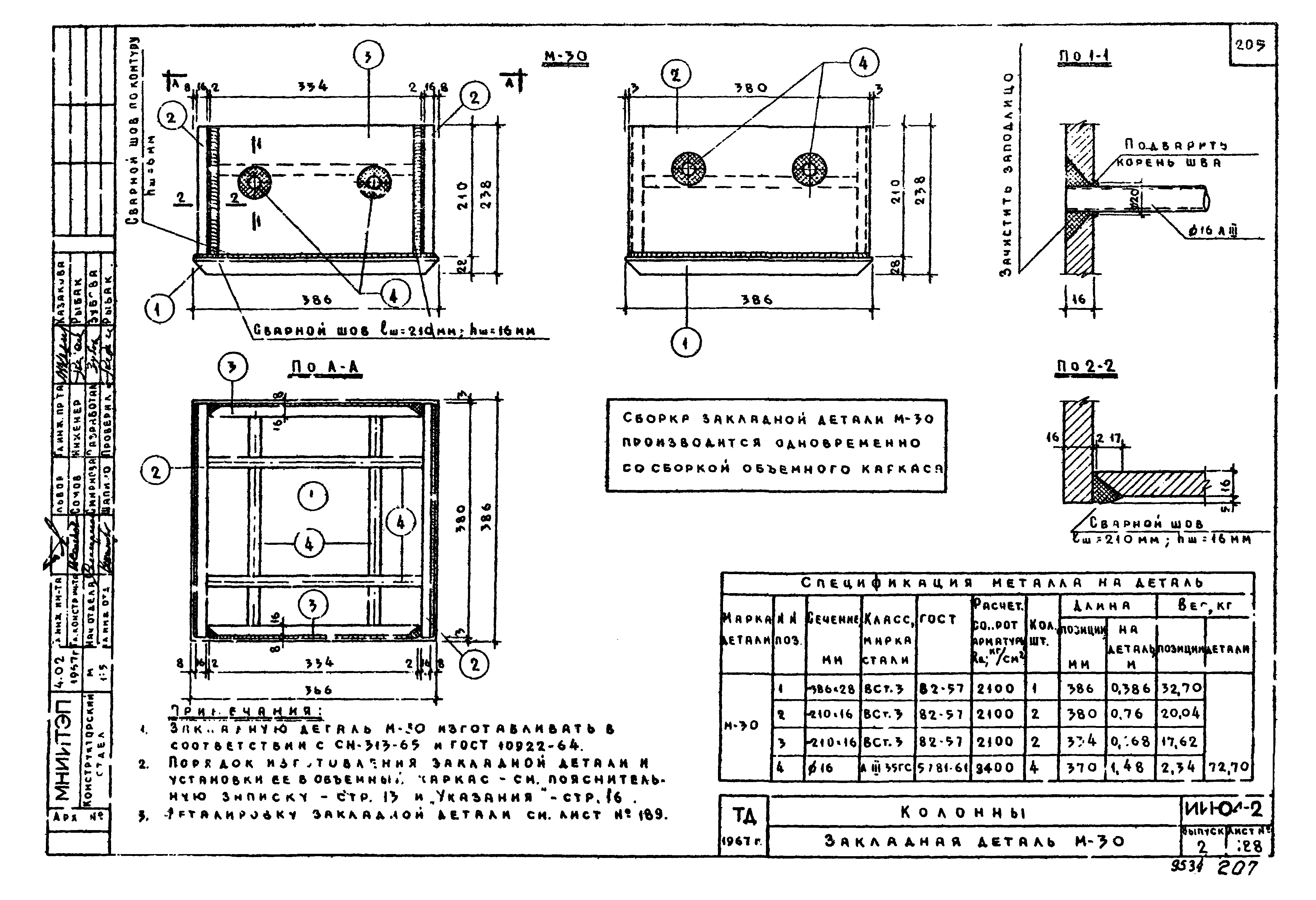
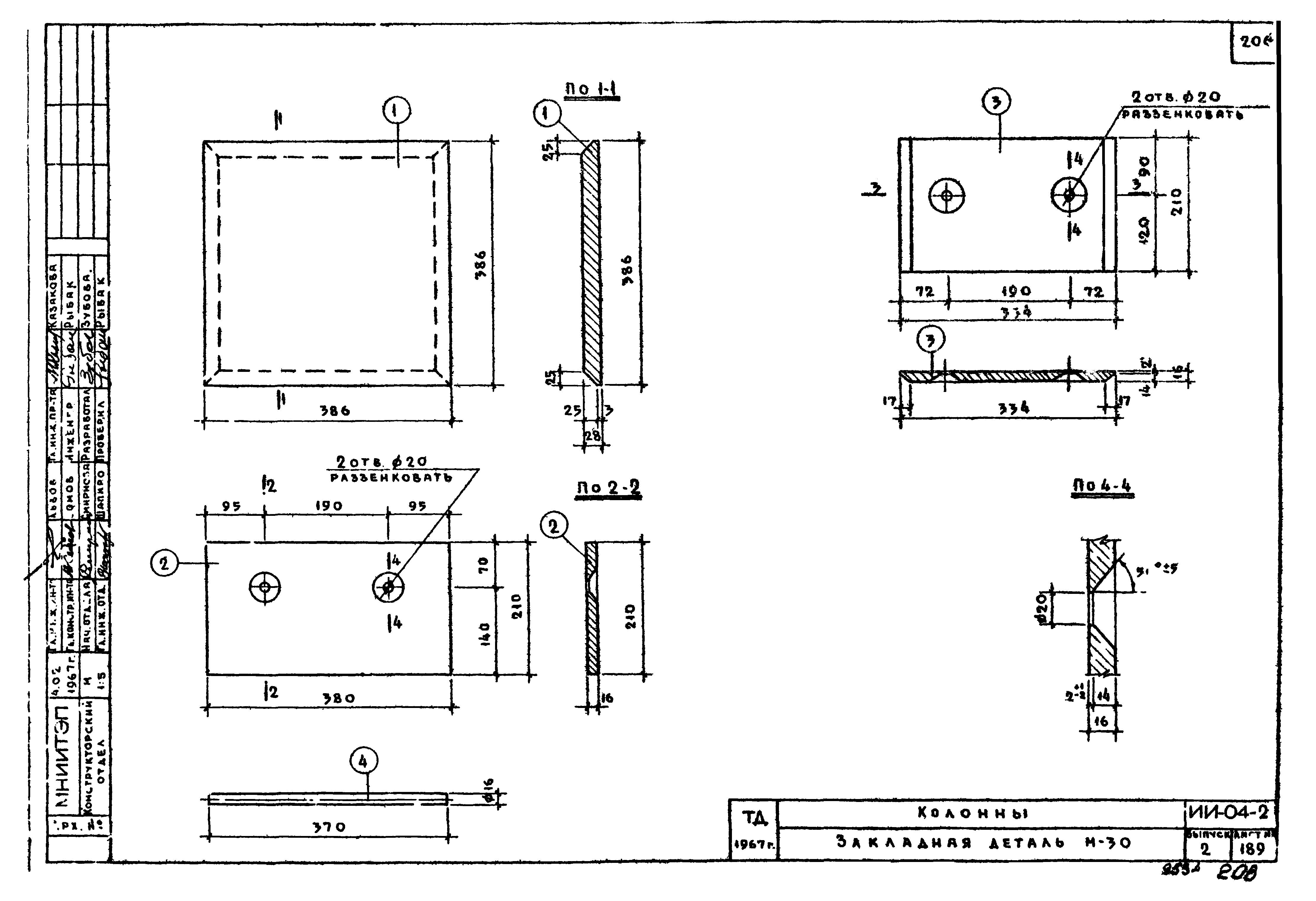
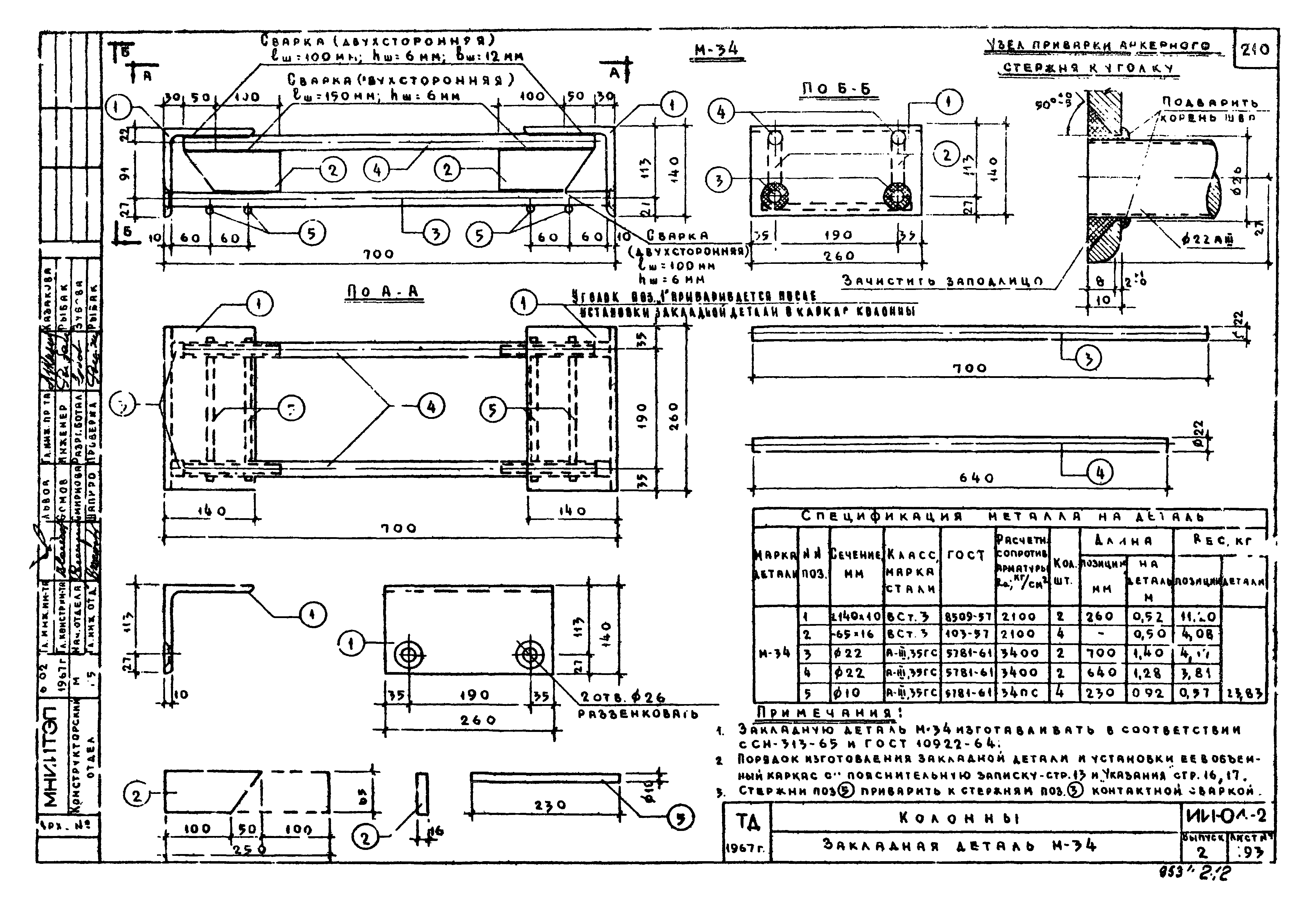
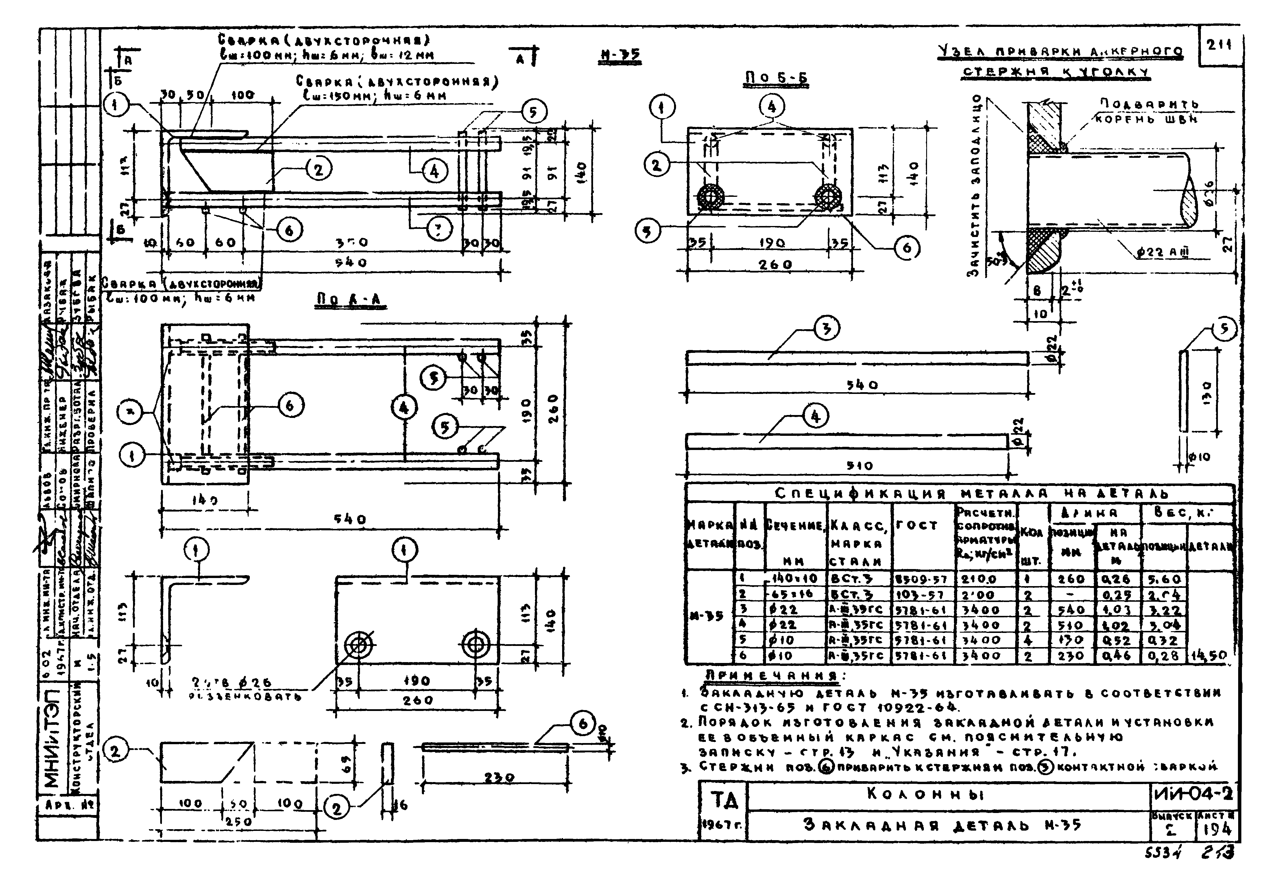
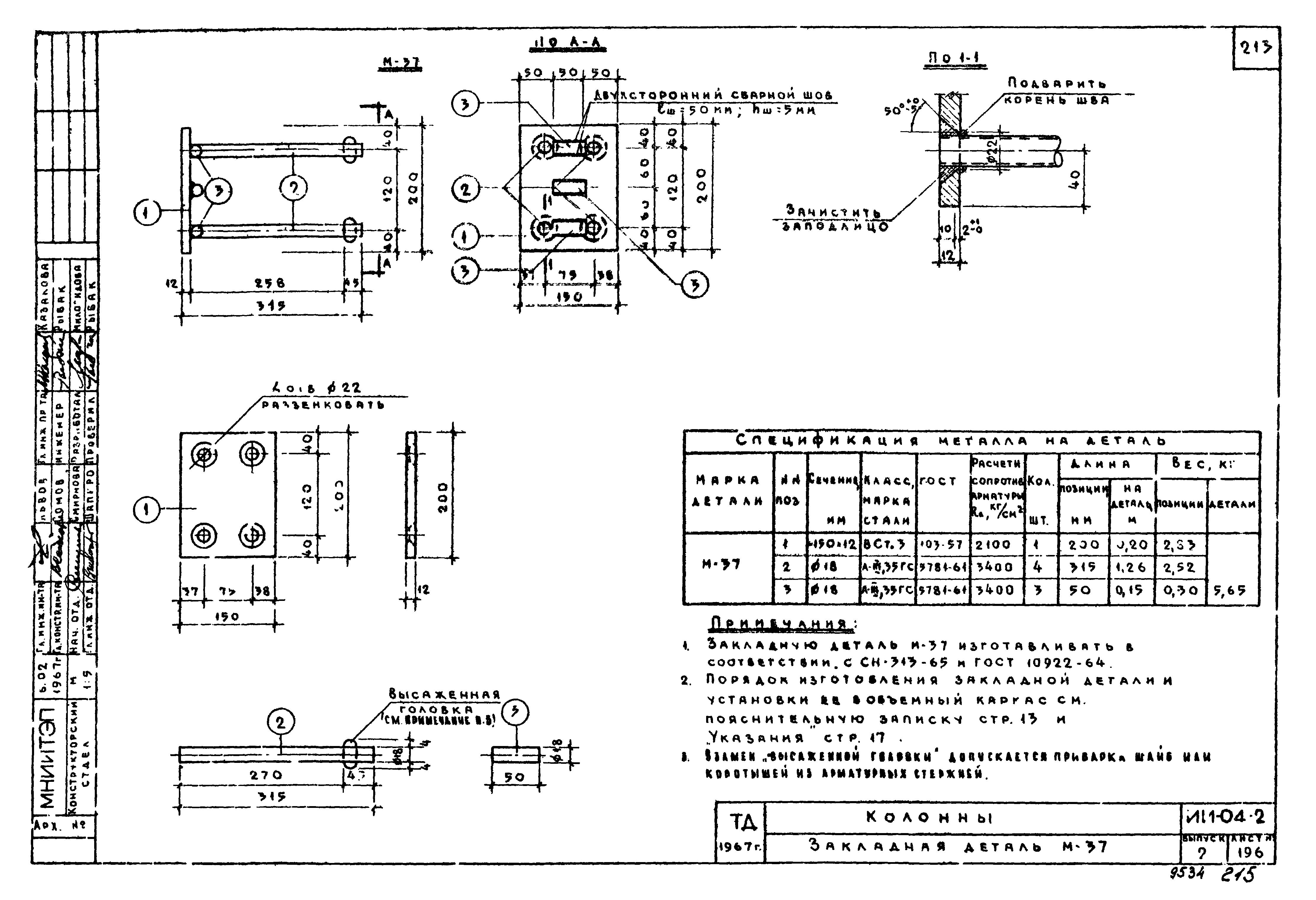
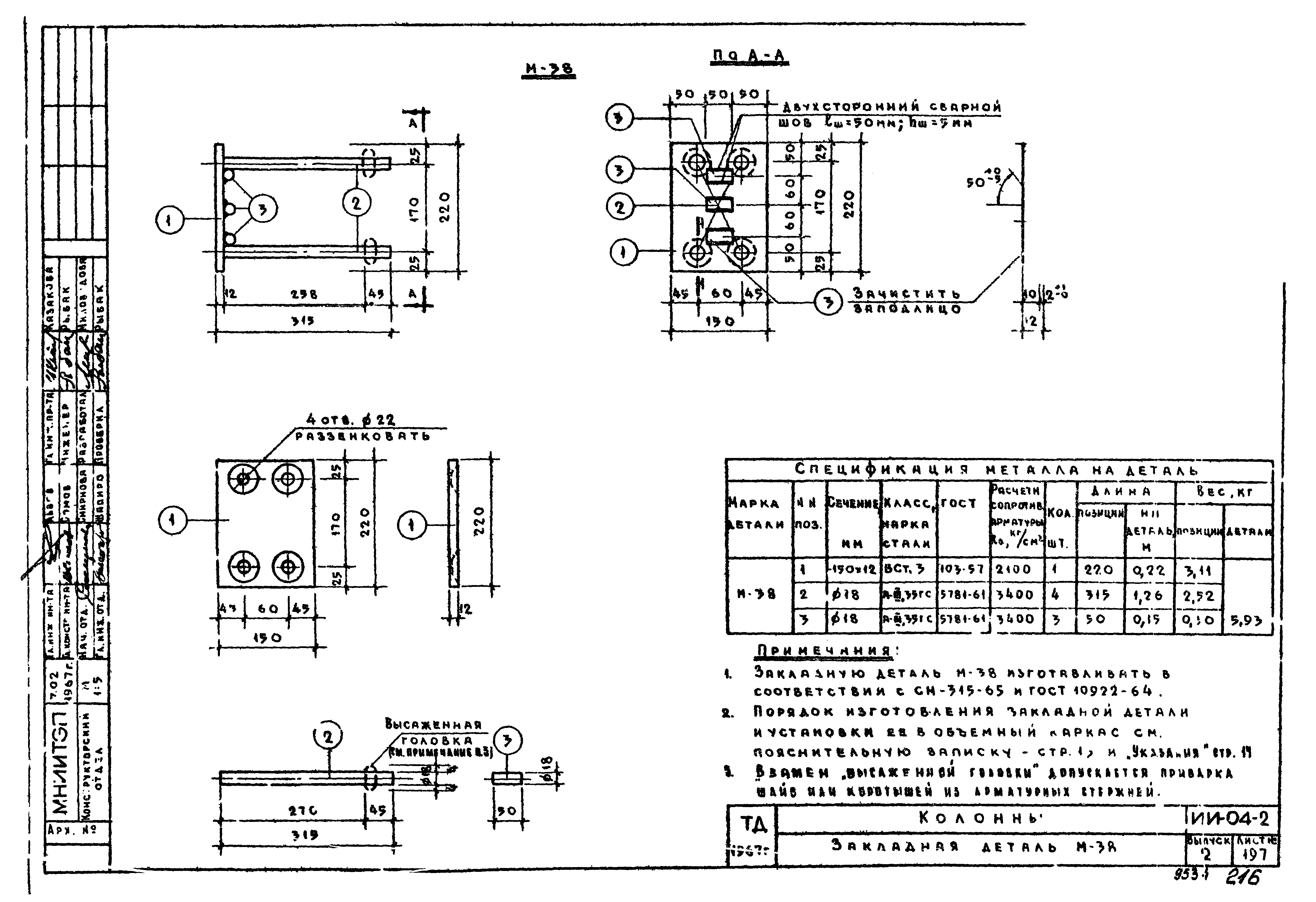
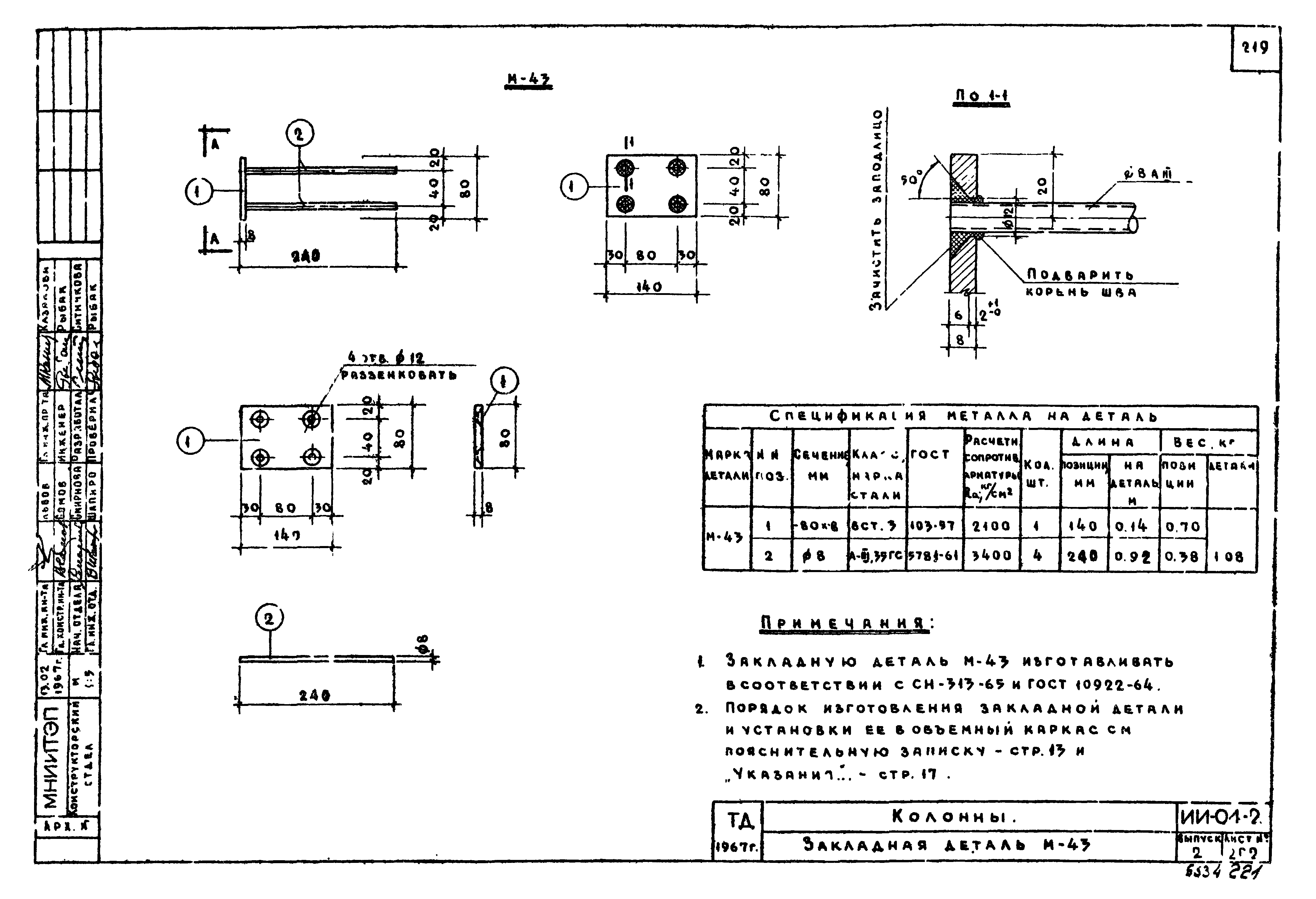
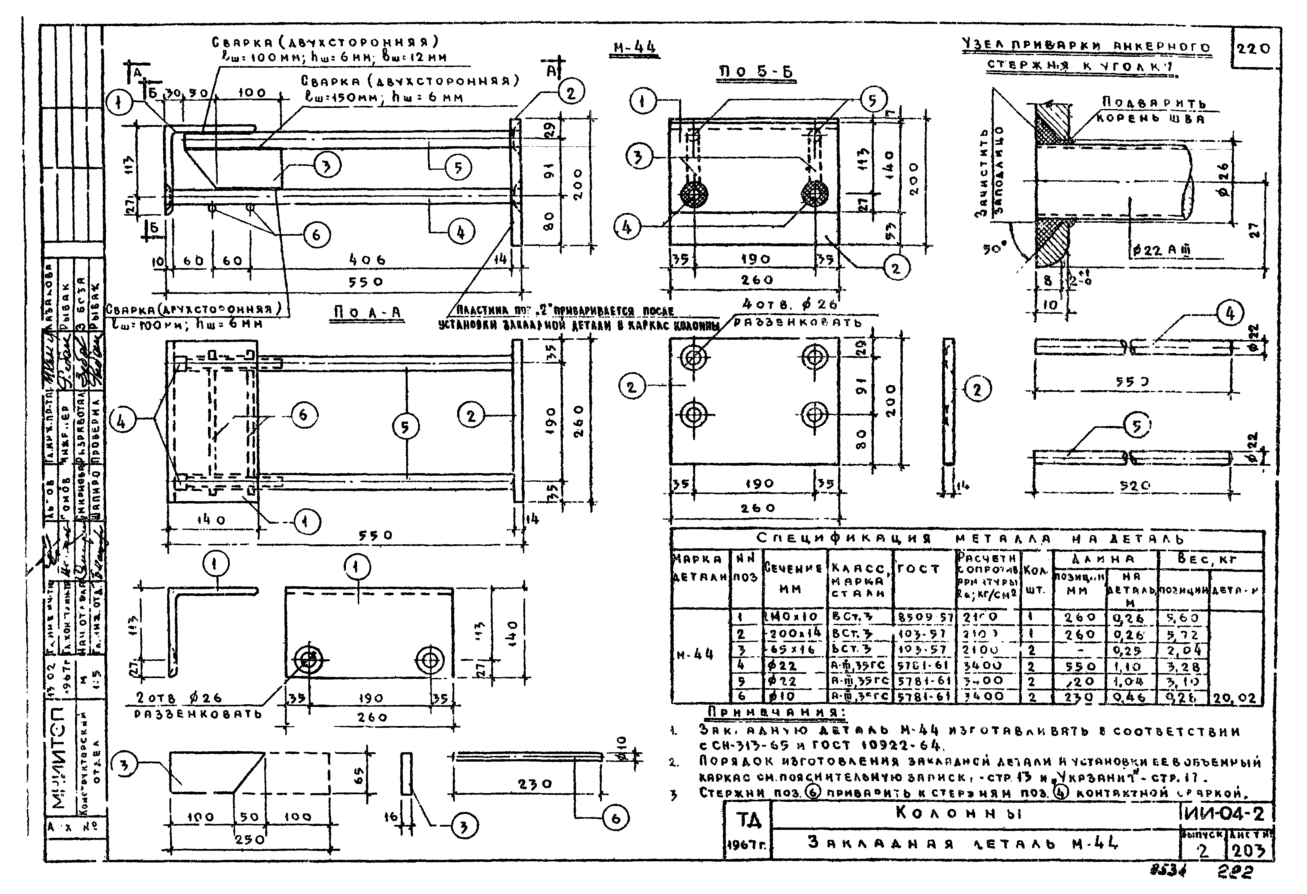
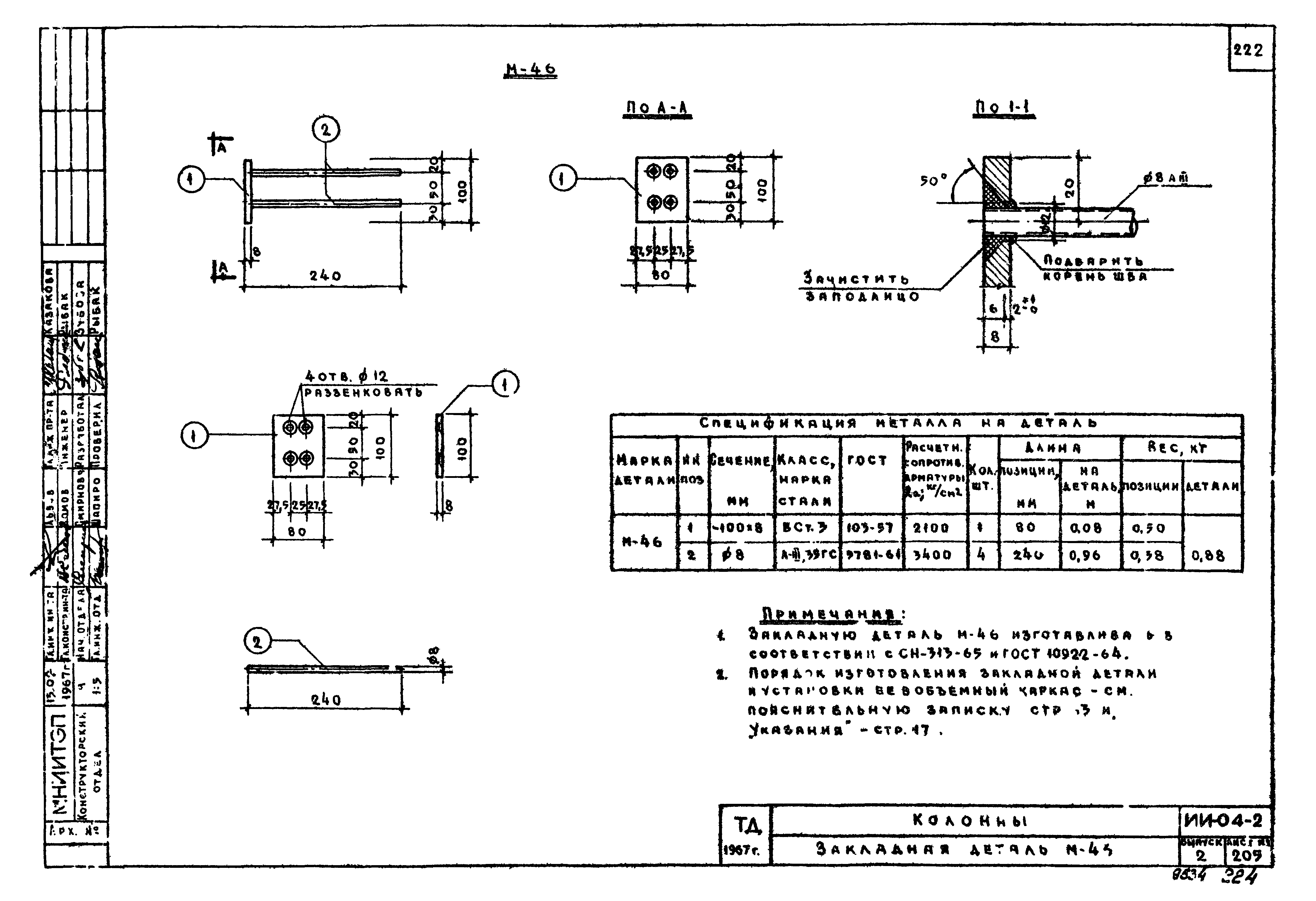
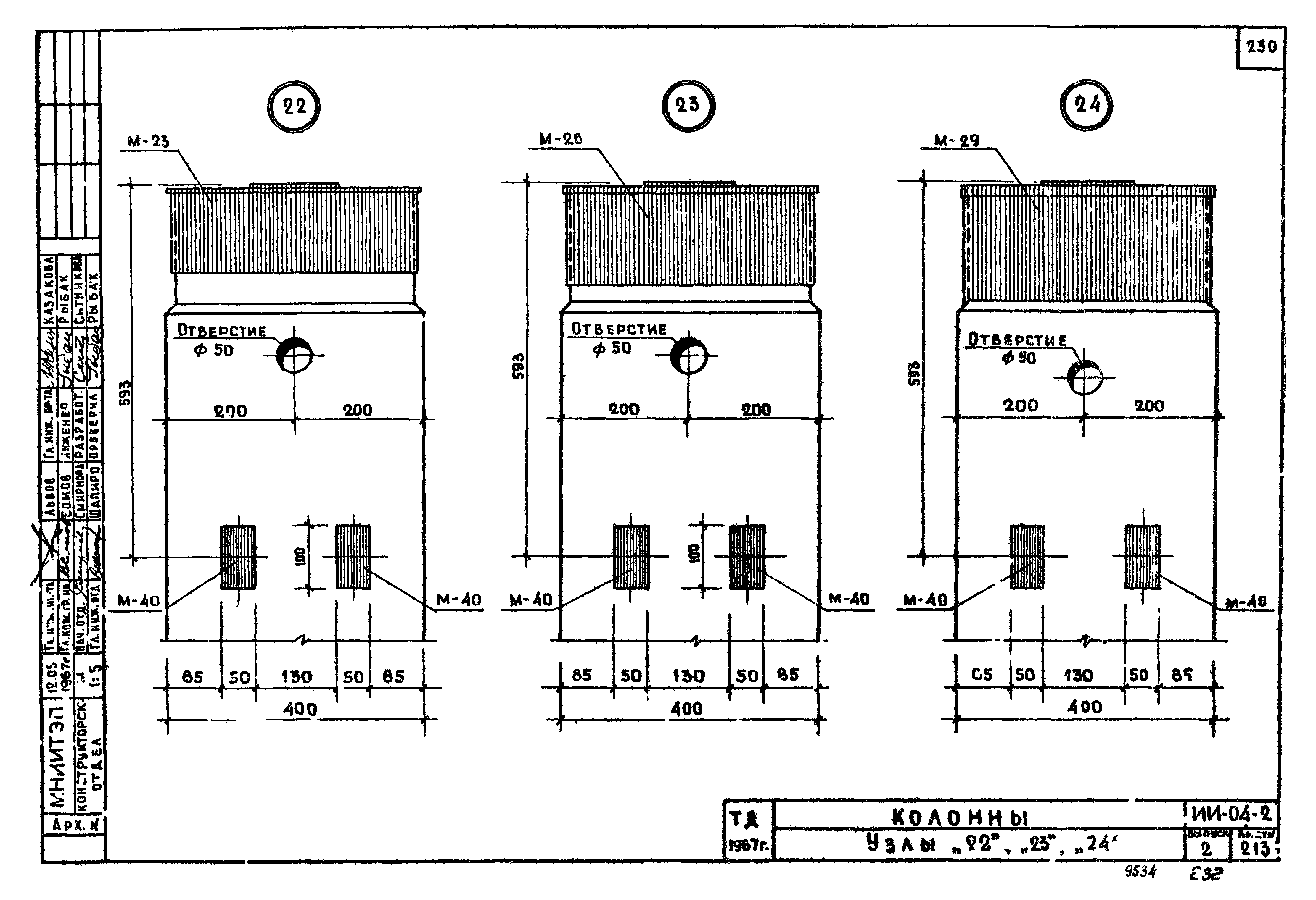
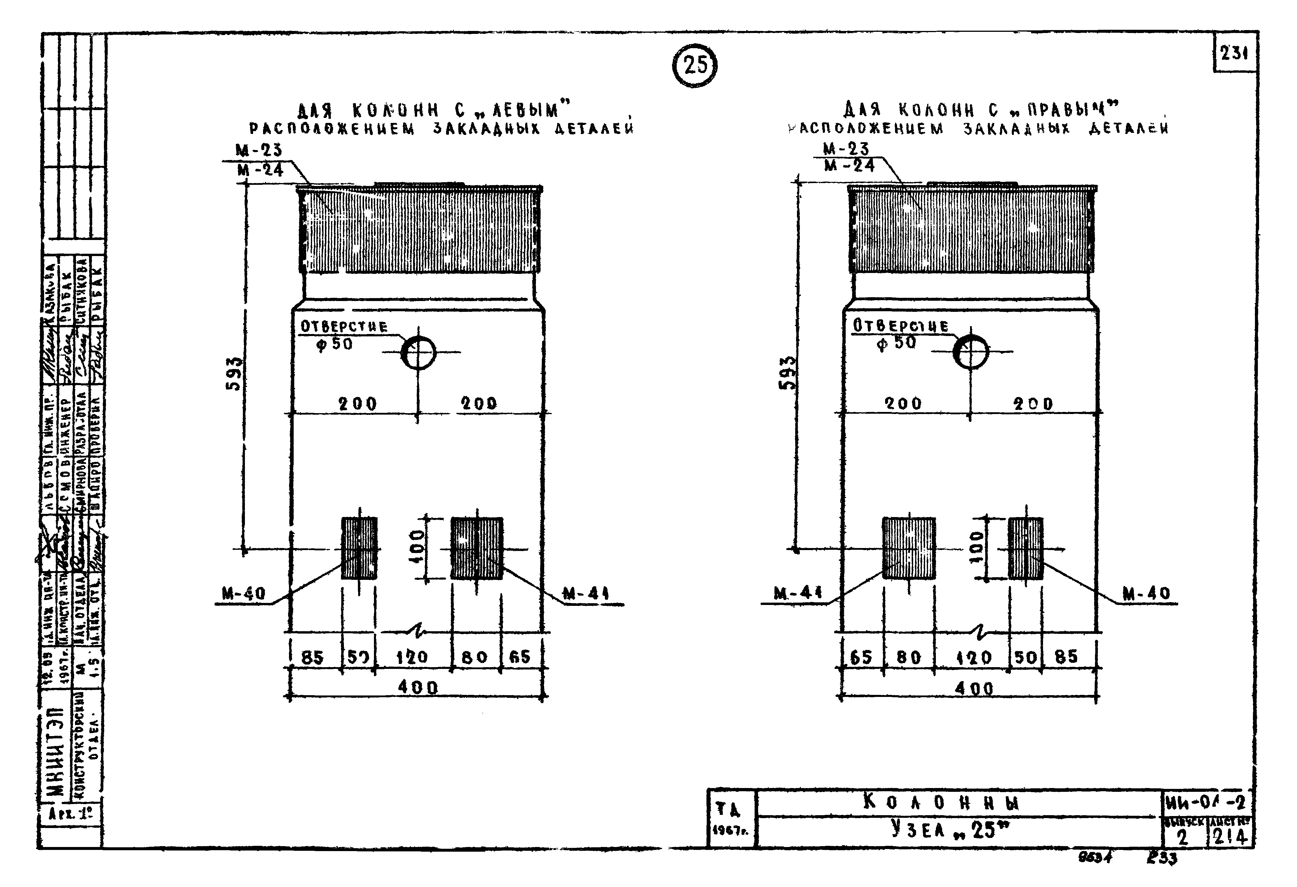
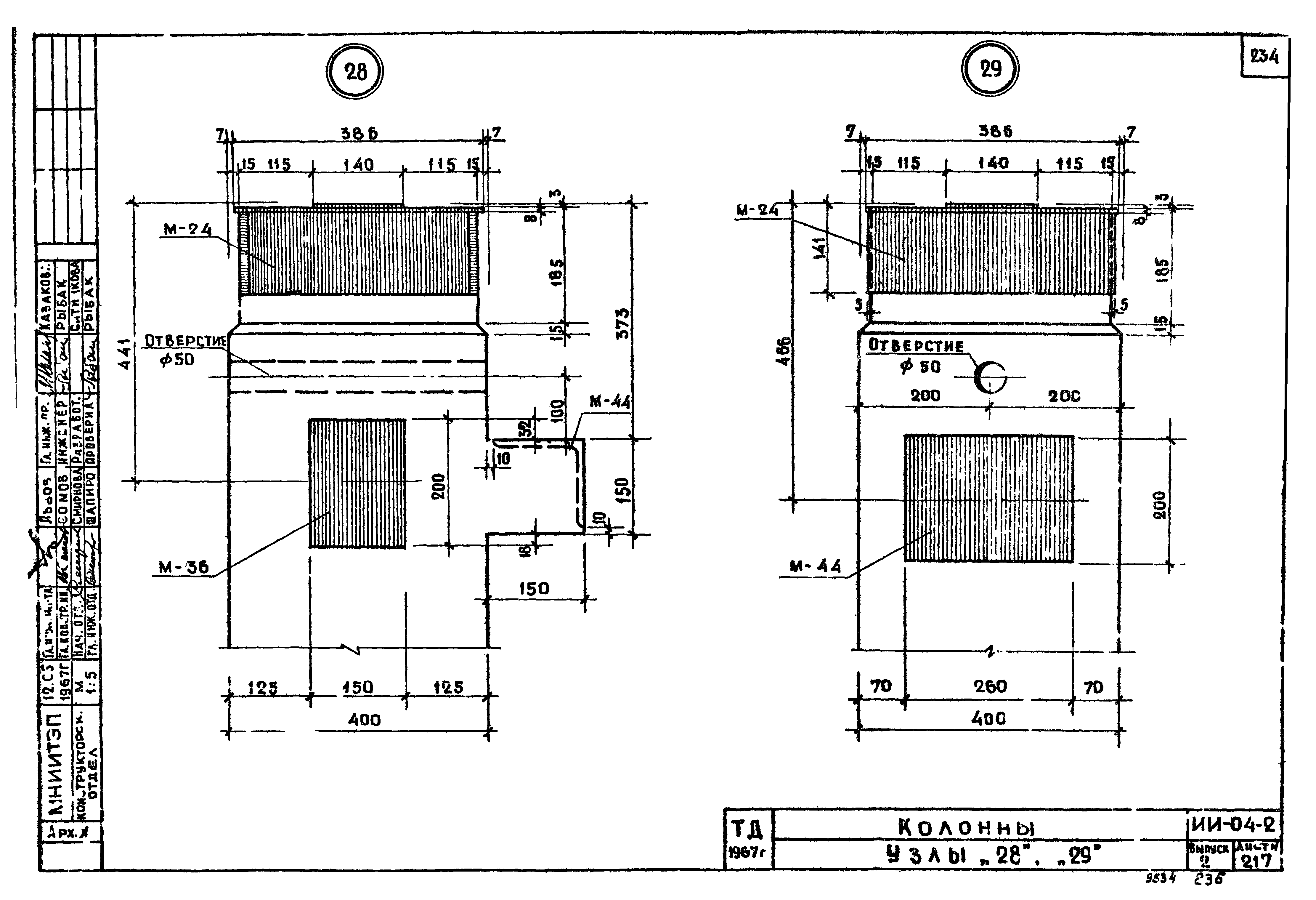
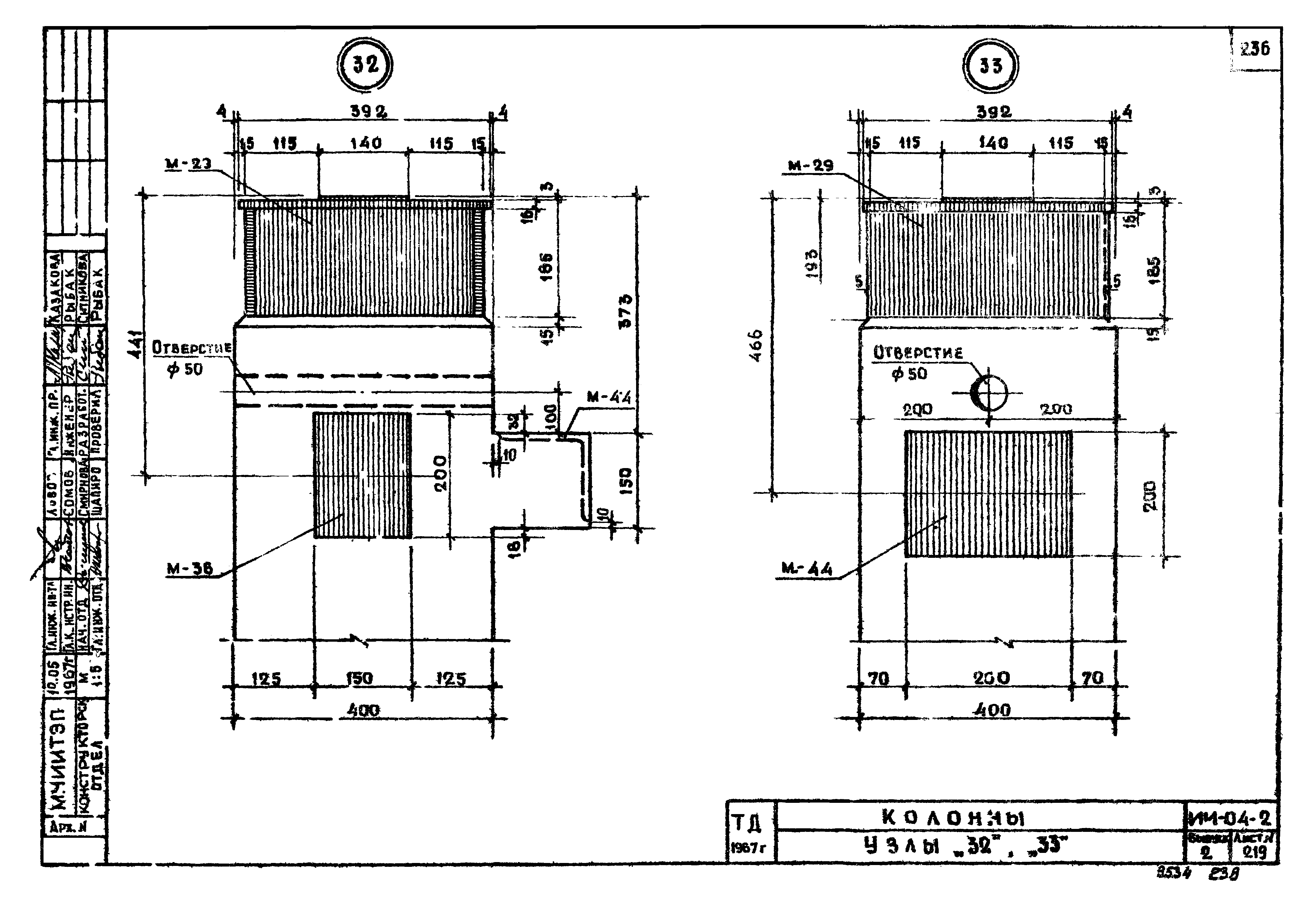
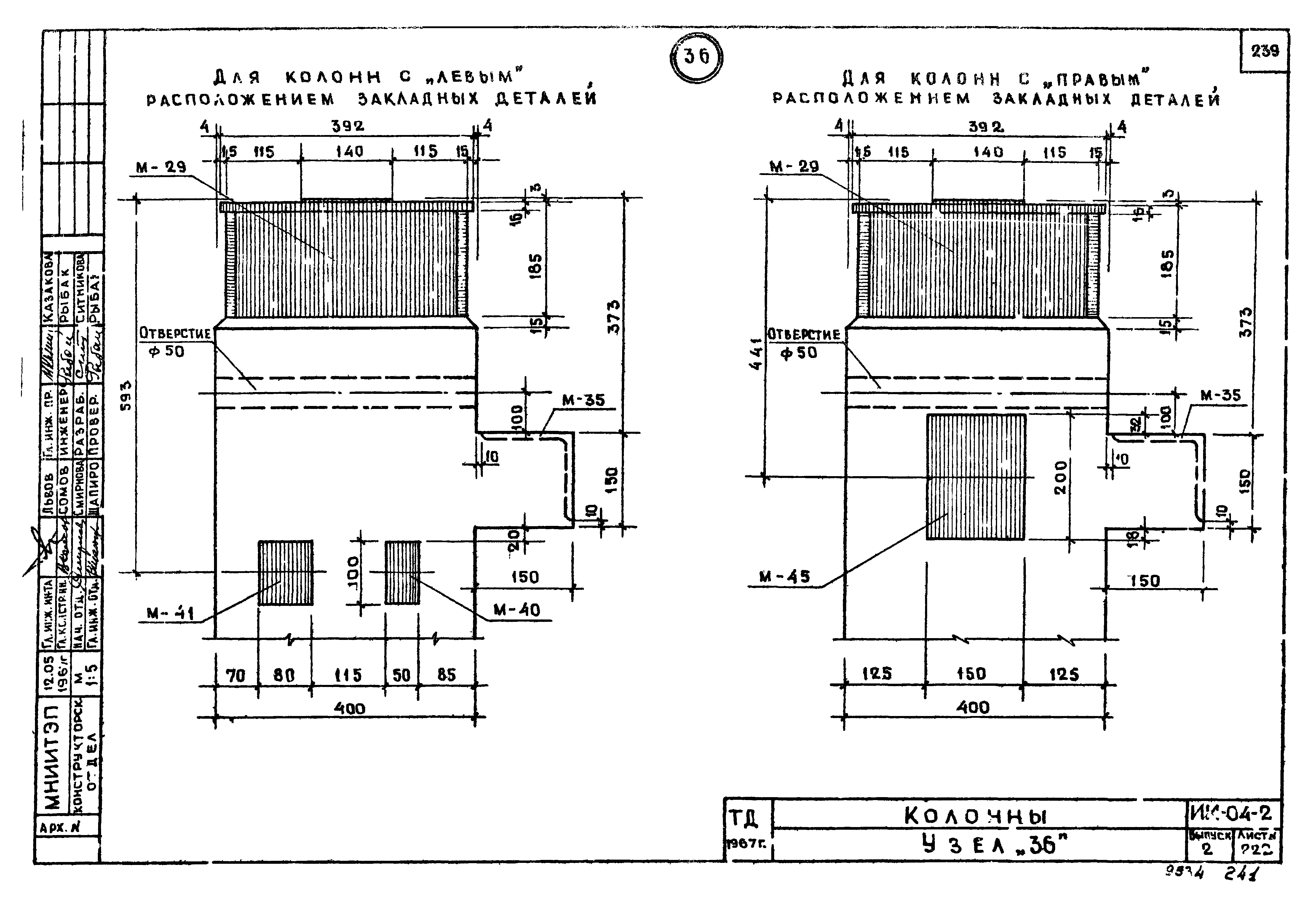
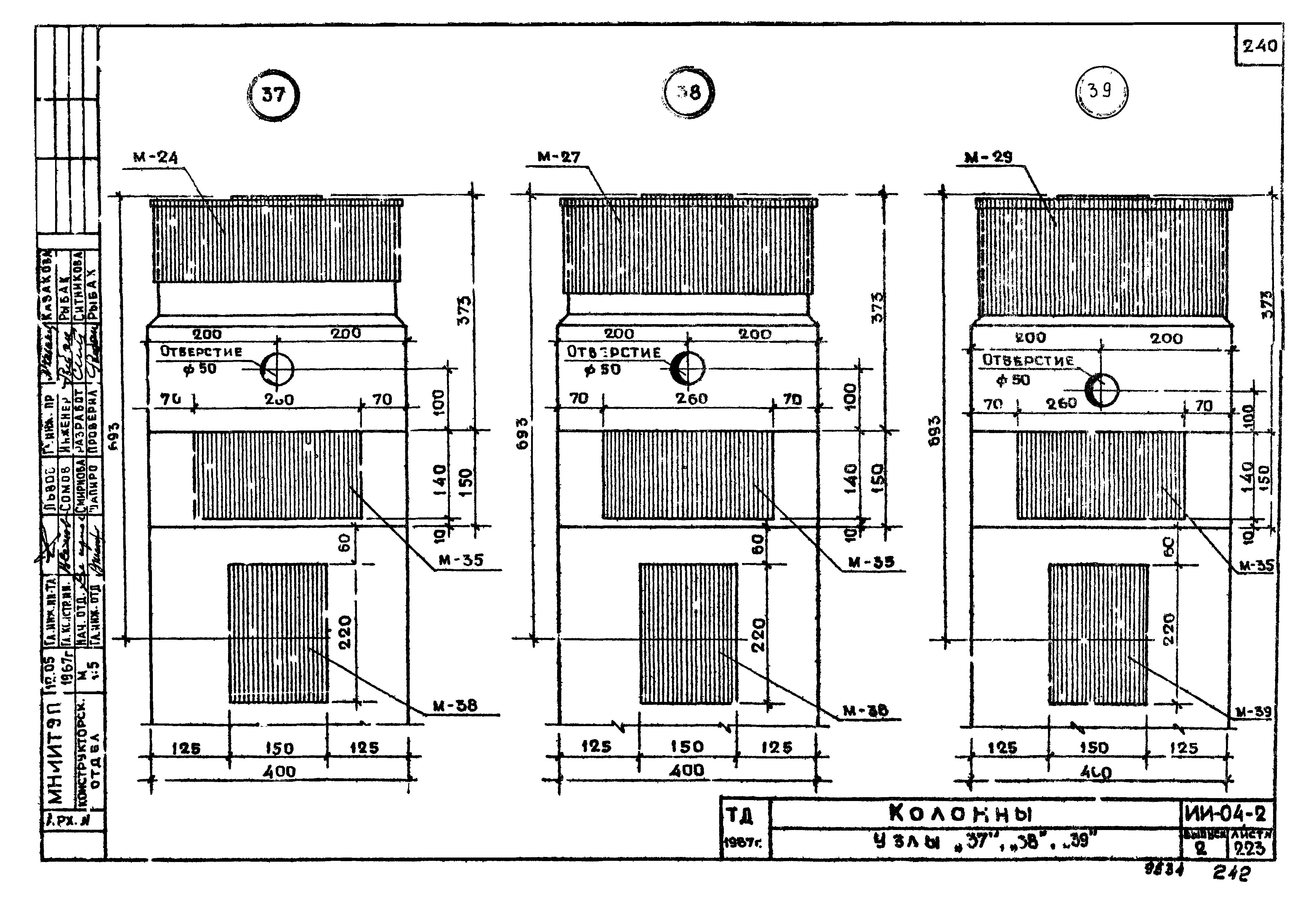
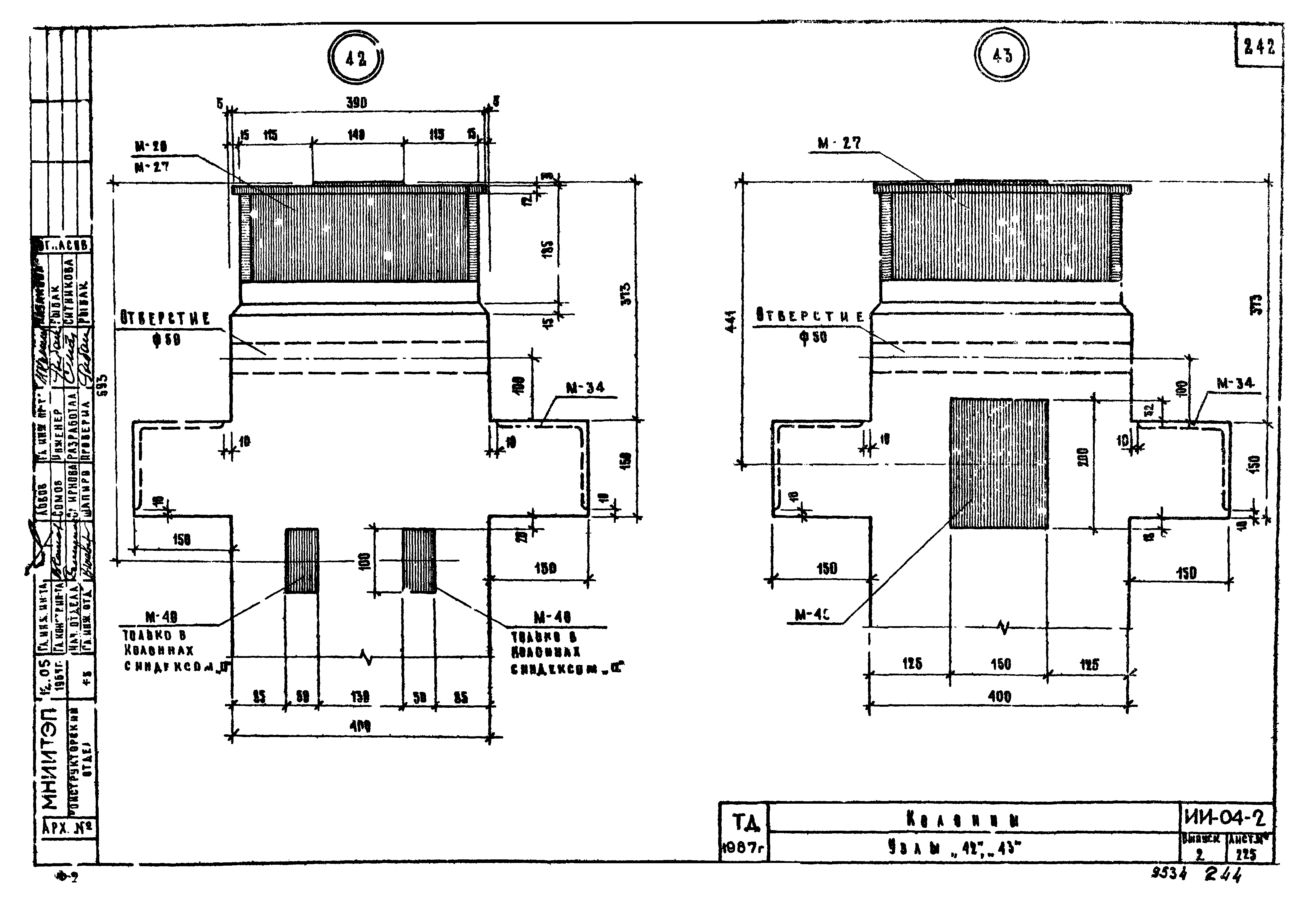
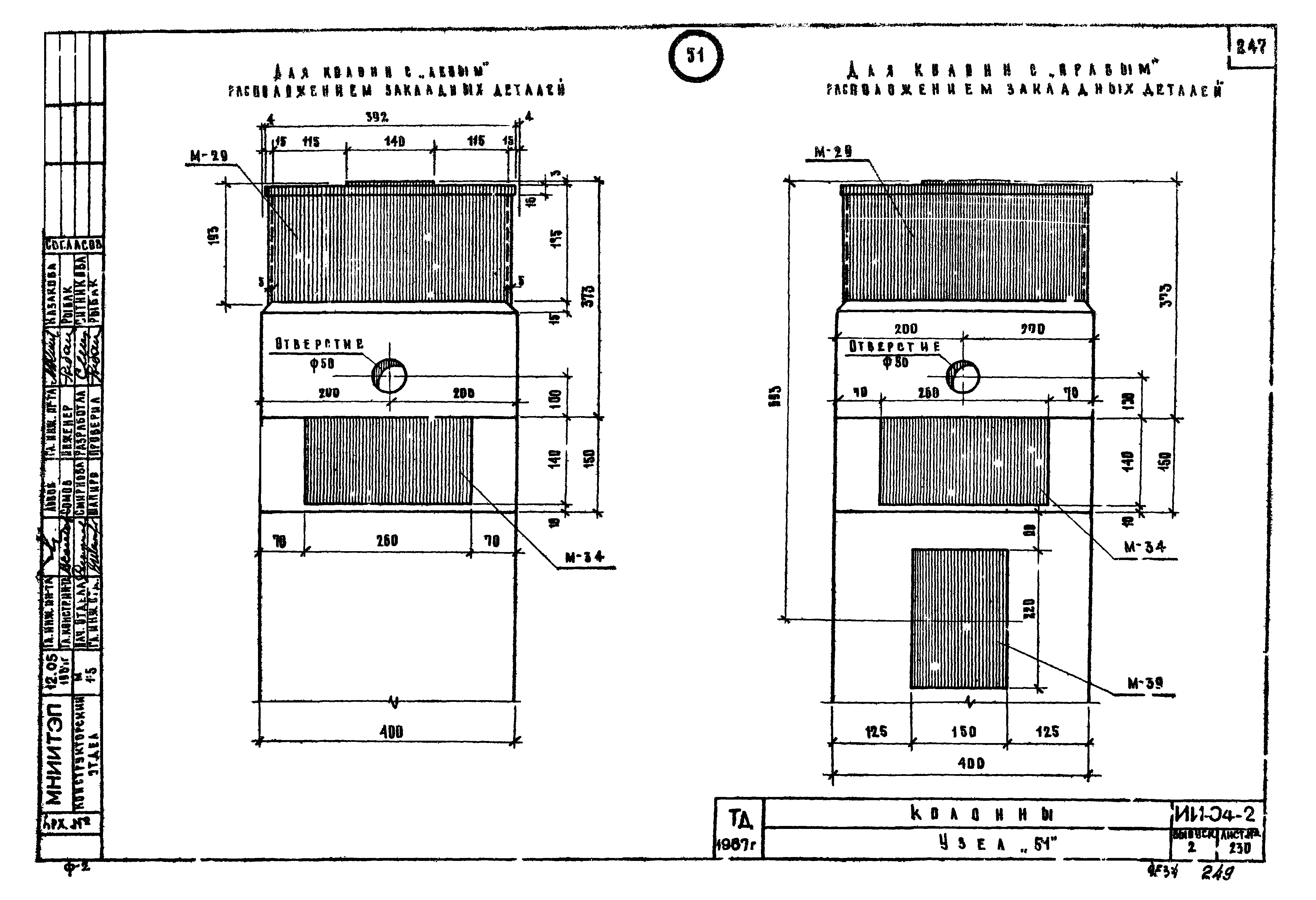
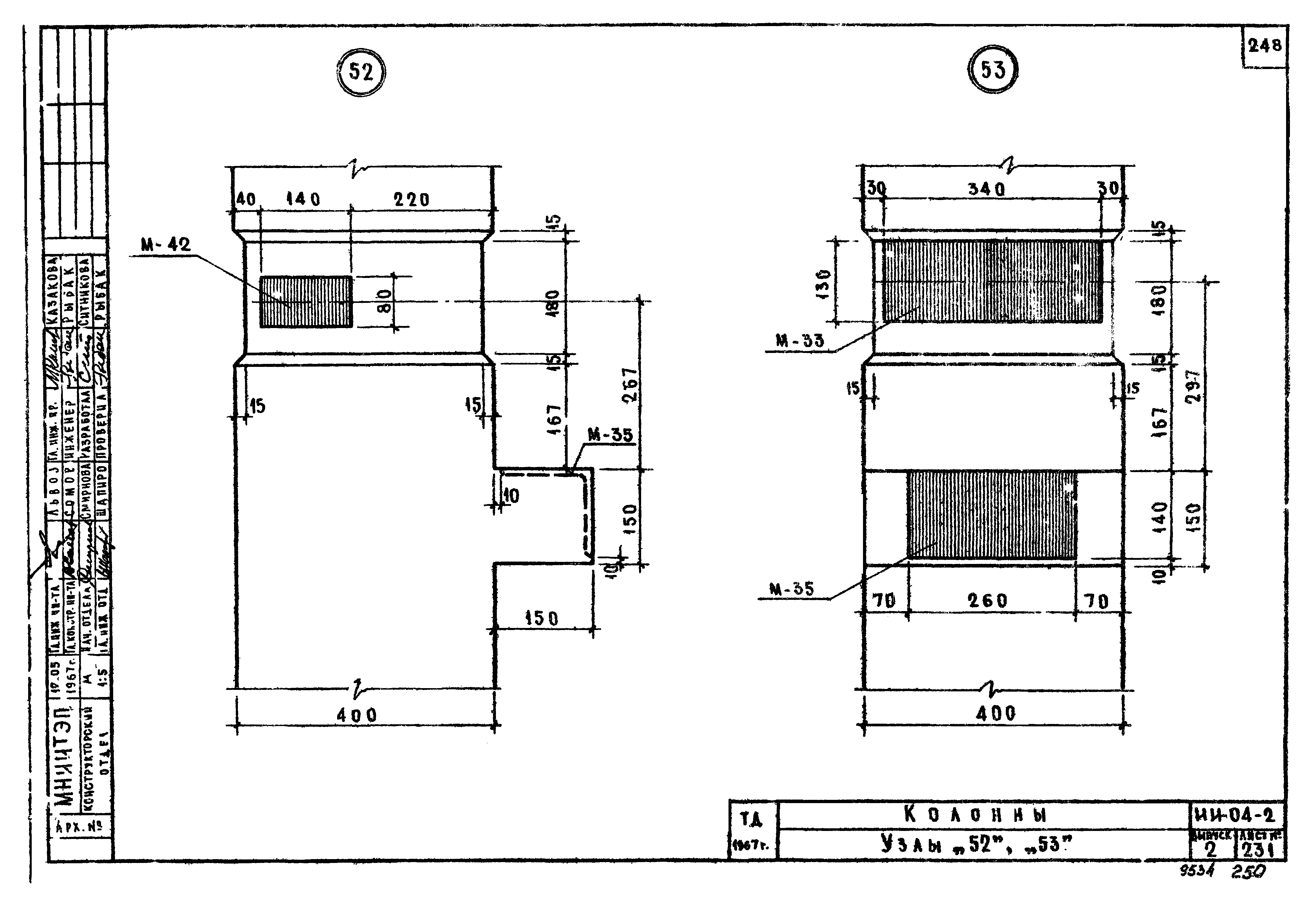
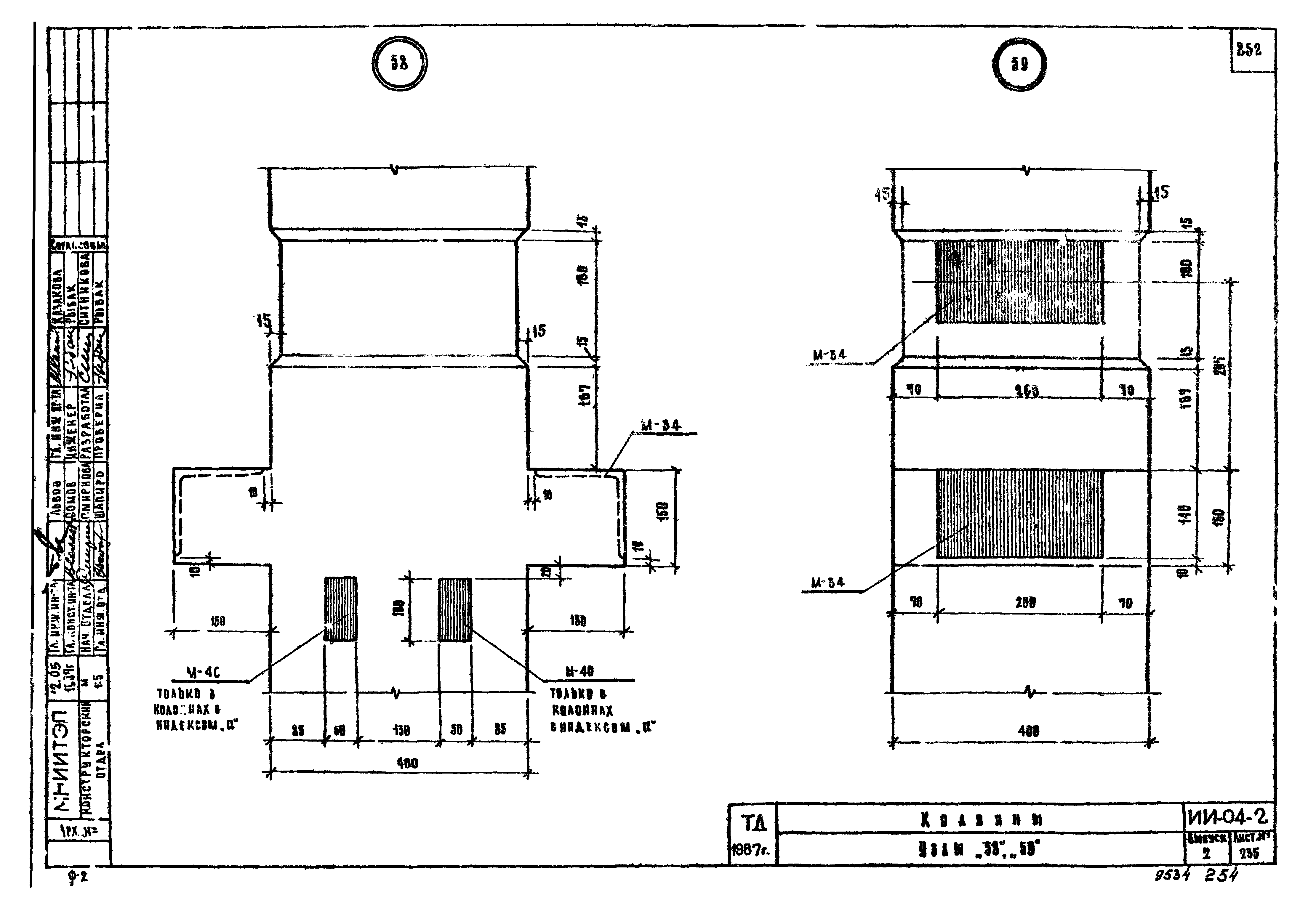
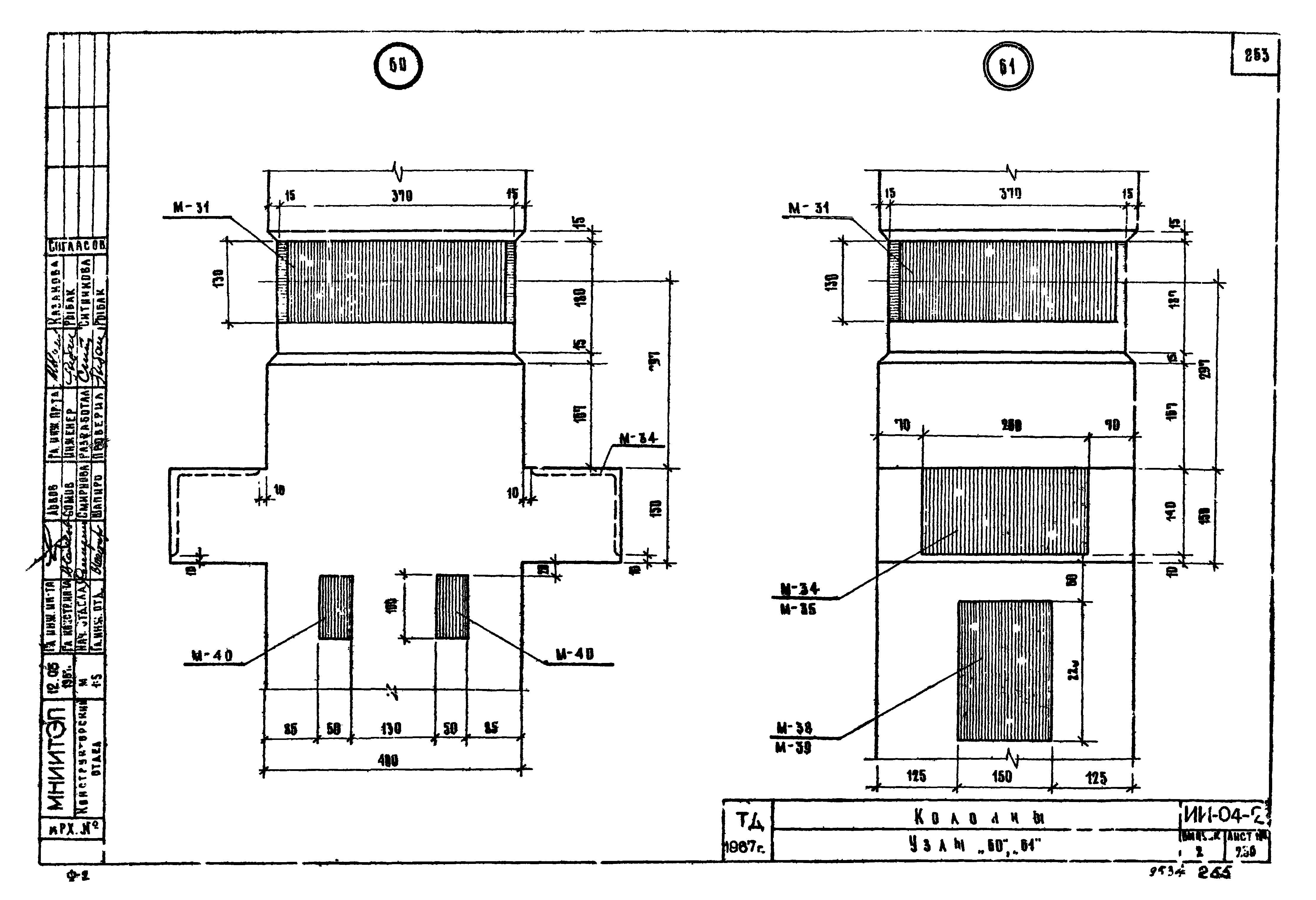
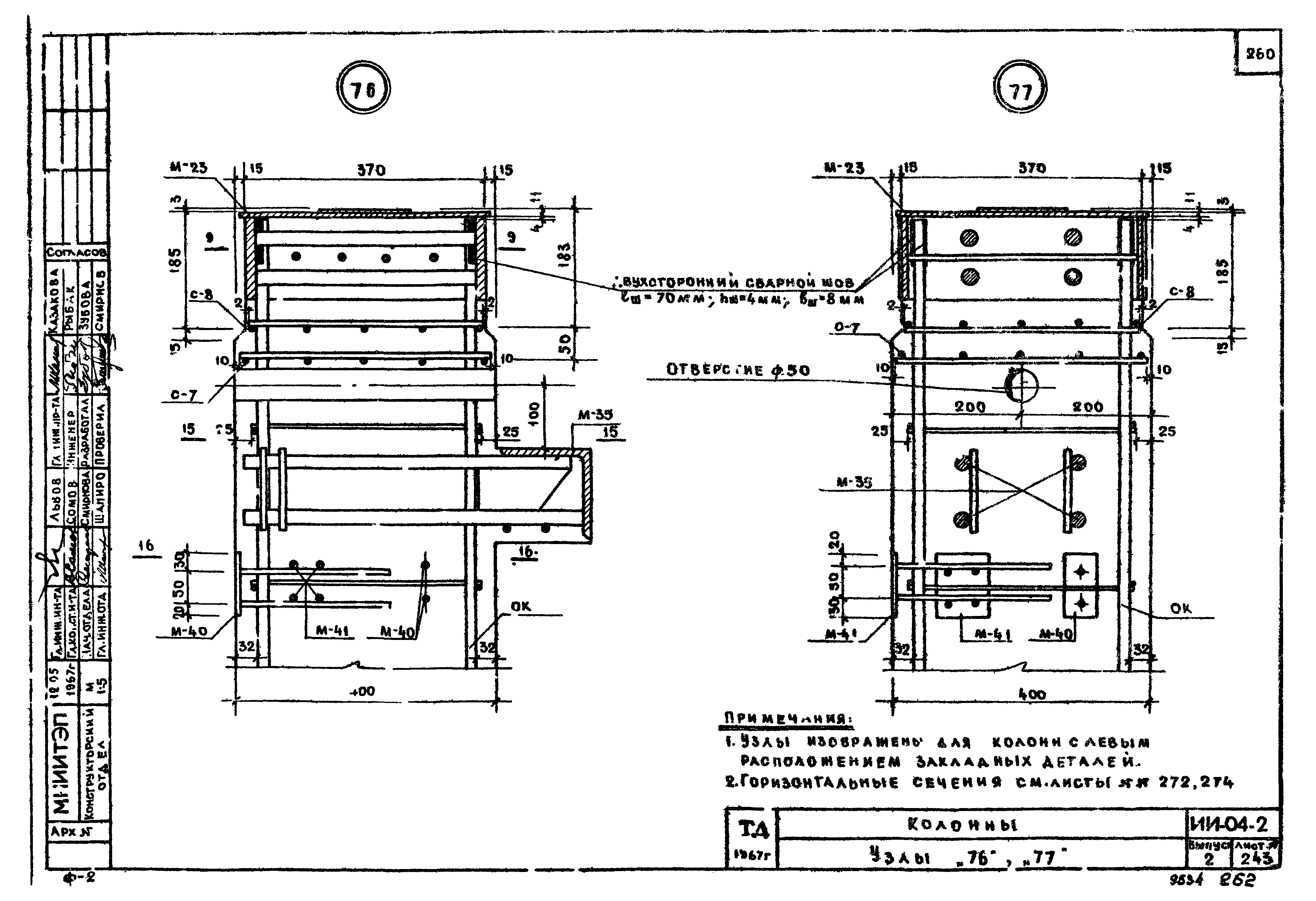
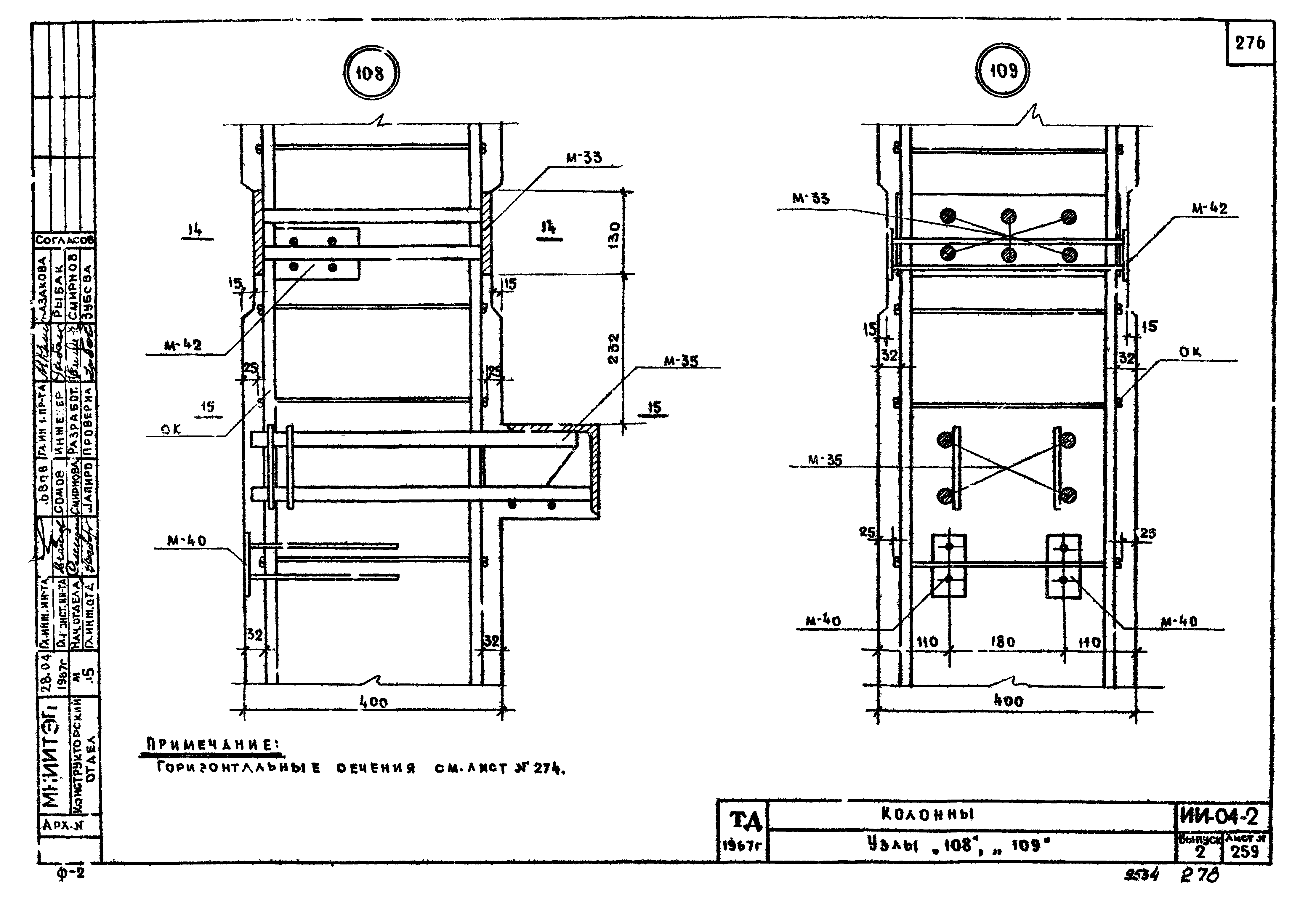
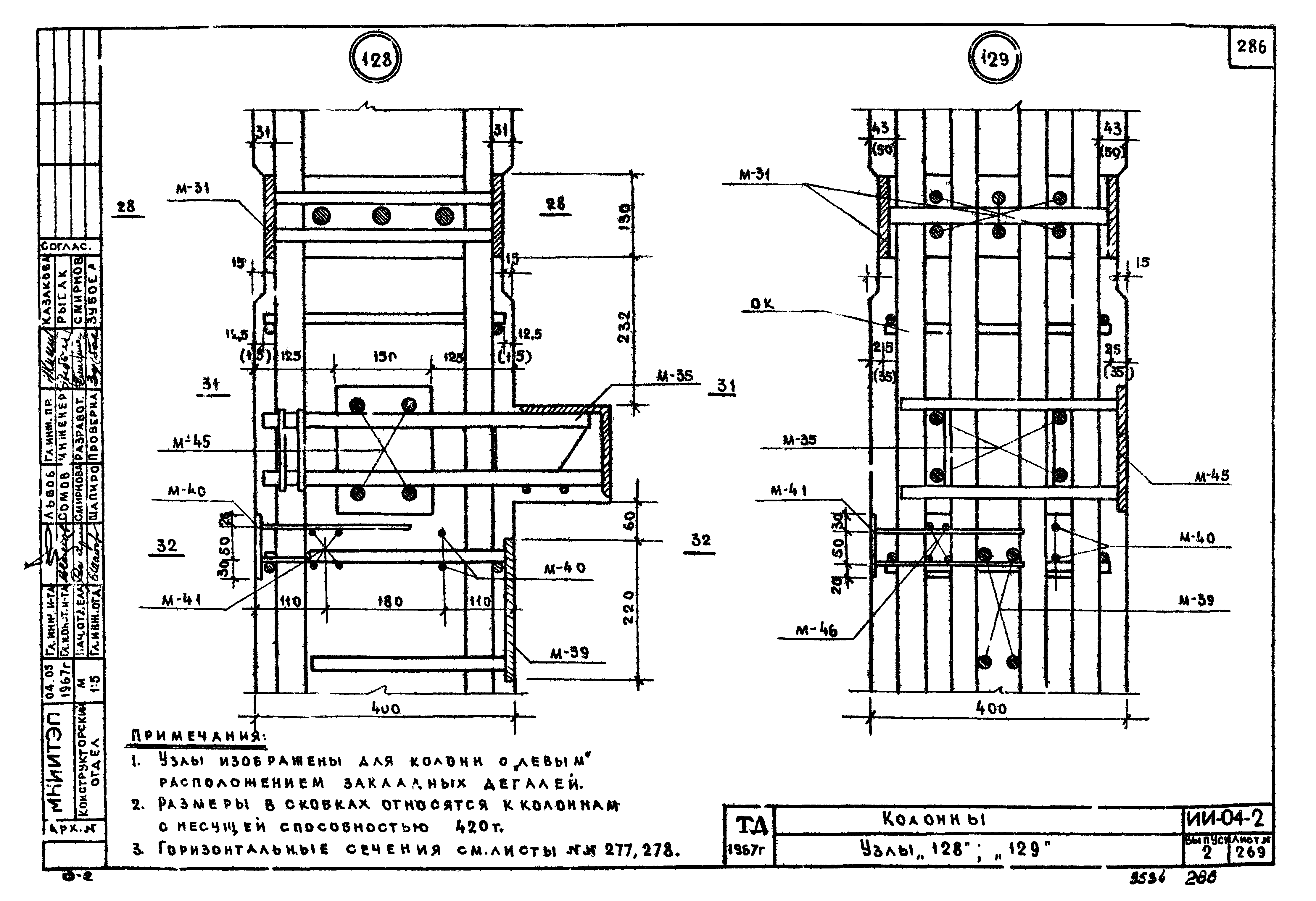
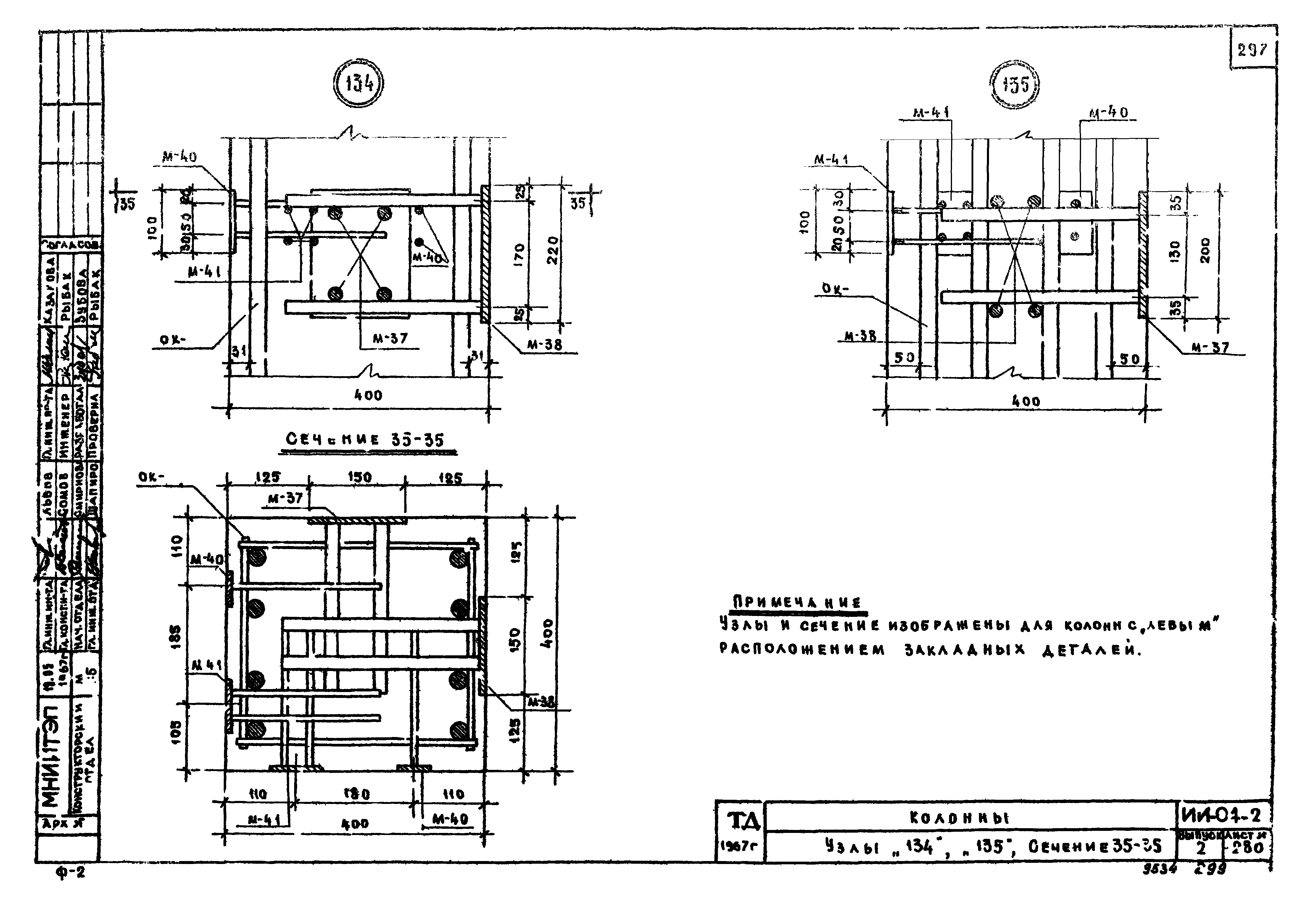
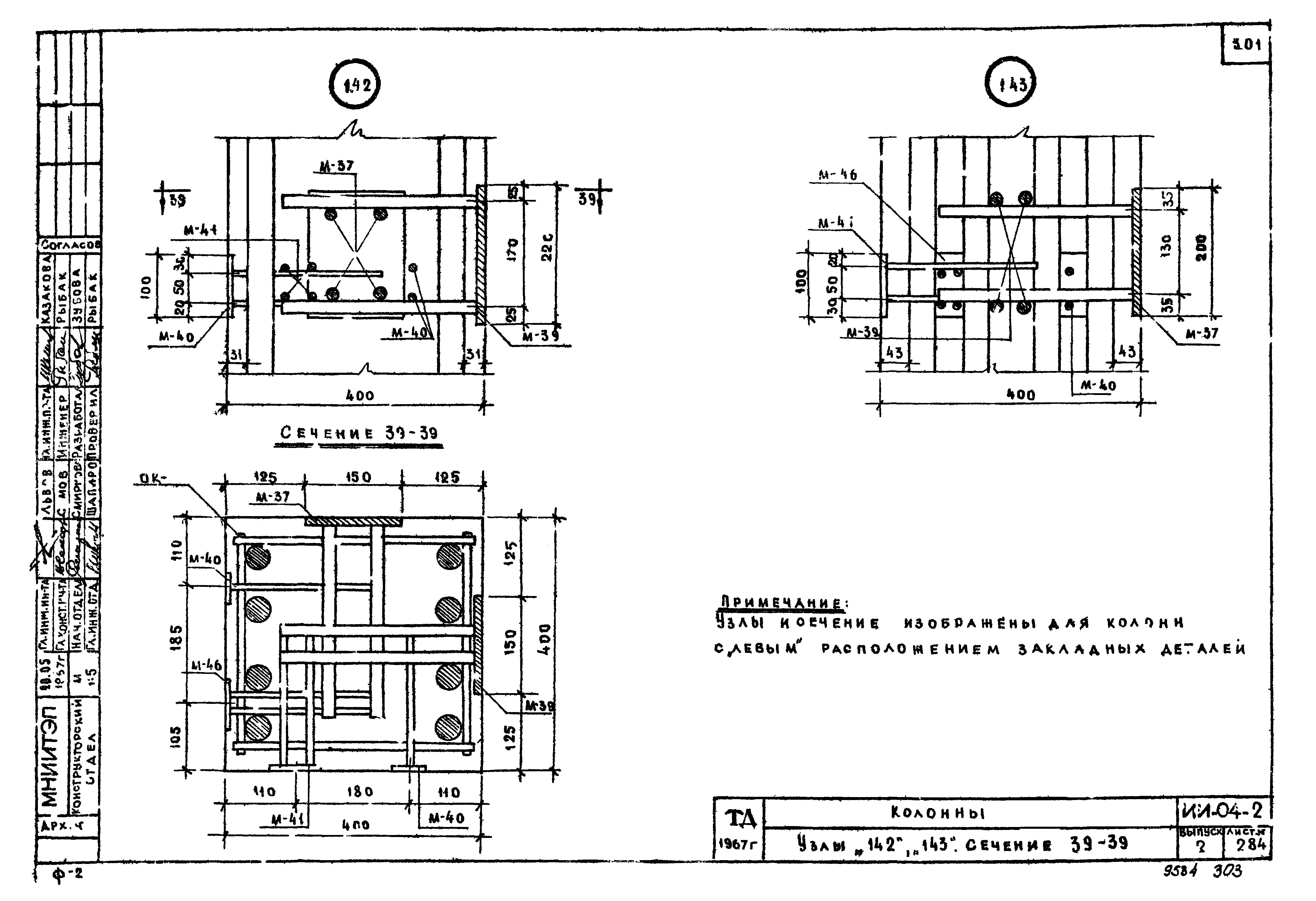
| Оглавление: | Содержание альбома Пояснительная записка Указания о порядке изготовления и установка закладных деталей Номенклатура Общий вид колонн К-42-24-4 Общий вид колонн К-42-24-4а Сеченая колонн К-42-34-4, К-42-24-4а Общий вид колонны КГ 42-24-4 Сечения колонны КП-42-24-4 Общий вид колонны К-29-33-4 Общий вид колонны К-29-33-4а Сечения колонн К-29-33-4, К-29-33-4а Общий вид колонны КП-29-33-4 Сечения колонны КП-29-33-4 Общий вид колонны КЛ-29-33-4а Сечения колонны КЛ-29-33-4а Общий вид колонны К-42-33-4 Общий вид колонны К-42-33-4а Сечения колонн К-42-33-4, К-42-33-4а Общий вид колонны КП-42-33-4 Сечения колонны КП-42-33-4 Общий вид колонны КЛ-42-33-4а Сечения колонны КЛ-42-33-4а Общий вид колонны К-60-33-4 Сечения колонны К-60-33-4 Общий вид колонны КП-60-33-4 Сеченая колонны КП-60-33-4 Общий вид колонны КЛ-60-33-4а Сеченая колонны КД-60-33-4а Общий вид колонны К-29-42-4 Общий вид колонны К-29-42-4а Сеченая колонн К-29-42-4, К-29-42-4а Общий вид колонны КП-29-42-4 Сечения колонны КП-29-42-4 Общий вид колонны КЛ-29-42-4а Сеченая колонны КЛ-29-42-4а Общий вид колонны К-42-42-4 Общий вид колонны К-42-42-4а Сечения колонн К-42-42-4, К-42-42-4а Общий вид колонны КП-42-42-4 Сечения колонны КП-42-42-4 Общий вид колонны КЛ-42-42-4а Сечения колонны КЛ-42-42-4а Общий вид колонны К-60-42-4 Сечения колонны К-60-42-4 Общий вид колонны КП-60-42-4 Сечения колонны КП-60-42-4 Общий вид колонны КЛ-60-42-4а Сечения колонны КЛ-60-42-4а Общий вид колонны К-29-66-4 Общий вид колонны К-29-66-4а Сечения колонн К-29-66-4,К-29-66-4а Общий вид колонны КП-29-66-4 Сечения колонны КП-29-66-4 Общий вид колонны КЛ-29-66-4а Сечения колонны КЛ-29-66-4а Характеристика колонны КЛ-29-66-4а Общий вид колонны К-42-66-4 Общий вид колонны К-42-66-4а Сечения колонн К-42-66-4,К-42-66-4а Общий вид колонны КГ-42-66-4 Сечения колонны КП-42-66-4 Общий вид колонны КЛ-42-66-4а Сечения колонны КЛ-42-66-4а Характеристика колонны КЛ-42-66-4а Общий вид колонны К-60-66-4 Сечения колонны К-60-66-4 Общий вид колонны КП-60-66-4 Сечения колонны КП-60-66-4 Общий вид колонны КЛ-60-66-4а Сечения колонны КЛ-60-66-4а Характеристика колонны КЛ-60-66-4а Общий вид колонны К-29-84-4 Общий вид колонны К-29-84-4а Сечения колонн К-29-84-4, К-29-84-4а Характеристика колонн К-29-84-4, К-29-84-4а Общий вид колонны КП-29-84-4 Сечения колонны КП-29-84-4 Характеристика колонны КП-29-84-4 Общий вид колонны КЛ-29-84-4а Сечения колонны КЛ-29-84-4а Характеристика колонны КЛ-29-84-4а Общий вид колонны К-42-84-4 Общий вид колонны К-42-84-4а Сечения колонн К-42-84-4, К-42-84-4а Характеристика колонн К-42-84-4, К-42-84-4а Общий вид колонны КП-42-84-4 Сечения колонны КП-42-84-4 Характеристика колонны КП-42-84-4 Общий вид колонны КЛ-42-84-4а Сечения колонны КЛ-42-84-4а Характеристика колонны КЛ-42-84-4а Общий вид колонны К-60-84-4 Сечения колонны К-60-84-4 Характеристика колонны К-60-84-4 Общий вид колонны КП-60-84-4 Сечения колонны КП-60-84-4 Характеристика колонны КП-60-84-4 Общий вид колонны КЛ-60-84-4а Сечения колонны КЛ-60-84-4а Характеристика колонны КЛ-60-84-4а Общий вид колонн К2-42-24-4, К2-42-24-4а Сечения колонн К2-42-24-4, К2-42-24-4а Общий вид колонн К2-29-33-4, К2-29-33-4а Сечения колонн К2-29-33-4, К2-29-33-4а Общий вид колонны К2Л-29-33-4а Сечения колонны К2Л-29-33-4а Общий вид колонн К2-42-33-4, К2-42-33-4а Сечения колонн К2-42-33-4, К2-42-33-4а Общий вид колонны К2Л-42-33-4а Сечения колонны К2Л-42-33-4а Общий вид колонны К2-60-33-4 Сечения колонны К2-60-33-4 Общий вид колонны К2Л-60-33-4а Сечения колонны К2Л-60-33-4а Общий вид колонн К2-29-42-4, К2-29-42-4а Сечения колонн К2-29-42-4, К2-29-42-4а Общий вид колонны К2Л-29-42-4а Сечения колонны К2Л-29-42-4а Общий вид колонн К2-42-42-4, К2-42-42-4а Сечения колонн К2-42-42-4, К2-42-42-4а Общий вид колонны К2Л-42-42-4а Сечения колонны К2Л-42-42-4а Общий вид колонны К2-60-42-4 Сечения колонны К2-60-42-4 Общий вид колонны К2Л-60-42-4а Сечения колонны К2Л-60-42-4а Общий вид колонн К2-29-66-4, К2-29-66-4а Сечения колонн К2-29-66-4, К2-29-66-4а Общий вид колонны К2Л-29-66-4а Сечения колонны К2Л-29-66-4а Характеристика колонны К2Л-29-66-4а Общий вид колонн К2-42-66-4, К2-42-66-4а Сечения колонн К2-42-66-4, К2-42-66-4а Общий вид колонны К2Л-42-66-4а Сечения колонны К2Л-42-66-4а Характеристика колонны К2Л-42-66-4а Общий вид колонны К2-60-66-4 Сечения колонны К2-60-66-4 Общий вид колонны К2Л-60-66-4а Сечения колонны К2Л-60-66-4а Характеристика колонны К2Л-60-66-4а Общий вид колонн К2-29-84-4, К2-29-84-4а Сечения колонн К2-29-84-4, К2-29-84-4а Характеристика колонн К2-29-84-4, К2-29-84-4а Общий вид колонны К2Л-29-84-4а Сечения колонны К2Л-29-84-4а Характеристика колонны К2Л-29-84-4а Общий вид колонн К2-42-84-4, К2-42-84-4а Сечения колонн К2-42-84-4, К2-42-84-4а Характеристика колонн К2-42-84-4, К2-42-84-4а Общий вид колонны К2Л-42-84-4а Сечения колонны К2Л-42-84-4а Характеристика колонны К2Л-42-84-4а Общий вид колонны К2-60-84-4 Сечения колонны К2-60-84-4 Характеристика колонны К2-60-84-4 Общий вид колонны К2Л-60-84-4а Сечения колонны К2Л-60-84-4а Характеристика колонны К2Л-60-84-4а Арматурный каркас ОК-27 Арматурный каркас ОК-28 Арматурный каркас ОК-29 Арматурный каркас ОК-30 Арматурный каркас ОК-31 Арматурный каркас ОК-32 Арматурный каркас ОК-33 Арматурный каркас ОК-34 Арматурный каркас ОК-35 Арматурный каркас ОК-36 Арматурный каркас ОК-37 Арматурный каркас ОК-38 Арматурный каркас ОК-39 Арматурные сетки С-7 - C-13 Закладная деталь М-23 Закладная деталь М-24 Закладные детали М-23, М24 Закладная деталь М-25 Закладная деталь М-26 Закладная деталь М-27 Закладные детали М-26, М27 Закладная деталь М-28 Закладная деталь М-29 Закладная деталь М-30 Закладная деталь М-31 Закладная деталь М-32 Закладная деталь М-33 Закладная деталь М-34 Закладная деталь М-35 Закладная деталь М-36 Закладная деталь М-37 Закладная деталь М-38 Закладная деталь М-39 Закладная деталь М-40 Закладная деталь М-41 Закладная деталь М-42 Закладная деталь М-43 Закладная деталь М-44 Закладная деталь М-45 Закладная деталь М-46 Узлы "1","2","3","4" Узлы "5","6","7","8" Узлы "9","10","11","12" Узлы "13","14","15" Узлы "16","17" Узлы "18","19" Узлы "20","21" Узлы "22","23","24" Узел "25" Узел "26" Узел "27" Узлы "28","29" Узлы "30","31" Узлы "32","33" Узел "34" Узел "35" Узел "36" Узлы "37","38","39" Узлы "40","41" Узлы "42","43" Узлы "44","45" Узлы "46","47","48" Узел "49" Узел "50" Узел "51" Узлы "52","53" Узел "54" Узлы "55","56" Узел "57" Узлы "58","59" Узлы "60","61" Узлы "62","63","64","65" Узлы "66","67" Узлы "68","69" Узлы "70","71" Узлы "72","73" Узлы "74","75" Узлы "76","77" Узлы "78","79" Узлы "80","81" Узлы "82","83" Узлы "84","85" Узлы "86","87" Узлы "88","89" Узлы "90","91" Узлы "92","93" Узлы "94","95" Узлы "96","97" Узлы "98","99" Узлы "100","101" Узлы "102","103" Узлы "104","105" Узлы "106","107" Узлы "108","109" Узлы "110","111" Узлы "112","113" Узлы "114","115" Узлы "116","117" Узлы "118","119" Узлы "120","121" Узлы "122","123" Узлы "124","125" Узлы "126","127" Узлы "128","129" Узлы "130","131" Сечения 3-3, 4-4, 5-5, 6-6 Сечения 7-7, 8-8, 9-9, 10-10 Сечения 11-11, 12-12, 13-13 Сечения 14-14, 15-15, 16-16, 17-17 Сечения 18-18, 19-19, 20-20, 21-21 Сечения 22-22, 23-23, 24-24, 25-25 Сечения 26-26, 27-27, 28-28, 29-29 Сечения 30-30. 31-31, 32-32, 33-33 Узлы "132", "133". Сечения 34-34 Узлы "134", "135". Сечения 35-35 Узлы "136", "137". Сечения 36-36 Узлы "138", "139". Сечения 37-37 Узлы "140", "141". Сечения 38-38 Узлы "142", "143". Сечения 39-39 Сечения 40-40, 41-41, 42-42, 43-43 Сечения 44-44, 45-45 Расчетные усилия в закладных деталях М-23 Расчетные усилия в закладных деталях М-24 Расчетные усилия в закладных деталях М-25 Расчетные усилия в закладных деталях М-27 Расчетные усилия в закладных деталях М-29 Расчетные усилия в закладных деталях М-31 Расчетные усилия в закладных деталях М-32, М-33 Расчетные усилия в закладных деталях М-34, М-35, М-36, М-44 Расчетные усилия в закладных деталях М-37, М-38, М-39, М-40, М-45 Расчетные усилия в закладных деталях М-41, М-42, М-43, М-46 График несущей способности колонн График несущей способности стыковых швов Технологические отверстия в закладных деталях Привязка закладных деталей для крепления наружных стеновых панелей Вариант установки закладной детали М-34 в арматурный каркас Закладная деталь М-34 (вариант) |
| Разработан: | МНИИТЭП |
| Утверждён: | 30.10.1967 Государственный комитет по гражданскому строительству и архитектуре при Госстрое СССР (164) |



































































































































































































































































































































