Скачать Серия ИИ23-1 Железобетонные ригели пролетом 6 м с полками для опирания плитДата актуализации: 01.01.2021
|
| Обозначение: | Серия ИИ23-1 |
| Обозначение англ: | Series ИИ23-1 |
| Статус: | действует |
| Название рус.: | Железобетонные ригели пролетом 6 м с полками для опирания плит |
| Дата добавления в базу: | 01.09.2013 |
| Дата актуализации: | 01.01.2021 |
| Дата введения: | 01.10.1964 |
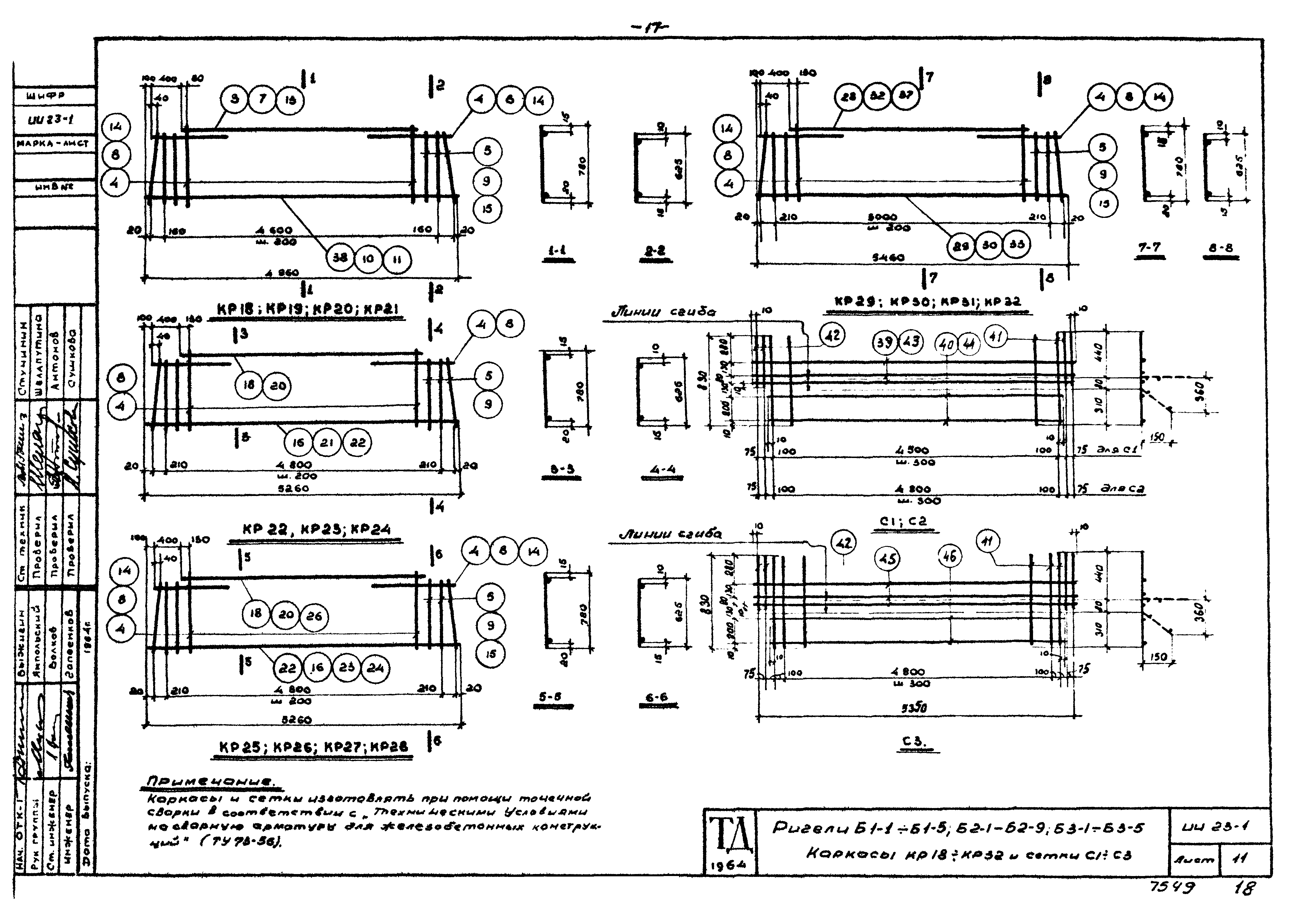
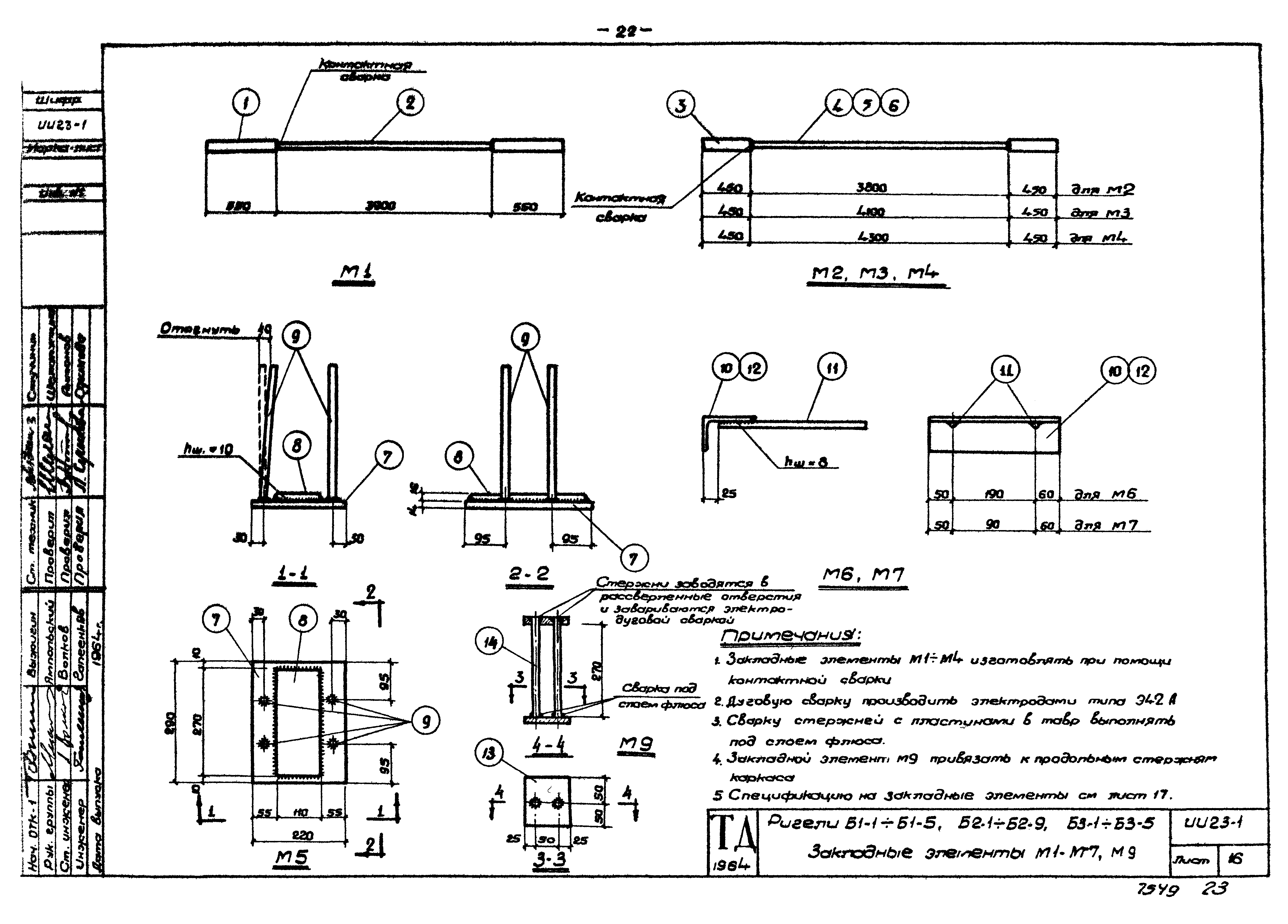
| Оглавление: | 1 Пояснительная записка 2 Рабочие чертежи Ригели Б1-1-Б1-5,Б2-1-Б2-4,Б2-5-Б2-9,Б3-1-Б3-5. Опалубочный чертеж. Армирование. Показатели на один ригель Ригели Б1-1-Б1-5. Деталь 1 Ригели Б1-1-Б1-5,Б2-1-Б2-4,Б2-5-Б2-9,Б3-1-Б3-5. Пространственные каркасы КП1-КП9,КП10-КП19 Ригели Б1-1-Б1-5,Б2-1-Б2-9,Б3-1-Б3-5. Детали 1-5 Ригели Б1-1-Б1-5,Б2-1-Б2-9,Б3-1-Б3-5. Спецификация арматурных изделий Ригели Б1-1-Б1-5,Б2-1-Б2-9,Б3-1-Б3-5. Каркасы КР1-КР17,КР18-КР32 и сетки С1-С3 Ригели Б1-1-Б1-5,Б2-1-Б2-9,Б3-1-Б3-5. Спецификация и выборка арматуры Ригели Б1-1-Б1-5,Б2-1-Б2-9,Б3-1-Б3-5. Закладные элементы М1-М7,М9 Ригели Б1-1-Б1-5,Б2-1-Б2-9,Б3-1-Б3-5. Спецификация стали на закладные элементы |
| Разработан: | ЦНИИпромзданий НИИЖБ |
| Утверждён: | 29.08.1964 Госстрой СССР (Государственный комитет Совета Министров СССР по делам строительства) (USSR Gosstroy 51) |























