Скачать Серия ИИ23-7 Железобетонные ригели пролетом 6 м для ячеек с лестничными клеткамиДата актуализации: 01.01.2021
|
| Обозначение: | Серия ИИ23-7 |
| Обозначение англ: | Series ИИ23-7 |
| Статус: | действует |
| Название рус.: | Железобетонные ригели пролетом 6 м для ячеек с лестничными клетками |
| Дата добавления в базу: | 01.09.2013 |
| Дата актуализации: | 01.01.2021 |
| Дата введения: | 01.04.1969 |
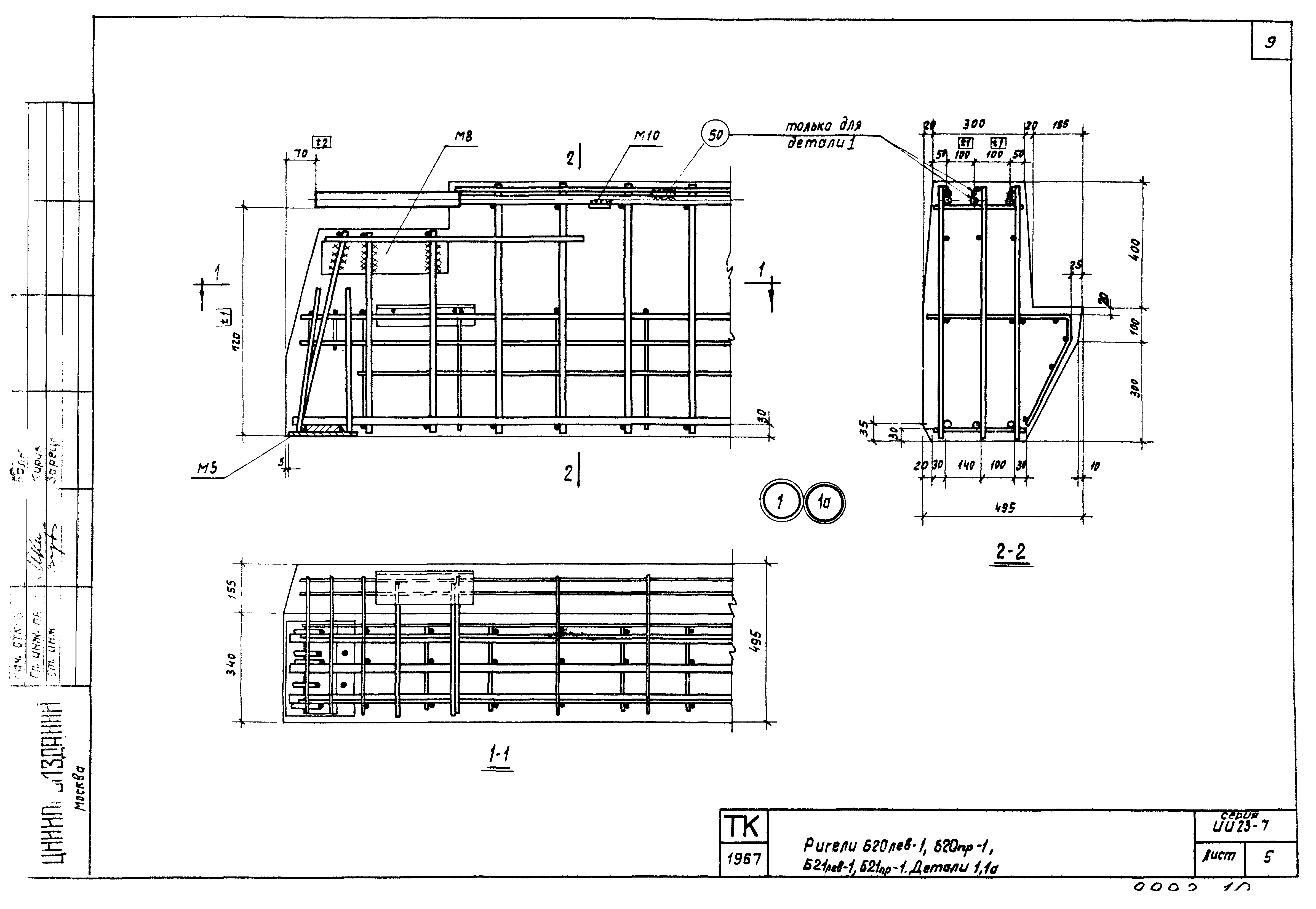
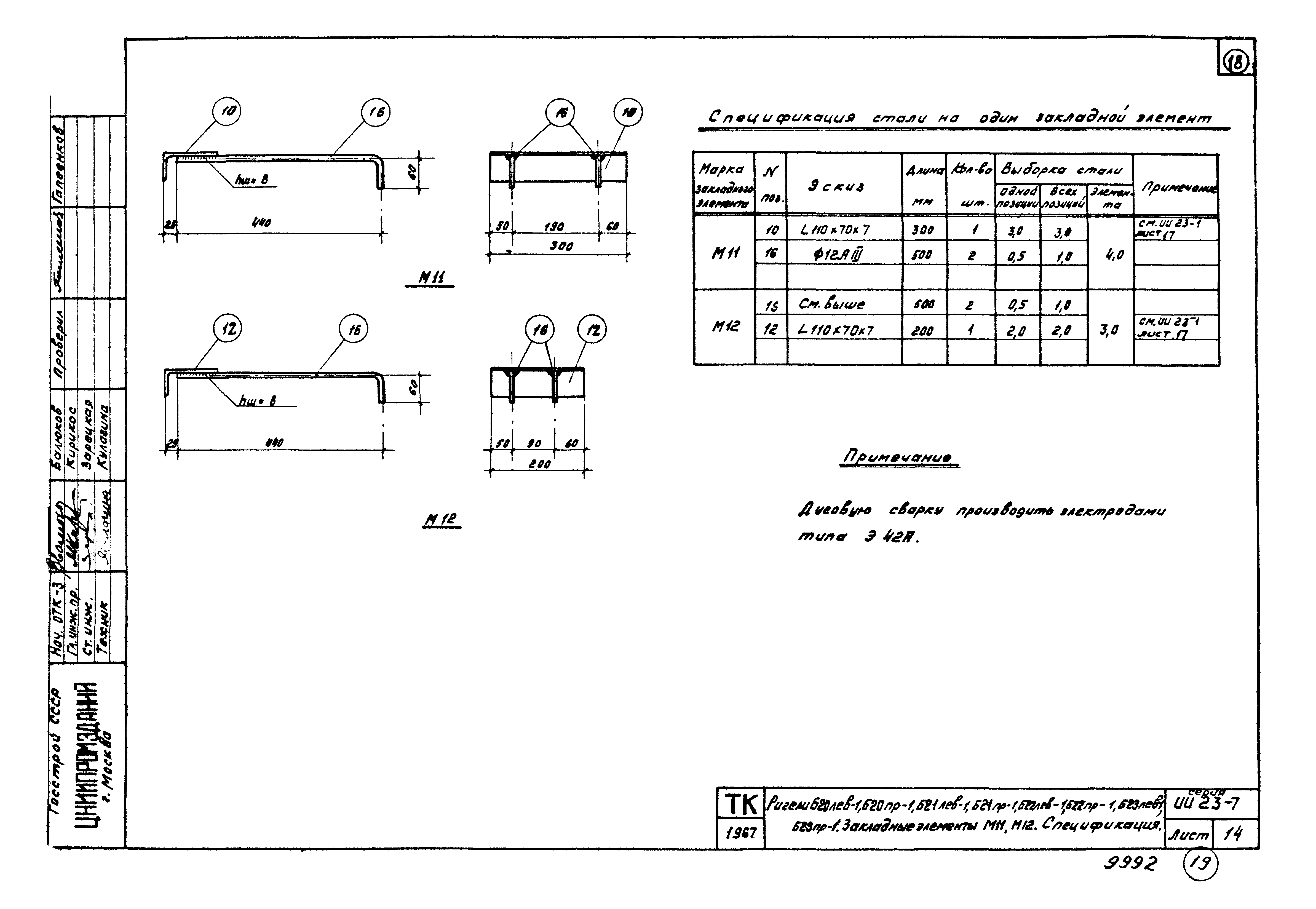
| Оглавление: | Пояснительная записка Рабочие чертежи Ригели Б20лев-1,Б20пр-1. Опалубочный чертеж. Армирование. Показатели на один ригель. Выборка стали Ригели Б21лев-1,Б21пр-1. Опалубочный чертеж. Армирование. Показатели на один ригель. Выборка стали Ригели Б22лев-1,Б22пр-1. Опалубочный чертеж. Армирование. Показатели на один ригель. Выборка стали Ригели Б23лев-1,Б23пр-1. Опалубочный чертеж. Армирование. Показатели на один ригель. Выборка стали Ригели Б20лев-1,Б20пр-1,Б21лев-1,Б21пр-1. Детали 1,1а Ригели Б20лев-1,Б20пр-1,Б21лев-1,Б21пр-1,Б22лев-1,Б22пр-1,Б23лев-1,Б23пр-1. Деталь 2 Ригели Б20лев-1,Б20пр-1,Б21лев-1,Б21пр-1. Пространственные каркасы КП20лев,КП20пр,КП21лев,КП21пр Ригели Б22лев-1,Б22пр-1,Б23лев-1,Б23пр-1. Пространственные каркасы КП22лев,КП22пр,КП23лев,КП23пр Ригели Б20лев-1,Б20пр-1,Б21лев-1,Б21пр-1. Детали 1,2,1а Ригели Б20лев-1,Б20пр-1,Б21лев-1,Б21пр-1,Б22лев-1,Б22пр-1,Б23лев-1,Б23пр-1. Детали 3-6. Деталь "А" Спецификация марок арматурных изделий и закладных элементов на один пространственный каркас Ригели Б20лев-1,Б20пр-1,Б21лев-1,Б21пр-1,Б22лев-1,Б22пр-1,Б23лев-1,Б23пр-1. Сетки С4-С15 Спецификация и выборка стали на одно арматурное изделие Ригели Б20лев-1,Б20пр-1,Б21лев-1,Б21пр-1,Б22лев-1,Б22пр-1,Б23лев-1,Б23пр-1. Закладные элементы М11,М12. Спецификация |
| Разработан: | ЦНИИпромзданий |
| Утверждён: | 30.10.1968 Госстрой СССР (Государственный комитет Совета Министров СССР по делам строительства) (USSR Gosstroy 94) |


















