Скачать Серия ИИ-04-12 Выпуск 4. Железобетонные плиты перекрытий с круглыми пустотами, ребристые и сплошные. Рабочие чертежиДата актуализации: 01.01.2021
|
| Обозначение: | Серия ИИ-04-12 |
| Обозначение англ: | Series ИИ-04-12 |
| Статус: | действует |
| Название рус.: | Выпуск 4. Железобетонные плиты перекрытий с круглыми пустотами, ребристые и сплошные. Рабочие чертежи |
| Дата добавления в базу: | 01.09.2013 |
| Дата актуализации: | 01.01.2021 |
| Дата введения: | 19.02.1969 |
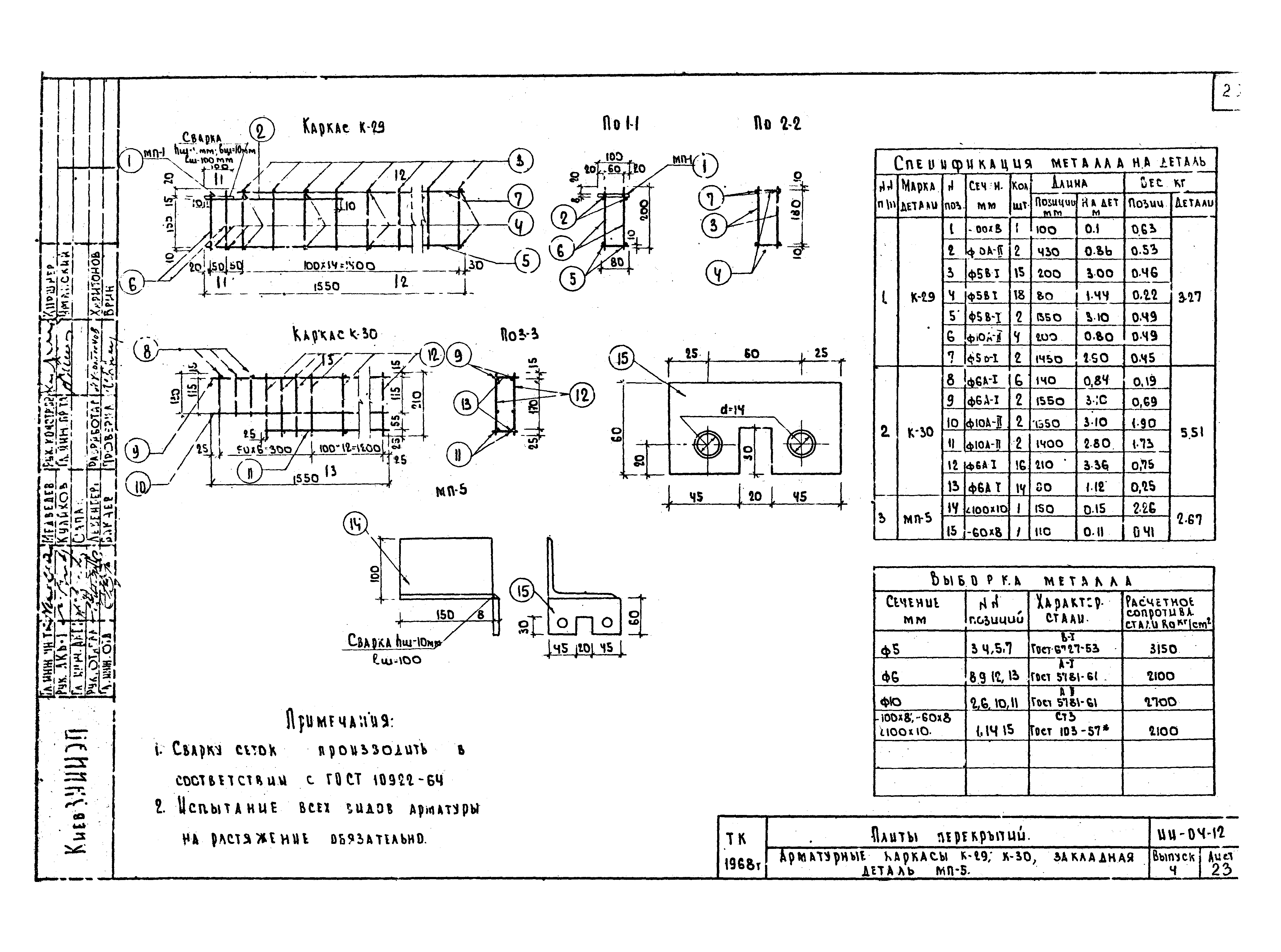
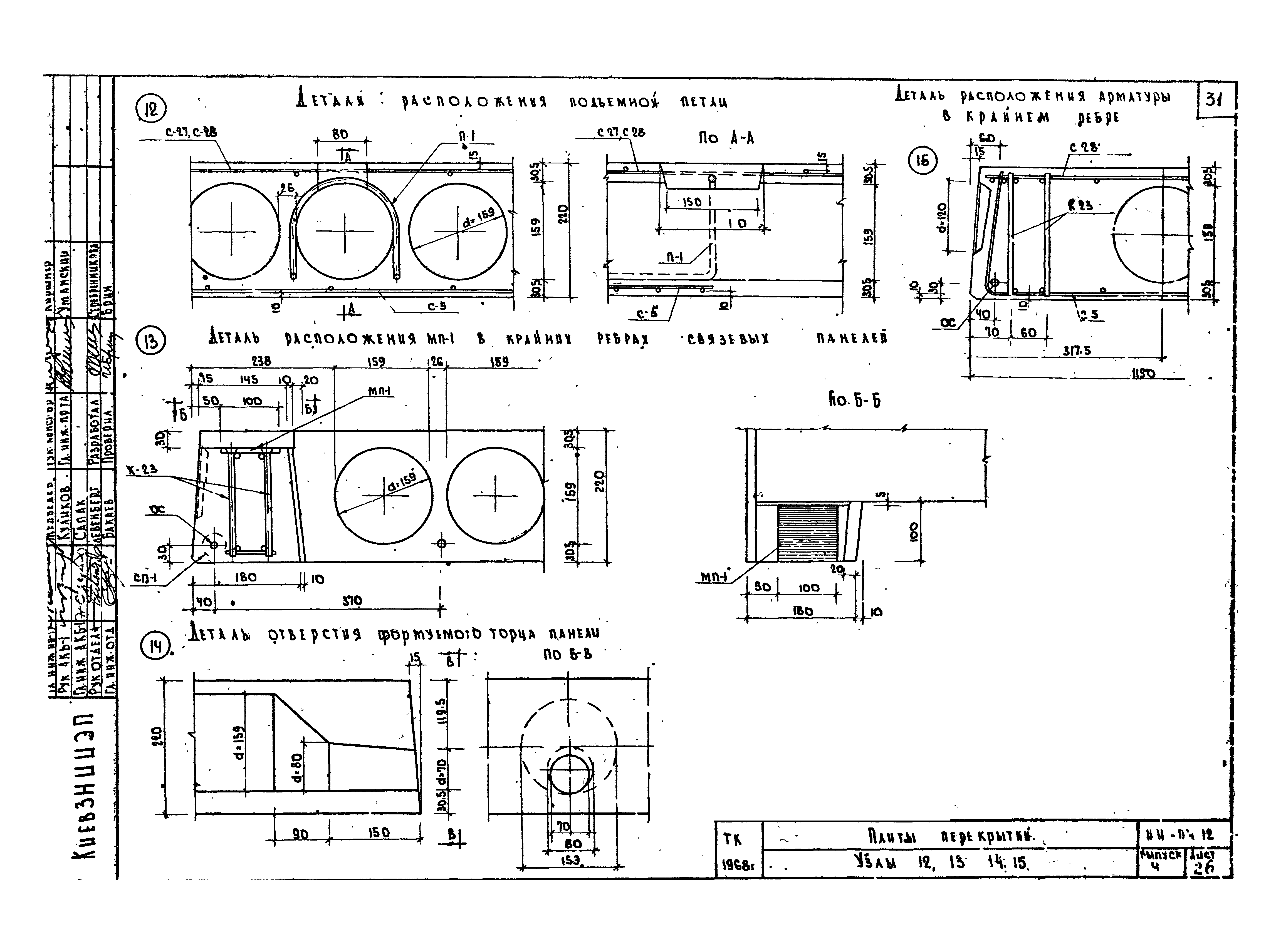
| Оглавление: | Перечень выпусков серии Содержание выпуска Пояснительная записка Номенклатура изделий Общий вид и армирование плиты ПТ33-12н Характеристика и схема расчета плиты ПТ33-12н Арматурные сетки С-27, С-8, С-5 Арматурный каркас К-21, отдельные стержни ОС-26, ОС-27, подъемная петля П-1, спираль СП-1, пластина МП-1 Общий вид и армирование плиты ПТ-63-12ан Характеристика и схема расчета плиты ПТ63-12ан Арматурные сетки С-28, С-29, отдельный стержень ОС-29, арматурные каркасы К-22, К-23 Общий вид и армирование плиты ПР8-63-12н Характеристика и схема расчета плиты ПР8-63-12н Общий вид и армирование плиты ПP8-33-12н Характеристика и схема расчета плиты ПР8-33-12н Отдельный стержень ОС-28. Арматурные сетки C-31 и С-32 Арматурные каркасы К-25; К-26; деталь МП-2 Арматурный каркас К-7, отдельные стержни CО-13, ОС-30, ОС-32. Подъемные петли П-2 и П-3 Общий вид и армирование плиты ПК 8-63-8н Характеристика и схема расчета плиты ПК 8-63-8н Общий вид и армирование плиты ПК 8-63-6н Характеристика и схема расчета плиты ПК 8-63-6н Арматурные сетки С-33, C-13; отдельные стержни ОС-33, ОС-34, ОС-35 Арматурные сетки С-34, С-17; отдельные стержни ОС-36, ОС-37, ОС-38 Арматурные каркасы К-27, К-28 Арматурные каркасы К-29, К-30; закладная деталь МП-5 Закладные детали MП-8 и МП-4 Узлы 9, 11. Детали шпонок Узлы 12, 13, 14, 15 Значения контролируемых предварительных напряжений в арматуре и потерь предварительных напряжений Схема опирания и загружения плит. Контрольные нагрузки. |
| Разработан: | КиевЗНИИЭП |
| Утверждён: | 19.02.1969 Государственный комитет по гражданскому строительству и архитектуре при Госстрое СССР (38) |
| Издан: | ЦИТП Госстроя СССР (CITP, Gosstroy (USSR) 1968 г. ) |



































