Скачать Серия ИИ-60 Дополнение к выпуску 1. Общие положения и указания по применению рабочих чертежейДата актуализации: 01.01.2021
|
| Обозначение: | Серия ИИ-60 |
| Обозначение англ: | Series ИИ-60 |
| Статус: | не действует |
| Название рус.: | Дополнение к выпуску 1. Общие положения и указания по применению рабочих чертежей |
| Дата добавления в базу: | 01.09.2013 |
| Дата актуализации: | 01.01.2021 |
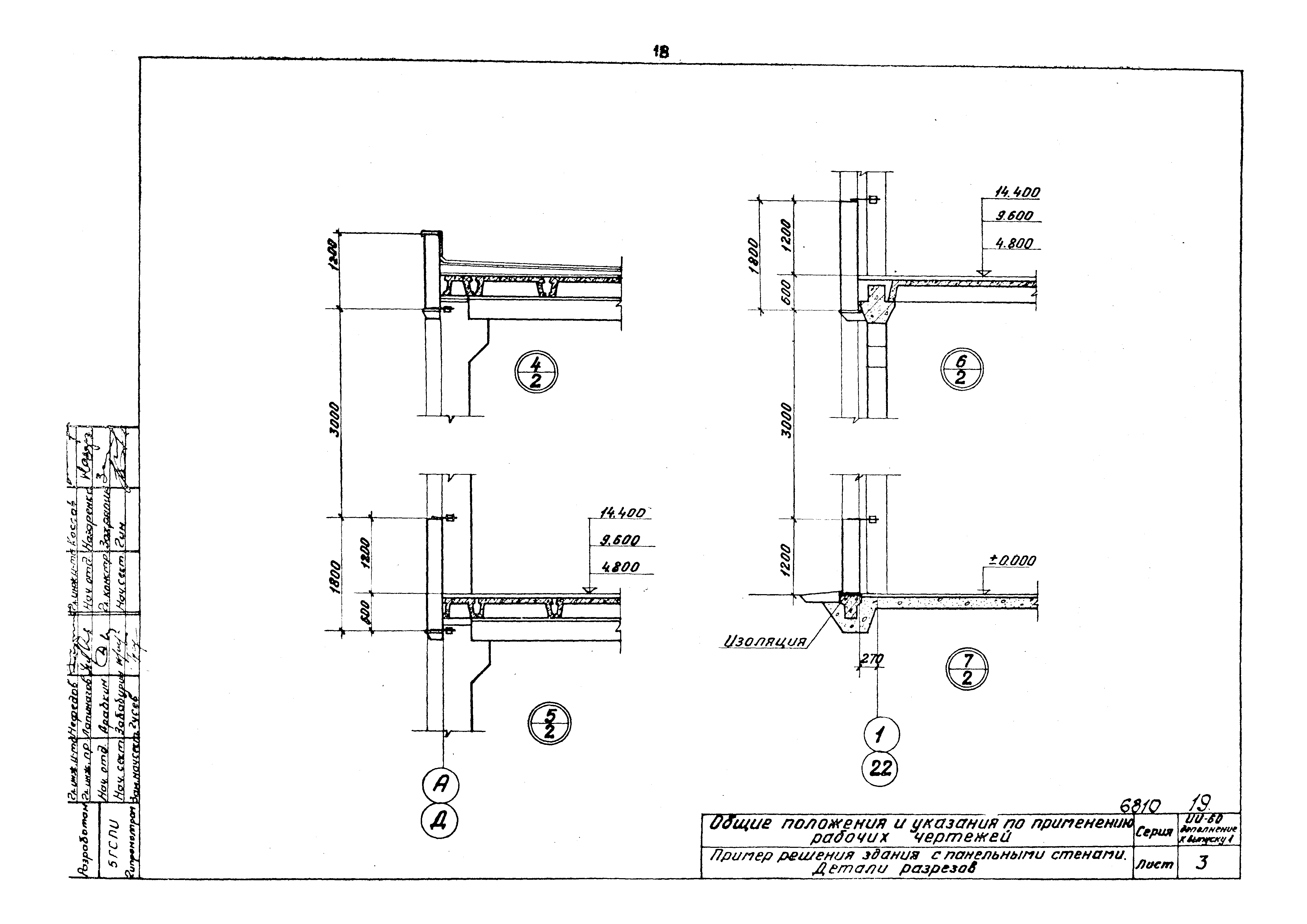
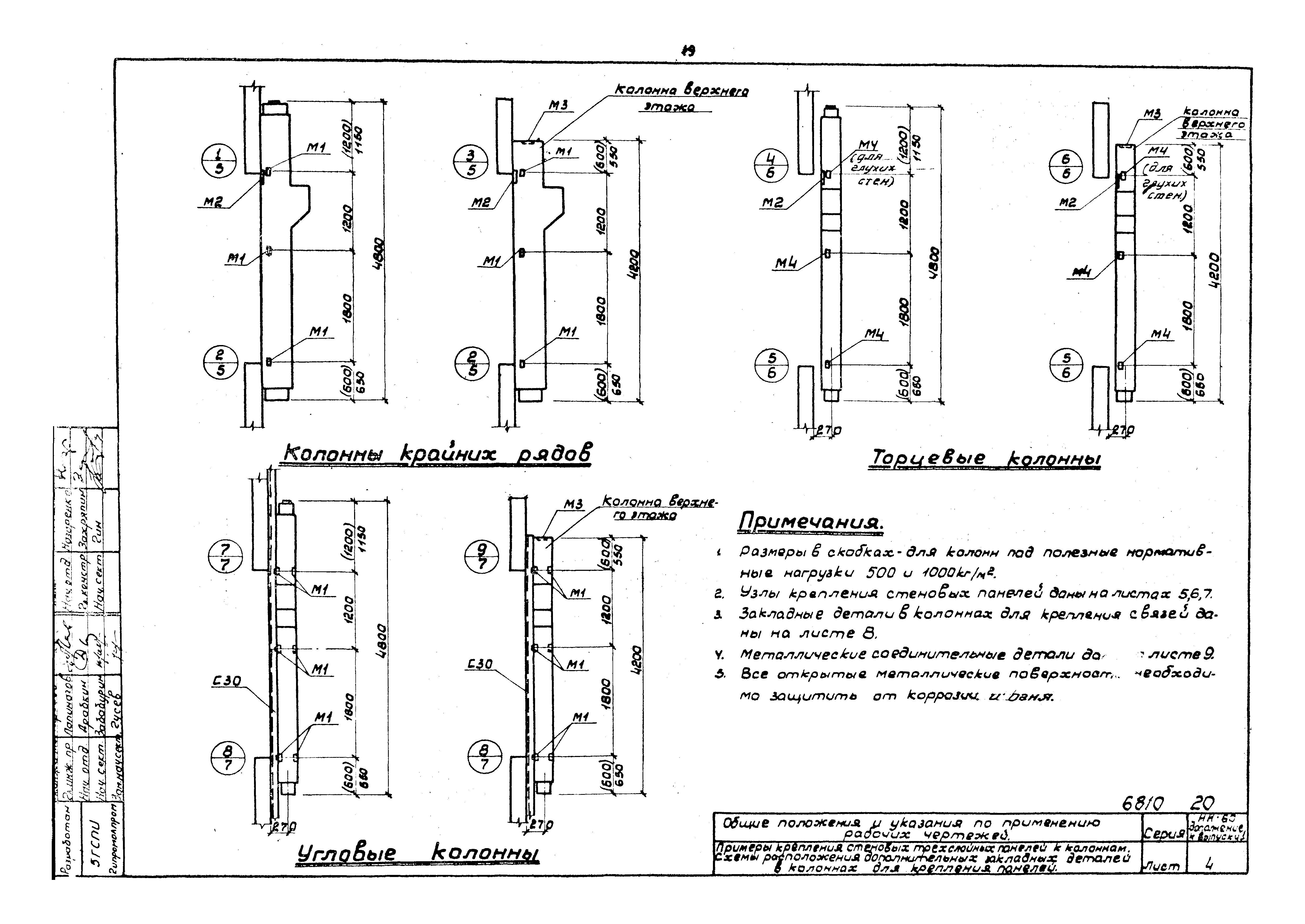
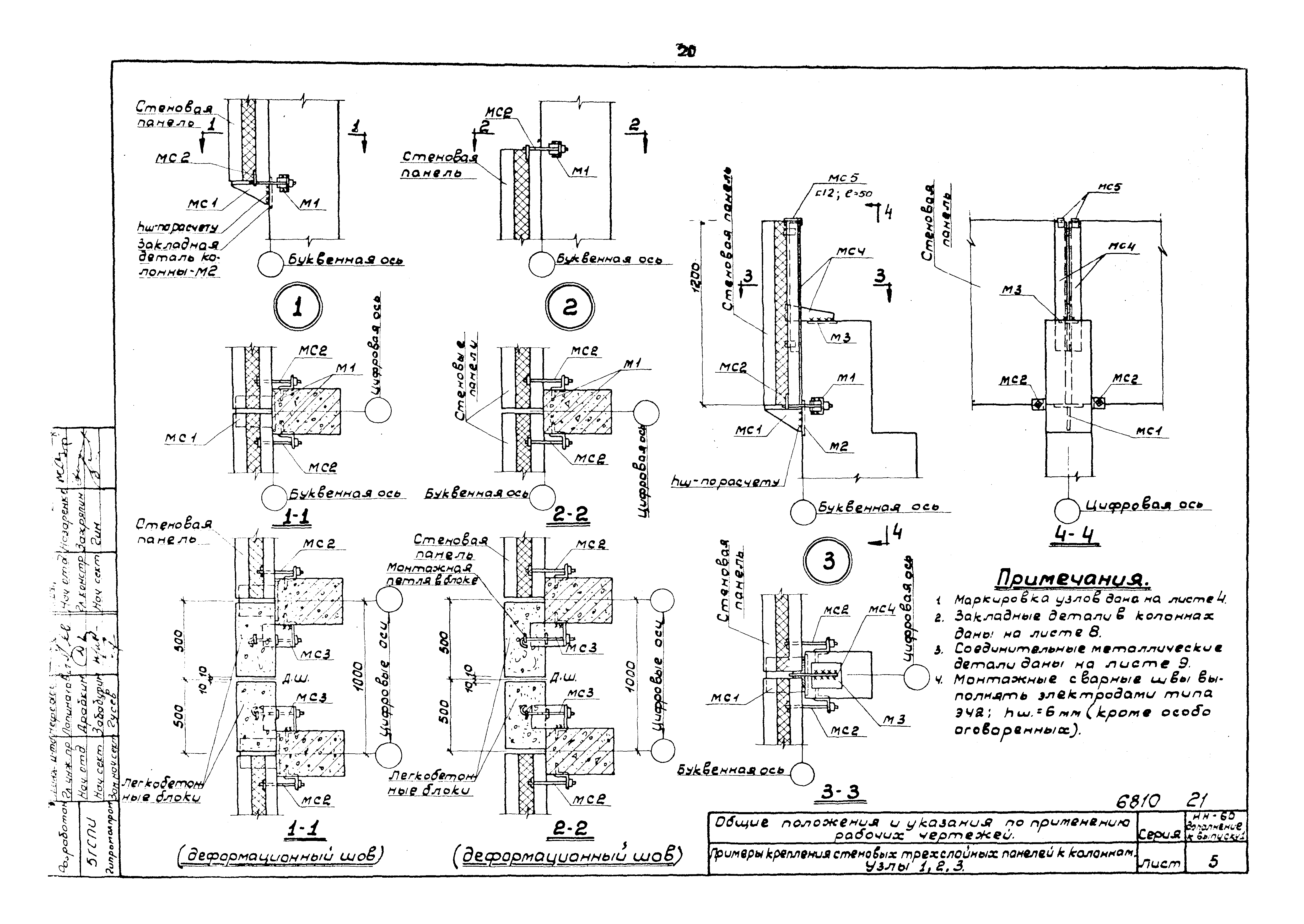
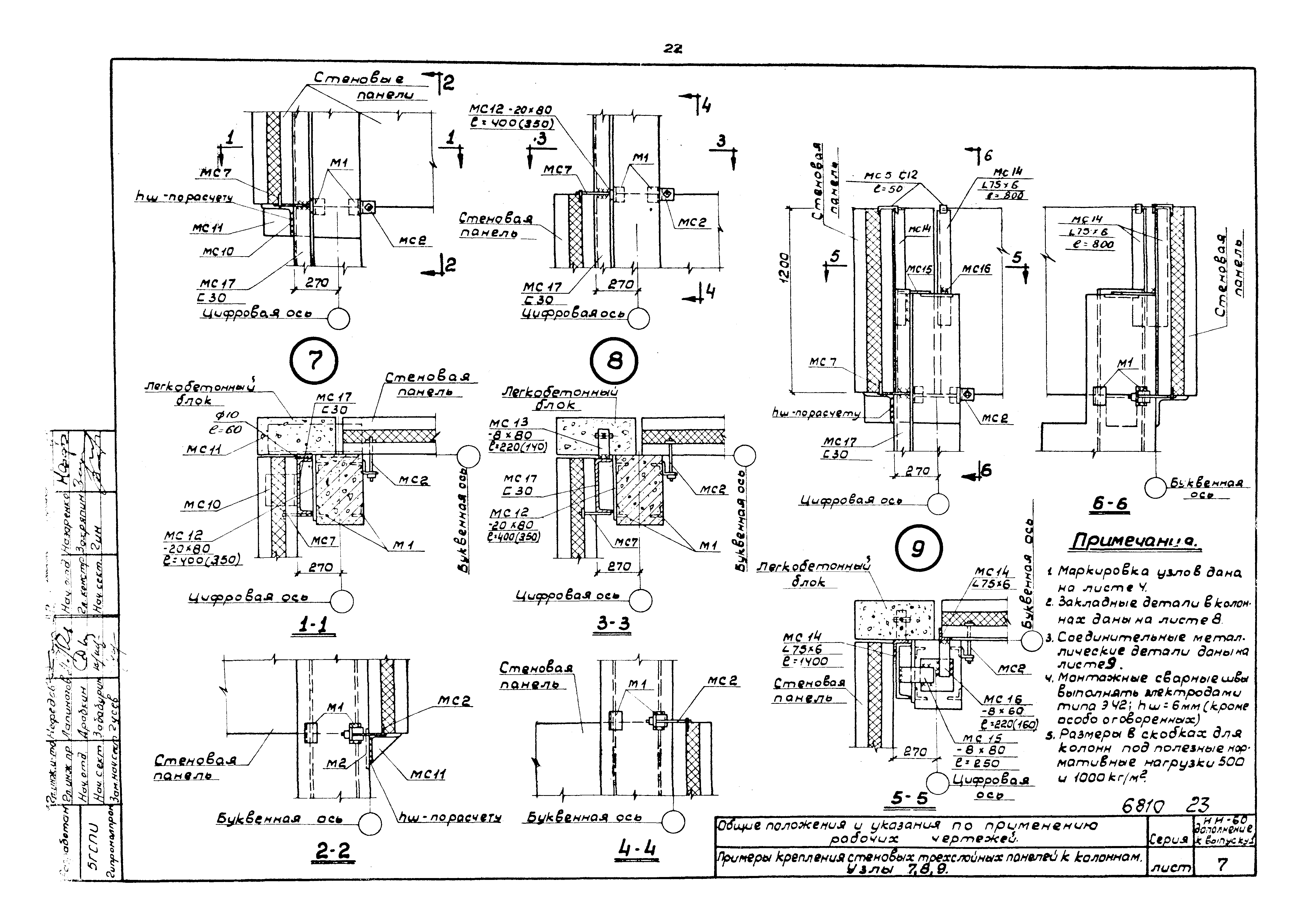
| Оглавление: | Содержание альбома Общие положения и указания по применению рабочих чертежей. Серия ИИ-60, дополнение к выпуску 1 Пояснительная записка. Предисловие Состав и содержание работы Конструктивное решение Нагрузки Расчетные узловые нагрузки Усилия от нормативных нагрузок на фундаменты под колонны Расчетные схемы рам Расчет конструкций Общие указания по монтажу конструкций Указания по применению рабочих чертежей Пример решения здания с панельными стенами |
| Разработан: | Гипротис Гипромолпром Минмясомолпрома СССР |
| Утверждён: | 14.12.1962 Госстрой СССР (Государственный комитет Совета Министров СССР по делам строительства) (USSR Gosstroy 466) |
| Издан: | ЦИТП Госстроя СССР (CITP, Gosstroy (USSR) 1962 г. ) |
























