Скачать Серия ИИЭ22-1 Железобетонные колонны этажерокДата актуализации: 01.01.2021
|
| Обозначение: | Серия ИИЭ22-1 |
| Обозначение англ: | Series ИИЭ22-1 |
| Статус: | не действует |
| Название рус.: | Железобетонные колонны этажерок |
| Дата добавления в базу: | 01.09.2013 |
| Дата актуализации: | 01.01.2021 |
| Дата введения: | 01.11.1967 |
| Дата окончания срока действия: | 01.07.1974 |
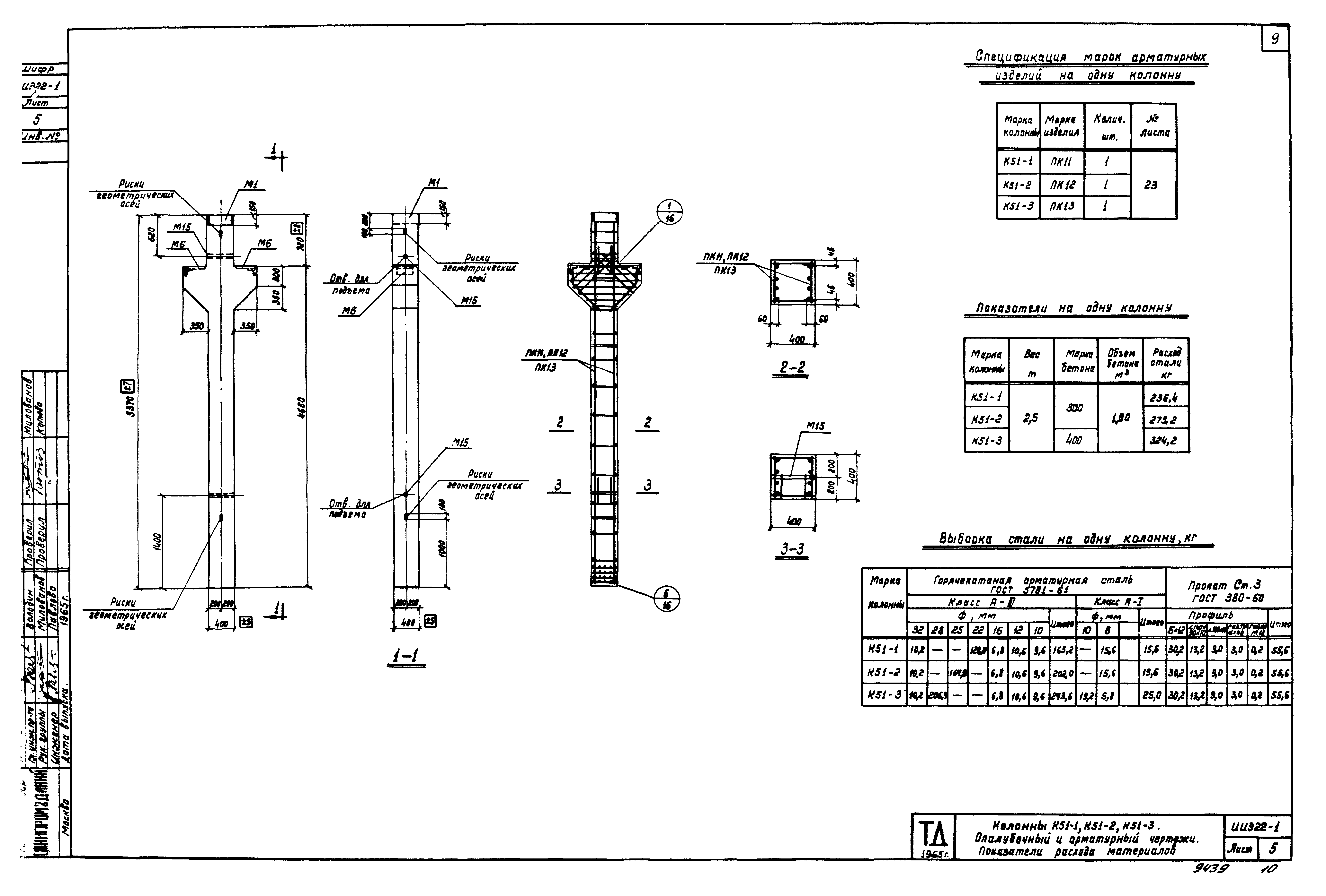
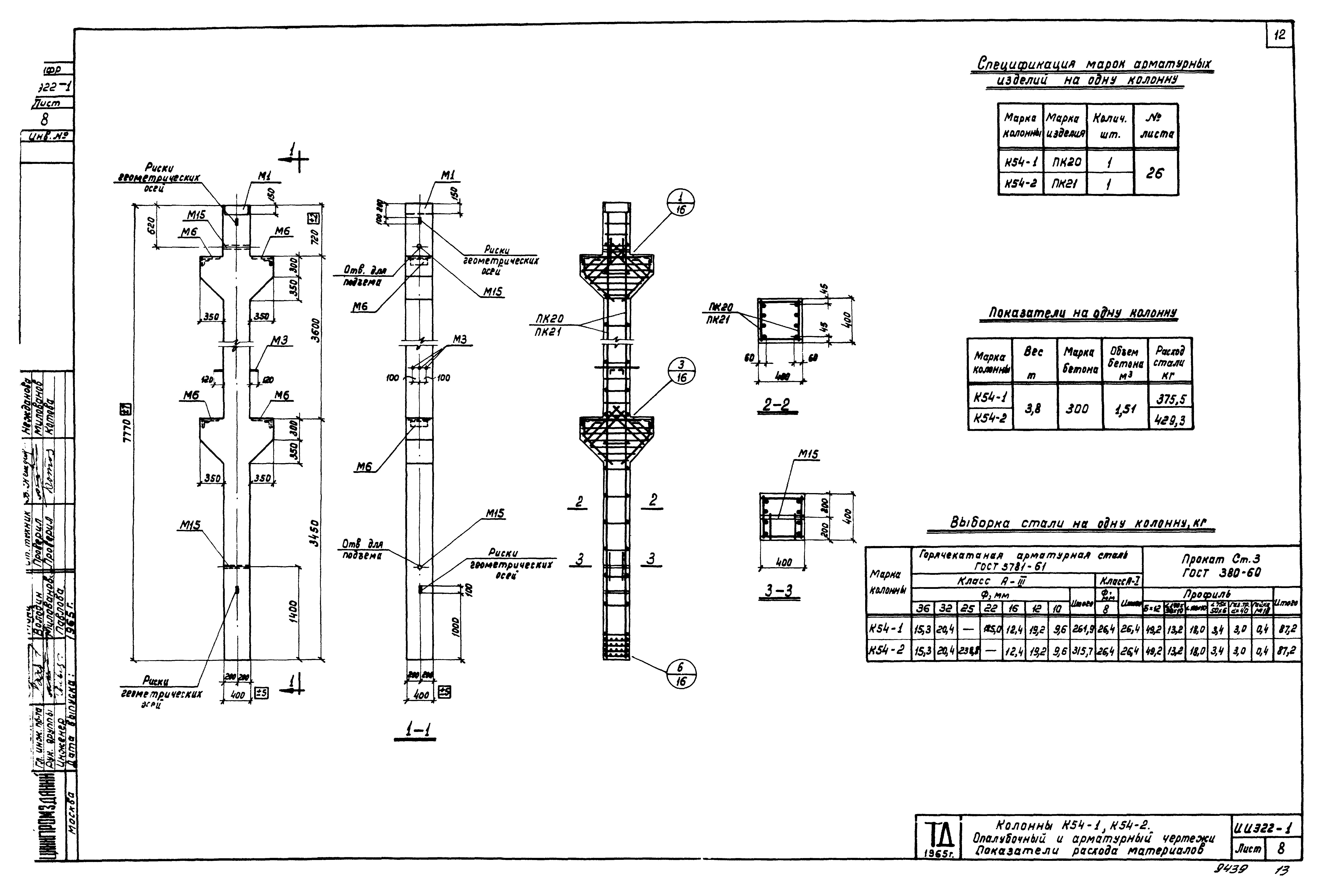
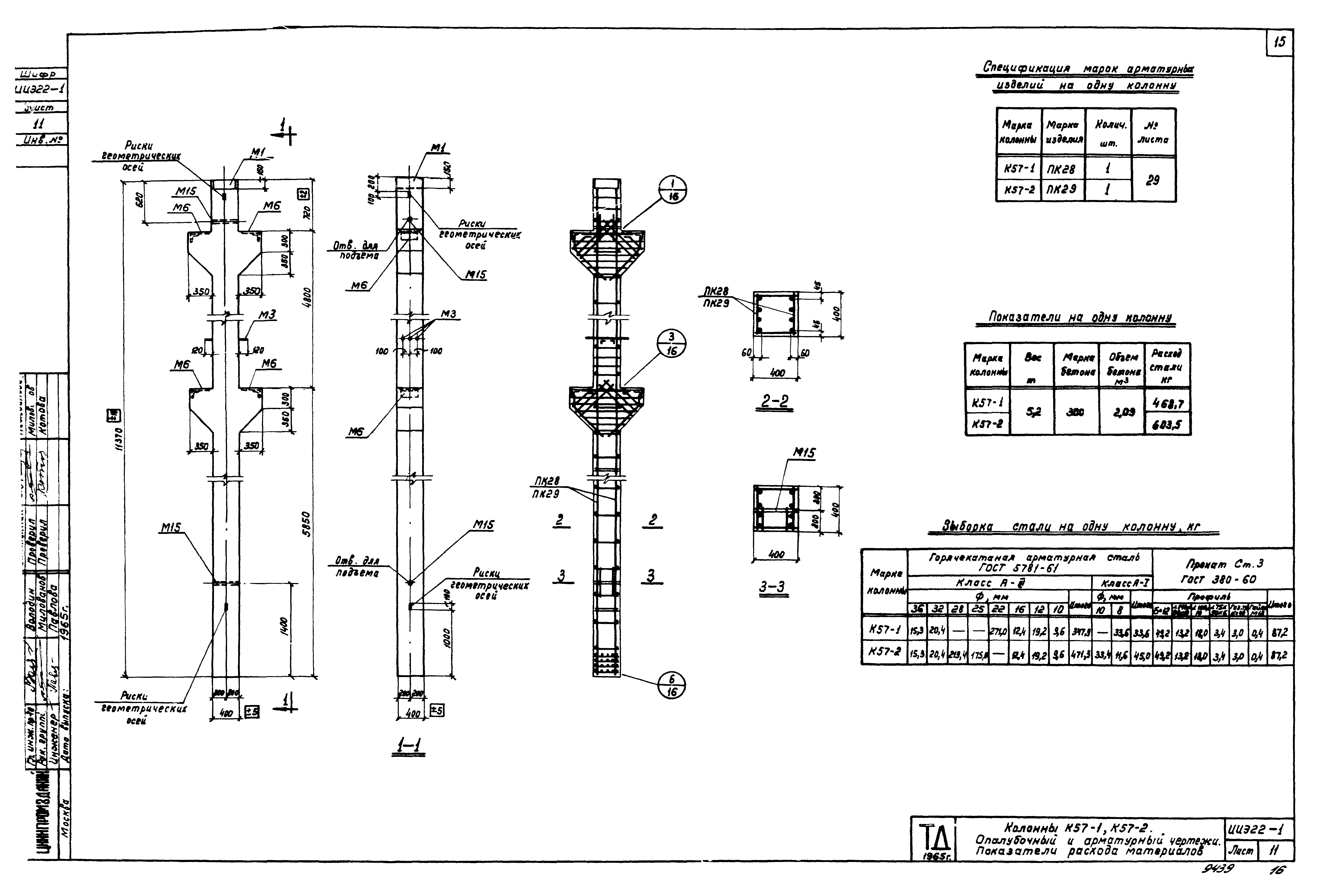
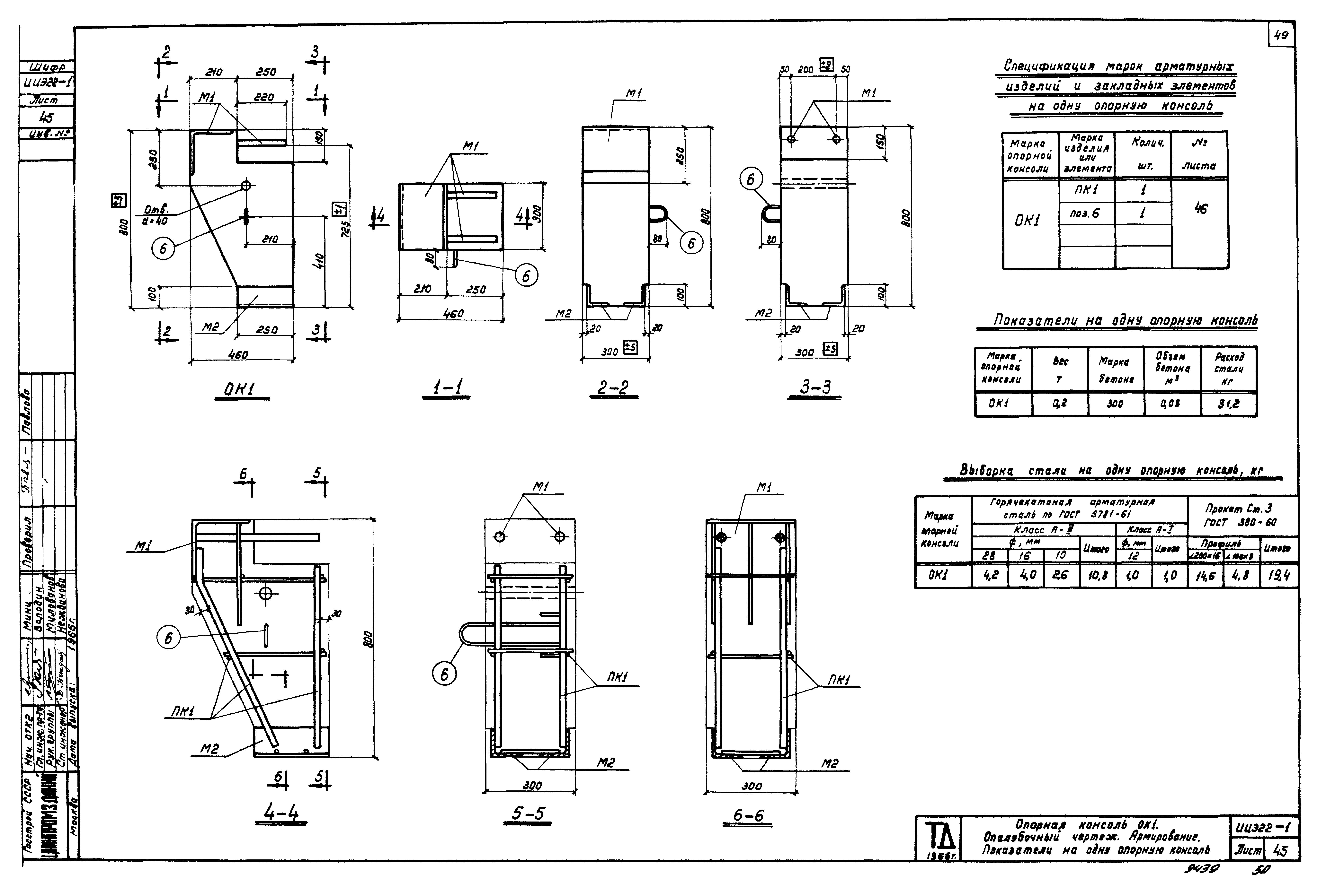
| Оглавление: | Пояснительная записка Колонны К2-3,К2-4,К2-5,К12-5. Опалубочный и арматурный чертежи. Показатели расхода материалов Колонна К26-4. Опалубочный и арматурный чертежи. Показатели расхода материалов Колонны К40-2,К40-3. Опалубочный и арматурный чертежи. Показатели расхода материалов Колонны К50-1,К50-2. Опалубочный и арматурный чертежи. Показатели расхода материалов Колонны К51-1,К51-2,К51-3. Опалубочный и арматурный чертежи. Показатели расхода материалов Колонны К52-1,К52-2,К52-3. Опалубочный и арматурный чертежи. Показатели расхода материалов Колонны К53-1,К53-2,К53-3. Опалубочный и арматурный чертежи. Показатели расхода материалов Колонны К54-1,К54-2. Опалубочный и арматурный чертежи. Показатели расхода материалов Колонны К55-1,К55-2,К55-3. Опалубочный и арматурный чертежи. Показатели расхода материалов Колонны К56-1,К56-2,К56-3. Опалубочный и арматурный чертежи. Показатели расхода материалов Колонны К57-1,К57-2. Опалубочный и арматурный чертежи. Показатели расхода материалов Колонны К58-1,К58-2,К58-3. Опалубочный и арматурный чертежи. Показатели расхода материалов Колонны К59-1,К59-2,К59-3. Опалубочный и арматурный чертежи. Показатели расхода материалов Колонны К2-1-2,К2-2-2,К2-3-2,К2-4-2,К2-5-2,К4-1-2,К4-2-2,К4-3-2,К8-1-2,К8-2-2,К12-1-2,К12-3-2,К12-5-2,К26-4-2,К40-2-2,К40-3-2 Колонны К50-1-2,К50-2-2,К51-1-2,К51-2-2,К51-3-2,К52-1-2,К52-2-2,К52-3-2,К53-1-2,К53-2-2,К53-3-2,К54-1-2,К54-2-2,К55-1-2,К55-2-2,К55-3-2,К56-1-2,К56-2-2,К56-3-2,К57-1-2,К57-2-2,К58-1-2,К58-2-2,К58-3-2,К59-1-2,К59-2-2,К59-3-2 Армирование колонн. Детали 1-7 Армирование колонн. Детали 8-15 Примеры крепления закладных элементов в М17 и М24 в пространственных каркасах колонн Пространственные каркасы ПК1,ПК2,ПК3. Спецификация марок арматурных изделий и закладных элементов на один пространственный каркас Пространственные каркасы ПК4,ПК5. Спецификация марок арматурных изделий и закладных элементов на один пространственный каркас Пространственные каркасы ПК6,ПК7,ПК8. Спецификация марок арматурных изделий и закладных элементов на один пространственный каркас Пространственные каркасы ПК9,ПК10. Спецификация марок арматурных изделий и закладных элементов на один пространственный каркас Пространственные каркасы ПК11,ПК12,ПК13. Спецификация марок арматурных изделий и закладных элементов на один пространственный каркас Пространственные каркасы ПК14,ПК15,ПК16. Спецификация марок арматурных изделий и закладных элементов на один пространственный каркас Пространственные каркасы ПК17,ПК18,ПК19. Спецификация марок арматурных изделий и закладных элементов на один пространственный каркас Пространственные каркасы ПК20,ПК21. Спецификация марок арматурных изделий и закладных элементов на один пространственный каркас Пространственные каркасы ПК22,ПК23,ПК24. Спецификация марок арматурных изделий и закладных элементов на один пространственный каркас Пространственные каркасы ПК25,ПК26,ПК27. Спецификация марок арматурных изделий и закладных элементов на один пространственный каркас Пространственные каркасы ПК28,ПК29. Спецификация марок арматурных изделий и закладных элементов на один пространственный каркас Пространственные каркасы ПК30,ПК31. Спецификация марок арматурных изделий и закладных элементов на один пространственный каркас Пространственный каркас ПК32. Спецификация марок арматурных изделий и закладных элементов на один пространственный каркас Пространственные каркасы ПК33,ПК34. Спецификация марок арматурных изделий и закладных элементов на один пространственный каркас Пространственный каркас ПК35. Спецификация марок арматурных изделий и закладных элементов на один пространственный каркас Пространственные каркасы. Узлы 1-6 Пространственные каркасы. Узлы 7-13 Пространственные каркасы. Узлы 14-17 Пространственные каркасы. Узлы 18-21 Каркасы КР1-КР27 Каркасы КР28-КР55. Сетки С1,С2 Спецификация и выборка стали на одно арматурное изделие. Каркасы КР1-КР41 Спецификация и выборка стали на одно арматурное изделие. Каркасы КР42-КР55. Сетки С1,С2. Отдельные стержни Закладные элементы М1,М1А,М2,М2А,М3,М4,М15,М16,М17,М24,М28,М28А Закладные элементы. Заготовочные чертежи отдельных позиций. Спецификация стали на один закладной элемент Примеры использования типовых опалубочных форм колонн серий ИИ22-1,ИИ22-2 и ИИ22-3 для изготовления колонн серии ИИ322-1 Опорная консоль ОК1. Опалубочный чертеж. Армирование. Показатели на одну опорную консоль Опорная консоль ОК1. Каркасы ПК1,КР1. Закладные элементы М1,М2. Отдельные стержни. Спецификация и выборка стали |
| Разработан: | ЦНИИпромзданий НИИЖБ |
| Утверждён: | 29.08.1967 Госстрой СССР (Государственный комитет Совета Министров СССР по делам строительства) (USSR Gosstroy 160) |





















































