Скачать Типовой проект 902-2-180 Альбом I. Пояснительная записка (из ТП 902-2-179)Дата актуализации: 01.01.2021
|
| Обозначение: | Типовой проект 902-2-180 |
| Обозначение англ: | 902-2-180 |
| Статус: | не действует |
| Название рус.: | Альбом I. Пояснительная записка (из ТП 902-2-179) |
| Дата добавления в базу: | 01.09.2013 |
| Дата актуализации: | 01.01.2021 |
| Дата введения: | 27.10.1972 |
| Дата окончания срока действия: | 01.02.1982 |
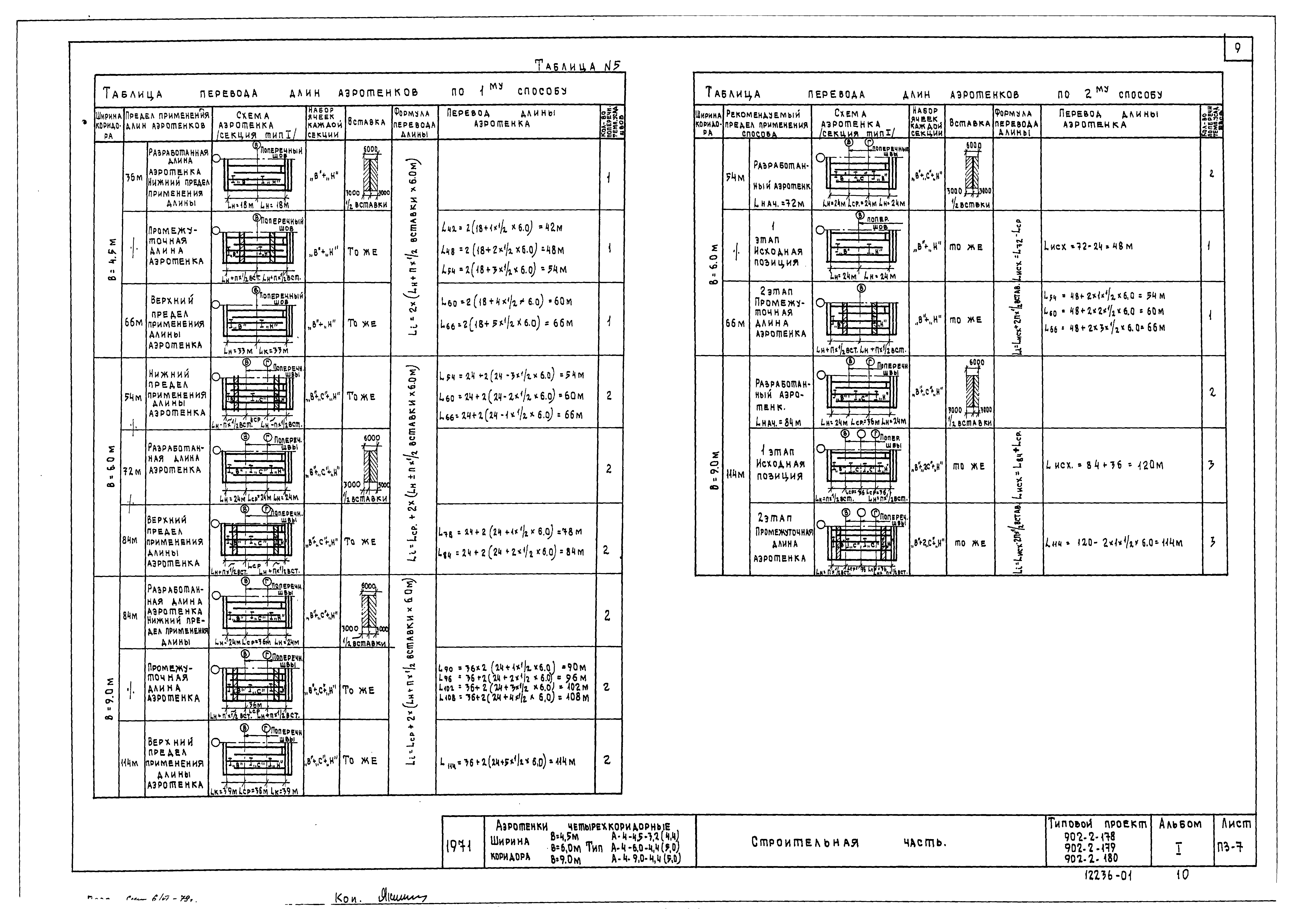
| Оглавление: | Содержание альбома ПЗ-1 Состав проектов ПЗ-2 Общая часть ПЗ-3 Технологические показатели одной секции аэротенков ПЗ-4 Примерные схемы компоновок аэротенков ПЗ-5 Технологическая часть ПЗ-6 Строительная часть ПЗ-7 Строительная часть ПЗ-8 Строительная часть ПЗ-9 Строительная часть ПЗ-10 Строительная часть ПЗ-11 Строительная часть. Указания по привязке. Технологическая часть ПЗ-12 Указания по привязке. Строительная часть и автоматизация ПЗ-13 Указания по привязке. График подбора аэротенков ПЗ-14 Указания по привязке. Схемы размещения вставок ПЗ-15 Приложение № 1. Расчетные объемы аэротенков. Потребные расходы воздуха ПЗ-16 Приложение № 2. Пример гидравлического расчета ПЗ-17 Приложение № 2. Пример гидравлического расчета. Приложение № 3. Пример расчета воздуховодов |
| Разработан: | ЦНИИЭП инженерного оборудования |
| Утверждён: | 27.10.1972 Госгражданстрой (Gosgrazhdanstroy 205) |
| Заменяет собой: |
|



















