Скачать Типовой проект 902-2-180 Альбом VIII. Строительные чертежи. Сборные железобетонные элементы (из ТП 902-2-179)Дата актуализации: 01.01.2021
|
| Обозначение: | Типовой проект 902-2-180 |
| Обозначение англ: | 902-2-180 |
| Статус: | не действует |
| Название рус.: | Альбом VIII. Строительные чертежи. Сборные железобетонные элементы (из ТП 902-2-179) |
| Дата добавления в базу: | 01.09.2013 |
| Дата актуализации: | 01.01.2021 |
| Дата введения: | 27.10.1972 |
| Дата окончания срока действия: | 01.02.1982 |
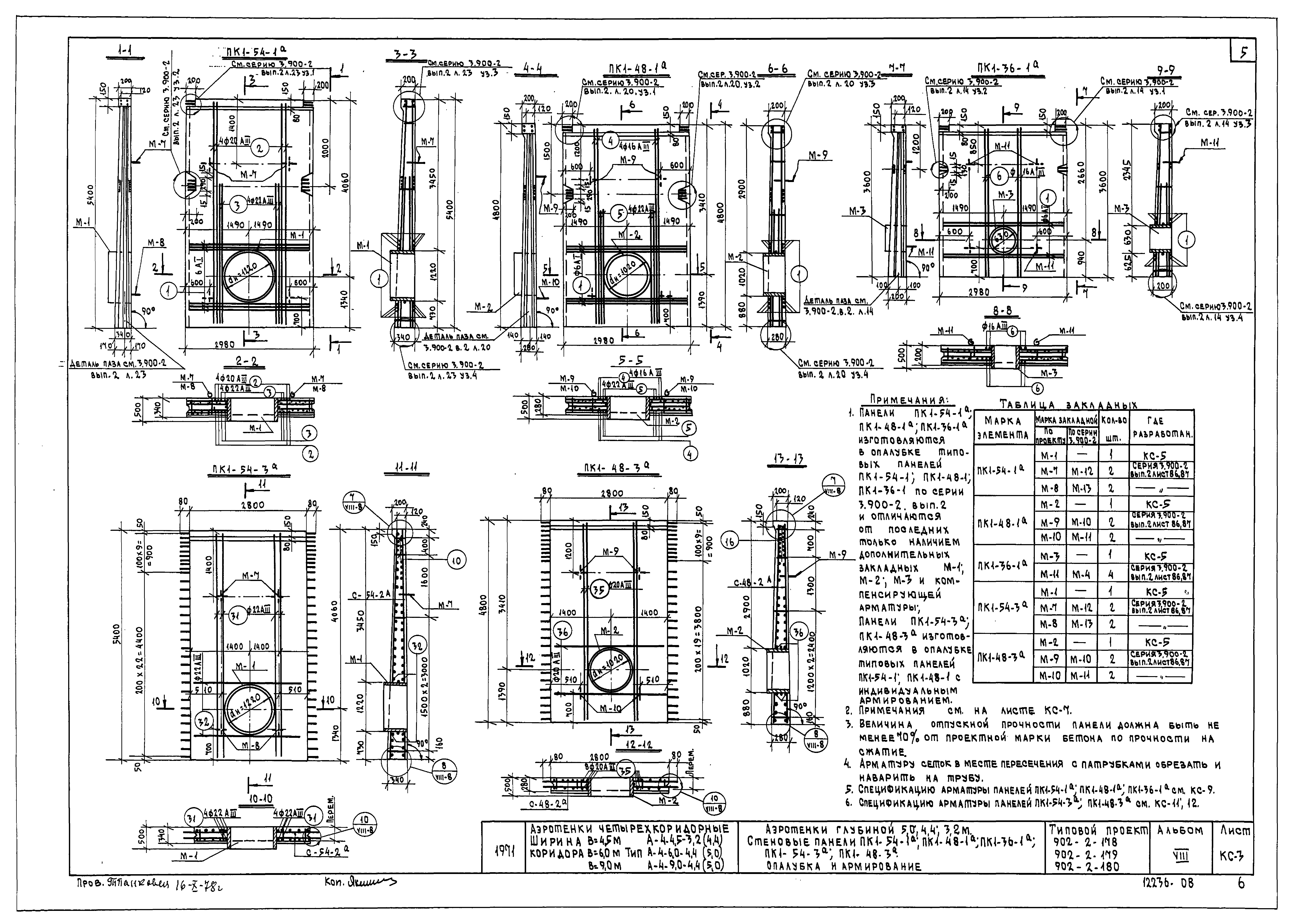
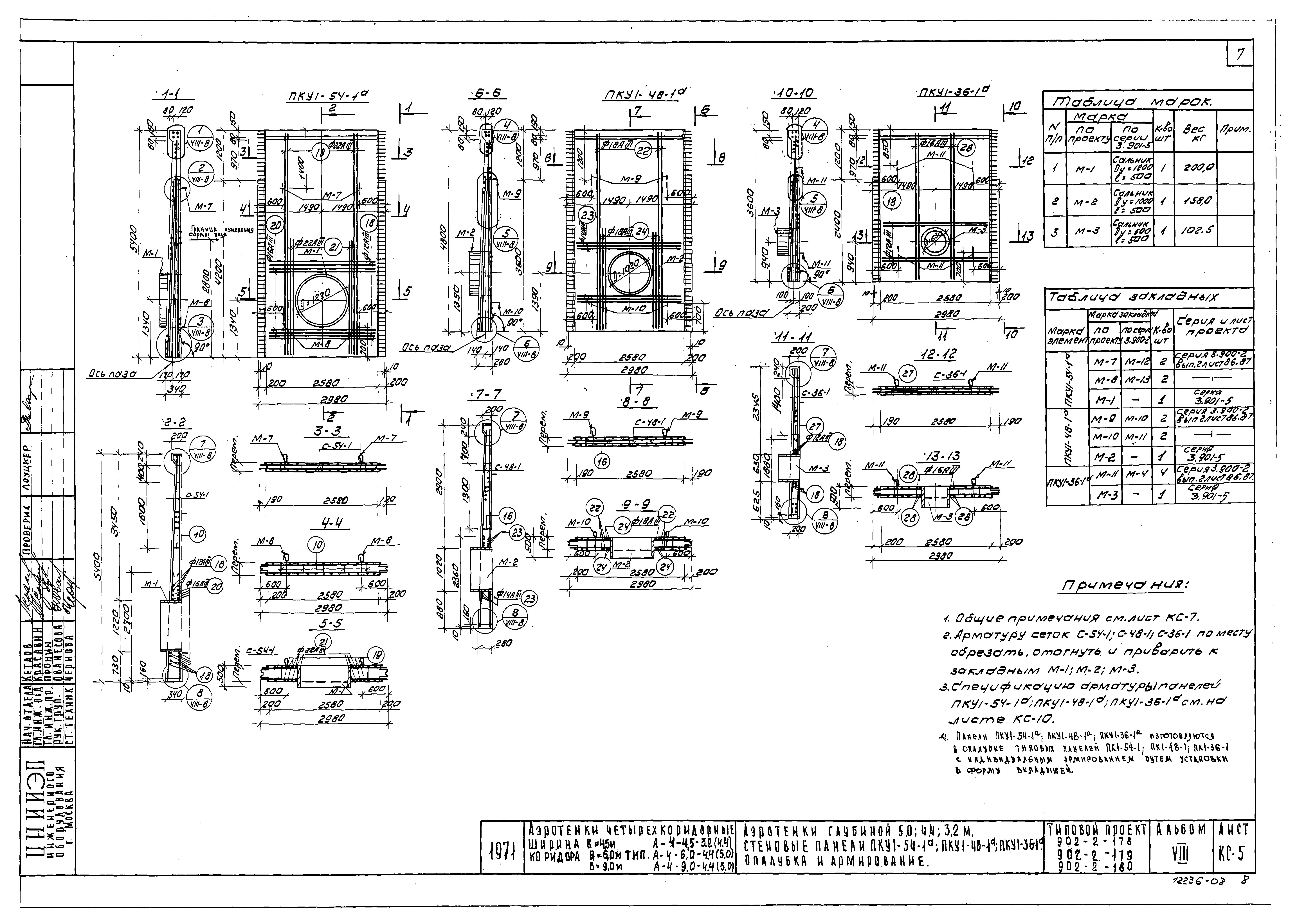
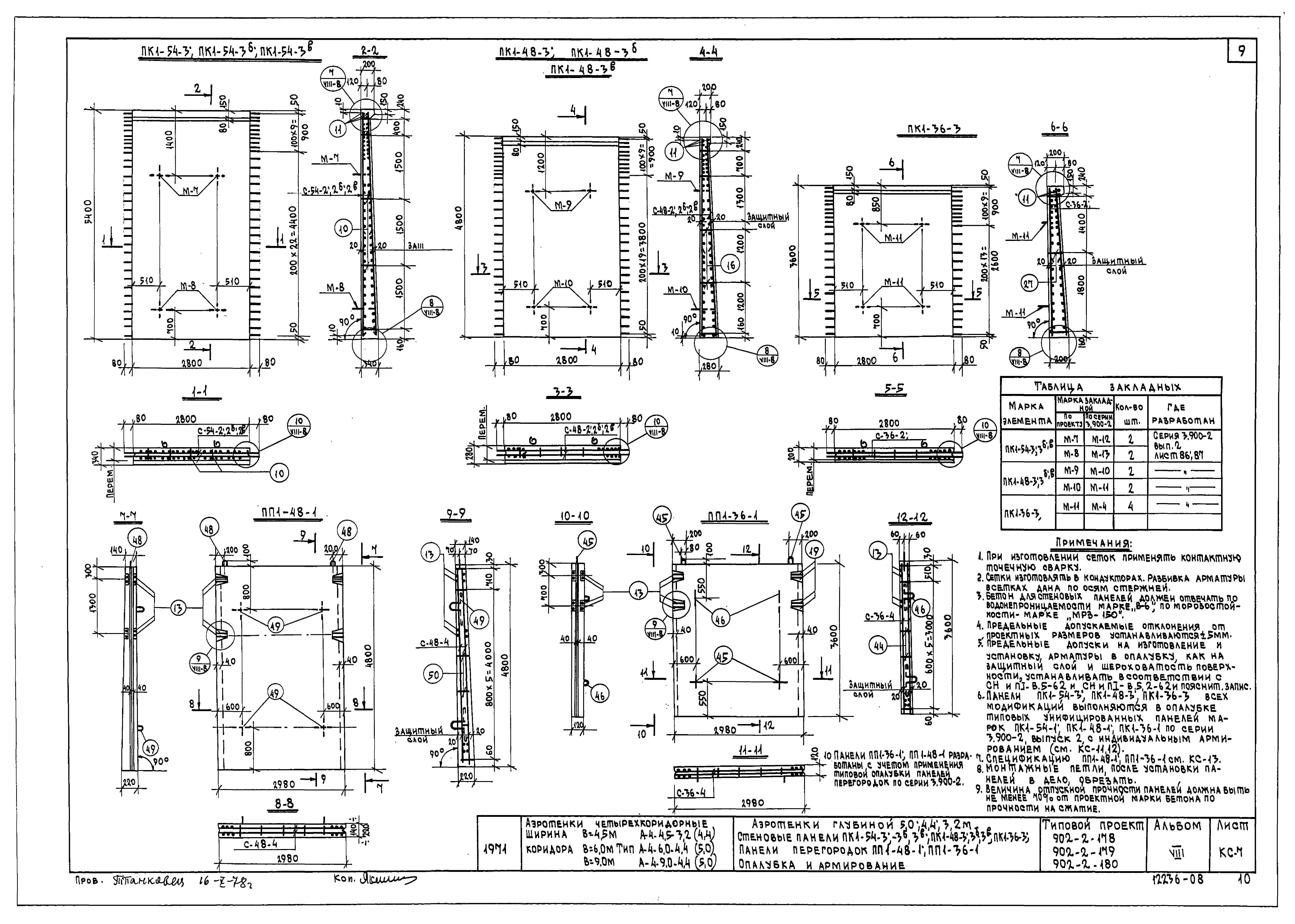
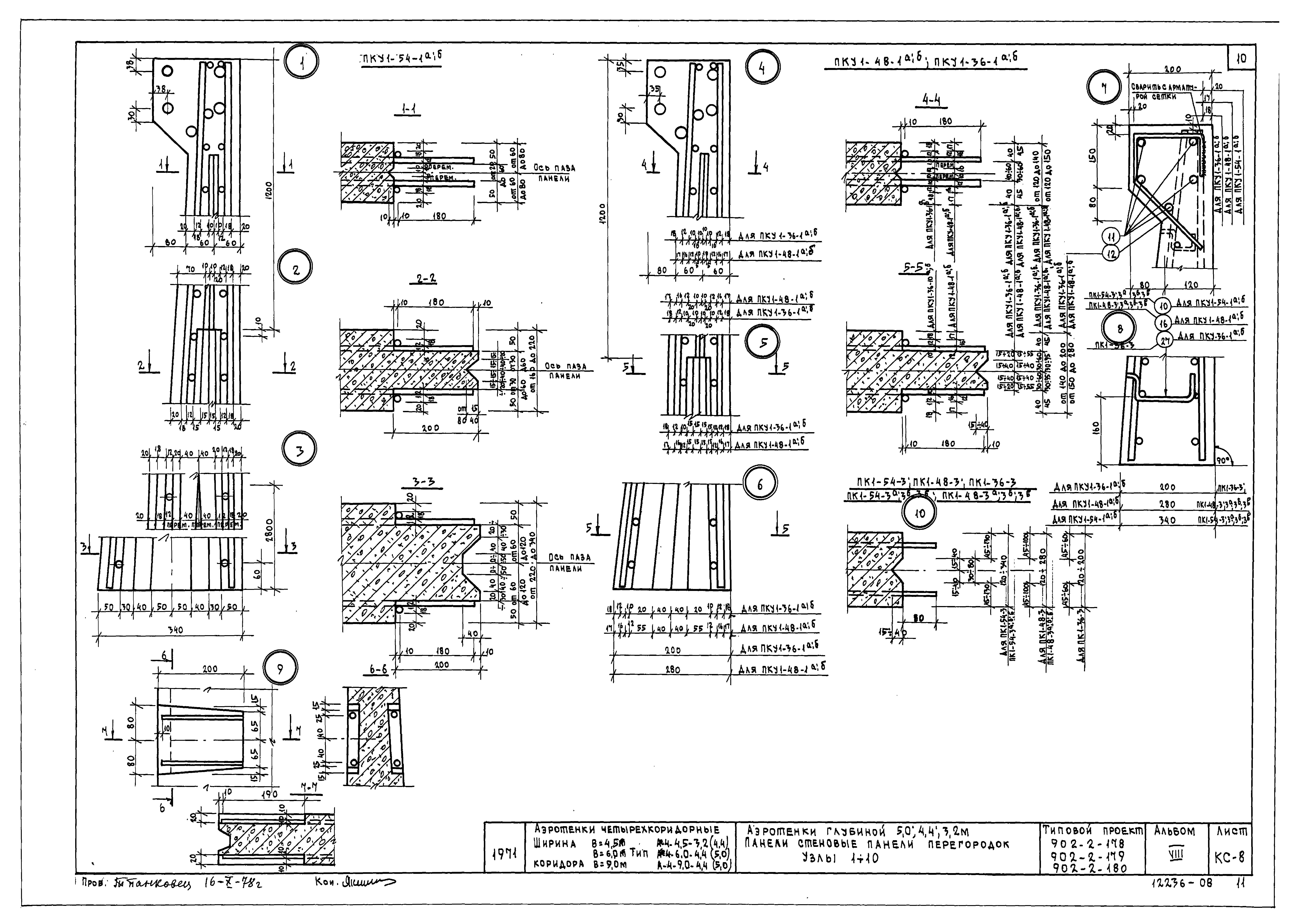
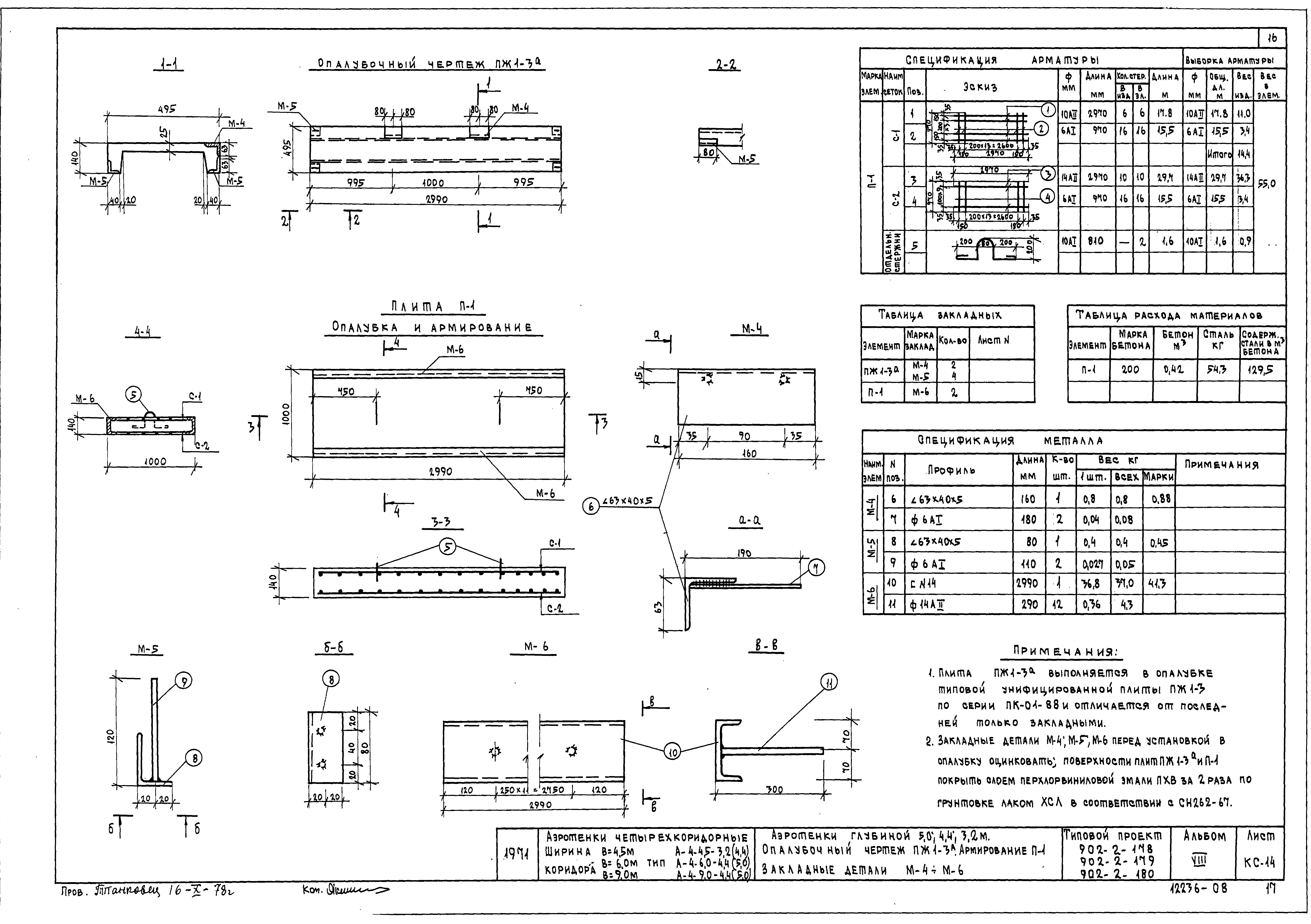
| Оглавление: | КС-1 Пояснительная записка КС-2 Пояснительная записка КС-3 Аэротенки глубиной 5,0;4,4;3,2 м. Стеновые панели ПК1-54-1а;ПК1-48-1а;ПК-36-1а;ПК1-54-3а;ПК1-48-3а. Опалубка и армирование КС-4 Аэротенки глубиной 5,0;4,4;3,2 м. Стеновые панели ПК1-54-1б;ПК1-48-1б;ПК-36-1б. Опалубка и армирование КС-5 Аэротенки глубиной 5,0;4,4;3,2 м. Стеновые панели ПК1-54-1а;ПК1-48-1а;ПК-36-1а. Опалубка и армирование КС-6 Аэротенки глубиной 5,0;4,4;3,2 м. Детали стыков панелей ПКУ1-54-1аб;ПКУ1-48-1а,б;ПКУ-36-1а,б между собой с панелями ПК1-54-1,2;ПК1-48-1,2;ПК1-36-1,2 КС-7 Аэротенки глубиной 5,0;4,4;3,2 м. Стеновые панели ПК1-54-3,3б,3в;ПК1-48-3,3б,3в;ПК-36-3,3б. Панели перегородок ПП1-48-1;ПП1-36-1. Опалубка и армирование КС-8 Аэротенки глубиной 5,0;4,4;3,2 м. Панели стеновые, панели перегородок. Узлы 1-10 КС-9 Аэротенки глубиной 5,0;4,4;3,2 м. Стеновые панели ПК1-54-1а;ПК1-48-1а;ПК1-36-1а. Спецификация КС-10 Аэротенки глубиной 5,0;4,4;3,2 м. Стеновые панели ПКУ1-54-1а,1б;ПКУ1-48-1а,1б;ПКУ1-36-1а,1б. Спецификация КС-11 Аэротенки глубиной 5,0;4,4;3,2 м. Ширина коридора В=4,5 м и В=6,0 м. Стеновые панели ПК1-54-3,3а,3б;ПК1-48-3,3а,3б;ПК1-36-3. Спецификация КС-12 Аэротенки глубиной 5,0;4,4;3,2 м. Ширина коридора В=9,0 м. Стеновые панели ПК1-54-3,3а,3б,3в;ПК1-48-3,3а,3б,3в. Спецификация КС-13 Аэротенки глубиной 5,0;4,4;3,2 м. Панели перегородок ПП1-48-1;ПП1-36-1. Спецификация КС-14 Аэротенки глубиной 5,0;4,4;3,2 м. Опалубочный чертеж ПЖ1-3а. Армирование П-1. Закладные детали М-4-М-6 КС-15 Аэротенки глубиной 5,0;4,4;3,2 м. Блок фильтросного канала БФК. Опалубка и армирование КС-16 Аэротенки глубиной 5,0;4,4;3,2 м. Балки Б-1;Б-2. Опалубка и армирование. Спецификация |
| Разработан: | ЦНИИЭП инженерного оборудования |
| Утверждён: | 27.10.1972 Госгражданстрой (Gosgrazhdanstroy 205) |
| Заменяет собой: |
|


















