Скачать Типовой проект 214-1-254.83 Альбом I. Архитектурно-строительные и технологические чертежиДата актуализации: 01.01.2021
|
| Обозначение: | Типовой проект 214-1-254.83 |
| Обозначение англ: | 214-1-254.83 |
| Статус: | не определен законодательством |
| Название рус.: | Альбом I. Архитектурно-строительные и технологические чертежи |
| Дата добавления в базу: | 01.09.2013 |
| Дата актуализации: | 01.01.2021 |
| Дата введения: | 25.01.1984 |
| Дата окончания срока действия: | 30.06.2003 |
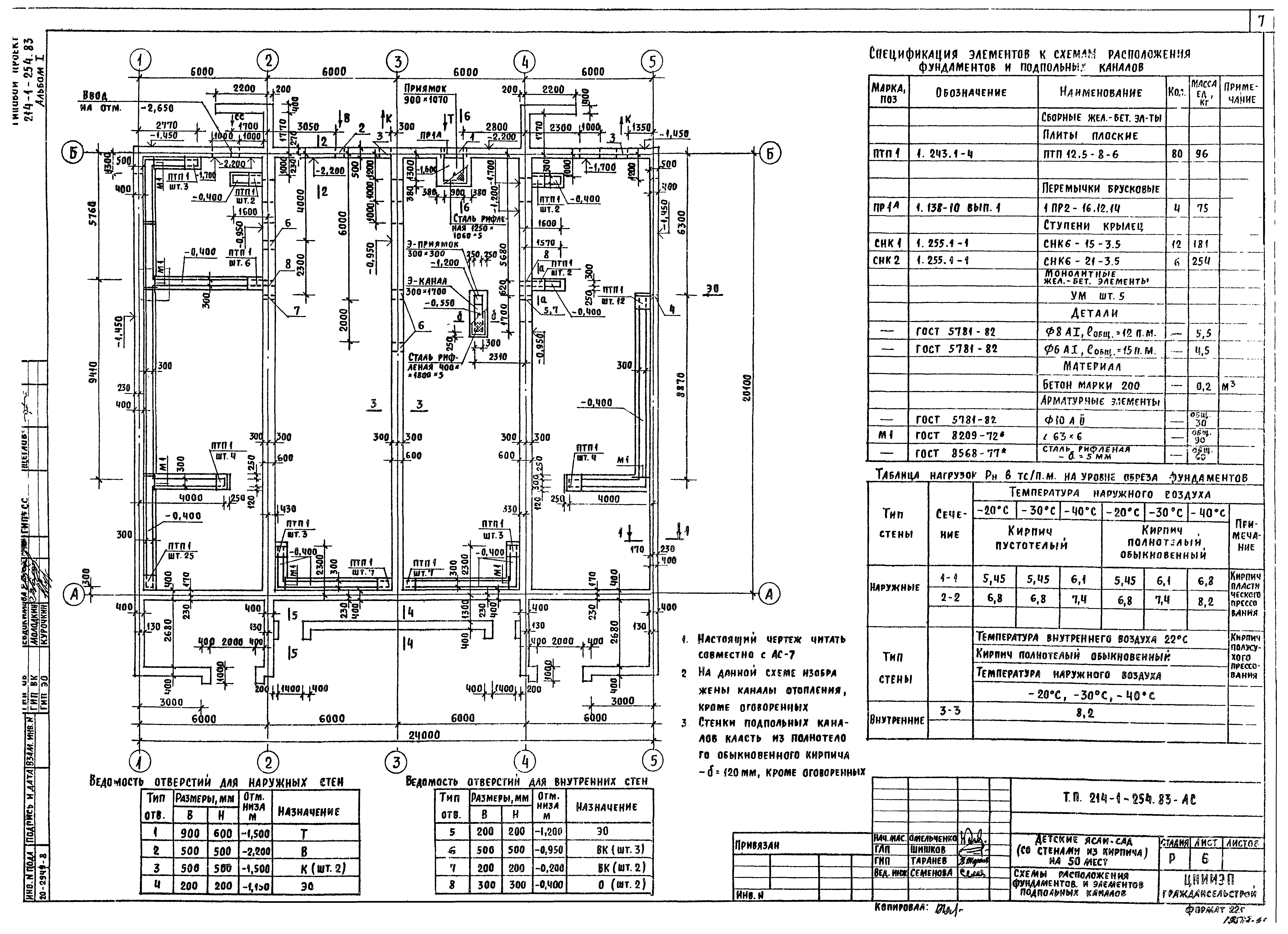
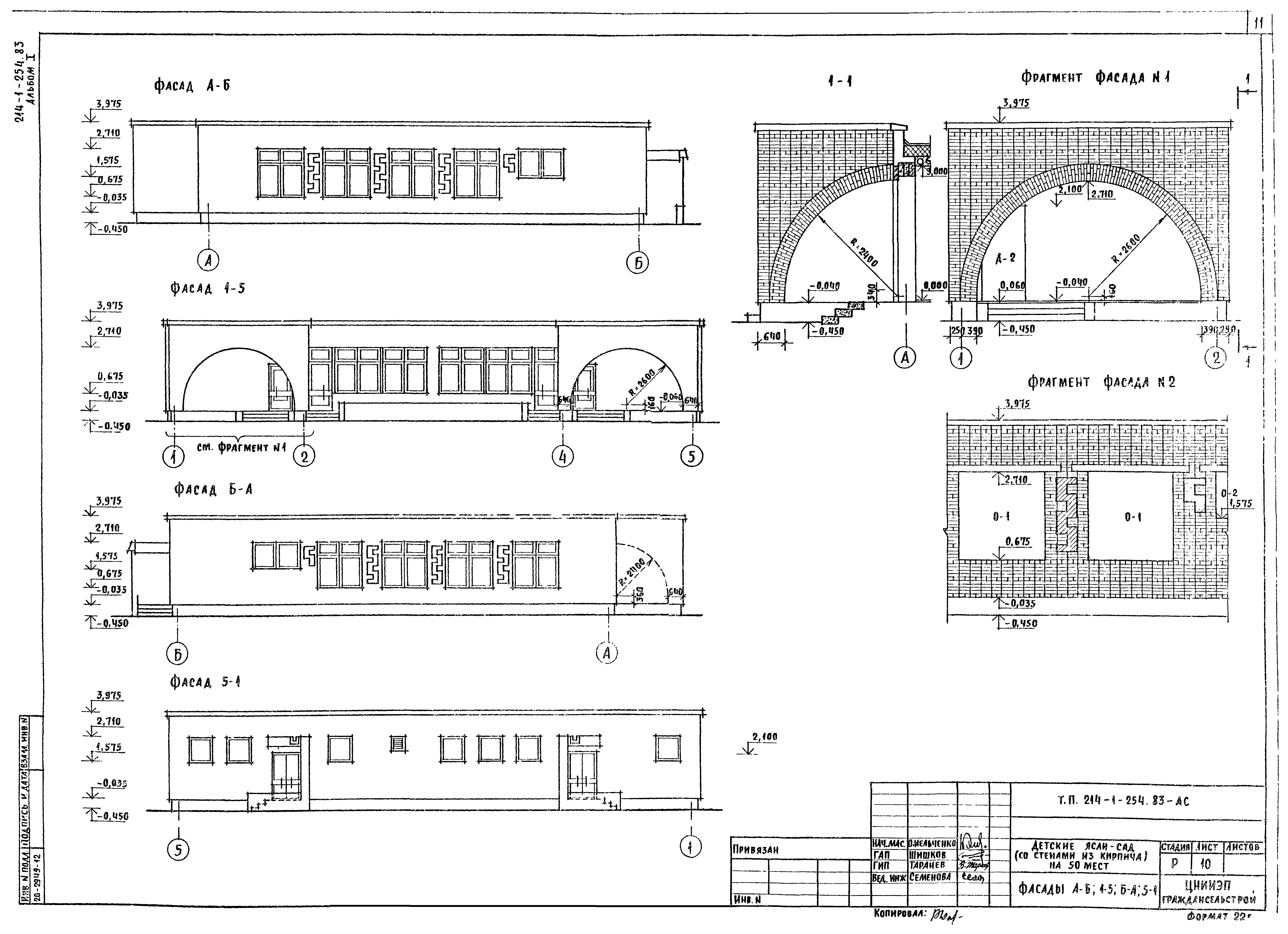
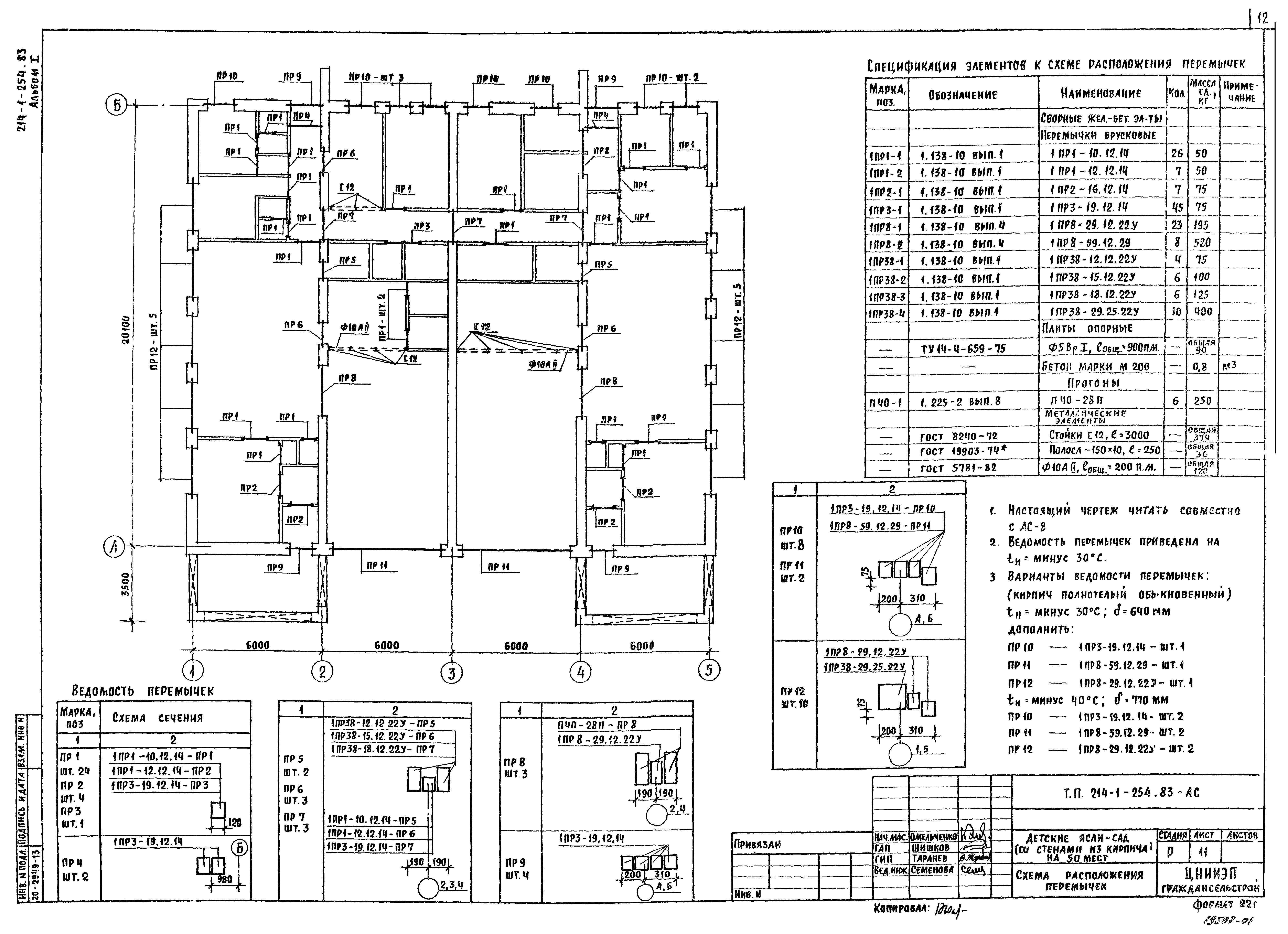
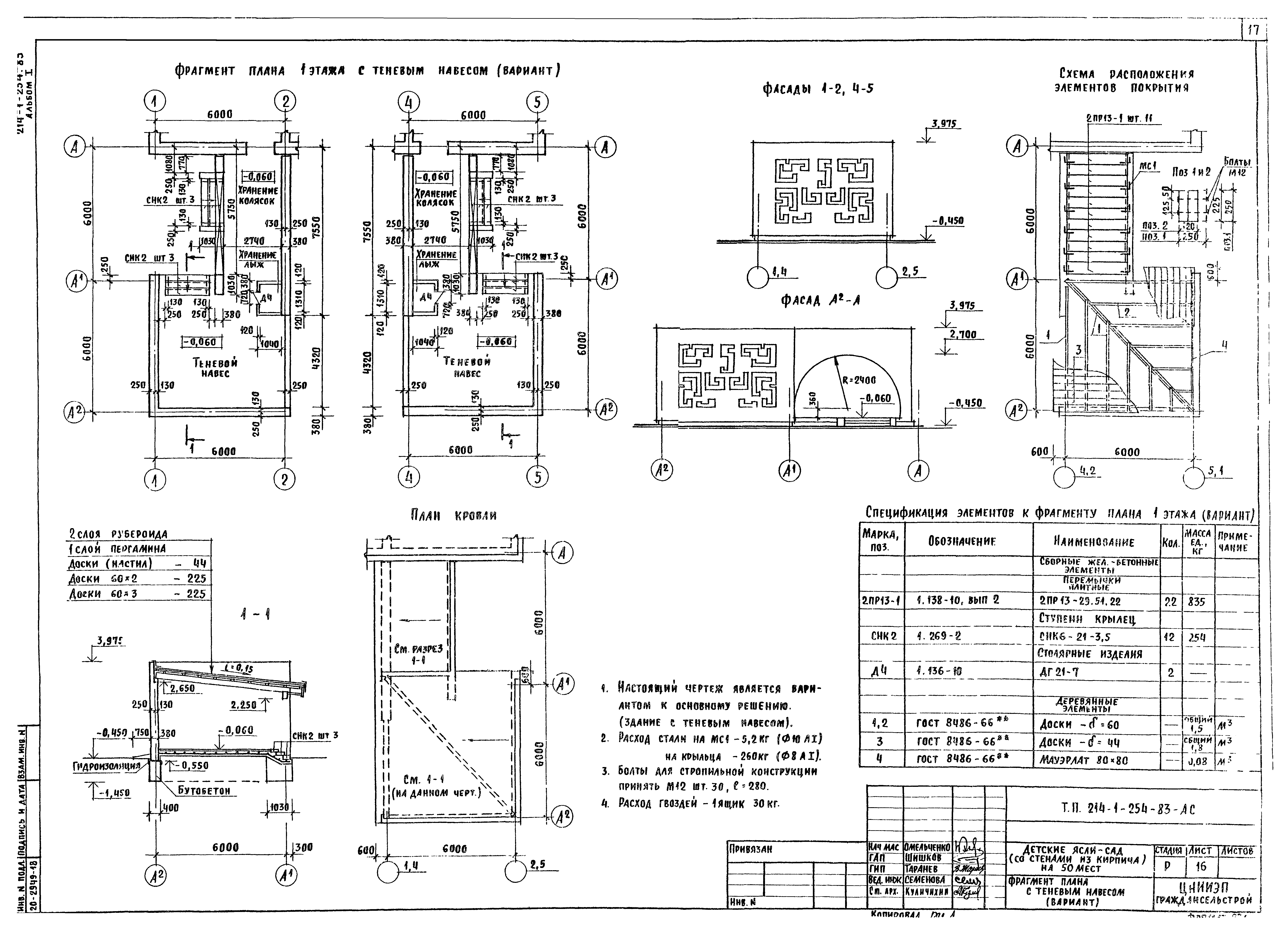
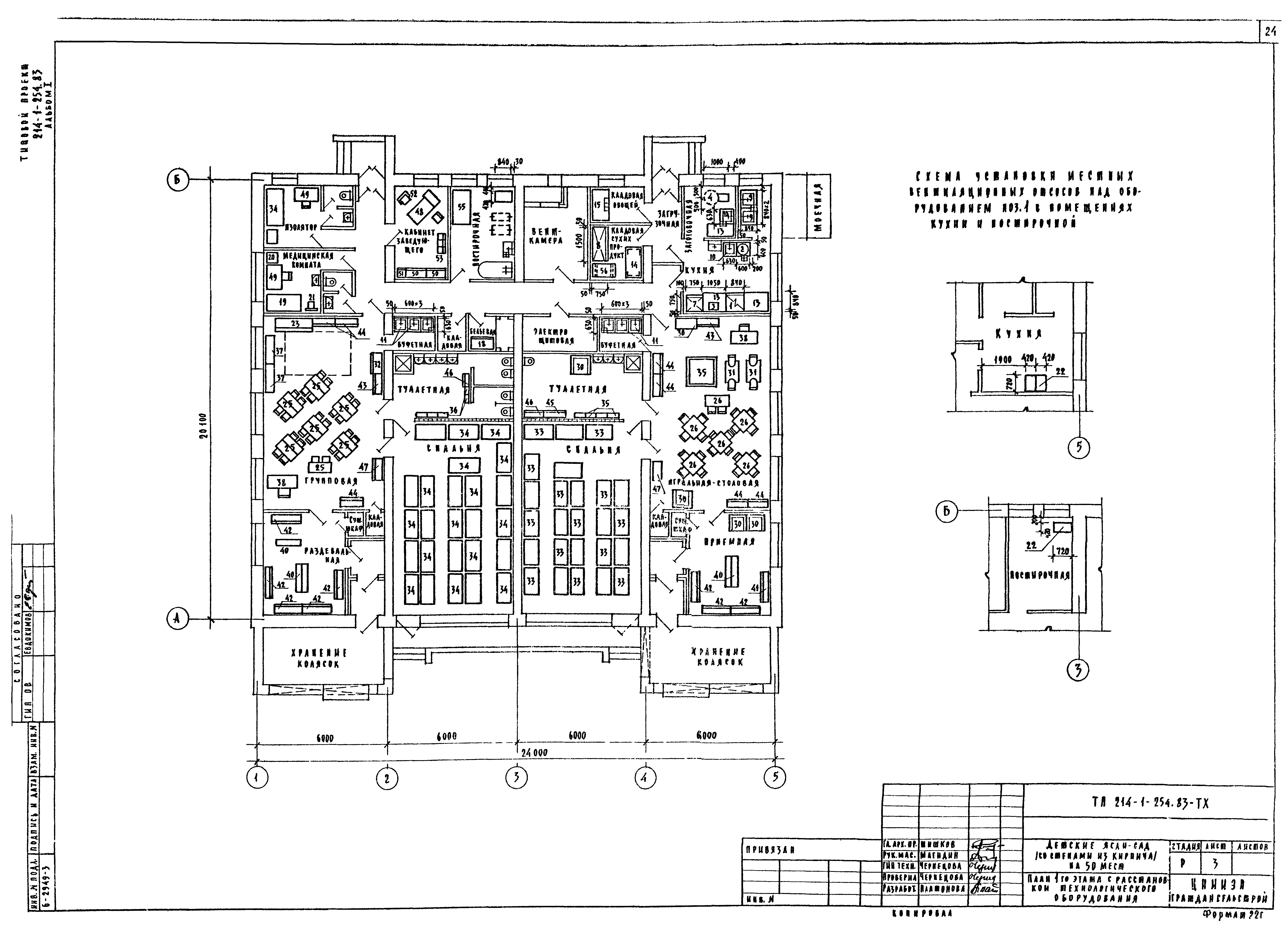
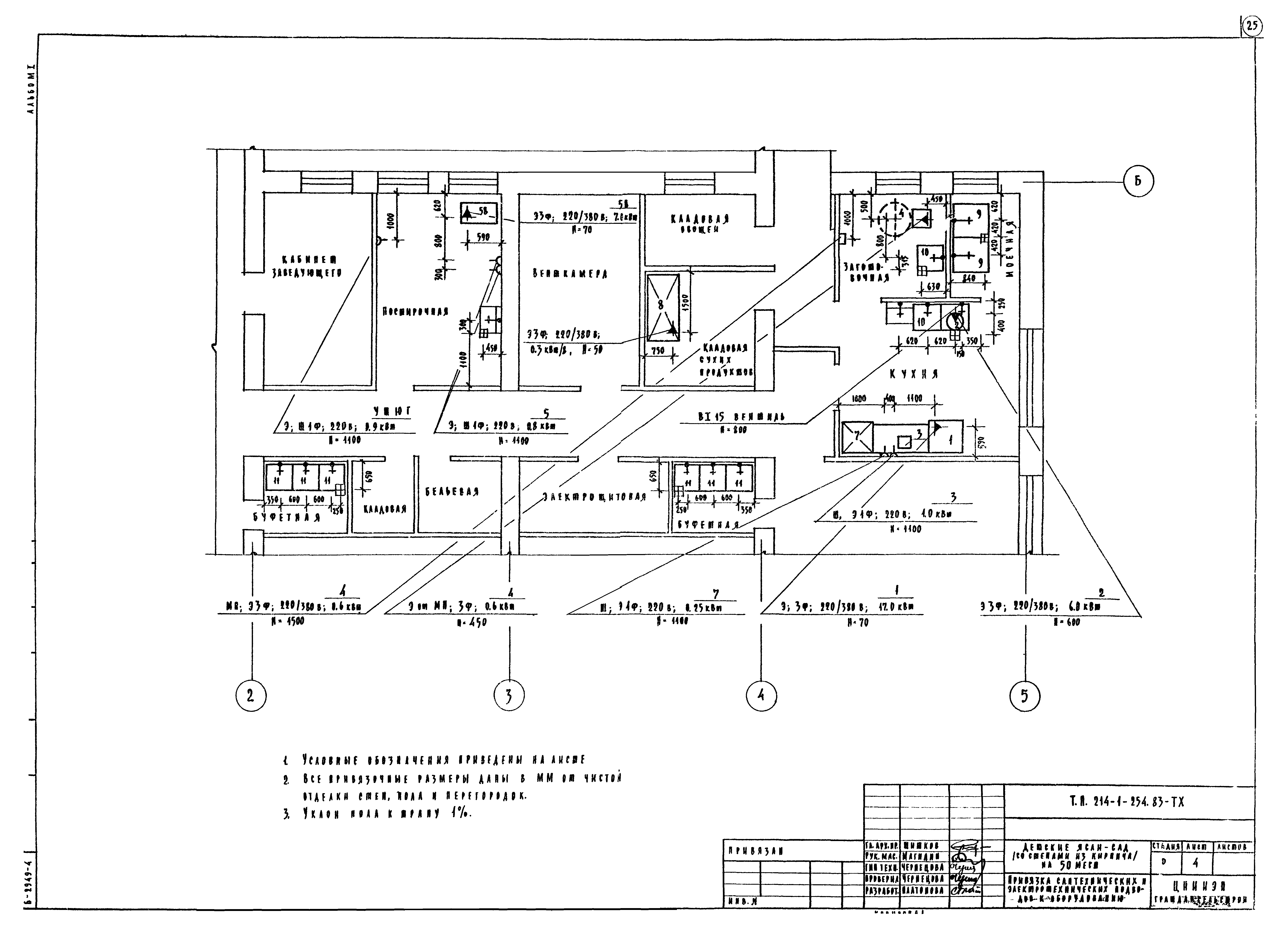
| Оглавление: | Обложка Титульный лист Общие данные (начало) Общие данные (продолжение) Общие данные (окончание) Схемы расположения фундаментов и элементов подпольных каналов Сечения по фундаментам, продольным каналам и крыльцам План Разрез 1-1. Деталь ограждения радиаторов Фасады А-Б,1-5,Б-А,5-1 Схема расположения перемычек Схема расположения элементов покрытия План кровли Венткамера Ведомость расхода стали Фрагмент плана с теневым навесом (вариант) Фасады А-Б,1-5,Б-А,5-1 (вариант с теневыми навесами) Фасады А-Б,1-5,Б-А,5-1 (вариант с чердачной крышей) Фасады А-Б,1-5,Б-А,5-1 (вариант с чердачной крышей и теневыми навесами) Схема расположения чердачной крыши (вариант) Чертежи марки ТХ Общие чертежи Спецификация технологического оборудования План 1го этажа с расстановкой технологического оборудования Привязка сантехнических и электротехнических подводов к оборудованию |
| Разработан: | ЦНИИЭП граждансельстрой |
| Утверждён: | 29.07.1982 Госгражданстрой (Gosgrazhdanstroy 198) |


























