Скачать Типовой проект 214-1-260.83 Альбом II. Чертежи санитарно-технические, электрооборудования, связи и сигнализации, автоматики вентиляционных системДата актуализации: 01.01.2021
|
| Обозначение: | Типовой проект 214-1-260.83 |
| Обозначение англ: | 214-1-260.83 |
| Статус: | не определен законодательством |
| Название рус.: | Альбом II. Чертежи санитарно-технические, электрооборудования, связи и сигнализации, автоматики вентиляционных систем |
| Дата добавления в базу: | 01.09.2013 |
| Дата актуализации: | 01.01.2021 |
| Дата введения: | 15.03.1984 |
| Дата окончания срока действия: | 30.06.2003 |
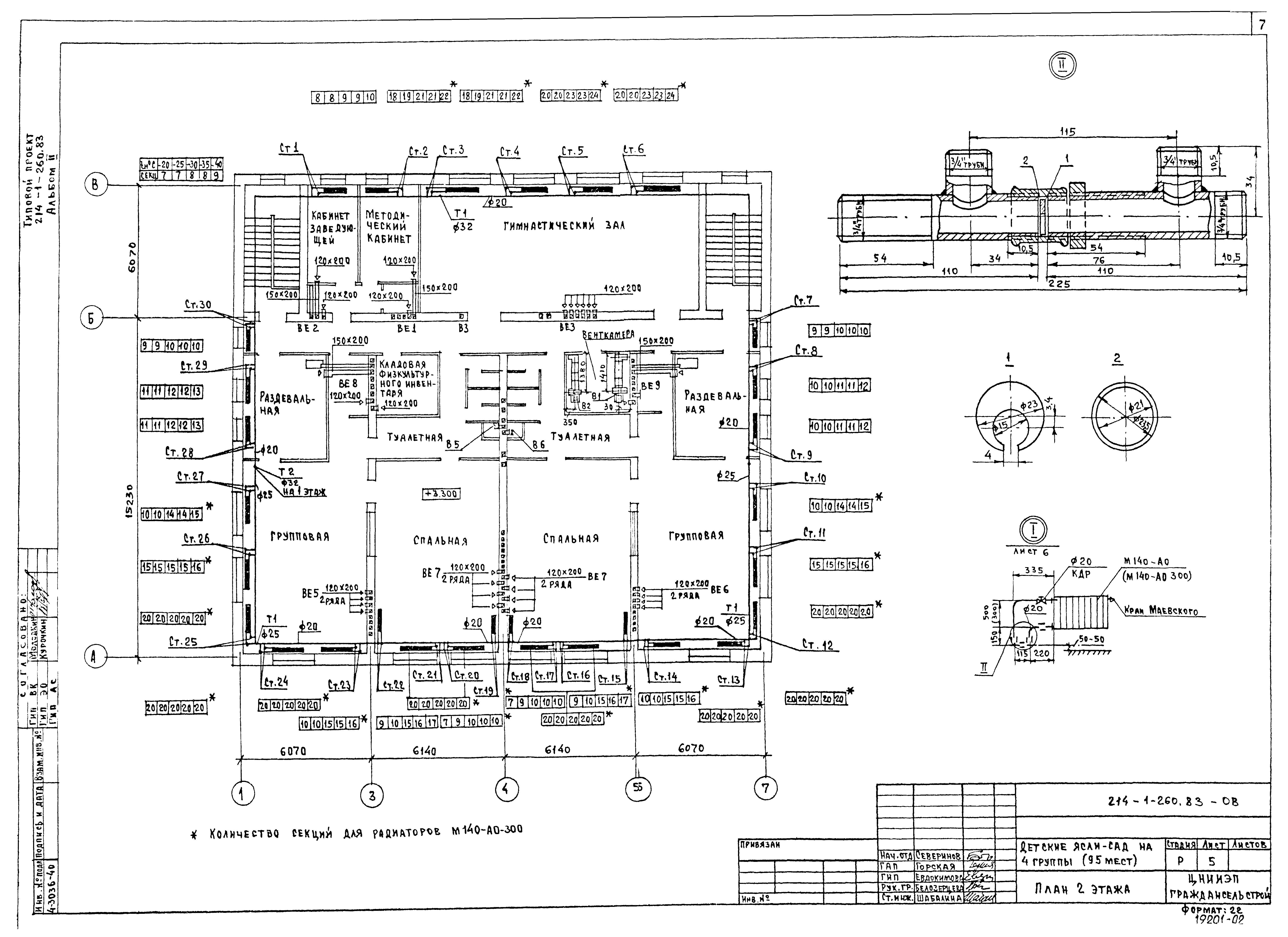
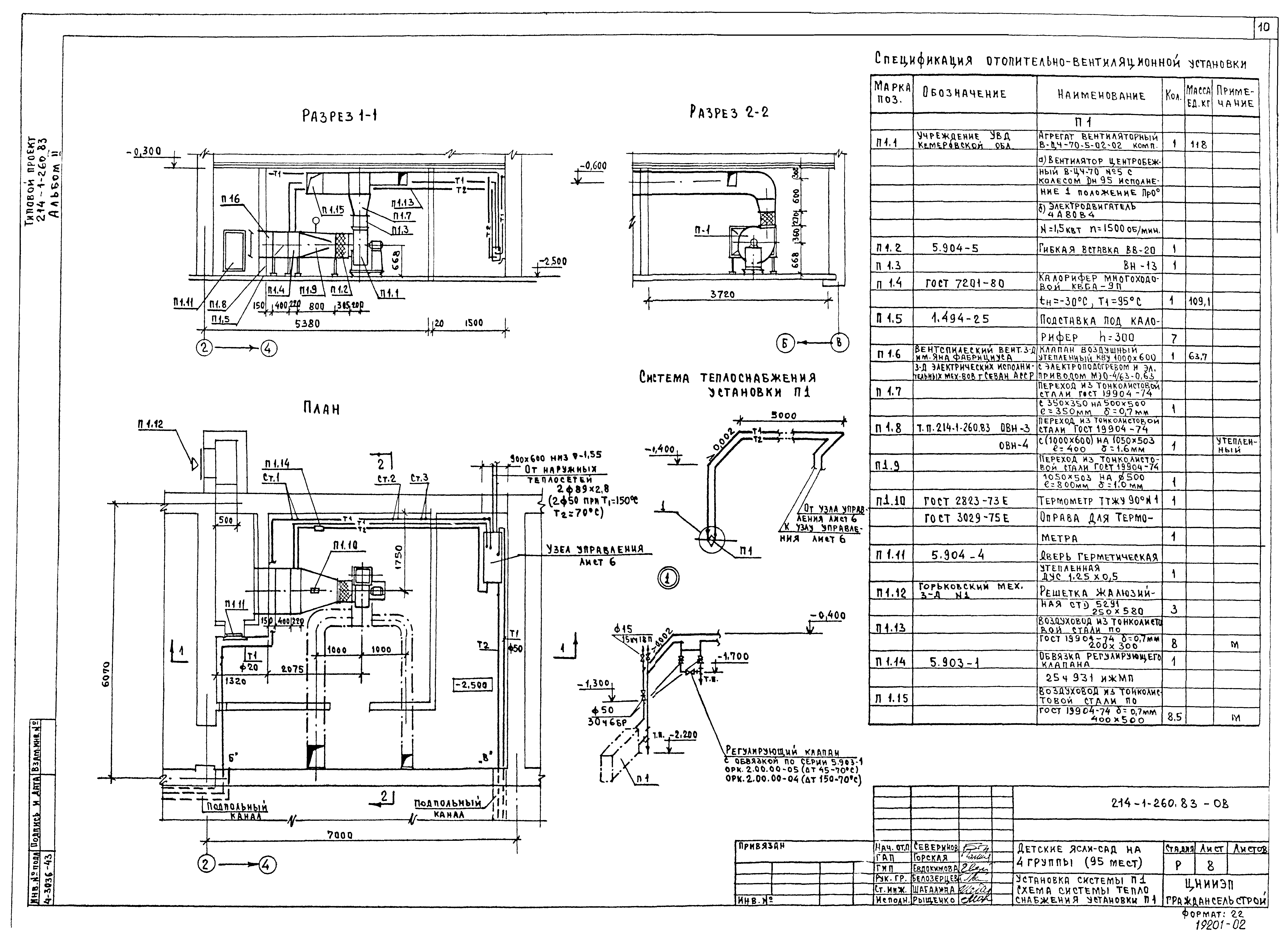
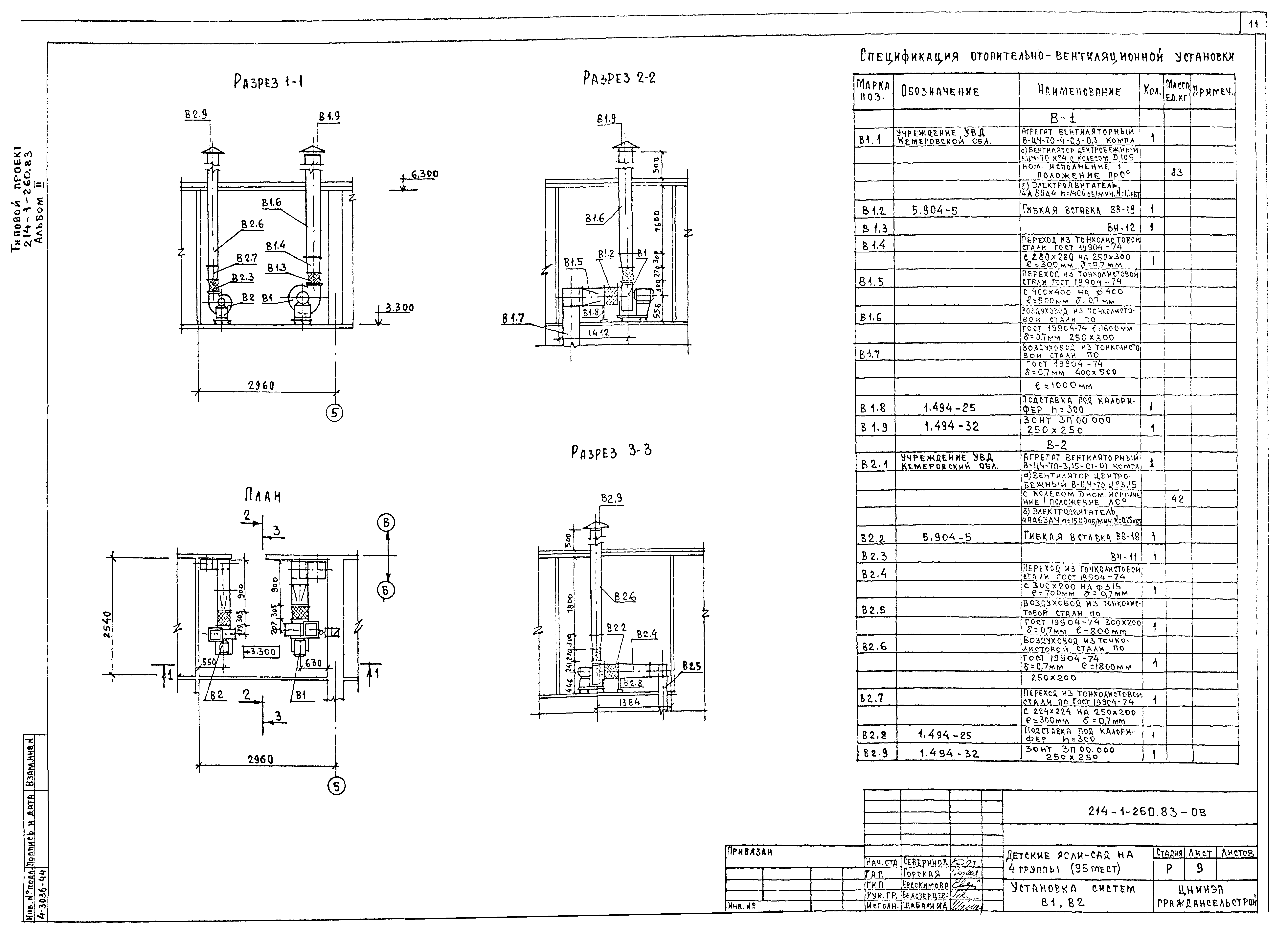
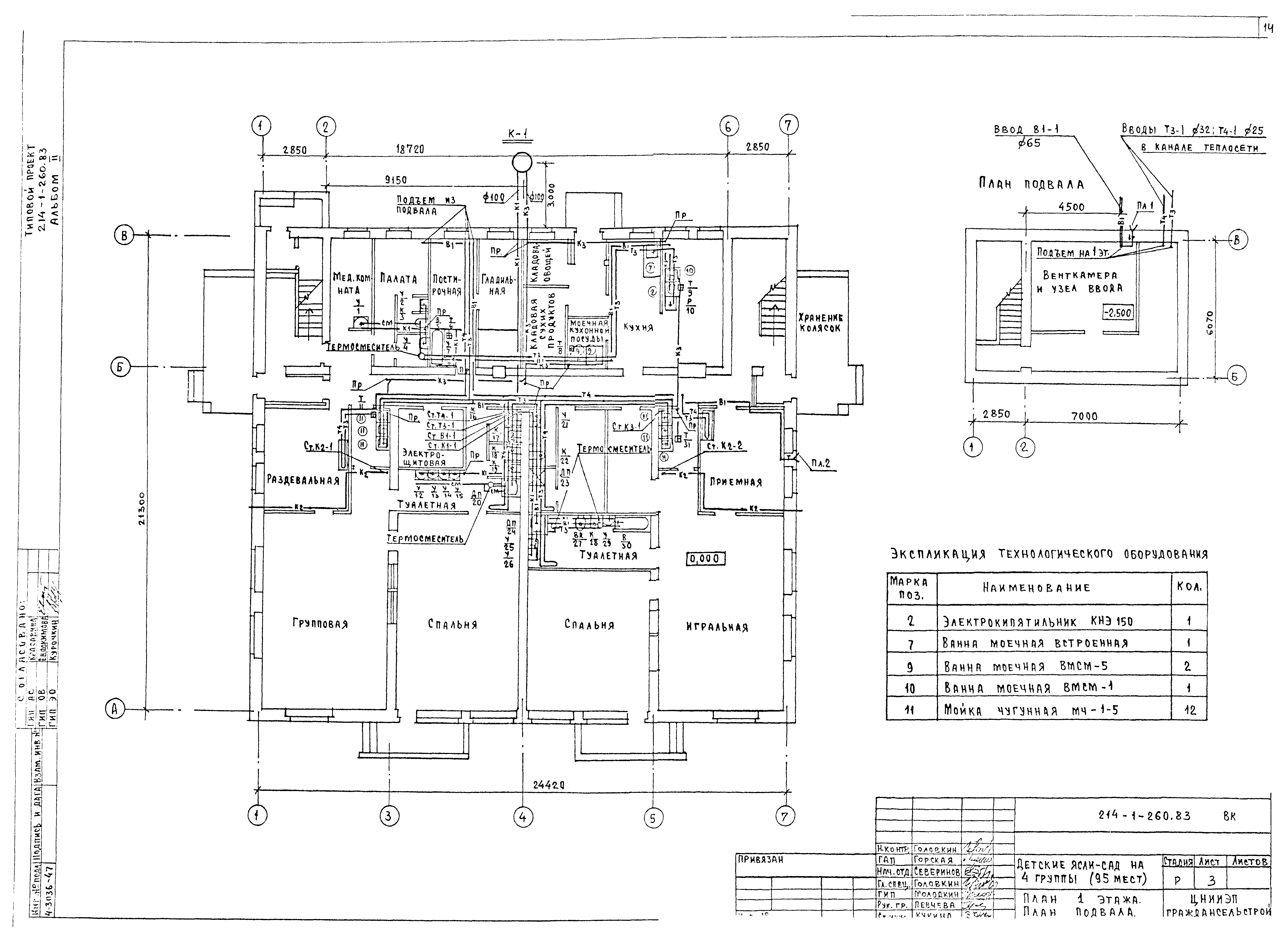
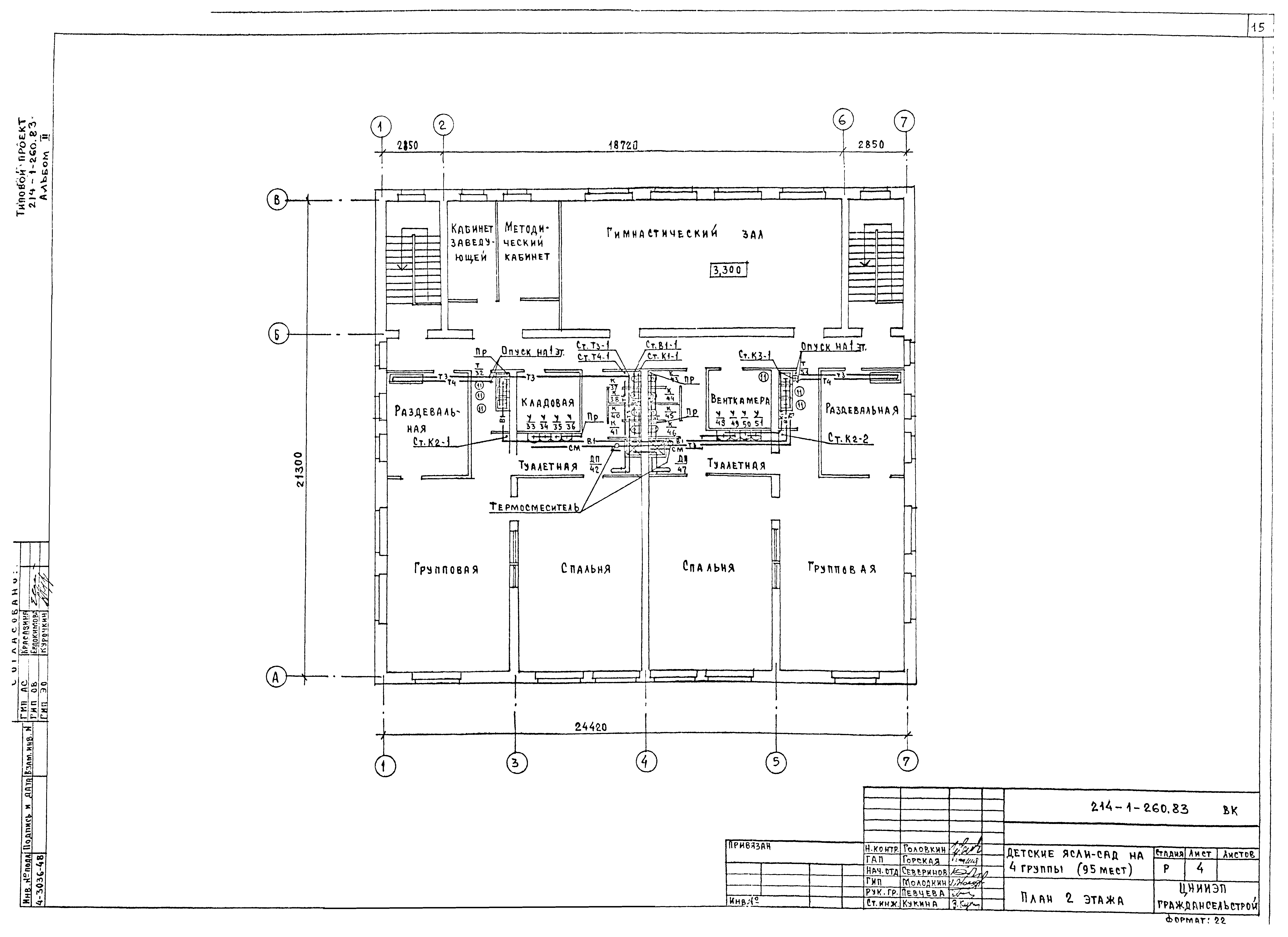
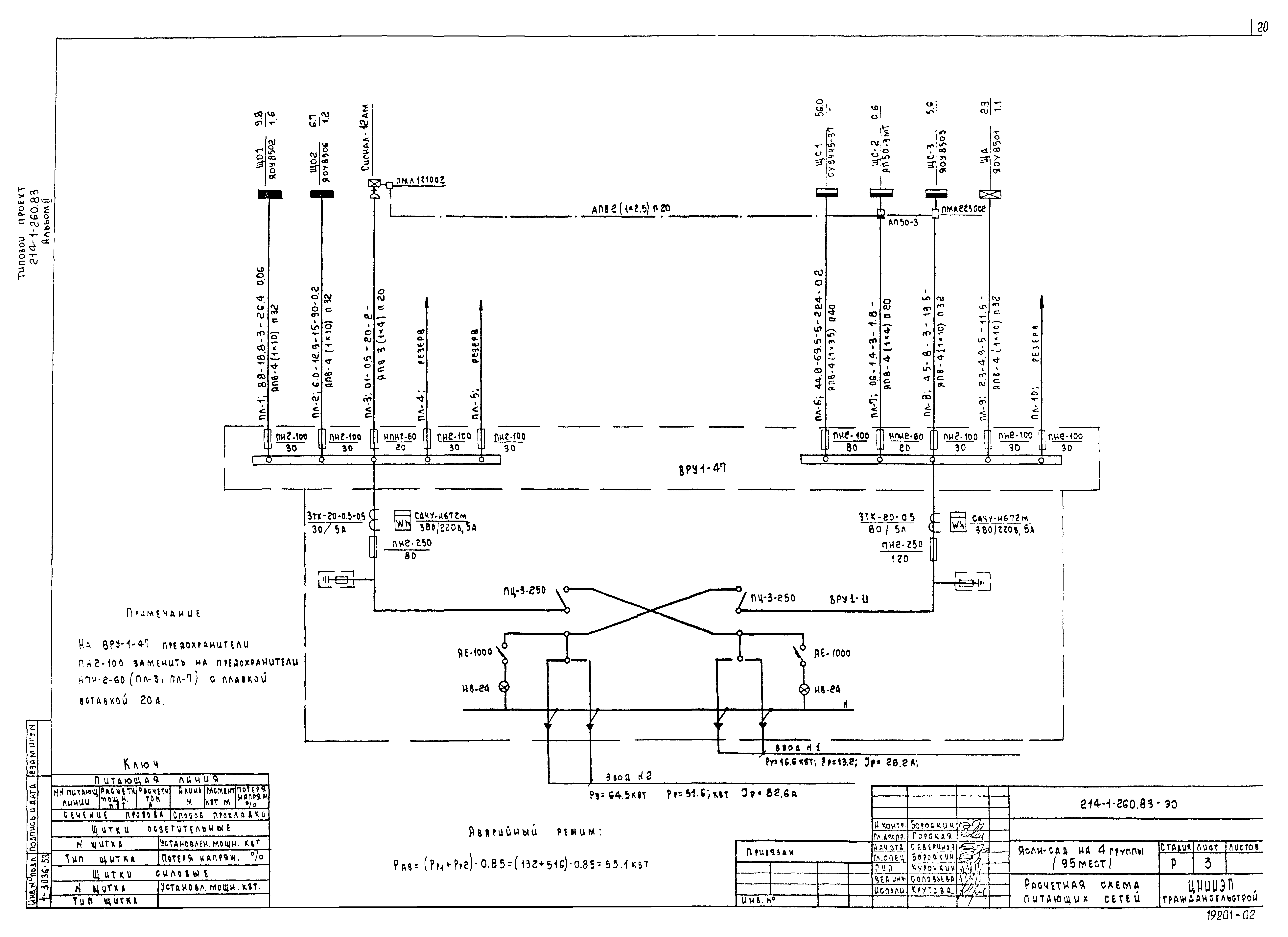
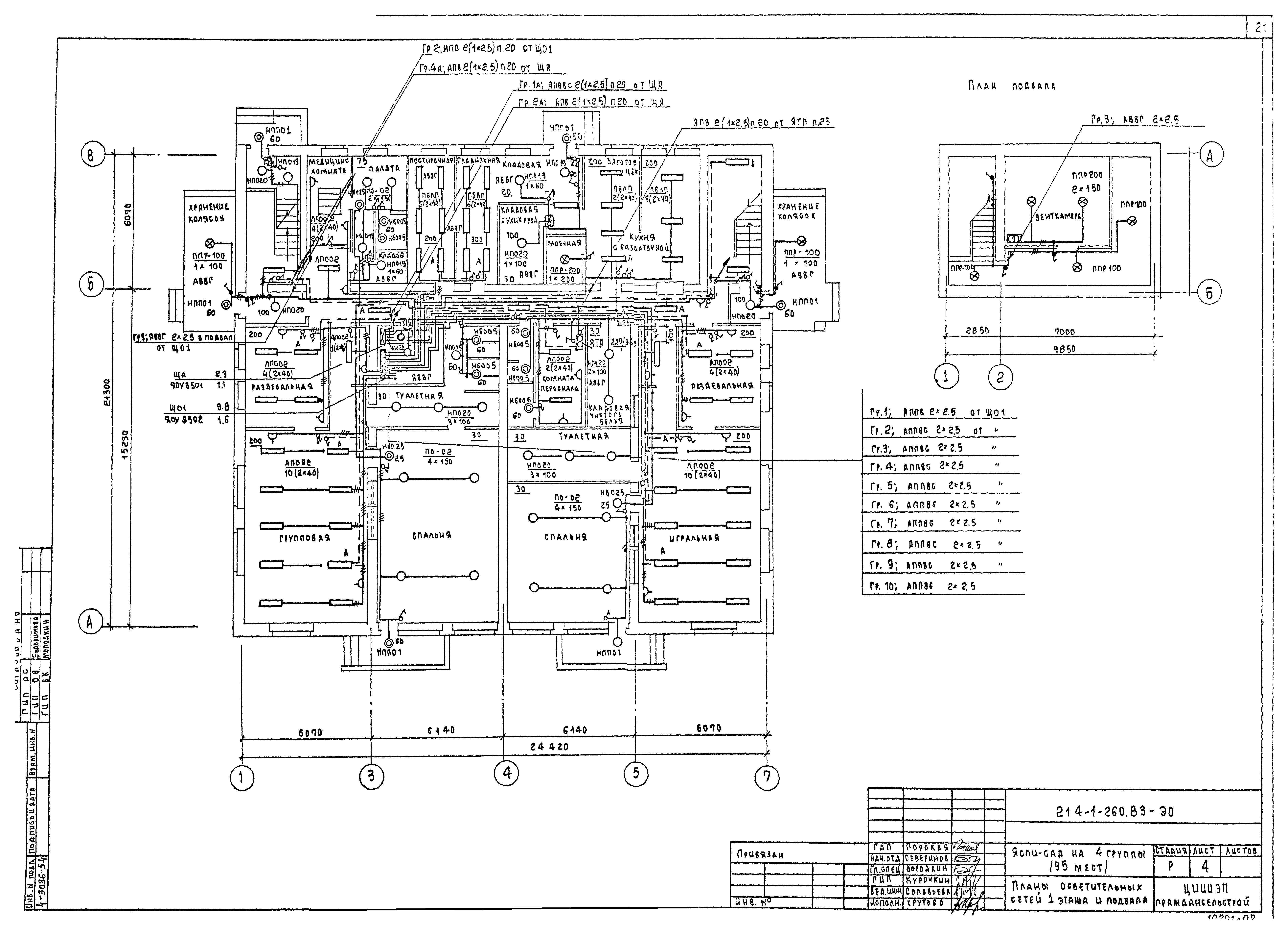
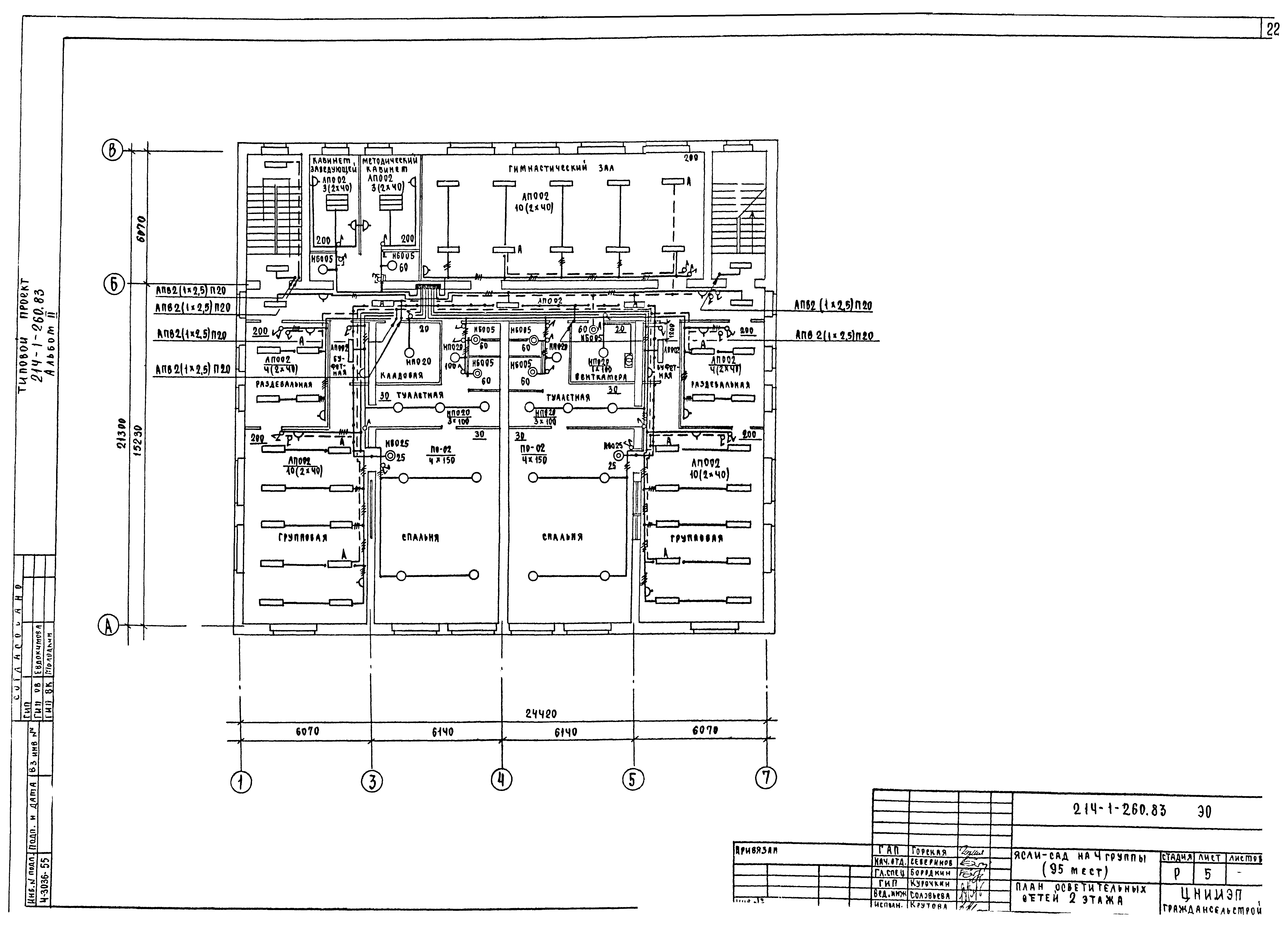
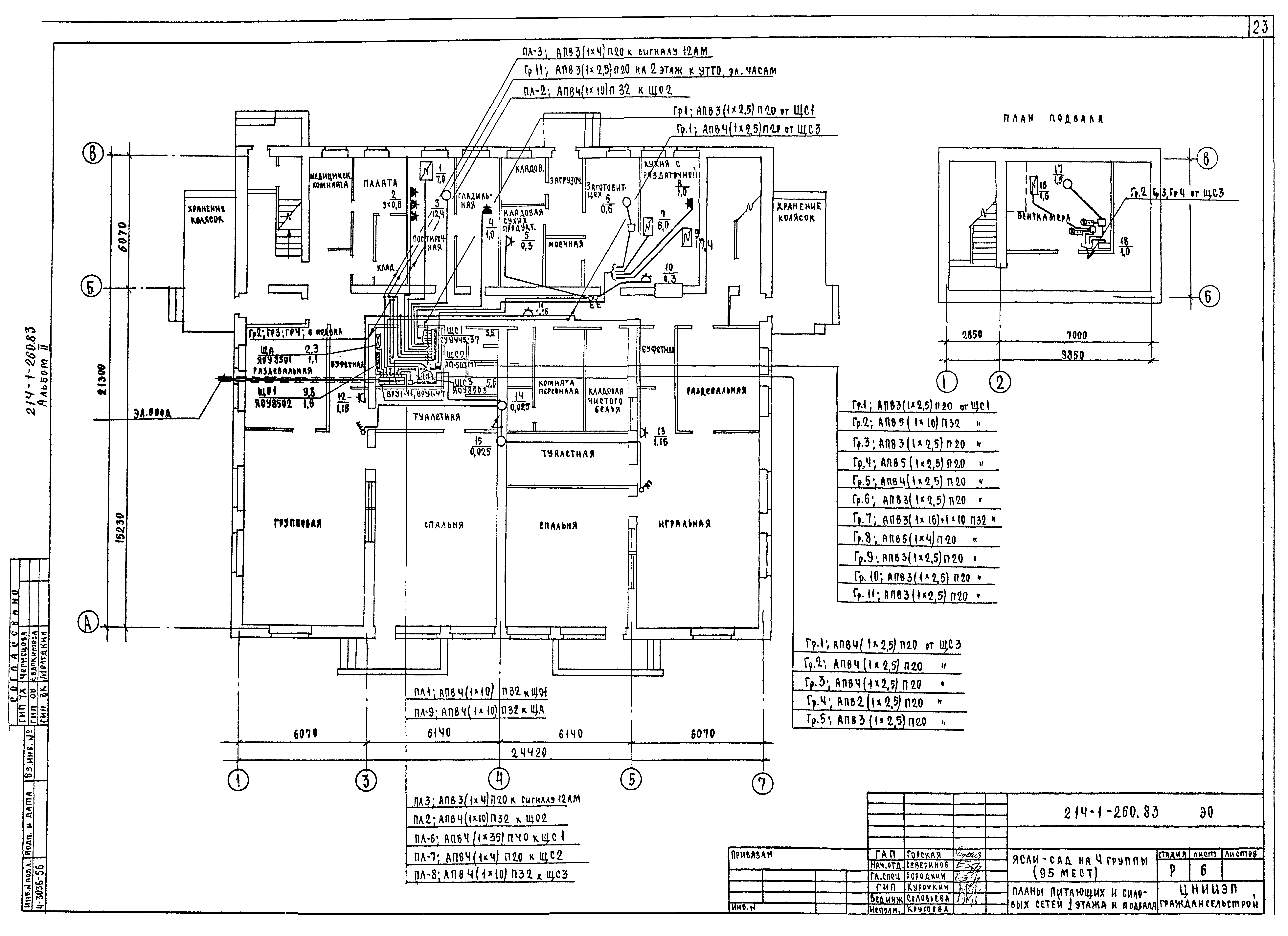
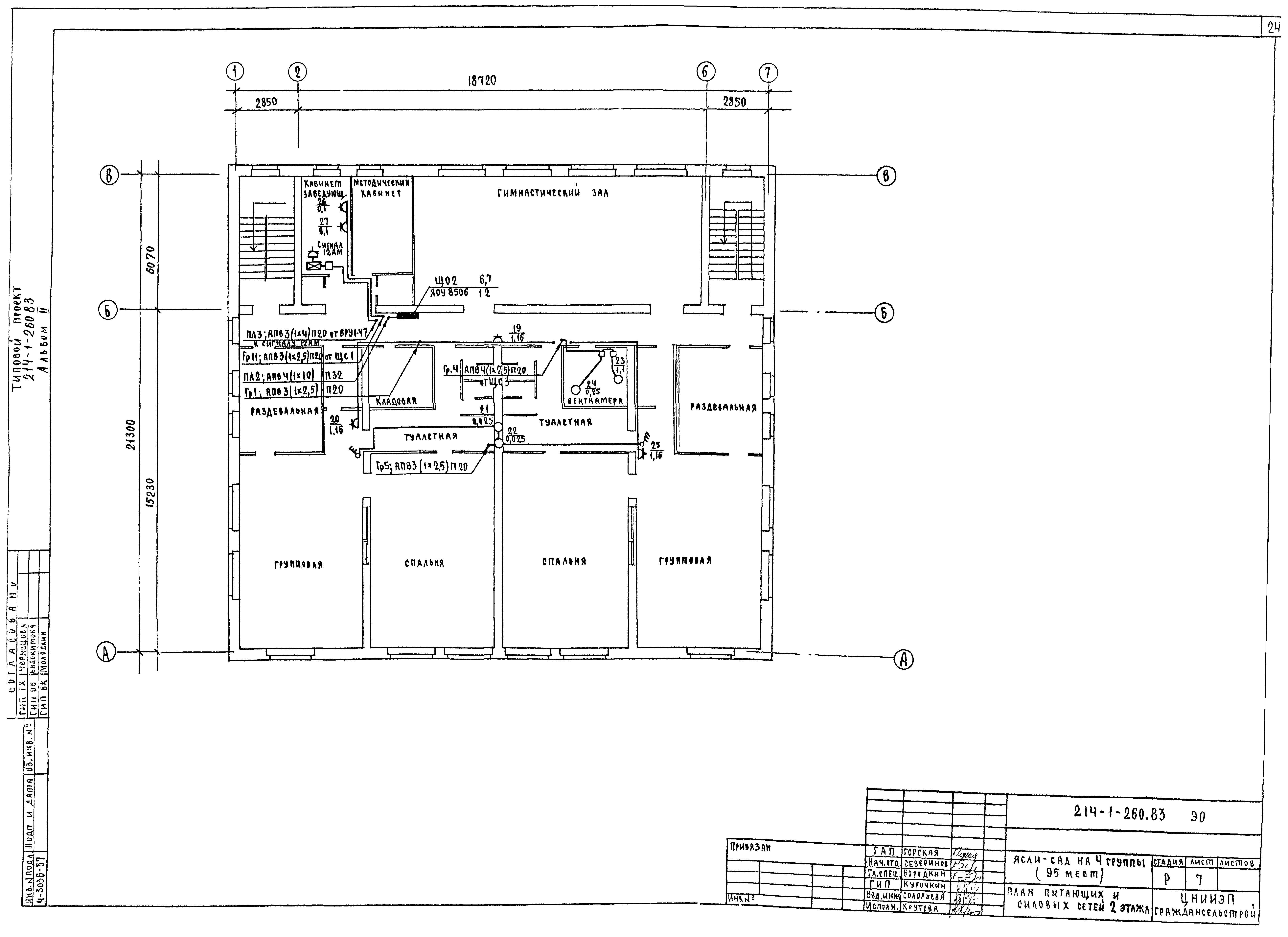
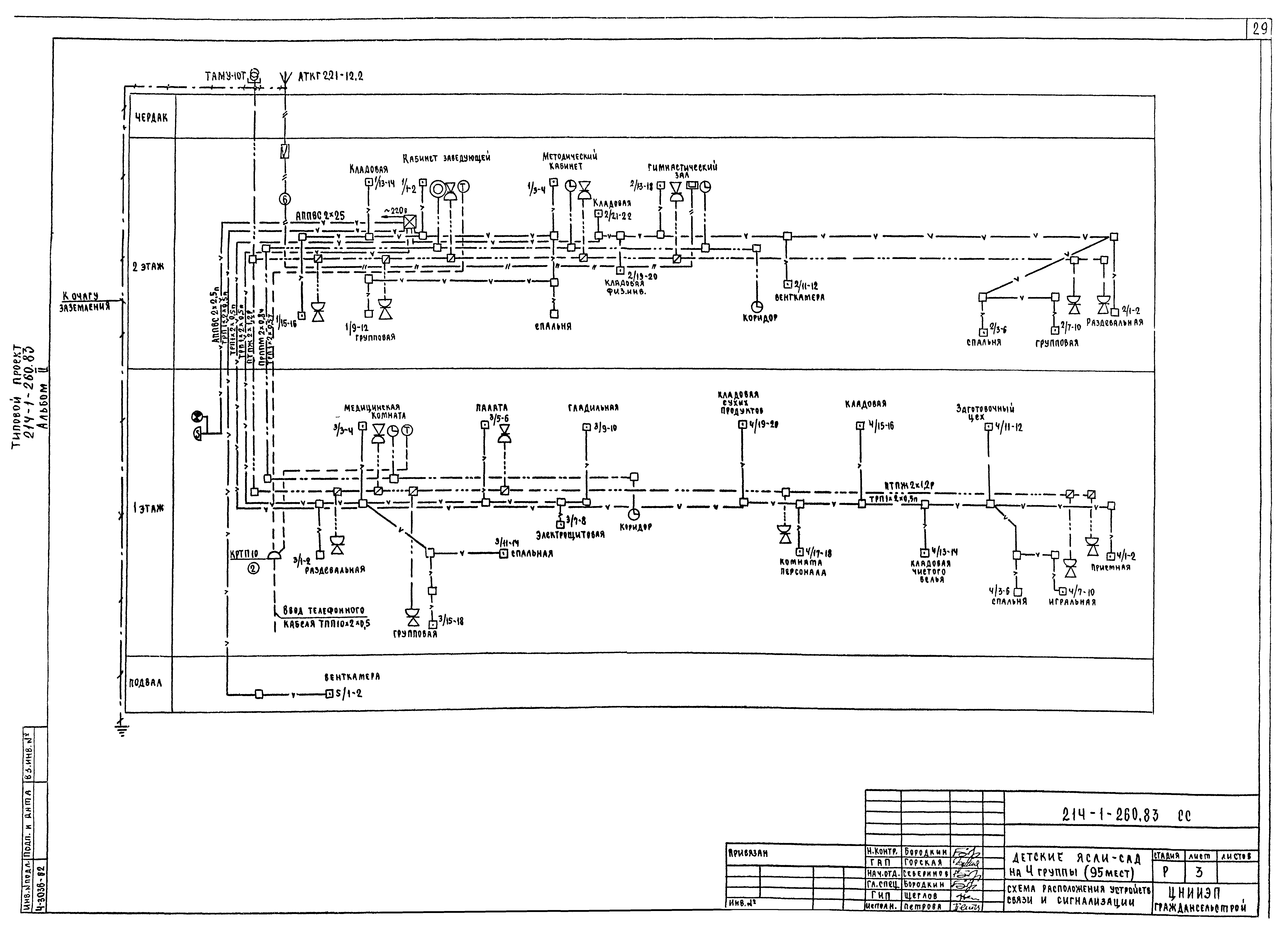
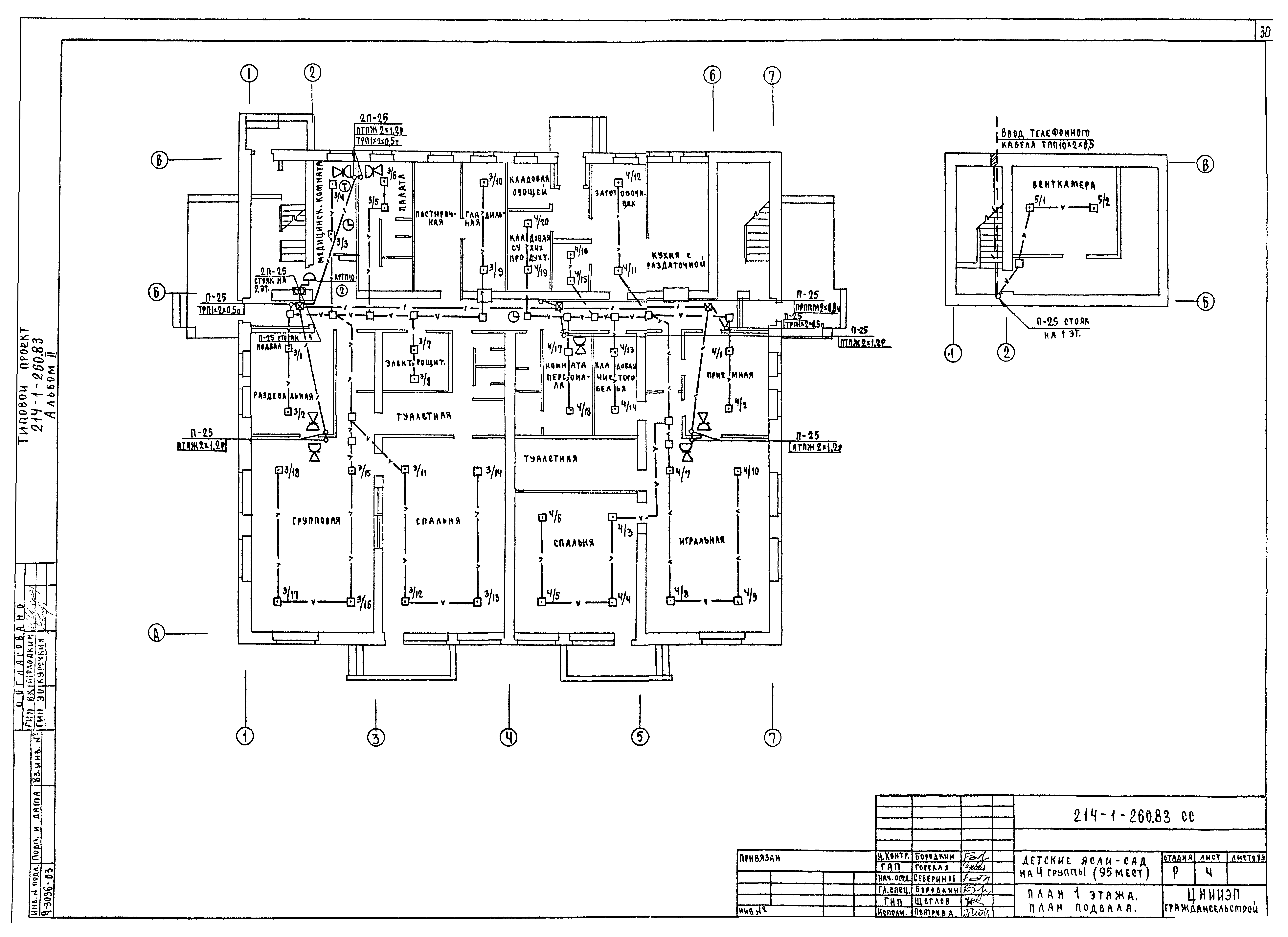
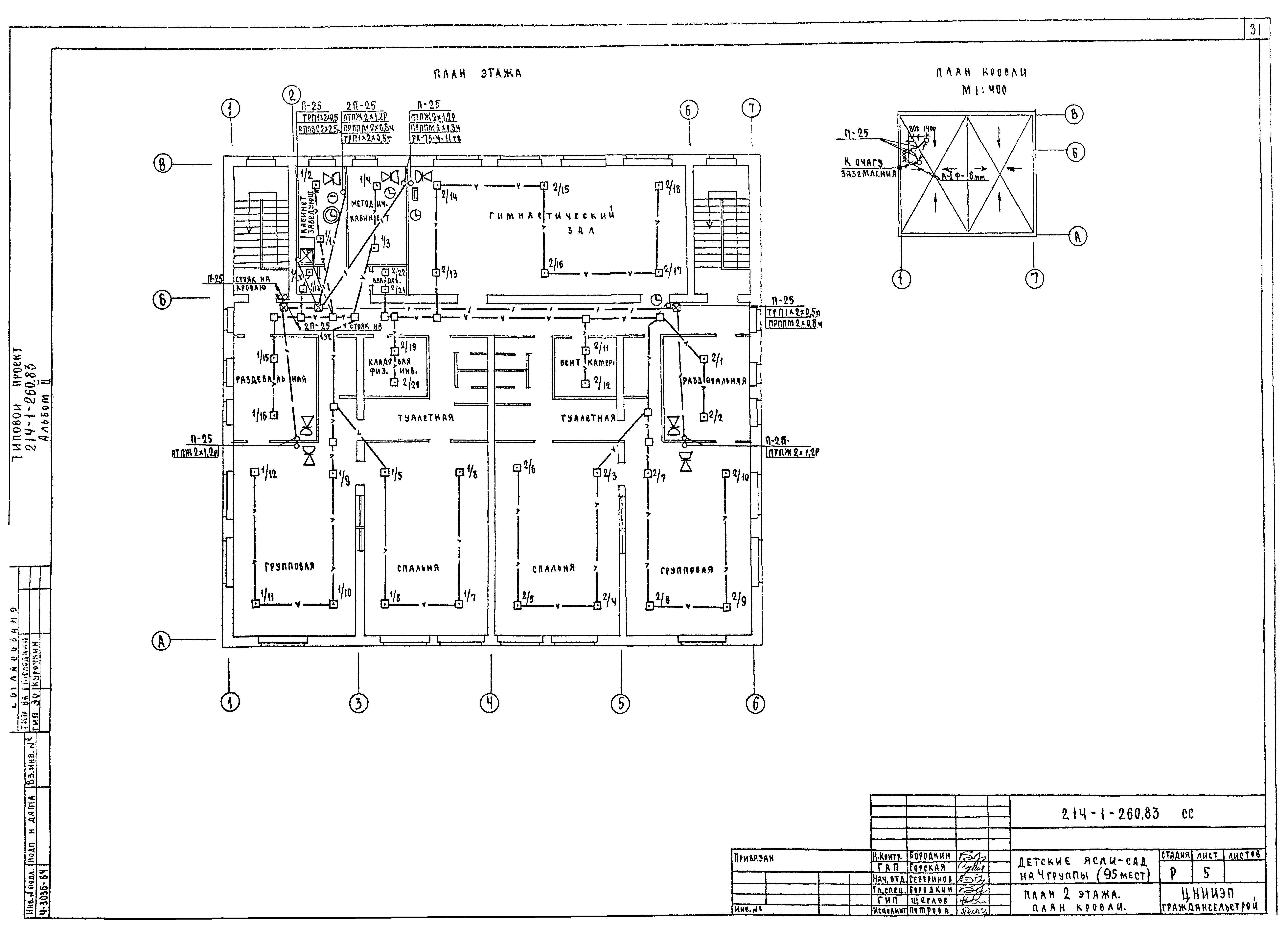
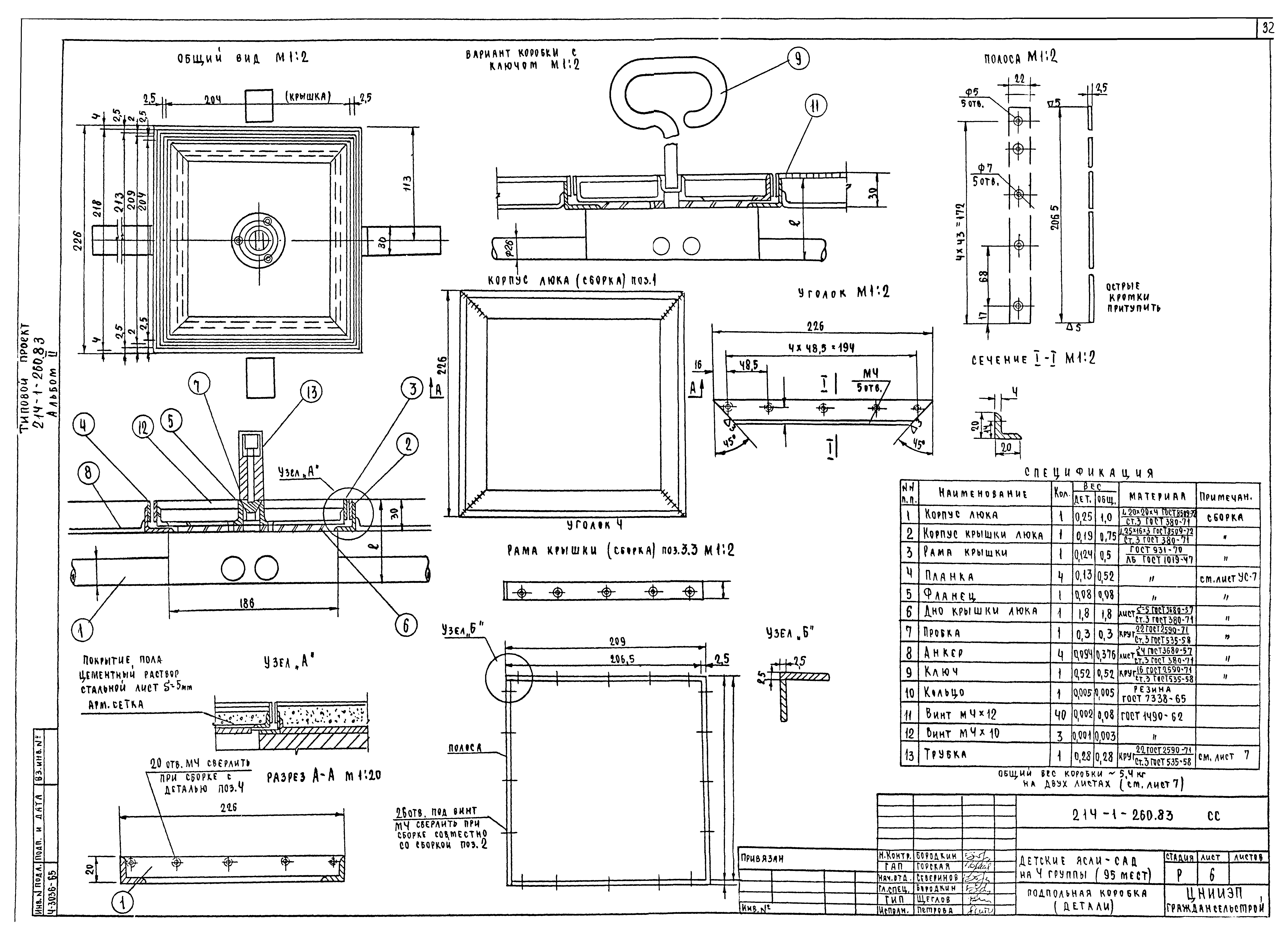
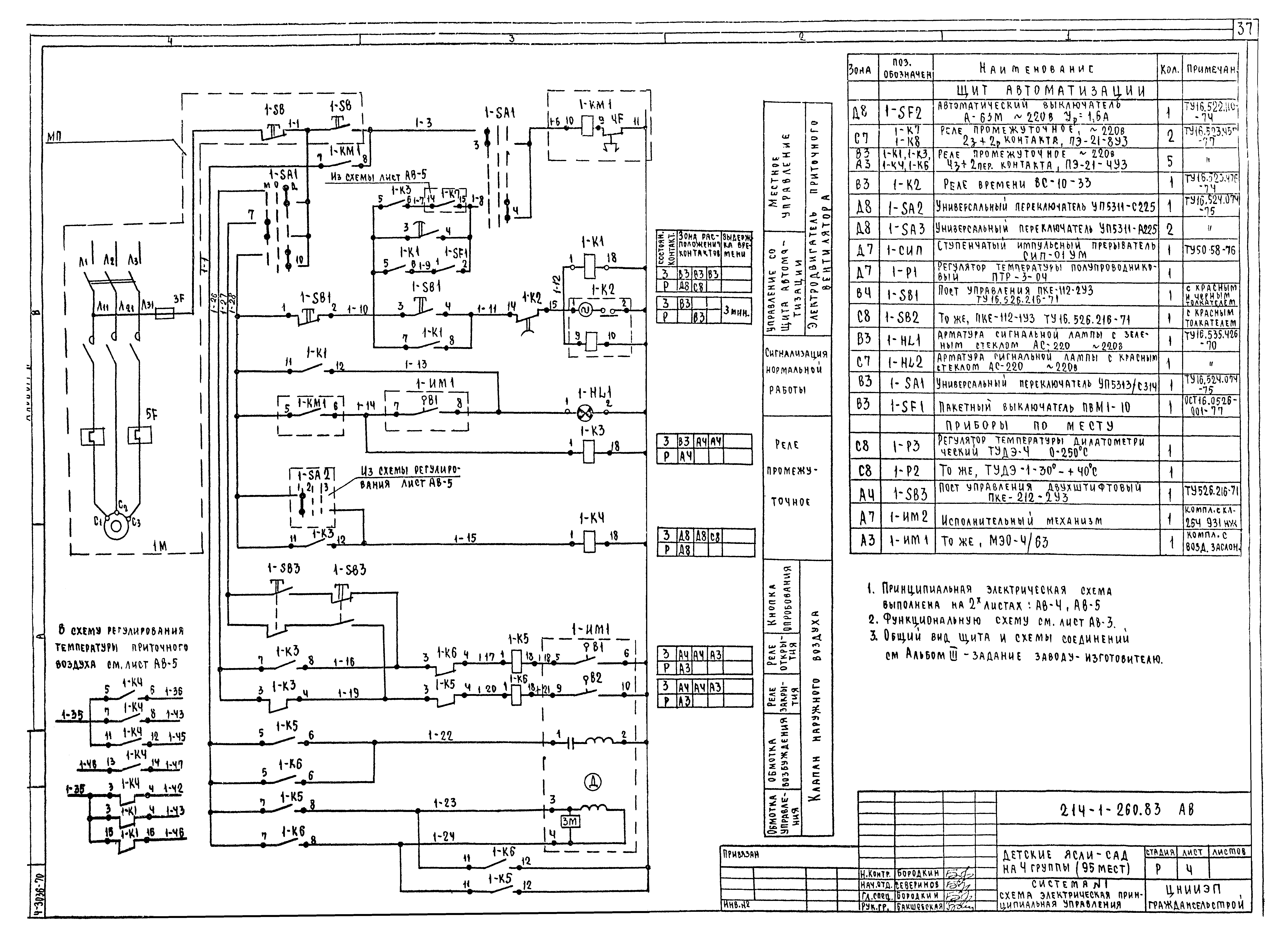
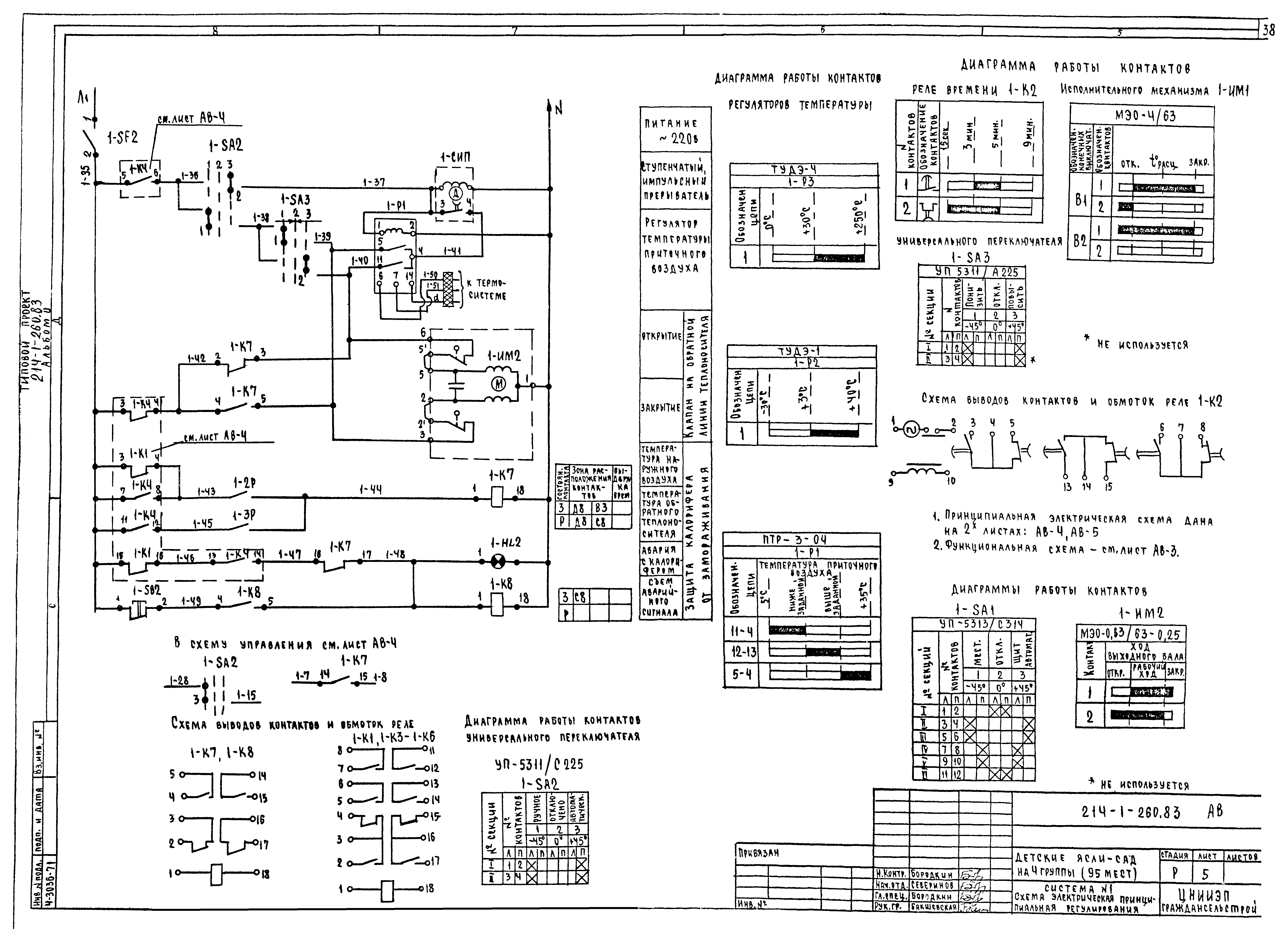
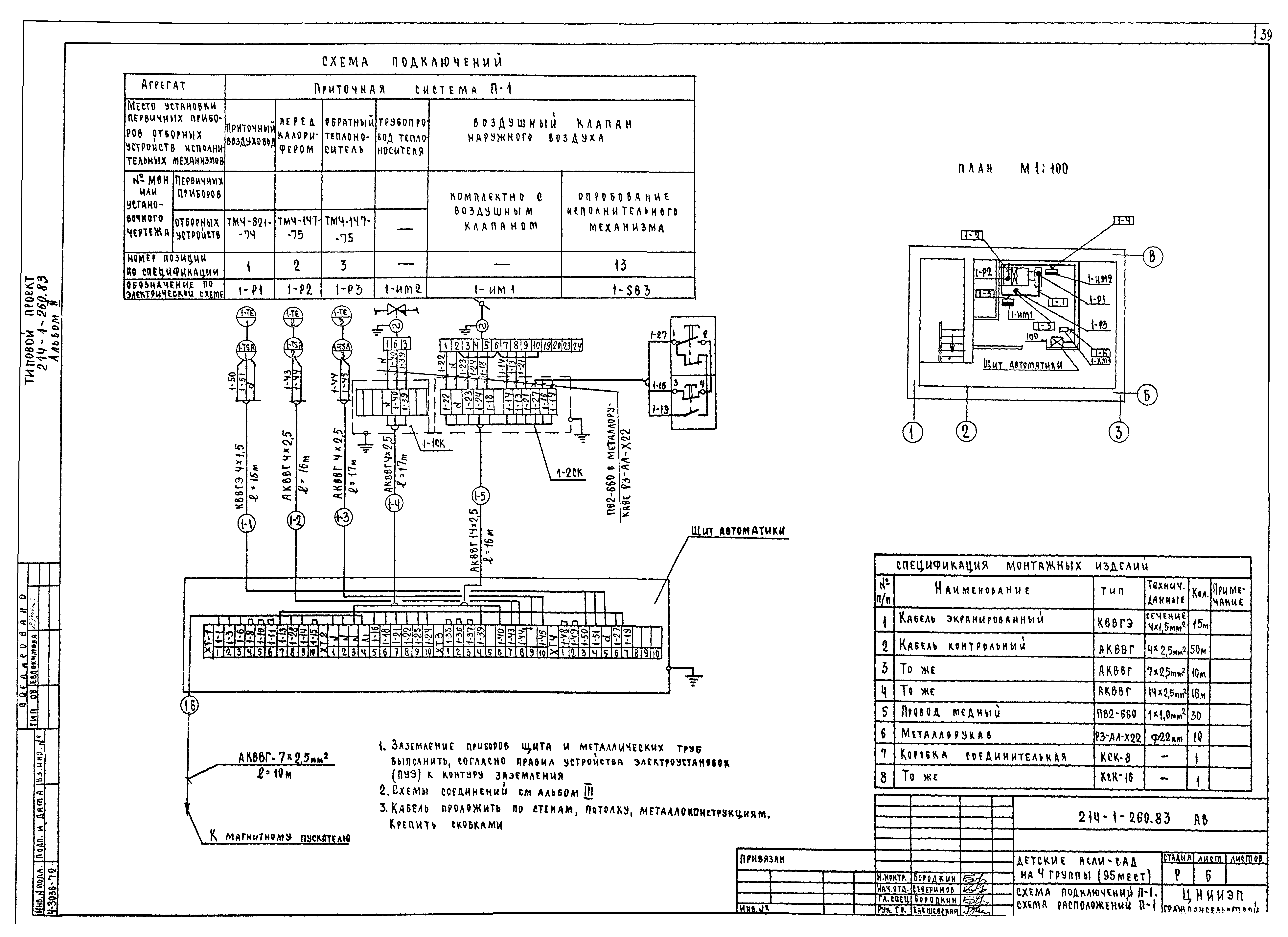
| Оглавление: | Титульный лист Содержание альбома Отопление и вентиляция Общие данные (начало) Общие данные (продолжение) Общие данные (окончание) План 1 этажа План 2 этажа Схема системы отопления Схемы систем вентиляции П1,В1-В3,ВЕ1-ВЕ9 Установка системы П-1. Схема системы теплоснабжения установки П-1 Установка системы В-1,В-2 Водопровод и канализация Общие данные (начало) Общие данные (окончание) План 1 этажа. План подвала План 2 этажа Схемы систем В1,Т3,Т4 Схемы систем К1,К2,К3 Электрооборудование Общие данные Спецификация Расчетная схема питающих сетей План осветительных сетей 1 этажа План осветительных сетей 2 этажа План питающих и силовых сетей 1 этажа План питающих и силовых сетей 2 этажа Расчетная схема осветительных сетей Расчетная схема силовых сетей Связь и сигнализация Общие данные Спецификация Схема расположения устройств связи и сигнализации План 1 этажа. План подвала План 2 этажа. План кровли Подпольная коробка (детали) Автоматика вентсистем Общие данные (начало) Общие данные (окончание) Функциональная схема П-1 Система № 1. Схема принципиальная электрическая управления Система № 1. Схема принципиальная электрическая регулирования Схема подключений П-1. Схема расположений П-1 Прилагаемые документы Чертежи общих видов нетиповых конструкций ОВН-1-ОВН-4 Опросный лист |
| Разработан: | ЦНИИЭП граждансельстрой |
| Утверждён: | 05.11.1982 Госгражданстрой (Gosgrazhdanstroy 297) |










































