Скачать Типовой проект 224-9-95 Альбом I. Архитектурно-строительные, технологические и электротехнические чертежиДата актуализации: 01.01.2021
|
| Обозначение: | Типовой проект 224-9-95 |
| Обозначение англ: | 224-9-95 |
| Статус: | не определен законодательством |
| Название рус.: | Альбом I. Архитектурно-строительные, технологические и электротехнические чертежи |
| Дата добавления в базу: | 01.09.2013 |
| Дата актуализации: | 01.01.2021 |
| Дата введения: | 24.05.1977 |
| Дата окончания срока действия: | 30.06.2003 |
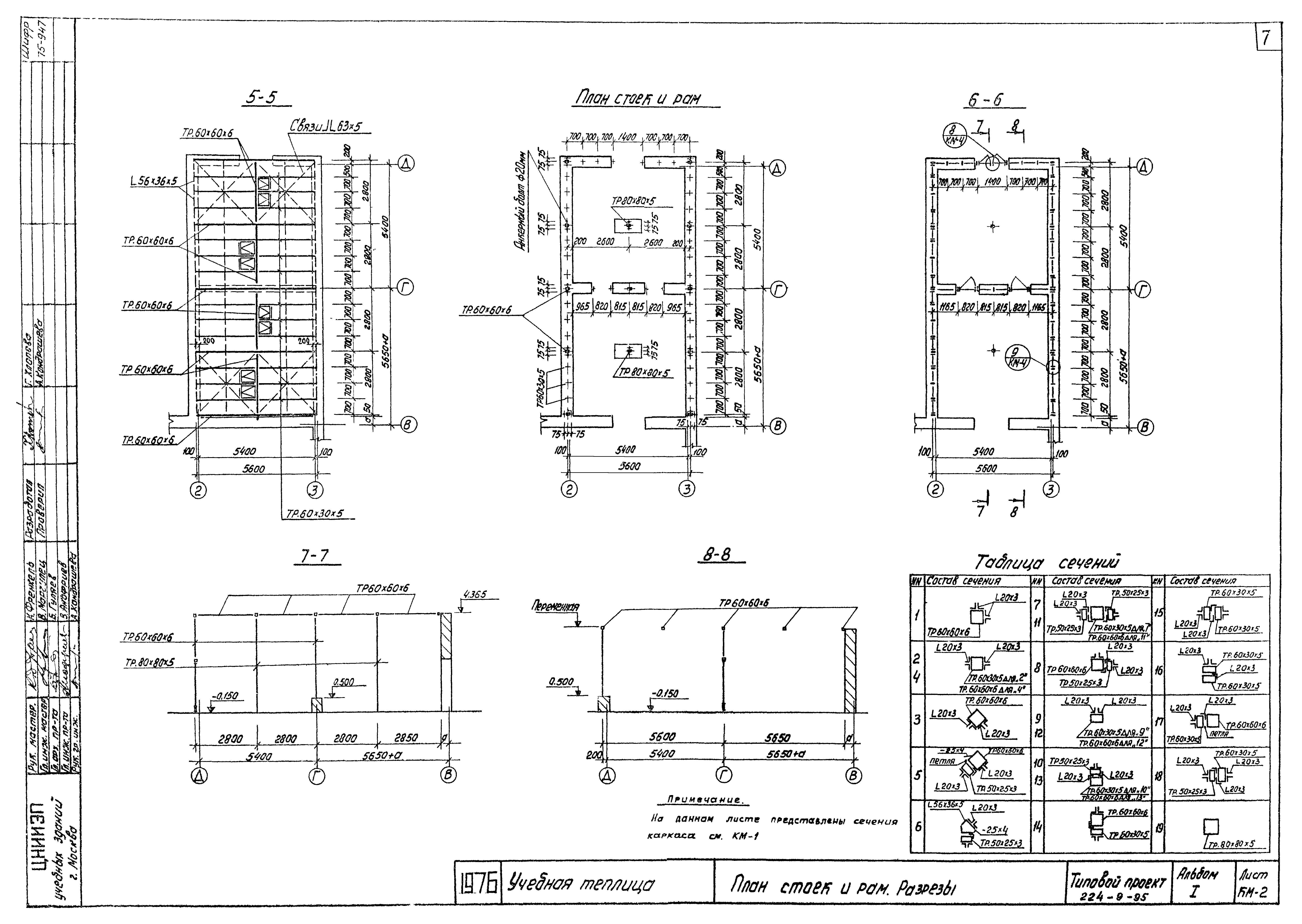
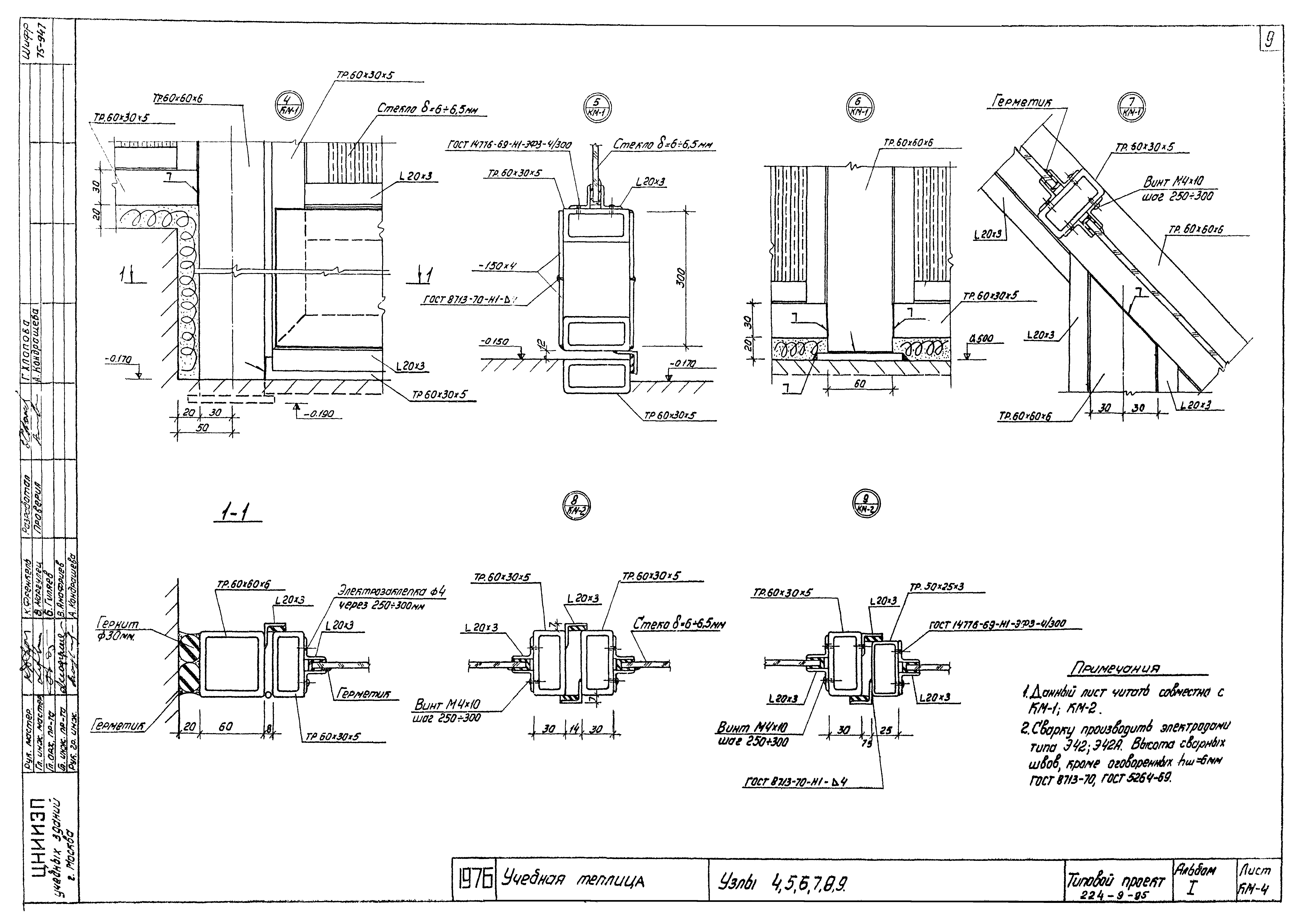
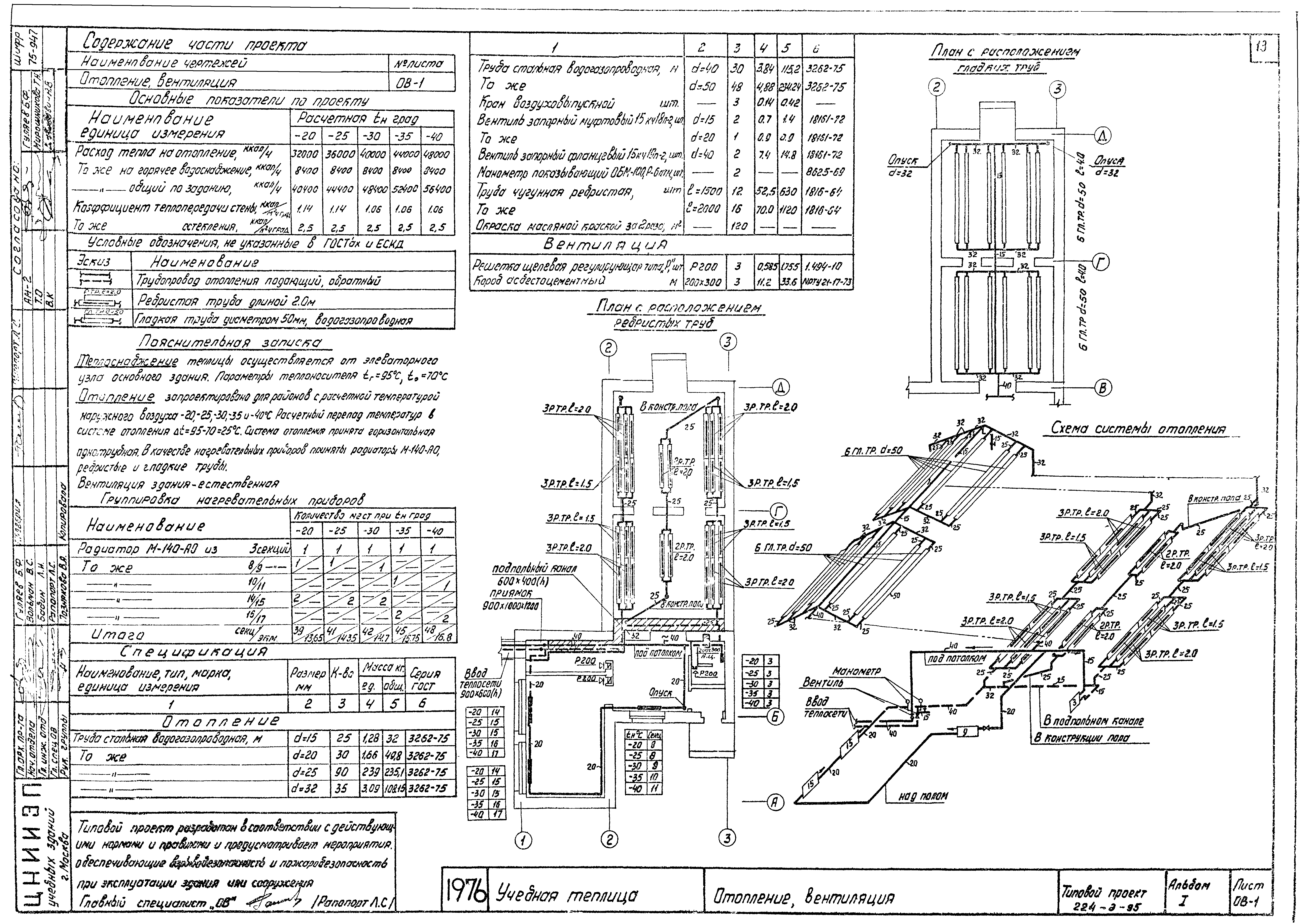
| Оглавление: | Содержание альбома. Пояснительная записка. Сводные спецификации железобетонных и деревянных изделий. Спецификация заполнения проемов АС-1 План фундаментов (пример решения). План фундаментов (чертеж привязки). Сечения фундаментов. План покрытия. План кровли АС-2 План разбивки стеллажей. Конструкция приямков и лотков. Спецификация АС-3 План. Фасад по оси "1". Фасад по оси "3". Фасад по оси "А". Фасад по оси "Д". Разрез 1-1. Разрез 2-2 КМ-1 Монтажные схемы по осям "2" и "3". Разрезы КМ-2 План стоек и рам. Разрезы КМ-3 Узлы 1,2,3 КМ-4 Узлы 4,5,6,7,8,9 КМ-5 Узлы 10,11,12,13 КМ-6 Детали крепления № 1,2,3,4,5 То-1 Расстановка технологического оборудования ОВ-1 Отопления, вентиляция ВК-1 Содержание части проекта. Основные показатели. Пояснительная записка. Спецификации ВК-2 План. Схема холодной и горячей воды. Разрезы канализации ЭЛ-1 Электроосвещение. Пояснения к проекту. Условные обозначения. План теплицы. Спецификация |
| Разработан: | ЦНИИЭП учебных зданий Госгражданстроя |
| Утверждён: | 12.09.1975 Госгражданстрой (Gosgrazhdanstroy 204) |

















