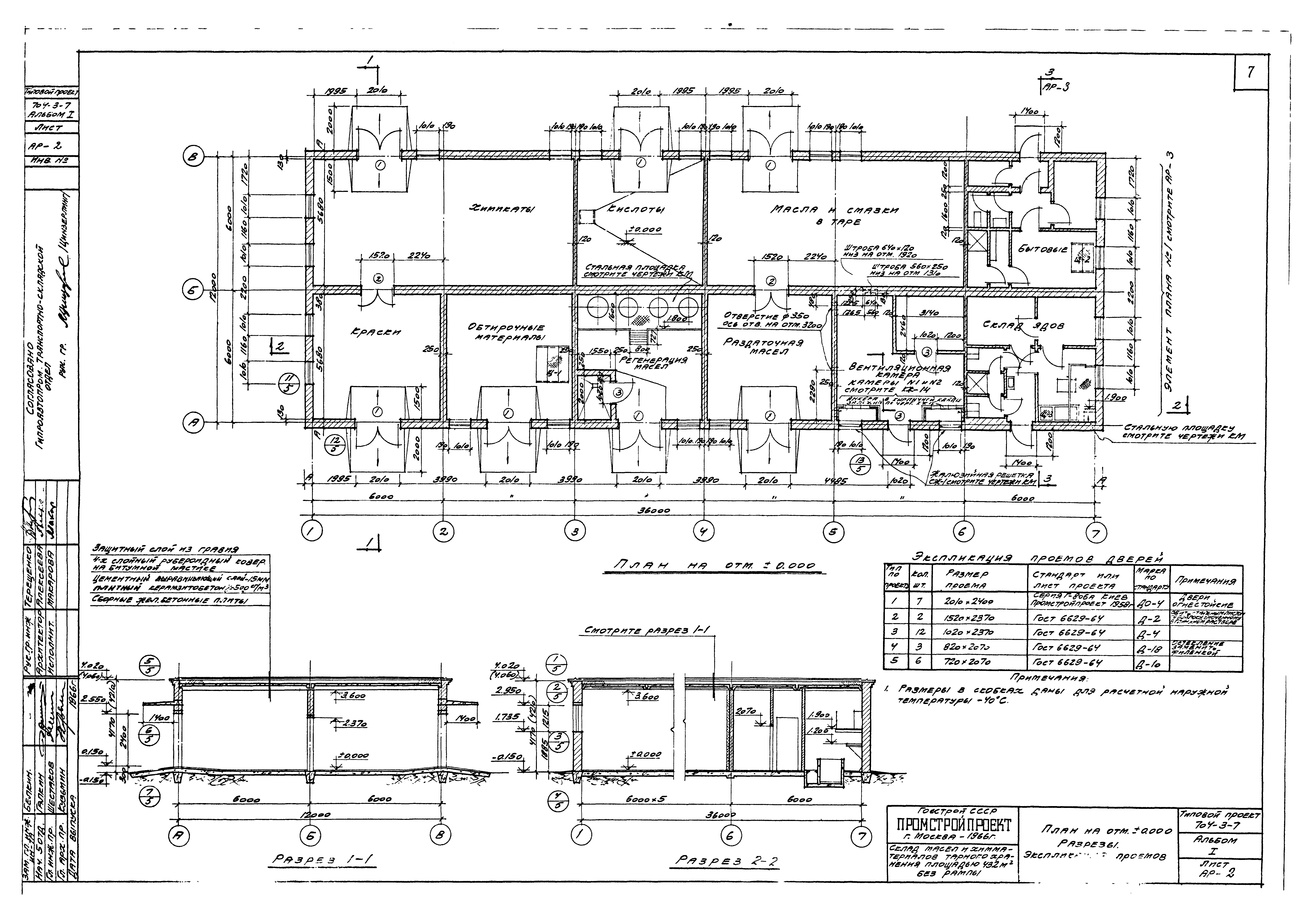
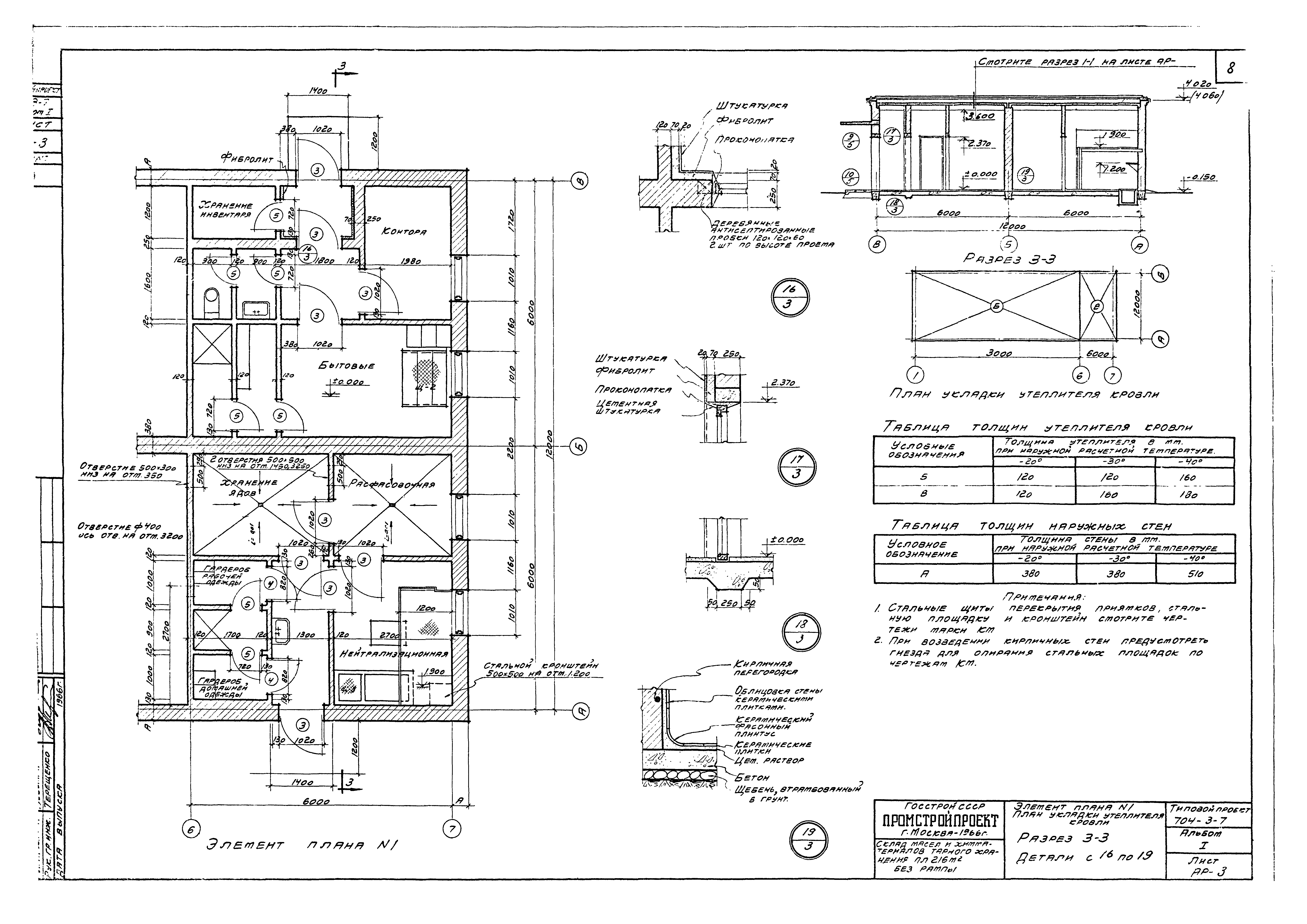
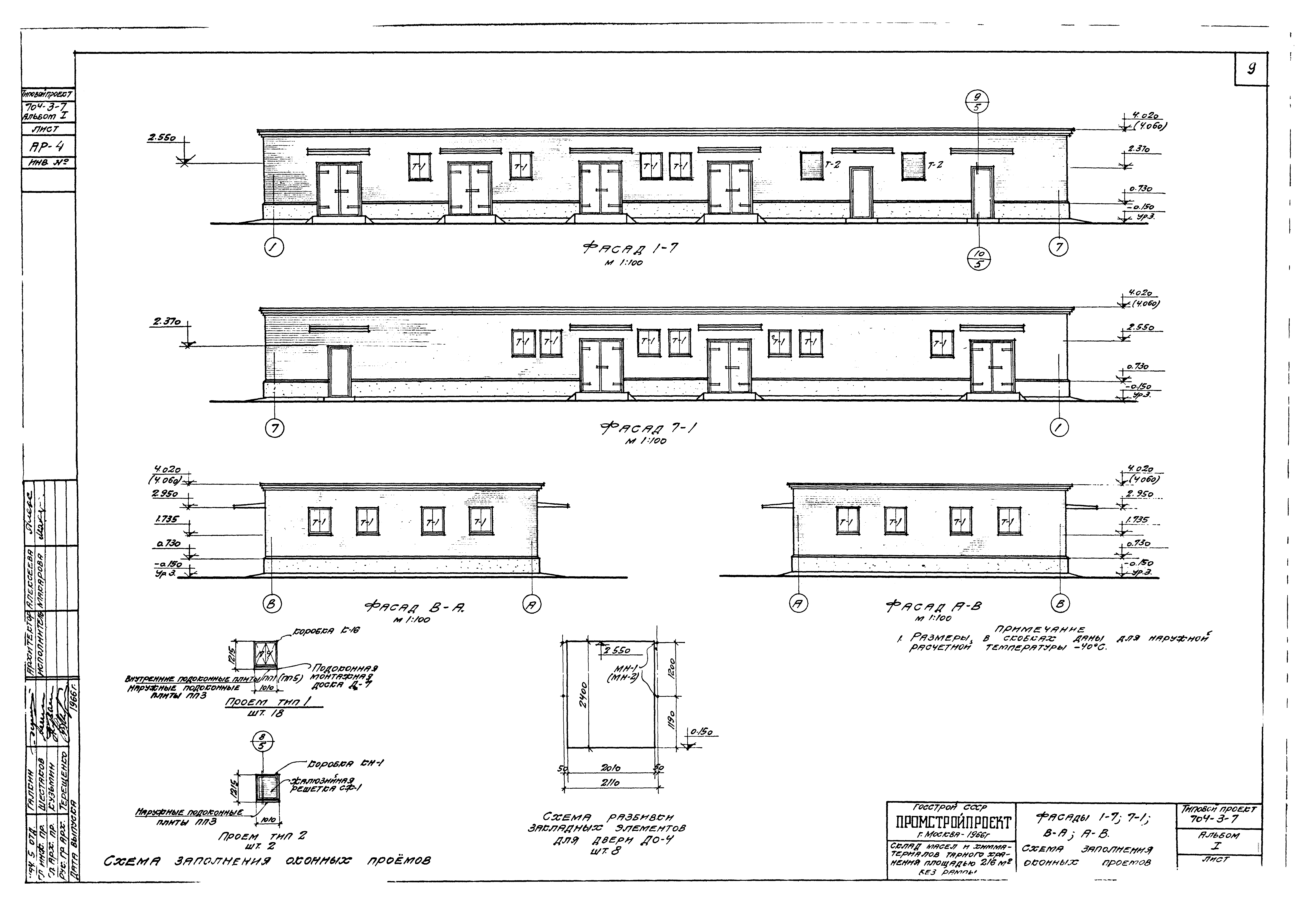
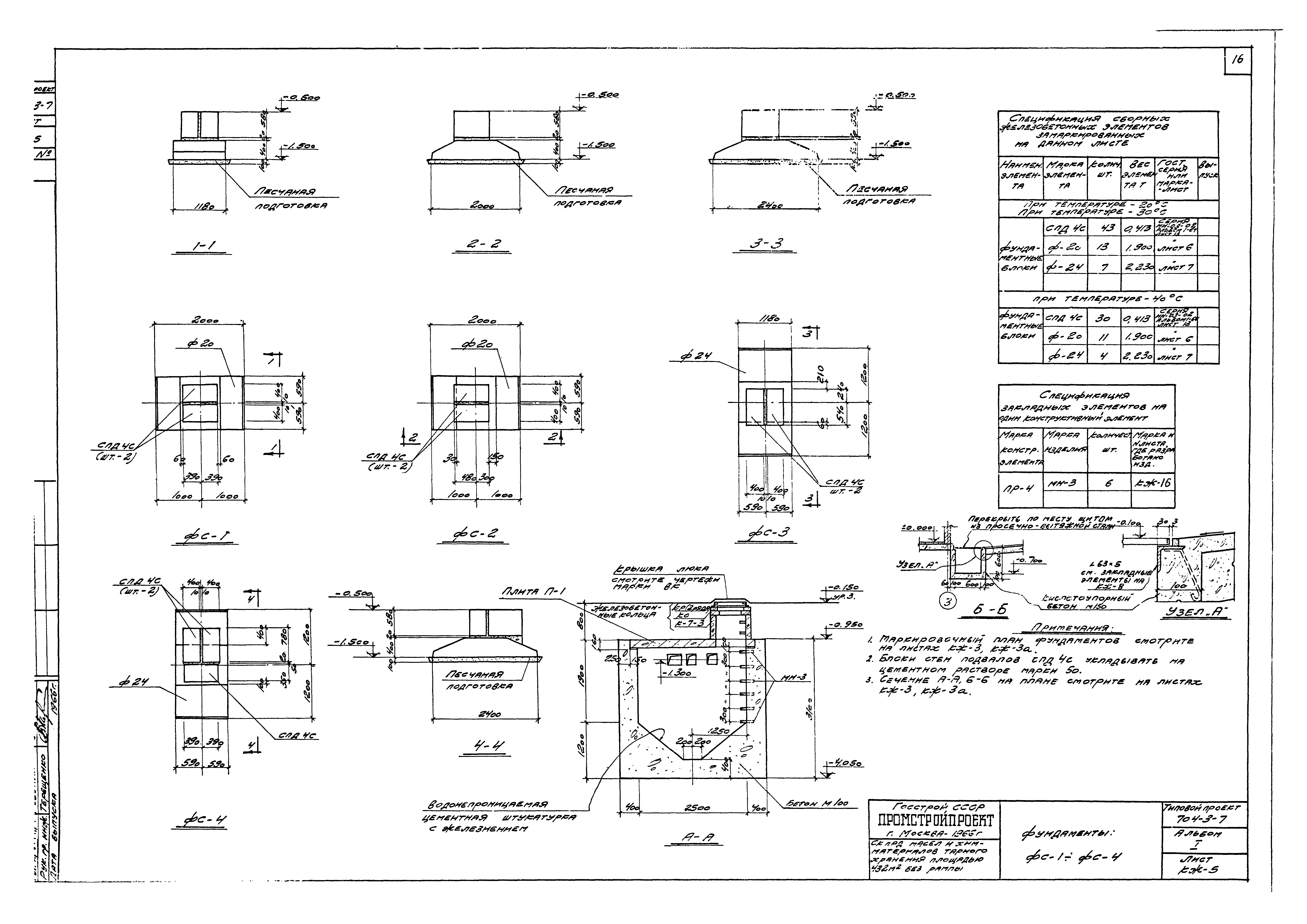
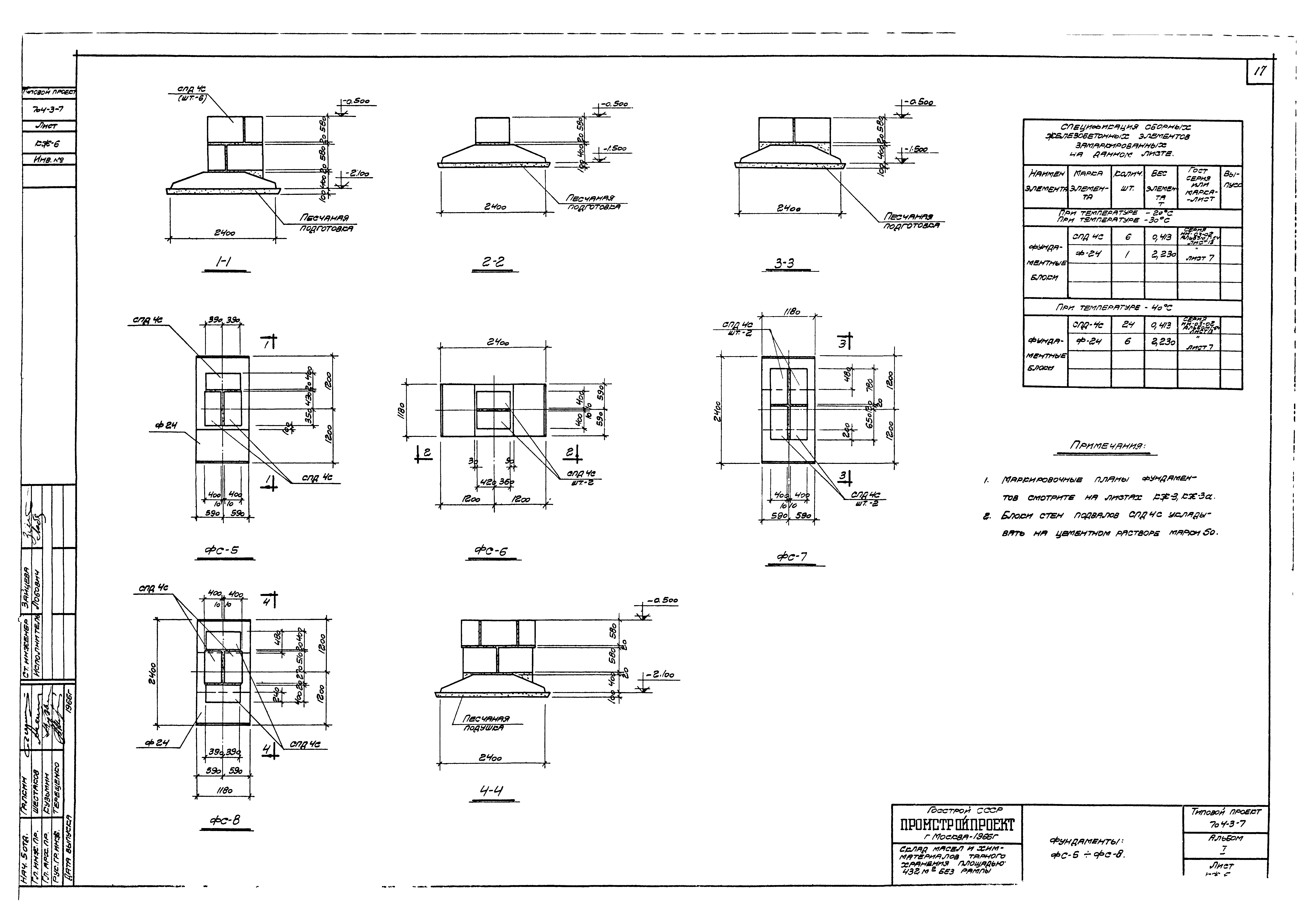
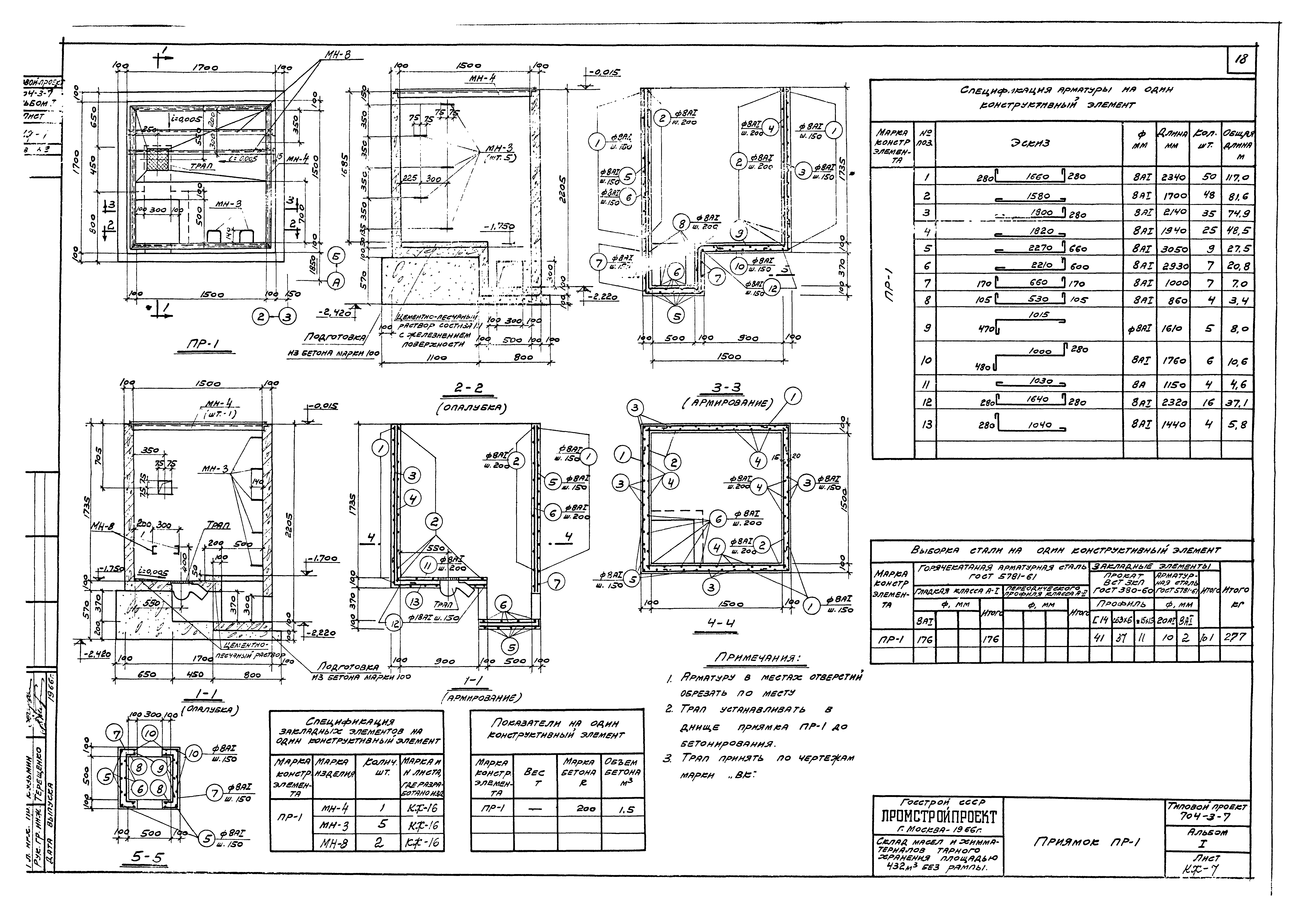
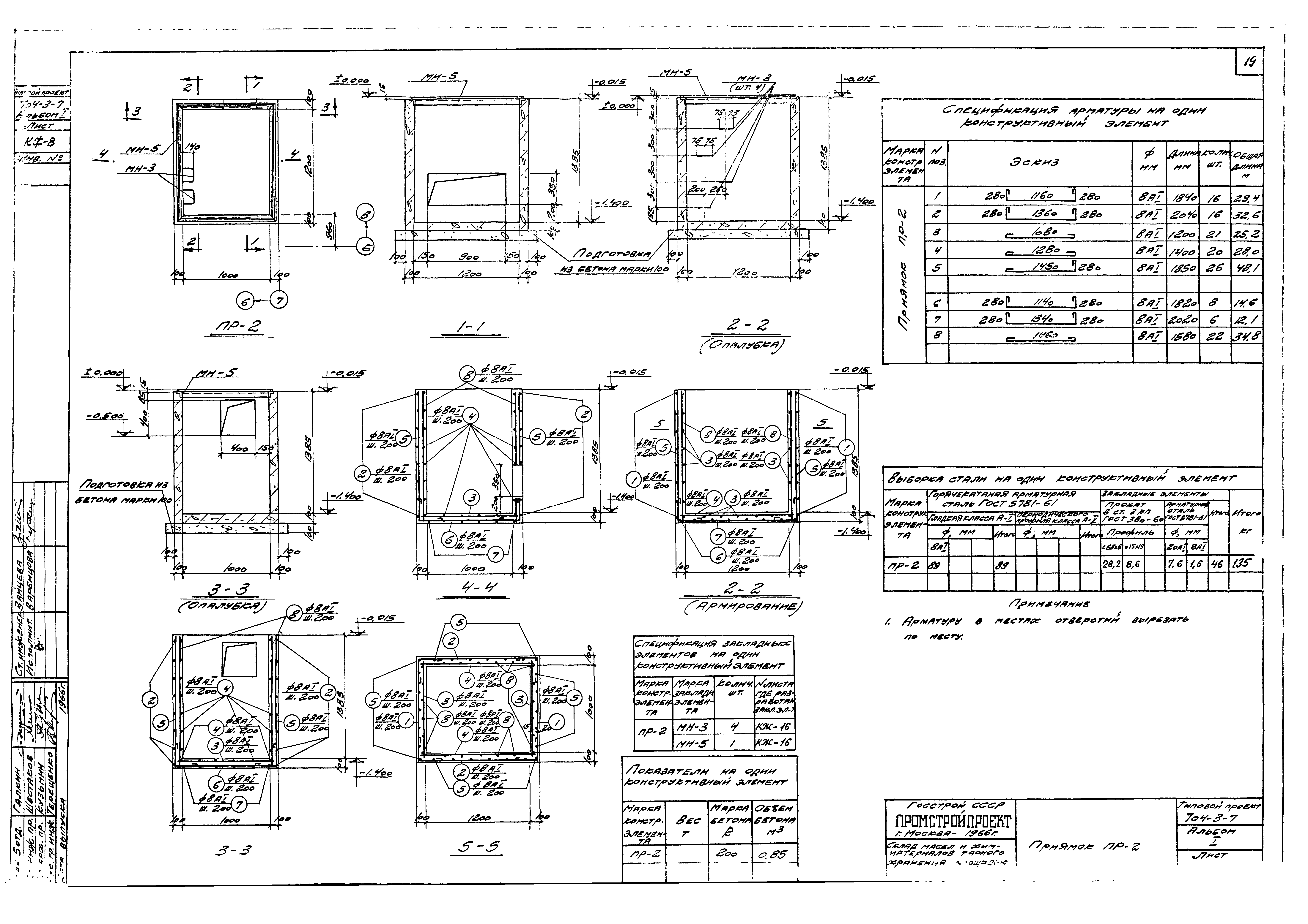
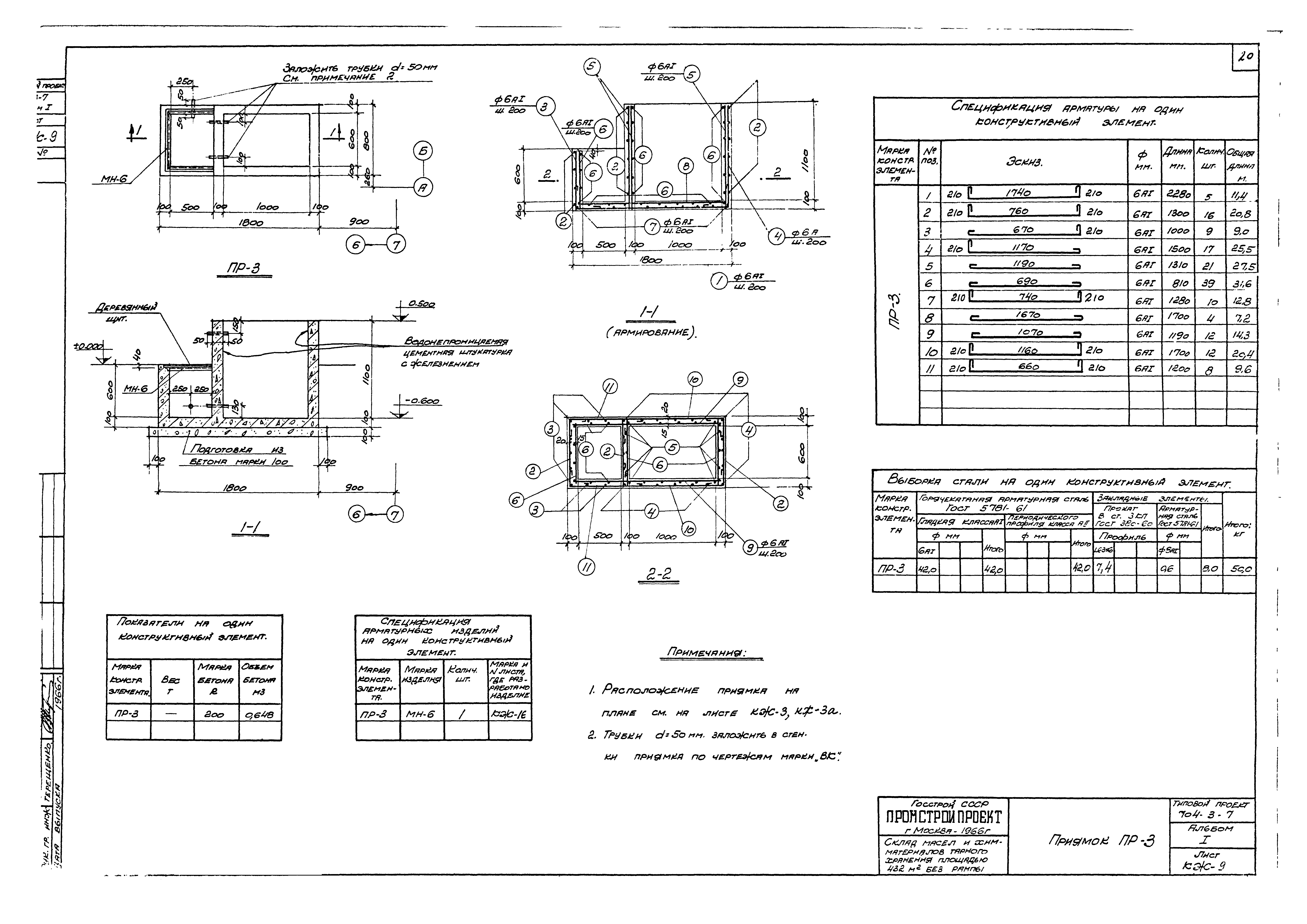
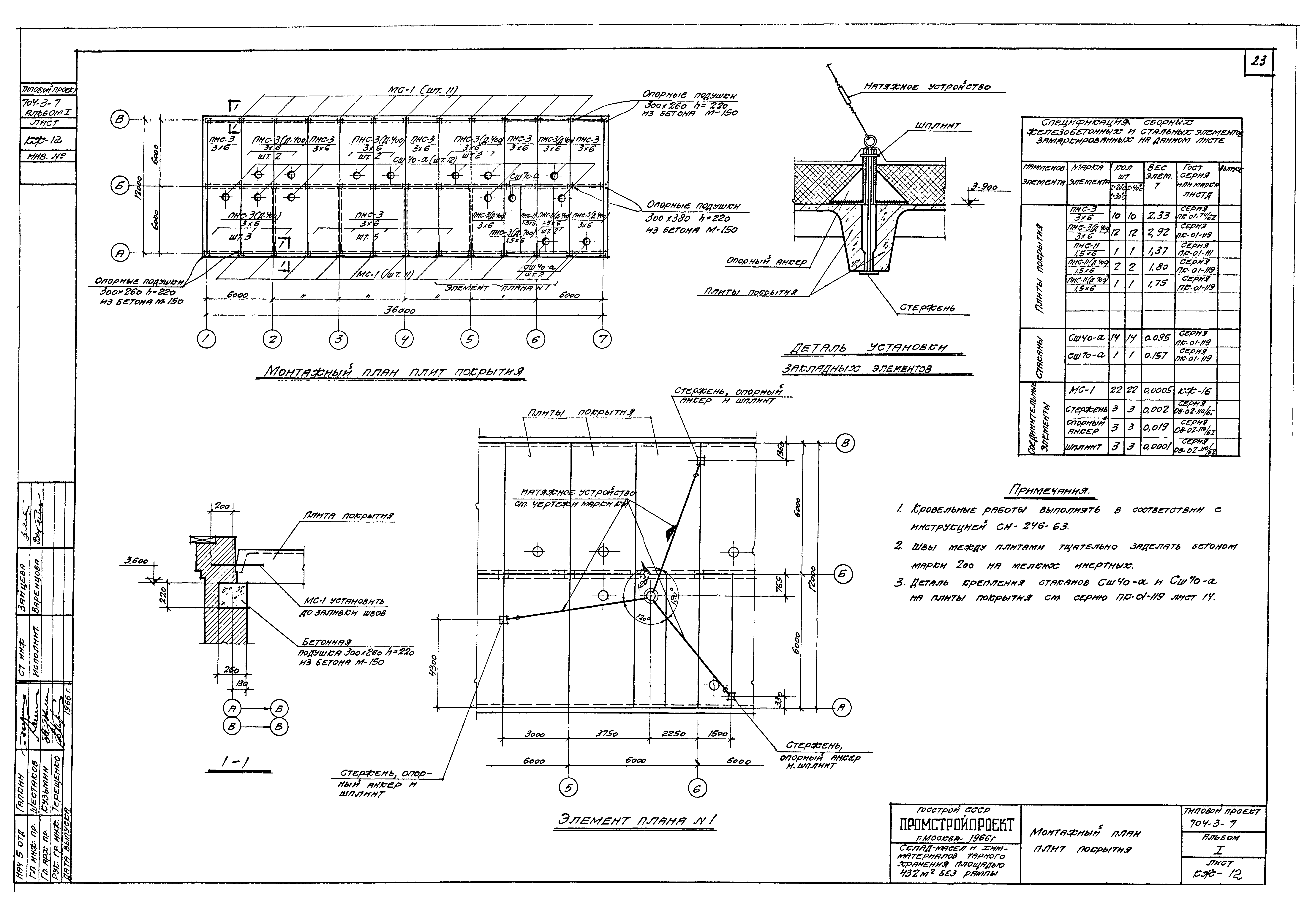
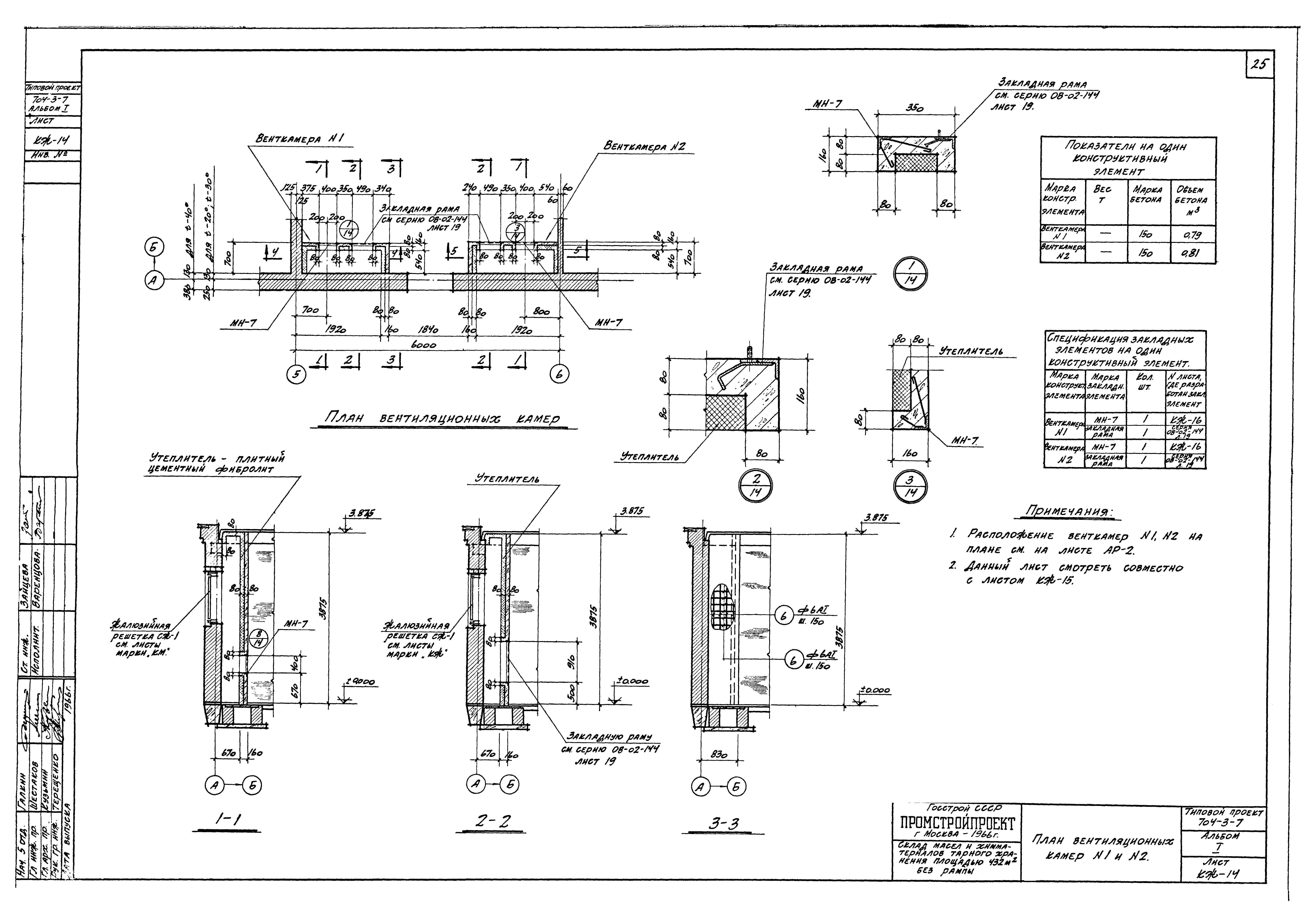
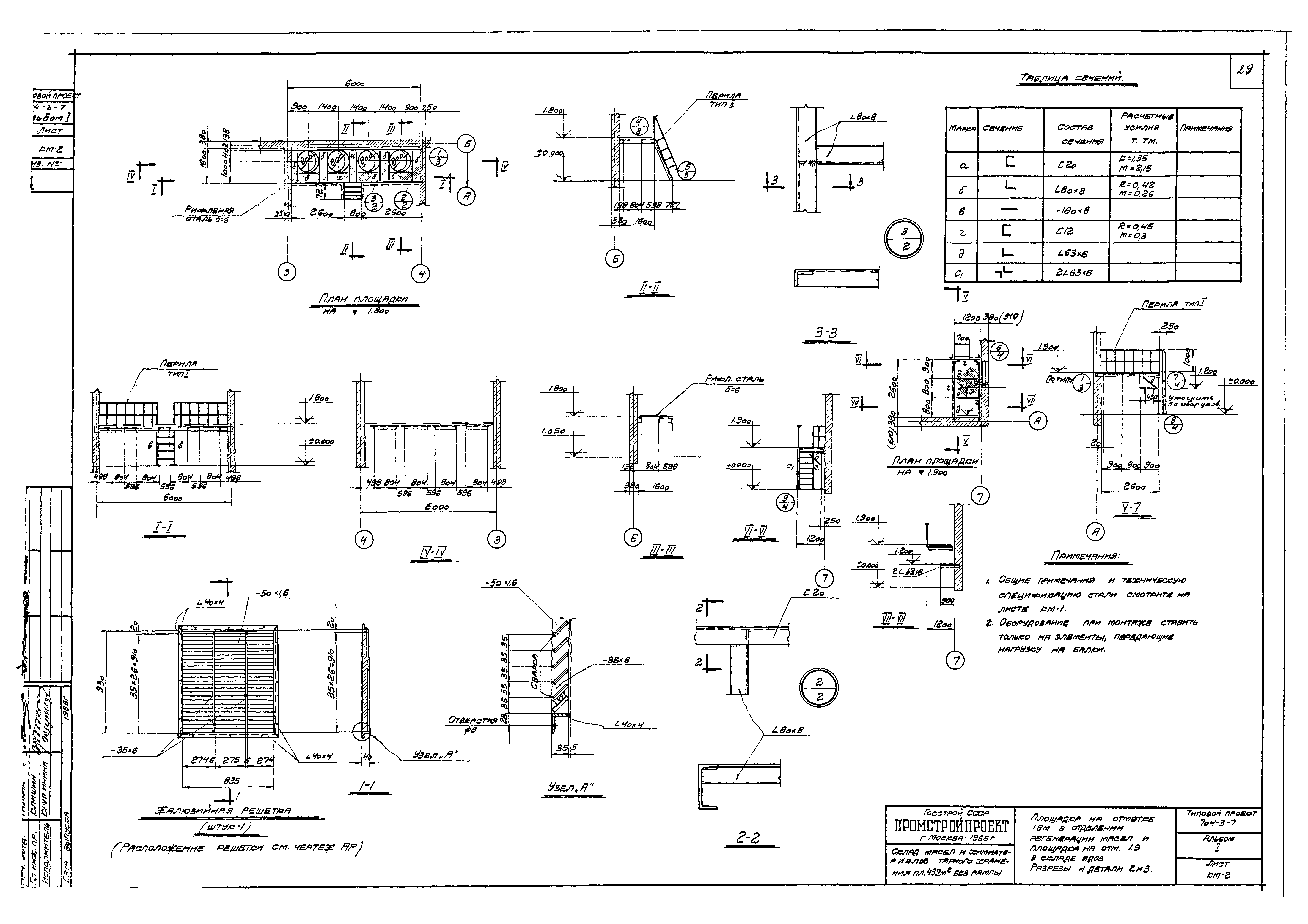
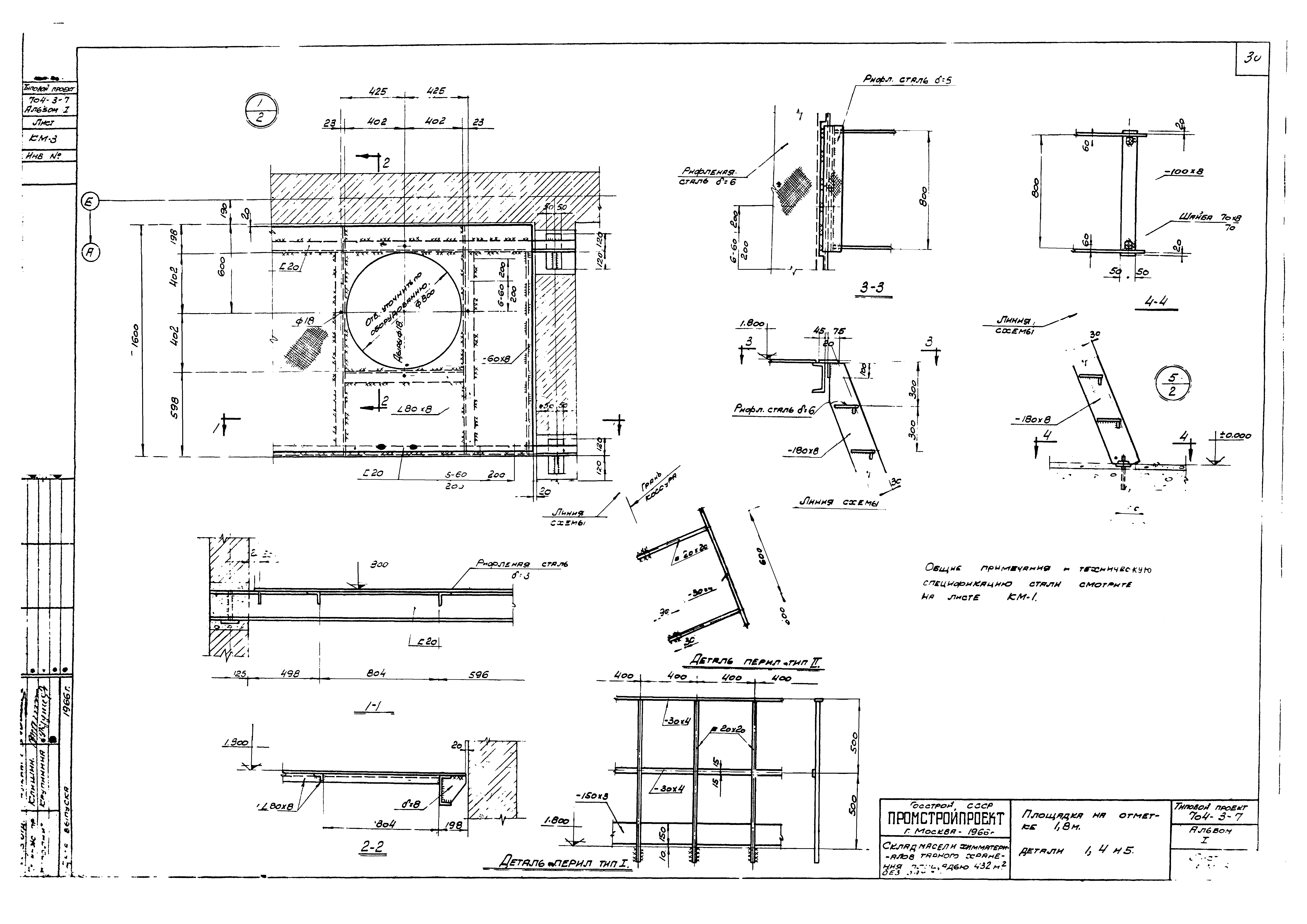
Скачать Типовой проект 704-3-7 Альбом I. Архитектурно-строительная и санитарно-техническая частиДата актуализации: 01.01.2021 Типовой проект 704-3-7
Альбом I. Архитектурно-строительная и санитарно-техническая части| Обозначение: | Типовой проект 704-3-7 | | Обозначение англ: | 704-3-7 | | Статус: | не действует | | Название рус.: | Альбом I. Архитектурно-строительная и санитарно-техническая части | | Дата добавления в базу: | 01.09.2013 | | Дата актуализации: | 01.01.2021 | | Разработан: | ГПИ Промстройпроект
| | Утверждён: | 10.07.1967 Гипроавтопром (92)
|
                                                                
|