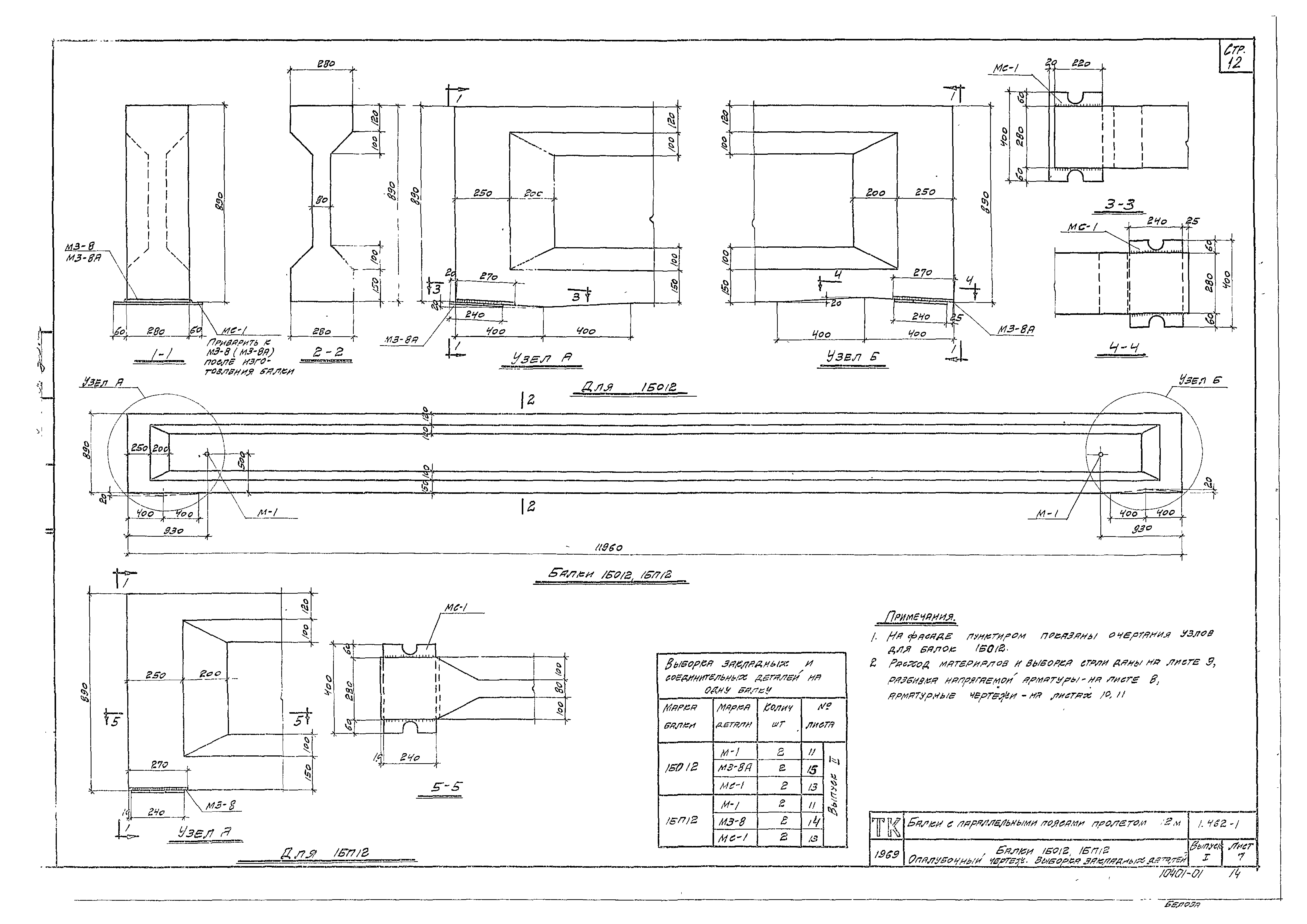
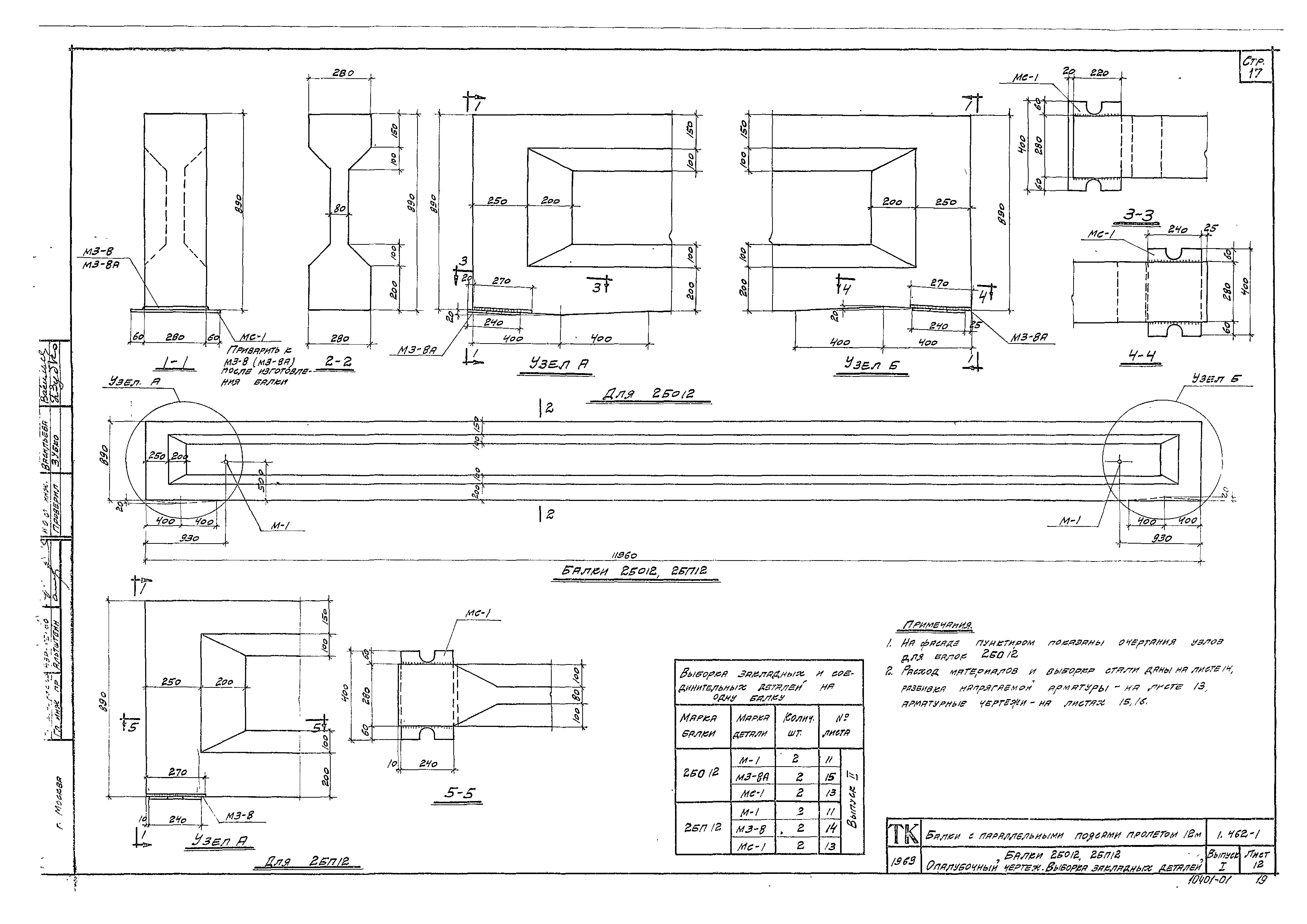
Скачать Серия 1.462-1 Выпуск I. Материалы для проектирования покрытий с шагом балок 6 м и рабочие чертежи балокДата актуализации: 01.01.2021
|
| Обозначение: | Серия 1.462-1 |
| Обозначение англ: | Series 1.462-1 |
| Статус: | не действует |
| Название рус.: | Выпуск I. Материалы для проектирования покрытий с шагом балок 6 м и рабочие чертежи балок |
| Дата добавления в базу: | 01.09.2013 |
| Дата актуализации: | 01.01.2021 |
| Дата введения: | 01.03.1970 |
| Дата окончания срока действия: | 01.11.1982 |
| Разработан: | Промстройпроект Госстроя СССР НИИЖБ |
| Утверждён: | 29.12.1969 Госстрой СССР (Государственный комитет Совета Министров СССР по делам строительства) (USSR Gosstroy 143) |
| Чем заменён: |
























