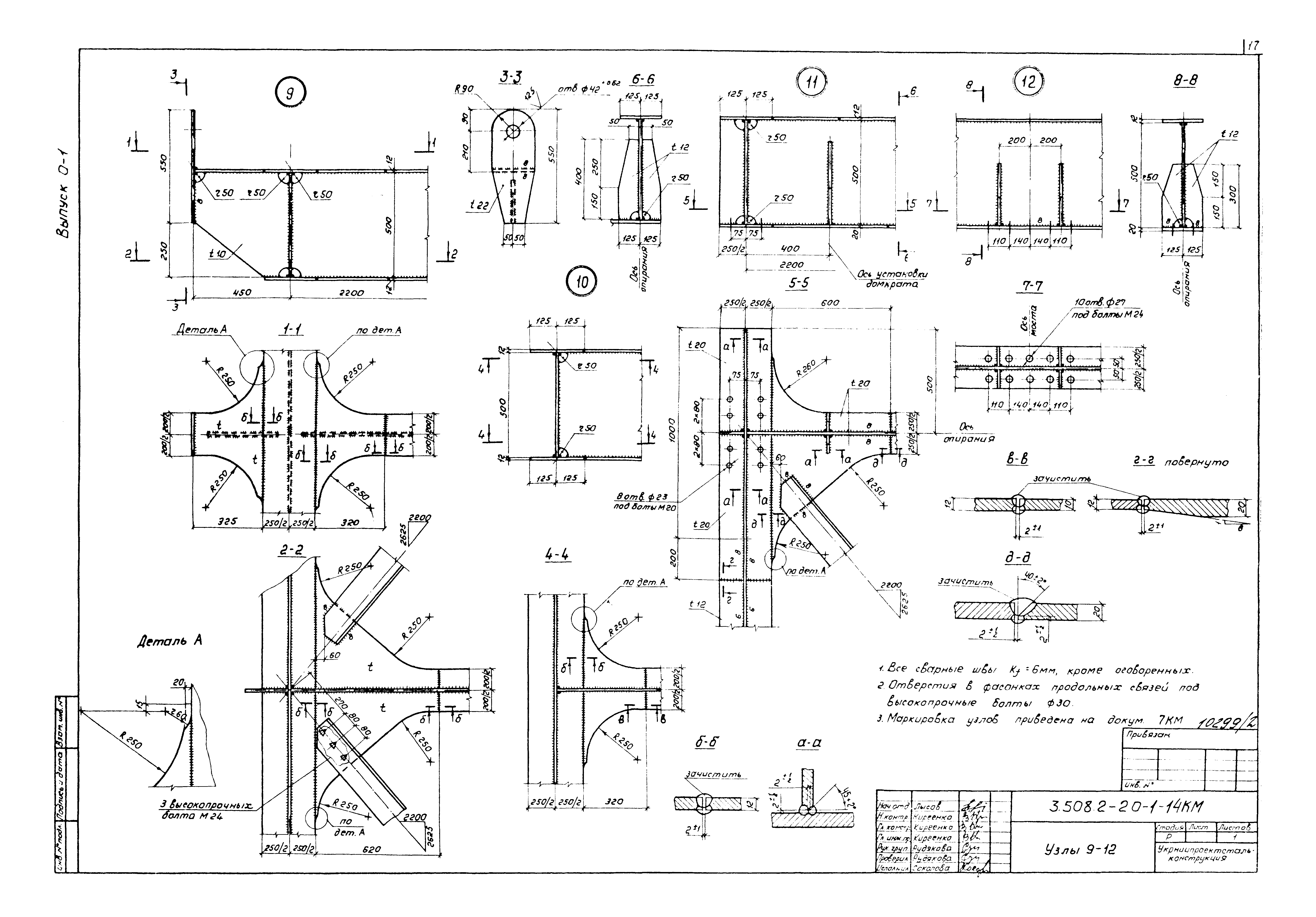
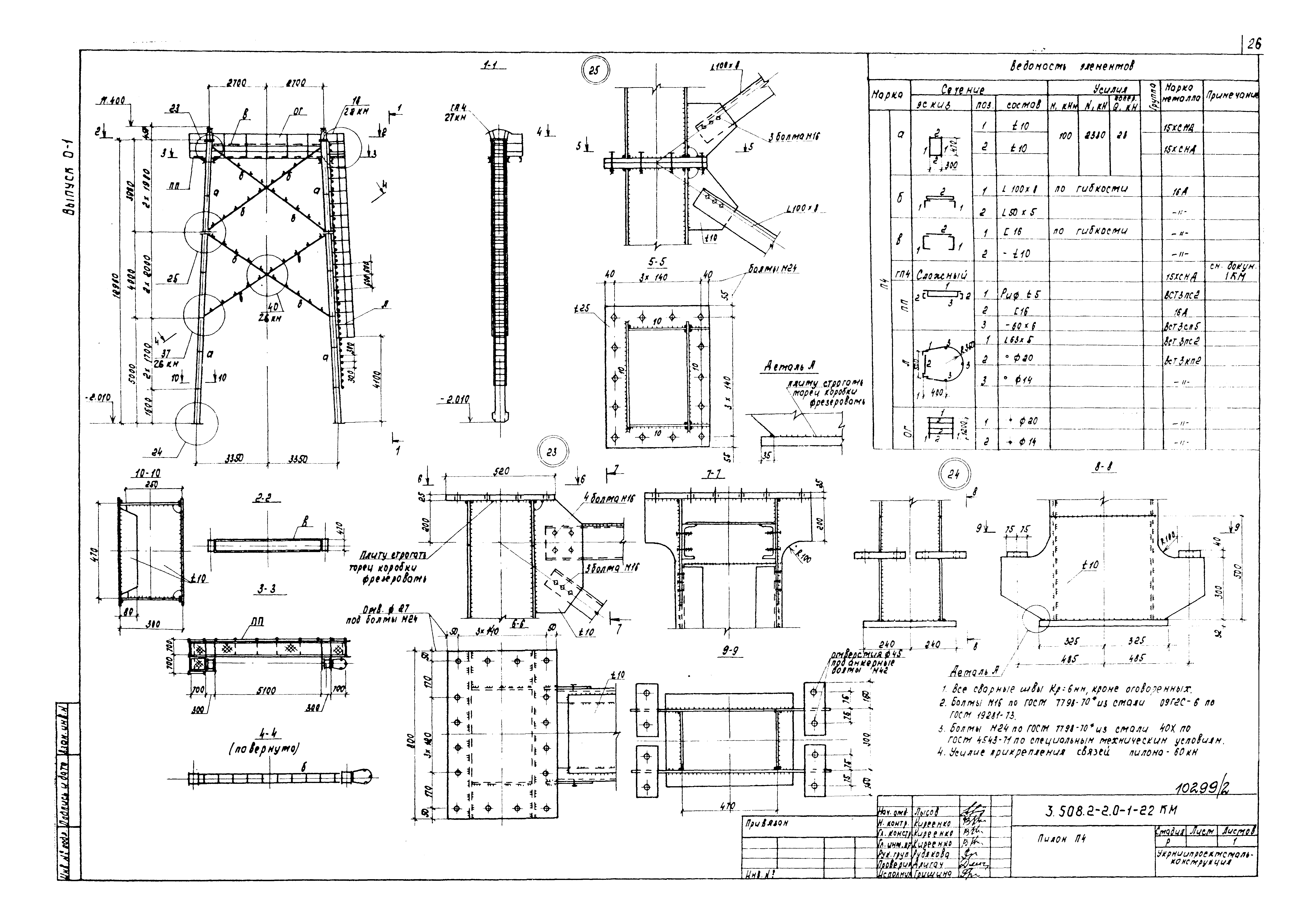
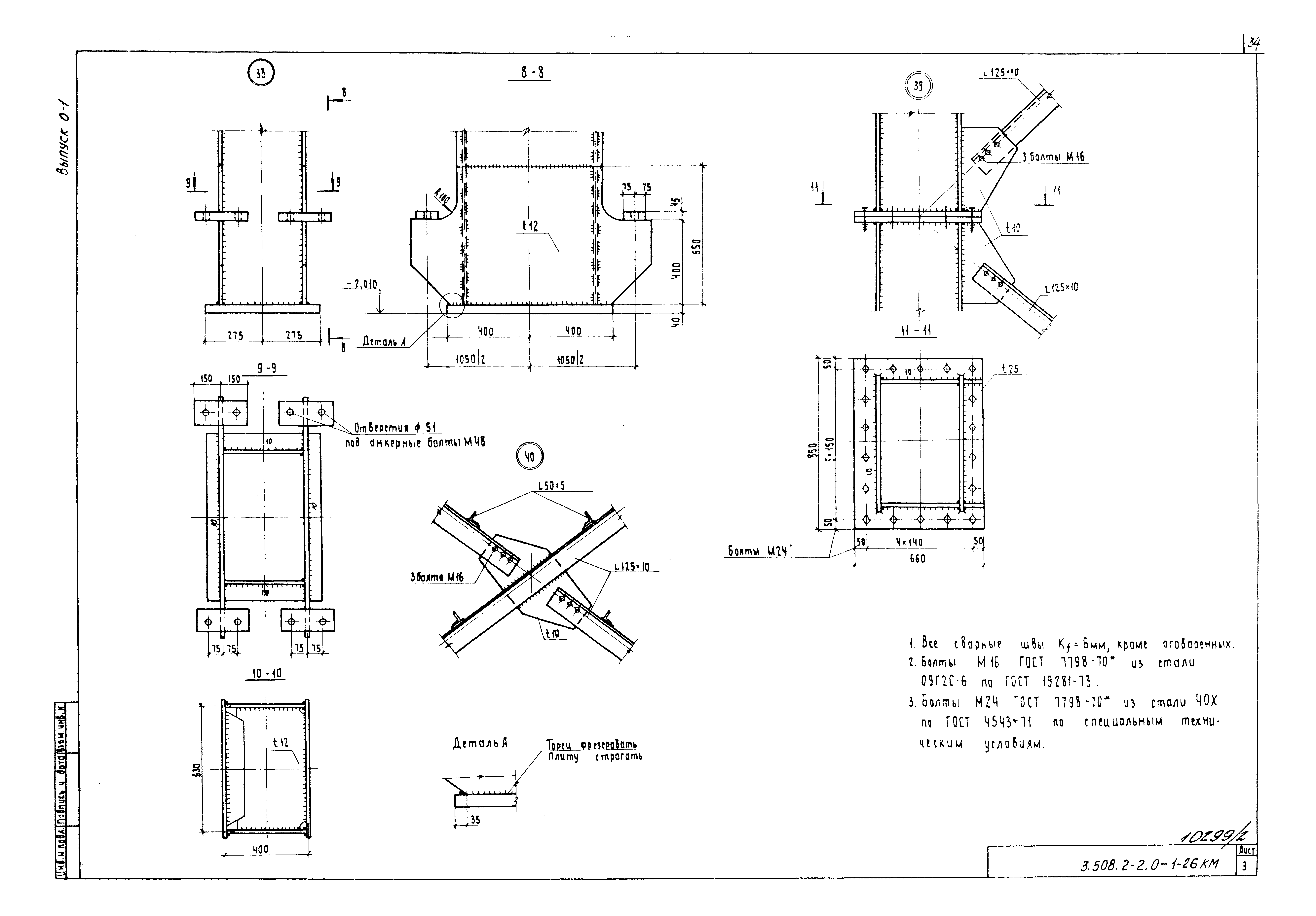
Скачать Серия 3.508.2-2 Выпуск 0-1. Пролетные строения с железобетонной пешеходной частью. Рабочие чертежи КМДата актуализации: 01.01.2021
|
| Обозначение: | Серия 3.508.2-2 |
| Обозначение англ: | Series 3.508.2-2 |
| Статус: | не определен законодательством |
| Название рус.: | Выпуск 0-1. Пролетные строения с железобетонной пешеходной частью. Рабочие чертежи КМ |
| Дата добавления в базу: | 01.09.2013 |
| Дата актуализации: | 01.01.2021 |
| Дата введения: | 10.03.1990 |
| Дата окончания срока действия: | 30.06.2003 |
| Разработан: | Укрниипроектстальконструкция |
| Утверждён: | 15.11.1988 Госстрой СССР (Государственный комитет Совета Министров СССР по делам строительства) (USSR Gosstroy 6/6-2354) |
















































































