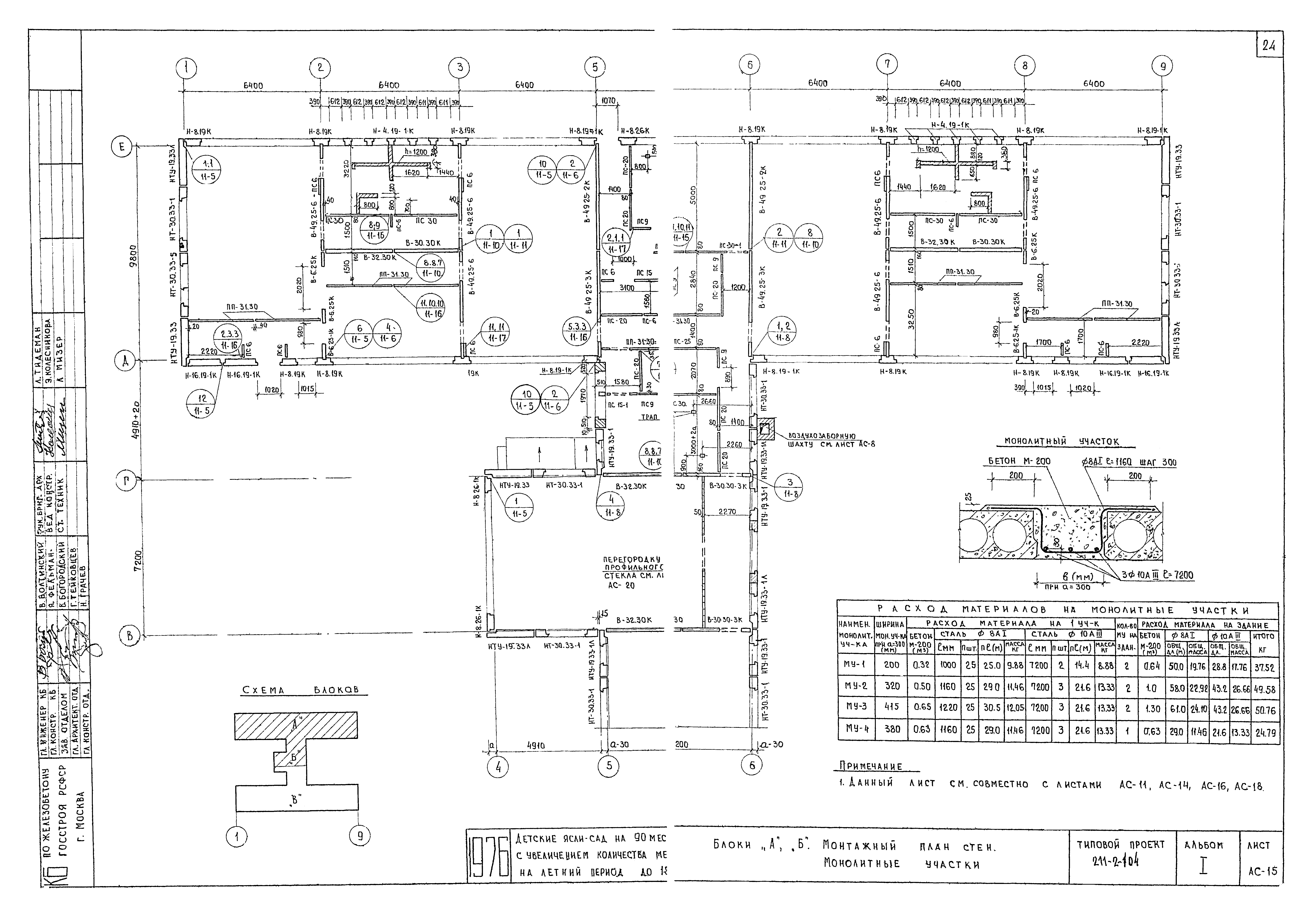
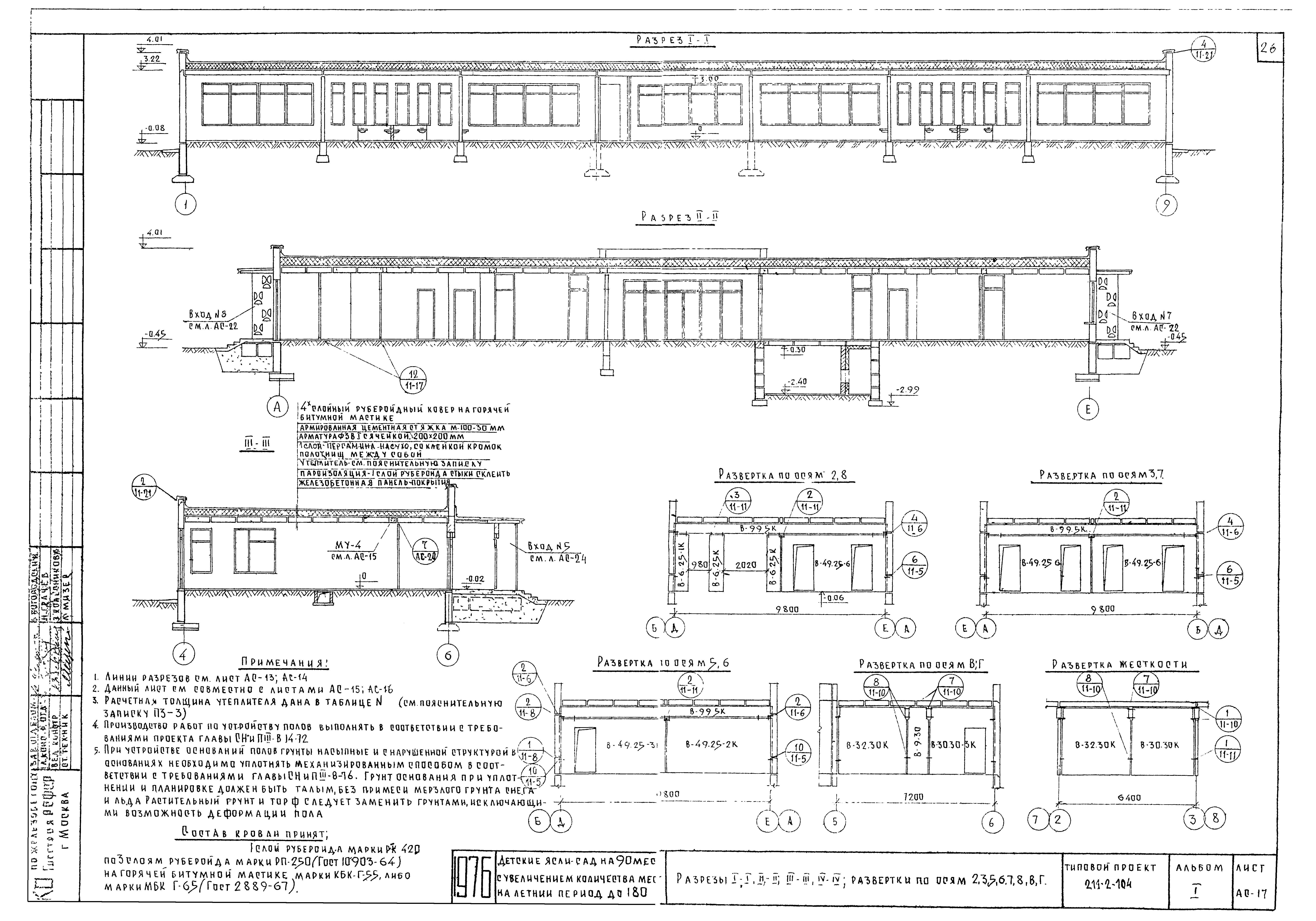
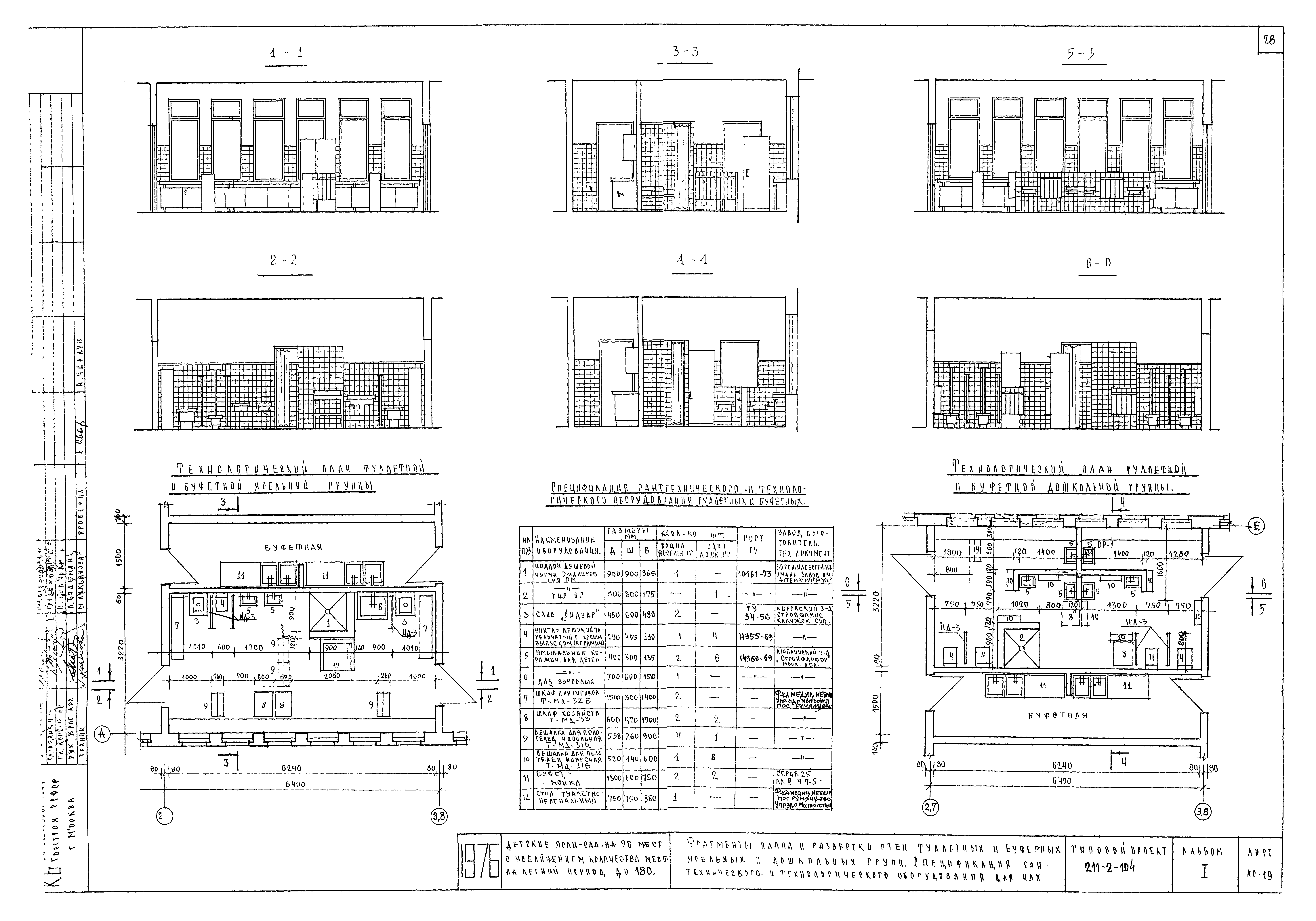
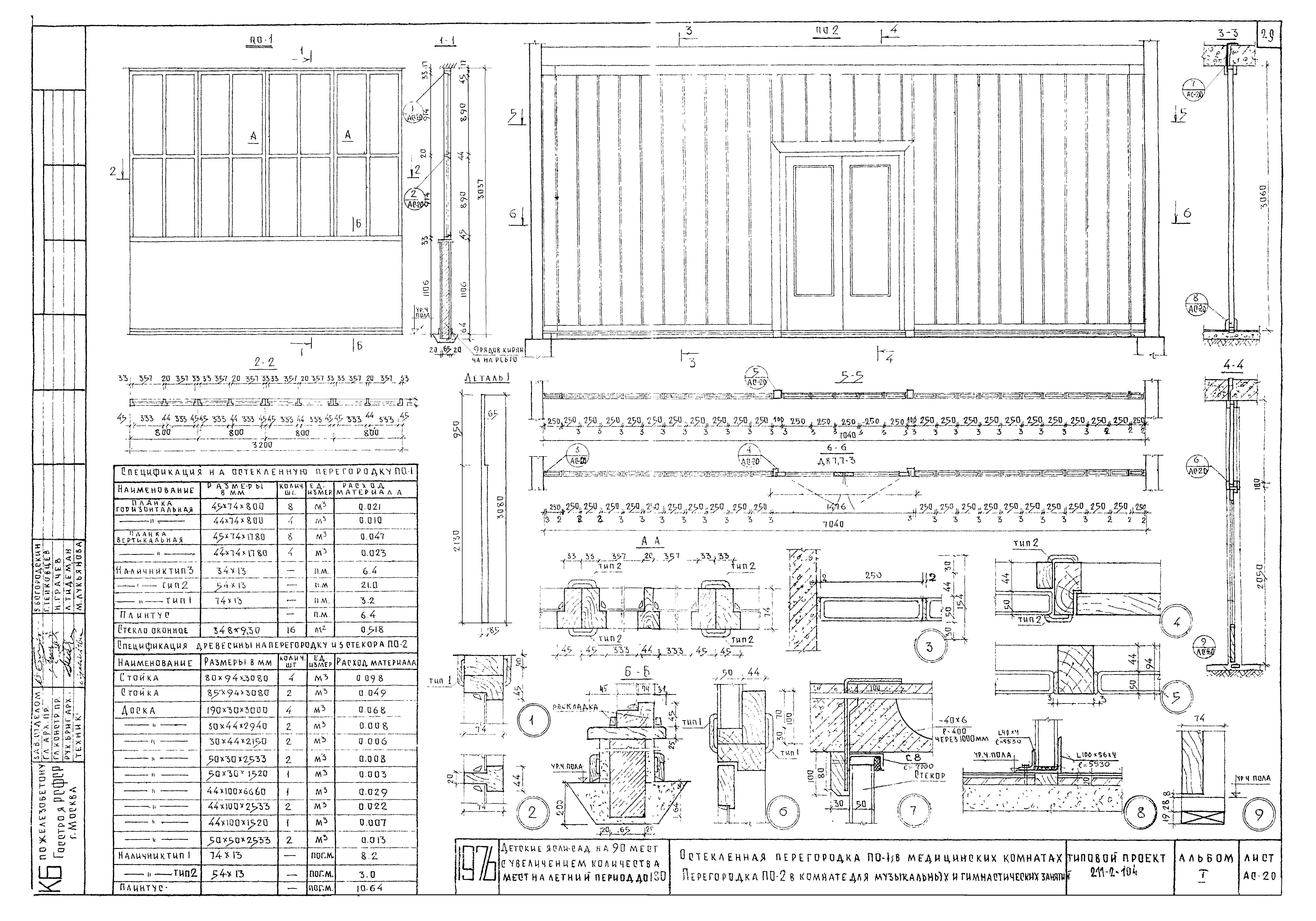
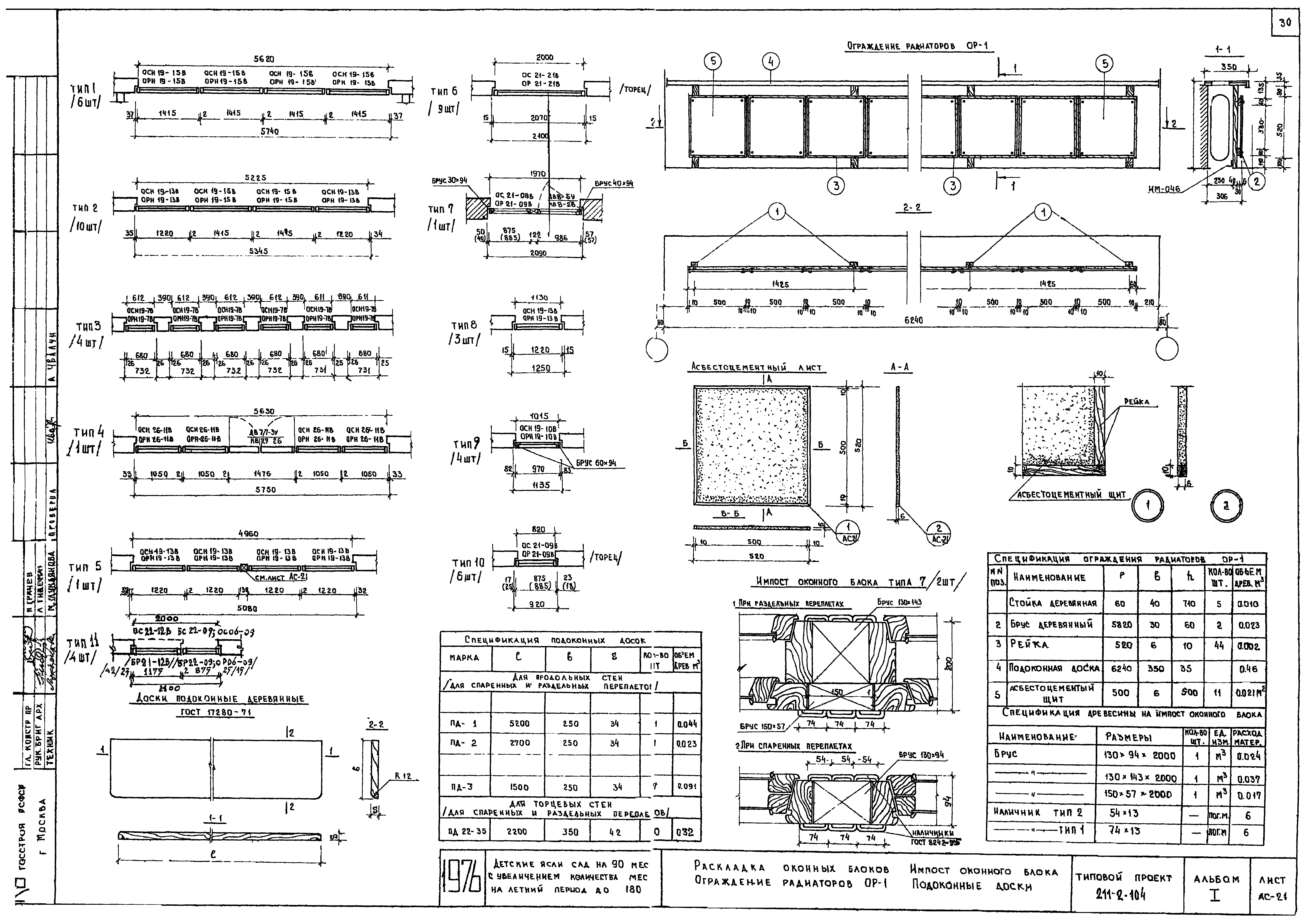
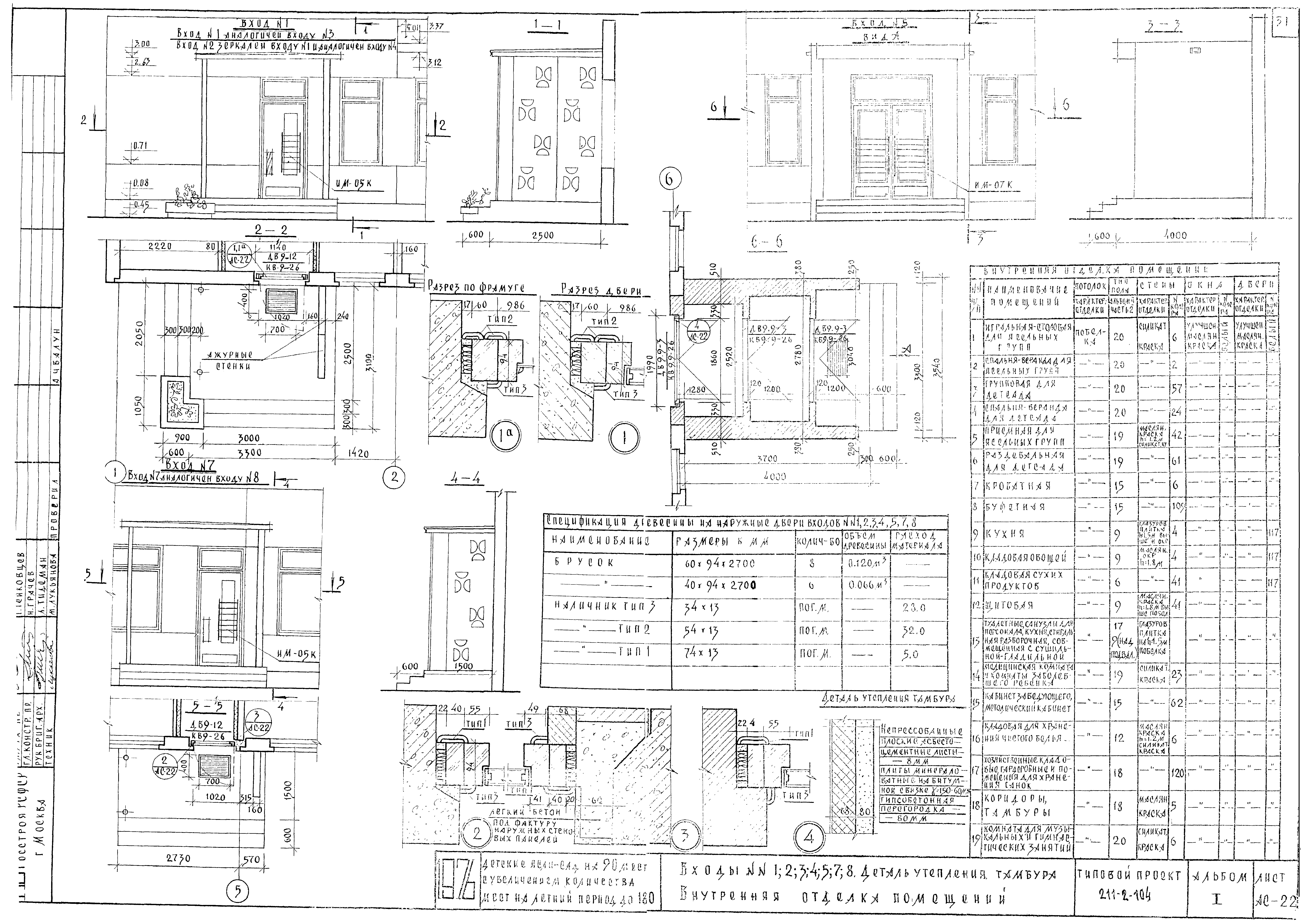
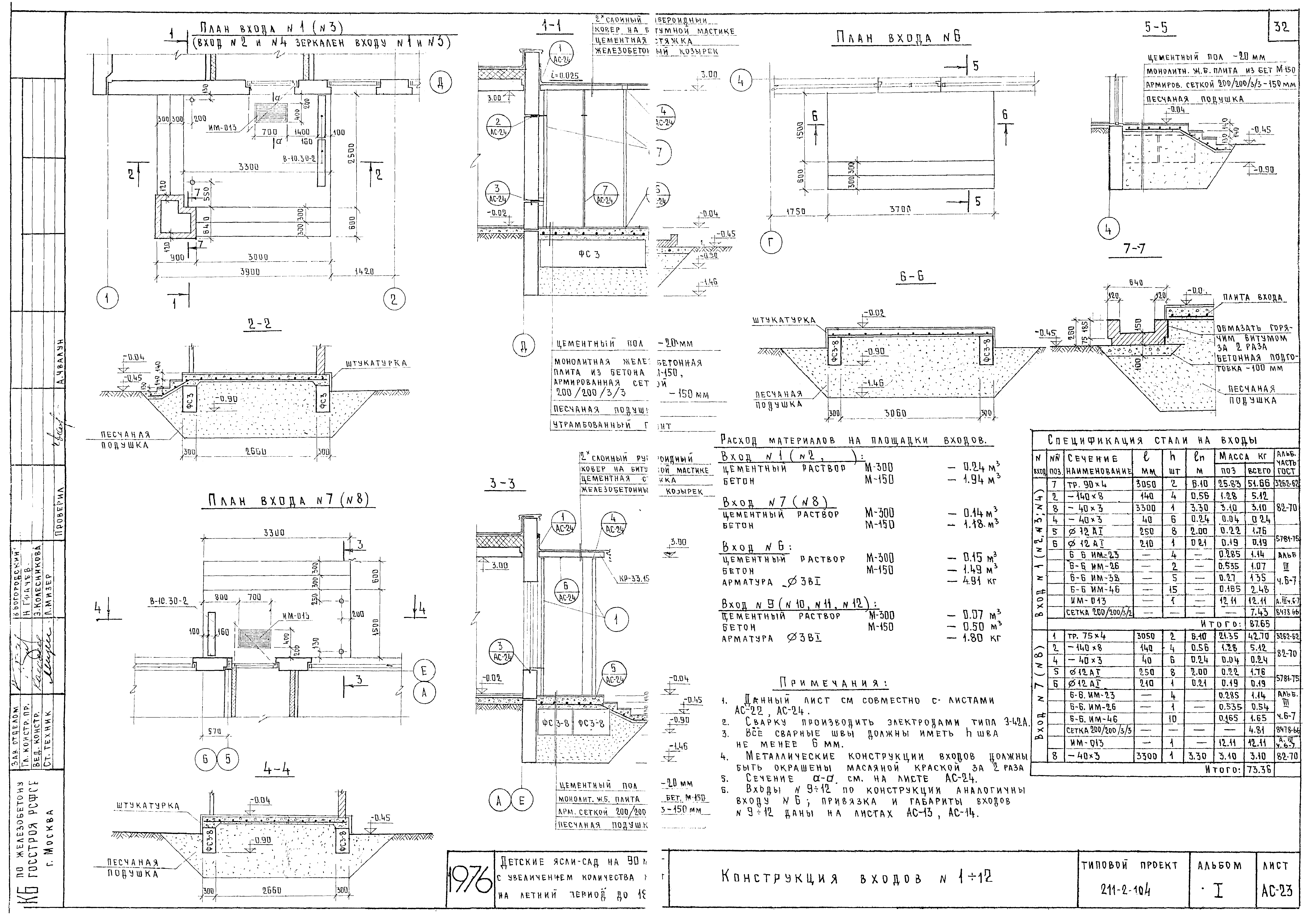
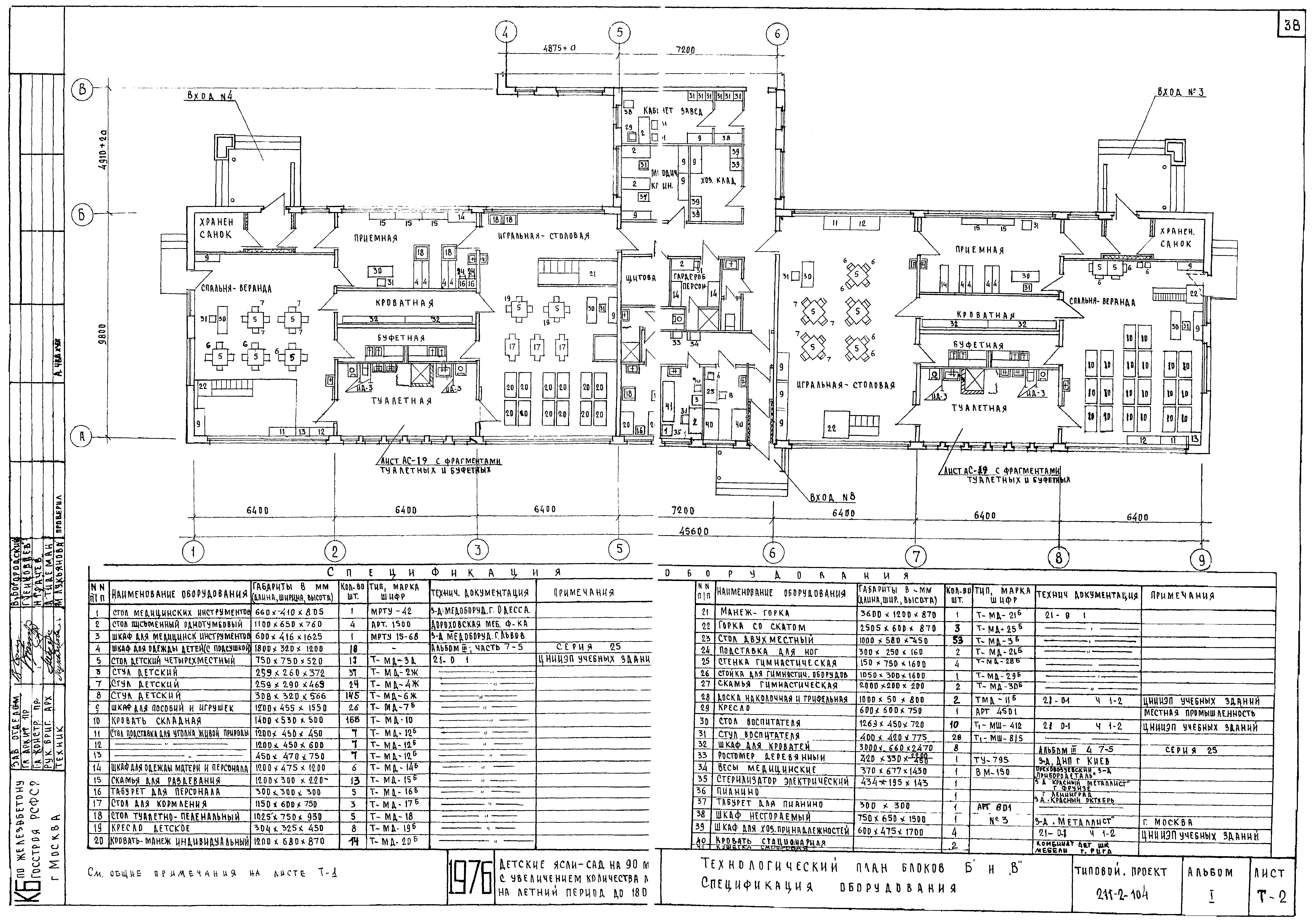
Скачать Типовой проект 211-2-104 Альбом I. Архитектурно-строительные и технологические чертежиДата актуализации: 01.01.2021
|
| Обозначение: | Типовой проект 211-2-104 |
| Обозначение англ: | 211-2-104 |
| Статус: | не определен законодательством |
| Название рус.: | Альбом I. Архитектурно-строительные и технологические чертежи |
| Дата добавления в базу: | 01.09.2013 |
| Дата актуализации: | 01.01.2021 |
| Дата введения: | 29.11.1982 |
| Дата окончания срока действия: | 30.06.2003 |
| Разработан: | КБ по железобетону им. А.А. Якушева |
| Утверждён: | 29.11.1982 КБ по железобетону им. А.А. Якушева (200) |









































