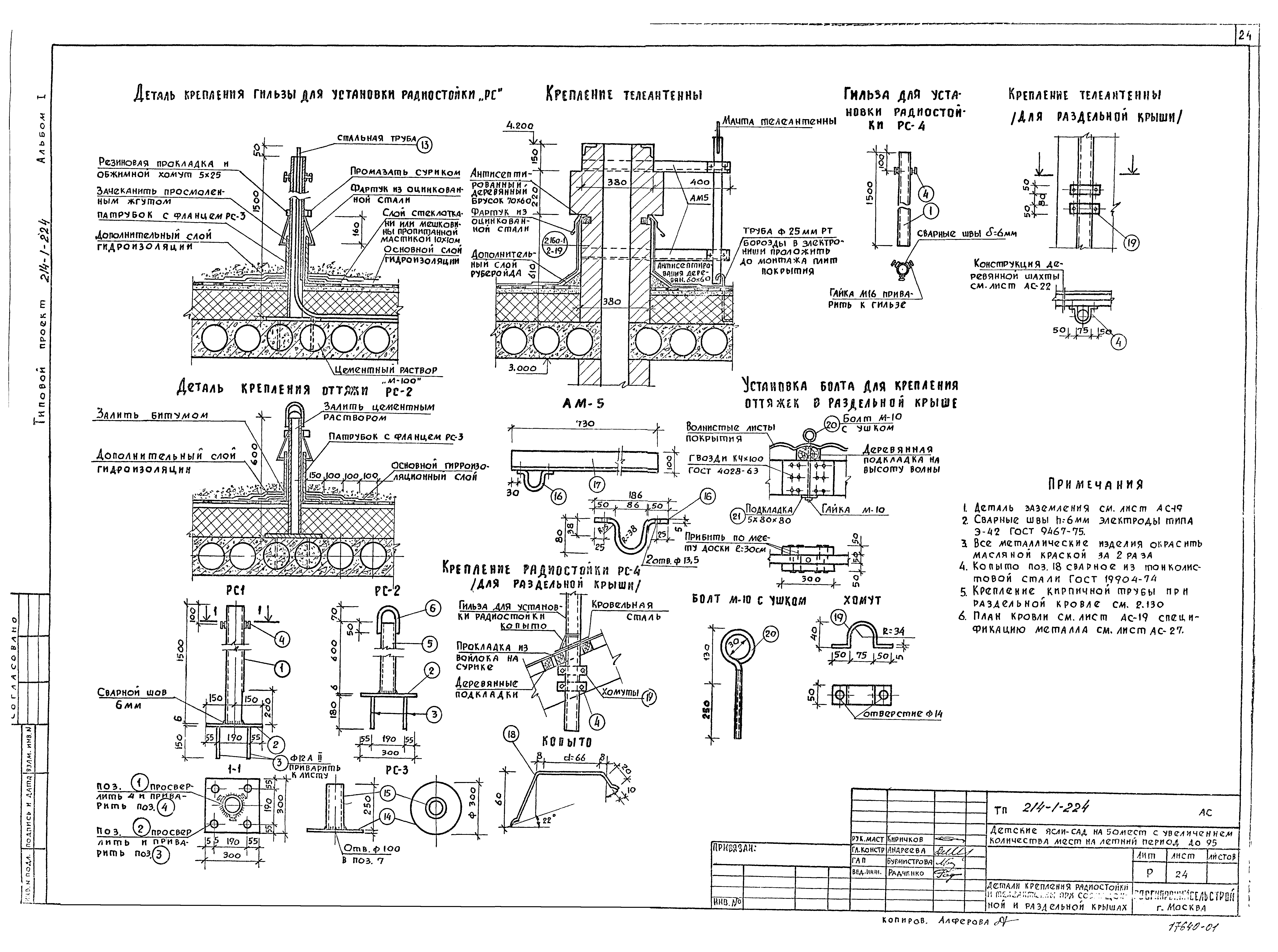
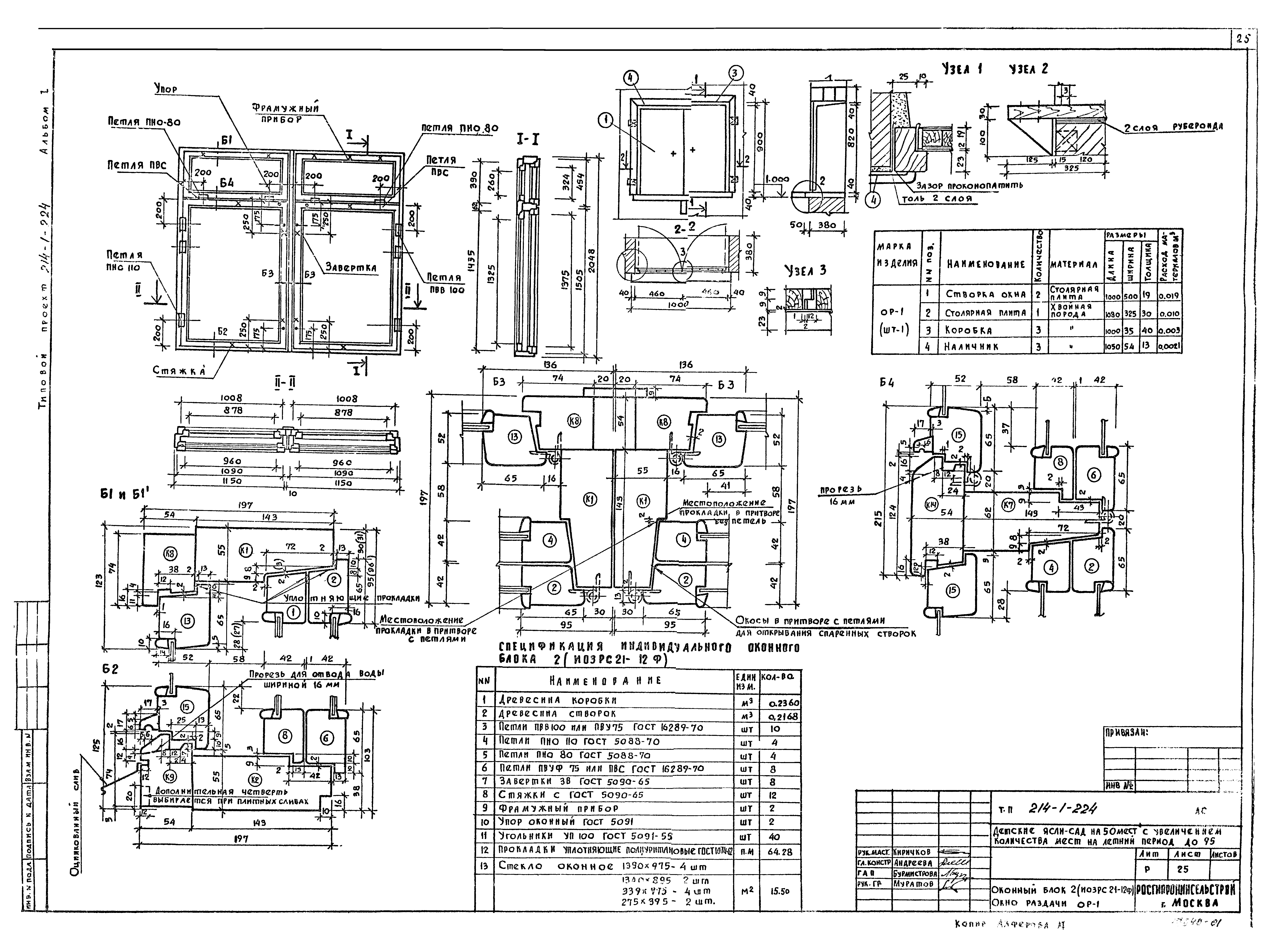
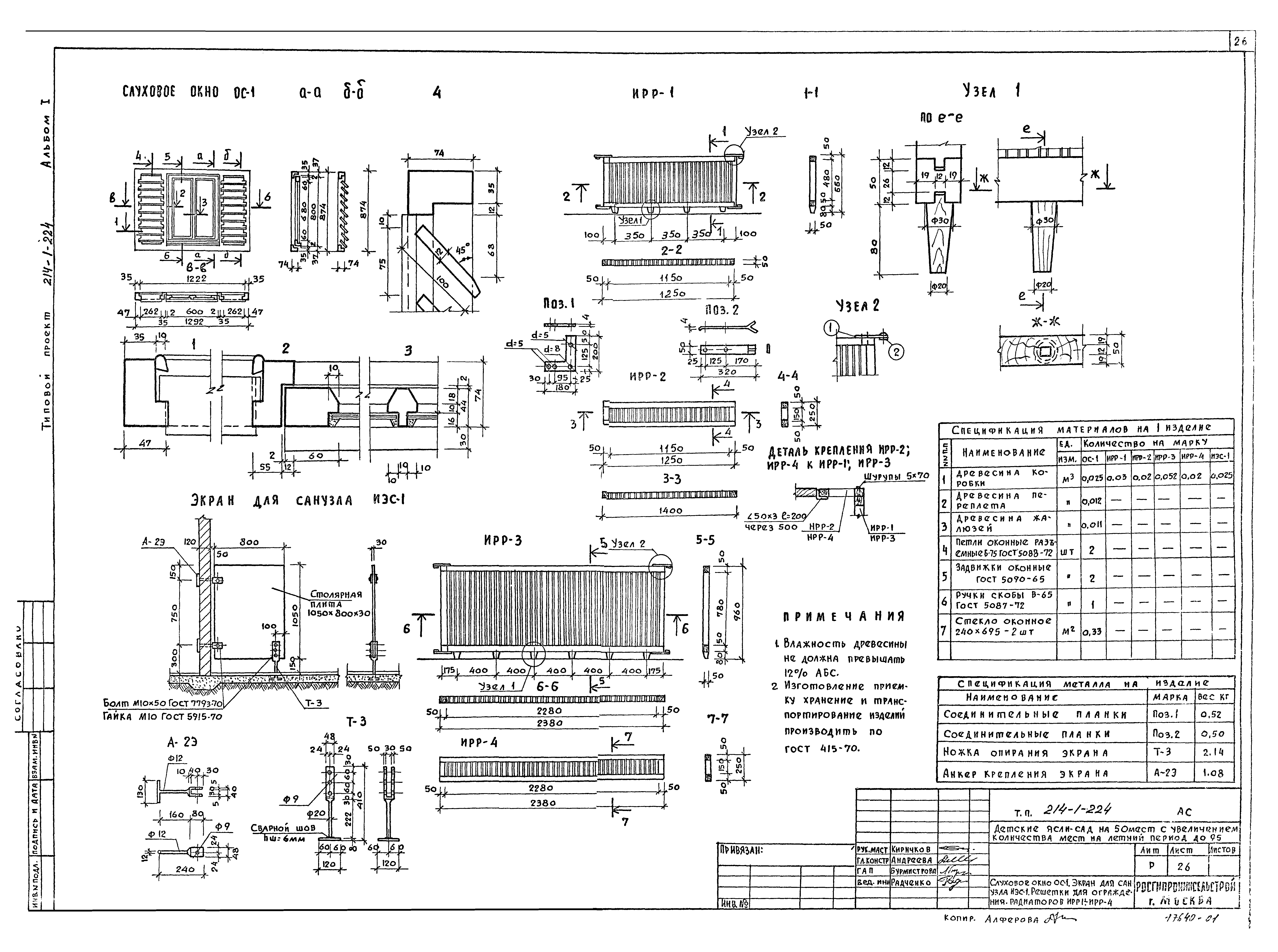
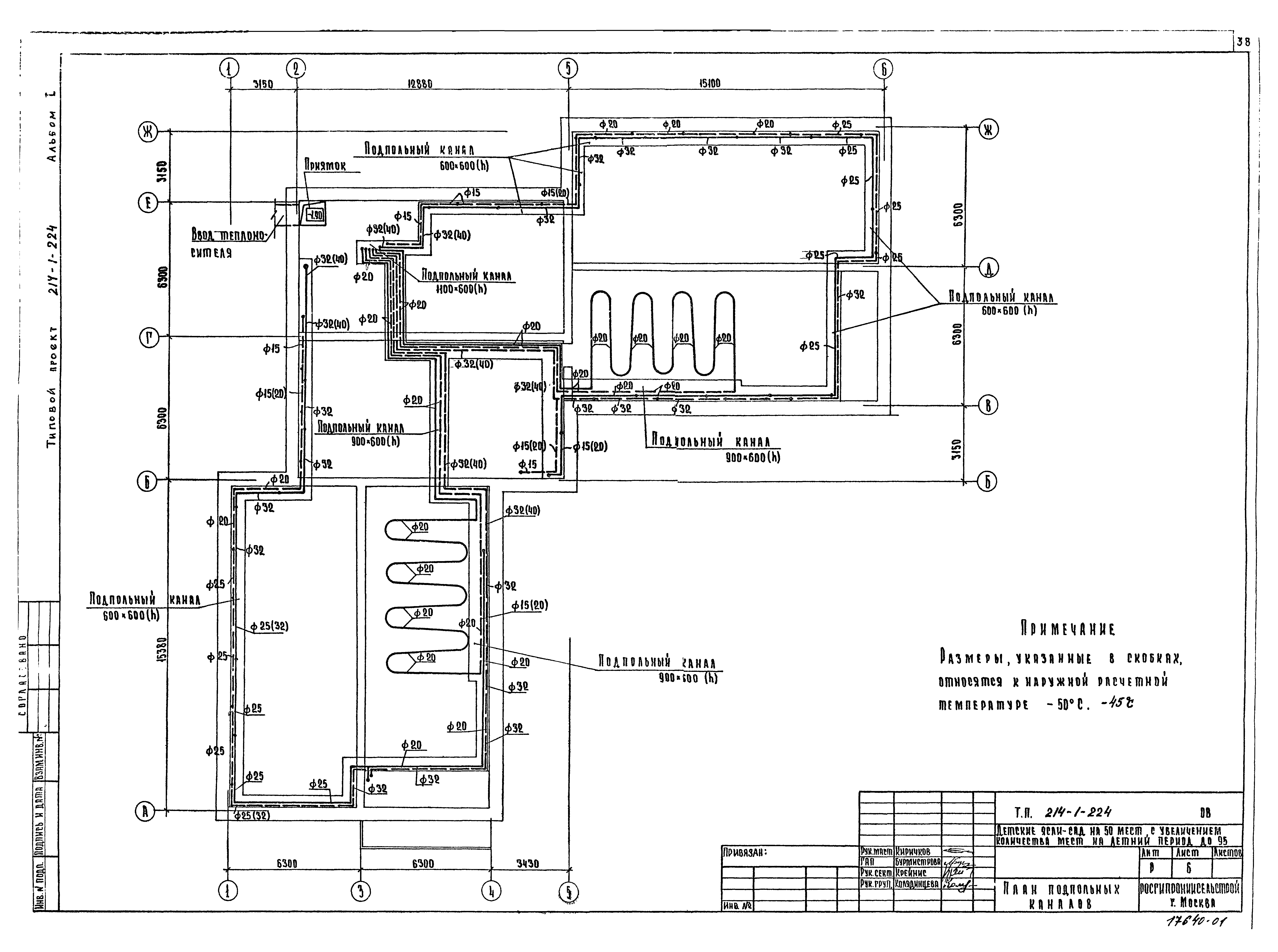
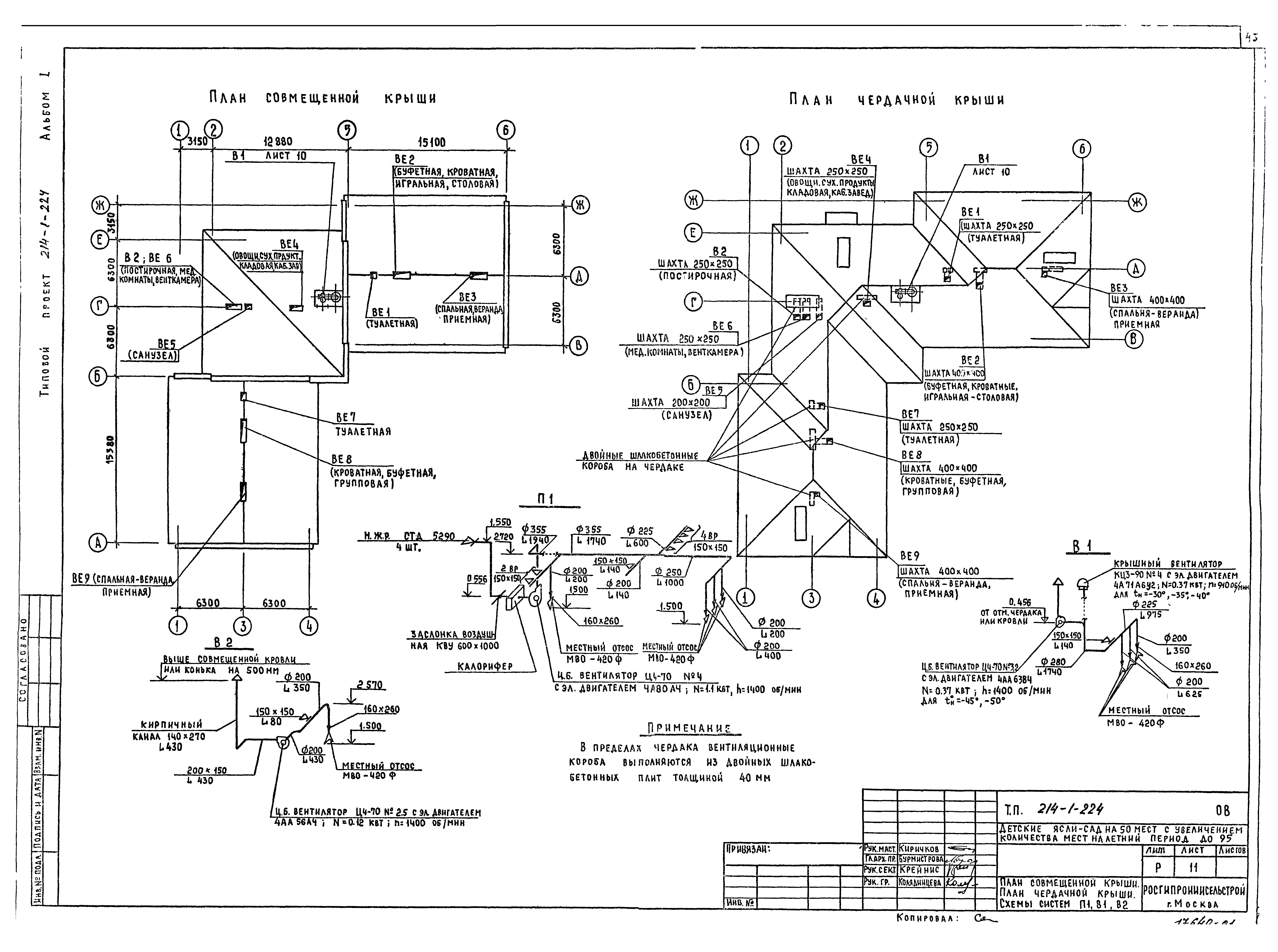
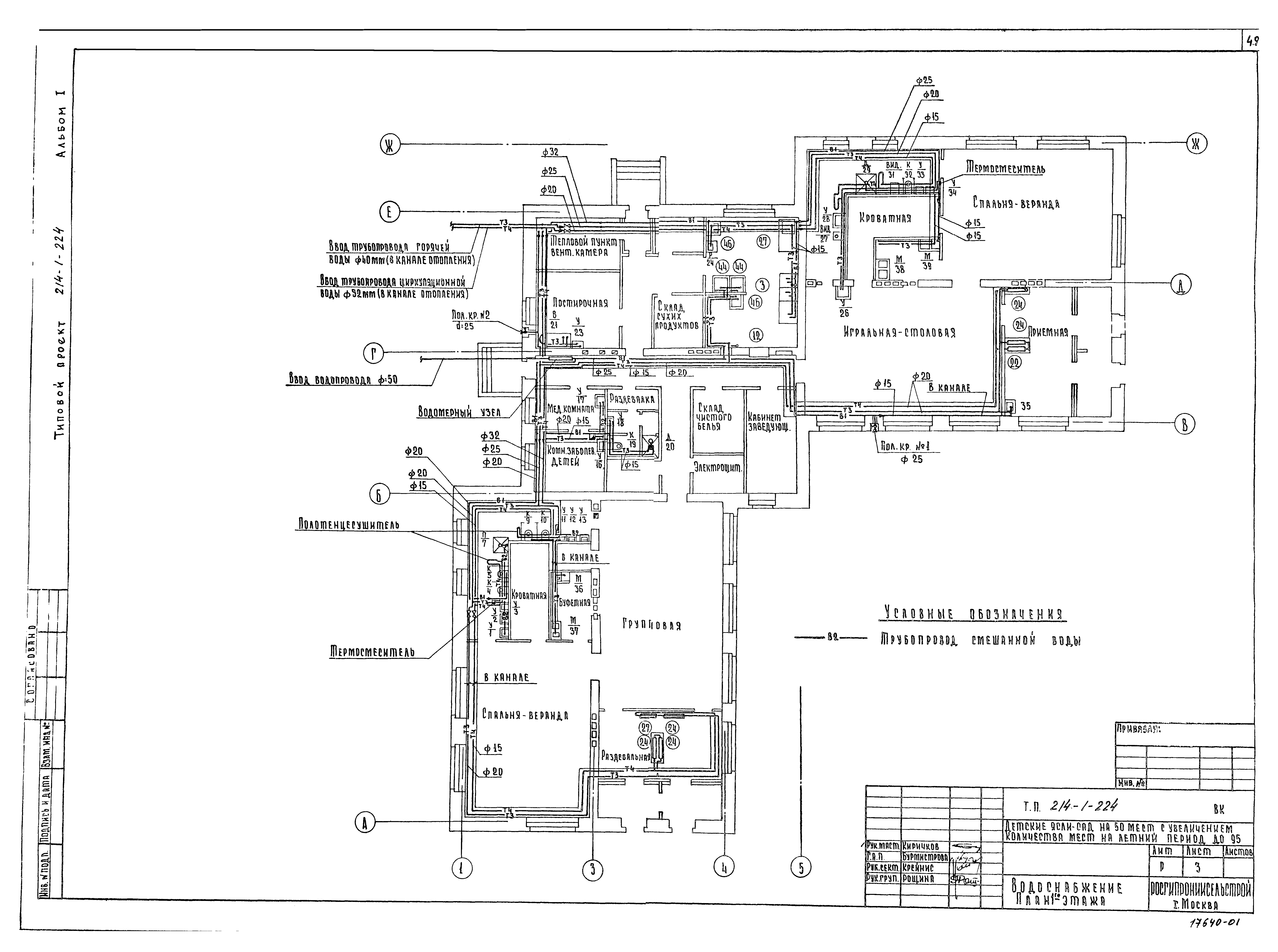
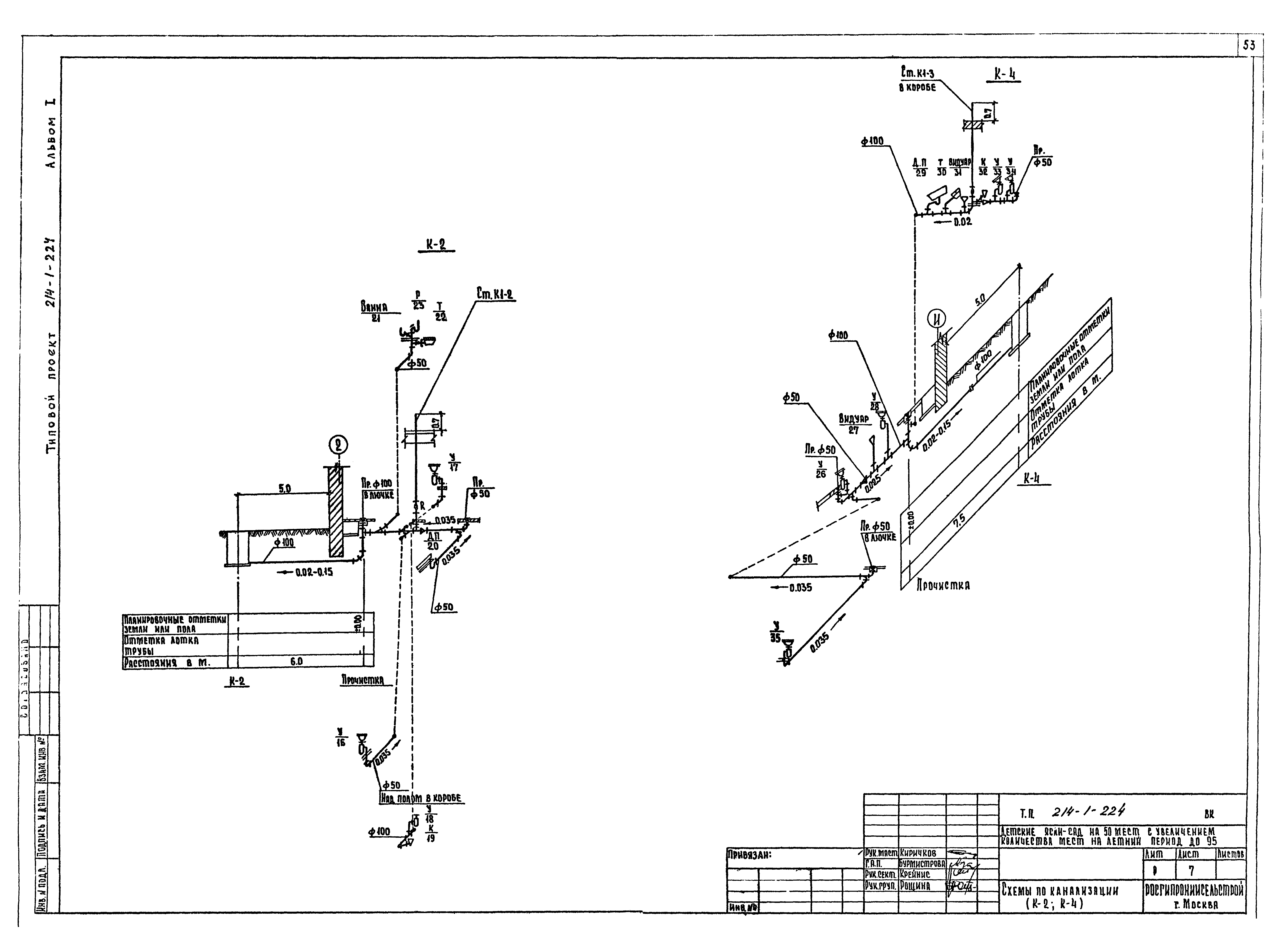
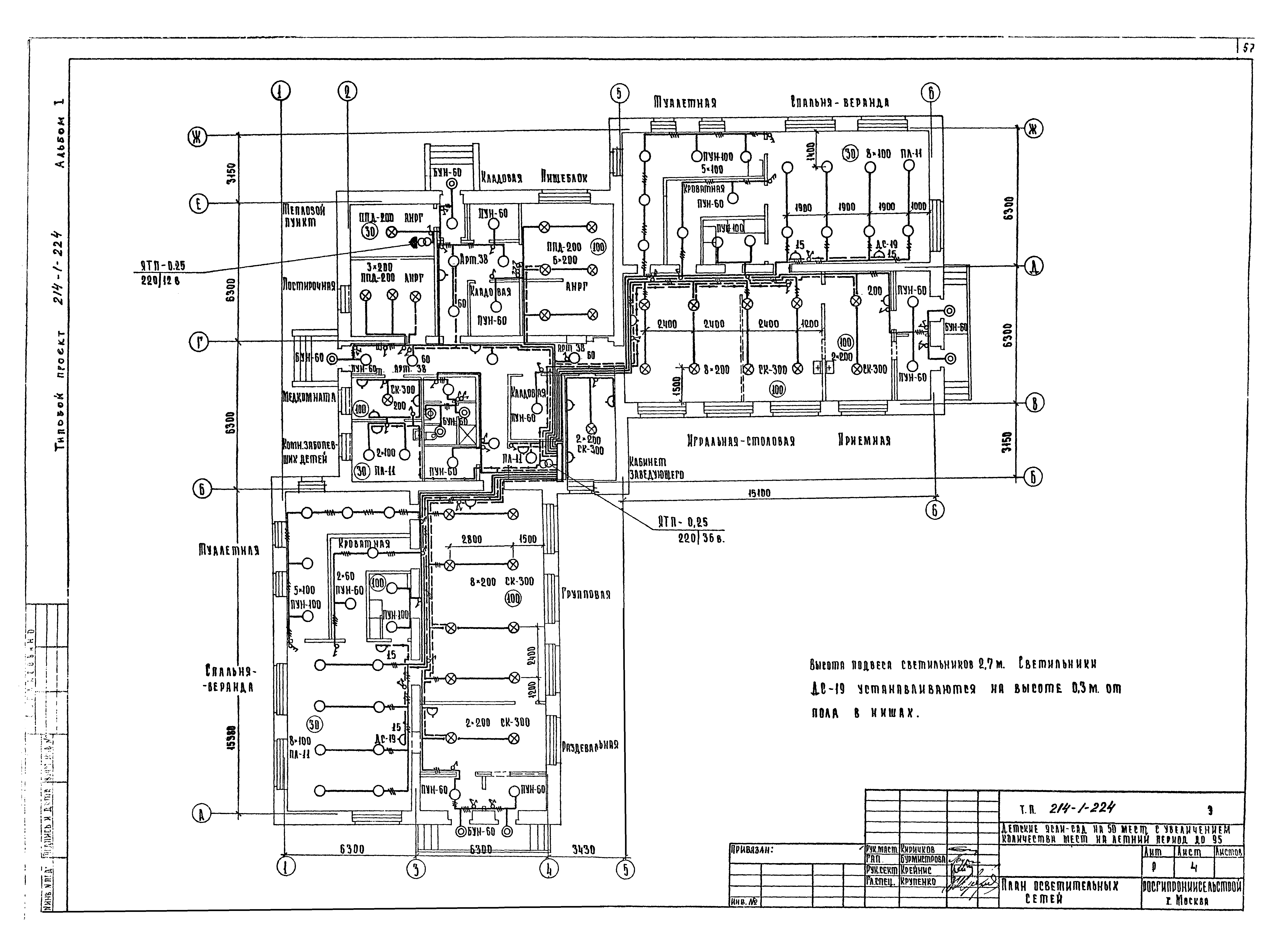
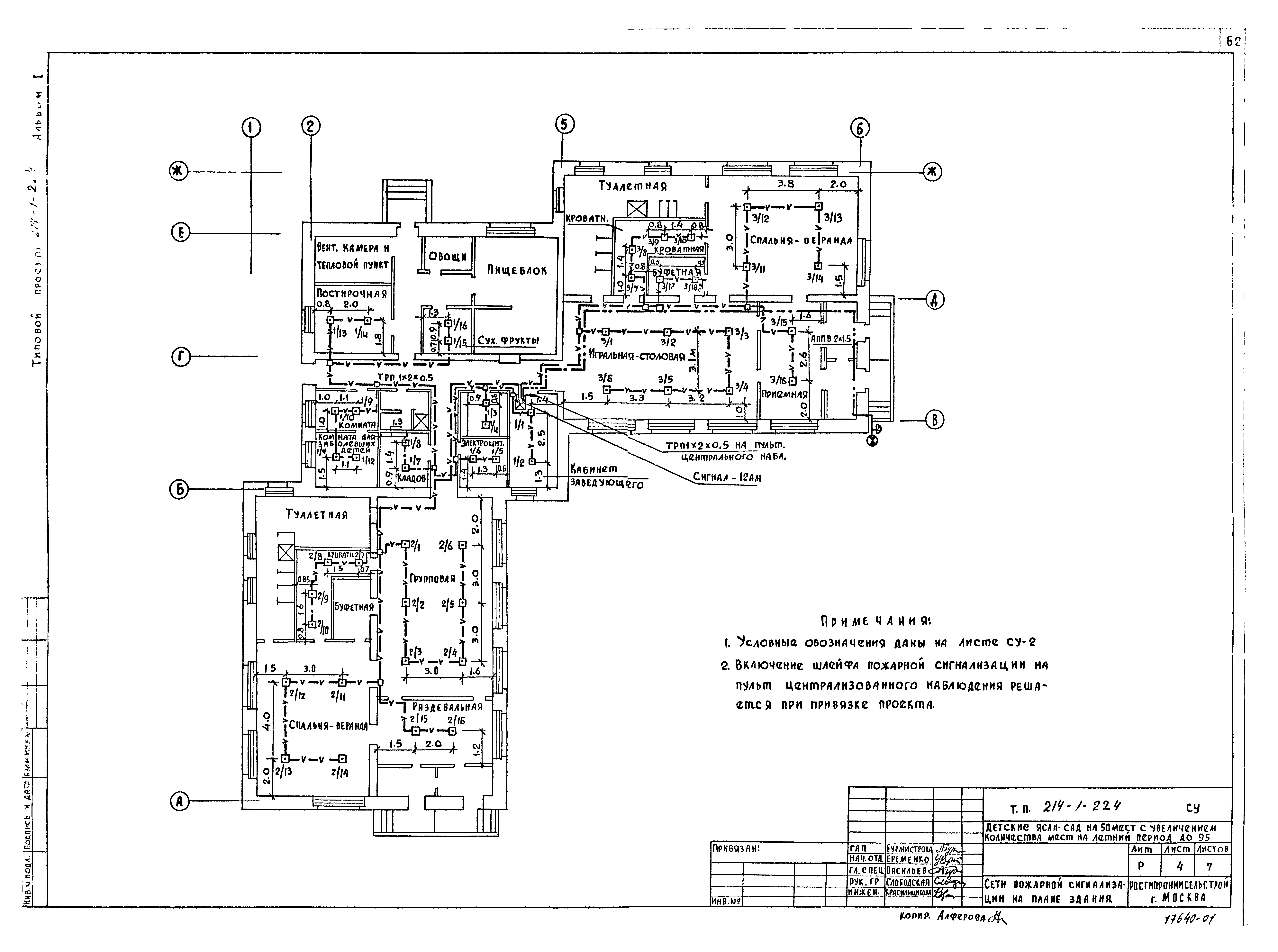
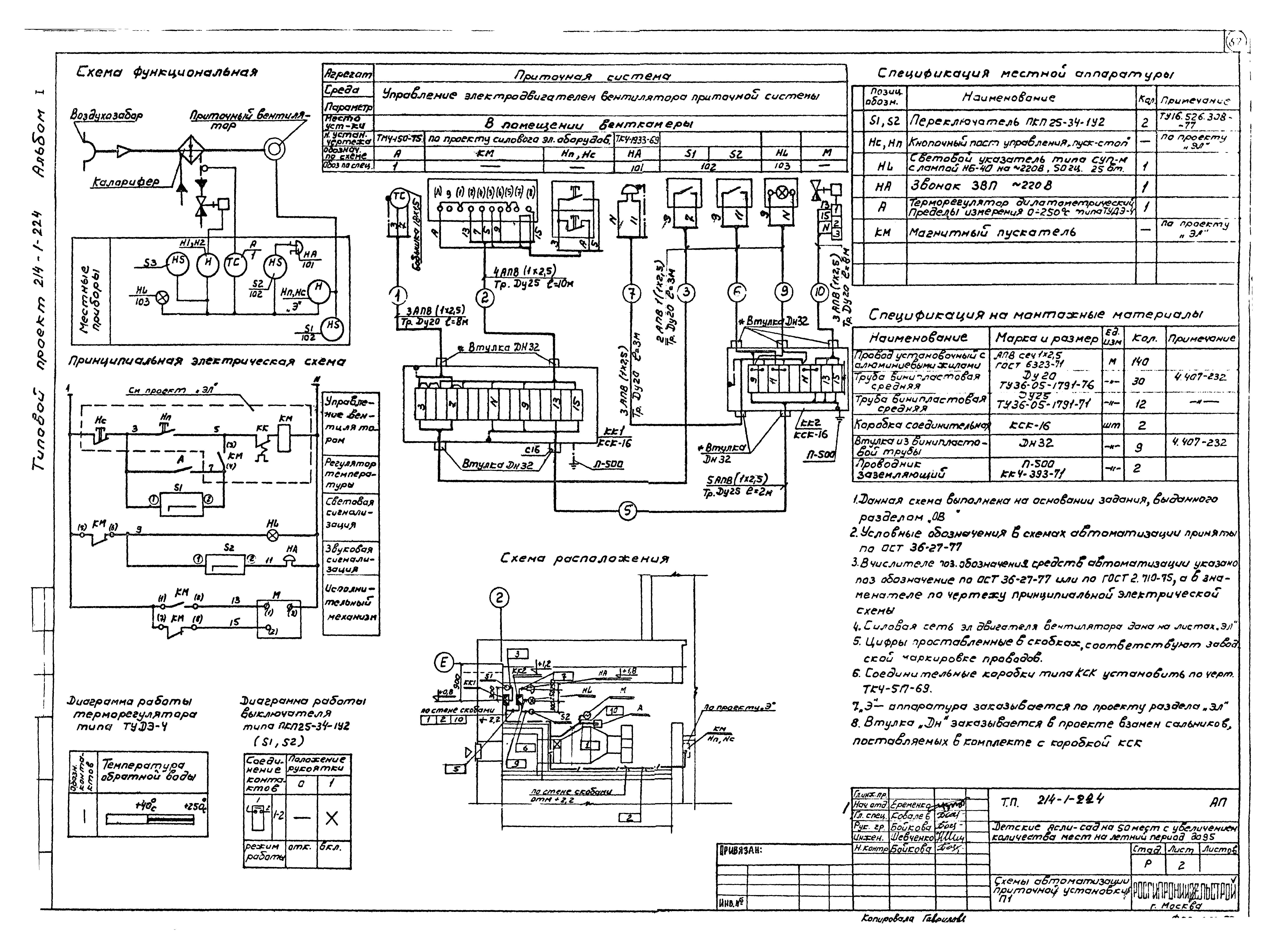
Скачать Типовой проект 214-1-224 Альбом I. Архитектурно-строительная часть. Отопление и вентиляция. Водопровод и канализация. Технология. Электрооборудование. Устройства связиДата актуализации: 01.01.2021
|
| Обозначение: | Типовой проект 214-1-224 |
| Обозначение англ: | 214-1-224 |
| Статус: | не определен законодательством |
| Название рус.: | Альбом I. Архитектурно-строительная часть. Отопление и вентиляция. Водопровод и канализация. Технология. Электрооборудование. Устройства связи |
| Дата добавления в базу: | 01.09.2013 |
| Дата актуализации: | 01.01.2021 |
| Дата введения: | 24.11.1981 |
| Дата окончания срока действия: | 30.06.2003 |
| Разработан: | Росгипрониисельстрой |
| Утверждён: | 23.11.1977 Госстрой РСФСР (Russian Federation Gosstroy 80) |




































































