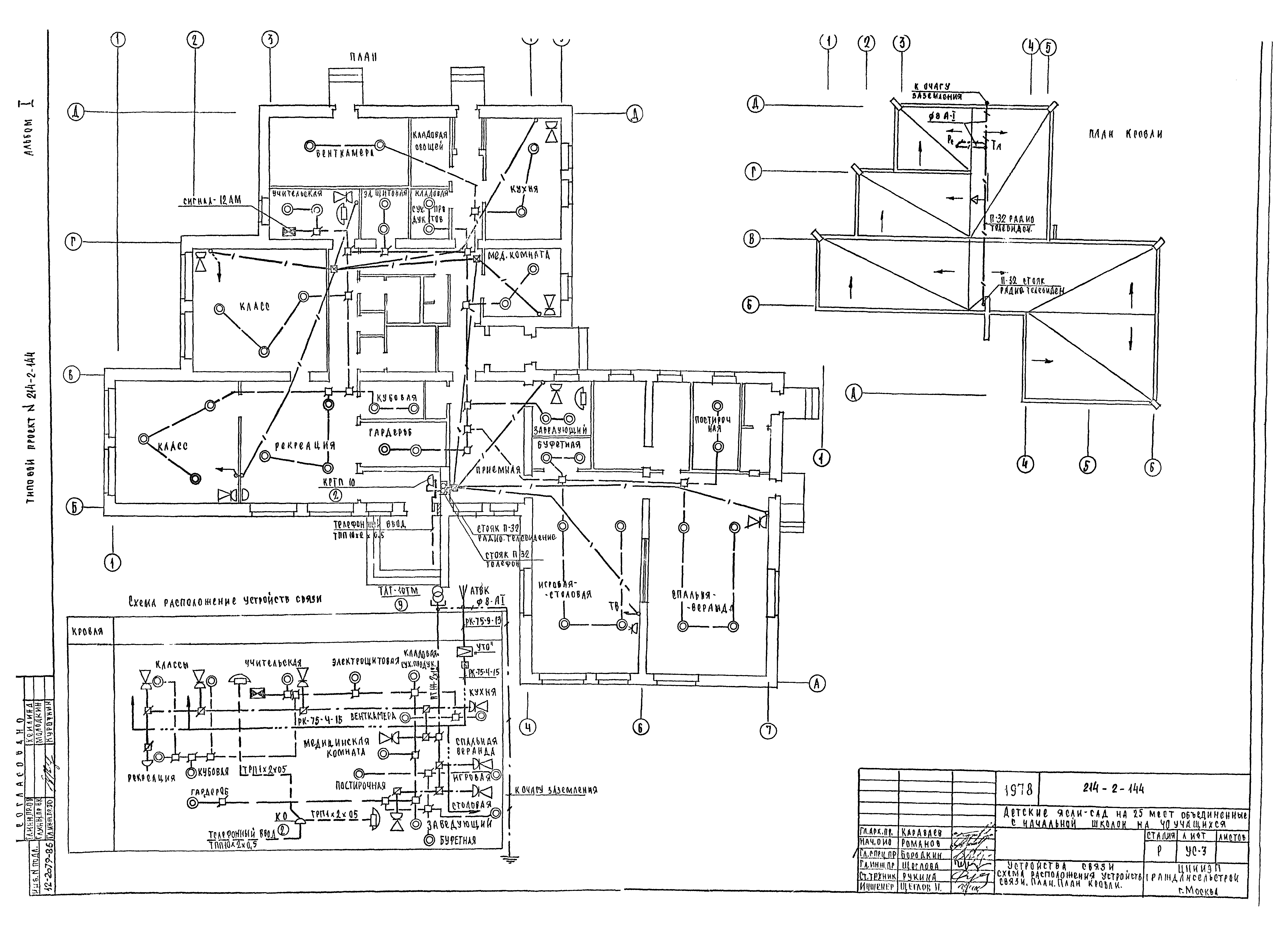
Скачать Типовой проект 214-2-144 Альбом I. Архитектурно-строительные, технологические, санитарно-технические, электротехнические чертежи, чертежи устройства связи и сигнализацииДата актуализации: 01.01.2021 Типовой проект 214-2-144
Альбом I. Архитектурно-строительные, технологические, санитарно-технические, электротехнические чертежи, чертежи устройства связи и сигнализации| Обозначение: | Типовой проект 214-2-144 | | Обозначение англ: | 214-2-144 | | Статус: | не определен законодательством | | Название рус.: | Альбом I. Архитектурно-строительные, технологические, санитарно-технические, электротехнические чертежи, чертежи устройства связи и сигнализации | | Дата добавления в базу: | 01.09.2013 | | Дата актуализации: | 01.01.2021 | | Дата введения: | 15.12.1978 | | Дата окончания срока действия: | 30.06.2003 | | Разработан: | ЦНИИЭП граждансельстрой
| | Утверждён: | 10.05.1977 Госгражданстрой (Gosgrazhdanstroy 88)
|
                                                        
|