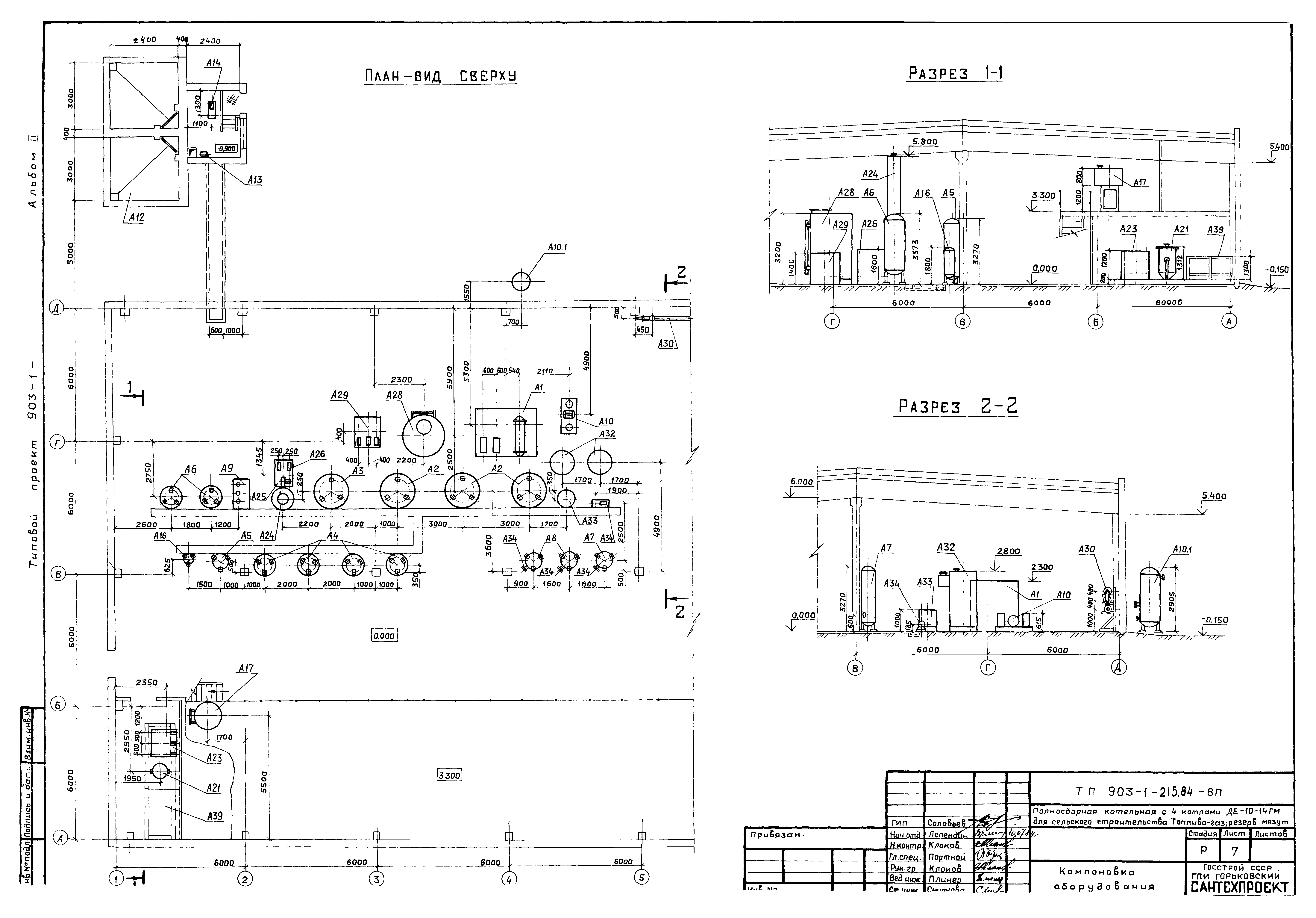
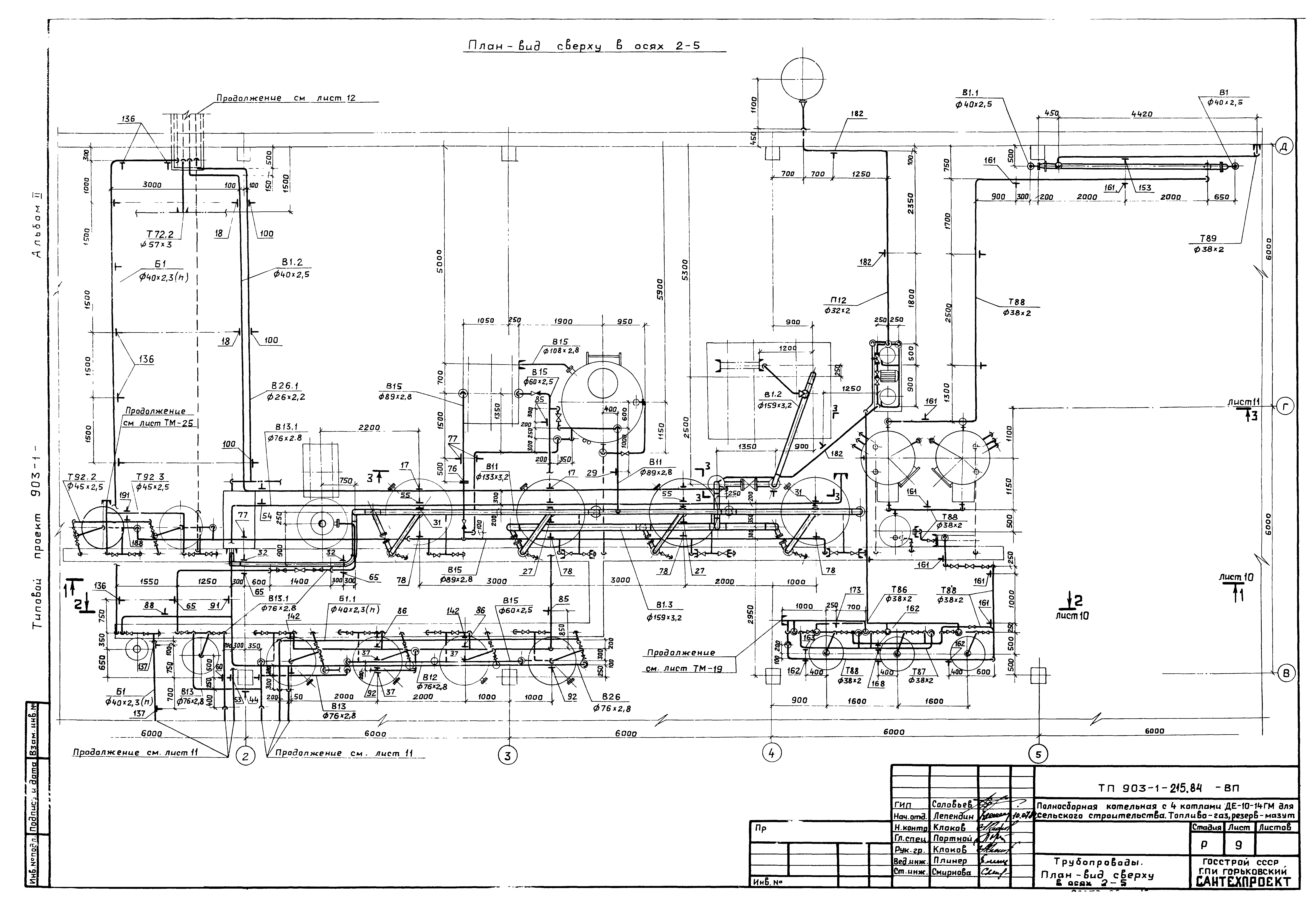
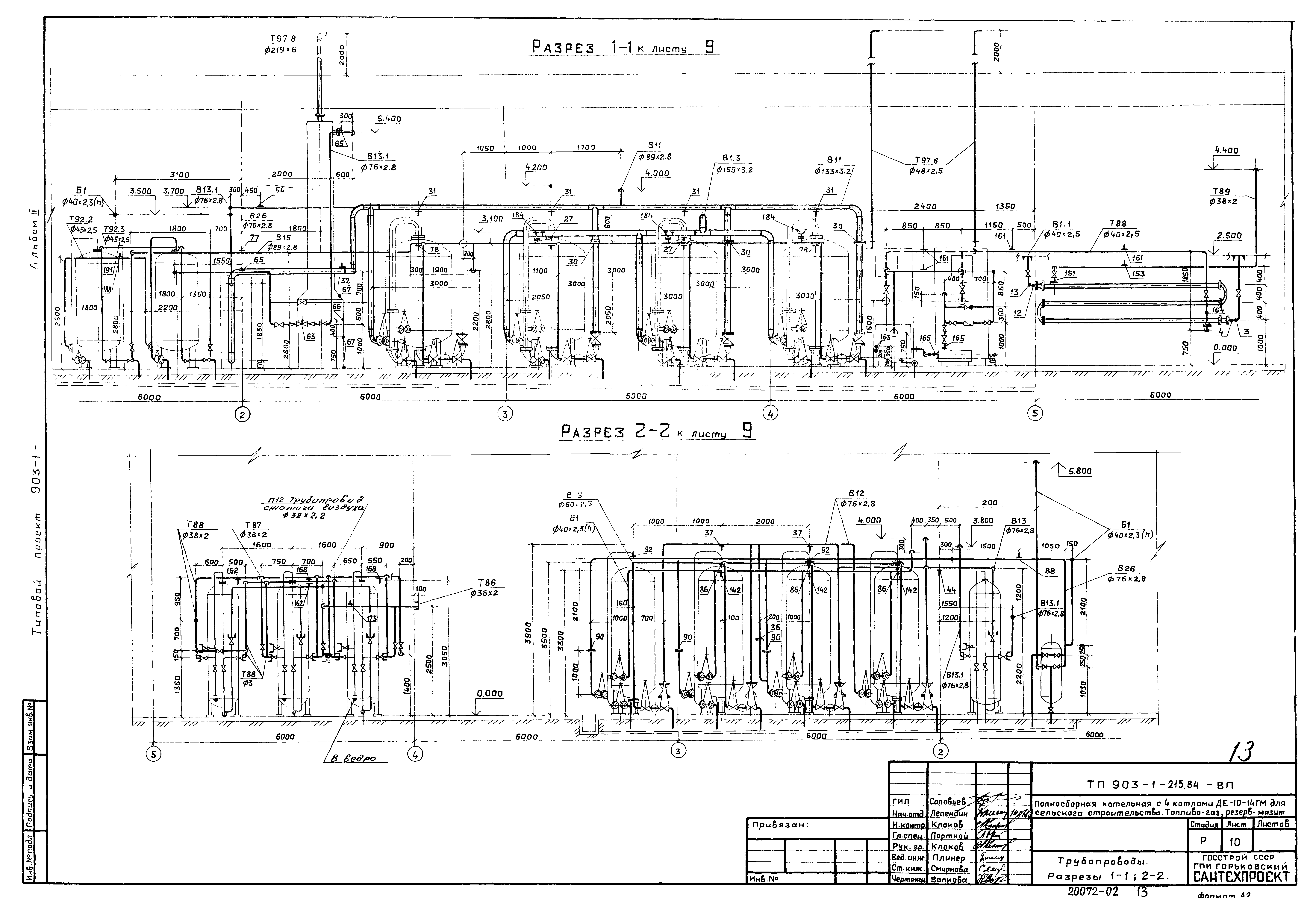
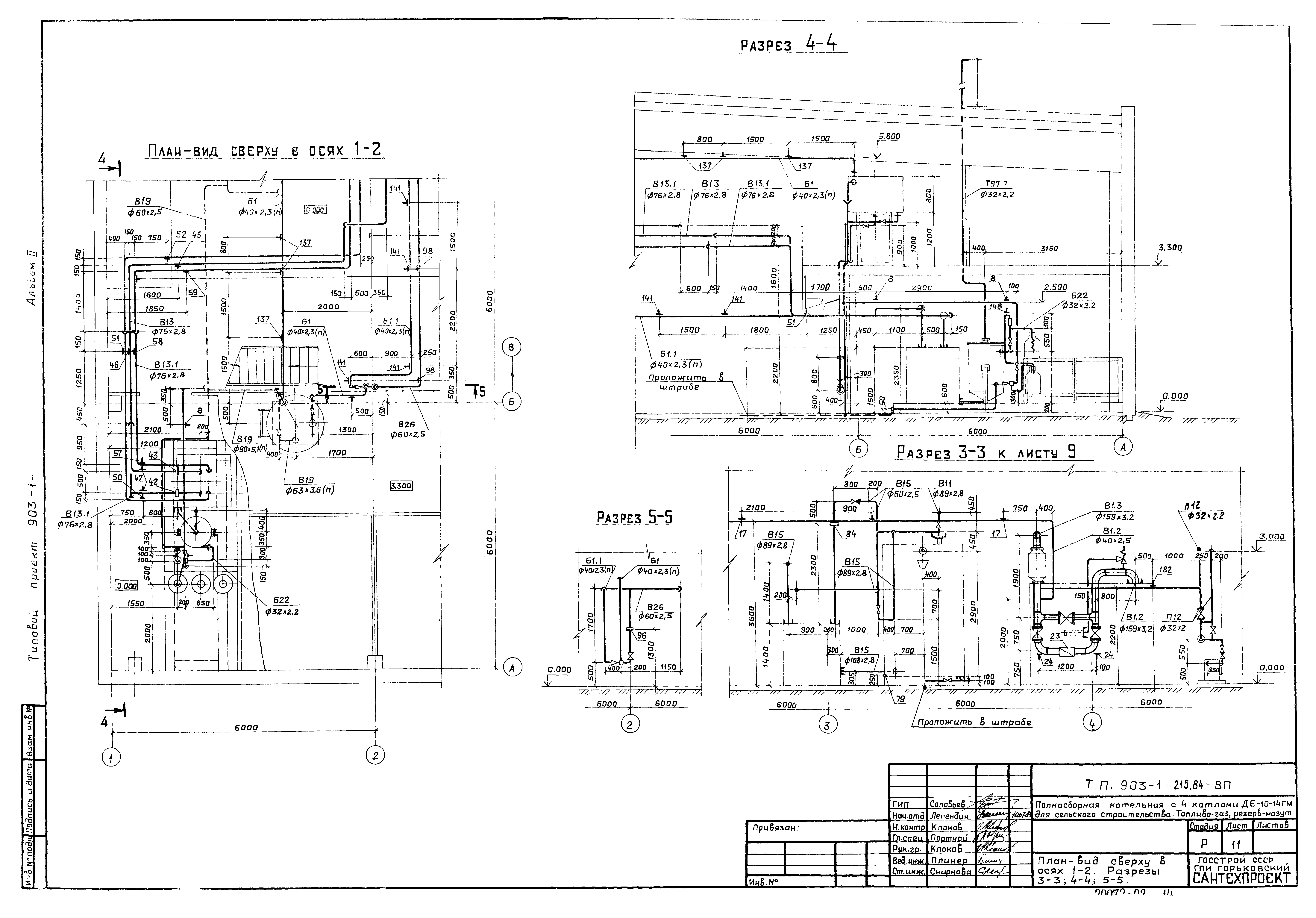
Скачать Типовой проект 903-1-215.84 Альбом II. Тепломеханическая часть. Водоподготовительная установка. Газооборудование котельной. МазутоснабжениеДата актуализации: 01.01.2021 Типовой проект 903-1-215.84
Альбом II. Тепломеханическая часть. Водоподготовительная установка. Газооборудование котельной. Мазутоснабжение| Обозначение: | Типовой проект 903-1-215.84 | | Обозначение англ: | 903-1-215.84 | | Статус: | действует | | Название рус.: | Альбом II. Тепломеханическая часть. Водоподготовительная установка. Газооборудование котельной. Мазутоснабжение | | Дата добавления в базу: | 01.09.2013 | | Дата актуализации: | 01.01.2021 | | Дата введения: | 12.10.1984 | | Разработан: | Горьковский Сантехпроект
| | Утверждён: | 02.07.1984 Минсельхоз СССР (USSR Minselkhoz 51-3Г)
|
                                   
|