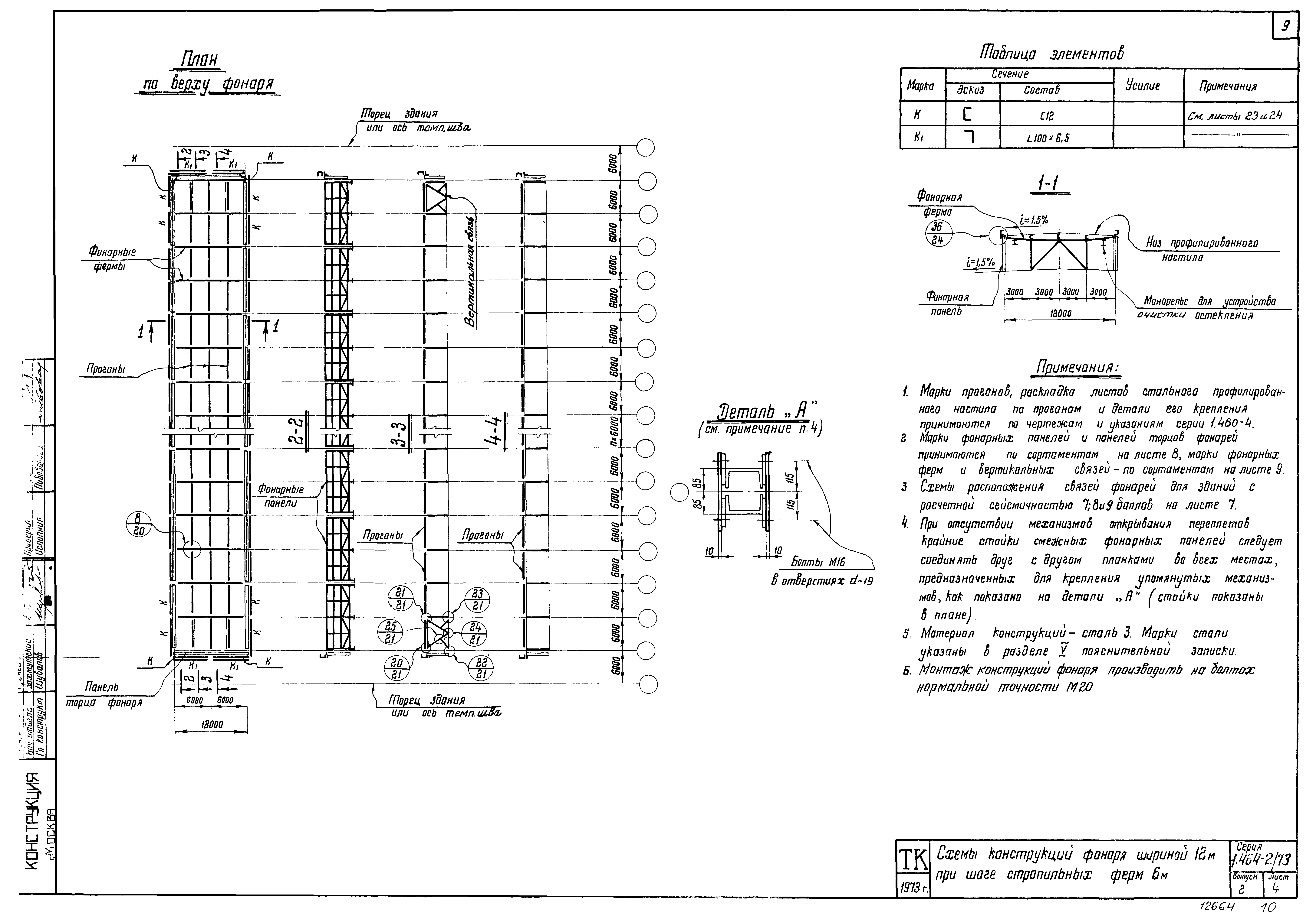
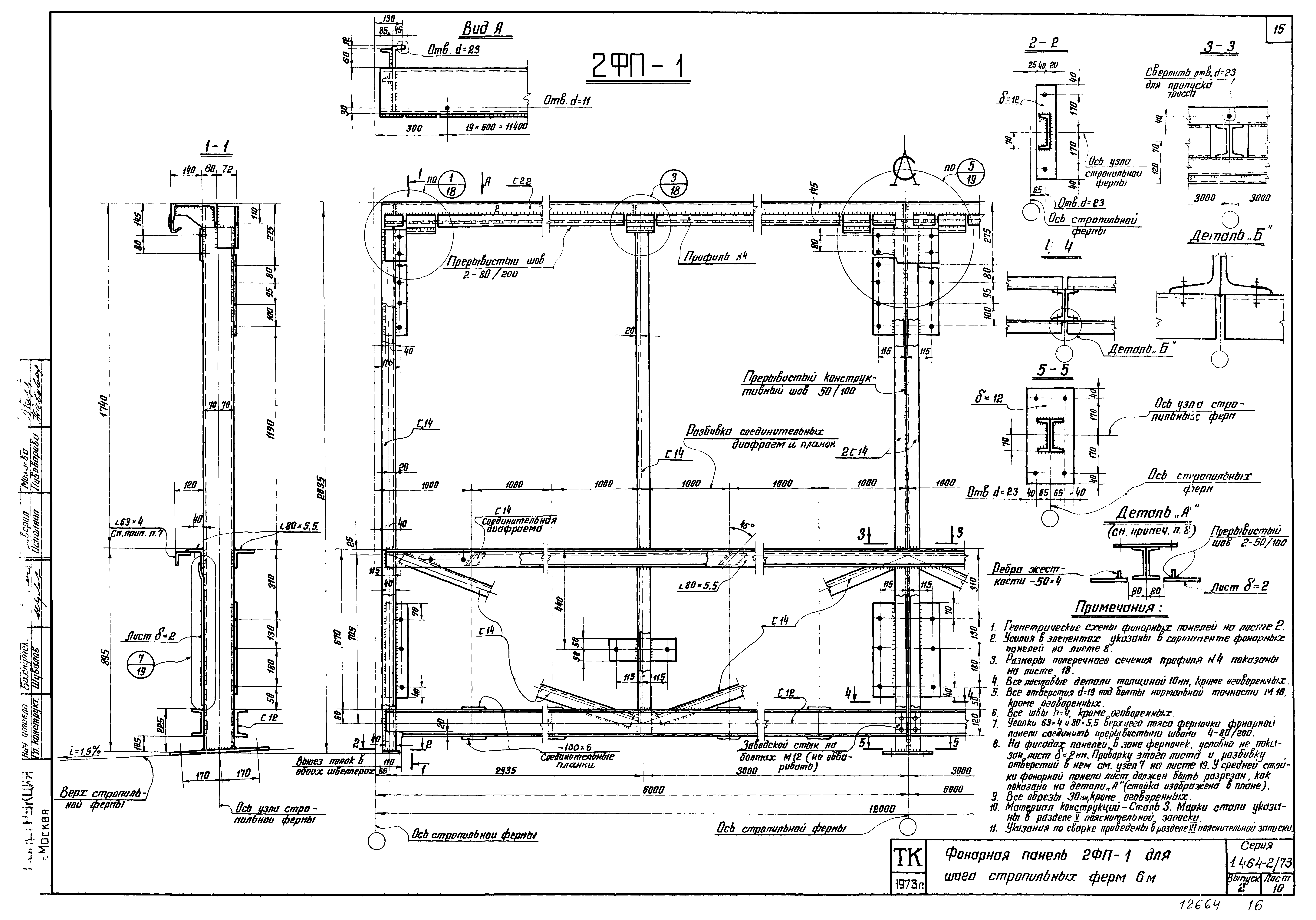
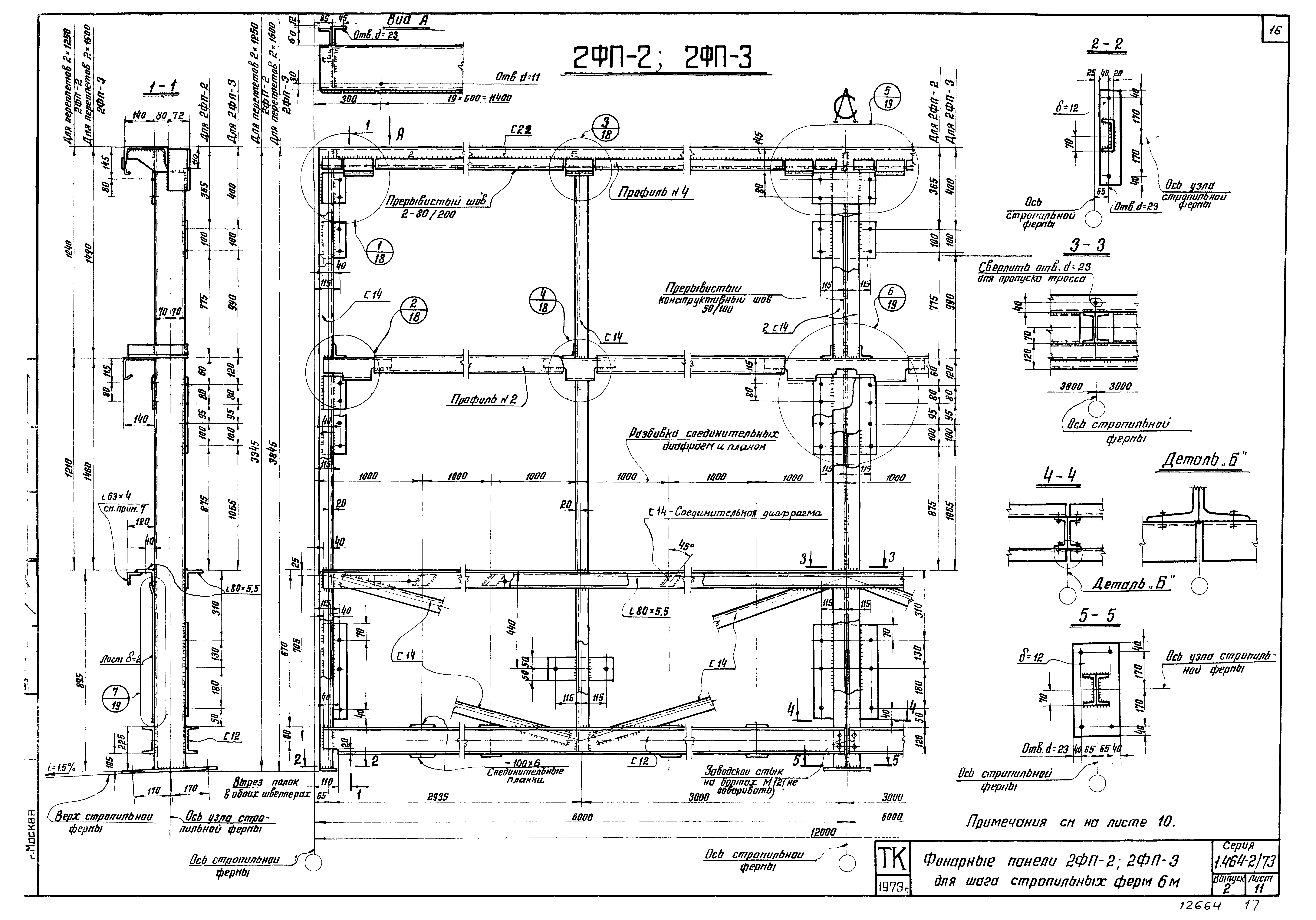
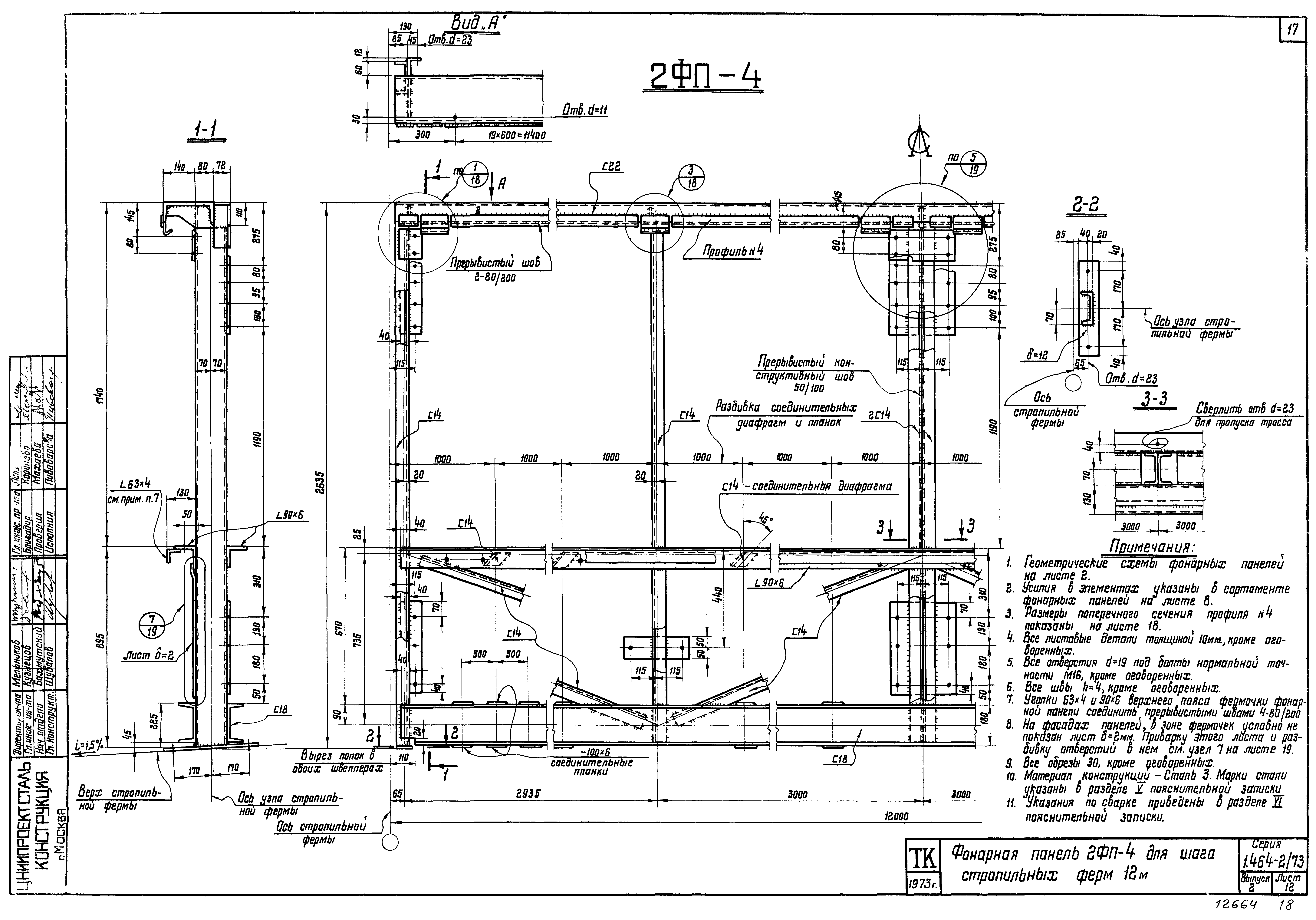
Скачать Серия 1.464-2/73 Выпуск 2. Фонари из горячекатаных профилей с применением в покрытии стального профилированного настила для зданий, возводимых в несейсмических районах и для зданий с расчетной сейсмичностью 7, 8 и 9 баллов. Чертежи КМДата актуализации: 01.01.2021 Серия 1.464-2/73
Выпуск 2. Фонари из горячекатаных профилей с применением в покрытии стального профилированного настила для зданий, возводимых в несейсмических районах и для зданий с расчетной сейсмичностью 7, 8 и 9 баллов. Чертежи КМ| Обозначение: | Серия 1.464-2/73 | | Обозначение англ: | Series 1.464-2/73 | | Статус: | не действует | | Название рус.: | Выпуск 2. Фонари из горячекатаных профилей с применением в покрытии стального профилированного настила для зданий, возводимых в несейсмических районах и для зданий с расчетной сейсмичностью 7, 8 и 9 баллов. Чертежи КМ | | Дата добавления в базу: | 01.09.2013 | | Дата актуализации: | 01.01.2021 | | Дата введения: | 01.05.1974 | | Дата окончания срока действия: | 01.11.1976 | | Разработан: | ЦНИИпроектстальконструкция
| | Утверждён: | 31.01.1974 Госстрой СССР (Государственный комитет Совета Министров СССР по делам строительства) (USSR Gosstroy 9)
| | Чем заменён: | |
                              
|