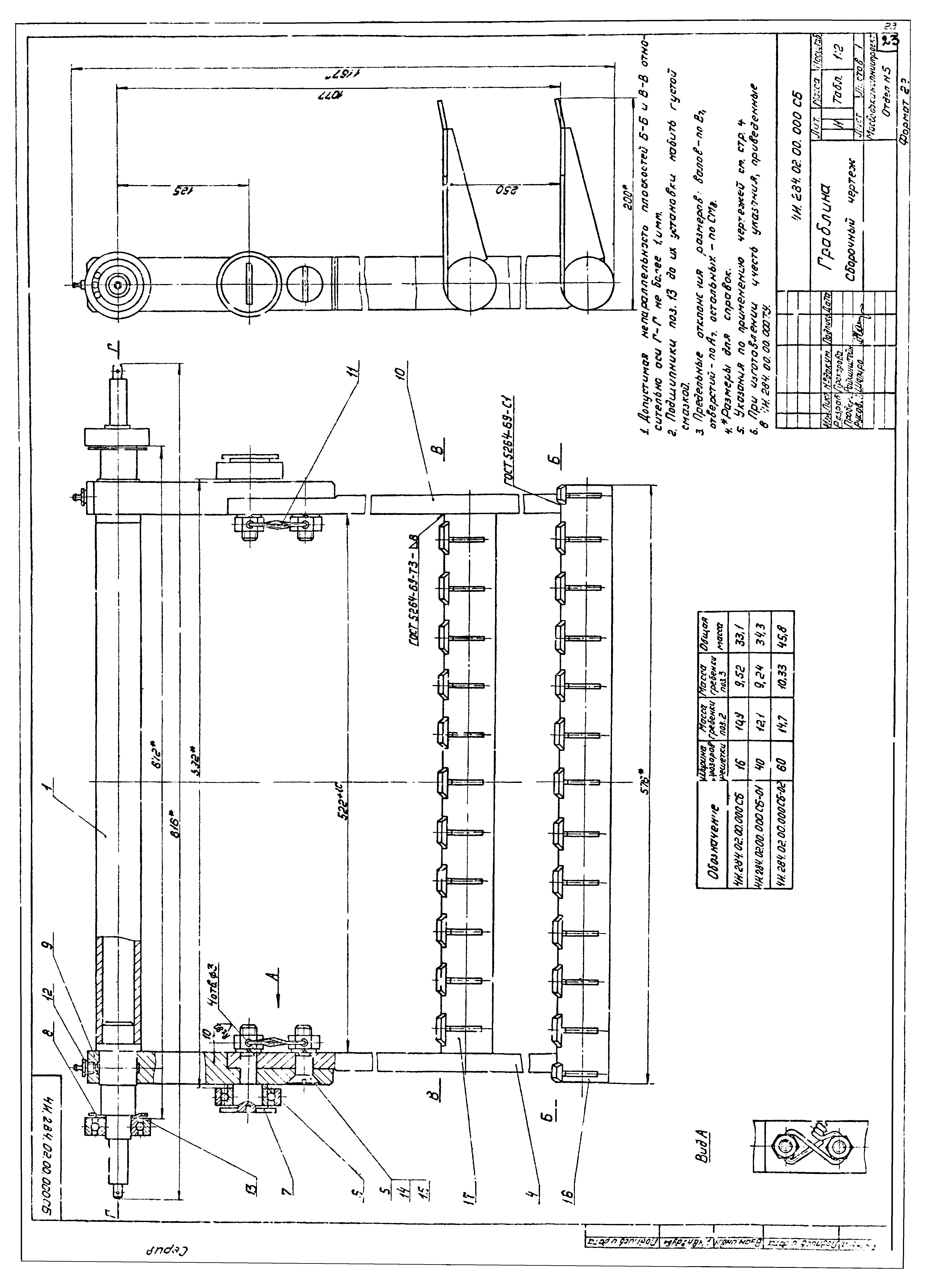
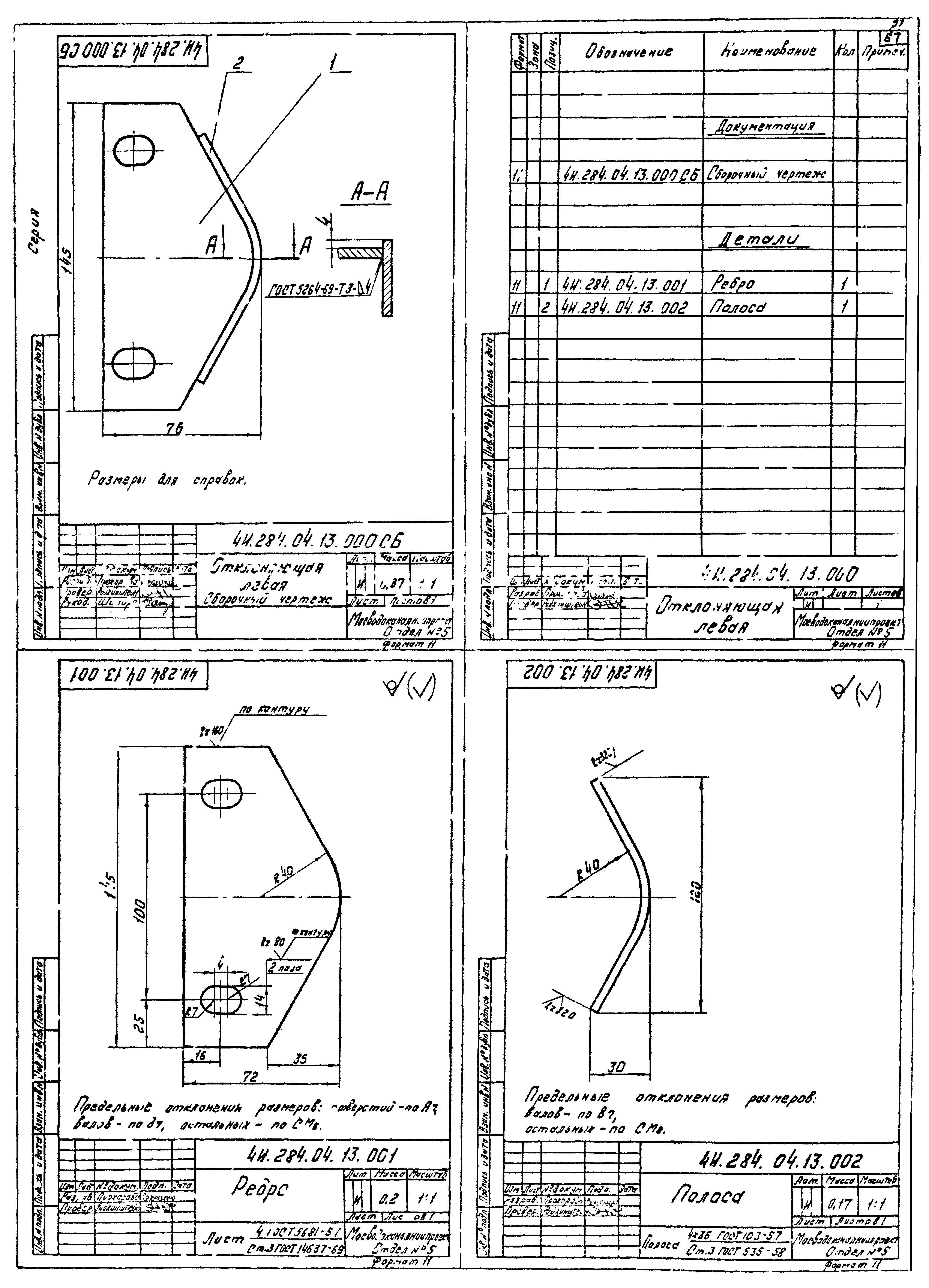
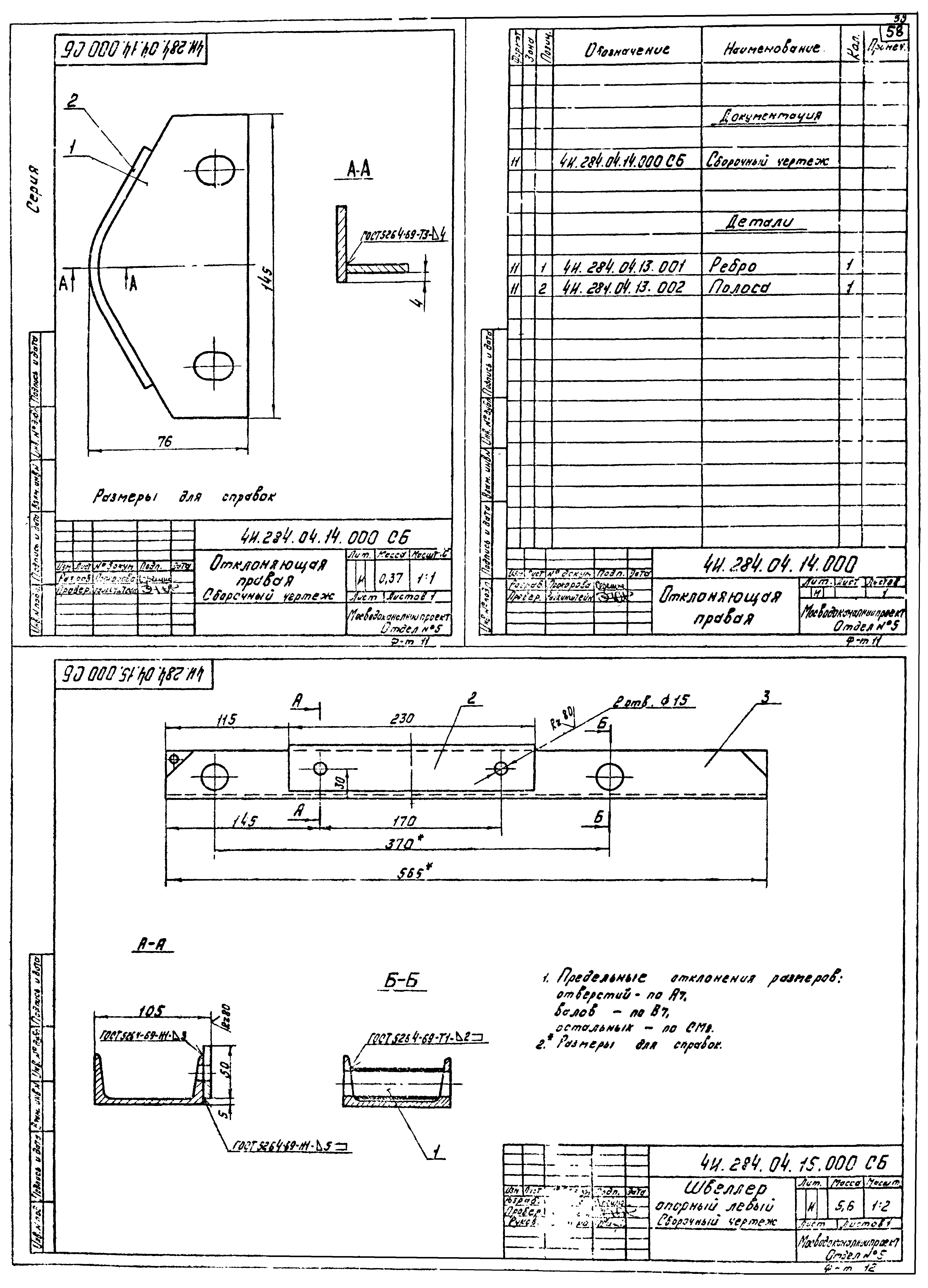
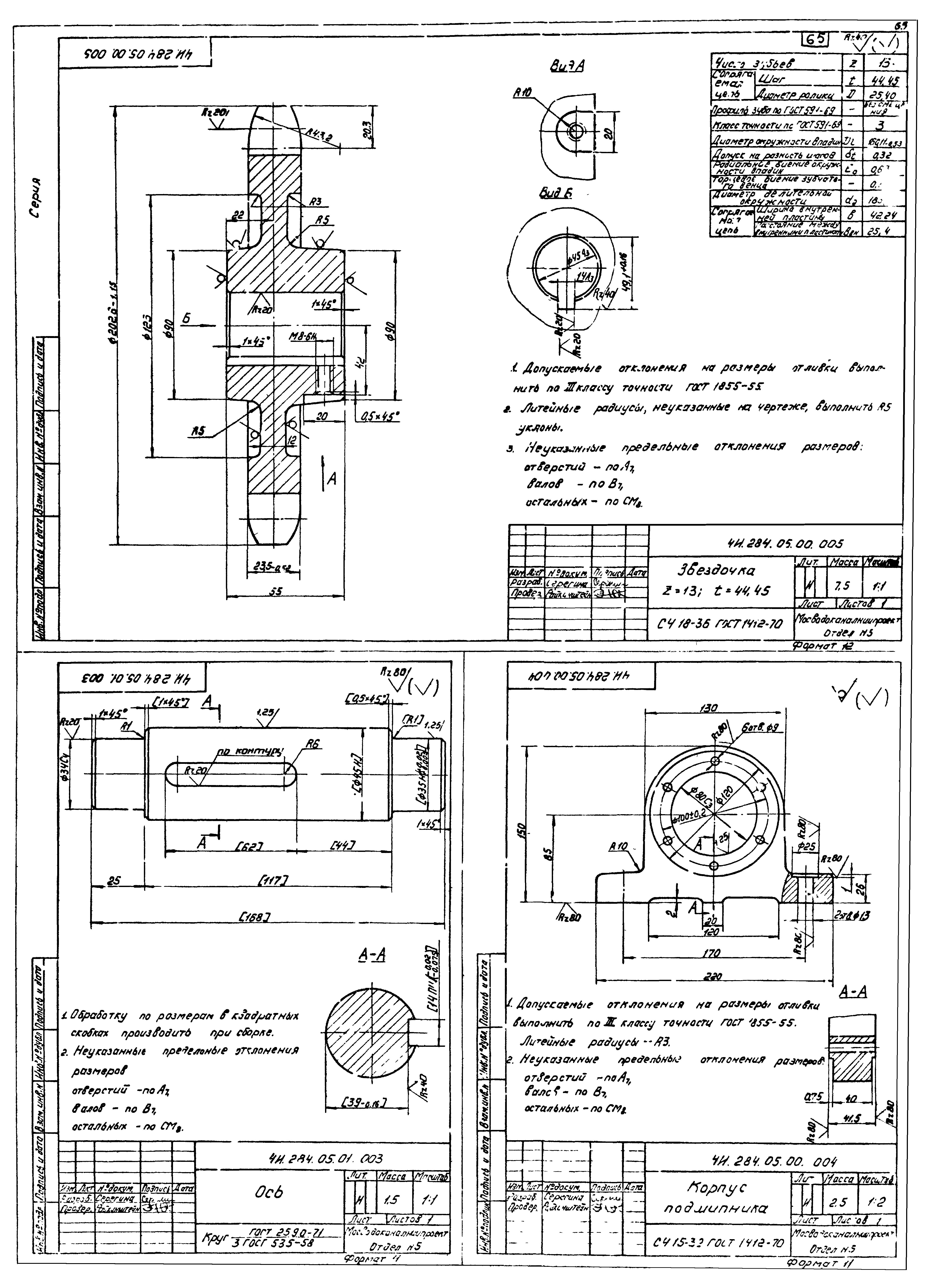
Скачать Серия 3.902-9 Решетка механизированная вертикальная РВМ600/800 для канализационных сооруженийДата актуализации: 01.01.2021 Серия 3.902-9
Решетка механизированная вертикальная РВМ600/800 для канализационных сооружений| Обозначение: | Серия 3.902-9 | | Обозначение англ: | Series 3.902-9 | | Статус: | не действует | | Название рус.: | Решетка механизированная вертикальная РВМ600/800 для канализационных сооружений | | Дата добавления в базу: | 01.09.2013 | | Дата актуализации: | 01.01.2021 | | Дата введения: | 29.05.1975 | | Дата окончания срока действия: | 01.12.1988 | | Разработан: | МосводоканалНИИпроект
| | Утверждён: | 29.05.1975 МосводоканалНИИпроект (304)
|
                                                                                  
|