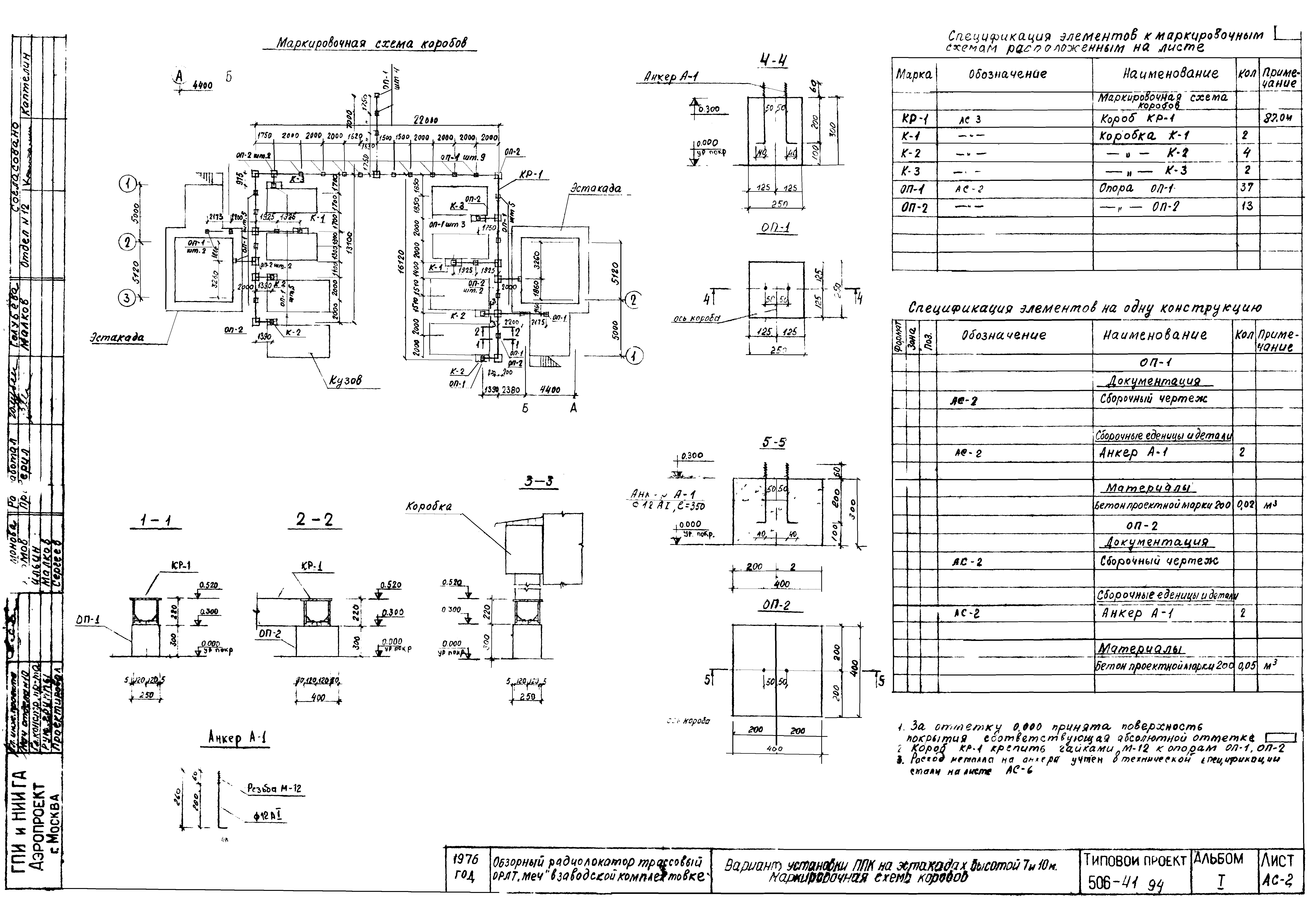
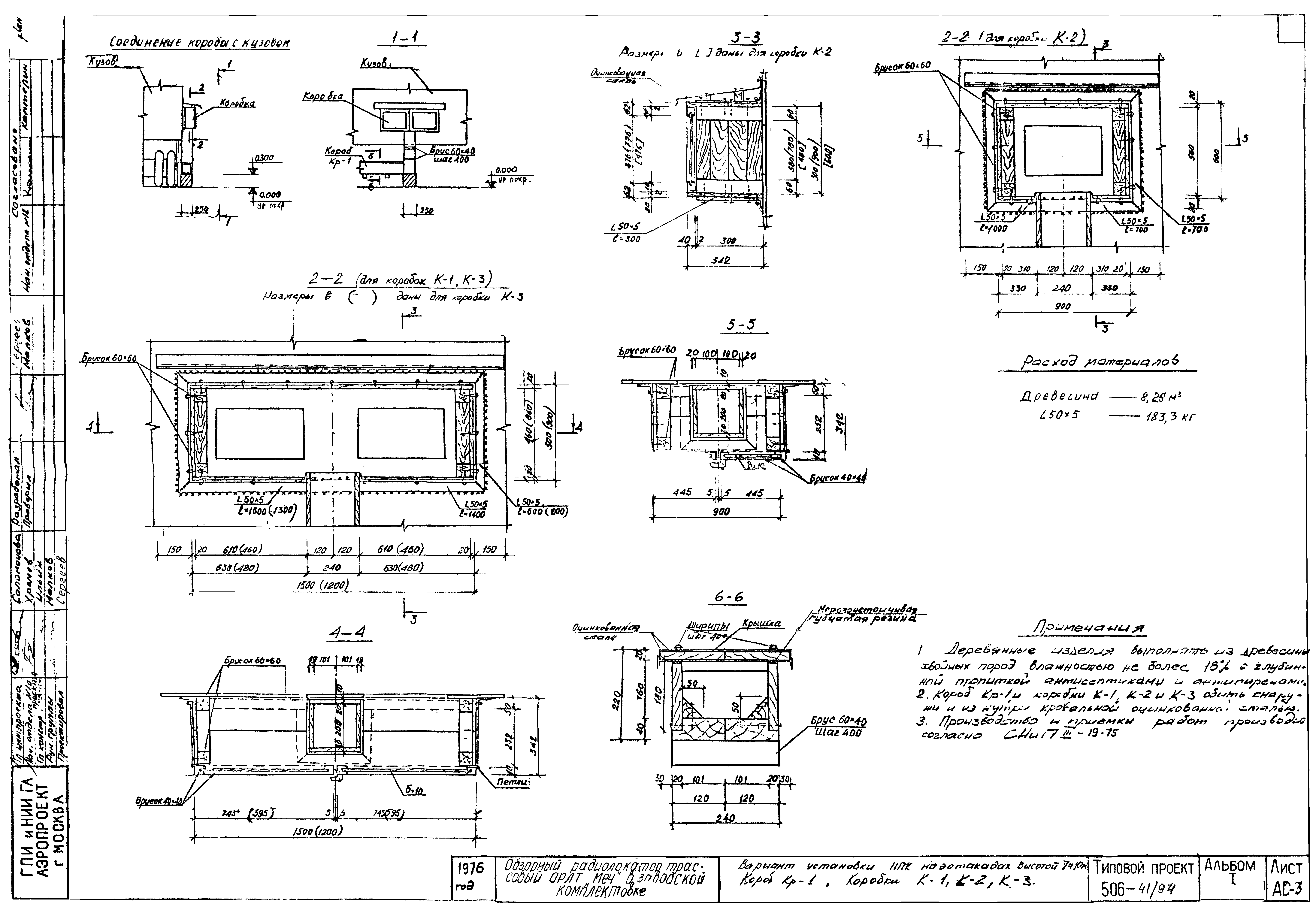
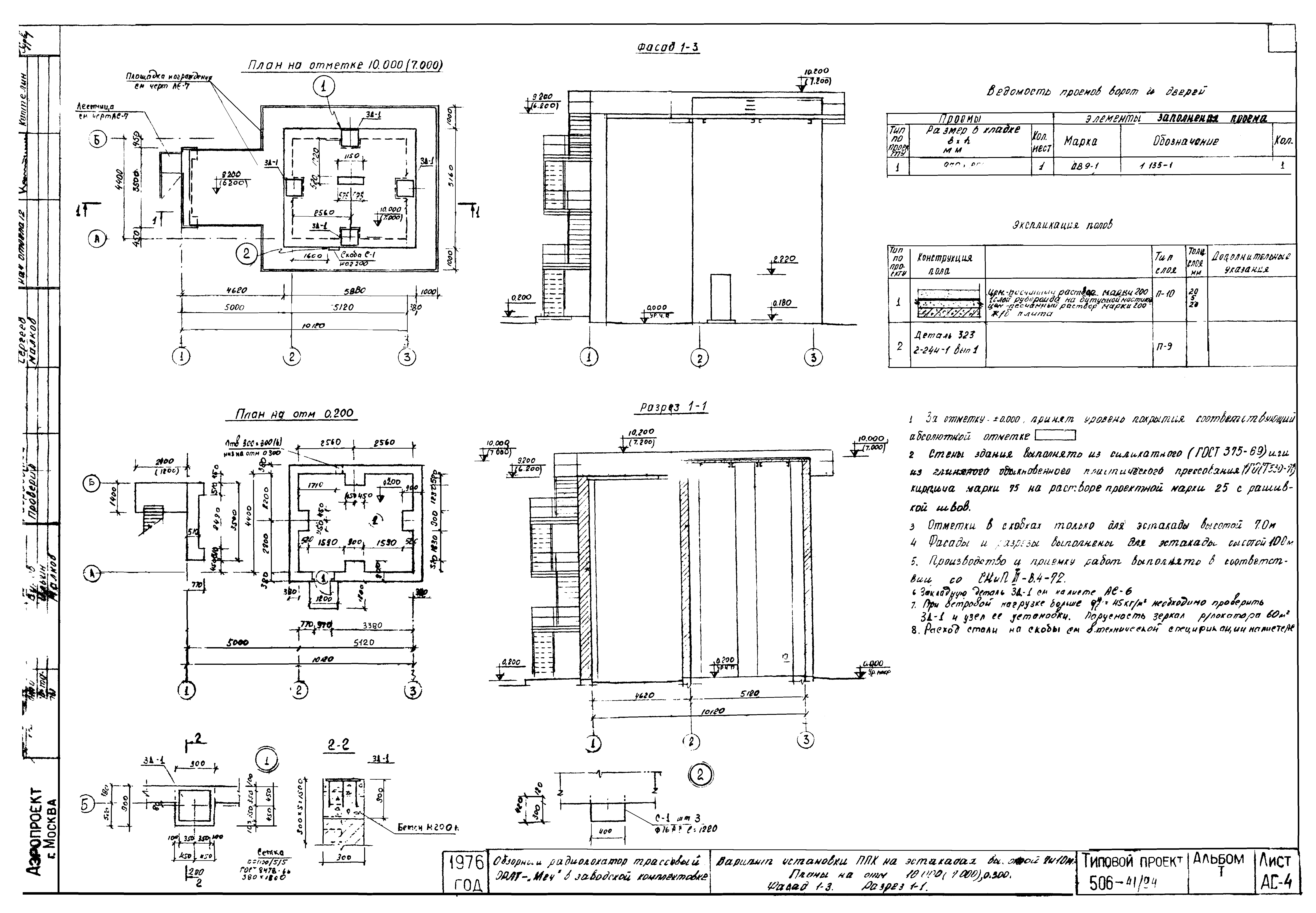
Скачать Типовой проект 506-41/94 Альбом I. Том 1. Аэродромное радиооборудование, электросвязь, электроснабжение, строительная часть, механическая часть, горизонтальная планировка участкаДата актуализации: 01.01.2021 Типовой проект 506-41/94
Альбом I. Том 1. Аэродромное радиооборудование, электросвязь, электроснабжение, строительная часть, механическая часть, горизонтальная планировка участка| Обозначение: | Типовой проект 506-41/94 | | Обозначение англ: | 506-41/94 | | Статус: | действует | | Название рус.: | Альбом I. Том 1. Аэродромное радиооборудование, электросвязь, электроснабжение, строительная часть, механическая часть, горизонтальная планировка участка | | Дата добавления в базу: | 01.09.2013 | | Дата актуализации: | 01.01.2021 | | Дата введения: | 15.05.1977 | | Разработан: | Аэропроект
| | Утверждён: | 15.04.1977 Министерство гражданской авиации СССР (USSR Ministry of Civil Aviation 19)
|
                 
|