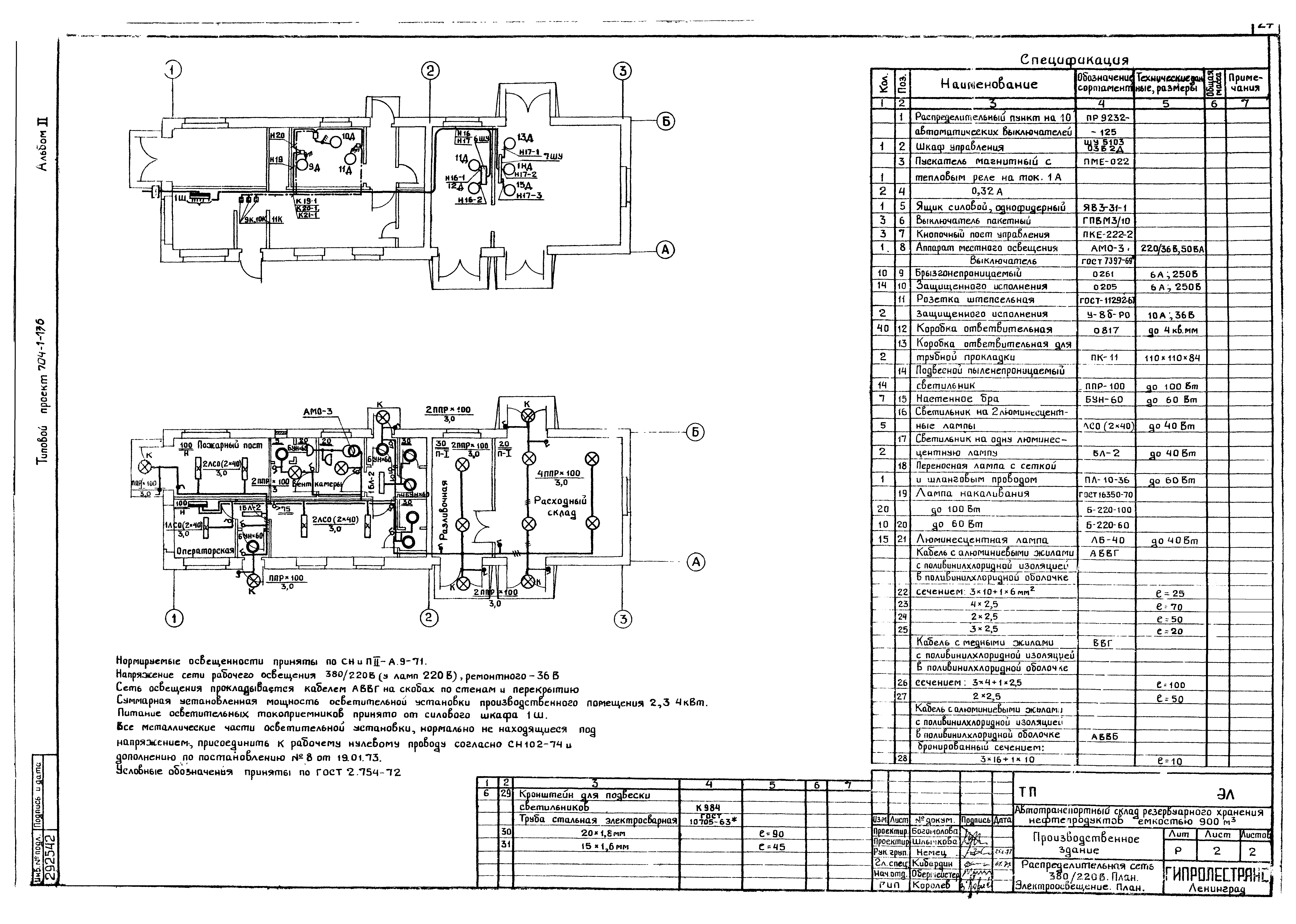
Скачать Типовой проект 704-1-136 Альбом II. Производственное здание. ЧертежиДата актуализации: 01.01.2021
|
| Обозначение: | Типовой проект 704-1-136 |
| Обозначение англ: | 704-1-136 |
| Статус: | действует |
| Название рус.: | Альбом II. Производственное здание. Чертежи |
| Дата добавления в базу: | 01.09.2013 |
| Дата актуализации: | 01.01.2021 |
| Дата введения: | 25.03.1978 |
| Разработан: | Гипролестранс |
| Утверждён: | 03.12.1976 Минлеспром СССР (USSR Minlesprom 113) |









































