Скачать Типовой проект 901-6-90с.86 Альбом II. Технологические и архитектурно-строительные решенияДата актуализации: 01.01.2021
|
| Обозначение: | Типовой проект 901-6-90с.86 |
| Обозначение англ: | 901-6-90с.86 |
| Статус: | отменен |
| Название рус.: | Альбом II. Технологические и архитектурно-строительные решения |
| Дата добавления в базу: | 01.10.2014 |
| Дата актуализации: | 01.01.2021 |
| Дата введения: | 05.03.1986 |
| Дата окончания срока действия: | 01.07.1996 |
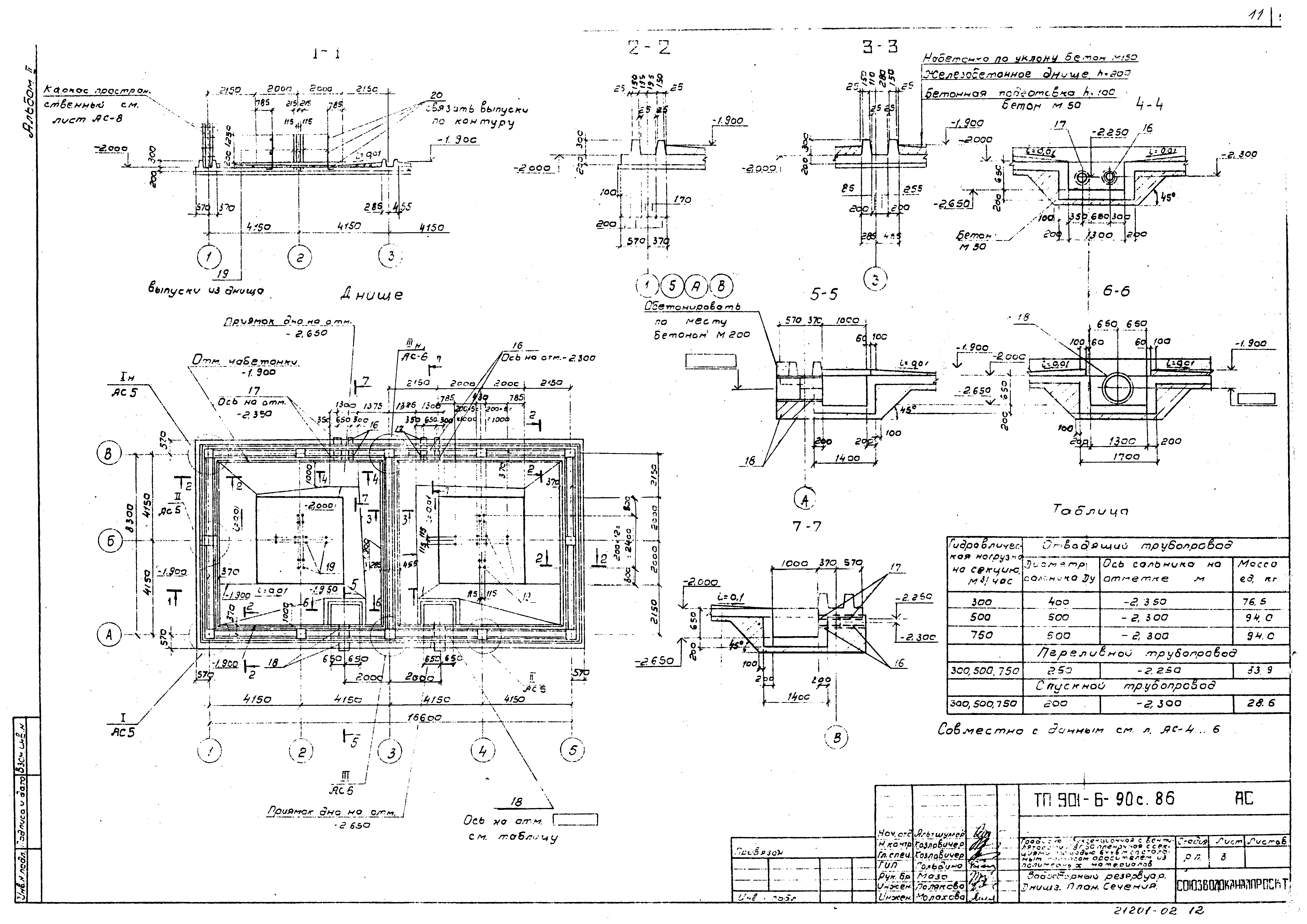
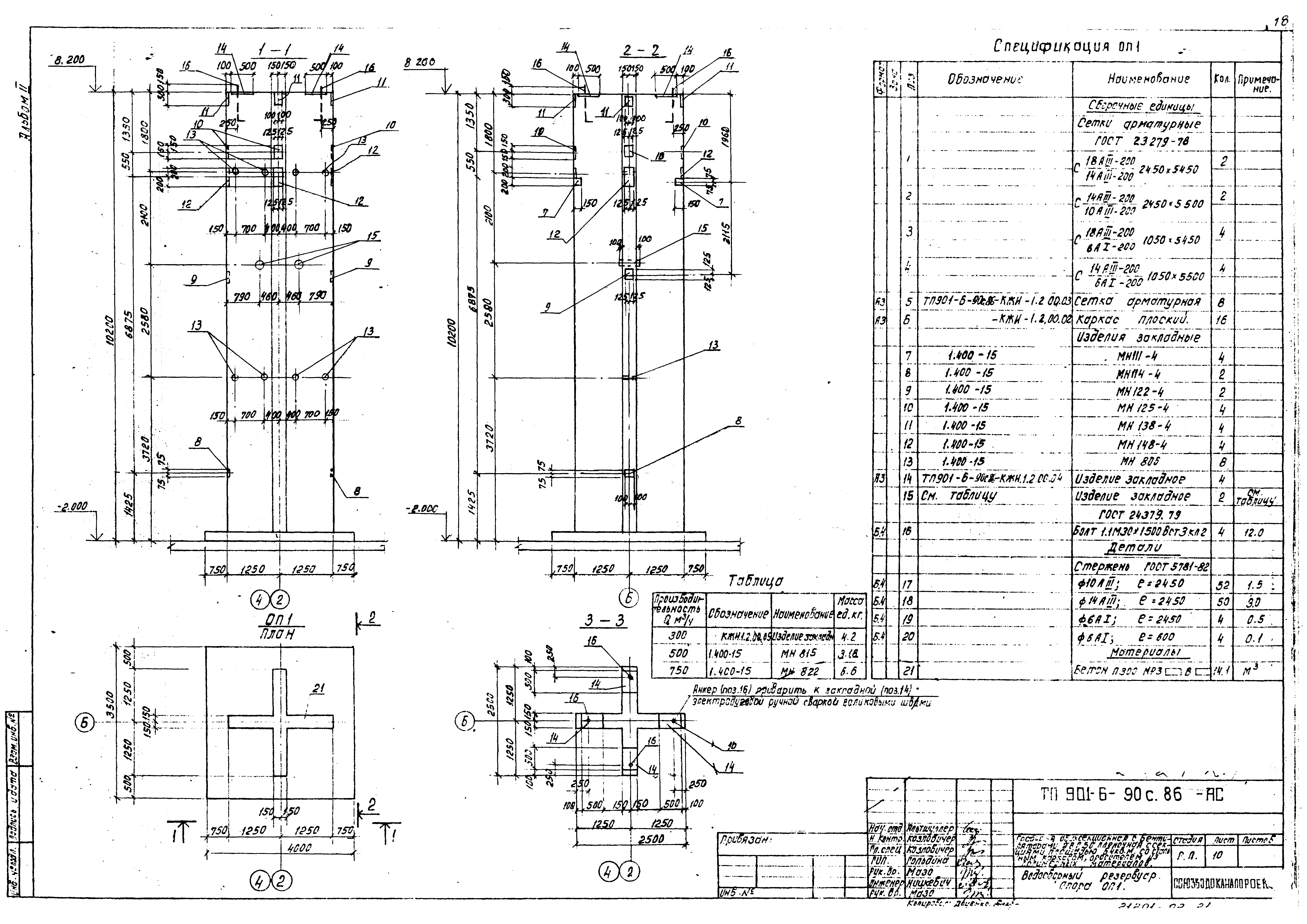
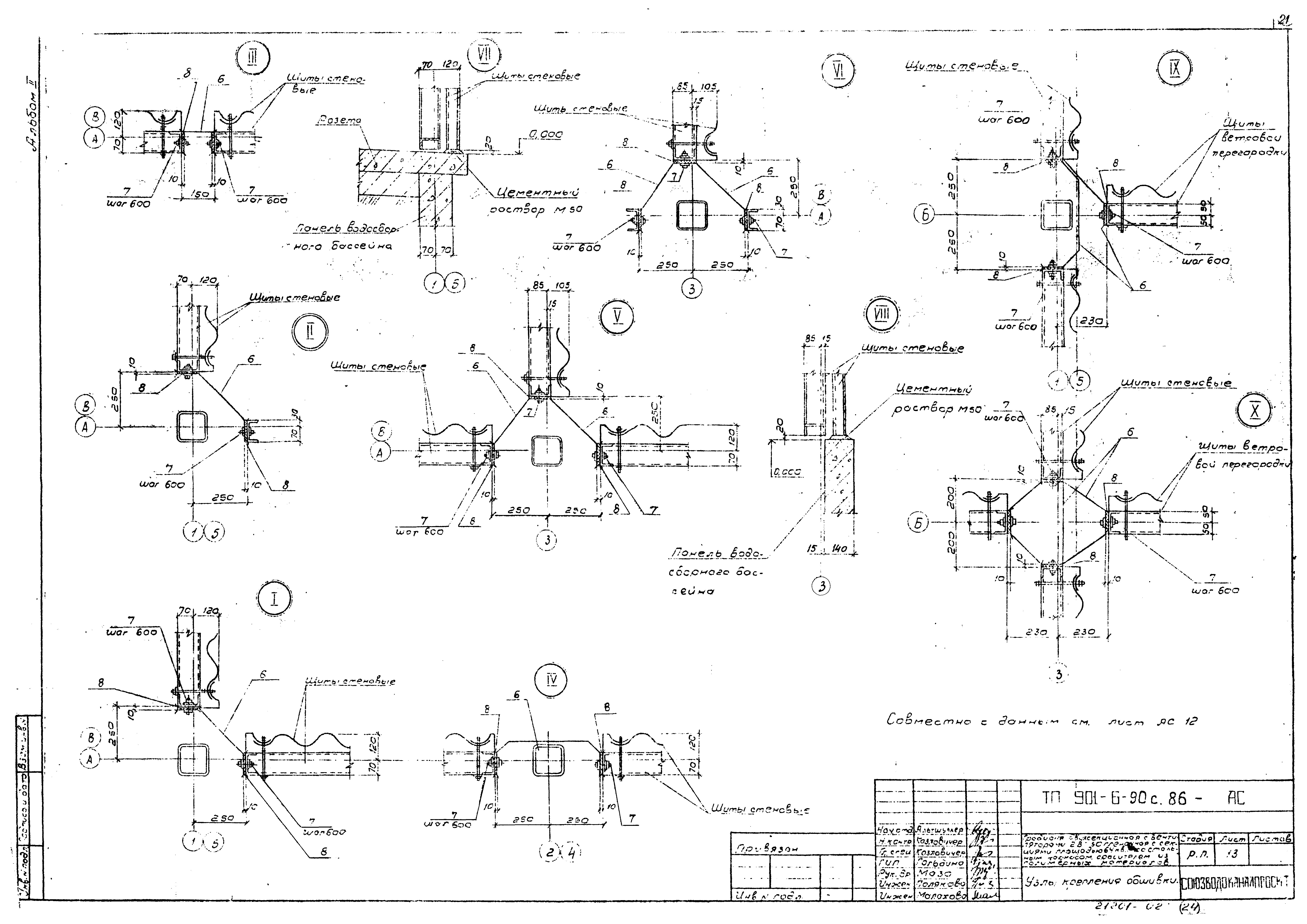
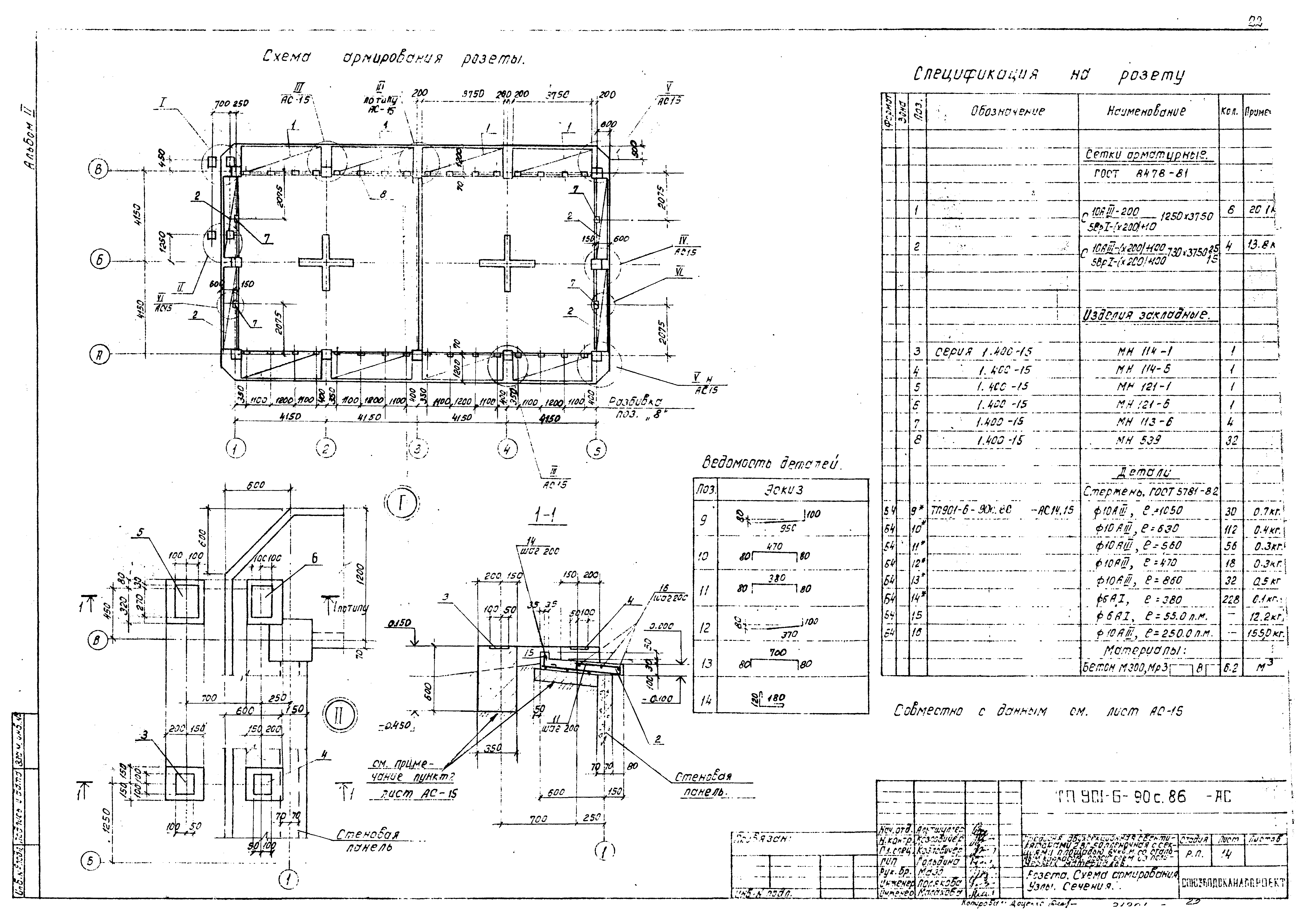
| Оглавление: | Технологические чертежи Общие данные Общий вид градирни Водосборный резервуар. План. Разрезы. Узлы План расстановки блоков пленочного оросителя. Разрезы Водораспределительная система. План на отм. 4.300. Разрезы План расстановки водоуловительных решеток. Разрезы Архитектурно-строительные чертежи Общие данные Фасады. План. Детали Водосборный резервуар. Днище. План. Сечения Водосборный резервуар. Днище. Схема армирования Водосборный резервуар. Схема расположения панелей и опор. Узлы Водосборный резервуар. Монолитные участки Ум1…Ум3. Армирование Водосборный резервуар. Опора ОП1 Водосборный бассейн. Армирование опоры ОП1 Схемы расположения щитов обшивки Узлы крепления обшивки Розета. Схема армирования. Узлы. Сечения |
| Разработан: | ЦНИИпроектстальконструкция Союзводоканалниипроект Ростовский Водоканалпроект |
| Утверждён: | 15.01.1986 Госстрой СССР (Государственный комитет Совета Министров СССР по делам строительства) (USSR Gosstroy АЧ-3) |






















