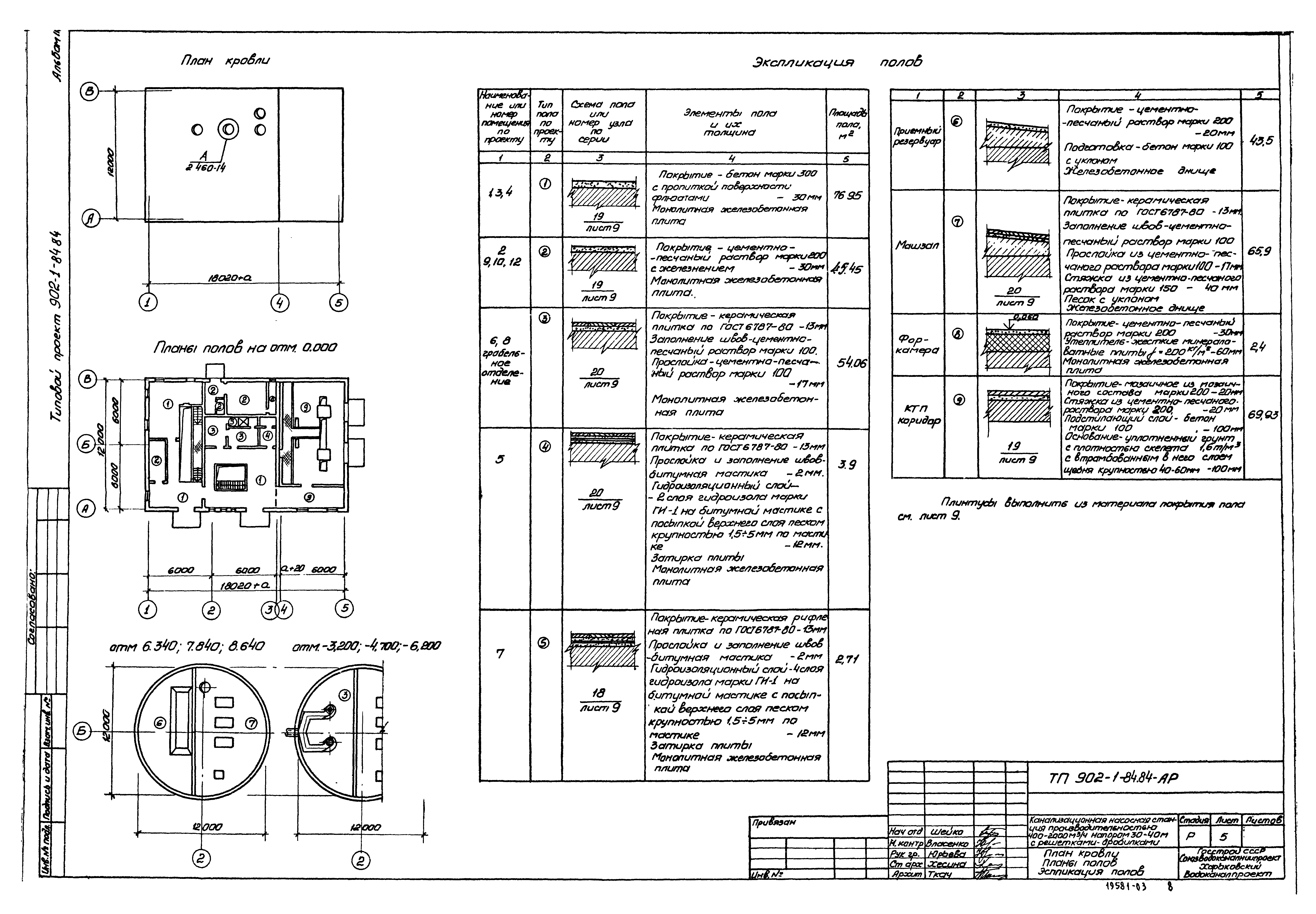
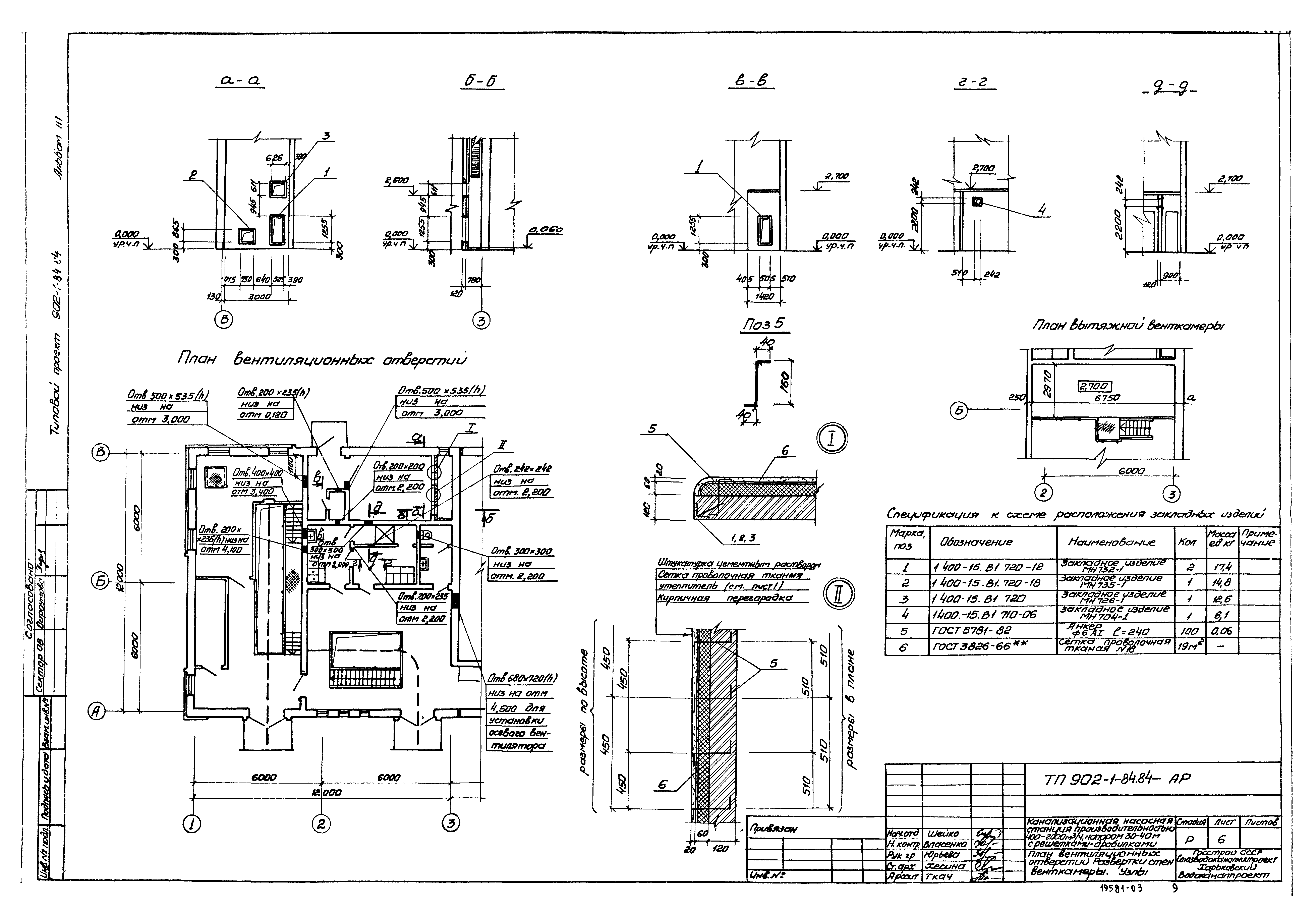
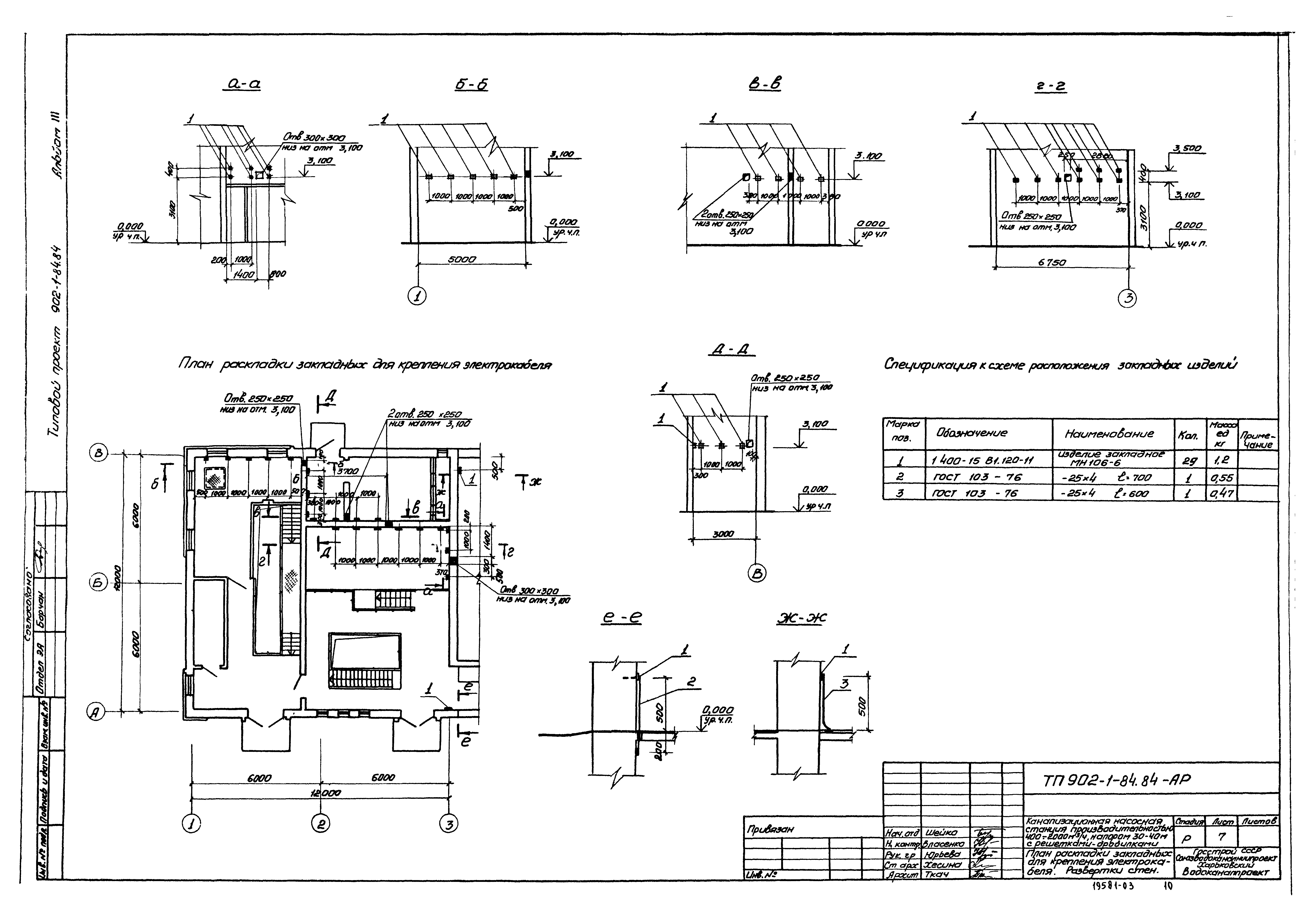
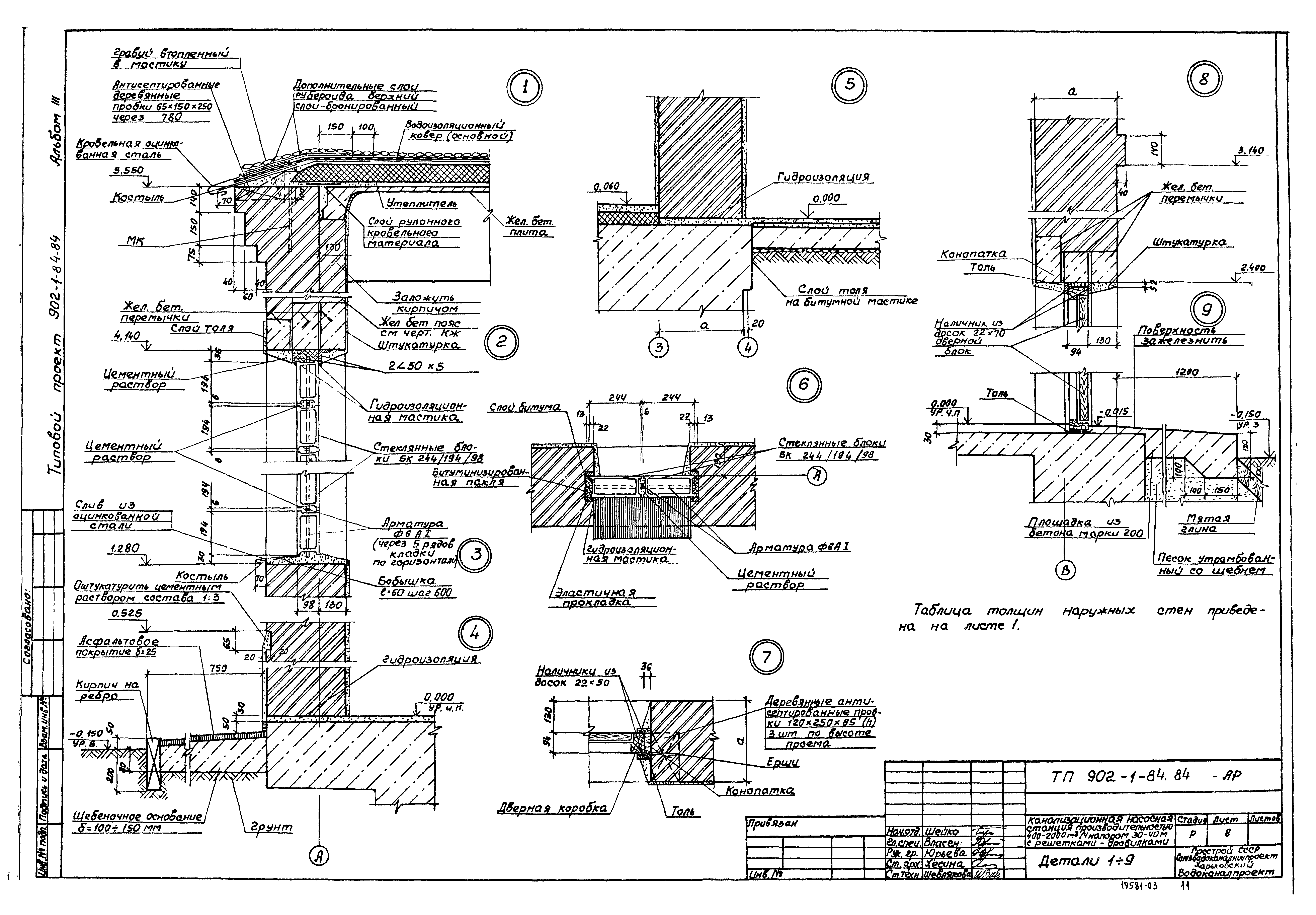
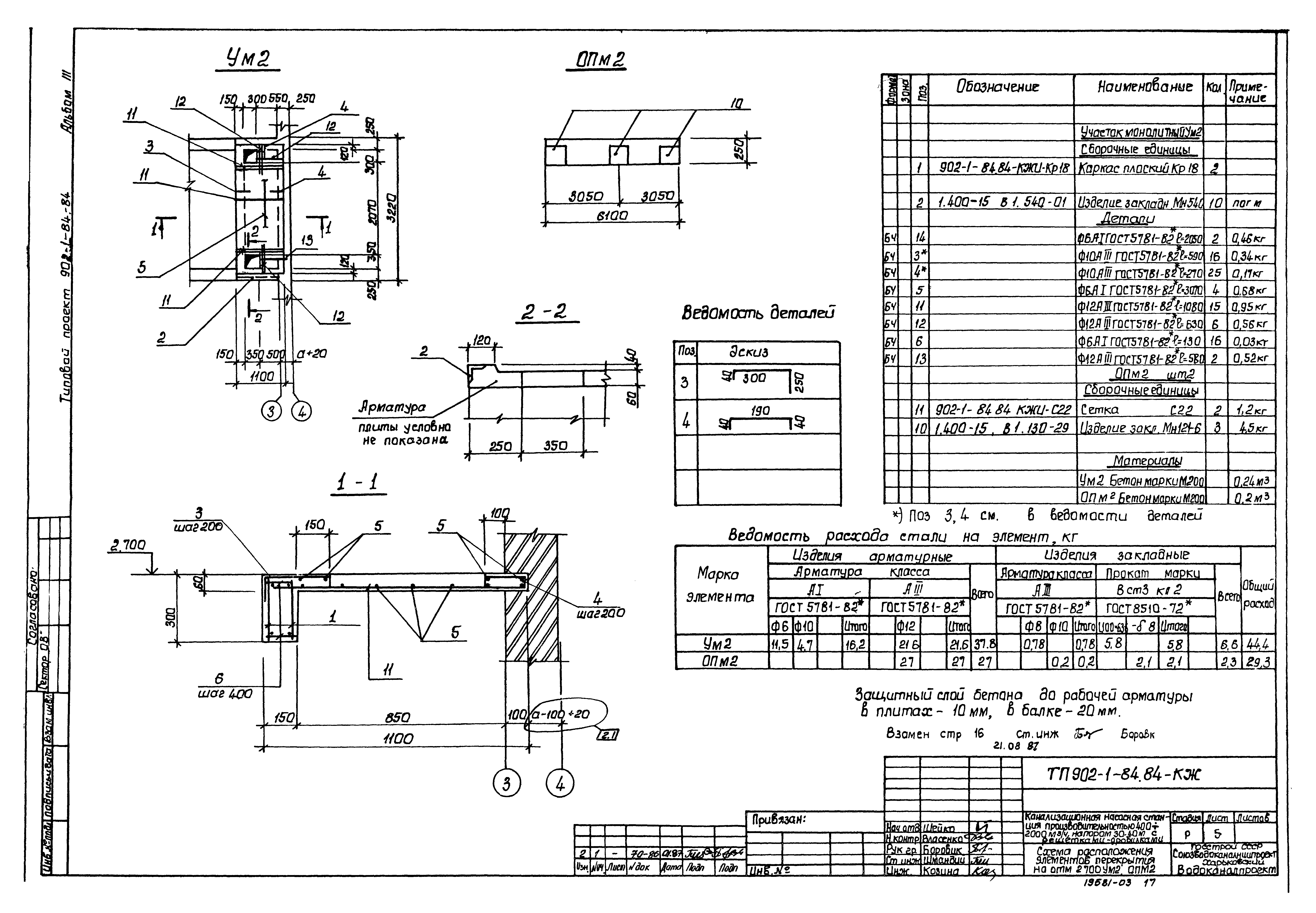
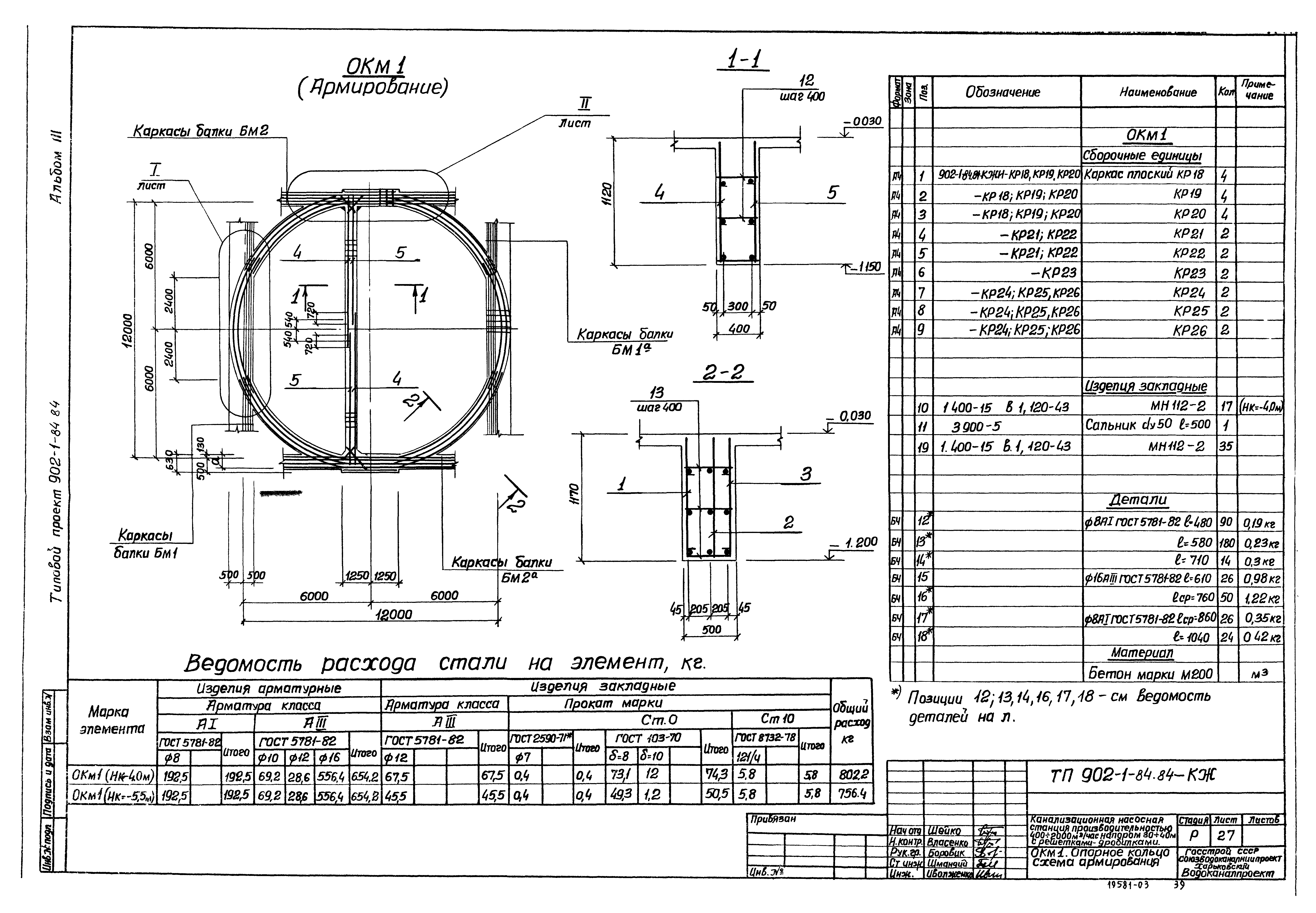
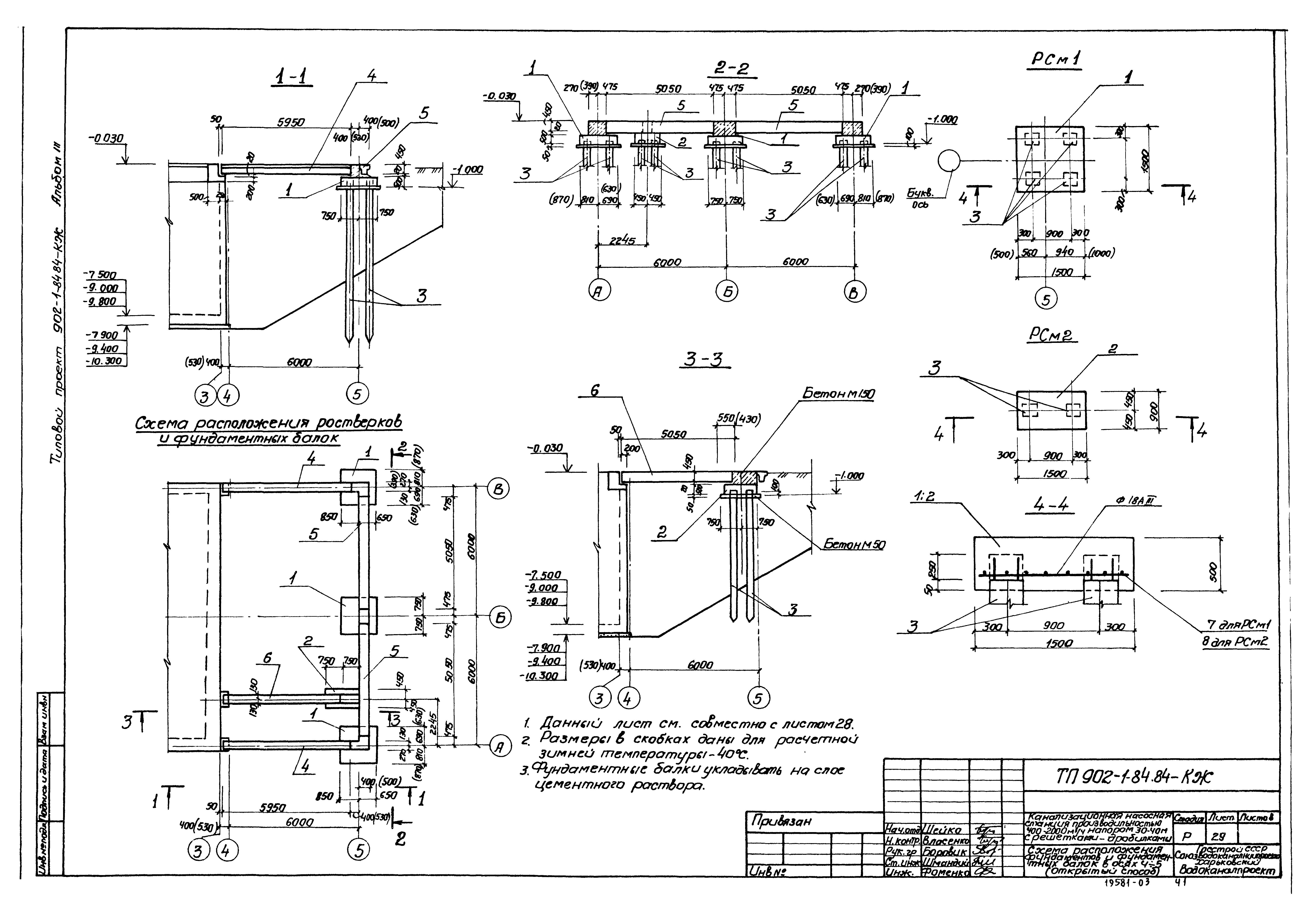
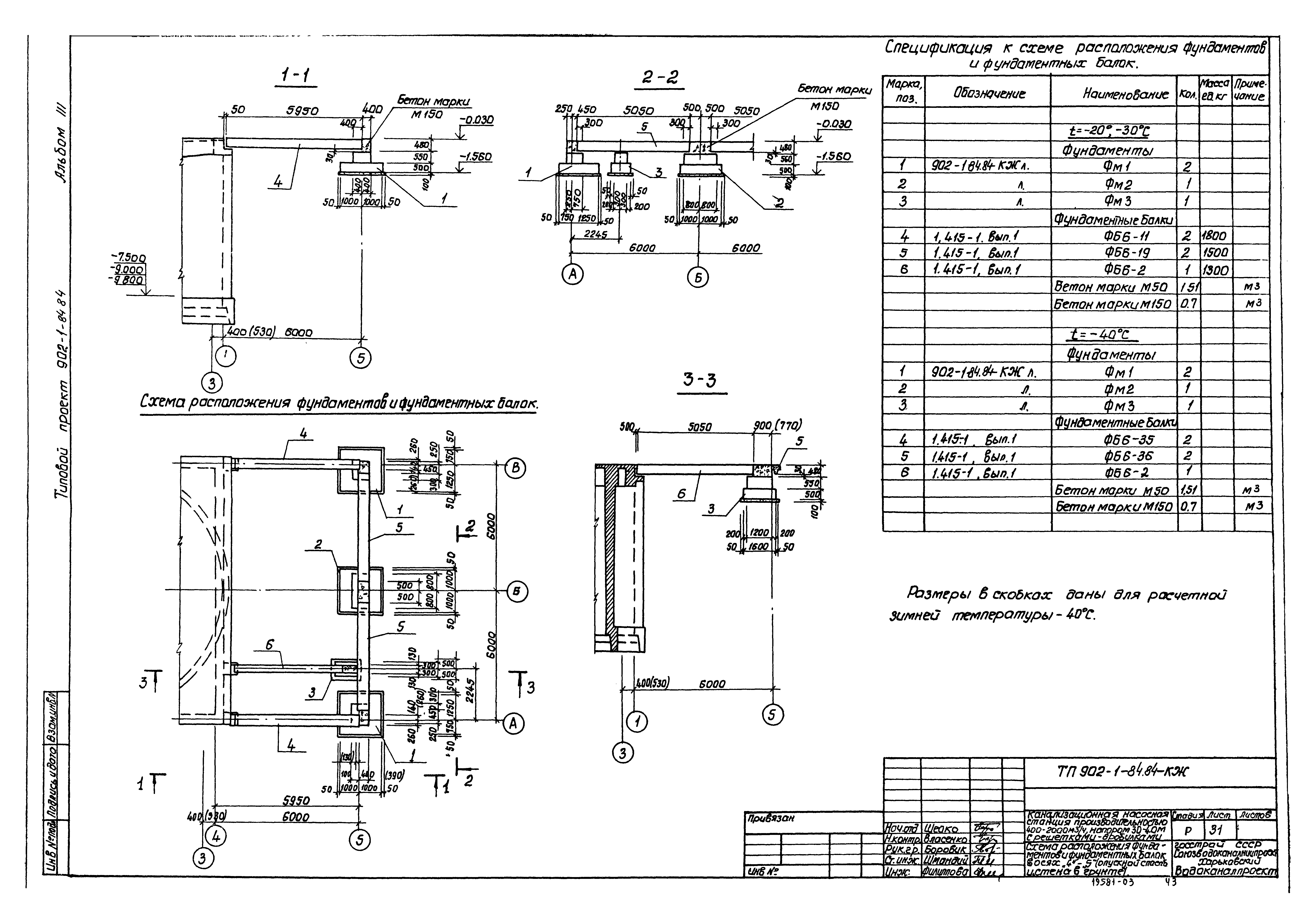
Скачать Типовой проект 902-1-91.84 Альбом III. Архитектурно-строительные решения. Надземная часть. Общие чертежи, узлы и детали (из ТП 902-1-84.84)Дата актуализации: 01.01.2021 Типовой проект 902-1-91.84
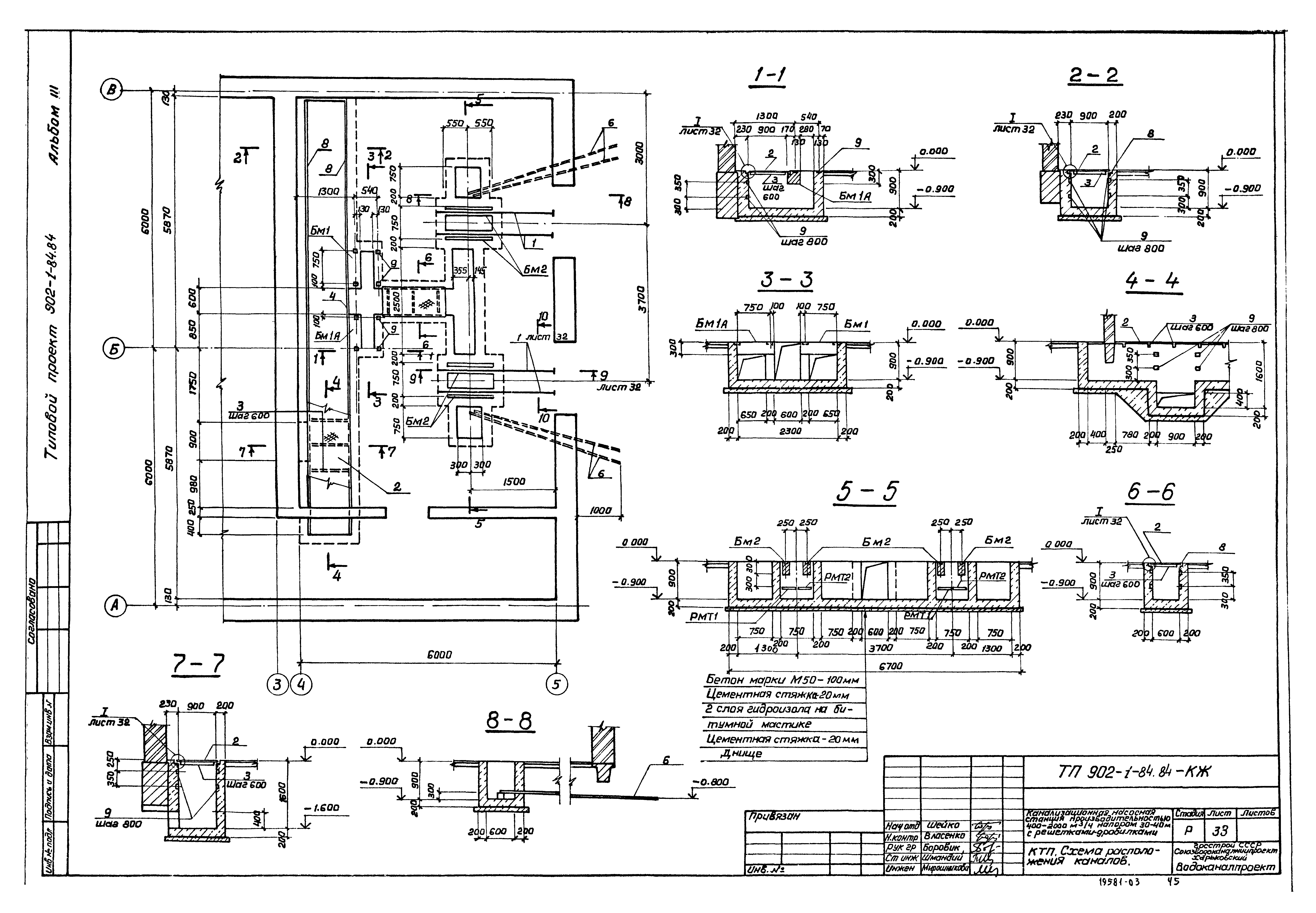
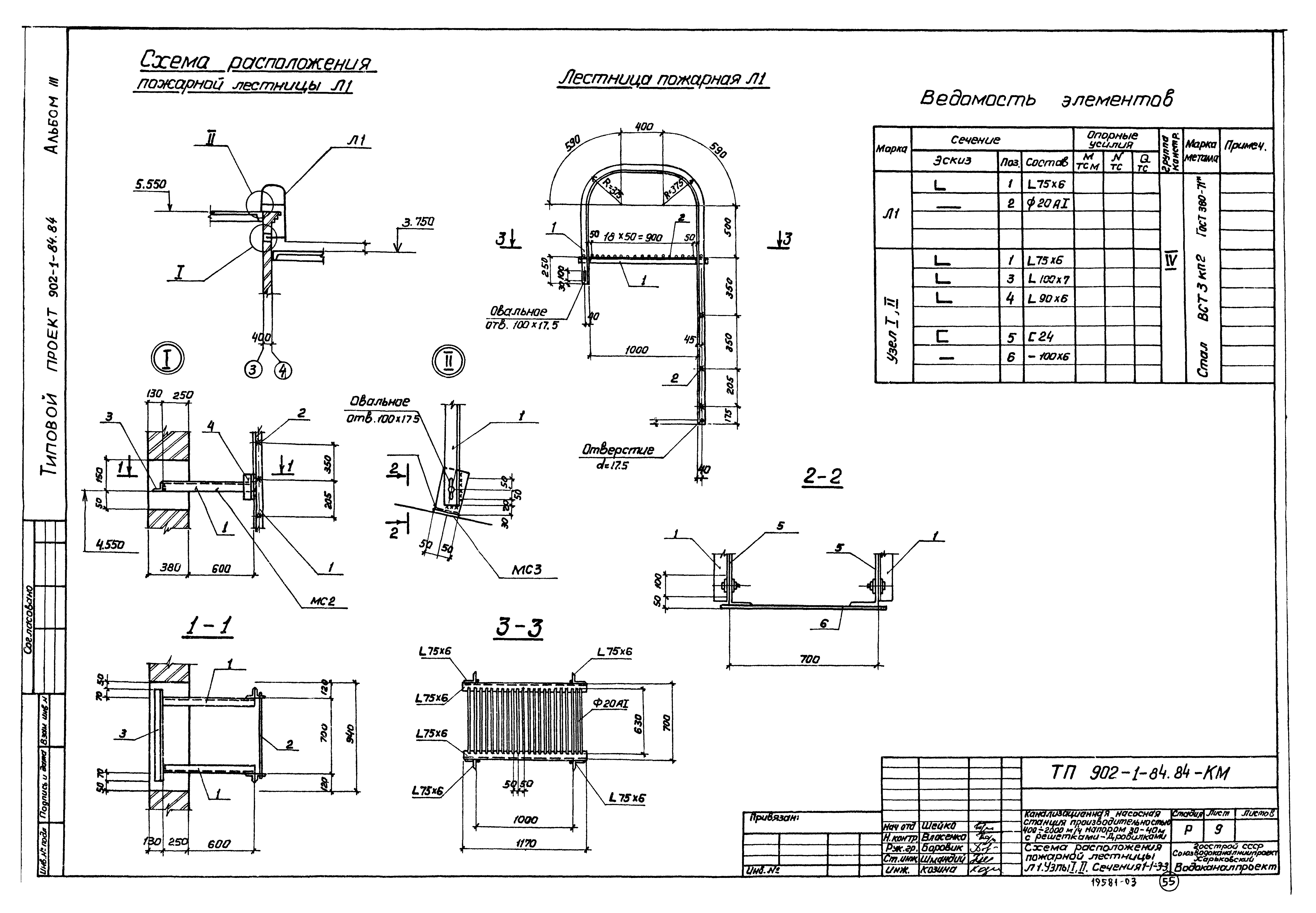
Альбом III. Архитектурно-строительные решения. Надземная часть. Общие чертежи, узлы и детали (из ТП 902-1-84.84)| Обозначение: | Типовой проект 902-1-91.84 | | Обозначение англ: | 902-1-91.84 | | Статус: | действует | | Название рус.: | Альбом III. Архитектурно-строительные решения. Надземная часть. Общие чертежи, узлы и детали (из ТП 902-1-84.84) | | Дата добавления в базу: | 01.09.2013 | | Дата актуализации: | 01.01.2021 | | Дата введения: | 18.04.1984 | | Разработан: | Харьковский Водоканалпроект
| | Утверждён: | 27.10.1983 СоюзводоканалНИИпроект (SoyuzvodokanalNIIproject 59)
|
                                                     
|