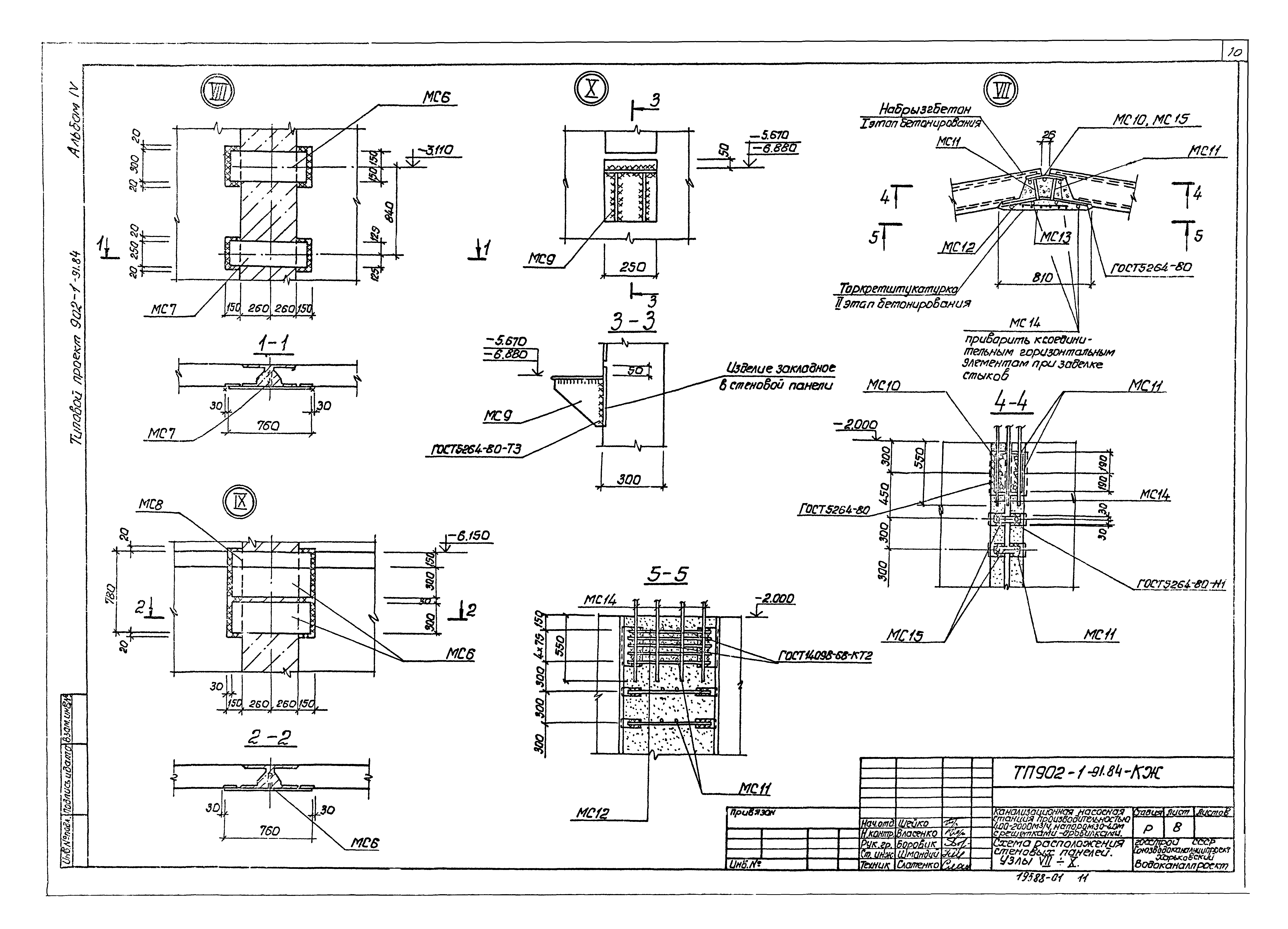
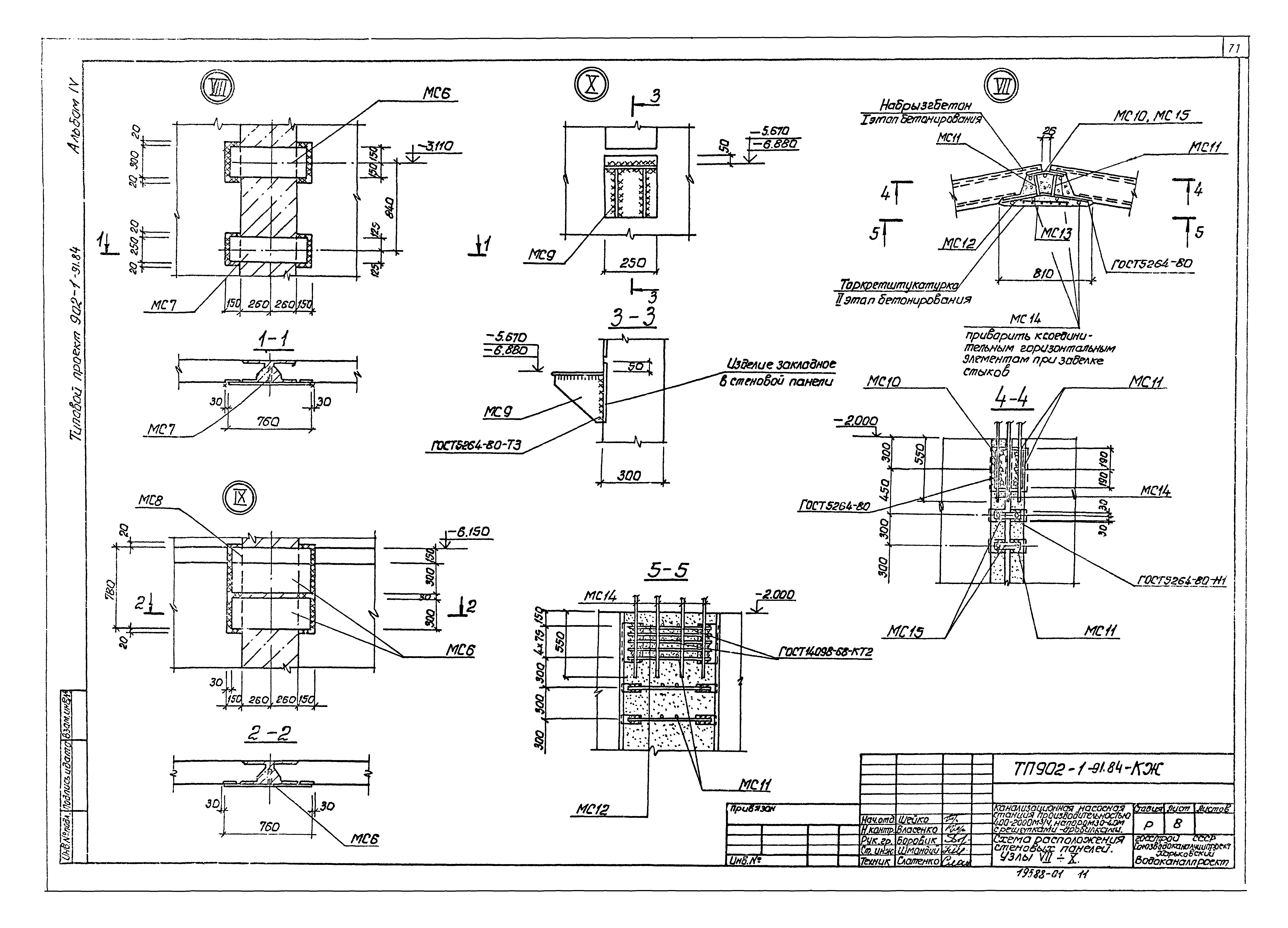
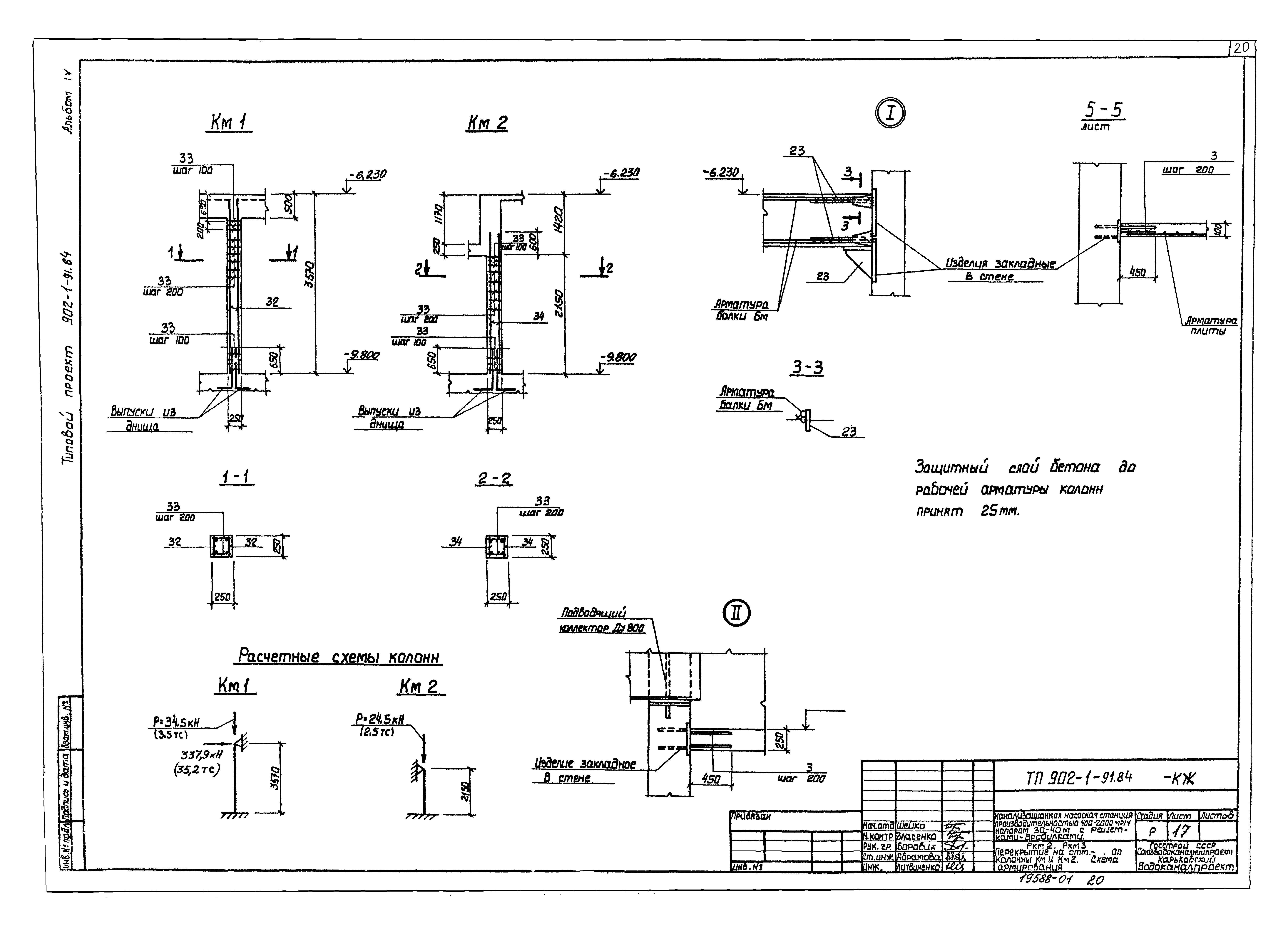
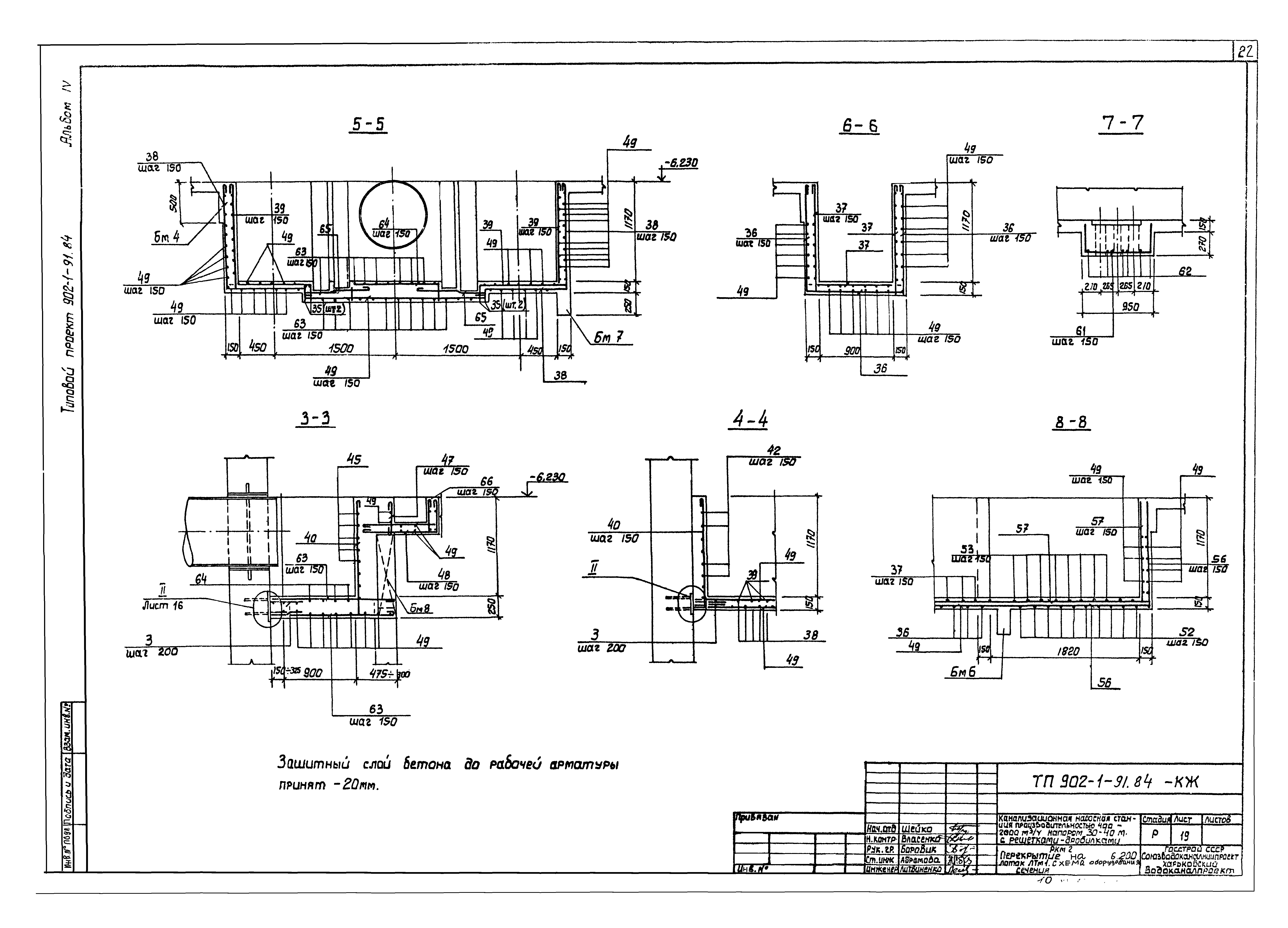
Скачать Типовой проект 902-1-91.84 Альбом IV. Строительные решения. Подземная частьДата актуализации: 01.01.2021 Типовой проект 902-1-91.84
Альбом IV. Строительные решения. Подземная часть| Обозначение: | Типовой проект 902-1-91.84 | | Обозначение англ: | 902-1-91.84 | | Статус: | действует | | Название рус.: | Альбом IV. Строительные решения. Подземная часть | | Дата добавления в базу: | 01.09.2013 | | Дата актуализации: | 01.01.2021 | | Дата введения: | 18.04.1984 | | Разработан: | Харьковский Водоканалпроект
| | Утверждён: | 27.10.1983 СоюзводоканалНИИпроект (SoyuzvodokanalNIIproject 59) СоюзводоканалНИИпроект (SoyuzvodokanalNIIproject )
|
                                      
|