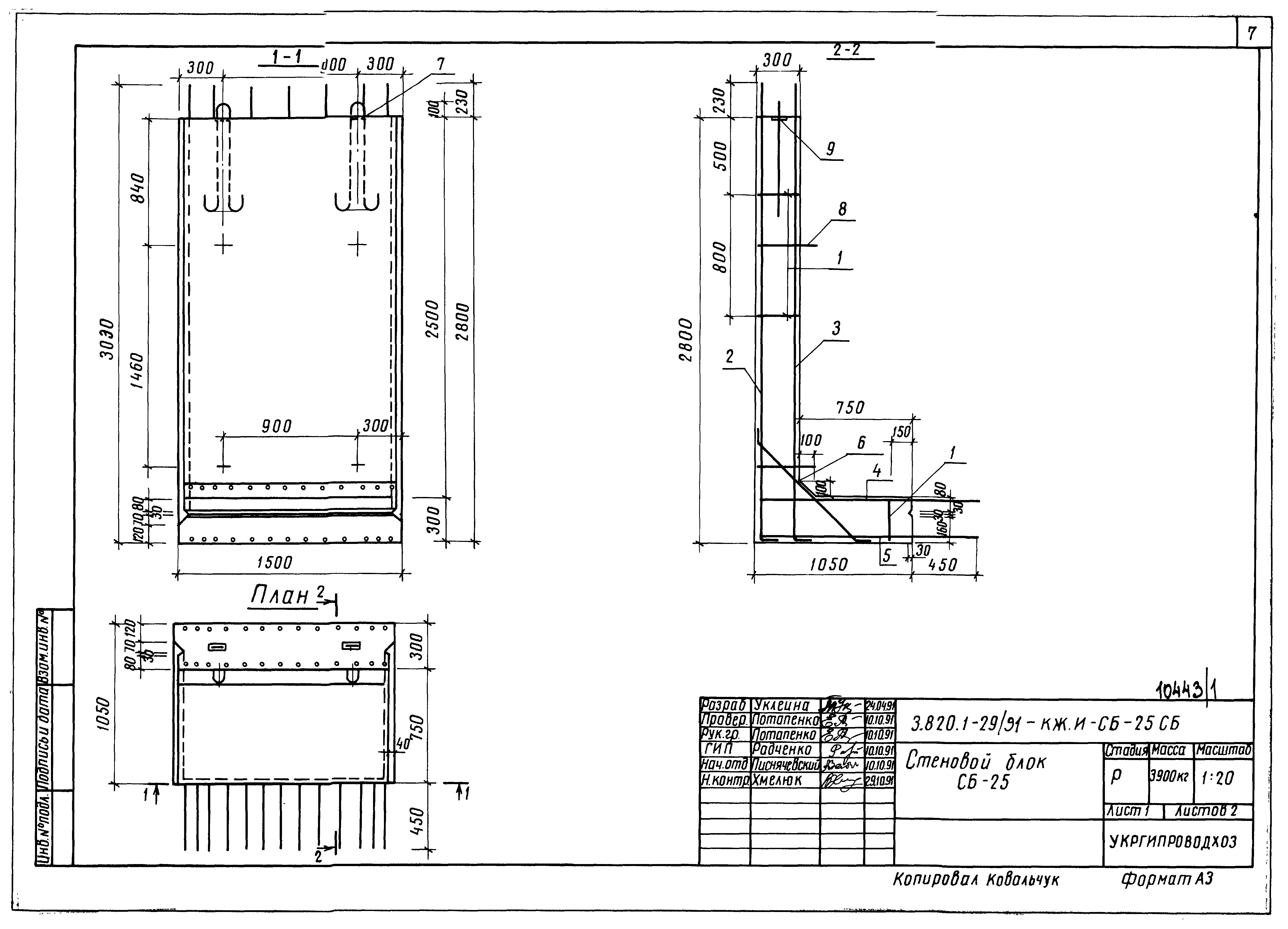
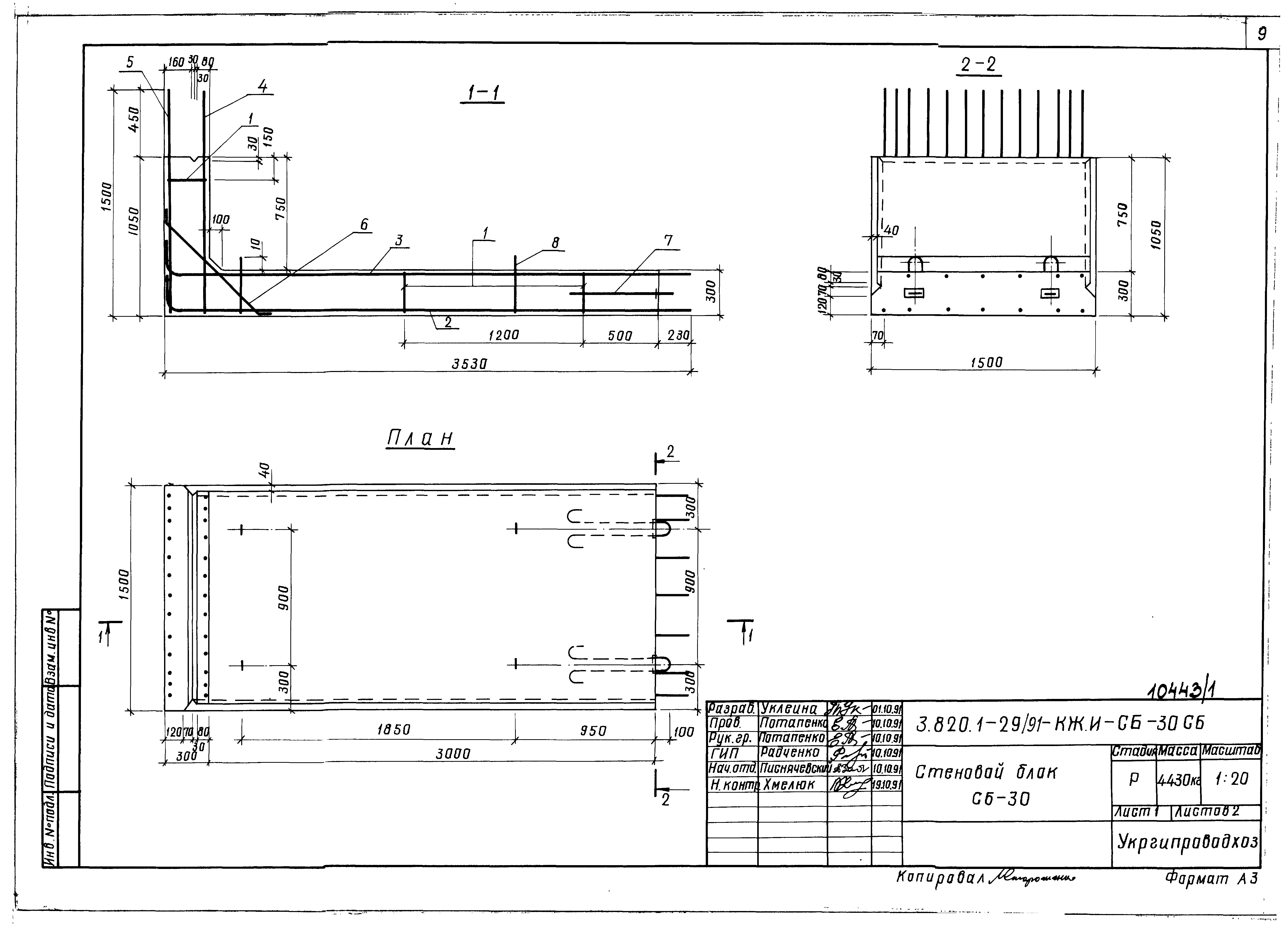
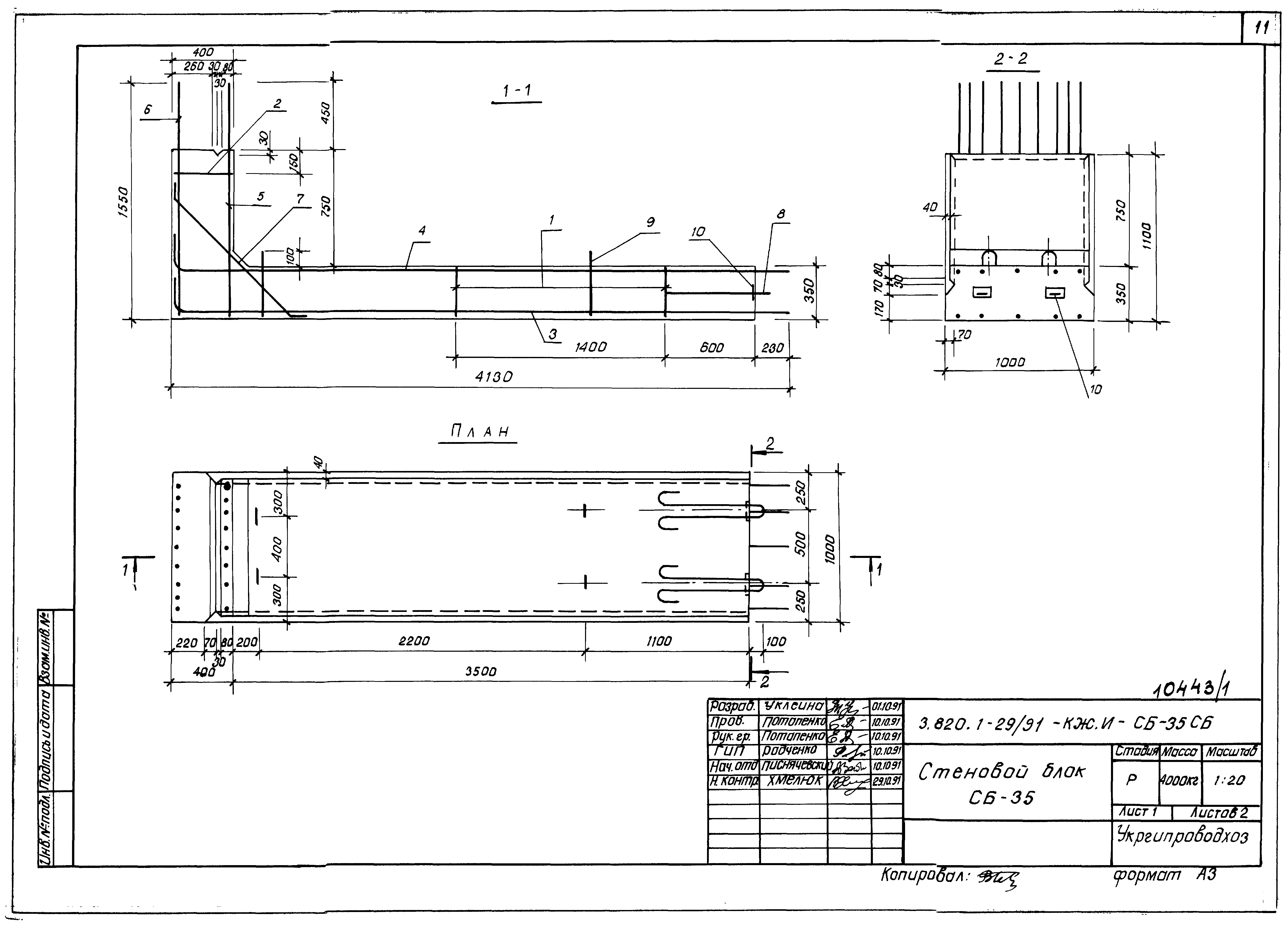
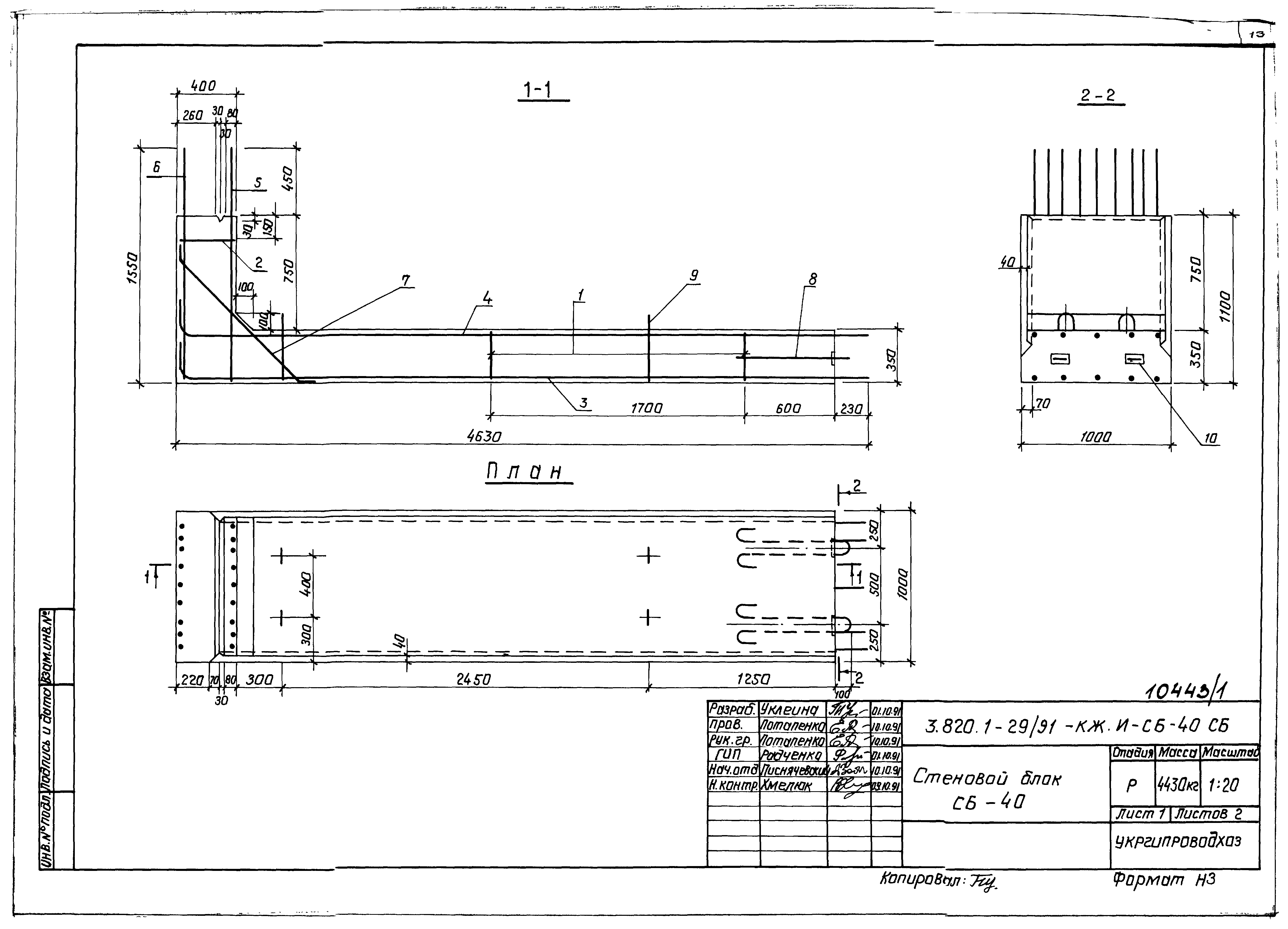
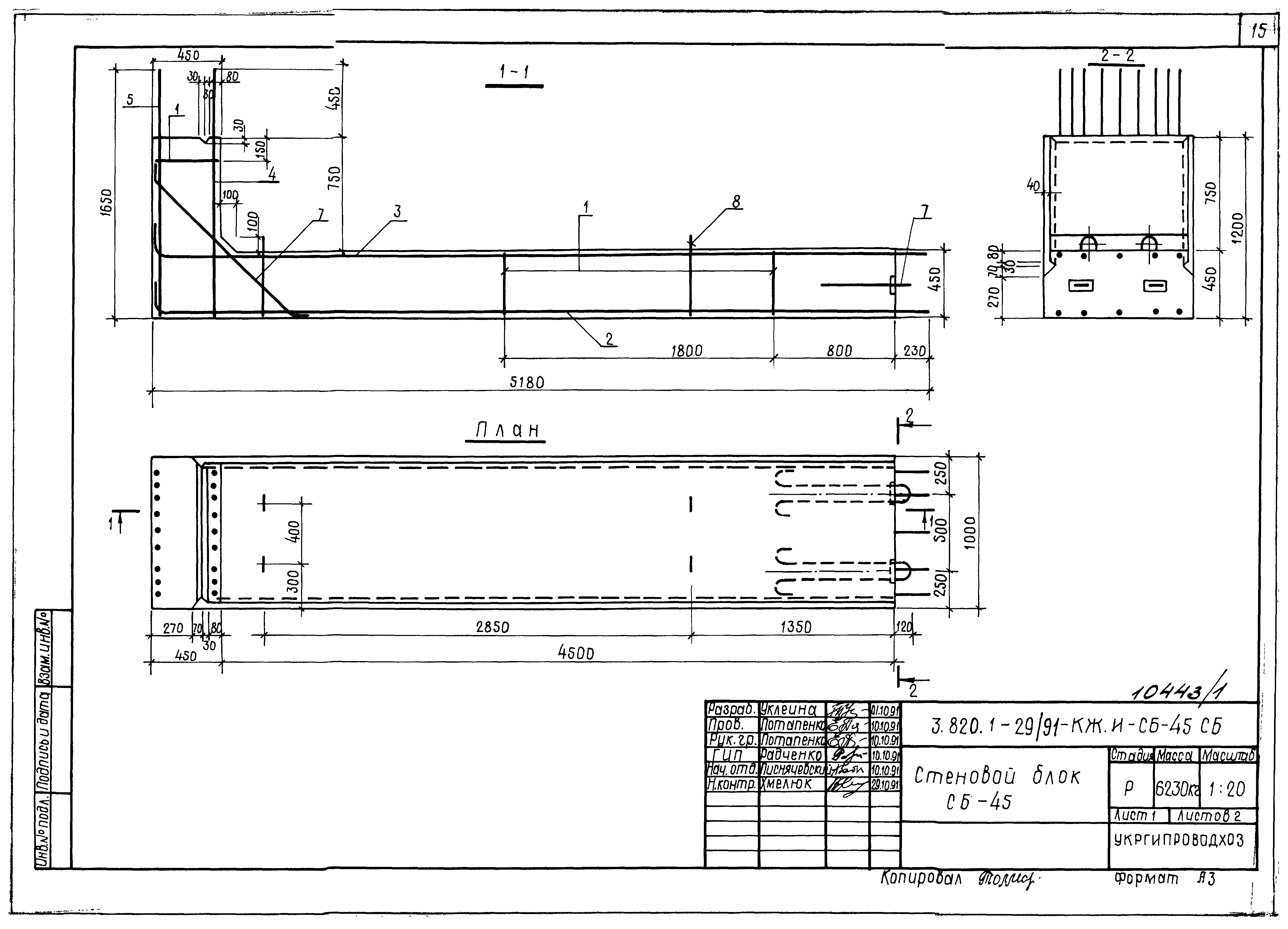
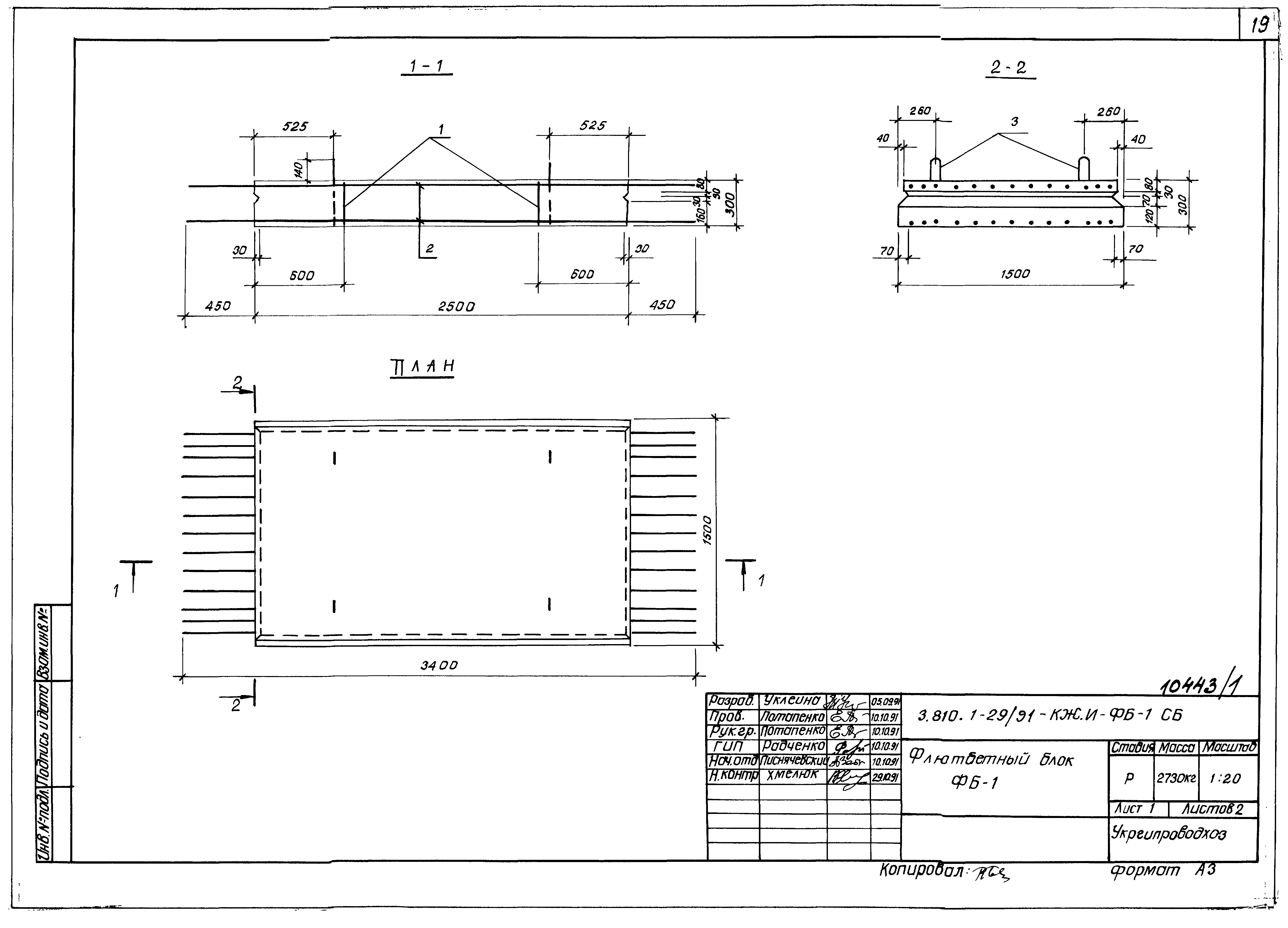
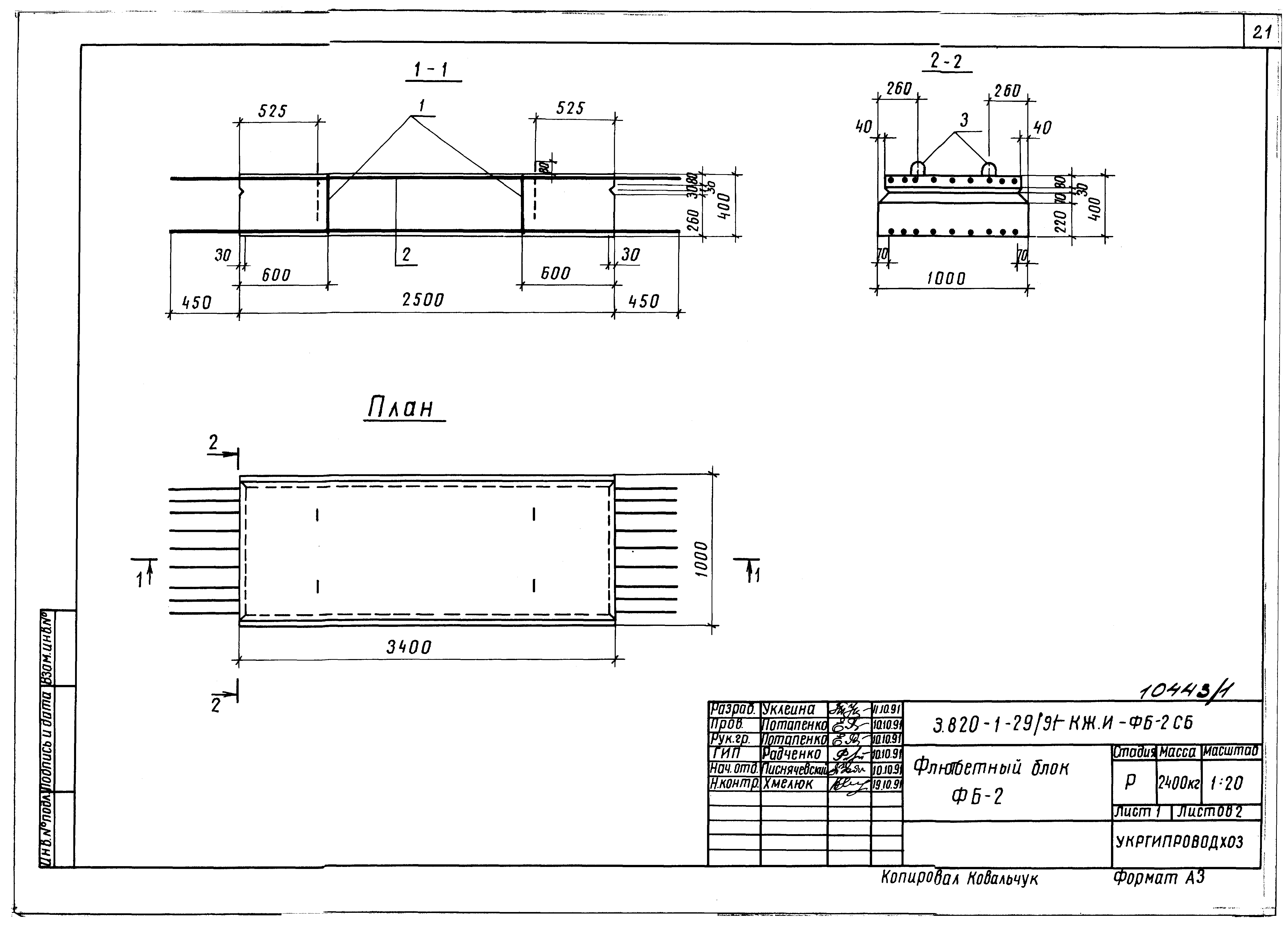
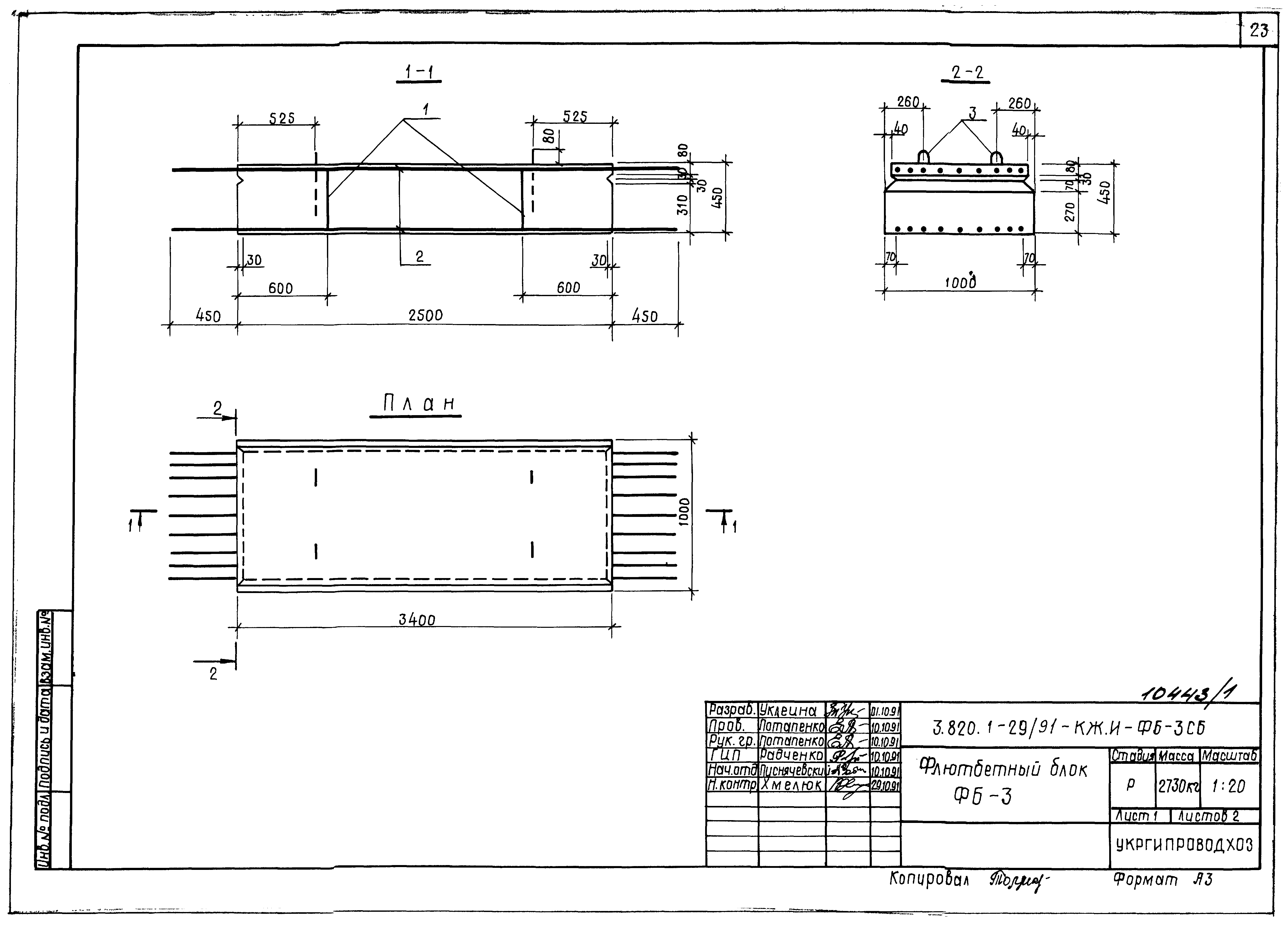
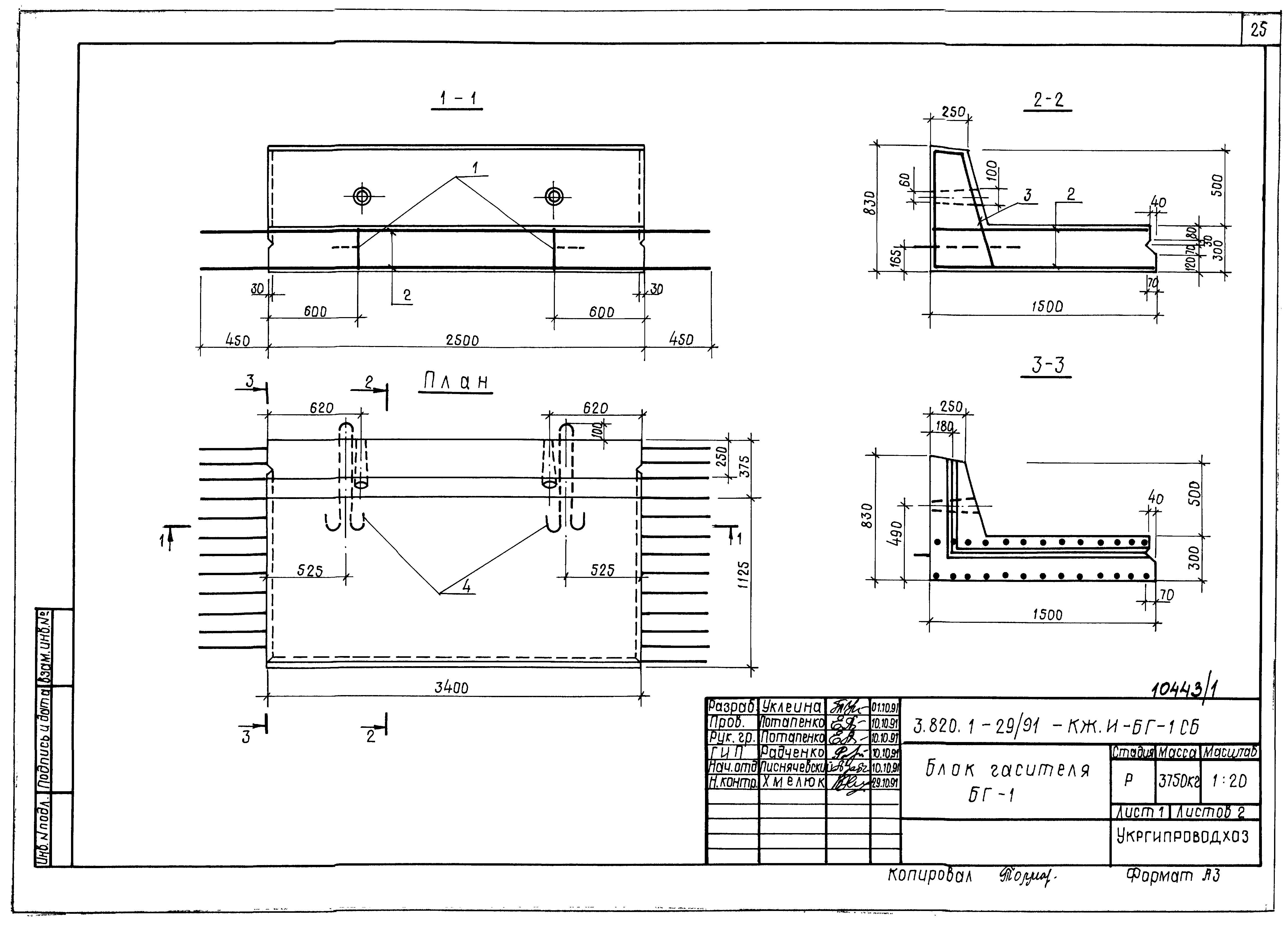
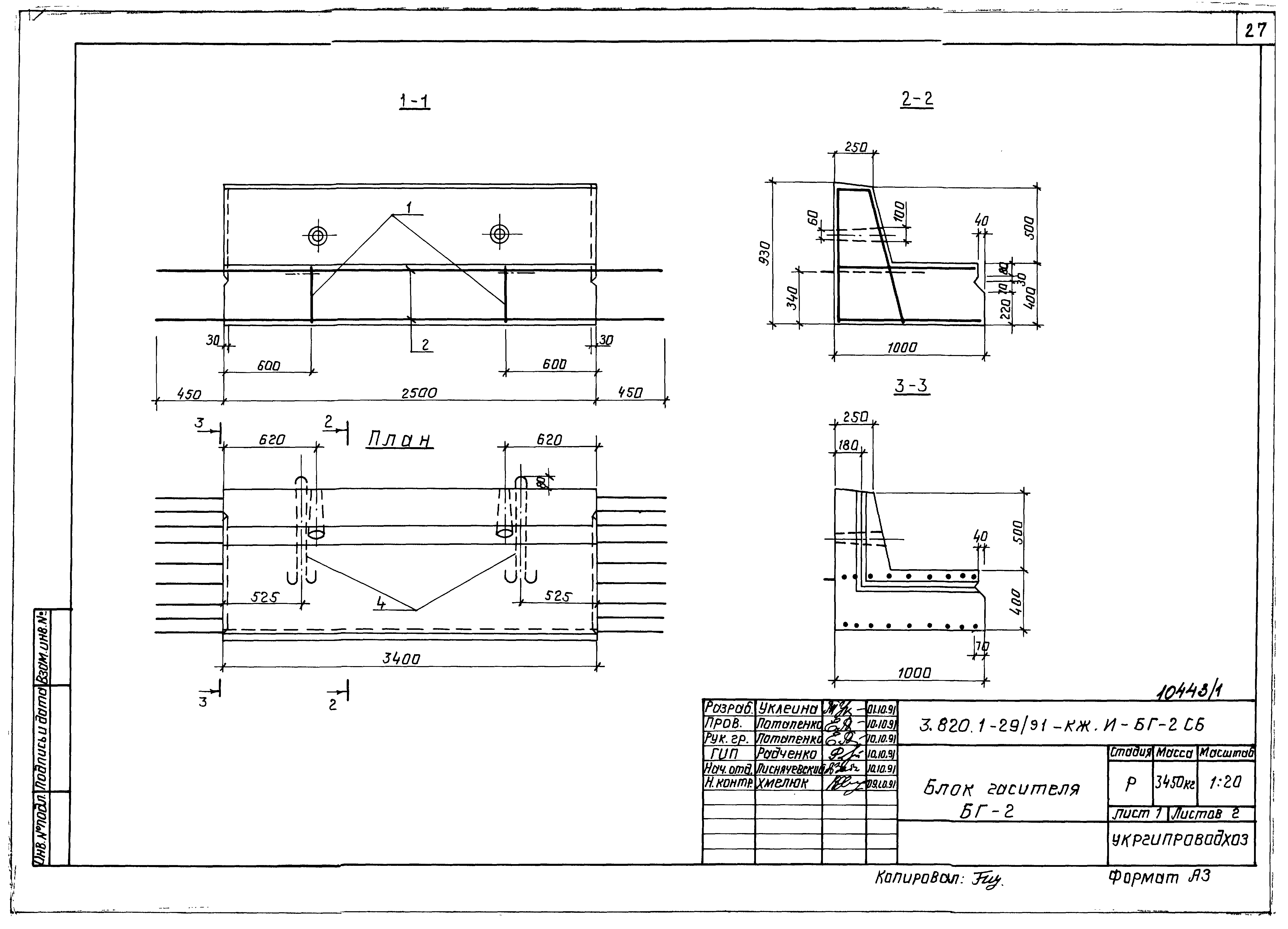
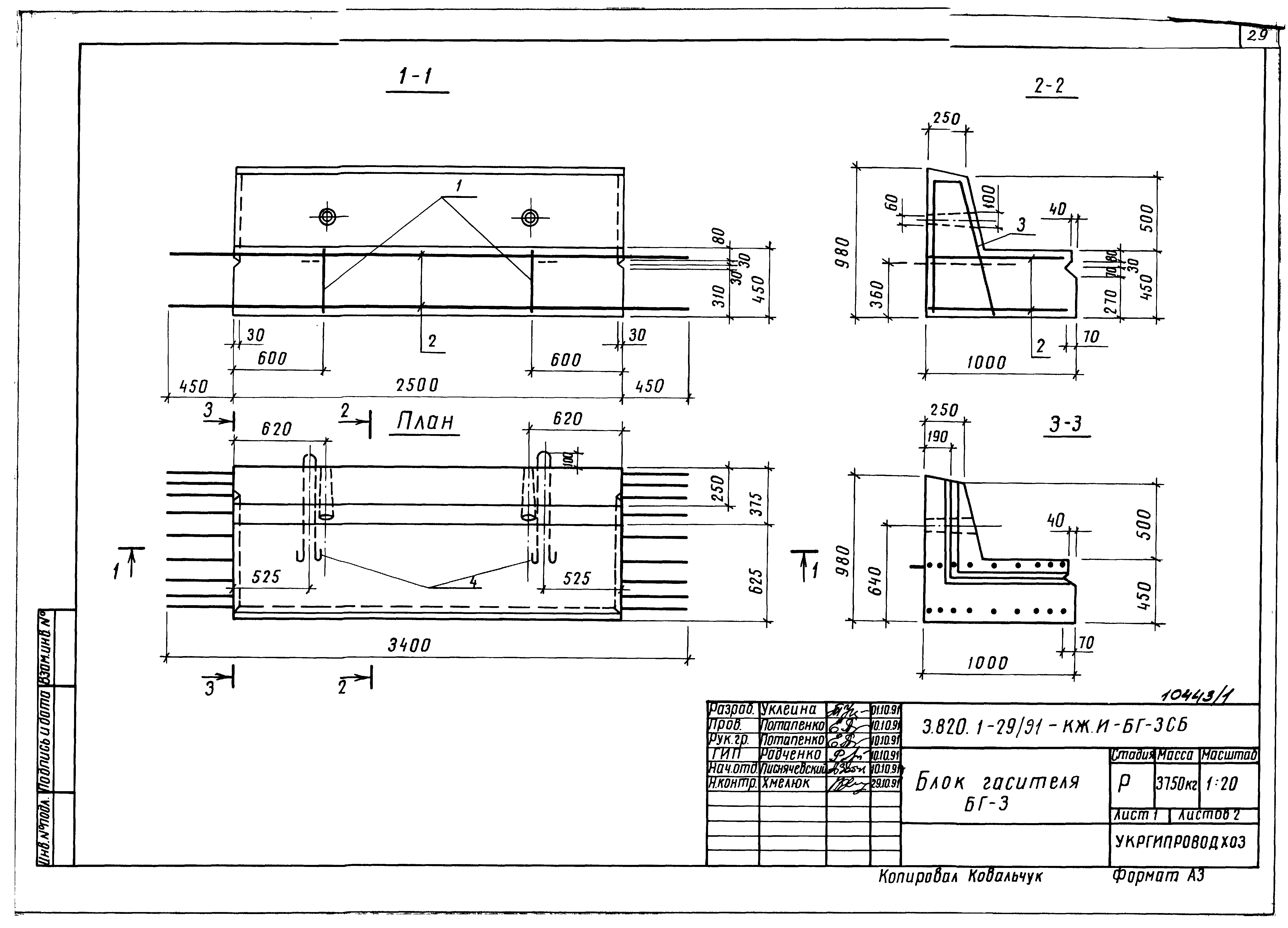
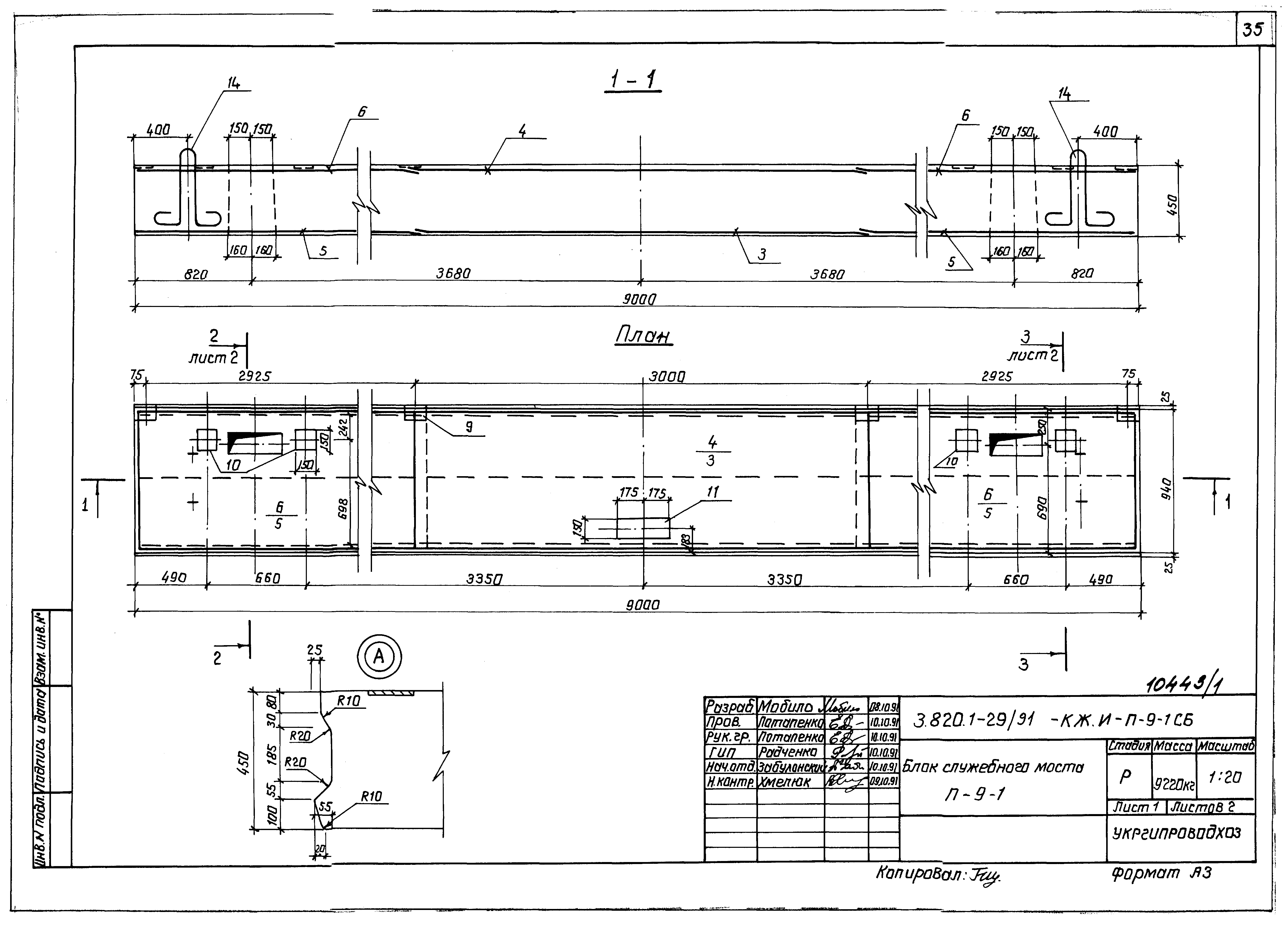
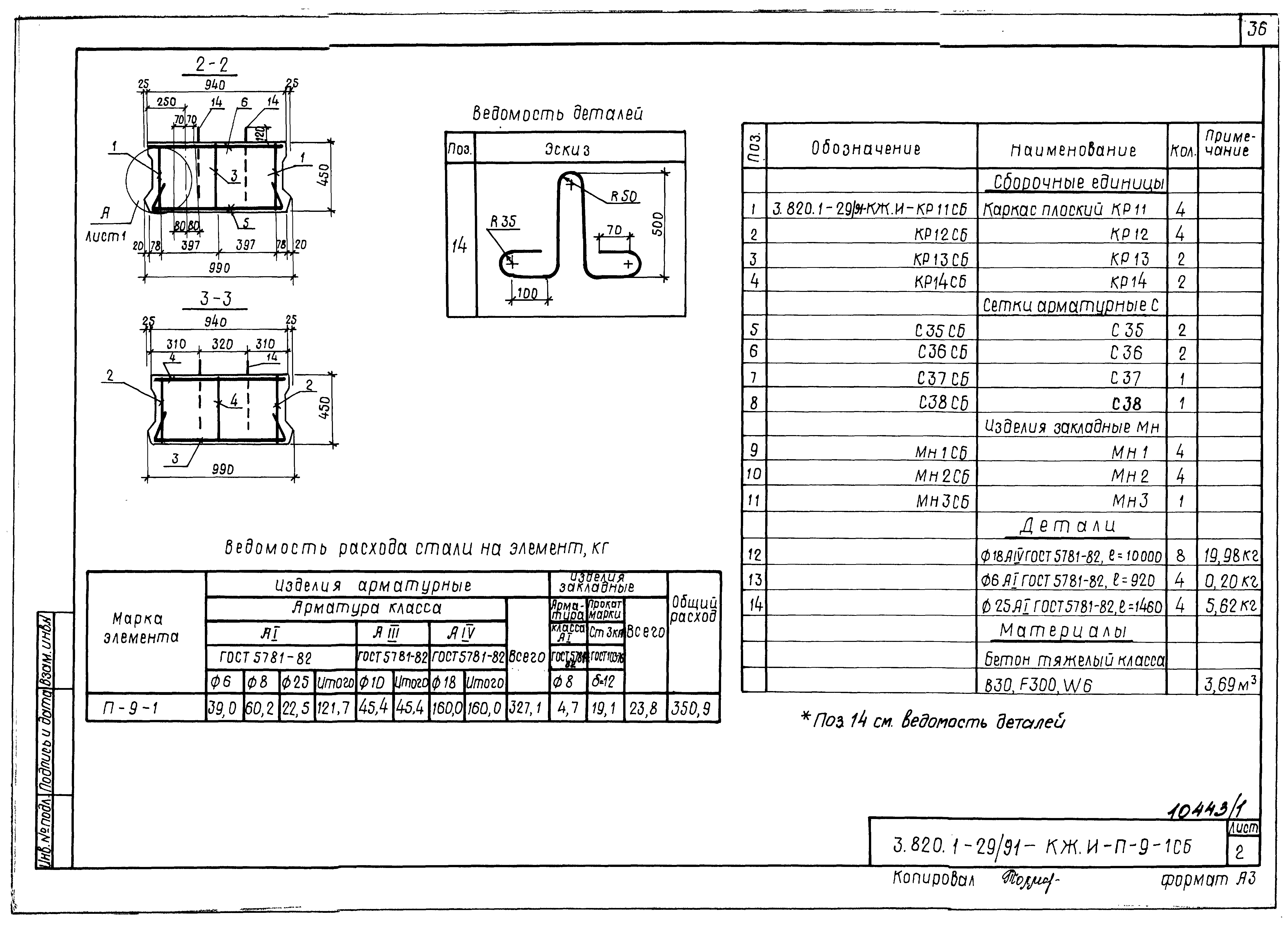
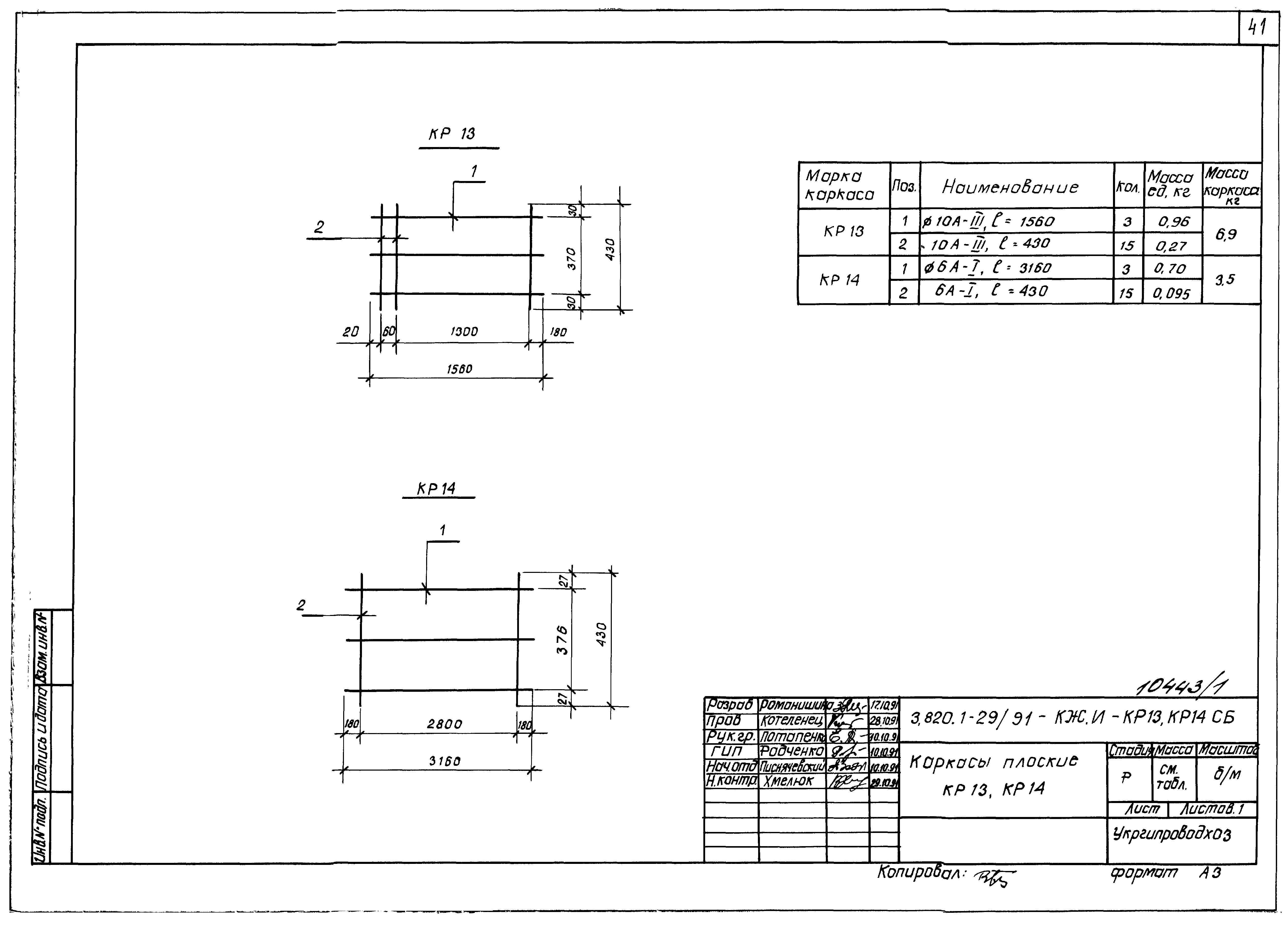
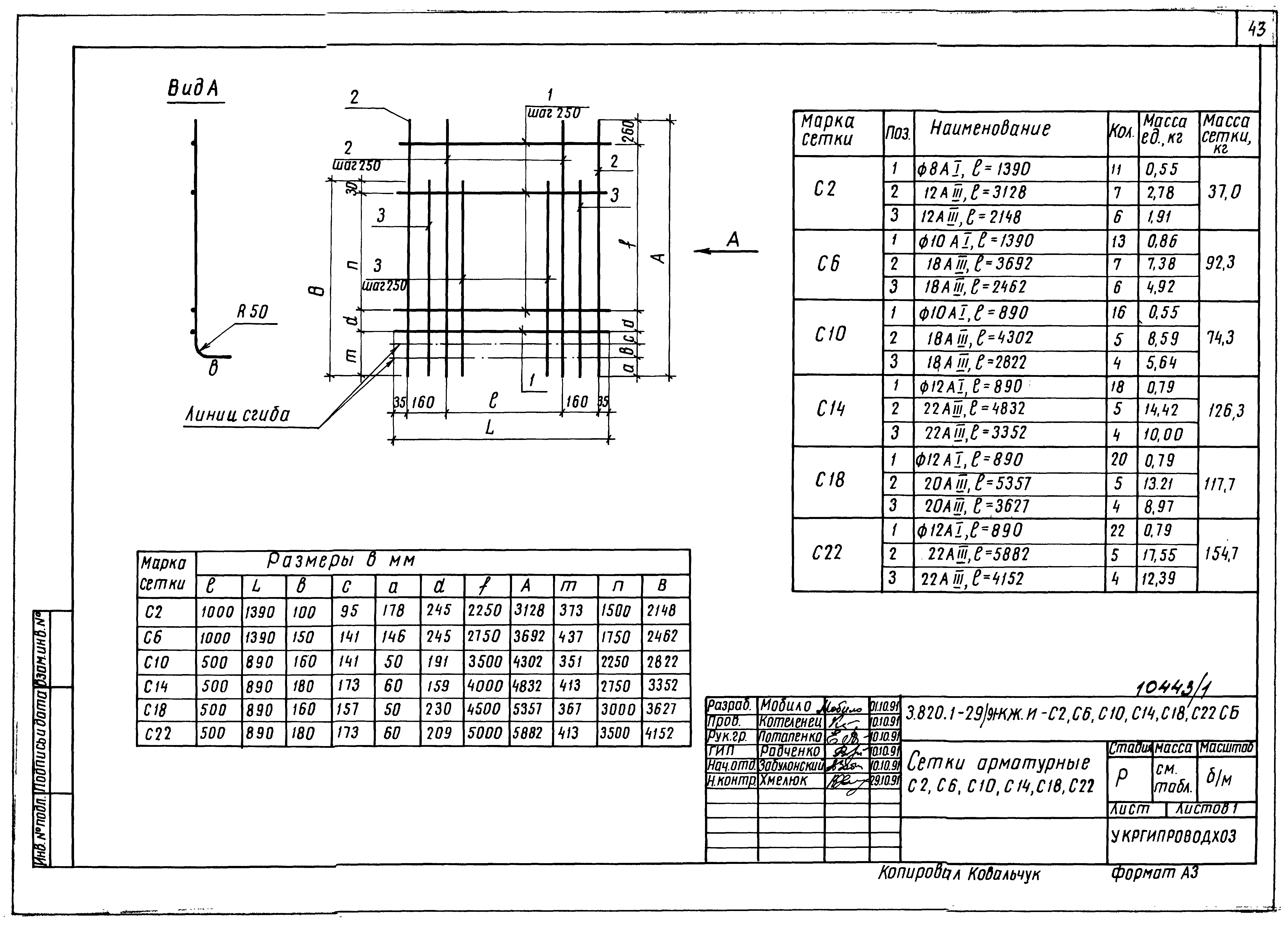
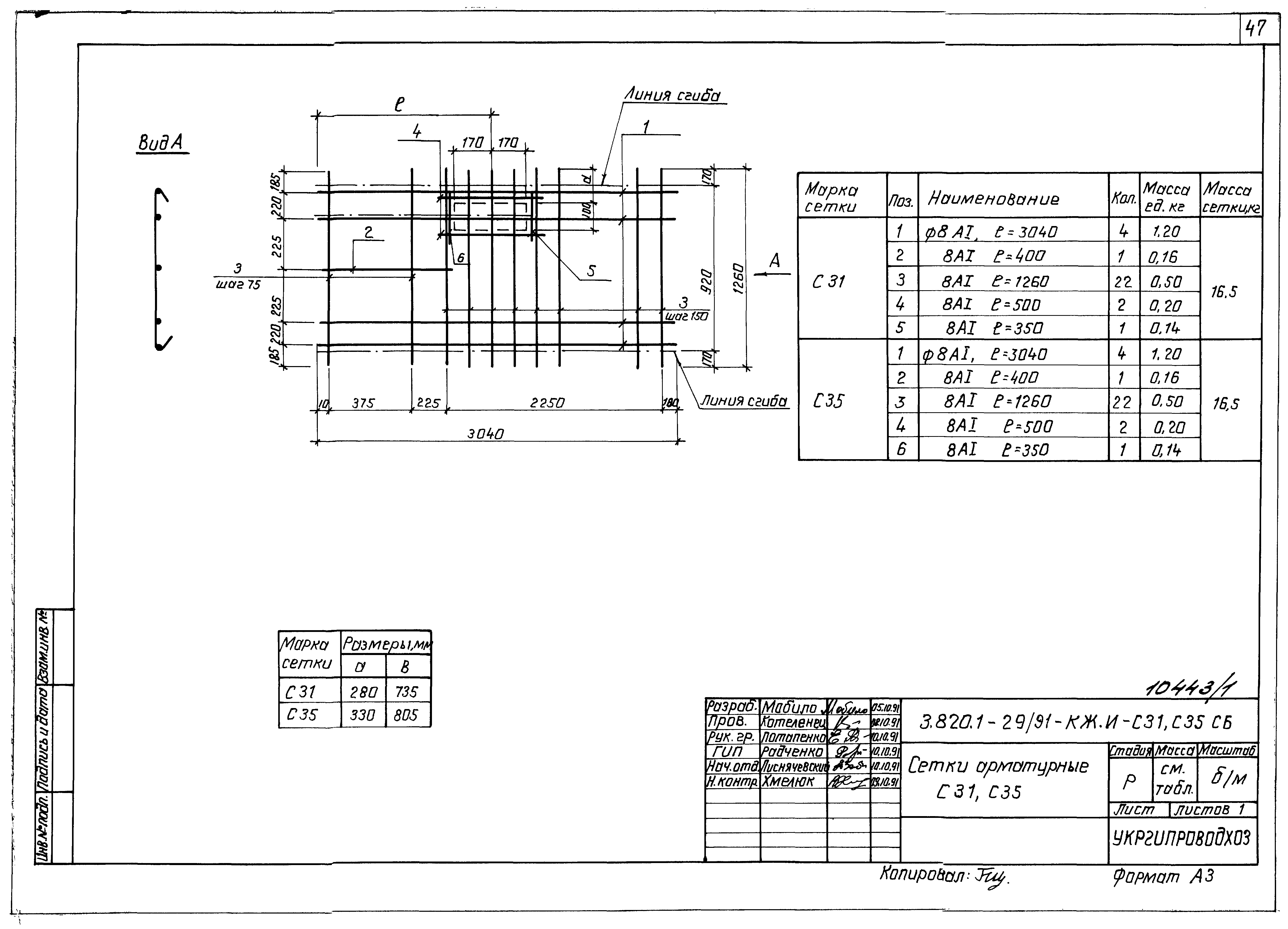
Скачать Серия 3.820.1-29/91 Конструкции шлюзов-регуляторов с расходами воды от 10 до 150 куб. м/с. Рабочие чертежиДата актуализации: 01.01.2021
|
| Обозначение: | Серия 3.820.1-29/91 |
| Обозначение англ: | Series 3.820.1-29/91 |
| Статус: | не определен законодательством |
| Название рус.: | Конструкции шлюзов-регуляторов с расходами воды от 10 до 150 куб. м/с. Рабочие чертежи |
| Дата добавления в базу: | 01.09.2013 |
| Дата актуализации: | 01.01.2021 |
| Дата введения: | 22.11.1991 |
| Дата окончания срока действия: | 30.06.2003 |
| Разработан: | Укргипроводхоз Минводхоза Украинской ССР |
| Утверждён: | 22.11.1991 Госкомводхоз УССР (15) |
| Заменяет собой: |


















































