Скачать Типовой проект 125-050/1,2 Часть 01. Раздел 01-1. Архитектурно-строительные чертежи ниже отм. 0.000. Здания с ленточными фундаментамиДата актуализации: 01.01.2021
|
| Обозначение: | Типовой проект 125-050/1,2 |
| Обозначение англ: | 125-050/1,2 |
| Статус: | не определен законодательством |
| Название рус.: | Часть 01. Раздел 01-1. Архитектурно-строительные чертежи ниже отм. 0.000. Здания с ленточными фундаментами |
| Дата добавления в базу: | 01.09.2013 |
| Дата актуализации: | 01.01.2021 |
| Дата введения: | 25.10.1983 |
| Дата окончания срока действия: | 30.06.2003 |
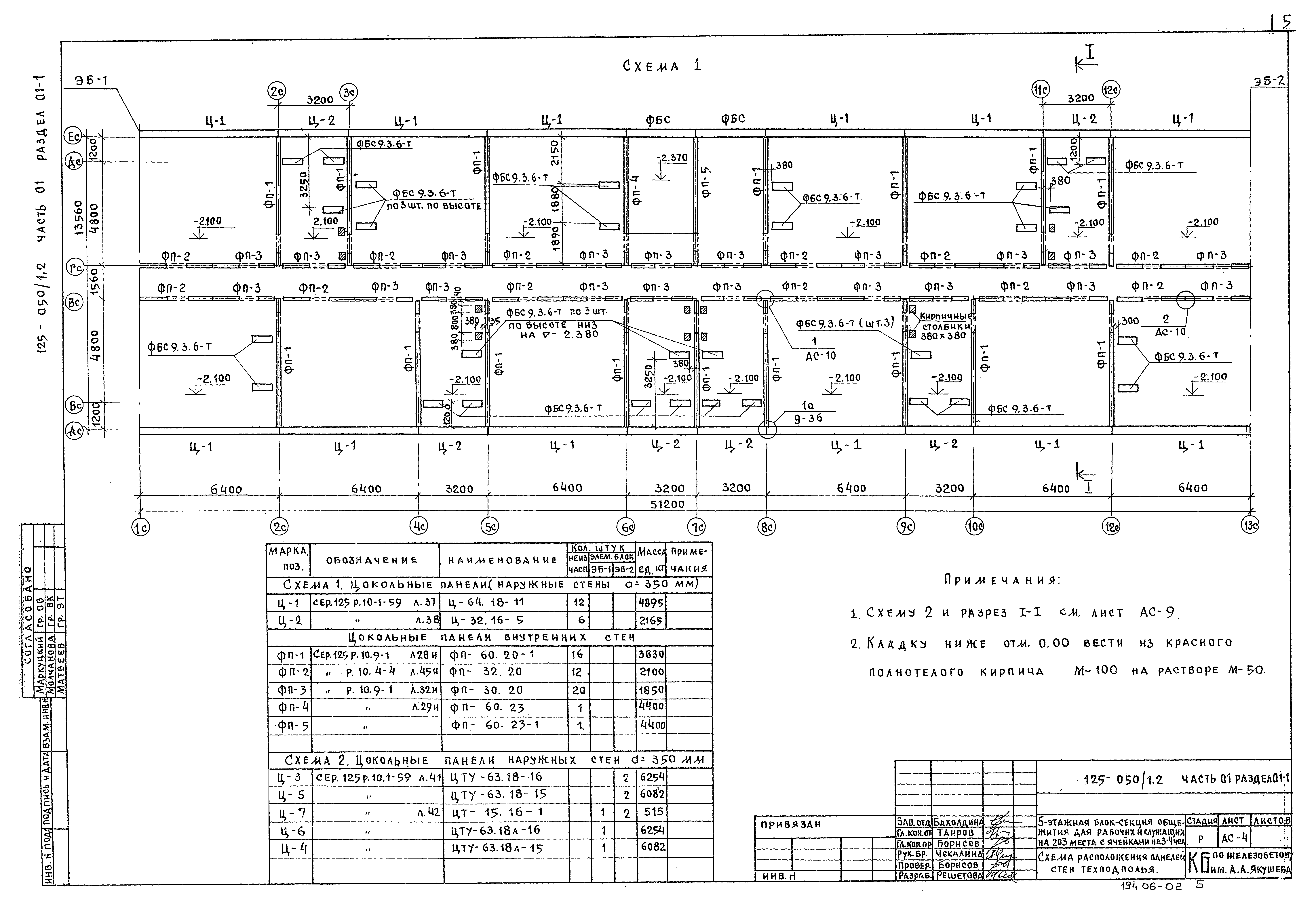
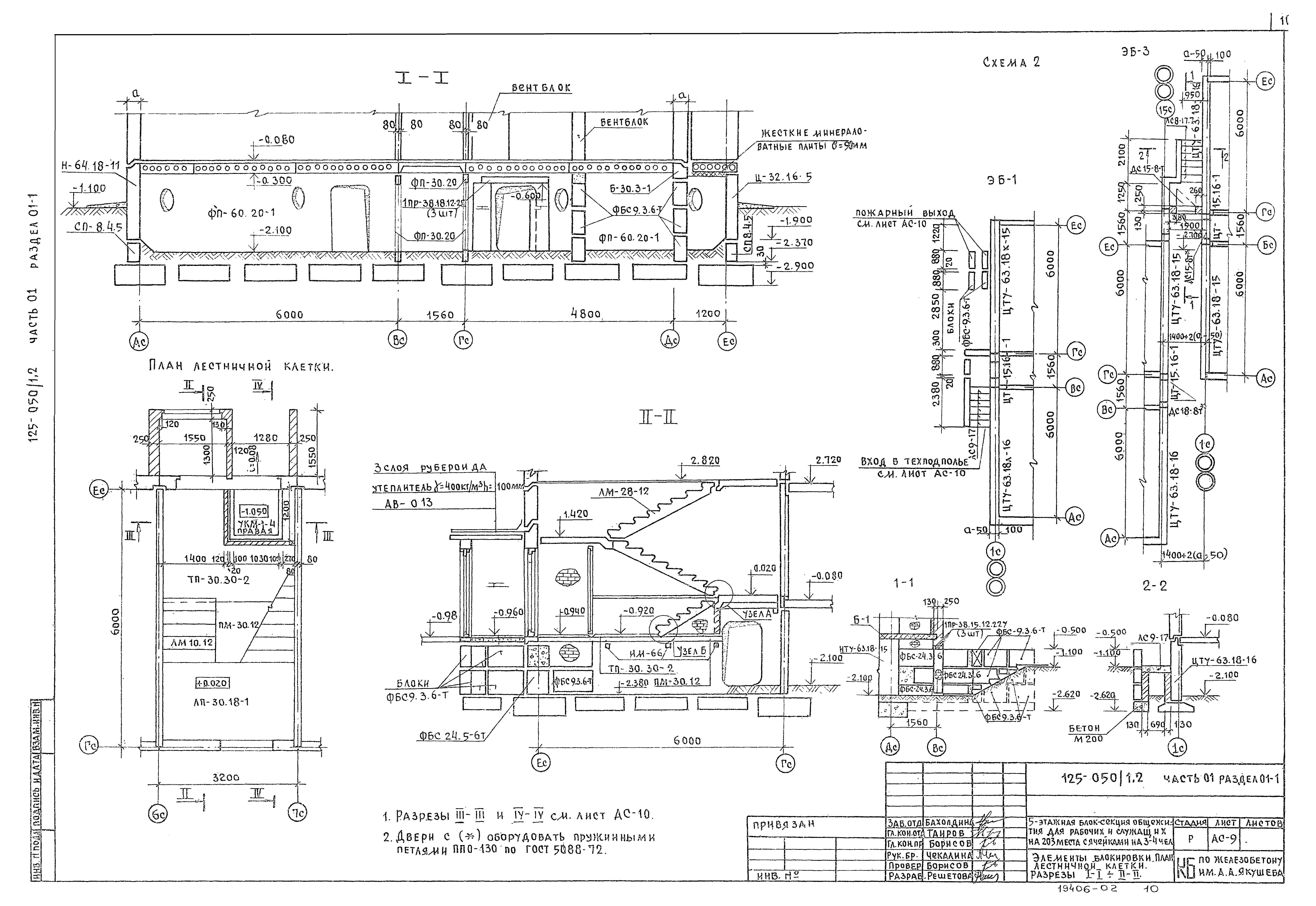
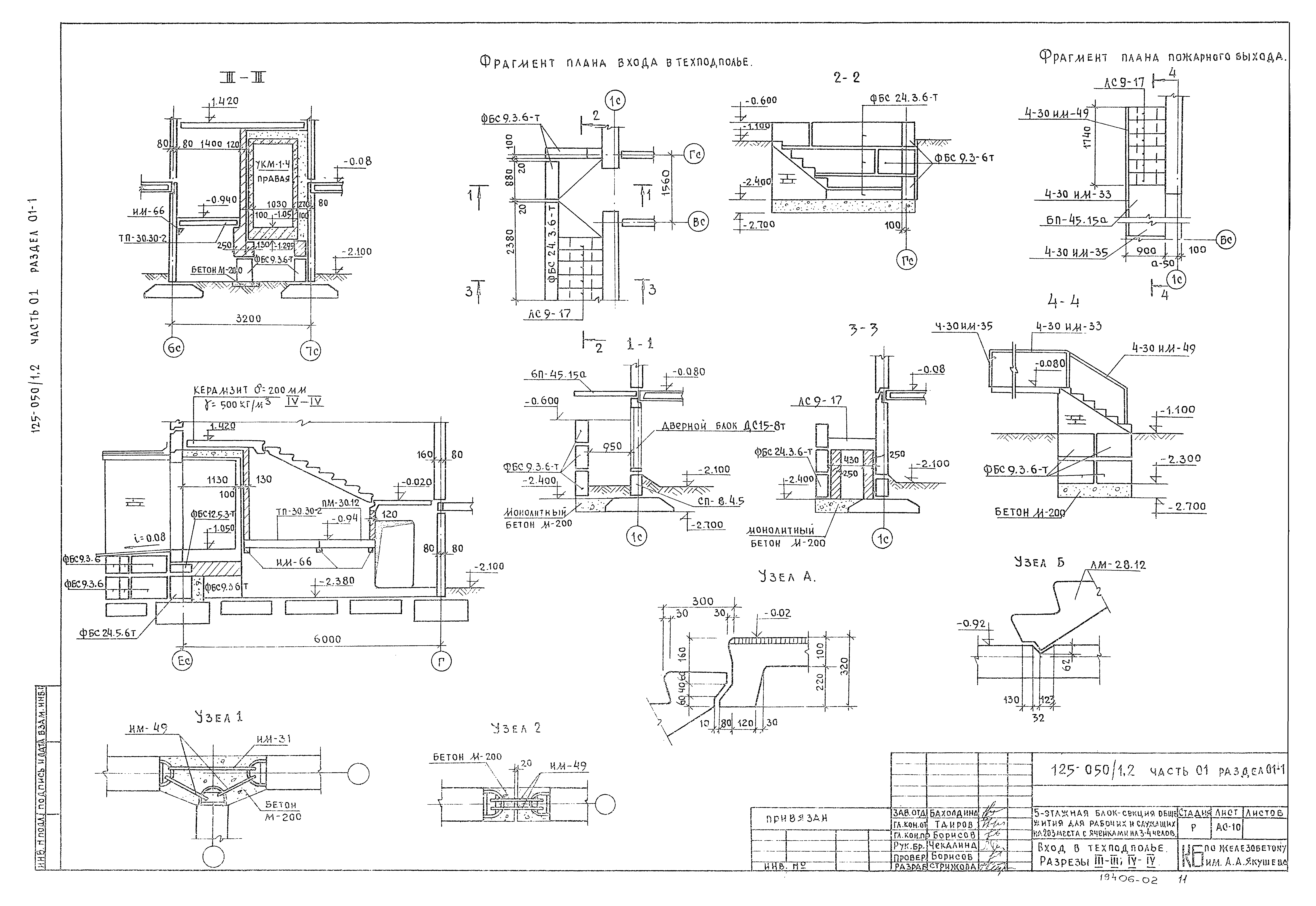
| Оглавление: | Общие данные Схемы нагрузок на отм. - 0.300 и - 2.400 Схема расположения панелей стен технического подполья Развертки стен техподполья Схема расположения фундаментов Сечения фундаментов Схема расположения фундаментов на элементы блокировки Элементы блокировки. План лестничной клетки. Разрезы I-I, II-II Вход в техподполье. Разрезы III-III; IV-IV Схема расположения панелей перекрытия над техподпольем Спецификация железобетонных изделий ниже отм. 0.000 на неизменяемую часть Спецификация железобетонных изделий ниже отм. 0.000 на элементы блокировки Спецификация металлических элементов ниже отм. 0.000 |
| Разработан: | КБ по железобетону им. А.А. Якушева |
| Утверждён: | 19.11.1978 Госстрой РСФСР (Russian Federation Gosstroy 8-23) |














