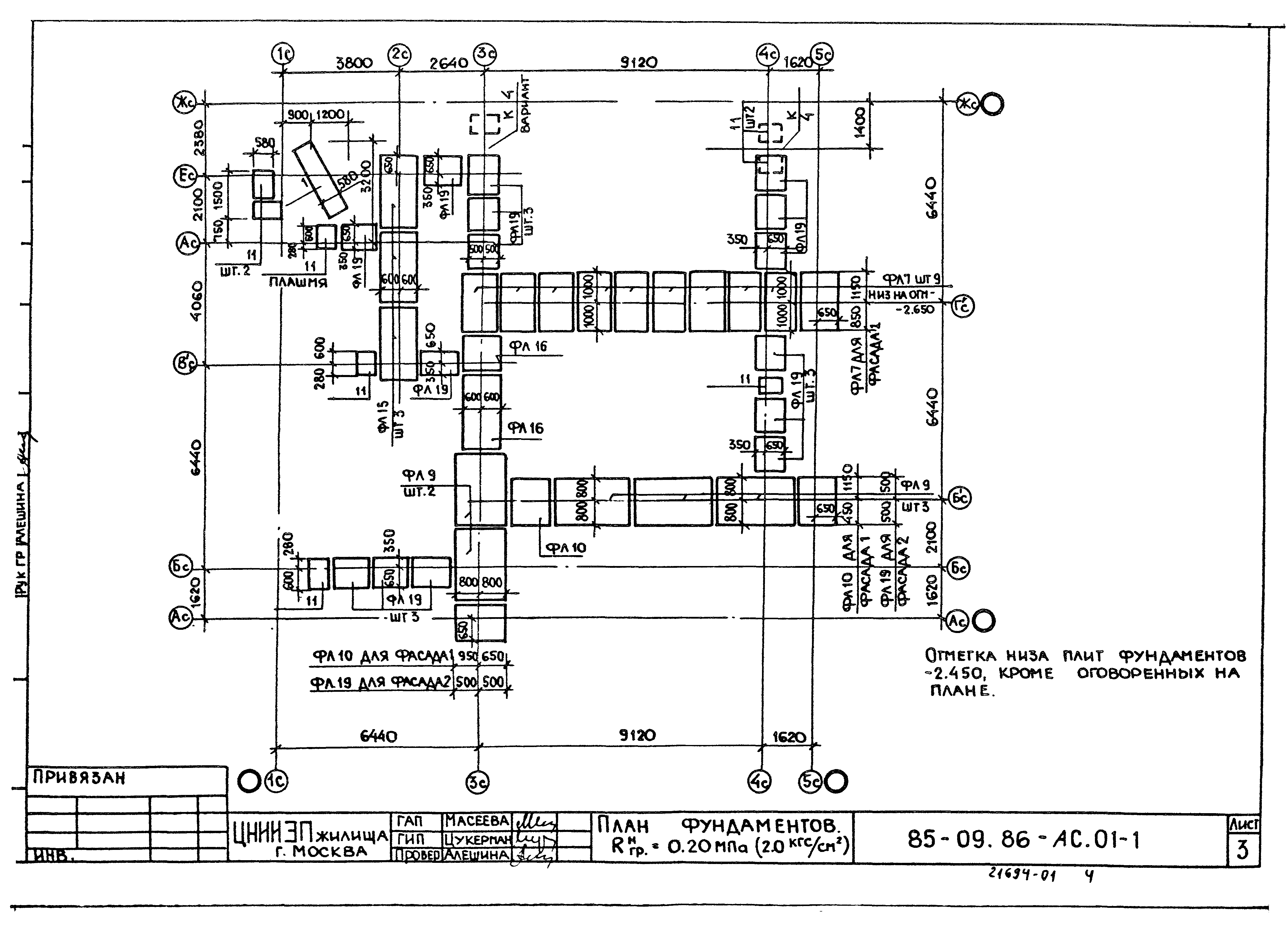
Скачать Типовой проект 85-09.86 АС.01-1. Архитектурно-строительные решения ниже отметки 0.000. Ленточные фундаментыДата актуализации: 01.01.2021 Типовой проект 85-09.86
АС.01-1. Архитектурно-строительные решения ниже отметки 0.000. Ленточные фундаменты| Обозначение: | Типовой проект 85-09.86 | | Обозначение англ: | 85-09.86 | | Статус: | не определен законодательством | | Название рус.: | АС.01-1. Архитектурно-строительные решения ниже отметки 0.000. Ленточные фундаменты | | Дата добавления в базу: | 01.09.2013 | | Дата актуализации: | 01.01.2021 | | Дата введения: | 30.07.1986 | | Дата окончания срока действия: | 30.06.2003 | | Разработан: | ЦНИИЭП жилища
| | Утверждён: | 31.12.1969 Госгражданстрой (Gosgrazhdanstroy 280)
|
      
|