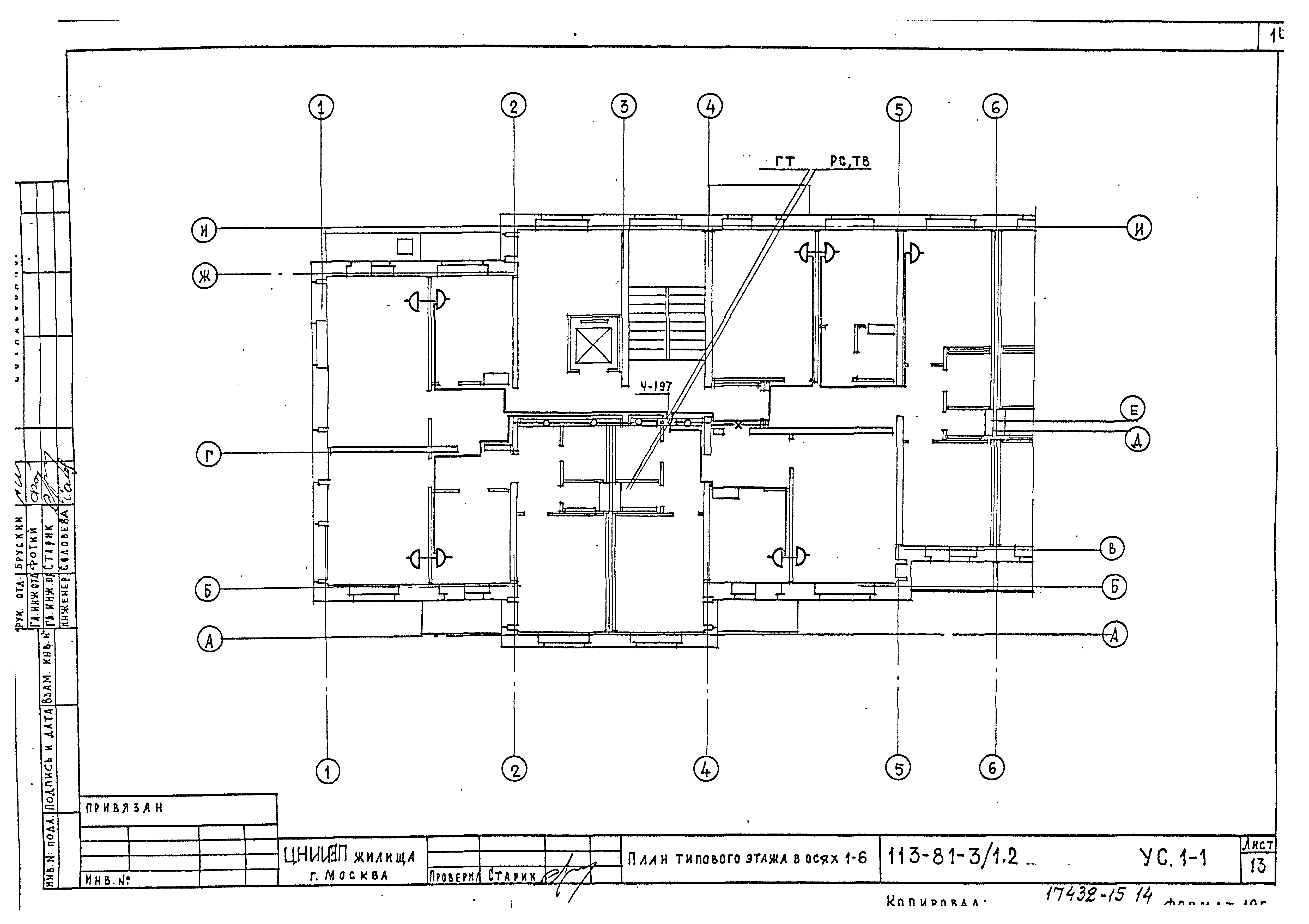
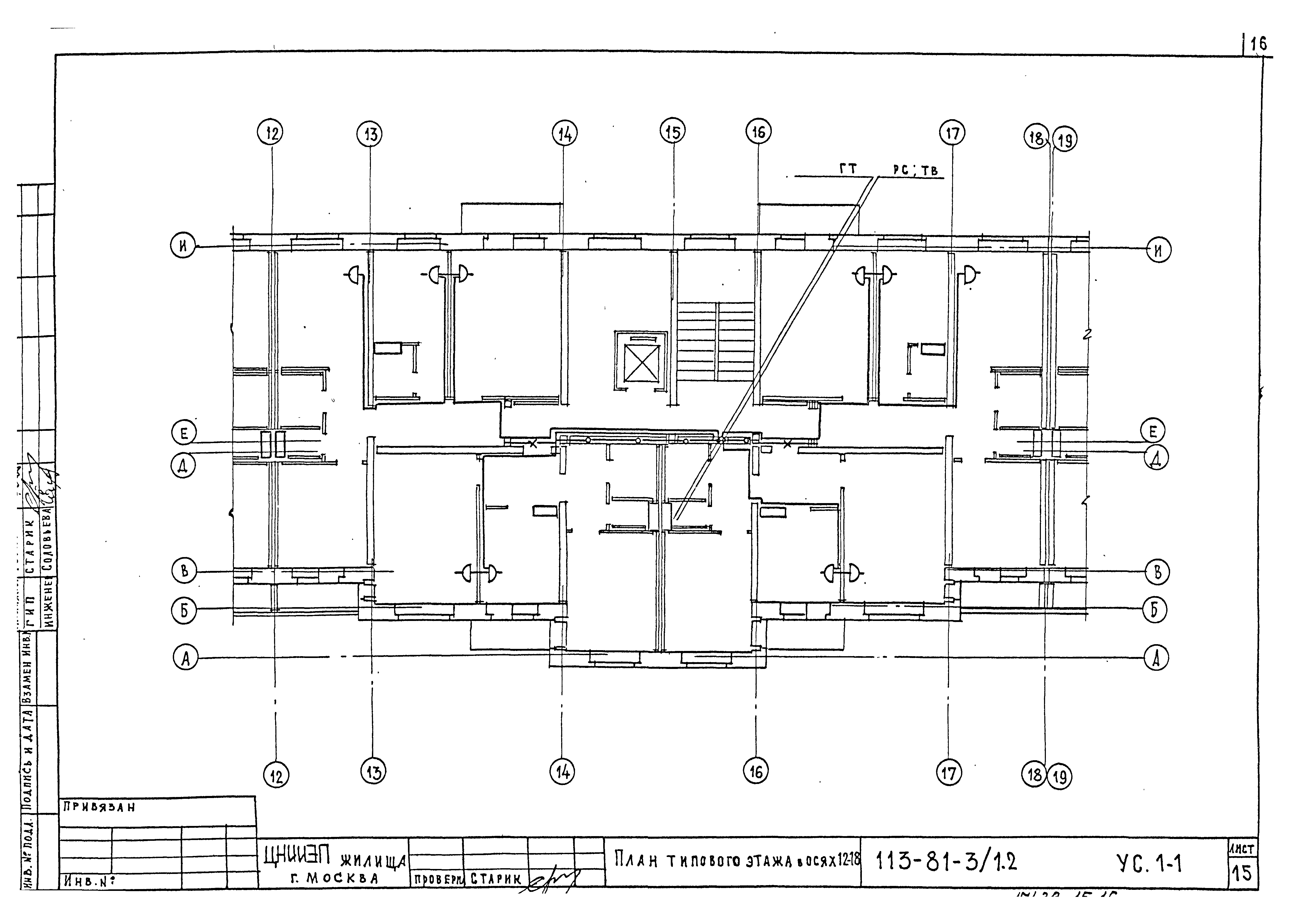
Скачать Типовой проект 113-81-3/1.2 Часть 6. Устройства связиДата актуализации: 01.01.2021
|
| Обозначение: | Типовой проект 113-81-3/1.2 |
| Обозначение англ: | 113-81-3/1.2 |
| Статус: | не определен законодательством |
| Название рус.: | Часть 6. Устройства связи |
| Дата добавления в базу: | 01.09.2013 |
| Дата актуализации: | 01.01.2021 |
| Дата введения: | 30.03.1981 |
| Дата окончания срока действия: | 30.06.2003 |
| Разработан: | ЦНИИЭП жилища |
| Утверждён: | 31.12.1968 Госкомитет по гражданскому строительству и архитектуре при Госстрое СССР (National Committee on Nonindustrial Construction and Architecture, USSR Gosstroy 245) |


















