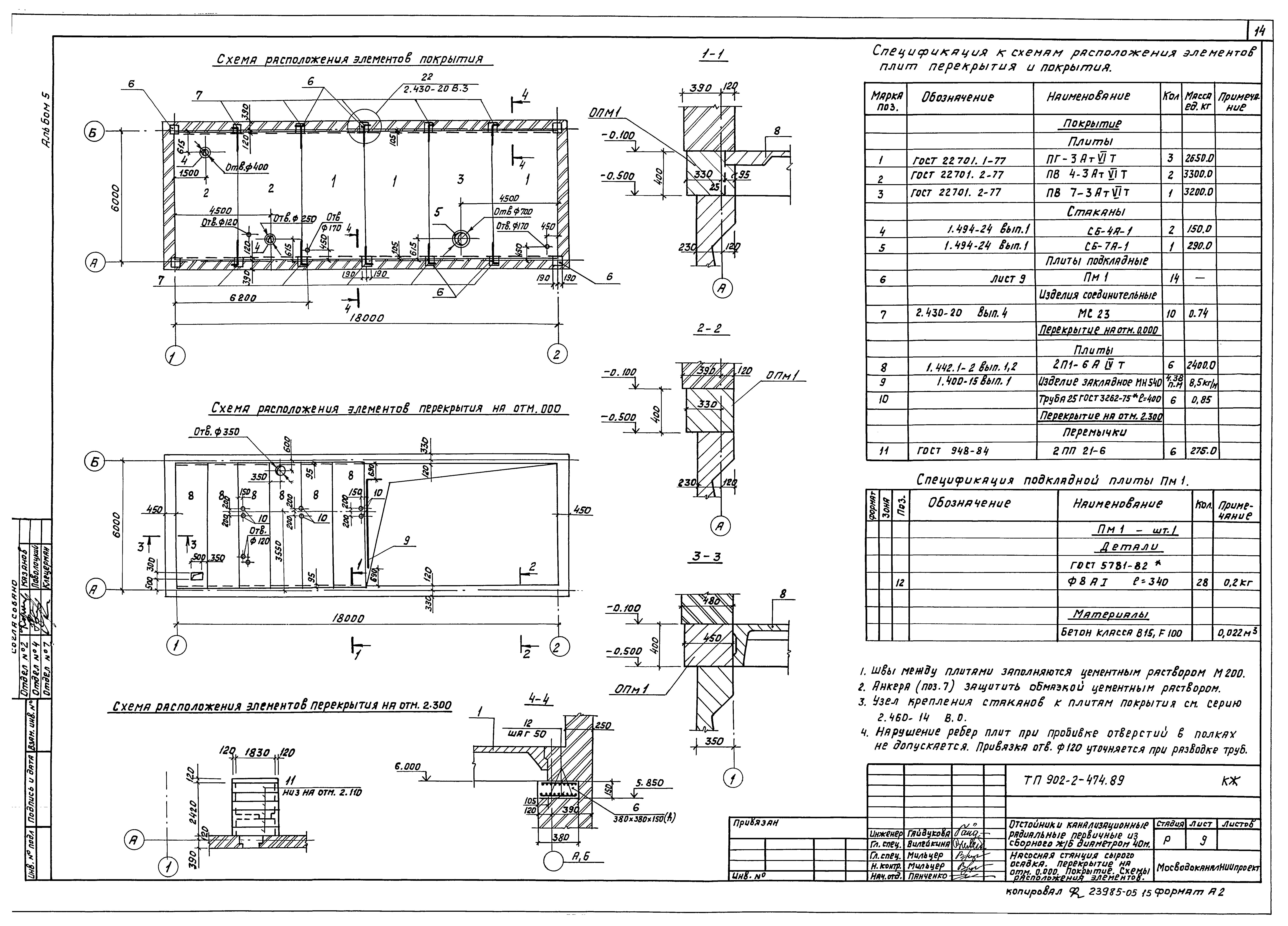
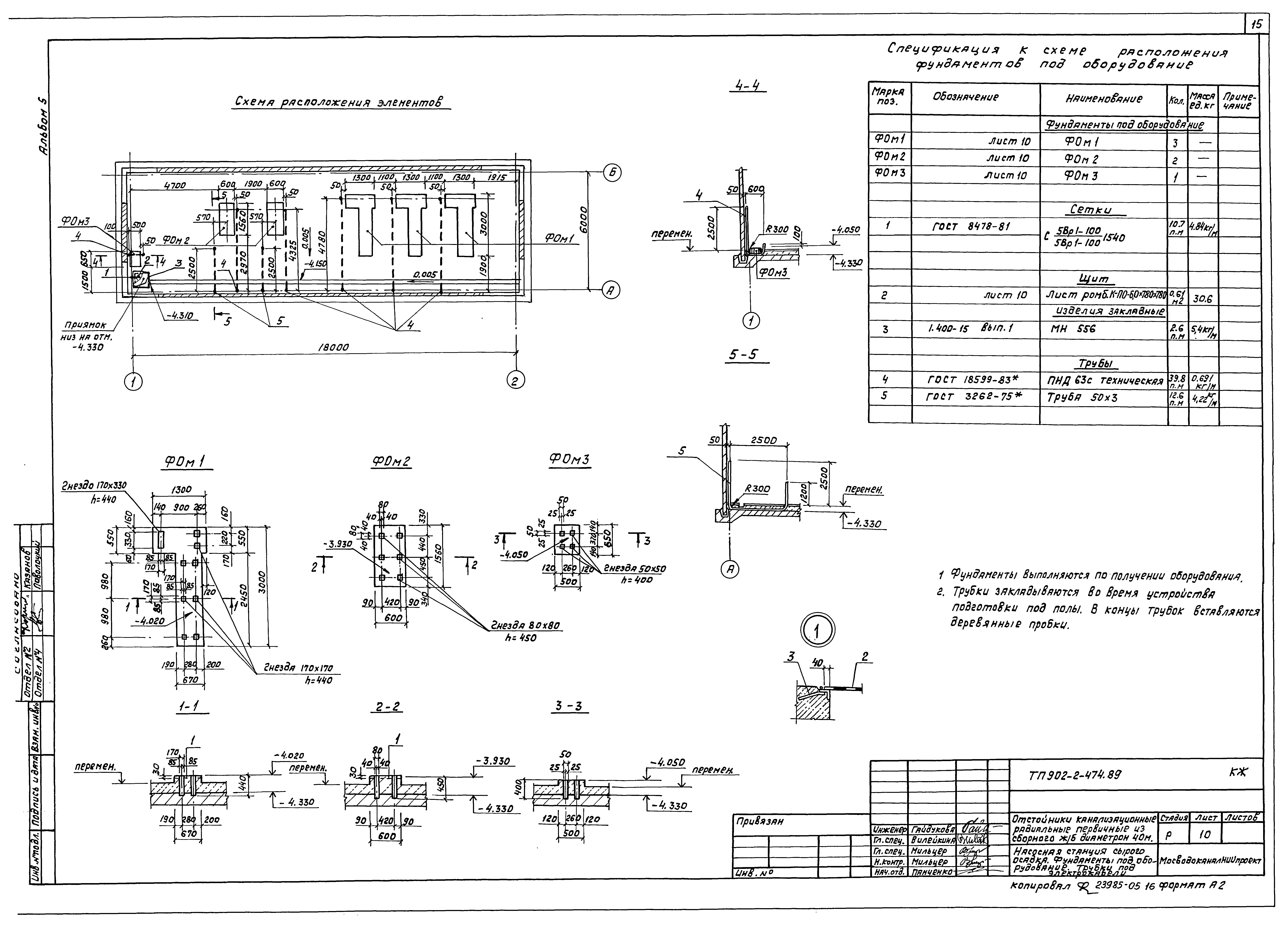
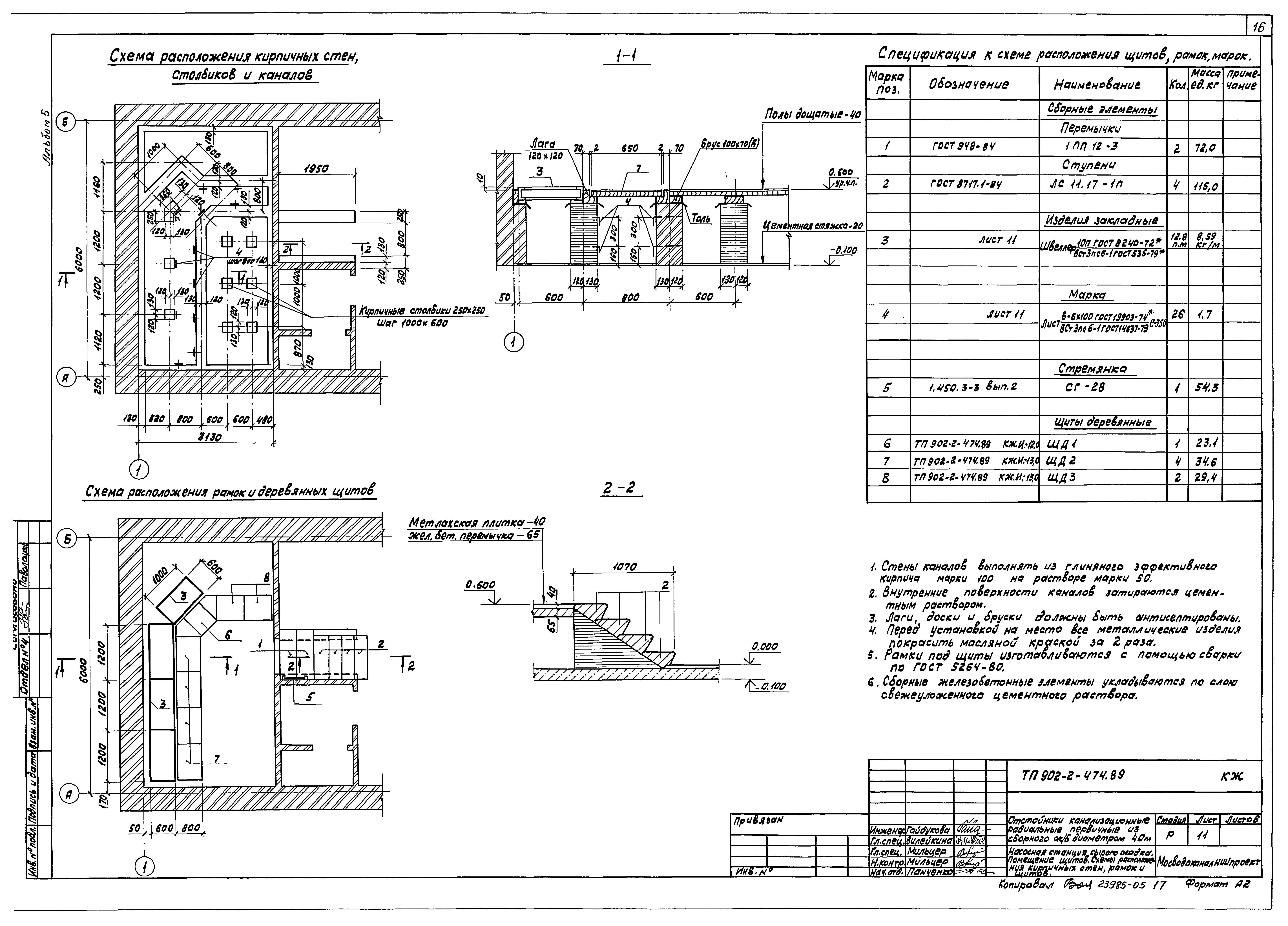
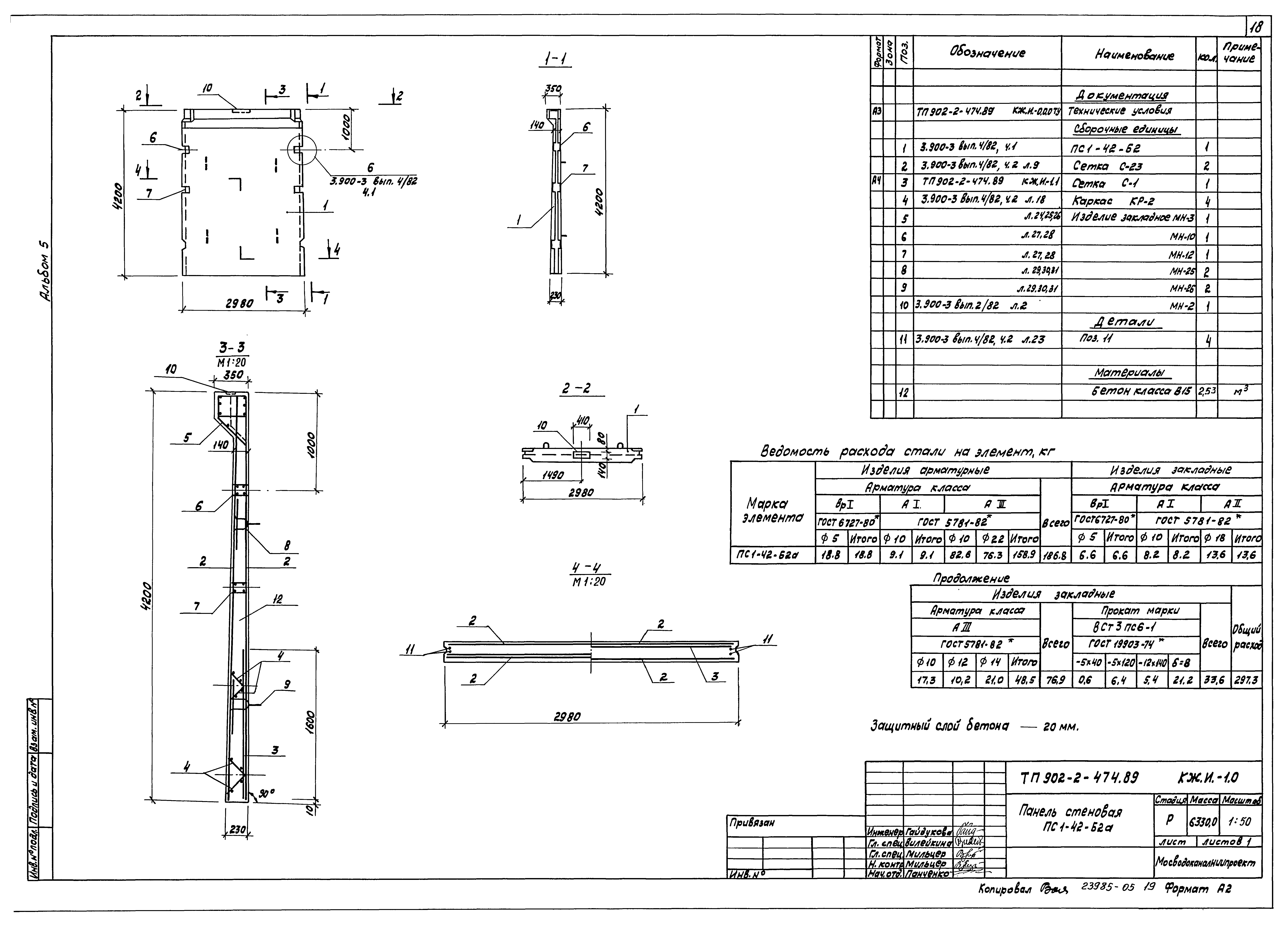
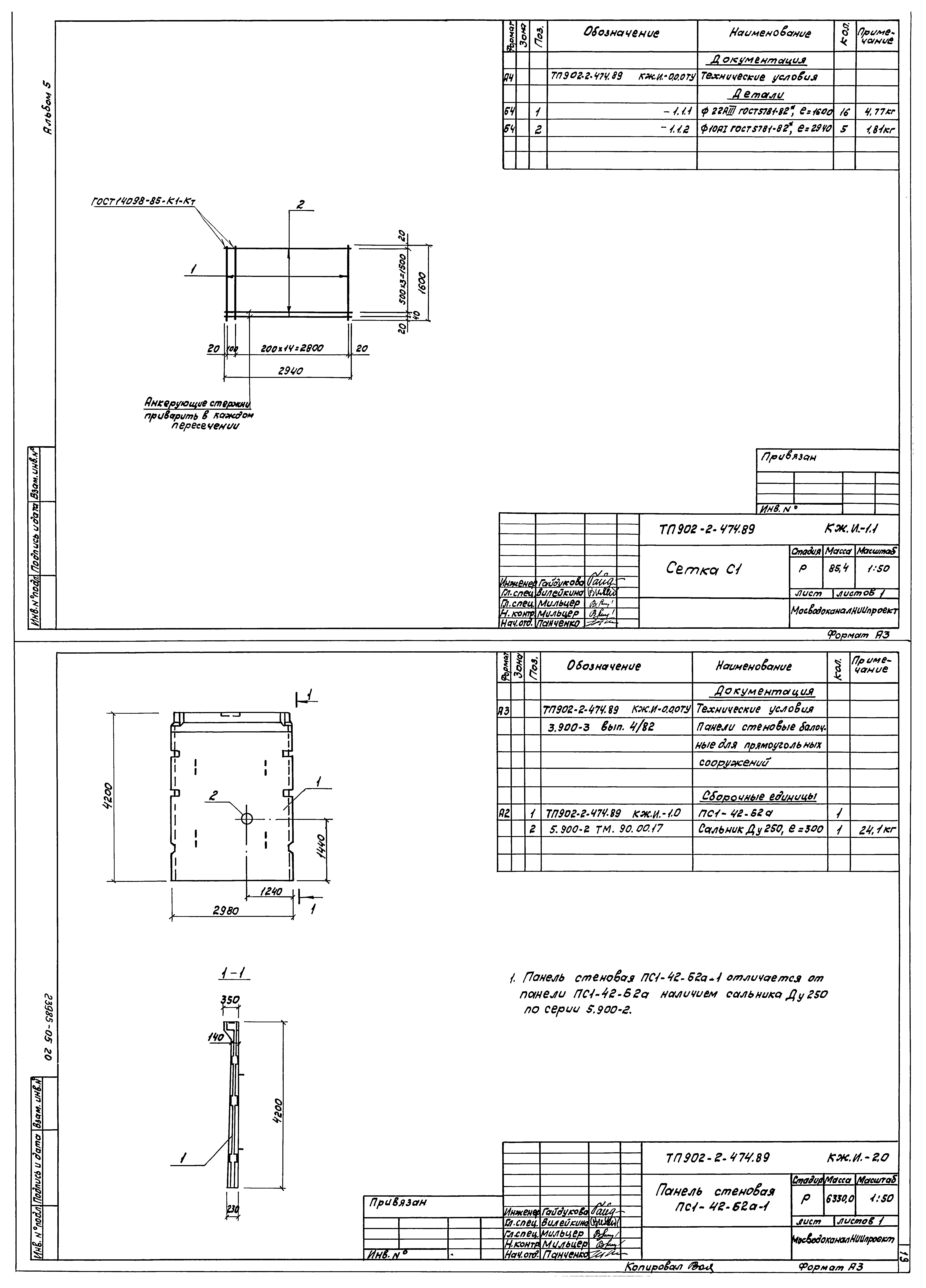
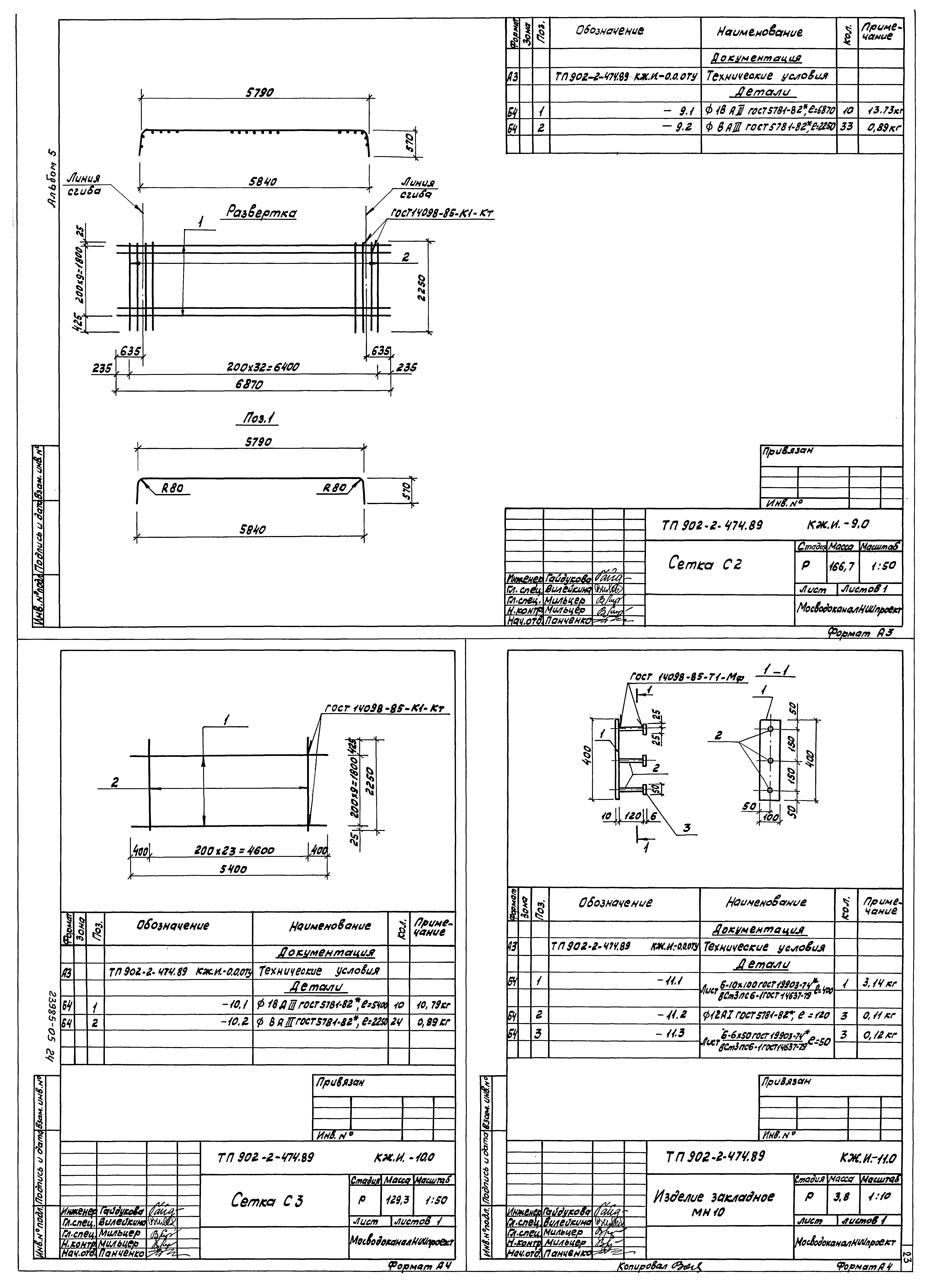
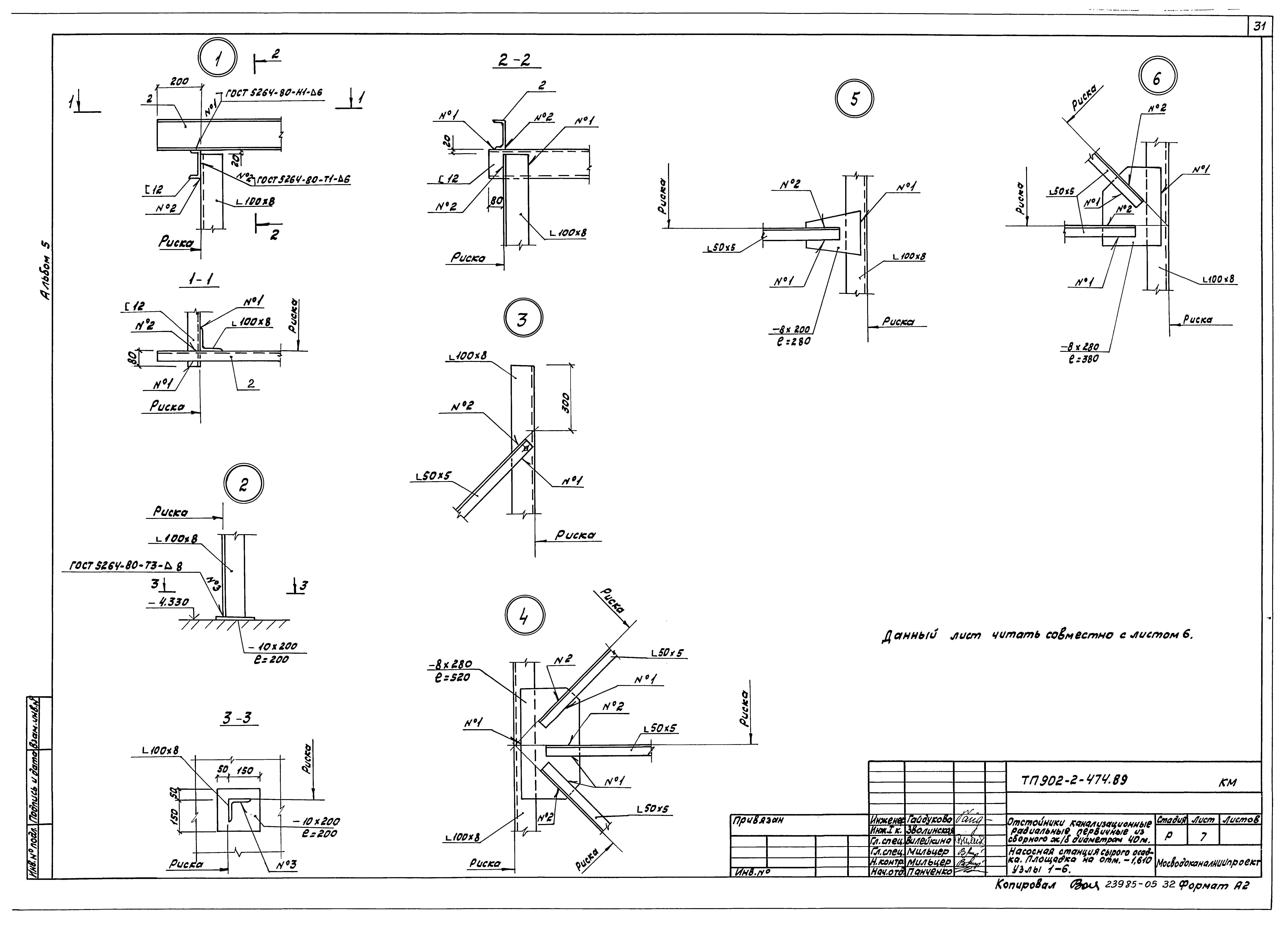
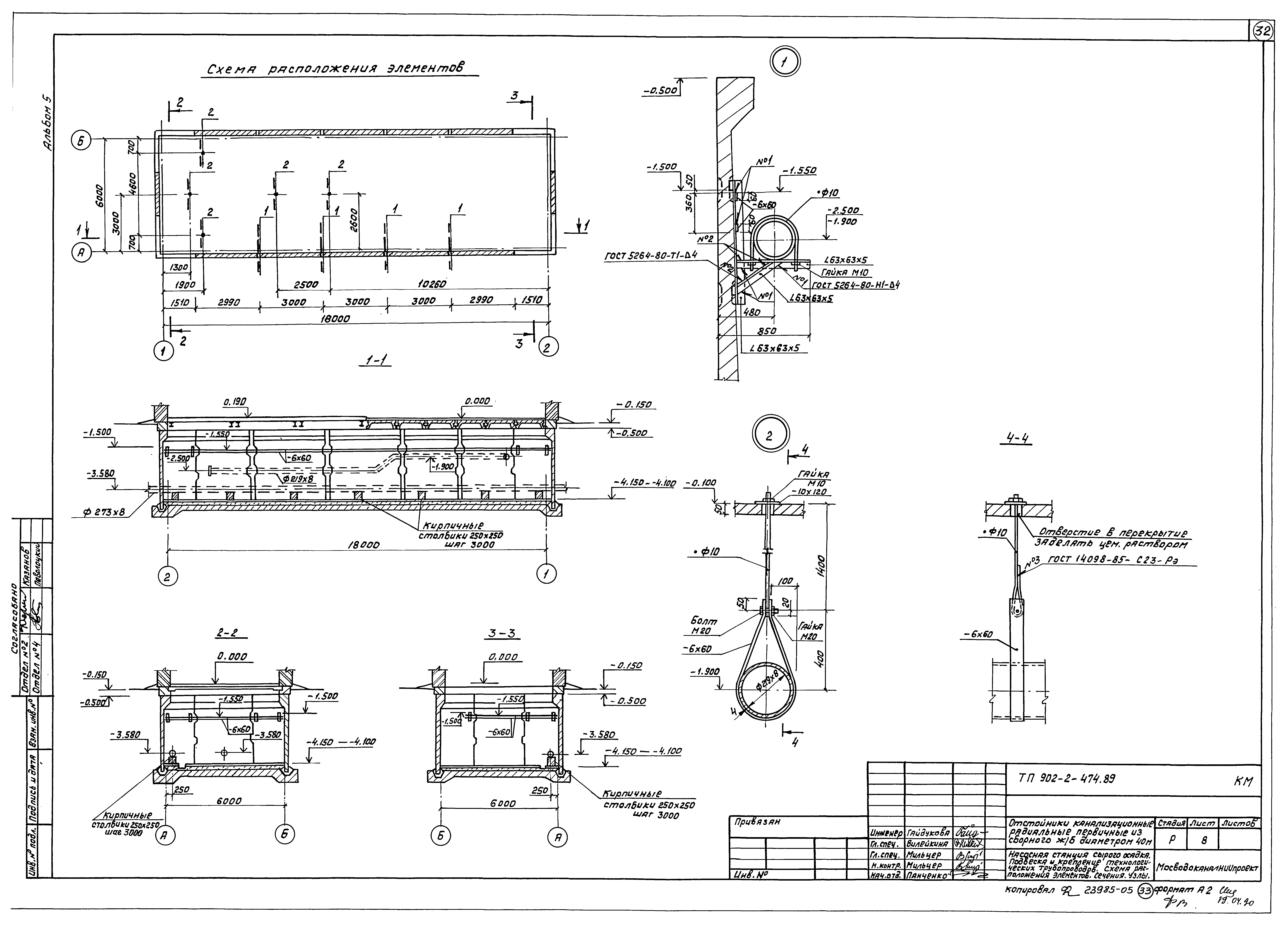
Скачать Типовой проект 902-2-474.89 Альбом 5. Насосная станция сырого осадка. Архитектурные решения. Конструкции железобетонные. Строительные изделия. Конструкции металлическиеДата актуализации: 01.01.2021
|
| Обозначение: | Типовой проект 902-2-474.89 |
| Обозначение англ: | 902-2-474.89 |
| Статус: | не определен законодательством |
| Название рус.: | Альбом 5. Насосная станция сырого осадка. Архитектурные решения. Конструкции железобетонные. Строительные изделия. Конструкции металлические |
| Дата добавления в базу: | 01.09.2013 |
| Дата актуализации: | 01.01.2021 |
| Дата введения: | 06.09.1989 |
| Дата окончания срока действия: | 30.06.2003 |
| Разработан: | МосводоканалНИИпроект |
| Утверждён: | 16.08.1989 Мосгорисполком (Mosgorispolkom 1582) |
































